My first document

Page 1

BIJANHAZRATI bij.hazrati@gmail.com
PROJECTS PROFESSIONAL: MorningViewDrive_01 CampanilDrive_02 BeverlyRanchRoad_03 LaBreaTerrace_04 MarisolMalibu_05 LomaVistaDrive_06 MLBRenderings_07 EDUCATION: SettlementGround_08 UtilizingUnderUsages(3U)_09 BlurredEdge_10

01MORNING VIEWDRIVE MODUSDESIGNGROUP,INC.

COLLABORATIONWITH:StudioArthurCasas(DesignArchitect)

PROJECTMANAGER:RobertD.Collins(ArchitectofRecord)

PROJECTTEAM:VictoriaJesus,RaissaFurlan,RobertD.Collins,RobertMeyers

DESCRIPTION:

IntheroleofArchitectofRecord,ModuscollaboratedwithStudioArthurCasas (SAC)ofBrazil,todevelopthis10,200squarefootresidencethatwillfeature multiplestructures,naturalmaterials,stronglines,andemphasizetherelationship ofthesitetotheocean.Thisprojectiscurrentlyinconstruction.

ROLEINPROJECT:ProjectDesigner

Myroleinthisprojectincludedassistingourteamtobuildnumeroussubmission packagesinadditiontoproducingspecificexhibitsdemonstratingcomplianceof variousfactorsforentitlements.Oncepermitswereobtained,weproducedthe IssueforBID(IFB)andIssueforConstruction(IFC)sets.Othertasksincluded generalcoordinationbetweenconsultants,aswellasprovidingspecificdetails andexhibitsfortheclient'suseinValueEngineeringandGC'suseduring construction(whichincludesrespondingtoRFIs).

SITEPLAN
OVERALL-WESTSECTION RENDERINGCOURTESYOF:SAC RENDERINGCOURTESYOF:SAC

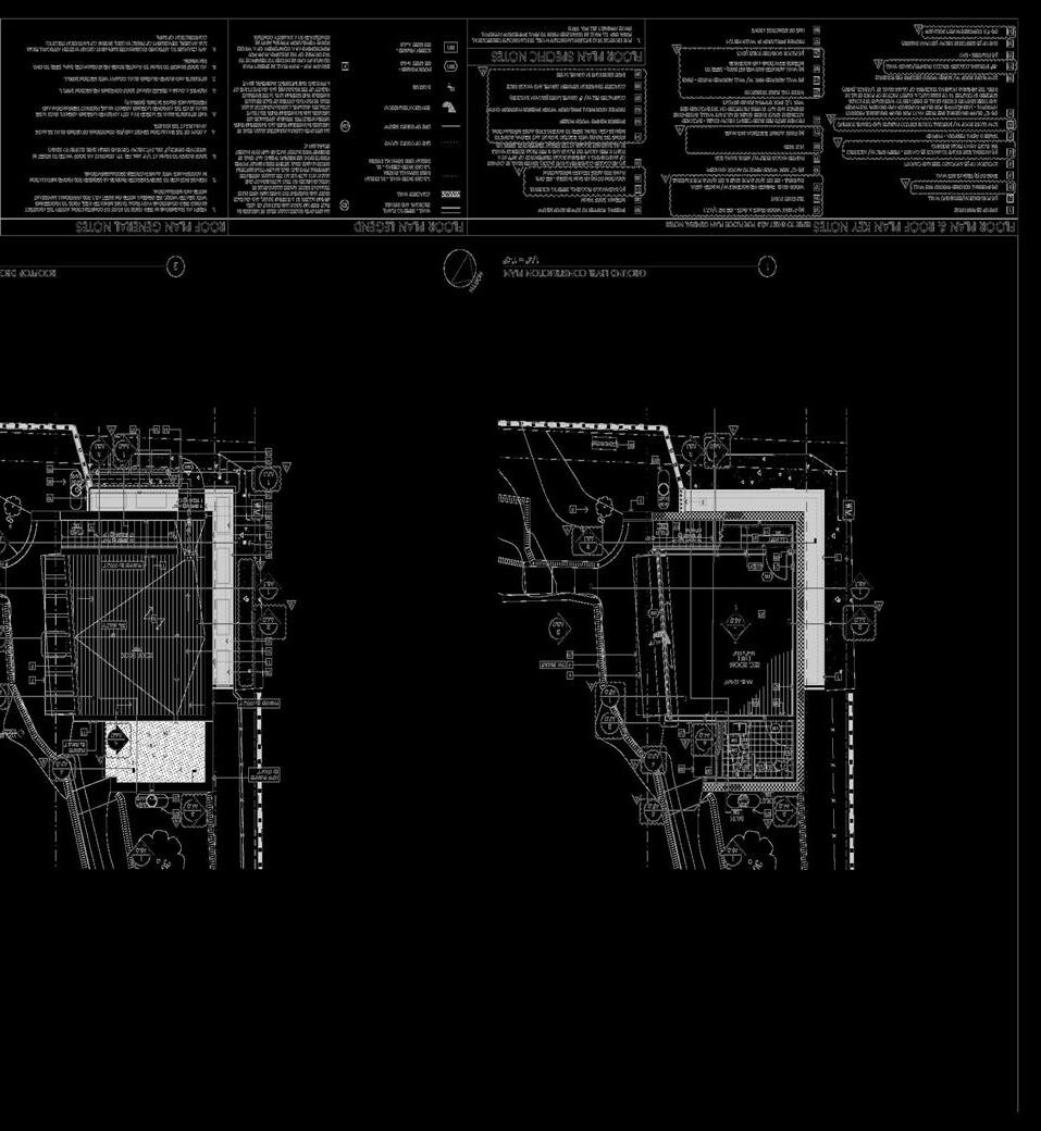
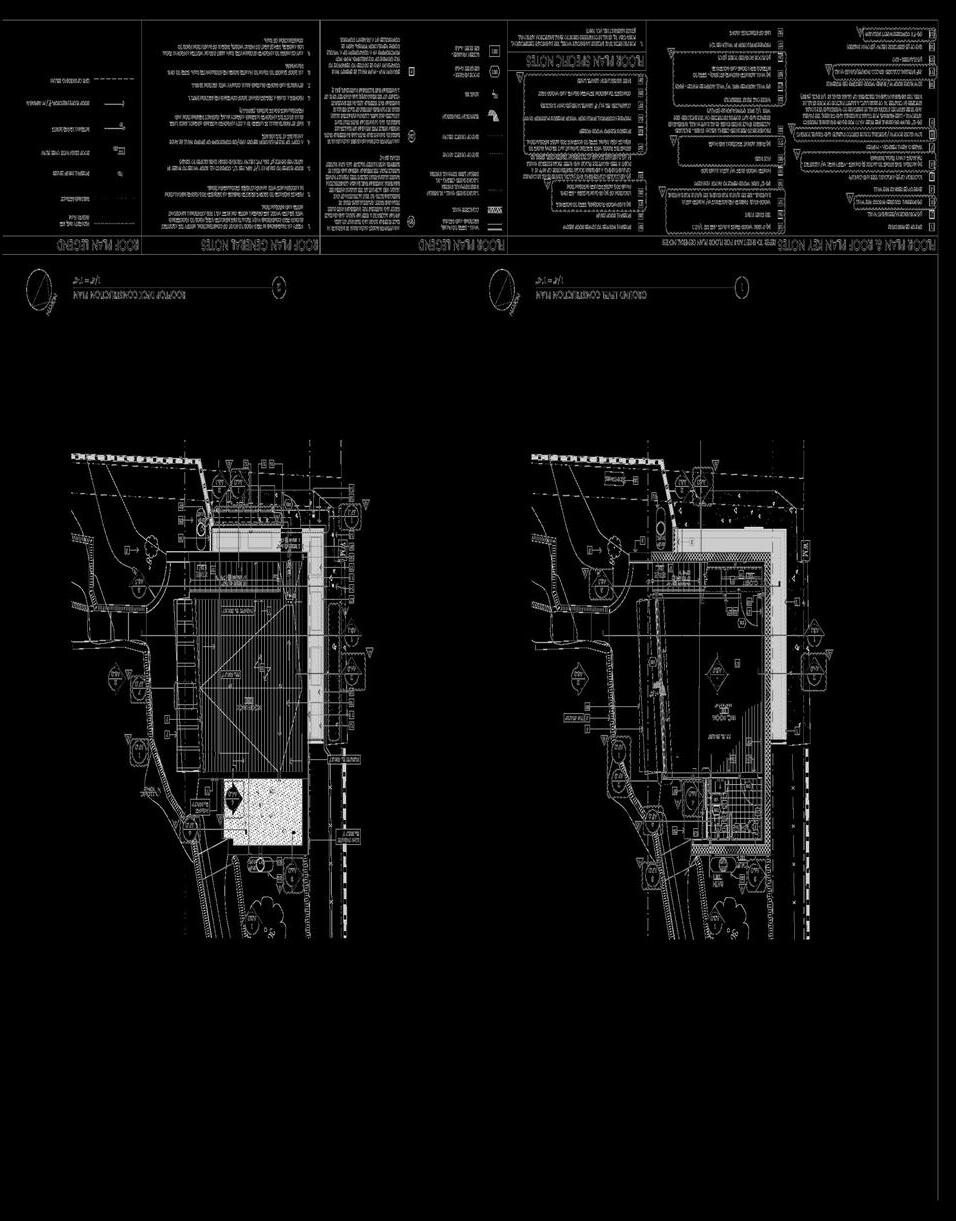
MAINHOUSE-ROOFPLAN

RENDERINGCOURTESYOF:SAC

MAINHOUSE-GROUNDFLOORPLAN

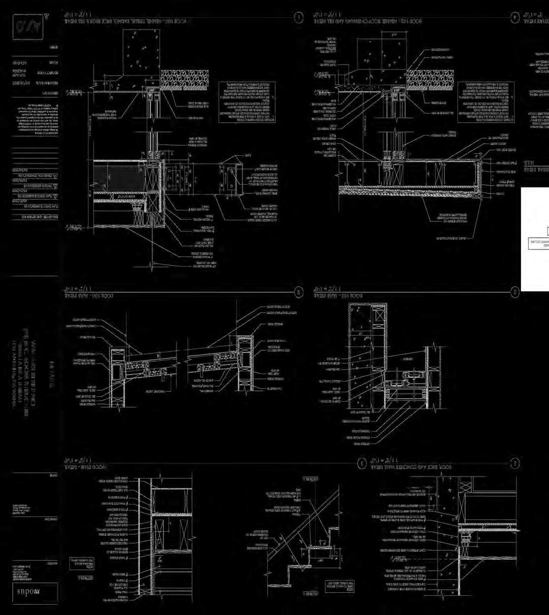
DECKEDGEW/PLANTER-DETAIL

ROOFOVERHANGEDGE-DETAIL

MAINHOUSE-BASEMENTFLOORPLAN

SUNKENLOUNGE-SECTION

02CAMPANIL DRIVE

MODUSDESIGNGROUP,INC.

COLLABORATIONWITH:FearonHayArchitects(DesignArchitect)

PROJECTMANAGER:RobertD.Collins(ArchitectofRecord)

PROJECTTEAM:AlishaPatel,OliviaWilliams,RobertD.Collins,RobertMeyers

DESCRIPTION:

ModusistheArchitectofRecordforthis2,600squarefootresidence,whichalso hasadetached1,500squarefootstudiobuilding,3-carcoveredparking,pool withoutdoorshower,andnativelandscapingwithmeanderingpathways.

DevelopedincollaborationwithFearonHayArchitects(FHLA)ofNewZealand, thisprojectislocatedinSantaBarbaraandiscurrentlyunderconstructionwith anticipatedcompletioninFall2023.

ROLEINPROJECT:ProjectDesigner

Myroleinthisprojectincludedassistingourteamtobuildseveralsubmission packagesforthevariousstagesofentitlements(whichincluded:HOAApproval, ConceptPlanning,PDA,SFDBandB&S).Inaddition,wealsoneededtoprepare specificpackages,graphicsandexhibitsforuseinvariouspublicandcomity hearings,whichIattended.Sinceobtainingpermits,we'vebeenfocusedon finalizingourIFCpackage,whichincludesproducingspecificexhibitsanddetails forGC'suseduringconstruction,respondingtoRFIsandon-goingdetailed coordinationwithconsultants.Asthisisaverycomplexandsmallhouse,our marginforerrorhasbeentightwhenitcomestocoordinatingthevariousbuilding systemswithinthisproject.

MAINHOUSE-LONGITUDINALSECTION

ADU-LONGITUDINALSECTION
RENDERINGCOURTESYOF:FHLA

MAINHOUSE-REFLECTEDCEILINGPLAN

ADU-REFLECTEDCEILINGPLAN

MAINHOUSE-GROUNDFLOORPLAN

ADU-GROUNDFLOORPLAN

MAINHOUSE-SLABPLAN

ADU-SLABPLAN

MAINHOUSE-CRAWLSPACEPLAN

ADU-CRAWLSPACEPLAN

RENDERINGCOURTESYOF:FHLA RENDERINGCOURTESYOF:FHLA

03BEVERLY RANCHROAD

MODUSDESIGNGROUP,INC.

PROJECTMANAGER:RobertD.Collins(Architect)

PROJECTTEAM:RobertD.Collins,RobertMeyers,JaneSkulmoski

DESCRIPTION:

AstheArchitect,Moduswastaskedwithexpandinganexisting4,700square footresidenceto6,000squarefeet.Theclientsaretheoriginalownersofthe houseandsinceitwasbuilt(in2004)thefamilyhasgrownandthusthecurrent designofthehousedoesnotsuittheirlifestyle.Thehousewasoriginallydesigned asmodular"pods"organizedalongacentralcorridoror"spine".Thedesireisto expandthehousebyaddinganewdetachedaccessorylivingquarterswith additionalgaragetofacilitatetheexpandingfamilyandclient'shobbyofauto mechanicswhileutilizingthesamedesignlanguageandcomtemporized mid-centurymodernaesthetic.Theprojectiscurrentlyintheprocessofbeing reviewedbytheMDRB.

ROLEINPROJECT:ProjectDesigner

Myroleinthisprojectincludedevaluatingtheexistingdrawingsbyconducting fieldverificationsandultimatelypreparingAs-Builts.Additionally,Iassistedour teamintheSchematicDesignandDesignDevelopmentphasesincluding developingstudiestoassessthebestdesigninterventions,buildinga3Dmodel andpreparingschemes/exhibitstoconveyourdesignintenttotheclient.Once thedesignwasestablished,IassistedinpreparingtheMDRBsubmissionpackage aswellason-boardingconsultants.

ALQSCHEME1-3DVIEW2(RENDERINGCOURTESYOF:MDG)

ALQSCHEME1-3DVIEW2(RENDERINGCOURTESYOF:MDG)

ALQ-WESTEXTERIORELEVATION

GARAGEANDALQ-LOWERLEVELPLAN

GARAGEANDALQ-MAINLEVELPLAN

GARAGEANDALQ-ROOFPLAN

ALQSCHEME2-3DVIEW1 (RENDERINGCOURTESYOF:MDG)

ALQSCHEME2-3DVIEW2 (RENDERINGCOURTESYOF:MDG)

ALQSCHEME2-3DVIEW3 (RENDERINGCOURTESYOF:MDG)

ALQSCHEME2-3DVIEW4 (RENDERINGCOURTESYOF:MDG)

ALQSCHEME3-3DVIEW1 (RENDERINGCOURTESYOF:MDG)

ALQSCHEME3-3DVIEW2 (RENDERINGCOURTESYOF:MDG)

ALQSCHEME3-3DVIEW3 (RENDERINGCOURTESYOF:MDG)

ALQSCHEME3-3DVIEW4 (RENDERINGCOURTESYOF:MDG)

04LABREA TERRACE

MODUSDESIGNGROUP,INC.

COLLABORATIONWITH:FearonHayArchitects(DesignArchitect)

PROJECTMANAGER:RobertD.Collins(ArchitectofRecord)

PROJECTTEAM:AlishaPatel,OliviaWilliams,RobertD.Collins,JaneSkulmoski

DESCRIPTION:

IntheroleofArchitectofRecord,ModuscollaboratedwithFearonHayArchitects (FHLA)ofNewZealandtorenovateanexisting3,800squarefootmainhouse includingvariousinteriorupdatesaswellasanewoutdoordeckandtrellis.

AftercompletionoftheMainHouse,Moduswasthentaskedwithrenovatingthe existingServant'sQuarters,generalupdatestothesite(includingre-designing thefrontgate),anddesigninganewAccessoryLivingQuarter(ALQ),which wouldserveasarecreationroomwithrooftopdeckandbathroom.TheMain HouseandServant'sQuartershavebeencompletedandtheALQiscurrently underconstruction.

ROLESINPROJECT:JuniorDesigner&ProjectDesigner

Iplayedmanyrolesthroughoutthelifeofthisproject.Initially,Ipreparedthe As-BuiltsfortheMainHouseandtheServant'sQuarters,whichthenservedasthe basedrawingsfortheentiretyoftheproject.Additionally,Iassistedourteamin theSDandDDphases,whichincludeddevelopingstudies,exhibitsandschemes, aswellasbuildinga3Dmodeltohelpconveyourdesignintenttotheclient.I

ALQPREVIOUSSCHEMES-3DVIEW1(RENDERINGCOURTESYOF:MDG)

ALQ-DECKANDWALLDETAIL

ALQ-STAIRDETAIL

FRONTGATE-JAMBATSTRIKEDETAIL

FRONTGATE-JAMBATHINGEDETAIL

ALQ-WALLSECTION

FRONTGATE-FRONTELEVATION

FRONTGATE-SECTION

ALQ-BUILDINGSECTION

FRONTGATE-PLAN

05MARISOL MALIBU

MODUSDESIGNGROUP,INC.

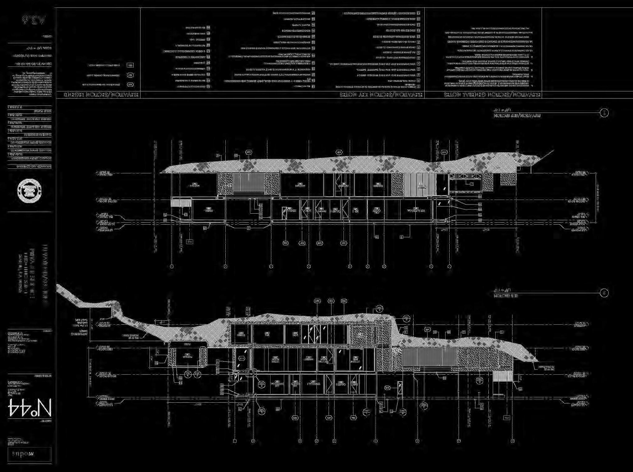
COLLABORATIONWITH:No44-GavinBrodin(InteriorDesigner)

PROJECTMANAGER:RobertD.Collins(Architect)

PROJECTTEAM:GavinBrodin,RobertD.Collins,RobertMeyers,JaneSkulmoski

DESCRIPTION:

This16,000squarefootgroundupprivateresidencewasdesignedforthe covetedenclaveofMariSolMalibu.

ThearchitectureframesviewsofthePacificOceanandblendstheexteriorand interiorthroughtheuseofverticalplanesandmultiplereflectingpoolsthat transectthebarrierbetweenindoorandout.Theresidencewouldhavefeatured alargePrimarySuite,foursecondaryBedroomswithEnsuites,aGuestHouse, privateSpa/Salonwithawaterfallandindoorpool,Gym,andScreeningRoom.

Thepropertywassolduponcompletionofthepermittingprocessandconstruction didnotoccur.

ROLEINPROJECT:JuniorDesigner

Myroleinthisprojectincludedhard-liningthedrawingsbasedoninitialsketches fromtheArchitect.OncewehadthebackgroundsdrawninCAD,Iassistedour teamintheSDandDDphases;thisincludeddevelopingstudies,exhibitsand schemesaswellasbuildinga3Dmodeltohelpconveyourdesignintentforthe houseandsitetotheclientthroughtheuseofpresentations.Afterfinalizingthe design,wethenproducedapermitsetofdrawingsaswellasanIssueforBID (IFB)package.

RENDERINGCOURTESYOF:BRYANVERSTEEG
OVERALL-SECONDFLOORPLAN OVERALL-BASEMENTFLOORPLAN OVERALL-GROUNDFLOORPLAN OVERALL-ROOFPLAN

FEATURESTAIR-ELEVATION

OVERALL-SITESECTION

FEATURESTAIR-ENLARGEDFLOORPLANS

RENDERINGCOURTESYOF:BRYANVERSTEEG

RENDERINGCOURTESYOF:BRYANVERSTEEG

FEATURESTAIR-SECTION

RENDERINGCOURTESYOF:BRYANVERSTEEG

06LOMAVISTA DRIVE

MODUSDESIGNGROUP,INC.

COLLABORATIONWITH:MendezandClarkVentures,Inc.

PROJECTMANAGER:RobertD.Collins(Architect&ConstructionAdministration)

PROJECTTEAM:RobertMendez,ChrisClark,RobertD.Collins,JaneSkulmoski

DESCRIPTION:

Thedesignofthis7,000squarefootnewlyconstructedhomeisorganizedwith thepublicandprivatespacesoppositeeachother,culminatinginanexpansive PrimarySuite.ThePrimarySuitecontainsalargebedroomwithfireplace, morningbar,dualwalk-inclosets,doublevanitybathroom,soakingtub,an oversizedsteamshowerandaprivateoutdooroasiscompletewithlounge, showerandayogadeck.

Thecleanlinesofthecontemporaryarchitectureareaccentedwithacombination ofcoolstonesurfaces,warmwalnutwood,andlivemetaldetailing.Allrooms haveanindoor/outdoorexperiencewithdirectaccesstothegardensorpool deckarea.

ROLEINPROJECT:JuniorDesigner

Myroleinthisprojectincludedhard-liningdrawingsbasedoninitialsketches fromtheArchitect.Wefocusedoureffortsondesigningtheinteriorsforeach roomofthehouse,forexample:fireplacesatthemasterandlivingroom,tile layoutsatthebathroomsandshowers,poolequipmentroomlayoutasit spaciallyrelatestothemediaroom,andthebuilt-inbarbeque.Eachofthese roomsrequiredspecificASKstoconveyourdesignintenttotheGC.

IMAGECOURTESYOF:MDG
MASTERFIREPLACE-ELEVATION MASTERFIREPLACE-ENLARGEDPLAN LIVINGROOMFIREPLACE-ENLARGEDPLAN LIVINGROOMFIREPLACE-ELEVATION

MEDIAROOM-ENLARGEDPLAN

EQUIPMENTROOM-ENLARGEDPLAN

EQUIPMENTROOM-ELEVATION

MEDIAROOM-BARELEVATION

MEDIAROOM-BARELEVATION

MEDIAROOM-BARSECTION

MEDIAROOM-BARDETAIL

BARBEQUEAREA-ENLARGEDPLAN

BARBEQUEAREA-ELEVATION

IMAGECOURTESYOF:MDG

MLBRenderings:FHLA, RaleighHotel&PalmSprings

MARTYNLAWRENCEBULLARD

DESCRIPTION:

ThiscollectionofrenderingsisasamplefrommytimeatMartynLawrence Bullard(MLB)InteriorDesign.These3projects(FourSeasonsLA,RaleighHotel MiamiandPalmSpringsHotel)areafewofthecommercialprojectsIhadthe opportunitytoworkonduringmytenureatMLB.Fortheseprojects,Iwastasked withproducing3Dmodelsandrealisticrenderings(fromtheshellandcoreto furniture,art,andlightfixtures)inordertoconveyourdesignintenttotheclient.

07
FHLALOBBYSEATING-RENDERINGCOURTESYOFMLB FHLALOBBYDESK-RENDERINGCOURTESYOFMLB FHLALOBBYOVERALL-RENDERINGCOURTESYOFMLB FHLAEXTERIORSEATING-RENDERINGCOURTESYOFMLB RALEIGHBATHROOM RALEIGHHOTELROOM-RENDERINGCOURTESYOFMLB FHLAMEDIAROOM-RENDERINGCOURTESYOFMLBFHLAMEDIAROOM-RENDERINGCOURTESYOFMLBFHLAMEDIAROOM-RENDERINGCOURTESYOFMLB RALEIGHHOTELROOM-RENDERINGCOURTESYOFMLB PALMSPRINGSPOOLBAR-RENDERINGCOURTESYOFMLB PALMSPRINGSPOOLBAR-RENDERINGCOURTESYOFMLB PALMSPRINGSPOOLBAR-RENDERINGCOURTESYOFMLB

08SETTLEMENT GROUND

WOODBURYUNIVERSITY

STUDIO:5B-Spring2013

INSTRUCTOR:CurtGambetta&EwanBrenda

DESCRIPTION:

LocatedinPomonaCounty,California,theSpadraLandfill (whichhasbeenclosedfornearly30years)currentlysevers accessbetweenthreesocialtrajectories:thestudentsofCal PolyPomona,theresidentsofnearbyhousingandtrailer communities,andalocalshoppingcenter.Drawingfromfield studies,researchanddatacollectioncanvassing,myproposed designre-occupiesthelandfillinordertoweavethese trajectoriestogether.

'SettlementGround'isdesignedtoworkontopoftheexisting groundplaneofthelandfill,usingpneumaticstructuresand additivemethodsofshapingthegroundinordertopreserve thelandfill'cap'(abarrierconstructedtocontaintheharmful contaminantswithinthelandfill).Additionally,mydesign proposedtocaptureandharnessthemethaneemittedfrom thelandfillinordertofillandpowerthepneumaticstructures throughtheuseofinternalpressuresystems.Thesestructures throughoutthelandfillservetoconnectexistingpathways throughtheuseofprogrammablebridges.Inproposinga lightweightandsuperficialmethodofsettlement,thisthesis acceptsthelandfillforwhatitalreadyis,allowingthe occupationofthesitetomovewiththegroundasitsubsides andchangesovertime.

PROPOSEDSTRUCTURES-DIAGRAM

PATHWAYS-DIAGRAM

EXPLODEDAXONOMETRIC-DIAGRAM CONTEXTMAP SITESTRATEGY-DIAGRAM

SITEPLAN

RESTVIEWS

RENDERING-3DVIEW1

BATHROOM

RENDERING-3DVIEW2

RENDERING-3DVIEW3

RENDERING-3DVIEW4

MARKET LANDLAB NURSERY DATACOLLECTIONCANVASSINGIMAGE

09UTILIZINGUNDER USAGES(3U)

WOODBURYUNIVERSITY

STUDIO:4B-Summer2012

INSTRUCTOR:LouisMolina&DavidFreeland

DESCRIPTION:

Havingidentifiedmyinterestindrossspace(under-used space)throughmycareerasanArchitecturalstudent,my project'UtilizingUnderUsages'proposesasolutiontoaddress thisever-growingissue.LocatedinEchoPark,thesite (providedbyourinstructors)suggestsaprojectthat'smore localandcontainsasmallerscaleinfrastructureandfootprint. Inexploringthesite,IdiscoveredMardsenStreet,asidestreet thatwasunderutilizedandoverrunbyvehiculardisorder. MardsenStreetwasdesignedtoserveasa17’wideroad providingaccesstotheresidencesoffthemainstreet(Echo ParkAvenue),butinrealitywasbeingutilizedasapublic parkinglot.

'UtilizingUnderUsages'proposestorejuvenatetheamountof publiclyaccessibleareaswhilediminishingtheamountof vehicularaccess.Thedesigniscomprisedofthreelevels stackedverticallyinordertocreateanelevatedseparationof programfromEchoParkAvenue,whilethegroundlevelhas beenreservedforstructuralsupportandresidentialvehicular accesstotheimmediateneighbors.Thedesignreliesona balancebetweentensionandcompressionmemberswhile havingamonolithicconcretefootinganchoringthestructure andinturnanchoringthecommunity.

CONTEXTMAP
EXPLODEDAXONOMETRIC-DIAGRAM DESIGNINTENTAXONOMETRIC-DIAGRAM CONCEPTSKETCH-INITIALCONCEPT CONCEPTSKETCH-RE-THINKINGDROSSWAREHOUSE CONCEPTSKETCH-RE-THINKINGLA'SUNIONPACIFIC
PHYSICALMODEL LONGITUDINALSECTION
PROCESSMODELS SITEPLAN

10BLURRED EDGE

WOODBURYUNIVERSITY

STUDIO:4B-Spring2012

INSTRUCTOR:MichaelPinto

DESCRIPTION:

MyprojectfocusesonthesiteofBrandandBroadwayin DowntownGlendale,CA.Uponourinitialvisit,Icouldn'thelp butnoticetheparallelsbetweenoursiteandmanyother typicalurbancoresthataredominatedbyretailchainsand consumerism,and,whichduetotheeconomicclimateatthe time,wasmostlyvacant.Thisprovidedauniquechallengein thattheoriginaldesignofthesestructureswasintendedforbig boxretail,withlimitedcirculation,dislocatedparking,andlack ofafluidflowofpedestriantraffic.Furthermore,thestreets wereovertakenbycars(andpublictransit),whichregulated themovementofpedestriansfurther.Consumerstendtopark wheretheyshop,creatingself-containedvacuumswherethe citystreetsarenotconnectorsbutrathercontainersforislands ofactivity.Myproject'BlurredEdge'setsanewstandardfor developingtoday’surbancontextandultimatelysolvethese issuesthreateningDowntownGlendale.

Mydesignfocusesfirstandforemostonasuccessfulflowof pedestriantrafficthroughtheprocessofcapturinglocalviews (bothtoandfromthesite).'BlurredEdge'providesaschool, apartments,abrewery,atelevisionstudioaswellasmany otherpublicspaceswithafocusonminimizingthegroundfloor footprintoftheprojectbyelevatingthebulkoftheprogram. Commercialretailwillbeminimizedallowingforthegrowthof localandhandcraftedshops.

INSPIRATIONALSKETCH-VIEWSDRIVINGDESIGN EXPLODEDAXONOMETRIC-DIAGRAM CONCEPTSKETCH-INITIALCONCEPT CONTEXTMAP

SITEPLAN

Thisprojectproposesdemolishingtheexistingbuildingson siteinordertocreateawholenewblock-widemasterplan. Theprogramisbrokendownintoaseriesofcategories, whichallowstheprogramtobesortedbypublicand privateaccessibilitytoeitherthegroundlevel,elevated level,orunderground.Publiccirculationtoandfromthesite isoneofthemainissuesbeingdesignedfor.Thereforea keydriverofthisprojectwillbeactivatingtheground planebyfocusingontheinteractionofthebuildingswithin theexistingsite.Anotherkeyaspectofthisprojectisto provideadditionalpubliclyusablespacesintheformof rooftopgardens(anodtoLeCorbusier’s5thpointof architecture:roofgardenstocompensateforthegreen areaconsumedbythebuildingandreplacingitonthe roof).

'BlurredEdge'providescirculationtoandfromthesite throughtheuseof“networkbridges”whichareaseriesof bridgescreatingconnectionsbetweentheneighboring blocks.Asstated,thebulkoftheprojectwillbeelevated, minimizingthebuilding'sfootprintwhileallowingforonly publiclydrivenprogramstodominatethegroundfloor(such asparking,retail,parks,andpublicspaces).Becausemany oftheprogramsofferedthroughtheprojectareintended formorepermanentclients(residentsandstudents),a naturalprivacyiscreatedbyelevatingtheprogram. Throughtheuseofthesite'sboundaries,theprojectcreates ademocraticprivacywiththebulkoftheelevatedprogram beingdraggedtotheedgebutneversurpassingit.The groundplane,likeasystemofroots,embedsitselfintothe surroundingcontextandgeneratesfluidityontheground surfacethroughadjacencies.

RENDERING-3DVIEW1

LONGITUDINALSECTION

RENDERING-3DVIEW2

LONGITUDINALSECTION

RENDERING-3DVIEW3

RENDERING-3DVIEW4

PHYSICALMODEL

Turn static files into dynamic content formats.

Create a flipbook
Issuu converts static files into: digital portfolios, online yearbooks, online catalogs, digital photo albums and more. Sign up and create your flipbook.