
I DESIGN FOR THE PRESENT, WITH AWARENESS OF THE PAST, AND A FUTURE WHICH IS UNKNOWN.





MY NAME IS BIANCA STROBEL. I GRADUATED EXETER
TOWNSHIP SENIOR HIGH SCHOOL IN 2020. I ATTENDED BERKS COUNTY TECHNICAL CENTER STUDYING PAINTING AND DECORATING, I GRADUATED IN 2020. I OBTAINED MY BACHELOR’S IN INTERIOR DESIGN FROM INDIANA UNIVERSITY OF PENNSYLVANIA IN 2024. I INTERNED ALL FOUR YEARS OF COLLEGE AT AFFORDABLE INTERIORS, LOCATED IN INDIANA. I STARTED WORKING AT LE BLUE GOOSE RIGHT AFTER COLLEGE, AS THE LEAD DESIGNER. AS AN INTERIOR DESIGNER I BLEND INNOVATIVE DESIGN CONCEPTS WITH A DEEP UNDERSTANDING OF FUNCTIONALITY, CREATING SPACES THAT ARE NOT ONLY VISUALLY STUNNING BUT ALSO THOUGHTFULLY TAILORED TO ENHANCE THE LIFESTYLE AND NEEDS OF MY CLIENTS.





THIS PROJECT IS LOCATED IN LANSDALE, PENNSYLVANIA. THE FLOOR PLAN OF THIS PROJECT IS UNIQUE. THE LOWER LEVEL OF THE BUILDING HAS STOREFRONTS, SO I USED THE REST OF THE SPACE TO INCLUDE THE APARTMENT AMENITIES, WHILE ON THE TOP THREE LEVELS WOULD BE THE APARTMENTS FOR THE TENANTS. THIS BUILDING OFFERS A GYM, A LOUNGE AREA, A COURTYARD, AND PRIVATE OFFICES DEDICATED TO WORK FROM HOME TENANTS. THE RESIDENTIAL FLOOR PLANS OFFER ONE BEDROOM, TWO BEDROOM, AND THREE BEDROOM APARTMENTS.


MY GOAL FOR THIS PROJECT WAS TO CREATE A MODERN, COMFORTABLE, INVITING ATMOSPHERE FOR ALL TENANTS. I CHOSE TO INCLUDE A COURTYARD IN THIS DESIGN DUE TO ITS BENEFITS. I WANTED TO ENHANCE THE NATURAL LIGHT AND VENTILATION, CREATE A SOCIAL SPACE, REDUCE THE NOISE LEVELS, AND PROMOTE SUSTAINABILITY.












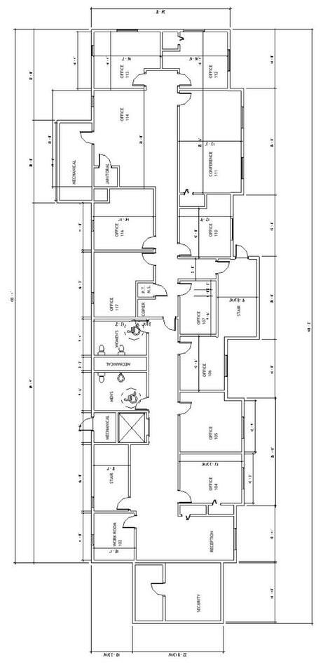
THIS PROJECT IS LOCATED IN HATFIELD, PENNSYLVANIA. THE OBJECTIVE TO THIS PROJECT IS TO ENHANCE PRODUCTIVITY, USE MORE FUNCTIONAL AND VERSATILE OFFICE FURNITURE, CONTROL NOISE LEVELS BUT ALSO KEEP THE OPEN CONCEPT FLOW. I WANTED TO PRIORITIZE FUNCTIONALITY, ACCESSIBILITY, AND COMFORT, WHILE ALIGNING WITH THE COMPANY’S BRAND IDENTITY, VALUES, AND FUTURE GROWTH.







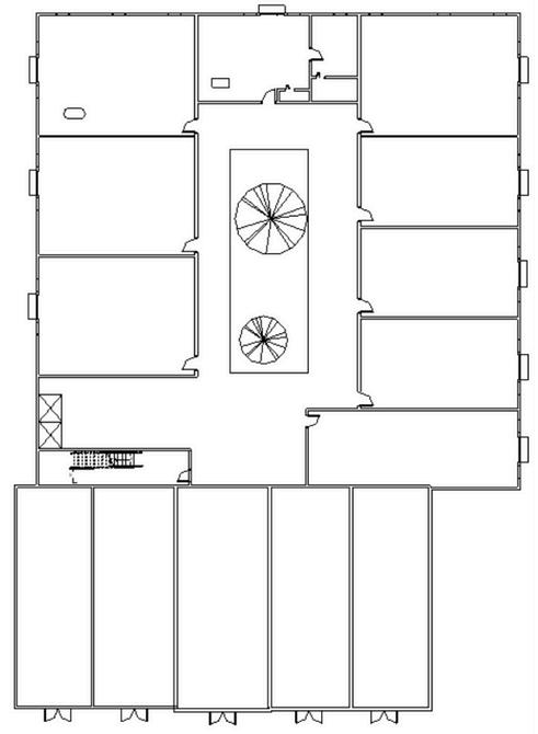
THIS PROJECT IS LOCATED IN NORTH WALES, PENNSYLVANIA.
THE OBJECTIVE TO THIS PROJECT WAS TO IMPROVE THE WORKFLOW, INCREASE EMPLOYEE ENGAGEMENT BY STRATEGICALLY PLACING THE WORK STATIONS.







THIS PROJECT IS LOCATED IN PHILADELPHIA, PENNSYLVANIA.
MY CLIENT WANTED AN OPEN CONCEPT FULL FUNCTIONING BASEMENT. I’VE INCLUDED A KITCHEN, A DINING AREA, AND A LIVING ROOM. THEIR STYLE WAS HIGH END MODERN. WE WANTED TO TAKE ADVANTAGE OF ALL THE NATURAL LIGHT WE COULD, I SPECIFIED SHEER WHITE CURTAINS AND INCLUDED A MIRRORED PANTRY WALL. THIS GIVES THE ILLUSION THE SPACE IS BIGGER AND ACKNOWLEDGES THE NATURAL LIGHT COMING IN.








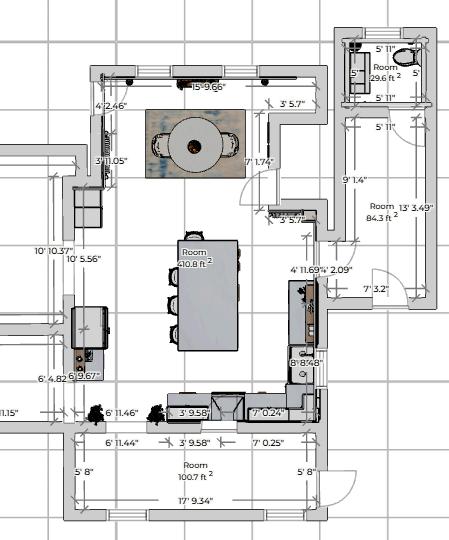
THIS PROJECT IS LOCATED IN ALLENTOWN, PENNSYLVANIA.
MY CLIENT’S WANTED TO REDO THEIR BASEMENT. THEY WANTED THE SPACE TO BE VERY FUNCTIONAL-AS IT WAS ONCE AN UNFINISHED BASEMENT. I INCLUDED A SMALL GYM AREA WITH A TWO PERSON SUANA, I INCLUDED A LIVING AREA, AND A HOME OFFICE. THEIR STYLE WAS MODERN ORGANIC, THEY WANTED WOOD TONES AND A LIGHT, AIRY FEELING.








THIS PROJECT IS LOCATED IN AMBLER, PENNSYLVANIA. MY CLIENT’S OWNED BOTH PROPERTIES OF THE TWO TOWN HOUSES, THEY WANTED TO KNOCK DOWN THE WALL THAT DIVIDED THE TWO SPACES TO CREATE ONE BIG BEAUTIFUL KITCHEN. THEY HOST OFTEN, SO THEY WANTED A NICE SEATING AREA SO THEIR GUESTS CAN BE COMFORTABLE. THEIR STYLE WAS ORGANIC WITH A SMALL TAKE ON SPANISH STYLE. THEY DIDN’T WANT THEIR KITCHEN TO BE OVERWHELMED WITH CABINETS SO I INCLUDED SOME WOOD OPEN SHELVING.





THIS PROJECT IS LOCATED IN VALLEY FORGE, PENNSYLVANIA.
THIS HOME IS A NEW BUILD, ONE LEVEL HOME. THE GOAL OF THIS PROJECT IS TO CREATE A WELCOMING AND WARM ATMOSPHERE THAT CATERED TO THE FAMILY’S NEEDS. ALONG WITH THE BASIC FUNCTIONS OF A HOME, I INCLUDED A HOME GYM, A HOME OFFICE, AND AN OPEN CONCEPT FLOW.


MY CLIENT’S STYLE WAS MID CENTURY MODERN, THEY LOVED WOOD TONES, SIMPLICITY, CLEAN LINES, AND ORGANIC ELEMENTS. THIS WOULD BE THE GATHERING SPOT WHEN HOSTING, SO SEATING WAS IMPORTANT TO THEM. THEY HAVE A DECK, SO I INCLUDED A PASS THROUGH WINDOW IN THE KITCHEN, SO THEY CAN ALSO HOST OUTSIDE AND PROPERLY USE THAT SPACE.















