Bianca Nygaard Portfolio 2025

Page 1


I O

Education

Honours Bachelor of Interior Design Fanshawe College - London, ON 2020 - 2024

Hello!

I am a graduate of the Honours Bachelor of Interior Design Program at Fanshawe College. I have a passion for residential and commercial design, and am experienced in Revit, AutoCAD, SketchUp, among many other softwares.

Key Courses

Interior Design Studio

Design Communication

Design Theory

Student Finalist, Staples and Global Sponsored Competition, 2021

Key Software Efficiency

Revit

AutoCAD

SketchUp

Adobe Photoshop

Adobe Illustrator

Lumion

Enscape

Adobe Premiere Pro

Microsoft Office Competitions

Interior Detailing Building Tech - Lighting Biulding Tech - Mech and Safety

Sustainable Practices

biancanygaard@gmail.com 226 456 4983 London, ON https://www.linkedin.com/in/biancanygaard/

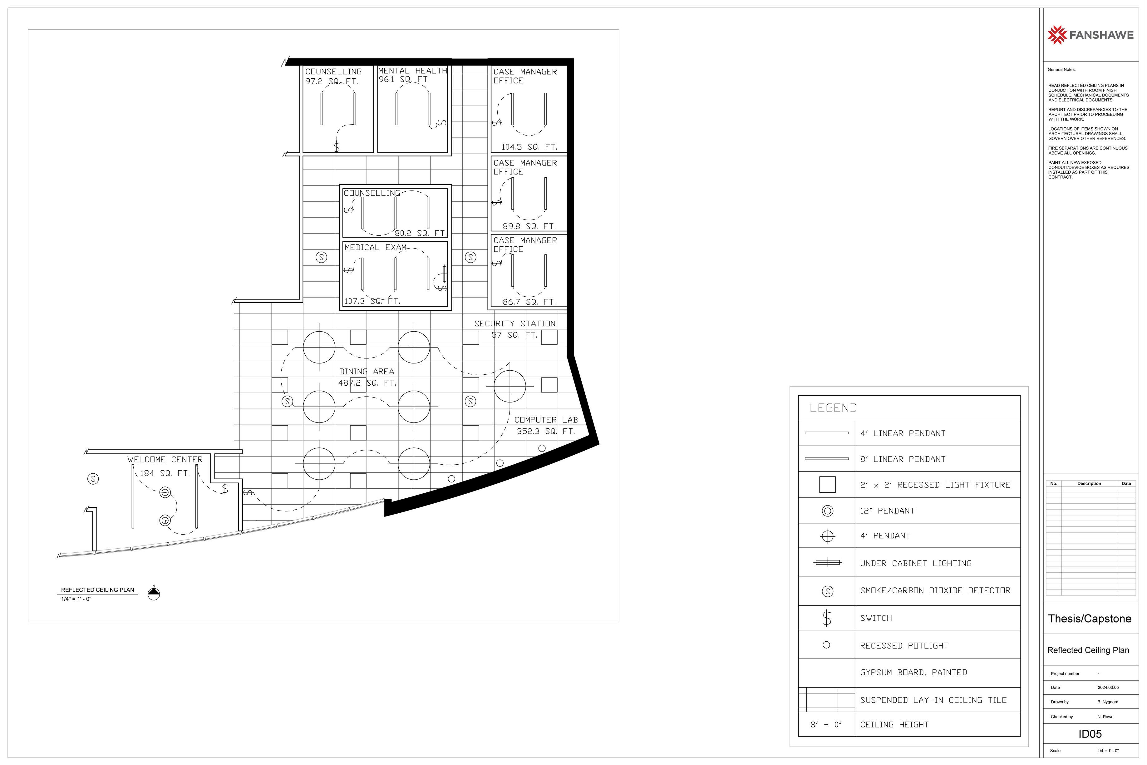
THESIS/CAPSTONE

A Hub to Provide Emotional and Physical Wellbeing to Support Homeless Individuals to Regain Independence. The design prioritizes dignity, safety, community, and rehabilitation. Research-driven and evidence-based design, and consulting with a social worker impacted the design decisions made.

Phase 2 - Expansion Space

Phase 1

5,000 sq. ft.

OBC:

Classification: Group C

Zoning Designation: CF1, Community

Facility (CF) Zone

Occupant Load: 101 people

SQFT: 5,000

Washroom Requirements:

1 Universal W/C

1 Barrier-Free for staff, where a universal washroom is not within 45 m of the washroom

8 total water closets

Shower Requirements:

1 Barrier-Free shower

Sprinkled or non-sprinkled: Sprinkled, onestorey and under 14,000 square meter

MATERIAL BOARD

PVC Flooring from Relle Flooring
Whiterock Digiclad PVC Sheet from Altro
Porcelain Tile from Crossville Inc
Shoreline Paint from Benjamin Moore
Whiterock Digiclad PVC Sheet from Altro
Bermuda Vinyl Fabric from Stinson
Vinyl Fabric from Stinson
Vinyl Fabric from Stinson
Whiterock Digiclad PVC Sheet from Altro
WoodBeQuiet Felt from Acoufelt
Salt Fracture Felt from Acoufelt

LIGHTING

Alcon Lighting
Eurika Lighting - Billie
Alcon Lighting
Eurika Lighting - Atoll
Pinnacle Architectural Lighting

REFOREST LONDON

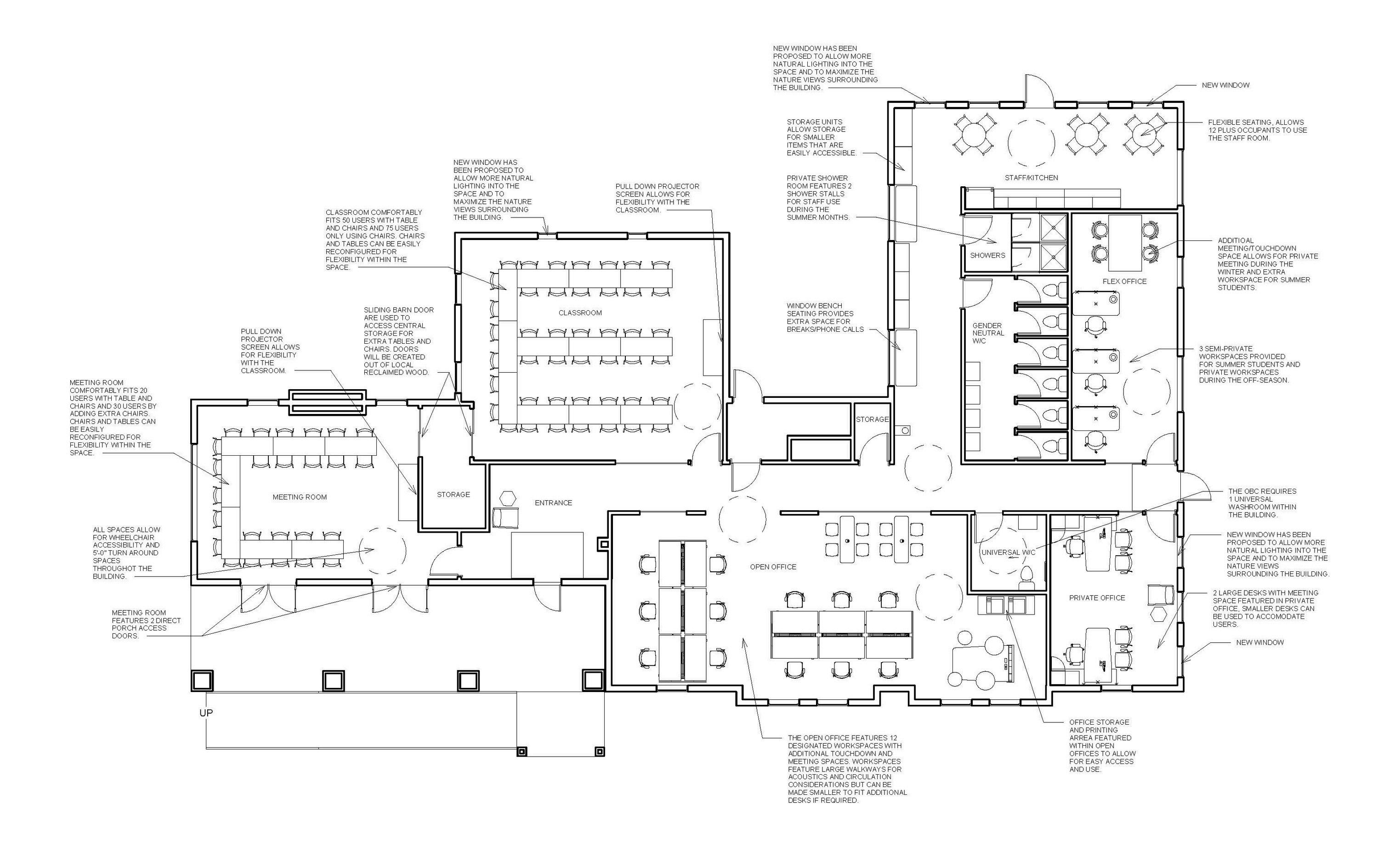
The objective of this project was to design a office and education space for ReForest London's Perth building. Sustainability was a large focus for this project. All materials and finishes chosen are sustainable and durable.

STAFF/KITCHEN

ELEVATION

MEETING ROOM

1

MATERIALS, SUSTAINABILITY AND SAFETY

Allura Decibel Acoustic LVT Pale Authentic Oak from Forbo Flooring

Sustainability: 100% phthalate-free flooring, low indoor emissions; produced with the best possible environmental profile, easy to remove at end of life for recycling or re-use; minizin the impact on the environment, low in-room impact sound and comfortable underfoot.

2.Coral Duo Sicilian Sand from Forbo Flooring

Sustainability: Has achieved ISO 14001 certification, Zero landfill, Re-use waste, uses Econyl yarn (yarn made from used and abandoned fishing nets), Reduction of cleaning and maintenance costs.

Safety: Entrance flooring systemms can stop up to 95% of dirt and moisture from being walked into a building This reduces the building's floor cleaning costs by up to 65%, prolongs the life of floors, and reduces the risk of slip injuries.

3 Whiterock Wall Paneling Rich Woodgrain from Altro

Sustainability: Ortho-pthalate free, contains no heavy metals, off-cuts and scrap can be recycled 100% at Altro's manufacturing facility

4. Dolphin Fin Paint from BEHR

5. Salamander Paint from BEHR

6. Complect Agave Fabric from Luum

Durability: 75,000 double rubs

Cleanability: Clean with either a water-based or solvent-based cleaning agent

Sustainabilty: Heavy Metal Free, PFOA/PFOS Free Satin Repelent, Recycled Content

7 Digi Tweed Fabric from Luum

Durability: 100,000 double rubs

Cleanability: Clean with either a water-based or solvent-based cleaning agent

Sustainabilty: Heavy Metal Free, PFOA/PFOS Free Satin Repelent, Recycled Content

8. Oeuvre Charm Fabric from Luum

Durability: 100,000 double rubs

Cleanability: Clean with a dry cleaning agent or solvent-based cleaning agent. Do not use water-based cleaning products

Sustainabilty: Heavy Metal Free

9 Moonstruck Luna Tile from Crossville Inc

Sustainability: Green Square Certified, Verified by SCS Global Services

Durability: Cross-Sheen finish allows scuffs, stains, permanent marker, and graffiti to be easily removed.

10. Acoustic Wall Panel Wood from Acoufelt

Sustainability: Made from minimum of 60% recycled content

11. Acoustic Wall Panel Pistachio from Acoufelt

Sustainability: Made from minimum of 60% recycled content

12. Acoustic Wall Panel Sea Salt from Acoufelt

Sustainability: Made from minimum of 60% recycled content

SYNERGY DENTAL CLINIC

The objective of this project was to re-design an existing dental clinic for Synergy Dental located in London, Ontario.

Wall CUSTOM LOGO DESIGN

Inspired by toothbrush bristles

CUSTOM RECEPTION DESK

Living

SEMI-PRIVATE HYGENIST STATION

SURGICAL STATION

HOSPITALITY

The objective of this project was to design a restaurant located at Museum London inspired by the multi-cultural Caribbean country of Guyana. I was inspired by the colours of the country's vegetation, spices, and fruits.

CUSTOM LOGO NAME AND DESIGN

Linette Moss Fabric from Keca 1.

Dorset Copper Fabric from Keca 2.

Dorset Oceanblue Fabric from Keca 3. Creme De Menthe PVC from Kovi Fabrics

4. Sola Felt Dune from 3form 5. Wallpaper

6. Copper Chain

7. Alpine Frost Paint from BEHR

8. Light Walnut from Koroseal 9. White Oak from Koroseal 10. LVP Flooring from The Floor Box 11.

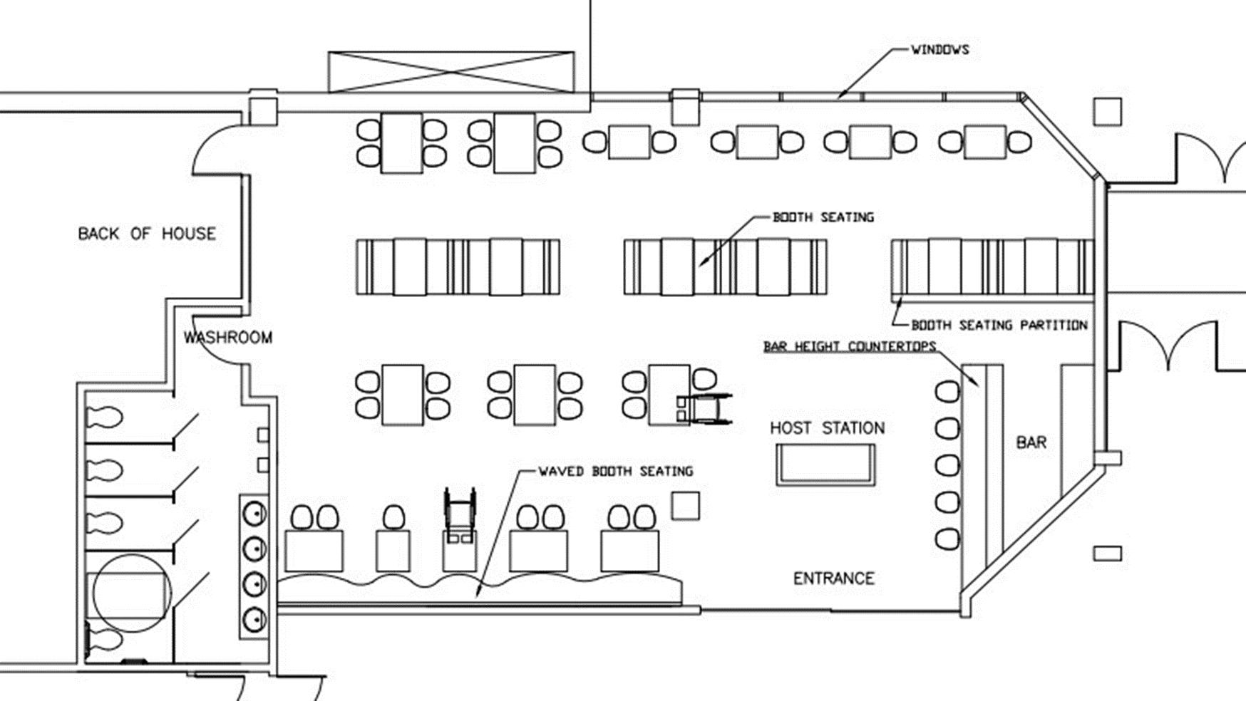
TECHNICAL DRAWINGS

Thank You

Turn static files into dynamic content formats.

Create a flipbook
Issuu converts static files into: digital portfolios, online yearbooks, online catalogs, digital photo albums and more. Sign up and create your flipbook.