Conforto em Ambientes Corporativos: Aspectos de projeto arquitetônico - Ergonomia e Conforto Térmico

Page 1

CENTRO UNIVERSITÁRIO BELAS ARTES DE SÃO PAULO

PÓS-GRADUAÇÃO EM ARQUITETURA, CIDADE E SUSTENTABILIDADE

BIANCA DA CUNHA BANDEIRA RODRIGUES

CONFORTO EM AMBIENTES CORPORATIVOS ASPECTOS DE PROJETO ARQUITETÔNICO COM ENFOQUE NA ERGONOMIA E CONFORTO TÉRMICO

SOROCABA 2022

CONFORTO EM AMBIENTES CORPORATIVOS ASPECTOS DE PROJETO ARQUITETÔNICO COM ENFOQUE NA ERGONOMIA E CONFORTO TÉRMICO

Monografia apresentada como requisito parcial à obtenção do título de Especialista no Curso de PósGraduação (Lato Sensu) em Arquitetura, Cidade e Sustentabilidade do Centro Universitário Belas Artes de São Paulo.

Orientador(a): Prof Me. Nathália Mara Lorenzetti Lima

2
BIANCA DA CUNHA BANDEIRA RODRIGUES
SOROCABA 2022

FOLHA DE APROVAÇÃO

BIANCA DA CUNHA BANDEIRA RODRIGUES CONFORTO EM AMBIENTES CORPORATIVOS

ASPECTOS DE PROJETO ARQUITETÔNICO COM ENFOQUE NA ERGONOMIA E CONFORTO TÉRMICO

Monografia apresentada como requisito parcial à obtenção do título de Especialista no Curso de PósGraduação (Lato Sensu) em Arquitetura, Cidade e Sustentabilidade do Centro Universitário Belas Artes de São Paulo.

BANCA EXAMINADORA

Prof. Me. (orientador)

Prof. (Convidado)

Data da Defesa: Sorocaba, 2 de Setembro de 2022

3

Dedico este trabalho à minha psicóloga, Araceli Aguiar, por mostrar que é possível trilhar novos caminhos com equilíbrio e organização, nunca deixando que nossos sonhos se adormeçam

4

AGRADECIMENTOS

Aos meus pais, Ricardo Bandeira e Marcia Leitão, pelo exemplo de bons arquitetos e por tudo o que me tornei hoje, com a bagagem de conhecimento que construí com todo auxílio ao longo da minha vida

À minha irmã, Luciana, pelo companheirismo e incentivo de todos os dias.

Ao meu namorado Paulo Baraldi Mausbach, por me apoiar todos os dias nessa caminhada entre a área acadêmica, profissional, artística e pessoal.

À minha orientadora, Nathália Mara Lorenzetti Lima, pela excelente orientação e incentivo em explorar os campos da ergonomia e conforto térmico

À minha antiga orientadora de Iniciação Científica, Claudia Cotrim Pezzuto, por todo o incentivo desde a minha graduação para retornar à área acadêmica e complementar meus estudos.

Ao Coordenador do curso de pós-graduação da Belas Artes, Ricardo Martos, por proporcionar uma experiência muito interessante de misturar a turma de São Paulo com Sorocaba durante as aulas remotas da pandemia.

À Belas Artes pela dinâmica das disciplinas optativas, que me apresentou ao curso de Conforto e Saúde em Ambientes Corporativos, ministrado pela professora Alessandra Maria Cerqueira Lima Horschutz

À Flávia Nery e ao Renato Capoano do escritório Capoano Arquitetura, pelo atendimento excepcional ao proporcionar a visita técnica à CI&T (Globaltech), que ajudou a embasar o Estudo de Caso dessa pesquisa.

Ao funcionário da Veolia, Gabriel Fava, que aceitou responder perguntas sobre espaços do escritório, embasando o segundo estudo de caso.

À minha psicóloga Araceli Aguiar, pelo incentivo constante em retornar à área acadêmica.

5

Com um correto planejamento dos espaços ou pequenas alterações, os empresários têm condições de melhorar a produtividade do escritório com foco na satisfação dos funcionários.”

Villarouco e Andreto, 2008.

6

RESUMO

A pandemia do Covid-19 despertou uma onda de questionamentos sobre a saúde física e mental dos funcionários que acabavam passando mais tempo dentro das empresas do que em suas próprias casas. Com o retorno aos escritórios, nota-se uma grande demanda pelo trabalho híbrido, que requer ambientes e mobiliários dinâmicos capazes de atender a qualquer funcionário seja de regime presencial ou híbrido A exemplo das empresas do Vale do Silício, diversos estudos apontam que o bem-estar contribui tanto na qualidade de vida dos funcionários quanto na produtividade e engajamento por suas tarefas Neste trabalho, investiga-se qualitativamente os edifícios da CI&T Globaltech em Campinas (SP) e a matriz da Veolia Brasil em São Paulo (SP), que se destacam pelo caráter inovador em seus ambientes através da valorização do bem-estar dos funcionários em espaços multifuncionais que permitem autonomia pela flexibilidade de layout, e variabilidade ergonômica nas estações de trabalho que podem ser escolhidas por cada funcionário As diferentes formas de organização em planta, áreas de apoio e capacidade de renovação do ar por ventilação cruzada são analisadas comparativamente, com base nos conceitos estudados Como resultado, observou-se que os ambientes estão bem preparados para acolher à demanda de trabalho híbrido, porém nas duas empresas são estanques em relação à ventilação natural. Por fim, os estudos de caso ajudam a demonstrar o movimento das empresas em São Paulo ao adaptar-se às novas demandas, com destaque para a permissão de ventilação natural, que deve levar em consideração o microclima das regiões estudadas, proporcionando ambientes de trabalho mais salubres e sustentáveis como propulsores de sucesso e produtividade nas empresas.

Palavras-chave: Ergonomia, Conforto Ambiental, Ambientes Corporativos, Escritórios, Pandemia, Trabalho híbrido.

7

ABSTRACT

The Covid-19 pandemic has brought several questions about the physical and mental health from employees who ended up spending longer inside companies than in their own homes. Returning to the offices afterwards, there’s a high demand on hybrid work, which requires qualified work environments and furniture to meet the requirements of any employee, whether on-site or hybrid. As an example of Silicon Valley companies, several studies indicate that well-being can contribute in employees quality of life as much as productivity and engagement for their job. In this paper, it is qualitatively investigated the buildings of CI&T Globaltech in Campinas (SP) and the headquarters of Veolia Brasil in São Paulo (SP), that stand out for the well-being in their environments through the appreciation of employees in multifunctional spaces that allow autonomy under a flexible layout, and ergonomic variability in workstations that can be chosen by each employee. The different ways of organization in plan, behavioral health spaces and air renovation of cross ventilation are analyzed comparatively, based on the studied subjetcs. As a result, it was observed that the environments are well designed to meet the demand for hybrid work, but in both companies they are enclosed for natural ventilation. Finally, the studied cases help to demonstrate the movement of companies in São Paulo to adapt to new demands, giving emphasis on the use of natural ventilation, which should consider the region microclimate for a salubrious workplace as a driver of success and productivity in companies.

Keywords: Ergonomics, Environmental Comfort, Corporate Environments, Offices, Pandemic, Hybrid work

8

LISTA DE ILUSTRAÇÕES

Abaixo, segue uma tabela com a ordem da numeração e de cada figura conforme a página em que se encontra no texto A fonte das imagens está descrita em sua legenda.

Número Descrição Pág.

Figura 1 Mesas de escritório sem divisória, no início do sec. XX. 22

Figura 2 Estações de trabalho entre divisórias de vidro, em 1956. 22

Figura 3 Simulação do Layout interno do primeiro andar do escritório da Estrada de Ferro Noroeste do Brasil (EFNOB), 1917. 23

Figura 4 Edifício Larkin Building: Planta Térreo, 1905. 25

Figura 5 Edifício Larkin Building: Corte Longitudinal, 1905. 25

Figura 6 Estações de trabalho com iluminação zenital no centro do edifício, 1945. 25

Figura 7 Estações de trabalho com iluminação zenital, 1945. 25

Figura 8 Planta do modelo de organização na Quickborner Team, 1963. 27

Figura 9 Setorização dos espaços: Diagrama de relacionamento entre pessoas no projeto, considerando 800 pessoas. 27

Figura 10 Estações de trabalho da Quickborner Team. 28

Figura 11 Quickborner Team, em expediente. 28

Figura 12 Comparação entre os diferentes mobiliários propostos para escritório panorâmico europeu e norte-americano. 29

Figura 13 Action Office I: modelo europeu, 1964. 29

Figura 14 Action Office II: modelo norte-americano, 1979. 29

Figura 15 Action Office I: modelo europeu, década de 1960. 29

Figura 16 “Mar de Cubículos” 30

Figura 17 Cubicle Farm 30

Figura 18 Fachada da Google Plex 33

Figura 19 Vista aérea da Google Plex, com destaque para a infraestrutura de energia solar 33

Figura 20 Bicicletas com a identidade visual da empresa. 33

Figura 21 Espaços gramados de estar com ombrelones coloridos na área externa 33

Figura 22 Área de trabalho. 34

Figura 23 Estações de trabalho. 34

Figura 24 Sala de jogos. 34

Figura 25 Sala de Descompressão. 34

Figura 26

Amazon: Plantas 37

Figura 27 Amazon: Cortes 37

Figura 28 Diferentes espaços de encontro 37

Figura 29 Plantas e texturas naturais no espaço em que se pode trabalhar. 37

Figura 30 Definição clara das circulações conforme raio de aproximadamente 1,80m 39

Figura 31 Distanciamento em mesas de trabalho compartilhadas 39

Figura 32 Distanciamento em mesas individualizadas. 39

9

Figura 33

Infograma sobre estudos de caso de escritórios em função da pandemia. 44

Figura 34 Me+We 48

Figura 35 Fixo a Fluido 48

Figura 36 Aberto+Fechado 48

Figura 37 Digital+Físico 48

Figura 38 Estação de trabalho convencional. 50

Figura 39 Mesa alta com banqueta. 50

Figura 40 Sofá com mesa lateral. 50

Figura 41 Poltrona com mesa lateral. 50

Figura 42 Número de dias por semana que o funcionário prefere trabalhar no escritório ou remotamente. 51

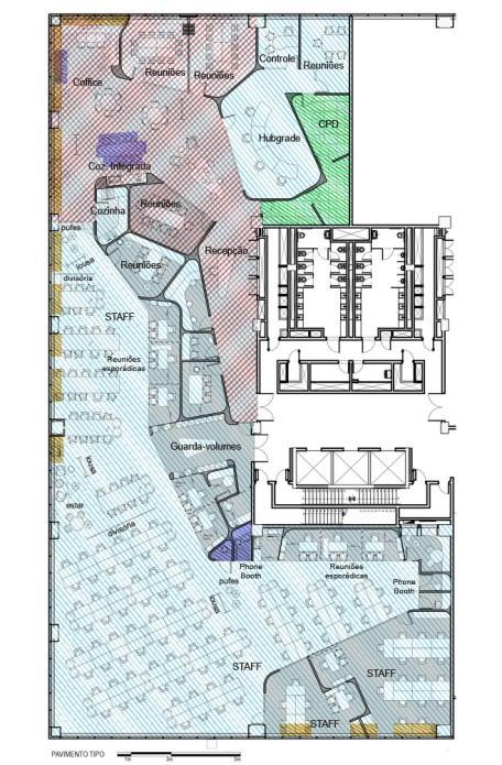
Figura 43 Planta da Área de Staff 56

Figura 44 Poltronas com mesa talk junto às estações de trabalho 57

Figura 45 Estação de trabalho com TV para reuniões entre equipes. 57

Figura 46 QR Code das mesas 57

Figura 47 Vista da circulação: sofá com mesa talk, mesa alta com banquetas e phone booth 58

Figura 48 Vista interna do Phone Booth 58

Figura 49 Smart Supplies 58

Figura 50 Escorregador na Área de Staff 58

Figura 51 Planta da Sala de Reunião 59

Figura 52 Foto da Sala de Reunião com as divisórias abertas 59

Figura 53 Demonstração do arquiteto sobre o fácil manuseio da divisória camarão 59

Figura 54 Vista da Recepção para a Sala de Reuniões 59

Figura 55 Planta Auditório para eventos formais 60

Figura 56 Vista do interna do Auditório 60

Figura 57 Mesa de transmissão e painel neon 61

Figura 58 Auditório com divisórias abertas, integrado à Área de Staff 61

Figura 59 Planta Phone Booth Tipo 1: sob encomenda 62

Figura 60 Planta Phone Booth Tipo 2: incorporado ao projeto 62 Figura 61 Vista do Phone Booth Tipo 1: Mesa alta com banqueta 63

Figura 62 Vista do Phone Booth Tipo 2: mesa com cadeira 63

Figura 63 Planta dos Outbacks 63

Figura 64 Vista dos Outbacks com a porta fechada e aberta 63

Figura 65 Análise antropométrica da mesa de reuniões 64

Figura 66 Zona de trabalho em uma bancada de cozinha 64

Figura 67 Esquema simplificado sobre foto do Outback. 65

Figura 68 Planta Hotdesks 66

Figura 69 Vista da Hotdesk 66

Figura 70 Vista da Smart Supplies que atende à Hotdesk 66

Figura 71 Planta Salas de Co-criação 66

Figura 72 Dispositivo Sensor de Movimento 67

Figura 73 Tablet adjacente à porta para consulta da disponibilidade da sala 67

Figura 74 Vista da sala com a divisória aberta. 67

Figura 75 Vista externa da Sala Brain 68

Figura 76 Sala Brain 68

10

Figura 77 Biofilia no espaço de trabalho. 69

Figura 78 Painel de Neon. 69

Figura 79 Mural de arte. Obra do grupo Minas de Minas. 69

Figura 80 Origamis pendurados no teto da escada. 69

Figura 81 Estúdio de Música 70

Figura 82 Estúdio de Música 70

Figura 83 Espaço Wellness 70

Figura 84 Mommy Room 71

Figura 85 Poltrona para aleitamento na Mommy Room 71

Figura 86 Sala de Massagem 71

Figura 87 Espaço de contemplação 72

Figura 88 Espaço de contemplação 72

Figura 89 Sala de Jogos 73

Figura 90 Sala de Jogos 73

Figura 91 Banheiro sem gênero 73

Figura 92 Banheiro sem gênero 73

Figura 93 Vista aérea Edifício CI&T Globaltech, Campinas. 74

Figura 94 Iluminação natural vista do Térreo. 74

Figura 95 Iluminação natural vista do Pavimento Superior. 74

Figura 96 Exaustores da Lanchonete. 75

Figura 97 Exaustores de Outbacks. 75

Figura 98 Exaustores da sala de Staff 75

Figura 99 Planta Salas de Reunião 77

Figura 100 Salas de reunião com divisória aberta 77

Figura 101 Tela retrátil embutida. 77

Figura 102 Planta Sala Hubgrade 78

Figura 103 Sala Hubgrade 78

Figura 104 Sala de Controle 79

Figura 105 Sala de Reuniões (Hubgrade) 79

Figura 106 Planta Área de Staff 79

Figura 107 Área de Staff 79

Figura 108 Área de Staff 80

Figura 109 Área de Staff 80

Figura 110 Mesas contínuas sem divisória 81

Figura 111 Mesa redonda 81

Figura 112 Estar com lousa e poltronas 81

Figura 113 Espaço de reuniões esporádicas. 82

Figura 114 Espaço de reuniões esporádicas. 82

Figura 115 Espaço de reuniões esporádicas. 82

Figura 116 Planta Phone Booth (em destaque) 83

Figura 117 Phone Booth. 83

Figura 118 Phone Booths ao fundo do escritório 83

Figura 119 Planta Área de Coffice 84

Figura 120 Vista do ambiente de Coffice 84

Figura 121 Vista da lousa e mesas do Coffice 84

Figura 122 Vista da bancada da cozinha integrada / coffice 84

11

Figura 123 Elementos de fundo da recepção. 86

Figura 124 Superfície do teto da área de Staff 86

Figura 125 Diferença entre pisos e revestimentos. 86

Figura 126 Plantas escandentes no forro. 86

Figura 127 Recepção. 86

Figura 128 Letras caixa 87

Figura 129 Jardim externo 87

Figura 130 Nichos na parede 87

Figura 131 Quadro dentro de Phone Booth 87

Figura 132. Croqui de concepção das divisórias 88

Figura 133 Desenho técnico das divisórias retráteis, cheios e vazios. 88

Figura 134 Banco na sala de reuniões 88

Figura 135 Mesas e bancada do Coffice 88

Figura 136 Mommy Room 90

Figura 137 Impressoras e Café 90

Figura 138 Planta da Veolia sobre pavimento tipo do condomínio. 91

Figura 139 Vista aérea do bloco A e da área verde do térreo. 91

Figura 140 Vista térrea externa do bloco A. 91

Figura 141 Corte do Bloco A do condomínio empresarial, com destaque à localização da Veolia 92

Figura 142 Janela com persianas independentes. 92

Figura 143 Planta CI&T: Pavimento térreo 94

Figura 144 Planta Veolia 94

Figura 145 Planta CI&T: Pavimento térreo 96

Figura 146 Planta Veolia 96

Figura Anexo A.7. Planta Veolia: ambientes questionados em entrevista 110

12

LISTA DE TABELAS

Número Descrição Pág

Tabela 1. Alguns adeptos das ideias de Taylor. 21

Tabela 2. Tabela comparativa 99

13

DEDICATÓRIA AGRADECIMENTOS EPÍGRAFE RESUMO ABSTRACT LISTA DE ILUSTRAÇÕES LISTA DE TABELAS

1 INTRODUÇÃO .......................................................................................... 17

1.1 Tema do projeto

1.2 Objetivos

1.2.1 Objetivo geral ................................................................................

1.2.2 Objetivo específico

1.3 Problema .............................................................................................

1.4 Hipóteses

2 REVISÃO BIBLIOGRÁFICA

2.1 Histórico ......................................................................................................

2.1.1 Taylorismo e o modelo de escritório taylorista (Bull Pen) 2.1.1.1 O escritório da Estrada de Ferro Noroeste do Brasil .............. 2.1.2 Escola de Chicago e a flexibilidade da Planta Livre (Open Plan)

2.1.2.1 Larkin Building, Nova York

2.1.3 Segunda metade do Século XX ...........................................................

2.1.3.1 O escritório Panorâmico, Bürolanschaft 2.1.3.1.1 Quickborner Team, Hamburgo ......................................... 2.1.3.1.2 O escritório Panorâmico, Action Office ............................ 2.1.3.2 O escritório Panorâmico, Cubicle Farm

2.1.4 Flex Office e Escritórios Lúdicos, 1990 ...............................................

2.1.4.1 Vale do Silício 2.1.4.1.1 GooglePlex ....................................................................... 2.1.5 Escritórios do Século XXI ...................................................................

2.1.5.1 Neurociência, Inovação e Experimentação 2.1.5.1.1 Amazon, Seattle ................................................................ 2.1.5.2 Post-COVID Workplace 2.1.5.3 Adaptações versáteis ...............................................................

2.2 Definições e conceitos ................................................................................

2.2.1 Ergonomia

2.2.2 Conforto Térmico ................................................................................ 2.2.3 Conforto Adaptativo 2.2.4 Conforto Luminoso .............................................................................. 2.2.5 A Pandemia do Covid-19 ..................................................................... 2.2.6 Saúde Mental

2.3 Os novos espaços de trabalho .....................................................................

2.3.1 Salas de Descompressão

2.3.2 Coworking

2.3.3 Estações Multifuncionais .....................................................................

2.3.3.1 A relação do assento com o expediente 2.3.4 Trabalho Híbrido .................................................................................

20 21 23 23 24 26 26 27 28 30 31 32 32 34 35 36 39 39 41 41 42 42 43 44 45 46 47 48 49 50 51

14 SUMÁRIO
1.5 Justificativa .......................................................................................... 17 17 17 17 17 18 19
............................................................................ 20

3.1 CI&T Globaltech ..............................................................................

3.2 VEOLIA - Matriz em São Paulo ........................................................ 54 55

4 ANÁLISE E INTERPRETAÇÃO DOS ESPAÇOS

4.1 CI&T Globaltech ........................................................................................

4.1.1 Número de Funcionários e Formas de trabalho 4.1.2 Espaços de Trabalho .............................................................................. 4.1.2.1 Área de Staff 4.1.2.2 Salas de Reunião 4.1.2.3 Auditório para Eventos Formais ................................................ 4.1.2.4 Phone Booths 4.1.2.5 Outbacks .................................................................................... 4.1.2.6 Hotdesk 4.1.2.7 Co-criação 4.1.2.8 Sala Brain .................................................................................. 4.1.3 Apoio e bem estar 4.1.3.1 Look & Feel ............................................................................... 4.1.3.2 Ambientes de apoio ................................................................... 4.1.3.2.1 Estúdio de Música 4.1.3.2.2 Wellness .............................................................................. 4.1.3.2.3 Mommy Room 4.1.3.2.4 Sala de Massagem .............................................................. 4.1.3.2.5 Área de Contemplação ....................................................... 4.1.3.2.6 Sala de Jogos 4.1.3.2.7 Banheiro sem Gênero ......................................................... 4.1.4 Conforto Térmico e Luminoso

4.2 VEOLIA, Matriz em São Paulo .................................................................

4.2.1 Número de Funcionários e Formas de trabalho 4.2.2 Espaços de Trabalho .............................................................................. 4.2.2.1 Salas de Reunião 4.2.2.2 Hubgrade 4.2.2.3 Área de Staff .............................................................................. 4.2.2.3.1 Mesas em série com divisória 4.2.2.3.2 Mesas contínuas ................................................................. 4.2.2.3.3 Mesa redonda 4.2.2.3.4 Estar com lousa e assentos confortáveis 4.2.2.4 Reuniões Esporádicas ................................................................ 4.2.2.5 Phone Booth 4.2.2.6 Coffice ........................................................................................ 4.2.3 Apoio e bem-estar .................................................................................. 4.2.3.1 Look & Feel 4.2.3.1.1 Divisórias Móveis ............................................................... 4.2.3.1.2 Aconchego próximo às janelas 4.2.3.2 Ambientes de Apoio .................................................................. 4.2.3.2.1 Mommy Room ..................................................................... 4.2.3.2.2 Impressoras e Café 4.2.4 Conforto Térmico e Luminoso ..............................................................

15 3
.............................................................................................
METODOLOGIA
54
..................................... 56
56 56 56 57 60 61 63 64 67 67
71
68 69 69 70
71 72 72 73 73 74 75 77 77 77 78 79 80 81 82 82 82 83 83 85 86 86 88 89 90 90 91 91

4.3 Análise Comparativa

4.3.1 Organização e uso do espaço 4.3.2 Circulações

94 94 96 5 RESULTADOS

99 5.1 Tabela comparativa

100 6 CONCLUSÃO

101 CONSIDERAÇÕES FINAIS

102 REFERÊNCIAS BIBLIOGRÁFICAS

103 ANEXOS

110 Anexo A. Entrevista com funcionário da Veolia............................................... Anexo B. Termo de compromisso

16
..................................................................................
............................................................................................
................................................................................................
....................................................................................
..................................................................................................
..................................................................................
.............................................................
........................................................................................................
.................................................................... 110 112

INTRODUÇÃO

1.1 Tema do Projeto

Conforto em Ambientes Corporativos - Um estudo das diversas possibilidades aplicadas à arquitetura de escritórios para empresas de grande porte com o foco na ergonomia e conforto térmico.

1.2 Objetivos

1.2.1 Objetivo Geral

O objetivo principal é analisar a arquitetura corporativa através de exemplos de espaços dinâmicos e adaptáveis capazes de atender às diferentes necessidades e preferências de cada funcionário, buscando garantir a autonomia do usuário em relação ao conforto térmico e ergonômico nesses ambientes. Como consequência, essa pesquisa também contribui com os Objetivos de Desenvolvimento Sustentável (ONU, 2015), no tópico “Trabalho Decente e Crescimento Econômico”, a partir da difusão desse novo conceito de arquitetura corporativa que envolve espaços salubres, dinâmicos e sustentáveis.

1.2.2 Objetivo Específico

Os objetivos específicos são (1) descrever brevemente a evolução dos espaços de trabalho ao longo da história; (2) evidenciar cada um dos espaços que surgiram a partir das novas demandas dos ambientes corporativos, tais como espaços multifuncionais, salas de descompressão, etc; (3) elaborar estudos de caso com enfoque nas dinâmicas das estações de trabalho para compreender como alcançar um melhor conforto térmico e ergonômico aos usuários conforme o layout arquitetônico; (4) examinar comparativamente os resultados dos estudos de caso a fim de incentivar modelos mais dinâmicos, versáteis e adaptáveis de arquitetura corporativa, equilibrando a qualidade de vida e produtividade dos funcionários.

1.3 Problema

Durante o período da pandemia do COVID-19, percebemos a necessidade de repensar a salubridade em espaços de longa permanência, questionando sobre o conforto térmico, lumínico, acústico, ergonômico, entre várias outras questões vinculadas ao ambiente construído.

17

Com a desaceleração da Pandemia e a retomada da rotina de trabalho nos escritórios, o tema da saúde física e mental ganhou força e levantou discussões sobre a humanização e a segurança no projeto arquitetônico a fim de garantir melhores condições conforto, saúde, foco, e organização dos espaços de trabalho, como forma de contribuição ao desempenho de cada funcionário durante seu expediente (MANTESI et al., 2022).

Bergefeurt et al. (2022) ilustra, através de uma pesquisa, que conceitos como a configuração do escritório ou design, a iluminação natural ou artificial adequada, exposição ao barulho, isolamento acústico, privacidade, qualidade do ar, ventilação, conforto térmico, biofilia, cores e Look & Feel, estão diretamente relacionados ao conforto mental do funcionário, em termos de bem estar, produtividade, estresse, engajamento, concentração, fadiga, sono, humor, podendo levar até a depressão e Síndrome de Burn-out. Portanto, o que uma empresa pode oferecer para que o espaço de trabalho se torne um ambiente saudável em sua arquitetura?

1.4 Hipóteses

Escritórios bem-sucedidos como a IBM-Tutoia (HORSCHUTZ, 2007) apresentam em sua organização interna espaços físicos dinâmicos, personalizados de acordo com o uso de cada funcionário, compreendendo a relação de seu trabalho com o tempo de permanência nas estações físicas da empresa. Desse modo, o planejamento arquitetônico pautado na organização do espaço físico proporciona maior concentração nas atividades, com qualidade, desempenho, segurança e funcionalidade. Assim, compreendendo fluxos e dinâmicas dentro da empresa também é possível visualizar os diferentes turnos entre funcionários e estações multifuncionais como uma resposta ideal para expansão organizada do número de funcionários sem investimentos sobre novas estações de trabalho (VOORDT et al., 2013).

Edifícios projetados com enfoque na arquitetura bioclimática também podem contribuir com o sucesso das empresas a partir da redução do consumo energético (HEYWOOD, 2015), uma vez que o espaço interno se torna melhor preparado para a condição geográfica de onde se insere (GIVONI, 1992). Ainda assim, há casos em que a dificuldade de manusear aberturas ou fazer manutenção em janelas e portas faz com que o usuário prefira enfrentar uma condição insalubre ou de pior conforto térmico do que permitir formas naturais de circulação e renovação do ar (LIMA, 2017). De Vecchi (2016) aponta que a preferência por sistemas de resfriamento artificial ainda é mais desejada pelos usuários

18

do que sistemas de ventilação natural em regiões de clima tropical e subtropical, como é o caso do Brasil.

Por fim, essa pesquisa tem como objetivo ampliar as discussões sobre o conforto em edifícios corporativos na escala da saúde física e mental dos funcionários, direcionando o estudo para a ergonomia e o conforto térmico aplicados ao dinamismo dessas novas formas de trabalho, comparando o modelo de trabalho em empresas bem-sucedidas com a realidade destes conceitos no cenário brasileiro através de estudos de caso.

1.5 Justificativa

Através dessa pesquisa será possível aproximar a realidade de empresas bemsucedidas com o cenário atual brasileiro, salientando que é possível tornar ambientes de trabalho mais confortáveis, agradáveis, otimizados e bem aproveitados para os funcionários e contratantes.

19

REVISÃO BIBLIOGRÁFICA

2.1 Histórico

Qualquer ambiente de trabalho, seja ele escritório, indústria, cozinha, etc, possui em sua arquitetura um estudo completo das relações entre o usuário do espaço, as tarefas, as ferramentas e a logística dentro da empresa. Compreender a relação ergonômica das atividades exercidas nestes espaços é fundamental para proporcionar um maior conforto e bem estar aos funcionários, garantindo qualidade e produtividade em suas atividades (ETTINGER, 1964).

Segundo o dicionário Aurélio (1996), “Escritório é o lugar onde se faz o expediente relativo a qualquer administração, obra, etc., se tratam negócios, se recebem clientes, etc.” O termo “escritório” surgiu na Idade Média com a criação da escrivaninha (FRANCESCHI e NASCIMENTO, 2009) e expandiu-se até gradativamente envolver ambientes e edifícios, cujas formas de trabalho baseavam-se no contexto socioeconômico (SADER, 2007) e nas ferramentas de cada época (HORSCHUTZ, 2007).

A intensificação da vida civil alavancou a necessidade pela organização dos espaços internos tais como tabeliões, mercados e ambientes de trabalho. Assim surgiram as primeiras escrivaninhas, escaninhos, estantes e salas de atendimento, como resultado dos primeiros estudos pela produção de um mobiliário desenhado especialmente para a organização dos espaços corporativos, (SADER, 2007).

Segundo Souhi (2020) registra-se que o primeiro prédio de escritórios de todos os tempos foi o Old Admiralty Building, em Londres (1726), que surgiu quando a Marinha Real Britânica necessitava de um espaço físico para concentrar o serviço de supervisão da logística de suas rotas de comércio internacional.

No século XIX, os ambientes corporativos mais próximos aos atuais escritórios iniciam-se a partir da integração das trocas de informações em um único edifício, sob a lógica das máquinas de escrever e dos telefones (SADER, 2007) Contavam com mesas grandes para trabalhos manuais ou datilografados, onde funcionários e donos da empresa ocupavam o mesmo ambiente, até que - com a chegada do telefone em 1876, e a disseminação de seu uso no início do século XX – os espaços corporativos passaram a se reorganizar (HORSCHUTZ, 2007).

A preocupação com a produtividade e as formas de trabalho teve início nas primeiras décadas do século XX com a popularização do taylorismo (DE BRITO et al, 2018),

20 2

impulsionado pelo sucesso tecnológico das ferramentas de trabalho da época, com o aumento da demanda por cargos operacionais, administrativos e de serviços (HORSCHUTZ, 2007).

2.1.1 Taylorismo e o modelo de escritório taylorista (Bull Pen)

Resumidamente, o engenheiro americano Frederick Taylor descreve em 1890 como o método de Administração Científica possibilita o máximo de prosperidade aos empresários e funcionários, a partir da cooperação, organização e administração, que gera segurança aos empresários e evita desperdícios em função do desgaste físico dos trabalhadores (TAYLOR, 1990). O método taylorista possibilitou o aumento da produtividade partindo do experimento e da observação da dinâmica no ambiente de trabalho, ao separar as formas de produção em funções ou tarefas para cada funcionário baseando-se no treinamento oferecido pela própria empresa, em busca de cooperação e divisão das tarefas para cada trabalhador (DE BRITO et al, 2018).

De Brito et al (2018), ao citar Corrêa (2012, p. 72 a 74) desenvolve o seguinte resumo histórico sobre os adeptos das ideias do taylorismo em formas de trabalho (Tabela 1).

Tabela 1: Alguns adeptos das ideias de Taylor.

Fonte De Brito et al (2018), adaptado de Corrêa (2012, p. 72 a 74)

Em termos de organização física dos espaços, Horschutz (2007) descreve como as influências do taylorismo sobre o ambiente das fábricas e escritórios representou uma forte racionalização dos espaços de trabalho conforme (1) a divisão espacial das tarefas manuais e intelectuais; (2) o planejamento dos espaços mais individuais ou conjuntos conforme a hierarquia dos cargos da empresa; (3) o isolamento de espaços de gerência entre salas com

21

privacidade e visibilidade para os trabalhadores; (4) o planejamento organizado, e padronizado das estações de trabalho; (5) a adição de mesas para supervisores das tarefas; (6) o incentivo à competitividade entre funcionários; e (7) o arquivamento centralizado, no perímetro das instalações de trabalho.

Pautado na lógica fabril, o conceito de trabalho taylorista contava com ambientes de trabalho compostos por um layout linear de distribuição entre mesas e máquinas (equipamentos e ferramentas de escrever) (BASTOS, 2021) A divisão interna de ambientes por funções, tais como “departamentos”, baseada na hierarquia de cada cargo gera uma contradição no modelo taylorista de espaços de trabalho uma vez que a racionalização e “departamentalização” espaços criava uma divisão social interna de trabalho, configurando uma estrutura fragmentada de escritório, tal como uma “cooperação complexa” (AMARAL et al, 2015)

O organograma e o fluxograma foram adaptados aos interesses do taylorismo. E não apenas estes, senão todos os elementos que compõem o escritório, como por exemplo, o mobiliário, o layout do espaço, as ferramentas utilizadas. O desenho da mesa, por exemplo, possuía divisões que separavam e organizavam o trabalho segundo o manual de instruções. Isso auxiliava a vigilância (...).

(AMARAL et al, 2015).

Em contraponto aos grandes ambientes de mesas de trabalho padronizadas distribuídas sob uma lógica racional, o forte quesito da vigilância dos funcionários e a organização dos espaços internos deu início ao uso de divisórias de vidro como outra alternativa de setorização dos espaços sem impedir a visibilidade. – Este conceito de arquitetura corporativa ficou conhecido como Bull Pen

Fig. 1 Mesas de escritório sem divisória, no início do sec. XX

Fonte: Amaral et al , 2015

Fig. 2 Estações de trabalho entre divisórias de vidro, em 1956.

Fonte: Amaral et al , 2015.

22

2.1.1.1 O escritório da Estrada de Ferro Noroeste do Brasil

A imagem a seguir ilustra a divisão interna dos espaços de trabalho no escritório da Estrada de Ferro Noroeste do Brasil em 1917 Embora este pavimento represente os cargos mais altos, ainda há uma hierarquia de subdivisões entre cada ambiente, baseada nas funções de cada setor. O aglomerado de estações de trabalho uniformemente distribuídas ressalta o modelo racional de ocupação dos espaços pelas secretarias, e revela a forma de vigilância dos funcionários, com uma estação de trabalho avulsa, voltada para o conjunto. No centro da planta a área das secretárias é mais aberta, enquanto a sala do secretário é um espaço menos convidativo, que dá acesso à sala de reuniões do diretor.

O próprio percurso até a estação de trabalho de cada setor demonstra como os diretores podem circular pelos espaços para observar a dinâmica do escritório antes de chegar à sua sala. As secretárias situam-se numa posição estratégica entre o atendimento à sala de espera e a comunicação com a secretaria.

Fig. 3 Simulação do Layout interno do primeiro andar do escritório da Estrada de Ferro Noroeste do Brasil (EFNOB), 1917.

Fonte: Amaral et al, 2015

2.1.2 Escola de Chicago e a flexibilidade

da Planta Livre (Open Plan)

Na primeira metade do século XX, discussões protagonizadas pelos arquitetos Frank Lloyd Wright, Louis Sullivan e H. F. Johnson Jr. a respeito da salubridade dos espaços, pela felicidade e produtividade dos funcionários diante da natureza monótona e desinteressante dos ambientes de trabalho impulsionou uma revolução nos espaços de trabalho, em busca de ambientes mais orgânicos e revigorantes (SCJOHNSON, 2020). Os layouts em salas fechadas prejudicavam a comunicação e relacionamento entre funcionários e setores (SADER, 2007). Logo, buscava-se uma reformulação dos espaços internos em ambientes totalmente abertos, sem paredes, divisórias ou corredores.

23

Na década de 1930 iniciavam-se os primeiros estudos sobre o design industrial de mobiliário para escritórios com enfoque na humanização das estações de trabalho através da ergonomia aplicada a processos de fabricação, a exemplo da escola Bauhaus (FONSECA, 2004).

Foi a partir da Escola de Chicago (EUA), na década de 1940 a 1950, que a popularização do método construtivo do concreto armado e aço permitiu que as construções pudessem assumir novas proporções, aumentando o número de pavimentos, criando aberturas e pés-direitos maiores com maior possibilidade de iluminação natural (FONSECA, 2004).

Segundo Fialho (2007), a arquitetura de Chicago ficou marcada por grandes edifícios corporativos com características repetitivas entre pavimentos-tipo, com todos os andares padronizados entre aberturas e janelas Assim, com a popularização e o aprimoramento dos elevadores inserido na lógica dos arranha-céus (HORSCHUTZ, 2007), esse novo modelo arquitetônico também abriu espaço para novas formas de renda, e deu início ao conceito de arquitetura comercial (BASTOS, 2021).

Os ambientes corporativos, por sua vez, assumiram esses novos espaços de “Planta Livre” permitindo layouts flexíveis em torno da lógica racionalizada dos pilares. Ao contrário de paredes estruturais, esse modelo construtivo alavancou o uso de fechamentos inteiramente envidraçados, permitindo a iluminação por fachadas ou claraboias para todos os funcionários (VASCONCELOS, 2017). Nesse momento, introduziu-se o uso de sistemas de ar condicionado para a climatização dos ambientes.

2.1.2.1 Larkin Building, Nova York

O projeto Larkin Building (1903) é uma grande referência da escola de Chicago pois além da concepção arquitetônica singular de espaços corporativos, também marca o primeiro momento em que se projetou o desenho do mobiliário para o uso no próprio edifício, concebido pelo arquiteto Frank Lloyd Wright (VASCONCELOS, 2017)

O espaço de trabalho era composto por um edifício principal de seis andares, com galerias para iluminação de um amplo pátio central iluminado em um pé direito de 7 metros e outro edifício menor anexo, onde se estendiam algumas funções de trabalho.

No centro do edifício, no pavimento térreo, ficavam os funcionários do baixo escalão, e ao redor, nos quatro pavimentos

24

superiores que formavam as galerias abertas para o vão central no térreo, localizavam-se as salas privativas dos funcionários de alto escalão. Essa inovação arquitetônica é totalmente baseada no modelo de escritórios taylorista, com espaços rígidos que privilegiam a hierarquia.

(HORSCHUTZ, 2007).

Fig. 4 Edifício Larkin Building: Planta Térreo, 1905.

Fonte: Mahfuz, 2019. Vitruvius.

Fig. 5 Edifício Larkin Building: Corte Longitudinal, 1905.

Fonte: Mahfuz, 2019. Vitruvius.

Assim como no conceito de trabalho taylorista, edifício possui os andares mais altos ocupados pelos cargos de mais alto escalão, com total visibilidade para os espaços de trabalho nos pavimentos inferiores, ressaltando o controle e a fiscalização sobre as atividades dos funcionários.

Fig 6 Estações de trabalho com iluminação zenital no centro do edifício, 1945.

Fonte: Wikiarquitetura, 2018.

Fig. 7 Estações de trabalho com iluminação zenital, 1945.

Fonte: Wikiarquitetura, 2018.

Na concepção dos espaços internos há detalhes inovadores para a época: móveis de aço desenhados com enfoque na atividade dos funcionários no escritório, sistemas construtivos que promovem condicionamento de ar para aquecimento e resfriamento, com

25

sistema central de renovação e circulação do ar (HORSCHUTZ, 2007), contentores fixados nas paredes e divisórias para facilitar a limpeza, portas de vidro articuladas com armação de metal em cima e embaixo, entre outros.

2.1.3 Segunda metade do Século XX

2.1.3.1 O escritório Panorâmico, Bürolanschaft

Após a Segunda Guerra Mundial, o modelo taylorista de escritórios e fábricas começa a entrar em crise em decorrência dos avanços tecnológicos que viriam a automatizar algumas funções A necessidade por ambientes de equipe integrados entre diferentes níveis hierárquicos ganhou grande importância para a qualificação técnica e fluxo de informações (HORSCHUTZ, 2007)

A psicologia social da preocupação com o lado humano das empresas trouxe novos padrões de ocupação dos espaços corporativos a partir de 1950. Com o sucesso da solução da planta livre, surgiu na Alemanha o Escritório Panorâmico, Bürolanschaft, que significa “paisagem de escritórios” , acrescentando o estudo sobre a posição dos postos de trabalho como facilitador do fluxo de trabalho entre setores, seguindo um layout mais orgânico, otimizado pela proximidade entre funcionários, criando uma atmosfera mais humana no mundo corporativo (VASCONCELOS, 2017)

Segundo Fonseca (2004), a proposta do mobiliário utilizado nos Escritórios Panorâmicos buscava a abolição de divisórias físicas, utilizando biombos entre departamentos, concentrando estantes, arquivos, e armários em uma única área acessível a todos. Os espaços eram organizados em conjuntos de estações de trabalho denominados “ilhas multifuncionais” atendendo às necessidades de cada setor, com mesas autoportantes retangulares ou em “L” dispostas conforme o fluxo de necessidades, (HORSCHUTZ, 2007). Nesse sentido, as circulações eram resultantes da disposição dos mobiliários e das estações de trabalho, independente das paredes e estruturas do edifício (HORSCHUTZ, 2007). Pela primeira vez, chefes e colaboradores trabalhavam juntos diluindo a hierarquia entre cargos (MORAIS, 2019)

As plantas dos escritórios panorâmicos eram tipicamente profundas, com grandes distâncias internas entre janelas, e por isso precisavam: de sistemas de ar-condicionado e iluminação mais eficientes (para atender áreas bem maiores) e de materiais de

26

revestimento acústico tanto no mobiliário como no forro e no piso (já que as áreas de trabalho abertas aumentavam o nível de ruído no ambiente.

(HORSCHUTZ, 2007).

2.1.3.1.1 Quickborner Team, Hamburgo

O primeiro escritório panorâmico surgiu em Hamburgo, na Alemanha, pela empresa de consultoria administrativa Quickborner Team (HORSCHUTZ, 2007), com arquitetura integralmente baseada na organização do fluxo de trabalho entre funcionários e setores, procurando tornar a experiência de trabalho mais humanizada a partir das relações sociais (GOU, 2016), e do uso de plantas ornamentais e obras de arte distribuídos pelo ambiente (HORSCHUTZ, 2007).

Fig. 8. Planta do modelo de organização na Quickborner Team, 1963 Archinect, 2022.

Fig. 9 Setorização dos espaços: Diagrama de relacionamento entre pessoas no projeto, considerando 800 pessoas.

Fonte: GOU, 2016

Além de aproximar as estações de trabalho, a solução Bürolandshaft também permite uma redução do custo por metro quadrado, em edifícios mais baixos com pavimentos mais amplos cuja capacidade permite um número maior de funcionários utilizando as mesmas instalações. Os espaços contavam com o melhor sistema de iluminação artificial em lâmpadas fluorescentes da época, com sistema centralizado de ar-condicionado e forros acústicos, tornando o ambiente mais agradável aos funcionários (DANIELSSON, 2005).

27

Fig. 10. Estações de trabalho da Quickborner Team.

Fonte: Combine Consulting, 2020.

Fig. 11. Quickborner Team, em expediente. Fonte: Combine Consulting, 2020.

Danielsson (2005), ao mencionar Beidore (1979) comenta que o fato de supervisores e gerentes de cargos mais altos dividirem o mesmo espaço de trabalho tornava o ambiente mais democrático, atraindo pessoas e ajudando a reter funcionários

2.1.3.2 O escritório Panorâmico, Action Office

Enquanto isso, nos Estados Unidos surgia o modelo Action Office adaptava alguns conceitos do bürolandshaft para uma configuração parecida (HORSCHUTZ, 2007).

O mobiliário das estações de trabalho também possuía características de organização com partes integradas em um único componente, com painéis modulares que permitiam passagem de fiações elétricas e de telefonia para as mesas de trabalho, ajudando a trazer privacidade envolvendo funcionários do mesmo departamento; gerentes e supervisores também ocupavam o mesmo espaço em planta, porém com diferenças entre o dimensionamento de suas áreas de trabalho, ocupando espaços maiores para cargos mais altos; e o arquivamento acontecia por cada estação de trabalho (HORSCHUTZ, 2007).

O Action Office I possuía escrivaninhas e estações de trabalho de diversas alturas, o que possibilitava ao trabalhador liberdade de movimento e a flexibilidade de assumir a posição mais adequada à tarefa em questão.

(MORAIS, 2019)

28

Horschutz (2007) ao mencionar Sampaio (2003) compara as dimensões entre os dois modelos, apontando que o europeu ocupava quase 30% a mais do modelo norte-americano, sendo 8,40m² e 6,00 m², respectivamente.

Segundo Fonseca (2004) estes dois modelos ainda são referências para o design de móveis em escritórios, porém a configuração do Action Office era mais cara, e se adaptava melhor a pequenos escritórios, onde empregados e administradores utilizavam os mesmos equipamentos (MORAIS, 2019).

Fig. 12 Comparação entre os diferentes mobiliários propostos para escritório panorâmico europeu e norte-americano.

Fonte: Horschutz ao citar Sampaio (2003)

Com o tempo, a escolha pelo mobiliário norte-americano voltava a criar configurações mais lineares e geométricas aos projetos de escritórios, com circulações bem definidas (HORSCHUTZ, 2007) Ainda na década de 1960, a empresa Herman Miller lançou oficialmente o primeiro sistema de mobiliário integrado, chamado Action Office II baseado em divisórias móveis que definiam os espaços em unidades encaixáveis, criando privacidade em pequenos módulos (HORSCHUTZ, 2007) Segundo Junqueira (2014), este era o primeiro momento em que funcionários “comuns” teriam suas próprias salas definidas a partir das divisórias móveis A linha foi um sucesso e deu origem ao modelo de trabalho em “cubículos” (MORAIS, 2019).

Fig. 13 Action Office I: modelo europeu, 1964. Fonte: Morais, 2019

Fig. 14 Action Office II: modelo norte-americano, 1979.

Fonte: Saval, 2008.

Fig. 15 Action Office I: modelo europeu, década de 1960.

Fonte: Morais, 2019

29

2.1.3.3 O escritório Panorâmico, Cubicle Farm

Os cubículos do Action Office II se tornaram um sucesso global” (STOUHI, 2020) e a procura por este mobiliário alavancou uma série de fabricantes de móveis a imitar o design proposto pela Herman Miller, fazendo com que as chamadas “Cubicle Farms” se tornassem uma tendência no mercado corporativo nos anos de 1980

Apesar de este modelo de organização ainda ser considerado panorâmico pela proximidade com setores que facilitam o fluxo de informações dentro da empresa através da comunicação, o agrupamento de estações de trabalho lado a lado gerava um desenho semelhante a uma malha xadrez, levando a um padrão de repetição rígido e geométrico, diferente da intenção de humanização que havia por trás das estações de trabalho dos primeiros modelos de escritório panorâmico (BIRD, 2020).

Nesse período, a preocupação pela imagem institucional das empresas ganhava maior importância, fazendo com que os escritórios passassem a propor sua identidade visual nos aspectos interiores e exteriores do edifício, pelo uso de acabamentos, mobiliário, entre outros, para que a aparência da empresa se mantivesse única independente do edifício, pavimento ou sede (HORSCHUTZ, 2007).

Segundo Horschutz (2007), a humanização dos espaços acontecia nas áreas coletivas da empresa, no centro de cada pavimento, onde haviam plantas e sofás. Os funcionários podiam customizar este espaço trazendo plantas, pôsteres e outros materiais.

A ocupação dos espaços corporativos sob a lógica das cubicle farms alterou drasticamente a capacidade de aproveitamento dos escritórios para postos de trabalho (BIRD, 2020) Segundo Morais (2019) o uso de computadores em escritórios já era comum na década de 1970, e apesar de compactas, este novo modelo atendia à chegada das novas tecnologias (BIRD, 2020).

Fig. 16 “Mar de Cubículos” Fonte: MORAIS, 2019.

Fig. 17 Cubicle Farm Fonte: BIRD, 2020.

30

2.1.4

Flex Office e Escritórios Lúdicos, 1990

A partir dos anos 1990, os avanços em tecnologia crescem significativamente, em uma velocidade muito maior. A internet foi aberta das redes para fins comerciais no ano de 1988, e sua globalização aconteceu em 1989, quando os Estados Unidos passaram a comercializá-la pelo mundo (LINK, 2022) Com a facilidade de comunicação por meio da tecnologia, os ambientes de trabalho passam por uma demanda mais dinâmica, em que percebe-se que não há necessidade de dispor todos os funcionários dentro do escritório (MORAIS, 2019)

O Flex Office surge como uma resposta a essa tecnologia, em busca da humanização da forma de se trabalhar, demonstrando que é possível cumprir suas tarefas por qualquer sistema computacional que permita acessibilidade às estações de trabalho, mesmo de suas casas (DANIELSSON, 2005) Esse modelo permite que as empresas dimensionem seus espaços considerando 60% a 70% dos funcionários em trabalho presencial, já que eles podem flexibilizar sua jornada de trabalho.

As estações vagas ou ociosas acabam sendo ocupadas sob o conceito de “Hot desking” que é o conceito por trás do uso de qualquer espaço livre para se trabalhar. Para auxiliar a esses funcionários em regime remoto e demais empresas, surge também o Office hoteling que permite agendar o uso de salas de reunião, cubículos e salas privativas para uso em tempo determinado, aproximando-se ao conceito de Coworking que existe nos dias de hoje (MORAIS, 2019)

Considerando a mudança drástica entre o modelo Cubicle Farm para o Flex Office, houve uma grande dificuldade de aceitação por parte dos chefes e funcionários uma vez que também é necessária uma mudança cultural sobre a forma de se trabalhar. Por um lado, os chefes estavam acostumados a ter controle total sobre as tarefas exercidas dentro da empresa, e por outro, os funcionários não se adaptaram à mobilidade oferecida, mesmo sendo favorável do ponto de vista de proporcionar mais liberdade a suas escolhas voltadas ao bem-estar (MORAIS, 2019)

A linha de mobiliários da década de 1990 prioriza a contenção econômica, a simplificação e a flexibilidade dos produtos. Observa-se uma padronização de medidas, reduzindo os prazos reestruturação dos ambientes aos novos equipamentos e tecnologias, e facilitando o movimento de adaptação às demandas do ambiente corporativo (HORSCHUTZ, 2007)

31

Neste período, as empresas buscam humanizar seu espaço com foco na ergonomia das estações de trabalho, procurando criar uma cultura mais saudável, que estimula funcionários criativos, engajados e capacitados através da liberdade dos funcionários. No fim de 1990, grandes empresas do Vale do Silício passaram a propor espaços como “empresa dos sonhos” para os seus funcionários, buscando atraí-los de forma lúdica. Este é o primeiro momento em que se discute, por exemplo, sobre espaços de descompressão (MORAIS, 2019).

Morais (2019), ao citar Nagy (2016) comenta que ainda há preconceitos em relação ao modelo de trabalho nessas grandes empresas que “infantilizam” suas áreas de trabalho como salas de jogos, videogames, etc esperando que o funcionário possua uma resposta criativa a esses estímulos. Pelo contrário, essa pesquisa demonstra pelos estudos de caso como estes ambientes realmente proporcionam apoio, bem-estar e engajamento, contribuindo na qualidade de vida e produtividade do funcionário.

2.1.4.1 Vale do Silício

O Vale do Silício representa o berço da tecnologia nos Estados Unido, onde se concentram grandes empresas como Adobe, Apple, Oracle, Yahoo, entre outros. A popularidade deste local como berço da tecnologia se iniciou nos anos de 1970, mas à medida mais empresas se instalavam na região, a arquitetura local se configurava de forma cada vez mais inovadora.

HP, Oracle, Amazon, Sony, YouTube são alguns dos exemplos dessas empresas que nasceram em garagens. Hoje, cada uma dessas megaempresas ocupa praticamente um quarteirão do Vale do Silício, inundando o espaço de arquitetura futurista.

(CONTENTOOLS, 2020).

2.1.4.1.1 GooglePlex

Após se estabelecer grandemente no mercado, o complexo da Google, Googleplex, projeto de Clive Wilkinson em 1998, se dispõe como um campus empresarial onde tudo o que existe dentro da empresa carrega a identidade visual e os valores da marca. Nesse sentido, questões vinculadas à sustentabilidade, com o apelo tecnológico dos avanços da ciência atrelados aos equipamentos, como por exemplo: um complexo sistema de geração de energia por placas fotovoltaicas na cobertura; ou simples estímulos a uma vida saudável pela disposição de bicicletas para uso coletivo no espaço.

32

Fig. 18. Fachada da Google Plex Fonte: Contentools, 2020

Fig. 19. Vista aérea da Google Plex, com destaque para a infraestrutura de energia solar Fonte: Contentools, 2020.

Fig. 20 Bicicletas com a identidade visual da empresa.

Fonte: Szatkowski, 2013

Fig. 21 Espaços gramados de estar com ombrelones coloridos na área externa Fonte: Szatkowski, 2013 Segundo Szatkowski (2013), as instalações das áreas coletivas da empresa trazem uma enorme sensação de liberdade, onde nenhum equipamento possui uso restritivo. É possível até trazer familiares para participar de atividades recreativas, tais como aulas de dança, esportes, ginástica laboral e outros cursos oferecidos pela empresa a seus funcionários Quanto aos espaços de trabalho dentro da empresa, a Googleplex conta atualmente com 13 diferentes possibilidades de estações de trabalho. Nestes espaços, a presença de iluminação natural é abundante, e as instalações já não contam exclusivamente com o aproveitamento máximo por m², proporcionando áreas generosas que induzem ao trabalho colaborativo (THE RICHEST, 2021).

33

Fig. 22. Área de trabalho. Fonte: The Richest, 2021.

Fig. 23. Estações de trabalho. Fonte: The Richest, 2021.

Além da amplitude dos espaços de trabalho e dos diversos benefícios que a empresa oferece, o GooglePlex também possui espaços para o cuidado pessoal, tendo como intuito recarregar as energias através de um relacionamento divertido entre os colegas de trabalho na sala de jogos, ou mesmo pela possibilidade de descanso com privacidade em uma poltrona “cápsula”

Fig. 24. Sala de jogos Fonte: The Richest, 2021.

2.1.5 Escritórios do Século XXI

Fig. 25 Sala de Descompressão. Fonte: The Richest, 2021.

Com a vivência do trabalho remoto proporcionado pelas empresas, muitos funcionários encontraram dificuldades de adaptação a este modelo pela falta de interação com a equipe, distrações familiares, falta de espaço e estrutura adequados para o serviço e mistura com a vida pessoal (MORAIS, 2019) Com isso, percebeu-se a importância do trabalho colaborativo para que os funcionários se sintam mais envolvidos nos assuntos da empresa, trazendo prosperidade aos negócios (STOUHI, 2020).

34

"As pessoas têm um senso de propósito quando os líderes são visíveis e acessíveis e quando os líderes reforçam a importância do trabalho dos indivíduos e a conexão com a equipe e organização".

BROWER, Tracy – escrito por MacLean, C. (2020).

Nesse período surgiu a reimplementação de layouts abertos como forma de reaproximar os funcionários do regime presencial e híbrido, criando áreas de comunicação com transparência nas atividades da empresa (STOUHI, 2020).

A vivência dos trabalhadores híbridos e remotos aumentou a demanda por espaços voltados a esse público “nômade”. Hotéis, cafeterias ou qualquer estabelecimento que oferecesse conectividade com a rede de internet poderia ser facilmente utilizado pelo funcionário para suas atividades (MORAIS, 2019) Nesse período surgem os primeiros modelos de escritório-cafeteria, ou Coffice, como estabelecimentos que trazem mais humanização ao espaço de trabalho no sentido de torná-lo mais prazeroso.

O número cada vez mais alto de empresas concorrentes no mercado trouxe também a preocupação pela sua imagem como destaque entre as demais. Os espaços de trabalho do século XXI buscam adaptar-se a mudanças de ritmo a partir da flexibilidade nas estações de trabalho junto com a liberdade dos funcionários que auxiliam o crescimento econômico da empresa quando o ambiente gera bem-estar (HORSCHUTZ, 2007)

As grandes empresas buscam destaque a partir da inovação ao propor ambientes que valorizam o funcionário assim como os espaços de coworking, promovendo comunicação, networking, e solução de problemas por Design Thinking, para torná-los profissionais criativos e talentosos (MORAIS, 2019).

2.1.5.1 Neurociência, Inovação e Experimentação

O interesse por ambientes cada vez mais flexíveis como estímulo ao engajamento, participação e proatividade dos funcionários auxiliava não apenas os lucros da empresa e dos colaboradores, mas principalmente à sua reputação diante da concorrência com outras empresas de mesmo setor.

A década de 2010 fica marcada pelo estudo e experimento das pesquisas realizadas pelas empresas fabricantes de mobiliários como tendências do meio corporativo (MORAIS, 2019), movidas pela busca de uma posição cada vez mais inovadora no mercado. Segundo

35

Stouhi (2020), a evolução dos escritórios não se limita ao trabalho ou cargo exercido, mas também possui um conjunto de ambientes que contribuem para o bem-estar.

Diante da “era da informação” , o funcionário sente dificuldade em se concentrar em suas tarefas. Segundo Steelcase (2015), a fadiga mental ocasionada pela tentativa de um comportamento multitarefa ao longo de todo expediente pode acelerar o processo de degradação da capacidade cerebral. Respeitar o ritmo do organismo em pausas ao longo expediente ajuda para que o cérebro ative capacidades de foco e regeneração com menos esforço.

Dentre os principais estudos que podem fortalecer os ambientes de trabalho, destacamse: o quanto a movimentação física recarrega a capacidade de pensar; os assentos influenciam em sua atenção, e a ambientação do espaço favorece a forma de pensar (STEELCASE, 2015).

Além da revolução ergonômica impulsionada por essas novas tendências, a biofilia também se destaca no espaço como um novo tema, que se caracteriza pelo uso de elementos naturais, tais como plantas ou revestimentos que remetem a natureza, despertando a calma e bem-estar no ser humano por essa característica da neurociência (STOUHI, 2020).

2.1.5.1.1 Amazon, Seattle.

Enquanto o resto do mundo apostava em projetos mais reduzidos pelo aumento da demanda por trabalho remoto, a nova sede da Amazon se destaca a partir do apelo ambiental utilizado nos elementos de projeto como forma de comunicação visual sobre os princípios da empresa e de seu nome vinculado à Amazonia.

O projeto conta com uma torre projetada para uso de seus funcionários distribuídos em setores e uma área externa com uma estrutura geodésia voltada para a interação dos funcionários em um ambiente externo mais aconchegante que remete a um jardim botânico com cerca de 40 mil espécies (PINTOS, 2019).

As esferas de 6.224,50 m² representam apenas 2% do projeto da Amazon, mas servem como um ímã para unir as pessoas. Abertas aos seus funcionários, as esferas oferecem uma variedade de lugares para as pessoas se encontrarem, trabalharem e comerem desde um "ninho de pássaros" com ripas de madeira a terraços com banquetas e cadeiras

(PINTOS, 2019)

36

Fig. 26. Amazon: Plantas Fonte: PINTOS, 2019

Fig. 27 Amazon: Cortes Fonte: PINTOS, 2019

Além de criar uma atmosfera agradável para encontros, estes espaços também podem ser utilizados para o trabalho remoto ou híbrido por serem áreas intermediárias à entrada do edifício. É como estar dentro de um Coworking da empresa, utilizando as instalações para relaxar, trabalhar, ler, conversar, da maneira como preferir.

Fig. 28. Diferentes espaços de encontro Fonte: PINTOS, 2019.

Fig. 29. Plantas e texturas naturais no espaço em que se pode trabalhar. Fonte: PINTOS, 2019.

37

2.1.5.2 Post-COVID Workplace

A década de 2020 tem suas transformações sociais marcadas pelo impacto da doença viral respiratória descoberta em 2019 como Coronavirus, ou Covid-19 Apesar de algumas medidas protetivas contra o vírus serem temporárias, muitas alterações em decorrência deste período podem se tornar definitivas para o cenário “Pós-pandemia” dos espaços de trabalho (MORAES, 2020)

Para designar este momento de adaptação e replanejamento dos escritórios, empresas da área de pesquisa e desenvolvimento de produto como Steelcase, e Herman Miller, já se referem a essa vertente como “Post-COVID Workplace” , deixando subentendido que as adaptações podem ser seguidas por qualquer ambiente que atenda a possibilidade de se trabalhar, independente de ser escritório, coworking, cafeteria, etc.

2.1.5.2.1

Adaptações versáteis

Ao compreender as gotículas de saliva como um dos principais vetores de transmissão de doenças respiratórias que podem ser dispersas pela fala, tosse, ou espirro (GIBBENS, 2020), destacam-se as seguintes medidas para o retorno aos ambientes de trabalho: (...), continuar a usar máscaras, manter a higiene das mãos, deixar os ambientes bem ventilados sempre que possível, evitar aglomerações e reduzir ao máximo o contato próximo com muitas pessoas, principalmente em espaços fechados.

(ONU, 2021 a)

Por um lado, à medida que os funcionários retornavam aos postos de trabalho, muitos optaram pelo regime híbrido, que mescla a jornada de trabalho entre presencial e remoto (GENSLER, 2020). Por outro, as medidas de distanciamento social adotadas pelas empresas para a retomada aos postos de trabalho ainda não permitiam a redução dos espaços físicos (m²), apenas da distribuição do mobiliário nos espaços (STEELCASE, 2020)

Para os espaços individuais de trabalho, recomenda-se o uso de divisórias abertas, que permitem setorizar sem enclausurar ambientes

38

Fig. 30. Definição clara das circulações conforme raio de aproximadamente 1,80m Fonte: Steelcase, 2020.

Fig. 31. Distanciamento em mesas de trabalho compartilhadas

Fonte: Steelcase, 2020.

Fig. 32. Distanciamento em mesas individualizadas.

Fonte: Steelcase, 2020.

Apesar de estas medidas serem temporárias, os novos espaços de trabalho entendem que é necessário conhecer essas possibilidades de flexibilização como forma de prevenção para adaptar-se com facilidade a qualquer outro cenário como o do Covid-19. Além dessas questões, mudanças nos espaços de trabalho em decorrência da popularização do regime híbrido também influenciam significativamente sobre os novos espaços.

Segundo Gensler (2020), Steelcase (2021 a) os movimentos para adaptação dos escritórios às novas demandas trazem a saúde física e mental como princípios para a concepção dos novos espaços de trabalho, que não necessariamente se restringem aos escritórios. Essas abordagens serão esclarecidas pelos tópicos adiante.

39

2.2 Definições e Conceitos

Originalmente criada em 1978, a Norma Regulamentadora NR17 surgiu como um conjunto de regras e parâmetros na Lei Trabalhista brasileira com enfoque na ergonomia da adaptação das condições de trabalho às características individuais dos trabalhadores (BRASIL, 2021). São parâmetros que devem ser somente seguidos como requisitos básicos norteadores para o conforto nestes ambientes, e não como meta de projeto (VILLAROUCO e ANDRETO, 2008).

Medidas em prol da segurança, de saúde, das conveniências e do conforto pessoal, treinamento para promoções – estimularão o espírito de cooperação do indivíduo (ETTINGER, 1964)

2.2.1 Ergonomia

Ambientes bem organizados dentro de uma empresa exercem influência direta sobre o ânimo e a vontade de cooperar coletivamente entre os funcionários (ETTINGER, 1964)

Avaliar projetos sob o viés ergonômico ajuda a compreender a experiência do usuário com a interação cotidiana no ambiente construído (VILLAROUCO e ANDRETO, 2008). Há uma influência direta entre a ergonomia dos ambientes de trabalho e a produtividade dos funcionários ao proporcionar uma melhor sensação de conforto (ETTINGER, 1964).

Segundo estudo realizado pela Steelcase (2021 c), aproximadamente 40% dos funcionários dentre 10 países afirmam ter que mudar de postura frequentemente por desconforto físico. Durante o período de lockdown da pandemia do Covid-19, comenta-se que muitas vezes foi necessário improvisar entre sofá, mesa de cozinha e cama para que o desconforto não atrapalhasse o foco durante o expediente.

Além de questões antropométricas (PANERO e ZELNIK, 2002), a ergonomia também está relacionada à organização dos espaços, em termos de definição clara das circulações, uso facilitado das instalações físicas do edifício (LIMA, 2017), e também das políticas e processos de organização, que podem estar relacionados no espaço físico do escritório (ETTINGER, 1964)

Segundo Lima (2017) há inúmeros casos em que o usuário do edifício prefere utilizar sistemas de climatização artificial em vez de abrir janelas para a ventilação natural – seja pela dificuldade de manuseio das instalações físicas do edifício; por falta de manutenção na

40

esquadria que pode emperrar; dificuldade de acessibilidade no caso de janelas muito altas; ou falta de conhecimento sobre o mecanismo de abertura como é o caso de edifícios antigos

2.2.2 Conforto Térmico

Segundo Gonçalves (2015), a influência norte-americana sobre a tecnologia dos sistemas prediais no Brasil trouxe alguns “mitos” em relação ao contexto climático desde 1960. Ao discutir-se que a poluição atmosférica era a única fonte poluente para ambientes internos, os novos conceitos arquitetônicos buscavam estancar as edificações de trocas de ar com o meio externo (SALERNO Jr, 2019).

No Brasil, a necessidade de adequar espaços ao clima faz com que a preferência por sistemas de resfriamento artificial seja cada vez maior entre os funcionários do que sistemas de ventilação natural (DE VECCHI et al, 2016). Segundo a ONU, 60% da energia elétrica consumida no planeta vem do uso e operação de edifícios residenciais e comerciais.

Além do desconforto e da poluição atmosférica acarretada pelo uso contínuo de sistemas de resfriamento artificial, Bergefeurt et. al (2022) categoriza o conforto térmico como um dos elementos mais importantes para a saúde mental do funcionário, influenciando em sua produtividade no espaço de trabalho (ETTINGER, 1964).

Projetar a arquitetura dos edifícios levando em consideração o contexto climático local e a interação do edifício com o ambiente externo é imprescindível para garantir o conforto térmico e minimizar a demanda de consumo energético durante o uso e ocupação do espaço construído (GONÇALVES, 2015). Segundo Heywood (2015) é possível proporcionar conforto térmico através da orientação solar, da vegetação no entorno, das vedações externas, das aberturas, de proteções, etc. Nesse sentido, a comunicação entre os espaços internos e externos através de aberturas é fundamental permitir o conforto térmico e a salubridade para ambientes de longa permanência (LIMA, 2017).

2.2.3 Conforto Adaptativo

A relação do usuário com o contexto local é o que mais influencia sobre as questões de conforto térmico em um ambiente, podendo variar ainda de acordo com as horas do dia. Os aspectos do usuário que contribuem para o equilíbrio e bem-estar são: termofisiológicos

41

do corpo humano; taxa metabólica; vestuário; culturais; e variam conforme as atividades exercidas no espaço (VILLAROUCO e ANDRETO, 2008) E as variáveis ambientais para o conforto no espaço construído são: temperatura do ar; temperatura radiante média; umidade e velocidade do ar (GONÇALVES, 2015).

Nessa relação entre espaço e usuário, é possível se adaptar às condições térmicas do espaço com pequenas mudanças comportamentais, como vestir um agasalho em vez de ligar o sistema de aquecimento, fechar persianas para limitar a entrada de radiação solar (GONÇALVES, 2015), abrir as janelas para permitir a circulação do ar em vez de ligar o condicionamento artificial (LIMA, 2017). Enfim, soluções passivas que permitem a redução de gastos energéticos mas requerem a proatividade dos usuários.

Segundo Lima (2017), a dificuldade de acessibilidade, o manuseio complexo e as condições de manutenção de aberturas induzem ao comodismo do usuário, que o faz optar pelo uso de sistemas ativos de condicionamento térmico.

2.2.4 Conforto Luminoso

A iluminação natural nos ambientes de trabalho é importante não apenas por questões de economia de energia e eficiência energética (BARBIRATO et al, 2011), mas principalmente pela capacidade de influenciar sobre a performance do funcionário. Paiva (2022) associa a iluminação natural ao ciclo circadiano do ser humano (relógio social e biológico), uma vez que a luz natural durante o dia é capaz de contribuir para picos de energia, atenção e produtividade, e durante o entardecer desacelera o organismo para a hora de dormir.

Segundo Fonseca (2020) a exposição à iluminação natural também pode ser prescrita como antidepressivo, uma vez que estimula o organismo à produção de serotonina, hormônio responsável pelo bem-estar e por aspectos biopsíquicos. Além disso, a iluminação natural também ajuda a evitar a formação de mofo, evitando infecções e problemas respiratórios.

Para este estudo, somente consideram-se questões relacionadas à entrada de luz natural nos ambientes associada à iluminação artificial, acrescentando alguns comentários simplificados sobre temperatura de cor (K) e dimerização (capacidade de controle da intensidade de luz e temperatura de cor através de um dispositivo conectado ao sistema de iluminação).

42

2.2.5

A Pandemia do Covid-19

Caracterizada como Pandemia pela Organização Mundial da Saúde (OMS), a partir de 11 de março de 2020 (ONU, 2020), a doença respiratória do Coronavírus ou Covid-19 atingiu diretamente a dinâmica dos espaços de trabalho, levantando questionamentos sobre a salubridade, segurança biológica, distanciamento social, saúde mental, bem-estar físico, novas formas de trabalho, etc (MORAES, 2020). A facilidade de transmissão do vírus somado à alta letalidade e à ausência de vacinas no início de 2020 fez com que medidas protetivas como “lockdown” fossem adotadas para a redução da disseminação do vírus (SILVA, 2020).

De imediato, para conter consequências econômicas, muitas empresas adotaram medidas de trabalho remoto, possibilitando que seus funcionários trabalhassem de suas casas durante o período de lockdown. Segundo Moraes (2020), ao adaptar os espaços domésticos para atendimento das atividades empresariais, notou-se a importância da ergonomia nos espaços de trabalho, para que cada método possa condizer com cada profissão e prestação de serviço em suas características específicas

Em decorrência da pandemia, houve um aumento de 10 vezes no número de trabalhadores remotos da América Latina entre 2019 e 2020, o que representa uma proporção de 30% dos trabalhadores assalariados segundo a ONU (2021 b). Através da tecnologia, percebe-se que é possível fazer o racionamento de pessoas nos espaços físicos corporativos, com horários menos rígidos e diferentes possibilidades de trabalho, preservando a saúde do funcionário (MORAES, 2020).

Com a queda da primeira onda de contágios do Covid-19, começou-se a discutir sobre a desmistificação do 100% Home Office e o início da vivência híbrida nos escritórios para muitas empresas (PRATA, 2020). Segundo pesquisa realizada pela Gensler (2021) sobre o impacto da pandemia no retorno aos espaços de trabalho, a preferência por empregos de categoria híbrida - com políticas flexíveis de trabalho remoto e presencial – atingiu a marca de 52% entre 2.000 funcionários entrevistados nos Estados Unidos, representando um aumento de 16% no interesse pelo trabalho híbrido para o cenário pós-pandemia.

Mantesi et. al (2022), categoriza estudos de caso ao longo de cinco períodos baseado no comportamento dos escritórios ao longo de cada mês para o enfrentamento da pandemia Na imagem a seguir, a sequência destes acontecimentos percorre as seguintes fases: (TC1) distanciamento social; (TC2) aumento na necessidade de ventilação natural; (TC3) após a imunização em massa, trabalhos mais colaborativos do que individuais; (TC4) redução do

43

espaço físico para acomodação do mesmo número de funcionários a partir do trabalho híbrido; (TC5) análise do impacto da subutilização dos espaços devido ao predomínio do trabalho híbrido.

Fig. 33. Infograma sobre estudos de caso de escritórios em função da pandemia.

Fonte: Mantesi et. al (2022)

Embora as análises realizadas por Mantesi et. al (2022) refiram-se ao enfrentamento da Pandemia, a discussão dessas consequências ajuda a compreender movimentos de reestruturação dos escritórios que podem se tornar definitivos (MORAES, 2022) em função da salubridade dos ambientes de trabalho e do melhor aproveitamento de seus espaços físicos.

2.2.6 Saúde Mental

Aubert (1993) ao citar Julliard (1910) comenta que as primeiras discussões sobre saúde mental começaram a partir da observação dos transtornos psicológicos em atendentes de telemarketing, categorizados na época como “neurose das telefonistas” , ou “síndrome da fadiga nervosa” Porém ainda hoje, principalmente após a pandemia, questões relacionadas ao estresse no ambiente de trabalho ainda atingem funcionários de diversas áreas.

Segundo Aubert (1993), o estresse profissional se define como “uma mobilização excessiva de sua energia de adaptação para o enfrentamento das solicitações de seu meio ambiente profissional, que ultrapassam as capacidades atuais, físicas ou psíquicas deste indivíduo”. Ao passo que o estresse profissional se torna recorrente e intenso, esse transtorno pode se tornar uma “neurose profissional” , que se define por um estado de

44

desorganização persistente de personalidade, que pode gerar obsessões, fobias, fenômenos de conversão histérica, entre outros (AUBERT, 1993).

Ao reunir diversos artigos sobre o tema para uma análise comparativa, Bergefeurt et. al (2022) comenta que o estresse profissional ou burn-out tem relação direta com os espaços físicos de trabalho, incluindo suas condições de conforto ambiental, instalações, equipamentos, organização e relação profissional (VILLAROUCO e ANDRETO, 2008).

Segundo Majerowicz (2022), a preocupação excessiva com a contaminação pelo Covid-19 para as pessoas de grupos de risco (PONTES et. al, 2022) fez com que a sensação de medo e insegurança pela vulnerabilidade fomentasse uma nova responsabilidade aos arquitetos pela adequação dos espaços de trabalho a essas novas demandas sanitárias

Entendendo estes espaços de trabalho como locais de interação cotidiana do usuário com o edifício, é possível replanejar os espaços de trabalho melhorando a qualidade de vida de cada funcionário, e consequentemente otimizando a produção e produtividade dentro da empresa (VILLAROUCO e ANDRETO, 2008)

2.3 Os novos espaços de trabalho

Segundo pesquisa realizada pela Steelcase (2021 a), com 32.000 participantes entre 10 países, o período de isolamento social e trabalho remoto imposto pelo Lockdown da pandemia trouxe uma queda de engajamento e produtividade, relacionada à insatisfação dos funcionários. Isso porque nesse período muitas pessoas passaram a questionar o propósito e o valor de seu trabalho, sentindo a necessidade de se reconectar com a empresa e com outros colaboradores.

Contudo, o retorno ao trabalho presencial também trouxe expectativas com relação a: (1) segurança sobre a qualidade do ar e os protocolos de saúde do Covid-19; (2) sensação de pertencimento entre a equipe em um espaço inclusivo e colaborativo; (3) produtividade em espaços físicos que proporcionam foco nas tarefas e clareza na comunicação entre equipes, (4) conforto sobre as condições ergonômicas adequadas para cada tipo de tarefa; e (5) controle sobre as tarefas em desenvolvimento e as condições físicas que proporcionam conforto e autonomia dentro da empresa (STEELCASE, 2021 a).

Nesse sentido, é essencial que as empresas adaptem seus espaços físicos a essas novas demandas, compreendendo novos processos de trabalho, tecnologias e infraestruturas,

45

proporcionando espaços mais flexíveis de trabalho, com possibilidade de trabalho híbrido (STEELCASE, 2021 a)

Essa mudança sísmica na forma como o trabalho acontece e a confiança que isso exigirá pode ser um catalisador para novas formas de trabalhar e redefinir como o escritório pode reenergizar e reconectar as pessoas. Mas, para ter sucesso, o local de trabalho precisará mudar. As pessoas vão querer ver e sentir que sua organização está agindo para atender às suas novas necessidades. Pode ser desafiador inicialmente, mas nunca houve uma oportunidade maior para as organizações redefinirem sua cultura.

STEELCASE (2021 c). Traduzido pela autora.

2.3.1 Salas de Apoio e Descompressão

Além da flexibilidade do expediente e da localização, as estações de trabalho também podem ser flexíveis e compartilhadas. Das empresas pesquisadas pela Condeco (2020), 54% afirmam ter espaços multifuncionais dentro da empresa e salas de apoio, tais como uma área de descanso ou descompressão, e 46% afirmam ter criado espaços de apoio fora do ambiente do escritório. Nesse aspecto, as start-ups passam a ser vistas como grandes referências para a modernização de empresas tradicionais e conservadoras.

Ao compreender que a sobrecarga de trabalho sobre um funcionário ou setor pode repercutir em um estresse coletivo (AUBERT, 1993), é importante oferecer espaços de autocuidado, em que o funcionário pode se deslocar do seu ambiente de trabalho para um local descontraído e aconchegante, em que é possível relaxar, aliviar a tensão, desacelerar o ritmo, e retornar ao trabalho com a mente tranquila e ideias renovadas (PORTOBELLO, 2022)

Locais geralmente denominados como “Espaços de Descompressão” sugerem uma pausa no ritmo de trabalho para auxiliar à saúde mental dos funcionários. O acesso à luz natural, a presença de plantas para melhorar a qualidade do ar (CONDECO, 2020) e um espaço com equipamentos ou mobiliários que sugerem um cuidado pessoal ou relaxamento auxiliam a qualidade de vida do funcionário, como pessoa e como profissional

Os espaços de descompressão podem acolher aos funcionários mais introvertidos, nestes espaços mais pacíficos para o relaxamento, ou também atender aos funcionários mais

46

extrovertidos que recarregam suas energias e criatividade através do relacionamento descontraído com outros funcionários da empresa.

Há casos em que as áreas de descompressão funcionam como salas de jogos, com televisão, videogames, mesas de sinuca, etc, a exemplo das empresas do Vale do Silício, como ambiente de interação e lazer dos funcionários, permitindo a “descompressão” através da diversão e descontração (PORTOBELLO, 2022).

2.3.2 Coworking

Com o aumento das empresas e a demanda por um trabalho mais flexível, houve uma mudança por alugar ou permitir espaços menores trabalho compartilhado ou “coworking” , que proporcionam uma boa atmosfera de ambiente colaborativo (CONDECO, 2020)

Segundo Soares (2022) o Coworking é um modelo de negócio que surgiu nos anos de 1990 concebido pelo designer de games Bernie Koven, nos Estados Unidos, e aprimorado como local compartilhado onde acontecia o trabalho on-line. – No Brasil, o primeiro Coworking foi criado em São Paulo, no ano de 2007.

O Coworking é um espaço físico de trabalho que pode ser compartilhado por várias empresas e profissionais, em que a infraestrutura permite alugar salas de reuniões, estações de trabalho, cabines para videoconferência, café-coworking. O espaço fornece os insumos para o trabalho, com diversas áreas comuns de refeitório, auditório, entre outras, em troca de uma tarifa que representa as despesas gerais como luz, aluguel, recepção, etc (SOARES, 2022).

Segundo consultoria Cushman & Wakefield feita pela Exame (FLACH, 2020), a ocupação de espaços flexíveis de trabalho aumentou 568% no Brasil de 2015 a 2019, totalizando 354.000 m² de espaços de Coworking, com destaque para a região Sudeste.

Um exemplo de Coworking é o Complexo Mofo, que atua em Sorocaba desde 2016, com três unidades. Os ambientes podem ser utilizados por qualquer pessoa desde que concorde com os planos e tarifas pelo uso do espaço (MOFO, 2022). Vale ressaltar neste exemplo que uma das unidades é o 1º Coworking do mundo desenvolvido para pais de alunos localizado dentro de uma escola, com o intuito de facilitar a logística de trabalho e aproximar os pais dos alunos (TABACOW, 2021).

47

2.3.3

Estações Multifuncionais

Ao compreender os ambientes corporativos como local de foco e concentração por longa permanência, Mantesi et al. (2022) e Fonseca (2004) investigam espaços multifuncionais como estratégias de humanização de ambientes corporativos. Ainda hoje, a cultura das mesas fixas de trabalho por funcionário é comum em 63% das empresas, dentre as 1031 entrevistadas pela Condeco (2020). Para propor estações de trabalho híbridas e compartilhadas Voordt et al. (2013) comenta que é necessário reconhecer a individualidade de cada funcionário, para proporcionar ambientes dinâmicos e agradáveis.

Segundo Steelcase (2021 b), a adaptação dos ambientes corporativos para atender a diversos tipos de atividades deve considerar quatro princípios fundamentais na reorganização de suas estações de trabalho. São eles (1) Me+We, que representa o equilíbrio entre as instalações para trabalho individual e coletivo; (2) Fixo a Fluido, com mobiliários e instalações que permitem mobilidade e flexibilidade no layout; (3) Aberto+Fechado, com ambientes que permitem a concentração ideal para cada tipo de atividade, seja em grupo ou individual; e (4) Digital+Físico, com tecnologias que permitem uma boa experiência do colaborador remotamente e presencialmente nas atividades e reuniões realizadas pela empresa.

Fig. 34 Me+We

Fonte: Steelcase, 2021 b.

Fig. 36. Aberto+Fechado

Fonte: Steelcase, 2021 b.

Fig. 35 Fixo a Fluido

Fonte: Steelcase, 2021 b.

Fig. 37. Digital+Físico

Fonte: Steelcase, 2021 b.

48

Neste primeiro caso, denominado Me+We, ressalta-se a importância de projetar espaços com privacidade que proporcionam foco e concentração da mesma forma como também é necessário propor ambientes colaborativos que estimulam a comunicação e a troca de informações entre os funcionários, com equipamentos e infraestrutura auxiliares para o diálogo entre equipes.

No segundo caso, Fixo a Fluido, é importante que o mobiliário ou algumas instalações possam ser manuseadas para proporcionar variadas configurações de layout, que permitem redimensionar ambientes a partir de suas divisórias, modificar a organização de mesas de reunião, entre outros, proporcionando diferentes experiências em um ambiente mais versátil. Nesse sentido, o funcionário sente mais autonomia para adaptar-se às melhores condições para seu trabalho.

No terceiro caso, Aberto+Fechado, há diversas possibilidades entre modelos com espaços realmente fechados, que permitem mais privacidade em conversas e reuniões remotas e espaços abertos que estimulam um trabalho mais colaborativo Os Phone Booths, por exemplo, são espaços individualizados de trabalho, com mesa e assento, que podem ser encomendados sob medida e incorporados às áreas de trabalho como cabines individuais.

No último caso, Digital+Físico, propõe-se que as empresas ofereçam experiências positivas aos funcionários do regime remoto, híbrido e presencial, com auxílio da tecnologia para reuniões remotas, incluindo mesas para uso esporádico, considerando que os funcionários do regime híbrido podem se instalar em determinados períodos para exercer seu trabalho ou conversar presencialmente com a equipe.

Locais flexíveis de trabalho são áreas altamente adaptáveis, que podem favorecer a produtividade a partir da melhor experiência do funcionário, oferecendo diversas possibilidades entre estações de trabalho (CONDECO, 2020) É importante que as empresas consigam compreender as atividades dentro de seu espaço físico para proporcionar ambientes ideais com mobiliário adequado para cada tarefa

2.3.3.1 A relação do assento com o expediente

Os espaços multifuncionais se diferenciam das estações físicas de trabalho, ao permitir o deslocamento do funcionário até um ambiente diferente dentro da empresa com seu notebook, tablet, ou caderno para exercer uma tarefa. Para isso é importante compreender

49

como o mobiliário é capaz de influenciar sobre o tempo que cada funcionário pode utilizar essas estações.

Nas imagens abaixo, a primeira demonstra uma cadeira com espaldar mais alto, apoio para braços e rodinhas, que é a mais comumente utilizada em estações fixas de trabalho, em que o funcionário pode trabalhar por todo o seu expediente sem sofrer dificuldades, dores ou problemas por ergonomia. A segunda demonstra uma mesa alta com banqueta que também pode ser utilizada para trabalho, sugerindo um uso mais esporádico, uma vez que a ergonomia não oferece um apoio adequado para a coluna. A terceira e a quarta opções são um sofá ou poltrona com mesa lateral para trabalho, permitindo o uso de notebook ou tablet em uma ergonomia mais confortável Por outro lado, o espaço para a mesa de trabalho é mais reduzido e, portanto, pode não atender às necessidades durante todo o período do expediente.

Fig. 38 Estação de trabalho convencional

Fonte: Steelcase, 2021 c.

Fig. 39 Mesa alta com banqueta

Fonte: Steelcase, 2020

Fig. 40 Sofá com mesa lateral.

Fonte: Steelcase, 2020

Fig. 41 Poltrona com mesa lateral.

Fonte: Steelcase, 2020.

2.3.4 Trabalho Híbrido

Segundo CONDECO (2020) três dos cinco principais benefícios do trabalho remoto consistem em: (1) cortar custos por reduzir o espaço ocupado por pessoa no escritório; (2) flexibilizar a escalação dos funcionários presenciais conforme as necessidades comerciais da empresa; (3) e permitir que os funcionários trabalhem enquanto viajam.

O deslocamento até a empresa, que poderia ser dispendioso ao depender de transporte público ou do engarrafamento nas cidades auxilia tanto para a saúde do funcionário, quanto para a empresa que permite uma maior flexibilização entre funcionários, podendo aumentar

50

o número de contratados sem expandir seu espaço físico; e principalmente para o meio ambiente, pela redução da emissão de gases poluentes na atmosfera (CONDECO, 2020)

Segundo pesquisa realizada pela Gensler (2021) entre mais de 2300 funcionários dos Estados Unidos, o número de contratados para o regime híbrido, de 36%, sobe para 52% no pós-pandemia (considerando o número de interessados em continuar ou mudar para o regime híbrido), com destaque para modelo de 2 dias presenciais por semana. Essa diferença acontece principalmente pelo desejo dos trabalhadores remotos em retornar a encontros presenciais pós-pandemia e se reconectar aos objetivos da empresa (STEELCASE, 2021 a).

Fonte: Gensler (2020)

No Brasil, a Lei 13.467, que diz respeito a Consolidação das Leis do Trabalho (CLT), e o Projeto de Lei PL 4.098/2021, que regulamenta o regime híbrido na jornada de trabalho, definem que o trabalhador deve assinar termo de responsabilidade para comprometer-se a seguir as instruções disponibilizadas pelo empregador (DOURADO, 2021).

Art. 75-E. O empregador deverá instruir os empregados, de maneira expressa e ostensiva, quanto às precauções a tomar a fim de evitar doenças e acidentes de trabalho.

Lei nº 13.467, (2017)

Uma conduta adotada por uma série de empresas na elaboração deste termo de responsabilidade é a instrução sobre as condições ideais de trabalho com relação a ergonomia do assento, mesa, altura da tela, etc, compreendendo o impacto que uma estação de trabalho inadequada pode ocasionar sobre a saúde do funcionário quando utilizada por um longo período de horas de trabalho

O Projeto de Lei PL 4.098/2021 define que a empresa contratante deve fornecer os equipamentos para o trabalho de forma híbrida caso o funcionário não tenha, ou então

51
Fig. 42 Número de dias por semana que o funcionário prefere trabalhar no escritório ou remotamente.

fornecer condições para pagar pela sua aquisição e serviços de internet que possibilitem a realização do trabalho (DOURADO, 2021)

Com relação à conectividade e segurança de dados no trabalho remoto, pelo menos 51% das empresas entrevistadas pela Condeco (2020) afirmaram ter políticas claras de proteção de dados, treinamento em segurança de dados e políticas de trabalho remoto da empresa, utilizando ferramentas de armazenamento em nuvem, conexões VPN, ou dispositivos criptografados

52

METODOLOGIA

Para este estudo, busca-se discutir sobre os conceitos de arquitetura corporativa de forma qualitativa, a partir de dois estudos de caso, comparando relações entre o projeto e a pós-ocupação na relação do usuário com o edifício e as instalações que envolvem seu conforto e ergonomia no espaço.

Os projetos escolhidos como estudos de caso são exemplos no estado de São Paulo que demonstram como esses conceitos de ergonomia na arquitetura corporativa podem ser aplicados na realidade de empresas brasileiras bem-sucedidas, com foco na qualidade do espaço a partir do bem-estar do funcionário.

Os projetos analisados são: (1) CI&T Globaltech, Campinas – SP (Projeto do escritório Capoano Arquitetura); e (2) Veolia, São Paulo – SP (Projeto do escritório Pitá Arquitetura)

3.1 CI&T Globaltech

Segundo Glassdoor (2022), a CI&T foi originalmente fundada em Campinas no ano de 1995, e está entre as 150 empresas mais inovadoras do Brasil, tendo recebido o prêmio Great Place to Work Brasil pelos últimos 14 anos consecutivos. A empresa é responsável por projetos na área de tecnologia atendendo às demandas de clientes tais como Google, Johnson & Johnson, Cielo, Motorola, Vivo, entre outros, e se estende hoje como multinacional brasileira presente nos Estados Unidos, Brasil, Reino Unido, Canadá, China e Japão.

O edifício analisado neste trabalho consiste na unidade do complexo Globaltech, em Campinas, inaugurada no ano de 2019, com o projeto desenvolvido pela Capoano Arquitetura (CAPOANO, 2019).

Antes de ser incorporado como parte da CI&T, o edifício consistia em um galpão para armazenamento de produtos tecnológicos, construído na década de 1970 com aproximadamente 7 metros de pé direito Ao reambientar o espaço, o projeto focou nas novas necessidades da empresa, contando com a participação dos funcionários para a definição do programa de necessidades, em busca de co-criação, metodologia de engajamento e envolvimento - Design Sprint (CAPOANO, 2019).

Para discutir sobre estes conceitos analisando qualitativamente este projeto como uma referência em arquitetura corporativa, foi realizada uma visita técnica no dia 20 de junho de 2022 (segunda-feira) para conhecer pessoalmente como este espaço funciona em horário comercial.

53 3

3.2 VEOLIA - Matriz em São Paulo

A Veolia é uma empresa multinacional de soluções ambientais, fundada originalmente na França em 1853 ao permitir a distribuição de água potável no meio urbano; atua em projetos da área de gestão de águas, resíduos, energia e serviços de transporte (BILLOIS, 2014), em conformidade com os Objetivos de Desenvolvimento Sustentável (ODS) estabelecidos pela ONU Em 2022 estimam-se que a empresa possui 220 mil funcionários distribuídos por cinco continentes (VEOLIA, 2022).

Segundo Econodata (2022), a unidade Matriz representante da Veolia no Brasil situase em São Paulo, e conta com a colaboração de aproximadamente 200 a 300 funcionários. O escritório foi fundado em 1996 e reinaugurado no condomínio empresarial Atlas Office Park, no bairro Vila Leopoldina em São Paulo, em 2020, com projeto desenvolvido pela Pitá Arquitetura (PEREIRA, 2020).

Por razões de sigilo entre os projetos realizados pela Pitá Arquitetura para seus clientes, as análises deste estudo de caso serão investigadas a partir do material disponível abertamente na internet, interpretando os espaços comparativamente com a planta publicada no ArchDaily, por Pereira (2020).

Para complementar essas análises, foi feita uma entrevista com o funcionário Gabriel Fava, Assistente de SGI (Sistema de Gestão Integrado) da Veolia, que trabalha em regime híbrido, frequentando o edifício cerca de 2 vezes por semana. A entrevista (Anexo A) tem como objetivo investigar sobre os ambientes não comentados pelas publicações na internet e conhecer como são as diversas formas de trabalho dentro da empresa.

54

4 ANÁLISE E INTERPRETAÇÃO

4.1 CI&T Globaltech

DOS ESPAÇOS

4.1.1 Número de Funcionários e Formas de trabalho

O espaço foi projetado para atender a 350 funcionários trabalhando presencialmente. Com a pandemia do Covid-19, CAPOANO (2020a) descreve algumas mudanças pontuais incorporadas ao projeto como medidas para o atendimento dos protocolos de higiene: (1) distanciamento social de 1,5 a 2,0 metros entre postos de trabalho ocupados; (2) instalação de sistema para o monitoramento da qualidade do ar e identificação dos espaços de uso frequente; (3) automatização de sistemas, portas e sensores visando o mínimo de toque sobre equipamentos e instalações do espaço; e (4) preparo de todas as salas de reunião e ambientes de staff com equipamentos para videoconferências.

Com a redução dos casos de Covid, a ampla oferta de imunizantes e o retorno aos espaços de trabalho, a líder de pessoas da CI&T Brasil comenta que cada um dos 4 mil funcionários pôde experimentar um “centro de experiência híbrida” para escolher o modelo de trabalho que se adaptassem melhor, entre: totalmente remoto, híbrido, ou totalmente presencial – pautando as decisões da empresa no desejo das pessoas e de acordo com as demandas do mundo corporativo (FURLAN, 2021). Com a necessidade de mudança na forma de trabalho para o enfrentamento do Covid, o sistema híbrido acabou influenciando na porcentagem de ocupação do edifico, o que resulta hoje em muitos postos de trabalho ainda ociosos.

4.1.2 Espaços de Trabalho

“Mudando negócios e vidas com a coragem de criar um futuro melhor. A ideia é construir uma cultura corporativa melhor e mais humana, para gerar um ciclo virtuoso para todos, ou seja, para pessoas, empresas, sociedade, meio ambiente e economia. Ser referência para os clientes e consumidores, fazer lucro com propósito e investir em um futuro melhor.”

-CI&T. Escrito por Xavier, S. e Marciano, M. (2022) Ao contrário das características tayloristas aplicadas amplamente nas empresas, a CI&T não possui hierarquias de cargos entre os espaços físicos delimitados por salas para

55

chefes, gerentes, etc. Em vez disso, todos os ambientes podem ser utilizados por qualquer funcionário, criando uma liberdade para que se escolha entre a sala ou local de trabalho que favoreça a sua atividade.

Segundo o arquiteto, cerca de 95% das estações de trabalho contam com o uso de notebooks fornecidos pela empresa para o trabalho individual, com excessão das áreas de recepção, onde há computadores de mesa, com espaço para CPU.

Portanto, os ambientes de trabalho são divididos entre: (1) Área de Staff; (2) Salas de reunião; (3) Auditório para Eventos Formais; (4) Phone Booths; (5) Outbacks (6) Hotdesk, (7) Co-criação e (8) Sala Brain.

4.1.2.1 Área de Staff

Fig. 43. Planta da Área de Staff

Fonte: Projeto disponibilizado pela Capoano Arquitetura

A área de Staff é onde se concentra o maior número de funcionários. O espaço como um todo permite diferentes formas de trabalho ao dispor a circulação para atividades de curto período, tais como mesas altas com banquetas, phone booths e sofás com “mesa talk”, que permite apoio de caderno ou notebook. As estações de trabalho para longas horas com capacidade para um maior número de pessoas ocupam a maior parte do espaço, situando-se entre divisórias fixas.

A disposição de mesas em série entre divisórias estimula a interação da equipe através da proximidade entre mesas e pela versatilidade das divisórias que também podem ser utilizadas como lousas. Com relação aos sistemas, cada mesa possui uma calha central para levar energia aos computadores, e assim organizá-las em série, criando um conjunto de estações fixas de trabalho. Durante o período de isolamento social da pandemia a maioria

56

das estações de trabalho foi equipada com uma tela de TV para a ponta dessas mesas aproveitando-se do sistema da calha central para possibilitar reuniões entre equipes remotas e presenciais.

Na lateral mais próxima às janelas as estações de trabalho entre divisórias possuem também um fechamento frontal com vidro jateado, trazendo maior privacidade às equipes. Além disso, também há poltronas com “mesa talk” que permitem uma dinâmica mais próxima para troca de informações entre duplas – Segundo o arquiteto, essas poltronas também são muito utilizadas quando o funcionário recebe uma ligação rápida e precisa se distanciar sem necessidade de entrar no phone booth.

Como a empresa possui 350 funcionários e não há uma mesa fixa por pessoa, todas essas estações de trabalho se conectam ao sistema da empresa através de um QR Code. Portanto, cada funcionário que ocupa uma dessas estações de trabalho deve escanear o código permitindo que a empresa e os funcionários possam visualizar as estações de trabalho disponíveis, otimizando a organização interna e o tempo ao escolher um assento.

Fig. 44 Poltronas com mesa talk junto às estações de trabalho

Fig. 45 Estação de trabalho com TV para reuniões entre equipes.

Fonte das figuras 44, 45 e 46: Visita de Campo

Fig. 46. QR Code das mesas

Já na circulação, as mesas altas com banquetas e os sofás com “mesa talk” ajudam a tornar o trabalho mais dinâmico uma vez que são mobiliários com ergonomia diferente da convencional, destacando-se entre as demais estações de trabalho.

Os phone booths, também localizadas nas circulações, permitem que o funcionário possa ocupar um espaço mais resguardado para reuniões virtuais ou ligações. Isso possibilita que o funcionário se distancie da equipe quando houver necessidade de um atendimento ao cliente ou para resolução de um assunto pessoal, sem que a equipe ao redor se desconcentre pelo barulho.

57

Os suprimentos necessários para as atividades também são dispostos de forma centralizada, na circulação, em um conjunto denominado “Smart Supplies”, que concentra uma impressora, papéis, canetas de lousa, materiais de escritório, lixo com gabinete lacrado para proteção de dados, e máquinas como Vending Machines que fornecem café, bebidas, salgadinhos, doces e lanches naturais

Fig. 47 Vista da circulação: sofá com mesa talk, mesa alta com banquetas e phone booth

Fonte das imagens 47 e 48: Visita de Campo

Fig. 48 Vista interna do Phone Booth

Um dos destaques na empresa é a presença de um escorregador na Área de Staff, que conecta o pavimento superior até o térreo. Segundo o arquiteto, este escorregador é bastante utilizado pelos funcionários como uma opção diferenciada e criativa de deslocamento entre pavimentos. Ainda assim, o arquiteto destaca que houve uma série de cálculos por trás de seu projeto e dimensionamento para evitar qualquer tipo de acidente no trabalho.

Fig. 49 Smart Supplies

Fonte: Visita de Campo

Fig. 50 Escorregador na Área de Staff

Fonte: Visita de Campo

58

4.1.2.2 Salas de Reunião

As salas de reunião se destacam dos outros ambientes por sua versatilidade ao permitir diferentes possibilidades de reunião a partir das divisórias retráteis com vedação acústica e tela para lousa. Além de aumentar e diminuir o espaço, as divisórias são independentes de trilhos no piso e se encaixam vedando as frestas entre si, em um sistema que possibilita que duas reuniões independentes aconteçam ao mesmo tempo em ambos os espaços.

Embora o fechamento em vidro já favoreça as reuniões principalmente em relação ao ruído externo favoreça as reuniões, essas salas são transparentes em vidro fixo por pelo menos uma de suas faces. Na sala mais exposta, que fica adjacente à entrada do edifício, optou-se por utilizar um adesivo vermelho sobre o vidro para diminuir a visibilidade de quem adentra ao edifício.

Fig. 53 Demonstração do arquiteto sobre o fácil manuseio da divisória camarão

Fonte: Visita de Campo

Fig. 54 Vista da Recepção para a Sala de Reuniões

Fonte: Visita de Campo

59
Fig. 51. Planta da Sala de Reunião Fonte: Projeto disponibilizado pela Capoano Arquitetura Fig. 52. Foto da Sala de Reunião com as divisórias abertas Fonte: Visita de Campo

Vale ressaltar que estes espaços acontecem próximo à entrada do edifício, de modo a facilitar o acesso do cliente para a sala, e com isso ajudar a proteger os dados que circulam por dentro da empresa, minimizando a circulação dos clientes pelas áreas de trabalho onde há informações confidenciais em papéis, lousas, e nas conversas entre funcionários.

Originalmente no projeto, o ambiente das duas salas de reunião foi projetado com uma TV por ambiente, porém, observou-se que a sala possui duas telas de TV conjugadas para atender às necessidades da empresa para as reuniões.

Segundo o arquiteto, este espaço também é bastante utilizado como Coffee Break pelos funcionários de alto escalão, cujo valor/hora é mais elevado, otimizando o tempo dos intervalos de almoço.

4.1.2.3 Auditório para Eventos Formais

Fig. 55 Planta Auditório para eventos formais

Fonte: Projeto disponibilizado pela Capoano Arquitetura

Fig. 56 Vista do interna do Auditório

Fonte: Visita de Campo

60

O auditório, conhecido também por Arena Verne se destaca dos outros ambientes por ser um espaço totalmente versátil, tanto em termos de layout quanto em dimensões, já que suas divisórias permitem integrar-se com a Área de Staff. Segundo o arquiteto, o espaço possui capacidade para 160 pessoas e pode ser utilizado para fazer transmissões, grandes eventos, palestras, e comunicação com a empresa

O ambiente se localiza numa posição de fácil acesso que evita a circulação dos convidados por dentro das áreas de trabalho do edifício, contribuindo para o sigilo dos projetos em desenvolvimento. Internamente ao espaço, atrás do palco há dois ambientes de apoio: uma pequena copa para preparo das comidas servidas no evento sem que haja necessidade de o público se deslocar até a lanchonete da empresa; e um depósito onde é possível guardar as mesas, cadeiras e outros itens não utilizados para o evento. Além disso, o palco conta com uma rampa de acesso construída em madeira que pode ser guardada neste depósito e utilizada para permitir acessibilidade ao palco somente quando necessário.

Quanto à versatilidade do espaço, todas as cadeiras são leves e as mesas possuem rodinhas para permitir o deslocamento e a alteração do layout para a posição que melhor atenda ao evento. Também há poltronas com “mesa talk” que trazem ao evento uma possibilidade mais aconchegante aos convidados, tornando o espaço mais descontraído. Ao fundo da sala, o único mobiliário fixo ao piso é uma grande mesa para a equipe de controle da infraestrutura dos eventos com a parte técnica, para manuseio luzes, imagens na tela projetada, som, e máquina de fumaça.

Fig 57 Mesa de transmissão e painel neon

Fonte: Visita de Campo

Fig. 58. Auditório com divisórias abertas, integrado à Área de Staff

Fonte: CAPOANO, 2022.

O piso vinílico, painéis amadeirados, forros acústicos no teto e mobiliários em tecido ajudam a proporcionar um condicionamento acústico favorável ao ambiente, e as

61

divisórias retráteis permitem uma vedação entre as frestas ao se encaixarem, proporcionando isolamento acústico entre o ambiente interno e externo ao auditório.

Por ser um espaço de eventos formais, o ambiente conta com uma série de símbolos que remetem à empresa e seu caráter criativo: no nome da sala, o título de “Arena Verne” que remete ao escritor de ficção científica; no palco, um letreiro da CI&T; e na parede um painel em luz neon que remete a um dos desenhos da empresa. Toda essa ambientação ajuda a criar um espaço que induz à fotografia, aumentando a popularidade da empresa através de publicações em redes sociais.

4.1.2.4 Phone Booths

Phone Booths são cabines para uso individual, fechadas em vidro, que permitem a reuniões online, ligações e resolução de assuntos que requerem comunicação virtual com privacidade. Além de fornecer um bom isolamento acústico, também são uma alternativa importante para evitar a distração de outros colegas de trabalho que estariam ao redor. Existem dois tipos de Phone Booth na CI&T, sendo distintos nessa análise entre Tipo 1 e Tipo 2.

Fig. 59 Planta Phone Booth Tipo 1: sob encomenda

Fig. 60 Planta Phone Booth Tipo 2: incorporado ao projeto Fonte: Projeto disponibilizado pela Capoano Arquitetura

O Phone Booth Tipo 1 é um modelo que pode ser encomendado sob medida para dispor em qualquer lugar do espaço de trabalho, tendo todas as suas instalações (iluminação e exaustão) independentes do projeto arquitetônico. Esse caso possui uma mesa alta com banqueta, uma lousa incorporada no revestimento interno e fica envolto por quatro faces com condicionamento acústico sendo duas de revestimento acústico e duas em vidro.

62

O Phone Booth Tipo 2 é um modelo incorporado ao projeto de arquitetura, em que a previsão de iluminação e exaustão acontece no edifício construído. Possui uma mesa com cadeira envolvida por quatro faces com tratamento acústico sendo três paredes com revestimento acústico e uma porta camarão de vidro.

Nos dois casos, todos os complementos tais como piso, teto, e vedação entre esquadrias fornecem isolamento e condicionamento acústico adequado para a atividade. Por se tratar de um ambiente individual, o acionamento do interruptor do phone booth acontece por dentro do próprio ambiente.

Fig. 61. Vista do Phone Booth Tipo 1: Mesa alta com banqueta

Fonte: Visita de Campo

4.1.2.5 Outbacks

Fig. 63 Planta dos Outbacks

Fonte: Projeto disponibilizado pela Capoano Arquitetura

Fig. 62. Vista do Phone Booth Tipo 2: mesa com cadeira

Fonte: CAPOANO, 2022

Fig. 64 Vista dos Outbacks com a porta fechada e aberta

Fonte: CAPOANO, 2022

63

Assim como os Phone Booths, os Outbacks são cabines com possibilidade de fechamento envidraçado para reuniões com certa privacidade, com fechamentos que minimizam a entrada de ruídos externos. O espaço conta com uma mesa central, dois assentos laterais incorporados na divisória e uma lousa na parede ao fundo, permitindo uma reunião de até seis pessoas

Para a concepção deste espaço, optou-se por deixar a circulação somente pelo lado de fora, minimizando a área ocupada por este equipamento. Como os assentos ficam a cerca de 20cm das portas, a ergonomia ao acessar o espaço só permite que o usuário entre meio reclinado para se sentar. Após sentado, ele só consegue manusear a porta para fechá-la estando de lado, e não de frente, o que também fica dificultado pelo fato de ser uma “porta camarão”.

Vale acrescentar que embora a proposta da lousa no ambiente transmita uma imagem de trabalho colaborativo, ela só pode ser utilizada pelas pessoas que estiverem sentadas exatamente ao lado da parede ao fundo da sala, com a dificuldade não poderem se levantar para escrever, o que também depende do movimento se for canhoto ou destro.

Analisando este espaço comparativamente entre os estudos antropométricos de Panero e Zelnik (2002), o que mais se aproxima dessa configuração é o de mesas de reunião com apresentação audiovisual, em que as pessoas se dispõem sentadas a uma mesa, lateralmente em relação ao objeto de observação Além disso, a relação em planta da zona de trabalho sobre uma bancada de cozinha também ajuda a ilustrar sobre a curvatura e a amplitude dos braços para a execução de tarefas.

Fig. 65 Análise antropométrica da mesa de reuniões

Fonte: PANERO e ZELNIK, 2002. Pág. 194.

Fig. 66 Zona de trabalho em uma bancada de cozinha

Fonte: PANERO e ZELNIK, 2002. Pág. 159.

64

Com relação à observação do objeto para um trabalho colaborativo, não haveria problema para enxergar a lousa do ponto de vista de quem está sentado exatamente ao lado, porém para que a segunda pessoa enxergue confortavelmente, o centro de sua linha de visão já fica mais distante de onde o usuário anterior alcança para escrever confortavelmente.

Nesse sentido, a imagem ao lado esquematiza o quanto o usuário ao lado da lousa conseguiria alcançar para escrever confortavelmente. A mancha em vermelho demonstra o quanto da lousa que se pode alcançar ao escrever com a mão mais próxima à superfície (ex: destro sentado à direita), e a mancha em amarelo para quem escreve com mão oposta à superfície (ex: canhoto sentado à direita). Portanto, embora a lousa seja bastante ampla e alta, somente a parte mais baixa acaba sendo utilizada para escrita.

Com relação à acessibilidade no espaço, nota-se que há uma certa dificuldade para que um cadeirante possa usar este equipamento, levando em consideração que ele precisaria de auxílio para sair de sua cadeira e acomodar-se no assento fixo do Outback.

Uma sugestão simples para atender a essas questões ergonômicas seria a troca por equipamentos móveis dentro deste espaço, tais como mesa de rodinha e cadeiras leves, permitindo a mesma mobilidade das outras salas de trabalho.

Fig. 67 Esquema simplificado sobre foto do Outback.

Fonte: Visita de Campo

Assim, é possível que o cadeirante se encaixe no ambiente sem a necessidade de troca de assentos e a mesa com rodinhas permite afastar-se da parede, possibilitando que o usuário possa se levantar e ficar de frente com a lousa para escrever sobre todo o quadro confortavelmente

65

4.1.2.6 Hotdesk

Fig. 68 Planta Hotdesks

Fonte: Projeto disponibilizado pela Capoano Arquitetura

Fig. 69 Vista da Hotdesk

Fonte: Visita de Campo

Fig. 70 Vista da Smart Supplies que atende à Hotdesk

Fonte: Visita de Campo

No ambiente de circulação que antecede o espaço interno da área de Staff, há uma grande mesa em formato de “&” que fornece apoio às áreas intermediárias entre trabalho, passagem, refeição e eventos O ambiente se configura entre uma estante (logo à frente dos sanitários, como uma proteção visual) e as cabines de Outbacks, juntamente à circulação que leva às demais áreas de trabalho do edifício que passam a ser de acesso controlado.

Segundo o arquiteto, a mesa permite que qualquer funcionário possa fazer uma ligação rápida ou um serviço importante durante o seu horário de almoço, podendo usufruir dos materiais da estante de Smart Supplies Por se tratar de um espaço intermediário, este local também configura um encontro entre funcionários de diferentes setores, permitindo reuniões informais entre os colegas.

4.1.2.7 Co-criação

As salas de Co-criação são espaços parecidos com as salas de reunião, diferenciando-se pelo uso exclusivo de funcionários da empresa. Este

Fig. 71 Planta Salas de Co-criação

Fonte: Projeto disponibilizado pela Capoano Arquitetura

66

espaço possui flexibilidade para redimensionar-se conforme a demanda e número de participantes da reunião através de divisórias camarão que integram ou dividem o ambiente possibilitando um espaço até 4 vezes maior.

Todas as superfícies das paredes, incluindo a divisória camarão configuram lousas que podem ser rabiscadas para a discussão de ideias Por isso, para proporcionar sigilo aos projetos e privacidade nas conversas, a sala possui fechamento em vidro leitoso, garantindo que não há possibilidade de enxergar quem está dentro da sala ou o que está sendo escrito nos painéis.

Por isso, este ambiente conta com um sistema automatizado de Internet das Coisas (IoT) em que um sensor de movimento desenvolvido pela CI&T manda informações sobre a disponibilidade da sala para uso em reuniões. Assim, ao acessar a sala é possível verificar pelo tablet ao lado da porta se o ambiente está em uso ou reservado para as próximas horas Com relação à forma de trabalho, o espaço conta com mesas 6 individuais sobre rodinhas com cadeiras leves que permitem maior flexibilidade no layout. Também há poltronas com pufes para apoio dos pés e mesas de apoio lateral do tipo “mesa talk”, possibilitando uma dinâmica diferente de ergonomia.

Fig. 72 Dispositivo Sensor de Movimento

Fig. 73 Tablet adjacente à porta para consulta da disponibilidade da sala

Fonte das figuras 72, 73 e 74: Visita de Campo

4.1.2.8 Sala Brain

A sala Brain se localiza no mezanino da área de Staff, e é utilizada como espaço para gravações de vídeos, podcasts, e transmissões ao vivo sendo utilizado pelos próprios funcionários como um canal de comunicação. A aparência se assemelha à de um noticiário

67
Fig. 74 Vista da sala com a divisória aberta.

uma vez que as gravações demonstram um balcão no ponto mais alto da empresa, com os ambientes de trabalho funcionando ao fundo no piso térreo

Nesse sentido, o espaço dessa sala conta com infraestrutura para jogo de luzes, e uma série de equipamentos que auxiliam à gravação disponibilizados pela própria CI&T Além disso, o espaço conta com condicionamento acústico no piso, no teto e em todos os materiais internos, incluindo os fechamentos laterais em vidros duplos que garantem proteção acústica

4.1.3 Apoio e bem estar

Em termos de saúde mental, a proposta de um programa de necessidades com ambientes que auxiliam a saúde do funcionário colabora para a empresa tornando-o mais produtivo e criativo em suas atividades. Além disso, a decoração dos espaços também contribui para que o trabalhador se sinta parte componente da empresa, como equipe.

4.1.3.1 Look & Feel

Embora a aparência dos sistemas de iluminação, ar condicionado, câmeras de segurança, instalações de incêndio (entre outros) transmita a característica de um ambiente industrial envolto por paredes de concreto, toda a decoração e o mobiliário complementa os espaços misturando biofilia a partir de folhagens e elementos naturais tais como madeira, couro, etc

A identidade visual da empresa também expressa a imagem de exploradores do espaço e descobridores a partir da arquitetura, incorporando os desenhos da própria marca a painéis em neon, murais com desenhos de astronautas, e salas de reunião cujo nome remete a

68
Fig. 75 Vista externa da Sala Brain Fonte: Visita de Campo Fig. 76 Sala Brain Fonte: Visita de Campo

planetas e pessoas renomadas. Segundo o arquiteto, essa é uma forma de despertar um espírito criativo de incentivar a exploração de novos caminhos da tecnologia.

A empresa também possui diversas paredes pintadas por artistas brasileiros com desenhos coloridos que remetem a elementos da paisagem e da arte brasileira, como forma de tornar o ambiente de trabalho mais colorido, criativo, e acolhedor, aproximando o profissional a obras de arte.

Segundo o arquiteto, outra conduta adotada pela empresa para trazer a noção de pertencimento, agregando um vínculo simbólico com o funcionário foi uma oficina de dobradura que permitiu que cada colaborador fizesse um origami de “Tsuru” que veio a ser utilizado como parte componente da decoração em uma das escadas de acesso à recepção da empresa.

Fig. 77 Biofilia no espaço de trabalho.

Fig. 78 Painel de Neon.

Fonte das imagens 1, 2, 3 e 4: Visita de Campo

4.1.3.2 Ambientes de apoio

Fig. 79 Mural de arte. Obra do grupo Minas de Minas.

Fig. 80 Origamis pendurados no teto da escada.

A empresa da CI&T também se destaca pela valorização do bem-estar do funcionário ao dispor espaços voltados para a qualidade de vida, que não se restringem somente a instalações essenciais, mas que permitem que o funcionário se sinta confortável e amparado para cuidar de suas necessidades pessoais em pequenos intervalos, no momento que desejar.

69

Além destes espaços essenciais tais como cozinha e refeitório para os funcionários, os ambientes que se destacam são: (1) estúdio de música, (2) espaço wellness, (3) mommy room; (4) massagem; (5) área de contemplação; (6) sala de jogos e (7) banheiro sem gênero.

4.1.3.2.1 Estúdio de Música

Segundo Capoano (2019), um dos ambientes mais requisitados pelos funcionários para a CI&T foi o Estúdio de Música, onde é possível diversos instrumentos, assistir ensaios pela arquibancada, etc.

Todas as superfícies das paredes, piso, teto e arquibancada contam com elementos que ajudam a condicionar e isolar os ruídos desse ambiente para evitar a propagação do som até as áreas de trabalho. Ainda assim o arquiteto comenta que é possível o som dessa sala pelas estações de trabalho

Fig. 81 Estúdio de Música

Fonte: Visita de Campo

Fig. 82. Estúdio de Música Fonte: Visita de Campo 4.1.3.2.2

Espaço Wellness

O espaço Wellness é um local de uso exclusivo para atividades físicas tais como alongamento, meditação, pilates, abdominais, etc, com objetivo de estimular hábitos saudáveis ao funcionário. Em vez de ser utilizado como sala de aula, o espaço tem como função ser uma das possibilidades dentro da empresa que estimulam qualidade de vida. O ambiente possui uma decoração simples e uma dimensão suficiente para essas atividades esporádicas.

Fig. 83. Espaço Wellness

Fonte: Visita de Campo

70

4.1.3.2.3

Mommy Room

O espaço Mommy Room é um ambiente voltado para auxiliar às mães em período de aleitamento com um local com privacidade e aconchego para que possa amamentar ou retirar o leite para seus filhos.

As cores mais sérias na parede junto com a iluminação difusa ajudam a criar um ambiente mais aconchegante. Além disso, o espaço também conta com uma pequena geladeira que serve como um auxílio para a mãe que necessite manter o leite dentro da geladeira enquanto estiver trabalhando

Segundo o arquiteto, os funcionários identificaram nesse local a demanda por uma pia para possibilitar a higienização pessoal após o uso do espaço.

4.1.3.2.4 Sala de Massagem

Este ambiente se configura como uma poltrona de massagem envolta por quatro paredes escuras, em que é possível enxergar pontos de luz no teto em fibra ótica como uma mimetização de estrelas no céu.

A intensão é que o funcionário consiga se desconectar por alguns minutos, imerso em um ambiente com características noturnas, que transmite tranquilidade

Fig. 86. Sala de Massagem

Fonte: Visita de Campo

71
Fig. 84. Mommy Room Fonte: Visita de Campo Fig. 85. Poltrona para aleitamento na Mommy Room Fonte: Visita de Campo

4.1.3.2.5 Área de Contemplação

Ao contrário dos conceitos relacionados ao nome dos espaços de Descompressão, que sugere que o ambiente de trabalho “gera pressão”, a empresa procurou denominar este espaço como área de contemplação, em que o funcionário pode desfrutar de um espaço calmo onde não há necessidade de trabalho, apenas para relaxar e esvaziar a mente, observando a paisagem.

Este ambiente possui elementos que remetem à biofilia, tais como grama sintética, parede verde (com folhagens) e piso vinílico com tons amadeirados. Além disso, o mobiliário também se destaca por proporcionar conforto entre redes, poltronas com formato arredondado que permite uma pequena privacidade e um sofá, todos voltados para a paisagem, permitindo a observação da natureza. Além disso, também há quadros na parede e frases que remetem a mensagens de bem-estar, ajudando o funcionário a se sentir à vontade para relaxar nesse espaço

Fig. 87. Espaço de contemplação

Fonte: Visita de Campo

4.1.3.2.6

Sala de Jogos

Fig. 88. Espaço de contemplação

Fonte: Visita de Campo

A sala de jogos é outro dos espaços que se categorizam área de descompressão, porém em vez do silêncio, este local preza pela diversão, com uma mesa de sinuca, uma mesa de “Air Hockey”, uma TV com videogames e um equipamento de arcade (fliperama).

Segundo o arquiteto, este ambiente conta com uma divisória reforçada com vidro duplo para evitar a disseminação de ruídos pelas áreas de staff.

72

Fig. 89. Sala de Jogos Fonte: Visita de Campo

Fig. 90. Sala de Jogos Fonte: Visita de Campo

4.1.3.2.7

Banheiro sem Gênero

Como a empresa possui características inclusivas, de respeito a questões interpessoais e acolhimento de novas ideias, o banheiro sem gênero é uma opção interessante para as pessoas que não se sentem à vontade para utilizar o banheiro comum, masculino ou feminino.

Apesar de não ser um ambiente voltado exclusivamente para o relaxamento ou a desconexão do ambiente de trabalho, este banheiro se difere de outros apenas pelas divisórias das cabines, que se estendem como portas até o piso para garantir maior privacidade ao usuário.

Segundo o arquiteto, este banheiro é bastante utilizado inclusive por funcionários que se sentem confortáveis em outros banheiros, como forma de demonstrar acolhimento à causa LGBT.

Fig. 91. Banheiro sem gênero Fonte: Visita de Campo

Fig. 92. Banheiro sem gênero Fonte: Visita de Campo

73

4.1.4 Conforto Térmico e Luminoso

Com relação à renovação do ar dentro dos espaços, ventilação e manuseio de instalações físicas para garantia de conforto térmico por meios naturais de ventilação, notouse que a climatização do edifício acontece por sistemas centralizados de ar condicionado em todos os espaços.

O projeto do galpão conta originalmente com uma série de aberturas e sheds para iluminação natural, com vidros fixos. As demais janelas possuem brises de concreto ou beirais grandes que permitem o sombreamento das janelas, porém sem possibilidade de abertura para ventilação natural nos espaços.

Observando os sheds de dentro do edifício, a iluminação natural se associa com a artificial que possui temperatura de cor neutra, 4000K, assim como em todos os outros ambientes da empresa. Desse modo, qualquer espaço que o funcionário escolha para exercer o seu trabalho deve proporcionar a mesma característica de iluminação.

No pavimento superior, as estações de trabalho se aproximam da iluminação dos sheds, possibilitando uma menor quantidade de pontos de luz artificial, garantindo uma qualidade de iluminação similar à do pavimento térreo.

Fonte: CAPOANO, 2020b

Fig. 94. Iluminação natural vista do Térreo

Fonte: Visita de Campo

Fig. 95 Iluminação natural vista do Pavimento Superior Fonte: Visita de Campo

Tendo em vista que o ambiente não possui aberturas para ventilação natural, alguns equipamentos, tais como exaustores na lanchonete ficam ligados continuamente das 8h às 18h para permitir a limpeza e purificação do ar, evitando que o cheiro da lanchonete se

74
Fig. 93 Vista aérea Edifício CI&T Globaltech, Campinas.

espalhe pelos ambientes de trabalho. Além destes, alguns exaustores são instalados no teto das salas fechadas para permitir as trocas de ar.

Fig. 96 Exaustores da Lanchonete

Fonte: Visita de Campo

Fig. 97. Exaustores de Outbacks

Fonte: Visita de Campo

Fig. 98 Exaustores da sala de Staff

Fonte: Visita de Campo

75

4.2 VEOLIA, Matriz em São Paulo.

4.2.1 Número de Funcionários e Formas de trabalho

A nova sede da Veolia Brasil teve seu espaço escolhido propositalmente no térreo de de um edifício empresarial situado no bairro da Vila Leopoldina, em São Paulo, no intuito de integrar o espaço interno de trabalho à natureza externa do jardim pelas janelas. Toda a arquitetura interna foi projetada pela Pitá Arquitetura para garantir o trabalho colaborativo através da integração dos espaços e da troca de experiências e informações (PEREIRA, 2020)

Segundo Fava (Anexo A), o projeto atende a necessidade dos funcionários que trabalham em regime presencial, remoto e híbrido, com espaços que permitem reuniões rápidas ou mais extensas. Segundo ele, cada colaborador possui um notebook, portanto é possível identificar estações de trabalho com variadas ergonomias que podem ser escolhidas pelo próprio funcionário para o uso, em acordo com o gestor da área

4.2.2 Espaços de Trabalho

O ambiente de trabalho da Veolia foi planejado para integrar as equipes com um trabalho mais colaborativo seguindo o formato “Open Space” que se organiza pelo seu mobiliário em vez da setorização de espaços (VEOLIA, 2021 a) Essa comunicação e a troca de informações estimula um ambiente de trabalho com uma atmosfera mais informal, elevando a produtividade dos times e reduzindo a hierarquização (FRISOKAR, 2021)

As pessoas trabalham de maneiras diferentes, seu encontro deve ser valorizado e explorado das mais diversas formas. Para isto, o formato das reuniões são os mais plurais possíveis, possibilitando a sinergia de todos pois, sabemos que cada sala precisa ser um espaço pensado para um tipo de reunião, desde os formatos maiores para grandes grupos, até formatos menores para um feedback mais íntimo.

-Pitá Arquitetura. Escrito por Pereira, G (2020)

O espaço se organiza entre estações multifuncionais que atendem aos funcionários do regime presencial e híbrido, oferecendo suporte aos que esporadicamente fazem visitas ao canteiro de obras, e trazendo diferentes formas de comunicação entre colaboradores de outras sedes da Veolia.

76

Nesse sentido, os ambientes de trabalho são divididos entre: (1) Salas de Reunião; (2) Hubgrade e Salas de Controle; (3) Área de Staff; (4) Reuniões Esporádicas; (5) Phone Booths e (6) Coffice.

4.2.2.1 Salas de Reunião

As salas de reunião com clientes são versáteis em seu layout. Além de permitir a reestruturação do espaço conforme abertura ou fechamento das divisórias para acomodar um número adequado de clientes o espaço também oferece mobilidade pelas suas mesas e cadeiras que possuem rodinhas facilitando a adaptação do layout conforme a demanda da reunião.

Quanto às instalações, as divisórias não possuem trilhos no piso, sendo sustentadas somente pelo trilho no teto, e se recolhem lateralmente como portas camarão; o vidro possui uma faixa em acabamento jateado para permitir uma maior privacidade; as janelas são fixas; e a parede não possui lousa.

Fig. 99. Planta Salas de Reunião

Fonte: ArchDaily, por Pereira, 2020

Fig. 100. Salas de reunião com divisória aberta Fonte: PITÁ, 2020

Além do uso da TV, as salas também permitem a projeção de imagens sobre uma tela retrátil que fica embutida no forro, permitindo escolher entre a condição que melhor se adapte à apresentação de informações ao cliente

Fig. 101 Tela retrátil embutida.

Fonte: PITÁ, 2020

77

4.2.2.2 Hubgrade

Segundo Veolia (2021 b), o Hubgrade é um centro de monitoramento inteligente, em tempo real, para a otimização da gestão de energia, água e resíduos para cidades e indústrias O espaço conta com diversas ferramentas para análise, monitoramento e conexão entre sistemas permitindo uma combinação entre inteligência artificial e competência humana para o monitoramento e eficiência dos sistemas alinhados às metas do meio ambiente.

Este local é conectado virtualmente a outras 30 salas deste mesmo caráter ao redor do mundo para possibilitar análises comparativas entre os dados das outras soluções aplicadas com sucesso, como um benchmarking global (VEOLIA, 2021 b).

Estas parcerias demonstram a versatilidade do Hubgrade e seu potencial para atender às diversas expectativas de performance e redução da pegada ambiental. Ele é um exemplo de como enfrentamos os desafios do século XXI e colaboramos com a eficiência de nossos clientes.

PRÁDANOS, Pedro. Escrito por Veolia (2021 b)

Fig. 102 Planta Sala Hubgrade

Fonte: ArchDaily, por Pereira, 2020

Fig. 103 Sala Hubgrade

Fonte: GESAB, 2022

O ambiente foi projetado com intuito de aliar a tecnologia à ergonomia dos mobiliários e infraestrutura de sistemas audiovisuais para reuniões online (GESAB, 2022)

Como este trabalho se trata de um monitoramento que deve ser feito 24h por dia, as cadeiras contam com uma ergonomia adequada para longas horas de trabalho e as mesas se organizam de modo a facilitar a visibilidade para as telas principais auxiliando no conforto do funcionário (GESAB, 2022)

78

Aos fundos deste espaço, o ambiente também conta com uma sala de controle e uma sala de reuniões, ambas mais restritivas e focadas nos assuntos relacionados às informações do Hubgrade. Segundo Gesab (2022), as mesas projetadas com a identidade visual da empresa possuem ergonomia desenvolvida especificamente para se adaptar a essas longas horas de trabalho.

Fig. 104. Sala de Controle Fonte: GESAB, 2022

4.2.2.3 Área de Staff

Fig. 105. Sala de Reuniões (Hubgrade) Fonte: GESAB, 2022

A organização das estações de trabalho na área de Staff se configura de um modo parecido com o modelo de escritório Panorâmico, que possui organização menos monótona proporcionando a comunicação rápida entre funcionários (MORAIS, 2019)

Fig. 106. Planta Área de Staff Fonte: ArchDaily, por Pereira, 2020

Fig. 107. Área de Staff Fonte: PITÁ, 2020

79

As estações de trabalho da área de staff variam entre (1) mesas em série com divisória, representadas em laranja; (2) mesas contínuas, representadas em verde; (3) mesa redonda, em roxo; e (4) espaços de estar com uma lousa e assentos confortáveis, tais como pufes ou poltronas para diálogo com os colegas de uma maneira mais próxima.

4.2.2.3.1 Mesas em série com divisória

Com relação às estações de trabalho, as mesas se dispõem em séries de até 16 lugares, centralizando e facilitando os sistemas de elétrica que alimentam as mesas. As mesas destacadas em laranja na planta possuem em cada estação de trabalho um conjunto de computador com monitor, teclado e CPU. Embora essas instalações sugiram um ambiente com estações fixas, o funcionário da Veolia, Fava (Anexo A), comenta que cada funcionário tem liberdade para escolher seu posto de trabalho, com um notebook para uso individual.

Nessas mesas é possível identificar uma divisória a cada duas estações de trabalho, atrás do monitor, auxiliando a não misturar pertences ou bagunçar entre os fios da rede elétrica. Em vez de ser contínua até o limite da mesa, essas pequenas divisórias permitem uma abertura lateral entre os dois lados para facilitar a comunicação entre funcionários.

4.2.2.3.2

Mesas contínuas

As mesas contínuas possuem espaço suficiente para abrir grandes projetos em papel sem a interrupção por uma barreira física. Além disso, os espaços ao centro da mesa por onde passam as instalações elétricas permitem a conexão de aparelhos à rede de energia, possibilitando o trabalho por notebooks, tablets ou equipamentos necessários para o trabalho.

80
Fig. 108 Área de Staff Fonte: PITÁ, 2020 Fig. 109 Área de Staff Fonte: PITÁ, 2020

Desse modo, entende-se este espaço como local com infraestrutura apropriada para os funcionários que trabalham sob o regime híbrido, ou utilizam notebook para a praticidade da escolha de seu local de trabalho, levando em consideração que a Veolia também possui serviços realizados em campo.

4.2.2.3.3

Mesa redonda

Fig. 110 Mesas contínuas sem divisória

Fonte: ArchDaily, por Pereira, 2020.

Embora não seja muito grande, a mesa redonda disposta na área de Staff possibilita uma conversa mais próxima entre até 4 colegas de trabalho, incentivando a comunicação para um trabalho mais colaborativo.

Ao contrário das outras mesas, este mobiliário não possui infraestrutura para uso de tomadas, portanto entendese que este espaço é mais utilizado para conversas com auxílio de papeis do que com uso de notebooks ou tablets

4.2.2.3.4

Estar com lousa e assentos confortáveis

Os espaços de estar com lousa e assentos confortáveis acontecem em três pontos da área de staff, sendo um com poltronas e os outros com pufes, proporcionando diferentes opções de ergonomia para uma conversa entre colegas, com o auxílio da lousa.

Além dos diferentes assentos, a iluminação destes espaços também varia de modo que dois desses ambientes se localizam mais próximos às janelas e um deles se mistura entre as mesas de trabalho.

Fig. 111 Mesa redonda Fonte: ArchDaily, por Pereira, 2020

Fig. 112. Estar com lousa e poltronas Fonte: ArchDaily, por Pereira, 2020.

Embora a localização em planta esteja posicionada em pontos estratégicos, a lousa possui suporte sobre rodinhas, e as poltronas e pufes podem ser movimentados sem dificuldade, possibilitando uma adaptação ao layout que for necessário para a conversa entre funcionários

81

4.2.2.4 Reuniões Esporádicas

Os espaços de reuniões esporádicas acontecem no entorno das áreas de Staff, nas áreas demarcadas como centro do projeto. A circulação destaca estes ambientes ao interromper o revestimento do piso, que em vez de seguir como carpete se destaca em um piso com tom amadeirado.

Estes espaços foram projetados para garantir flexibilidade e agilidade em conversas, de modo a acomodar três funcionários, sendo um com acesso a um computador de mesa, e outros dois auxiliares que poderiam ser de qualquer setor

Como diferencial, estes ambientes possuem divisórias pivotantes, que podem ser ajustadas para uma conversa mais restrita, à critério do usuário, e uma lousa branca ao fundo que pode ser utilizada para discussão de ideias. Alguns destes espaços também contam com um TV ao lado oferecendo suporte às reuniões esporádicas

Fig. 113 Espaço de reuniões esporádicas

Fonte: ArchDaily, por Pereira, 2020

Fig. 114. Espaço de reuniões esporádicas.

Fonte: PITÁ, 2020

4.2.2.5 Phone Booth

Fig. 115. Espaço de reuniões esporádicas.

Fonte: Frisokar, 2021

Na Veolia, os Phone Booths também têm o intuito de dar suporte ao funcionário que precisa fazer uma ligação ou videochamada, com portas que permitem visibilidade, mas proporcionam isolamento acústico Os modelos destacados em planta demonstram diferentes ergonomias.

82

Fig. 116. Planta Phone Booth (em destaque)

Fonte: ArchDaily, por Pereira, 2020

Fig. 117. Phone Booth. Fonte: PITÁ, 2020

Partindo da esquerda para a direita entre os espaços destacados, o primeiro phone booth acontece em um espaço mais compacto, em que a própria mesa se encaixa no ângulo entre as paredes, com uma área reduzida e suficiente para o apoio de um notebook ou caderno, apenas com a opção de um pequeno banco para se sentar. Levando em consideração que o espaço pode ser utilizado de forma rápida para suprir uma necessidade de ligação, este primeiro caso supre a necessidade de um atendimento rápido, mesmo não sendo a opção mais confortável do ponto de vista ergonômico.

O segundo phone booth apresenta uma dinâmica um pouco mais generosa no sentido de que a mesa possui uma área maior e o espaço permite a escolha de assentos entre um banco ou uma cadeira, possibilitando um maior conforto para reuniões virtuais ou atendimentos que demandam mais tempo de chamada

O terceiro e o quarto espaços de phone booth possuem a mesma dinâmica do segundo, com uma área mais generosa. Embora estes se localizem nas bordas do pavimento, essas salas não possuem janelas para entrada de luz natural, somente uma arandela com iluminação difusa.

Fig. 118 Phone Booths ao fundo do escritório.

Fonte: Frisokar, 2021.

No caso dessa imagem, é possível visualizar os pontos de tomada média acima da mesa de madeira, reforçando a questão de seu uso para atendimentos online. Além disso, também é possível visualizar a cadeira com encosto, que proporciona uma ergonomia melhor do que os bancos para atendimentos de longa duração.

83

4.2.2.6 Coffice

O Coffice é um espaço integrado de café e trabalho, em que se pode utilizar as mesas mais afastadas da área de Staff como ambiente descontraído para se trabalhar, permitindo o uso de notebooks conforme pontos de tomada distribuídos no espaço.

Fig. 119 Planta Área de Coffice

Fonte: ArchDaily, por Pereira, 2020.

Fig. 120 Vista do ambiente de Coffice

Fonte: PITÁ, 2020.

Além dessa infraestrutura, o espaço também sugere um ambiente colaborativo a partir de uma lousa, em que se dialogar por desenhos, ou até escrever mensagens motivacionais para o incentivo de ideias criativas nos projetos da empresa.

Fig. 121 Vista da lousa e mesas do Coffice

Fonte: PITÁ, 2020

Fig. 122 Vista da bancada da cozinha integrada / coffice

Fonte: ArchDaily, por Pereira, 2020

Este espaço oferece variados assentos, que variam entre ergonomia, e iluminação natural permitindo que o funcionário escolha sentar-se onde preferir, por exemplo à bancada em uma banqueta; utilizar o sofá fixo com mesa para apoio, mais próximo às janelas onde há

84

uma melhor luminosidade e contato visual com a área externa; nas cadeiras e bancos mais próximos à lousa que também possuem apoio de mesa; ou às mesas redondas que ficam distribuídas pelo espaço. Com relação às instalações, observa-se que somente os equipamentos que encostam nas paredes e divisórias possuem pontos de tomada.

Além de serem espaços projetados para uso dos funcionários, os clientes também circulam por este local ao acessar as salas de reunião, portanto, a intenção de aproximar o café com a recepção é uma solução que fortalece o convívio de todos os colaboradores (PEREIRA, 2020) e convida os clientes às mesas redondas e bancada para uma conversa mais informal.

4.2.3 Apoio e bem-estar

Segundo Pereira (2020), o espaço foi propositalmente escolhido para ocupar o térreo de um edifício comercial com o intuito de integrar a área interna de trabalho aos jardins externos pelas janelas. Nesse sentido, a empresa transmite ao funcionário e aos clientes a proposta de um espaço amplo, inovador, mantendo a identidade ecológica dos princípios da Veolia a partir de sua decoração.

A dinâmica das diferentes estações de trabalho tais como coffice, poltronas com mesas laterais, mesas redondas, etc, ajudam a proporcionar um ambiente mais agradável, colaborando com o bem-estar dos funcionários e estimulando a comunicação através de um ambiente de trabalho integrado, com poucas divisórias.

4.2.3.1

Look & Feel

Segundo a Pitá Arquitetura (PEREIRA, 2020) o projeto foi concebido com o princípio de transmitir a imagem sustentável ideal para a empresa de gestão de recursos naturais. Todo o conceito foi baseado nos ciclos da natureza, explorando subjetivamente elementos como vegetação, água e areia

O desenho dos divisores de espaço foi pensado a partir daí. Queríamos representar através de formas as dunas de areia do deserto, e nada melhor que a sinuosidade orgânica das curvas! Os rasgos evoluíram para uma textura muito linda que remete ao ciclo da água, e o movimento das marés e chuvas.

PITÁ ARQUITETURA. Instagram @pitaarq. 2021.

85

A própria planta do pavimento demarca essa geometria orgânica dos elementos naturais nas texturas do piso, variando entre madeira, pedra, carpete, piso cerâmico, ajudando a setorizar os espaços com um número reduzido de divisórias na área de staff. Isso contribui com a organização de modo que a comunicação fica mais prática, auxiliando um trabalho mais colaborativo.

Com todos estes elementos naturais, o aspecto de biofilia fica reforçado a partir de jardins verticais, das plantas escandentes no forro, do teto com textura granulada que remete a algo natural como areia, e da proximidade com o ambiente externo que dialoga entre cores, materiais e tons naturais do projeto.

Fig. 123 Elementos de fundo da recepção.

Fonte: KZVM, 2021.

Fig. 124 Superfície do teto da área de Staff. Fonte: ArchDaily, por Pereira, 2020.

Fig. 125 Diferença entre pisos e revestimentos Fonte: Frisokar, 2021.

Fig. 126 Plantas escandentes no forro. Fonte: Frisokar, 2021.

Além destes elementos, a primeira impressão que se tem do projeto, ao chegar à recepção é uma parede de telha ondulada metálica parcialmente coberta por um jardim vertical. Dessa forma, o conjunto remete à textura industrial de containers com as folhagens da natureza, trazendo uma imagem de algo inovador em medidas sustentáveis que respeitam o meio ambiente

Fig. 127 Recepção.

Fonte: ArchDaily, por Pereira, 2020

Este painel ondulado metálico se estende desde a entrada, conduzindo o acesso para o projeto, e no início do percurso há uma série de palavras em letras-caixa fixas ao painel, que remetem à sustentabilidade, reforçando os ideais da empresa.

86

Também na entrada é possível identificar um conjunto de nichos arredondados onde são expostos os prêmios da empresa. Além exibir seu potencial e profissionalismo, este painel reforça ainda mais o conceito de natureza, uma vez que a tonalidade deste conjunto é amadeirada, aplicada sobre uma parede de cor verde.

Em diversos espaços é possível encontrar quadros de fotos aéreas das obras realizadas pela Veolia. Isso é importante pois aproxima os funcionários da realidade de seus projetos, fazendo com que se sintam parte atuante de suas obras.

Fig. 128 Letras caixa Fonte: PITÁ, 2020.

Fig. 129 Jardim externo Fonte: ArchDaily, por Pereira, 2020

Fig. 130 Nichos na parede Fonte: ArchDaily, por Pereira, 2020.

Fig. 131. Quadro dentro de Phone Booth Fonte: PITÁ, 2020

Segundo Pereira (2020), a Veolia expõe suas questões sustentáveis no espaço a partir de itens que vão desde o piso, com 90% de composição em material reciclado, até o mobiliário, cujo design atenta sobre o consumo consciente de água. É possível também observar na entrada de ambientes de reunião e phone booth pequenas identificações do nome dos ambientes com palavras que remetem a paisagens e elementos culturais, tais como pradaria, samba e capoeira, em valorização ao meio ambiente e à cultura local.

4.2.3.1.1 Divisórias móveis

Segundo a Pitá Arquitetura, as divisórias foram concebidas para serem barreiras visuais que remetem a desenhos da natureza, permitindo a circulação do ar por seus desenhos. Elas se associam entre barreiras e frisadas para criar uma forma dinâmica de separação visual dos espaços.

Embora o conceito seja interessante, as divisórias ficam instaladas sobre o carpete da área dos funcionários e não se sabe como é possível arrastá-las pois não há trilhos no piso.

87

Portanto, imagina-se que se a divisória for leve, ela pode ser instável; ou se for pesada, ela provavelmente não deve ser manuseada com frequência

Fig. 132 Croqui de concepção das divisórias

Fonte: Instagram, por Pitá Arquitetura, 2021.

4.2.3.1.2

Fig. 133 Desenho técnico das divisórias retráteis, cheios e vazios.

Fonte: Instagram, por Pitá Arquitetura, 2021

Aconchego próximo às janelas

A relação que os espaços internos têm com as aberturas das janelas é um ponto importante do projeto que instiga o funcionário a escolher locais agradáveis para relaxar ou trabalhar, em uma relação mais próxima com a natureza, estimulando ainda mais a questão biofílica no espaço.

Além dos mobiliários organizados pelo espaço, o escritório conta com instalações fixas, feitas em marcenaria que ajudam a criar essas ambiências adjacentes às janelas, nos ambientes de coffice e sala de reuniões.

88
Fig. 134 Banco na sala de reuniões Fonte: PITÁ, 2020 Fig. 135 Mesas e bancada do Coffice Fonte: ArchDaily, por Pereira, 2020

Dentre esses ambientes, é possível identificar três possibilidades de ergonomia: na sala de reuniões, um banco acolchoado adjacente à janela; e no coffice, mesas com assentos acolchoados e bancadas com banquetas acolchoadas exatamente ao lado das janelas.

Como as janelas são fixas e portanto não há problemas destes ambientes se tornarem obstáculos ao abrir ou fechá-las, considera-se que essas instalações também não criam dificuldades relevantes do ponto de vista ergonômico para o funcionário que manuseia as persianas independentes.

4.2.3.2 Ambientes de Apoio

Segundo a Revista Buildings (2018), o condomínio empresarial do Atlas Office Park oferece áreas de convivência com aproximadamente 2 mil m² em lojas, restaurantes e farmácia, facilitando o dia-a-dia do funcionário em intervalos de almoço ou outras necessidades, além de todo o jardim externo que corresponde a quase 50% do terreno, possibilitando um contato mais próximo à natureza para proporcionar maior tranquilidade e bem-estar durante as pausas que o funcionário fizer

Apesar de seu destaque sobre a decoração e as diferentes estações de trabalho no modelo Open Space, a Veolia também oferece pequenos espaços para que auxiliam à qualidade de vida, permitindo que o funcionário se sinta confortável e amparado para resolver assuntos pessoais em pequenos intervalos no momento que desejar.

Em decorrência do sigilo da Veolia e do escritório da Pitá, as informações disponíveis sobre estes ambientes serão interpretadas apenas sobre a planta, com auxílio dos comentários feitos pelo funcionário Fava (Anexo A), pois não foi possível adquirir fotos dos ambientes que não estivessem presentes na internet São eles: (1) mommy room; e (2) Impressoras e Café.

4.2.3.2.1

Mommy Room

O ambiente de Mommy room, assim como no primeiro estudo de caso, serve para auxiliar às mães em fase de aleitamento, que necessitam de um espaço apropriado com privacidade e aconchego para amamentar ou retirar o leite. A sala conta com uma poltrona e uma bancada com pia, que auxilia à higiene pessoal após o uso.

89

Uma das praticidades deste ambiente, é que a sala se localiza perto da entrada dos funcionários possibilitando que a pessoa possa manter o leite armazenado em local apropriado até o seu momento de saída do escritório.

4.2.3.2.2

Impressoras e Café

Segundo Fava (Anexo A), o espaço em destaque conta com uma bancada, uma máquina de café e uma baia onde fica instalada a impressora. A localização auxilia as atividades do trabalho ao aproximar o ambiente de café com a área de Staff, facilitando o cotidiano do funcionário que quer dar uma pausa rápida para um café, em vez de se deslocar até o Coffice

Fig. 136 Mommy Room

Fonte: ArchDaily, por Pereira, 2020

Fig. 137. Impressoras e Café

Fonte: ArchDaily, por Pereira, 2020

4.2.4 Conforto Térmico e Luminoso

Com relação a medidas protetivas do Covid-19, Fava comenta que os funcionários são instruídos pela Veolia a seguir os protocolos de higiene e que o espaço é bastante preparado a atender a essas medidas (Anexo A) Em contrapartida, as janelas deste escritório são fixas e, portanto, a renovação do ar é feita mecanicamente, através de um sistema de monitoramento e manutenção da qualidade do ar, terceirizado pela Veolia para seu ambiente de trabalho

A Veolia se localiza no térreo do bloco A do condomínio empresarial Atlas Office Park, com a face maior para o sentido nordeste que dá vista para a área verde do condomínio. As outras duas faces menores da planta da Veolia se localizam a noroeste e sudeste.

90

Fig. 138 Planta da Veolia sobre pavimento tipo do condomínio.

Fonte: PEREIRA, 2020 e ATLAS, 2022, adaptado pela autora

Fig. 139. Vista aérea do bloco A e da área verde do térreo

Fonte: GROW, 2022.

Na face maior da planta, que recebe sol da manhã de nordeste o edifício não conta com beirais ou aberturas para circulação de ar, já que as janelas são fixas, permitindo apenas a entrada de iluminação natural (FAVA, Anexo A). Já na lateral mais próxima à via de acesso, à noroeste, o edifício conta com um beiral em pérgola metálica que ajuda a atenuar a insolação do sol da tarde

Fig. 140 Vista térrea externa do bloco A Fonte: Visita de Campo.

Além das barreiras construídas do edifício, o pavimento térreo também fica envolto por um jardim de plantas com altura de até 2 metros que ajudam a conter a insolação sobre as janelas.

91

Fig. 141. Corte do Bloco A do condomínio empresarial, com destaque à localização da Veolia. Fonte: ATLAS, 2022, adaptado pela autora.

Desse modo, somente as persianas rolô, que são independentes entre si, permitem o manuseio para atenuar a iluminação natural que adentra ao edifício.

Fig. 142 Janela com persianas independentes

Fonte: PITÁ, 2020

92

4.3 Análise Comparativa

Os estudos de caso demonstram duas empresas diferentes em porte multinacional, número de funcionários, linguagem escolhida para a decoração dos espaços, entre outros fatores. Mesmo assim, ambas se destacam pela valorização do funcionário ao qualificar seus espaços arquitetônicos com ambientes variados que permitem o autocuidado ao escolher um assento com ergonomia diferenciada, experienciar uma forma diferente de discussão com colegas, ou até fazer uso de um determinado ambiente para uma necessidade básica pessoal (como é o caso do mommy room)

Por fim, este tópico refere-se às diferentes organizações formais em planta, e como as circulações se organizam entre espaços voltados para uso dos funcionários e clientes/visitantes.

4.3.1 Organização e uso do espaço

As plantas esquemáticas a seguir representam em hachura azul as áreas internas do projeto que podem ser utilizadas pelos funcionários e em vermelho o trajeto que pode ser percorrido pelos clientes, ou por funcionários sob uma lógica mais esporádica quando há necessidade. Além dessa setorização, há pontos de atenção demarcados pelas cores roxo, verde e laranja que representam, respectivamente, locais de difícil acesso para cadeirantes; salas de acesso restrito; e pontos de atenção que podem causar dificuldades ao manusear persianas ou fazer manutenção nas janelas.

93

Fig. 143. Planta CI&T: Pavimento térreo

Fonte: Projeto disponibilizado pela Capoano Arquitetura, adaptado pela autora

Fig. 144 Planta Veolia

Fonte: ArchDaily, por Pereira, 2020, adaptado pela autora.

Legenda:

A partir desses esquemas, identifica-se que as áreas destinadas para uso dos clientes ficam mais próximas à entrada do projeto, reduzindo o seu trajeto até as salas de reuniões,

94

auditório, etc. Desse modo é evita-se que o fluxo de clientes pelas empresas distraia os funcionários ou acabe obtendo informações sigilosas de projetos em desenvolvimento

As áreas dos projetos em azul representam ambientes que podem ser utilizados a qualquer momento que não houver reuniões, sendo possível fazer uso das instalações para uma conversa entre as equipes. Além disso, tanto na CI&T quanto na Veolia, os espaços de lanchonete e coffice ficam próximos à entrada, comunicando-se entre área que pode ser utilizada pelos funcionários ou visitantes.

Quantos às áreas destacadas em roxo, os ambientes que apresentam dificuldades para promover acessibilidade aos cadeirantes são: nos dois casos, alguns dos espaços de Phone Booth e mesas altas com banquetas; e na CI&T os espaços de Outbacks

Tendo em vista que o projeto possibilita diversas alternativas de ergonomia para o trabalho, é compreensível que existam condições diferenciadas que não atendam igualmente a todos os tipos de pessoas. Na verdade, é por esse fator que deve haver diferentes propostas de ergonomia dentro do espaço, possibilitando que o funcionário escolha a opção que melhor se adeque à sua atividade.

As áreas destacadas em verde referem-se aos espaços de CPD, ou Centro de Processamento de Dados, onde ficam as máquinas que auxiliam à infraestrutura dos sistemas e computadores presentes em ambos os escritórios.

Por fim as manchas em laranja destacam mesas ou equipamentos encostados nas janelas como pontos de atenção, pois mesmo que não haja abertura ou fechamento delas, qualquer tipo de manutenção, limpeza ou controle de persianas deve ter o seu acesso facilitado para que essa infraestrutura não se torne uma dificuldade do ponto de vista do conforto adaptativo. Pelo contrário, ao facilitar acesso à essas janelas sem obstáculos, o funcionário passa a compreender que tem autonomia sobre as condições de luminosidade em sua mesa de trabalho, e então se dispõe a colaborar para a garantia de melhores condições de conforto no ambiente

4.3.2 Circulações

Com relação às circulações, as manchas a seguir representam aproximadamente 70cm de largura, sendo que as em vermelho representam o trajeto dos clientes e visitantes O trajeto dos funcionários é representado pela soma das linhas vermelhas às azuis.

95

Fig. 145. Planta CI&T: Pavimento térreo Fonte: Projeto disponibilizado pela Capoano Arquitetura, adaptado pela autora

Legenda:

Fig. 146 Planta Veolia Fonte: ArchDaily, por Pereira, 2020, adaptado pela autora.

Comparativamente, nota-se que os ambientes se organizam de formas diferentes, uma vez que a CI&T possui uma lógica mais racional e a Veolia cria formas e ângulos por onde as divisórias compõem ambientes sob uma lógica mais orgânica

96

De um modo geral, é possível notar que as circulações da CI&T são mais amplas, tendo em vista a área maior e a demanda a se ocupar, enquanto na Veolia as circulações são mais diretas. Quanto ao comprimento das circulações, a CI&T possui mesas enfileiradas com capacidade para até 10 funcionários, e na Veolia, as maiores mesas enfileiradas possuem capacidade para até 16 funcionários, com um comprimento maior de circulação

Ao dividir estações de trabalho da área de staff entre divisórias, as circulações da CI&T demandam um espaço maior (m²) para acomodar os assentos uma vez que consideram a circulação pelas duas faces da divisória, enquanto a Veolia se aproveita da mesma circulação para mesas em série dispostas lado a lado.

Nos dois casos, as circulações de visitantes e clientes passam por áreas de trabalho que demonstram um pouco sobre a empresa. Na CI&T, a circulação até o auditório passa pela Hotdesk que é a grande mesa de trabalho que carrega o símbolo do “&” da empresa. Ao contrário da área de staff cujo acesso é restrito aos funcionários, este espaço configura um ponto de encontro entre diferentes setores, onde pode haver reuniões informais entre colegas. Para o visitante, a imagem deste espaço carrega um sentido de um local descontraído, criativo e diferente das empresas convencionais que possuem rigidez em sua organização, exemplificando como a empresa pode “pensar fora da caixa” para soluções inovadoras.

Na Veolia, a circulação de visitantes passa ao lado da sala Hubgrade que é o “cartãopostal” da empresa, onde toda a infraestrutura de tecnologia proporciona controle sobre projetos e setores promovendo a comunicação entre as diferentes unidades da Veolia, de países distintos. Para o visitante, isso demonstra a seriedade da empresa, uma vez que o investimento por essa tecnologia integrada de acompanhamento em tempo real é inovador; e a postura de monitoramento dos projetos traz mais confiabilidade e segurança ao seu trabalho, com transparência em relação às obras realizadas sobre a gestão de recursos naturais

97

RESULTADOS

A CI&T e a Veolia foram reformadas nos anos de 2019 e 2020, respectivamente. Os novos espaços de trabalho propostos para seus projetos permitem uma composição menos formal aos ambientes, sem deixar de transmitir a imagem de organização, seriedade e inovação sob diferentes perspectivas

A adaptação dos espaços conforme a lógica do trabalho híbrido, com estações múltiplas, para uso esporádico, com diferentes características de privacidade e tecnologia potencializa também os espaços do ponto de vista do trabalho presencial uma vez que não deixa de ter estações de trabalho convencionais, beneficiando a todos os colaboradores com novas sugestões mais ergonômicas e adequadas para diferentes tarefas no escritório.

No caso da CI&T, apesar de possuir uma organização mais rígida e racional em planta, a empresa propõe mais espaços de usos variados, voltados ao bem-estar e sensação de acolhimento do funcionário. Na Veolia, apesar da disposição mais orgânica em planta, a empresa conta com uma variabilidade menor de espaços de apoio. Por outro lado, o condomínio empresarial onde a Veolia se situa oferece alguns benefícios e praticidades tais como proximidade com farmácia, lojas, restaurantes, e áreas verdes confortáveis para a socialização.

A concepção do programa de necessidades da CI&T baseado nas sugestões dos próprios funcionários é fundamental para que as áreas de trabalho e apoio não destoem do verdadeiro desejo pelo uso do espaço Portanto, em vez de se basear pelas tendências arquitetônicas ou somente pelos modelos utilizados no Vale do Silício, a pesquisa prévia ajuda a planejar os ambientes de acordo com as necessidades concretas da própria empresa. O único espaço minimamente utilizado na CI&T, segundo o arquiteto, é o ambulatório – o que não necessariamente é algo negativo. Em contrapartida, o excesso de funcionários em regime híbrido ou remoto pode levar à redução do aproveitamento pelos investimentos físicos realizados na empresa.

Para observar e compreender comparativamente os espaços de ambos os estudos de caso, foi desenvolvida uma tabela como síntese das informações obtidas por meio dessa pesquisa, ressaltando itens como dimensões dos ambientes, número de funcionários, entre outros elementos que promovem qualidade e facilidade aos espaços no cotidiano das empresas.

98 5

5.1 Tabela comparativa

CI&T Globaltech Veolia

Número de Funcionários 350 200 a 300 Área do escritório 5500 m² 1300 m² Ano do Projeto 2019 2020 Área de atuação Inovação de tecnologia em soluções digitais

Forma de trabalho -95% trabalho híbrido ou remoto -5% presencial

Estações diferentes de trabalho 8 tipos: -mesa de reunião -mesa conjunta funcionários -poltrona com apoio lateral -sofá com apoio lateral -mesa alta com banqueta -outbacks -phone booth -sala brain

Versatilidade

-cadeiras leves e mesas sobre rodinhas; -divisórias móveis que ampliam ou dividem ambientes.

Tecnologia em gestão de recursos naturais

-O setor de operação é 100% presencial. -Administrativo pode escolher entre presencial ou híbrido.

8 tipos: -mesa de reunião -mesa conjunta funcionários -poltrona com mesa de centro -pufe com apoio lateral -mesa redonda -reuniões esporádicas -phone booth -hubgrade

-divisórias móveis entre salas de reunião; -divisórias para bloqueio visual no staff e reuniões esporádicas.

Apoio e bem-estar do funcionário

-sala de contemplação -ambulatório -sala de jogos -mommy room -sala de massagem -espaço wellness -estudio de música

-mommy room

Conforto Térmico Climatização Artificial Climatização Artificial Permite ventilação cruzada Não Não

Conforto Lumínico

Iluminação Natural presente e complementação por iluminação artificial.

Instiga o manuseio das instalações do edifício para o conforto individual

-O controle de temperatura é centralizado para todos os ambientes.

-Embora a implantação com brises e beirais seja favorável, nenhuma das janelas possui persiana.

Iluminação Natural abundante por quase toda a volta do pavimento, complementada por iluminação artificial.

-O controle de temperatura é centralizado para todos os ambientes.

-As janelas são fixas, mas possuem persianas independentes para o controle da luminosidade.

99

A exemplo das empresas do Vale do Silício, os estudos de caso demonstram como as empresas estão voltando seus olhares para os espaços de trabalho de modo a garantir qualidade de vida, compreendendo que muitas vezes as pessoas passam a maior parte do seu dia nos escritórios.

A preocupação pela reformulação desses espaços reflete, portanto, um novo programa de necessidades baseado na priorização do bem-estar do funcionário como alicerce para o trabalho colaborativo, que auxilia produtividade e engajamento dos funcionários. Além de criar espaços agradáveis e multifuncionais, a atmosfera de um ambiente participativo também colabora para que o funcionário se sinta acolhido pela equipe, adquirindo uma noção de pertencimento que vai além de sua profissão ou área de atuação O estímulo à qualidade de vida ajuda a reter bons funcionários e consequentemente atingir uma posição melhor entre as empresas concorrentes no setor. Compreender as funções e atividades que podem ser exercidas em cada espaço dentro do escritório é fundamental tornar o ambiente mais dinâmico e versátil, proporcionando autonomia ao funcionário para escolher, entre as diversas possibilidades, as melhores condições de conforto que facilitam em seu cotidiano. Aliar os objetivos da empresa com áreas de apoio aos funcionários também fortalece seus ideais e valores, tornando a empresa mais reconhecida não apenas pelo seu propósito, mas também pelo estímulo à qualidade de vida. Em uma escala maior, repensar os espaços de trabalho sob essa ótica auxilia ao alcance dos Objetivos de Desenvolvimento Sustentável estabelecidos pela ONU (2015) nos tópicos “Emprego digno e crescimento econômico” e “Boa saúde e bem-estar” .

Por fim, o papel do projeto arquitetônico na concepção de ambientes de trabalho vai além da organização dos espaços e da qualidade das áreas apresentadas ao cliente. A arquitetura pensada nos usuários, como um todo, é fundamental para a garantia de espaços saudáveis e sustentáveis, de modo que a harmonia entre a qualidade de vida dos funcionários, clientes e empresa auxilia diretamente em seu sucesso.

100 6 CONCLUSÃO

CONSIDERAÇÕES FINAIS

Existem muitas discussões e pesquisas para estimular melhorias sobre as condições de trabalho em outros aspectos, não só no ergonômico, mas principalmente no conforto térmico. Ainda há muitas empresas que são estanques em relação à ventilação natural, com janelas que permitem a entrada de luz, mas com sistemas centralizados de condicionamento de ar. Do ponto de vista do clima brasileiro, por exemplo, expor fachadas à iluminação natural sem permitir ventilação cruzada pode gerar ambientes de trabalho insalubres como “estufas” , e ocasionar muitos gastos de energia pela demanda por ar-condicionado, portanto é importante conhecer o clima da região para adaptar o projeto às condições mais favoráveis de conforto térmico.

Com a pandemia, percebe-se que a ventilação cruzada é importante não apenas para melhorar a temperatura, mas principalmente para a renovação do ar, que evita a disseminação de doenças respiratórias quando o ambiente está fechado Permitir que o usuário conheça as instalações construídas do edifício e consiga alcançá-las com facilidade é importante para que ele saiba garantir o conforto em sua mesa de trabalho pelo manuseio de persianas ou abertura de janelas.

Apesar do foco na ergonomia individual do funcionário, um assunto importante não observado nas áreas de staff e ambientes coletivos foi o uso de iluminação artificial individualizada, que deve ser levado em consideração para tornar o ambiente mais agradável, entendendo que alguns funcionários podem ter dificuldades de visão (ou fadiga ocular) quando expostos à luz artificial durante longas horas Caso não seja possível torná-la individualizada, seria interessante que a iluminação tivesse dimerização, para controle de intensidade de luz ou temperatura de cor vinculados as horas do dia, tornando-se ideal do ponto de vista do relógio biológico do ser humano (também conhecido como ciclo circadiano)

Para próximas pesquisas sobre este tema, é importante investigar o comportamento de empresas que adotam estes novos conceitos de espaços de trabalho entendendo a relação entre o clima externo e o ambiente interno como estratégia primordial de conforto térmico e eficiência energética. Pesquisar sobre condições de conforto em diferentes estações do ano, com janelas fechadas ou abertas deve ajudar a compreender o movimento e a frequência com a qual os funcionários interagem com o edifício para garantia de conforto, além da relação ergonômica com o mobiliário existente.

101

REFERÊNCIAS BIBLIOGRÁFICAS

AMARAL, C.; MANCINI, B.; ALVES, Wilson B.; CABRAL, Pedro H. Espaços Autoritários: A Estrada de Ferro Noroeste do Brasil e a Burocracia do Império. Pós FAUUSP, v. 22 (38), p140-156. São Paulo, 2015.

AUBERT, Nicole. A Neurose Profissional. Traduzido por Maria Irene Stocco Betlol, e Edlth Sellgmann Silva. Revista de Administração de Empresas. RAE Colaboração Internacional. 33 (1). pag. 84-105. São Paulo, 1993

ARCHINECT. Office Landscape [Quickborner Team] late 60's - 70's. Archinect, 2022. Disponível em < https://archinect.com/forum/thread/57824217/office-landscapequickborner-team-late-60-s-70-s>. Acesso em 10 de agosto de 2022.

ATLAS. Plantas. Atlas Office Park. Disponível em <https://atlasofficepark.com.br/plantas/>. Acesso em 30 de julho de 2022.

BARBIRATO, G. M; TORRES, S. C; SOUZA, L. C. L. Clima Urbano e Eficiência Energética nas Edificações. Convênio ECV033/04 entre ELETROBRAS, PROCEL e UFAL. Rio de Janeiro, 2011

BASTOS, Ronaldo M. Arquitetura Corporativa: A importância do mobiliário para sua evolução. 2021. 17p. Graduação, trabalho de conclusão de curso – Faculdade América, 2021.

BEDOIRE, F. Open plan offices, landscape offices and celltype office. In: Arckitektur, No 1, p16–26. 1979.

BERGEFURT, Lisanne; WEIJS-PERRÈE, Minou; APPEL-MEULENBROEK, Rianne; ARENTZE, Theo. The physical office workplace as a resource for mental health – A systematic scoping review. In: Science Direct. Building and Environment, 207, part.A. Elsiever, 2022.

BILLOIS, Bernard Veolia - 160 years of industrial history Veolia Group, 2014 Disponível em <https://youtu.be/0 roaJs_k94>. Acesso em 22 de julho de 2022.

BIRD, Martha. Enter the Cube Farm: The rigid cubicle that is common to many office settings isn’t the structure its designer originally intended. MIT Sloan Management Review, novembro, 2020. Disponível em <https://sloanreview.mit.edu/article/enter-thecube-farm/>. Acesso em 11 de agosto de 2022.

BRASIL. Ministério do Trabalho. Portaria MTb n.º 3.214, de 08 de junho de 1978. Norma Regulamentadora NR-17: Ergonomia. Atualizada em Portaria MTP n.º 423, de 07 de outubro de 2021.

BROWER, Tracy. Dê espaço ao significado: Acha que dinheiro é o melhor modo de motivar os funcionários? Pense novamente. Investir em um espaço que conecta as pessoas com o propósito é um benefício maior para elas e o ponto de partida. Entrevista concedida a Revista WHI. Escrito por Christine MacLean. Herman Miller, 2020. Disponível em < https://www.hermanmiller.com/pt_br/stories/why-magazine/make-room-for-meaning/>. Acesso em 11 de agosto de 2022.

BUILDINGS. Atlas Office Park: Conveniência e Qualidade de Vida no Trabalho Edifícios em Destaque. Site Revista Buildings, 2018. Disponível em < https://revista.buildings.com.br/atlas-office-park-conveniencia-e-qualidade-de-vida-notrabalho/>. Acesso em 30 de julho de 2022.

102

CAPOANO. A transformação de um espaço bruto em um ambiente acolhedor e com muito storytelling arquitetônico. Capoano Arquitetura, 2019. Disponível em <https://www.capoano.com/ciandt-globaltech?lightbox=dataItem-kdjj9ybg>. Acesso em 12 de maio de 2022.

CAPOANO. Confira o projeto desenvolvido pela Capoano Arquitetura para a empresa CI&T. Capoano Arquitetura, 2022. Disponível em <https://capoano.com/cit/>. Acesso em 12 de julho de 2022.

CAPOANO, Renato. Como será a retomada aos escritórios pós pandemia? Capoano Arquitetura, 2020 (a). Disponível em <https://youtu.be/2fzP6vQ5e6A>. Acesso em 19 de junho de 2022.

CAPOANO, Renato. Conheça o projeto da Capoano Arquitetura para a CI&T. Capoano Arquitetura, 2020 (b). Disponível em < https://youtu.be/ZBEEQmsR_Js>. Acesso em 5 de julho de 2022

CORRÊA, Henrique L; CORRÊA, Carlos A. Administração da Produção e Operações –Manufatura e serviços: uma abordagem estratégica. 3.ed. São Paulo: Atlas, 2012.

COMBINE. Visionary concepts and excellence for over 60 years. Combine Consulting, 2020. Disponível em <https://combine-consulting.com/en/heritage/>. Acesso em 10 de agosto de 2022.

CONDECO. Workplaces Modernos 2020. Um relatório de pesquisa independente que examina as ideias e tendências mais recentes sobre o que está moldando os workplaces modernos. Wiser Experience, 2020. Disponível em <https://wiserxp.com/estudoworkplaces-modernos/>. Acesso em 22 de maio de 2022.

DANIELSSON, Christina. Office Environment, Health & Job Satisfaction: An Explorative Study of Office Design's Influence. Tese (Licenciatura em Tecnologia e Saúde), The Royal Institute of Technology.. Estocolmo, p-105. 2005.

DE BRITO. Heitor C ; ROSADO. Carlos A G ; ALVARENGA, Grasiela A C Q ; GONÇALVES. Mônica C A ; DOS SANTOS, Thalita R A Perspectiva Histórica da Administração Científica de Taylor. In: IV SAEP - Simpósio Acadêmico de Engenharia de Produção - Governador Valadares-MG, 2018. Disponível em: <https://www.doity.com.br/anais/saep2018/trabalho/70404>. Acesso em: 30 de maio de 2022.

DE VECCHI, Renata.; CÂNDIDO, Christhina M.; LAMBERTS, Roberto. Thermal history and comfort in a Brazilian subtropical climate: a ‘cool’ addiction hypothesis. Ambiente Construído, Porto Alegre, v. 16, n. 1,p. 7-20, jan./mar. 2016. ISSN 1678-8621 Associação Nacional de Tecnologia do Ambiente Construído.

DOURADO, Isabel. Proposta regulamenta o regime de trabalho híbrido. Agência Senado, 7 de dezembro de 2021. Proposições legislativas PL 4098/2021. Disponível em < https://www12.senado.leg.br/noticias/materias/2021/12/07/proposta-regulamenta-oregime-de-trabalho-hibrido>. Acesso em 7 de agosto de 2022.

ECONODATA. Veolia Serviços Ambientais Brasil. Disponível em <https://www.econodata.com.br/consulta-empresa/01600200000148-VEOLIASERVICOS-AMBIENTAIS-BRASIL-LTDA> Acesso em 22 de julho de 2022.

ETTINGER, Karl. Direção e Produtividade. Direção, Organização e Administração de Empresas. Manual de Ensino 1. 1. ed. São Paulo: IBRASA, 1964.

103

FLACH, Natália. O futuro dos 354 mil metros quadrados de espaços compartilhados no Brasil. EXAME, Mercado Imobiliário. 9 de abril, 2020. Disponível em <https://exame.com/negocios/o-futuro-dos-354-mil-metros-quadrados-de-espacoscompartilhados-no-brasil/>. Acesso em 3 de julho de 2022.

FONSECA, Juliane F. A contribuição da ergonomia ambiental na composição cromática dos ambientes construídos de locais de trabalho de escritório. Tese de mestrado do Programa de Pós-Graduação em Design do Departamento de Artes e Design. Pontifícia Universidade Católica do Rio de Janeiro. 2004

FONSECA, Raphaela Walger. Pesquisadora da UFSC reforça importância da luz natural no período de quarentena. Universidade Federal de Santa Catarina, UFSC. 24 de abril, 2020. Disponível em < https://noticias.ufsc.br/2020/04/pesquisadora-da-ufsc-reforcaimportancia-da-luz-natural-no-periodo-de-quarentena/>. Acesso em 5 de agosto de 2020.

FRANCESCHI, Roberta B.; NASCIMENTO, Roberto A. Moradia e Mobiliário para Profissionais Autônomos: diretrizes projetuais. In: MENEZES, Marizilda S.; PASCHOARELLI, Luis C. (Org.) Design e Planejamento: aspectos tecnológicos. São Paulo: Editora UNESP, 2009. P.247-277.

FRISOKAR. Escritório open space: quais as vantagens de apostar nesse conceito? Case Veolia por Pitá Arquitetura Frisokar, 2021. Disponível em <https://blog.frisokar.com.br/escritorio-open-space/>. Acesso em 25 de julho de 2022.

FURLAN, Letícia. Empresa deixa os funcionários experimentarem três modelos de trabalho. Você RH, Grupo Abril, 2 de outubro de 2021. Disponível em < https://vocerh.abril.com.br/futurodotrabalho/empresa-deixa-os-funcionariosexperimentarem-tres-modelos-de-trabalho>. Acesso em 5 de julho de 2022.

GENSLER. US Workplace Survey Winter 2021. Gensler Research Institute, 2021. Disponível em <https://www.gensler.com/gri/us-workplace-survey-winter-2021>. Acesso em 6 de abril de 2022.

GESAB. New Hubgrade control center for Veolia in Brazil. Disponível em <https://gesab.com/en/case-studies/new-hubgrade-control-center-veolia-brazil/>. Acesso em 25 de julho de 2022

GIBBENS, Sarah. Como um espirro pode lançar germes a uma distância de quase dois metros. National Geographic, abril de 2020. Disponível em < https://www.nationalgeographicbrasil.com/ciencia/2020/04/tosse-espirro-germes-virusdistancia-distanciamento-isolamento-covid-19-coronavirus>. Acesso em 11 de agosto de 2022.

GIVONI, Baruch. Comfort Climate Analysis and Building Design Guidelines. In: Science Direct. Energy and Buildings, 18. Elsevier, 1992.

GLASSDOOR. Visão Geral da empresa: Trabalhar na CI&T. Disponível em <https://www.glassdoor.com.br/Vis%C3%A3o-geral/Trabalhar-na-CI-and-TEI_IE140265.13,21.htm>. Acesso em 5 de julho de 2022.

GOU, Zhonghua. Workplace Design Revolution: Inside-Out Urbanism. In: Luciano Crespi. Design Innovations for Contemporary Interiors and Civic Art. Capítulo 12 (pág.227243). Editora IGI Global, 2016.

104

GROW. Altre, do Votorantim, adquire 50% do Atlas Office Park - Grow Investments: crescer o valor dos negócios imobiliários. Disponível em <https://growinvest.com.br/venda-atlas-office-park/>. Acesso em 31 de julho de 2022.

HEYWOOD, Huw. 101 Regras básicas para uma arquitetura de baixo consumo energético. Editora G. Gili. SL, 2015.

HORSCHUTZ, Alessandra M. C. L. Ocupação de edifícios de escritórios corporativos em São Paulo: o caso do edifício IBM Tutóia. 2007. 255 f. Dissertação (Mestrado em Arquitetura e Urbanismo) - Universidade Presbiteriana Mackenzie, São Paulo, 2007.

KZVM. Novo espaço da Veolia, aqui em São Paulo: Projeto de comunicação visual da Porú executado com excelência pela KZVM. Facebook, dezembro de 2021. Disponível em <https://www.facebook.com/kzvm.brasil/posts/320923666703442>. Acesos em 30 de julho de 2022.

Lei nº 13.467 Altera a Consolidação das Leis do Trabalho (CLT), a fim de adequar a legislação às novas relações de trabalho. Disponível em: < http://www.planalto.gov.br/ccivil_03/_ato2015-2018/2017/lei/l13467.htm>. Acesso em: 7 de agosto de 2022.

LIMA, Nathália M. L. Reabilitação de Edifícios do Centro da Cidade de São Paulo – Novas moradias em antigos espaços: Avaliação de desempenho, sob o enfoque ergonômico, das funções e atividades da habitação. Orientadora Roberta Consentino Kronka Mülfarth. 2017. 150 f. Dissertação (Mestrado em Arquitetura e Urbanismo)Universidade de São Paulo. 2017.

LINK. A evolução da internet até os dias atuais. Link Design Brasil, 2022. Disponível em <https://www.linkdesignbrasil.com/a-evolucao-da-internet-ate-os-dias-atuais/>. Acesso em 11 de agosto de 2022.

MAHFUZ, Edson. Caixas de Surpresa: Edifício Larkin, Frank Lloyd Wright (1903-1905) e Caja Granada, Alberto Campo Baeza (1992-2001). Vitruvius, 2019. Disponível em <https://vitruvius.com.br/revistas/read/projetos/19.220/7338>, acesso em 5 de junho de 2022.

MAJEROWICZ, Daniel. Entrevista/Facilities Unidos: AKMX projeta futuro dos escritórios em meio à pandemia de covid-19. Entrevista concedida a Associação Brasileira de Facility Management, Property e Workplace, ABRAFAC, em 17 de Julho de 2020. Disponível em < https://abrafac.org.br/noticias/entrevista-facilities-unidos-akmxprojeta-futuro-dos-escritorios-em-meio-a-pandemia-de-covid-19/>. Acesso em 16 de maio de 2022.

MANTESI, Eirini. CHMUTINA, Ksenia. GOODIER, Chris. The office of the future: Operational energy consumption in the post-pandemic era. In: Science Direct. Energy Research & Social Science, 87. Elsiever, Loughborough, 2022.

MOFO Workspaces. PLANOS para uso FREQUENTE: Cotas de 30, 60 ou 90 horas/mês. Disponível em <https://www.complexomofo.com.br/espaco-de-estacoes/> Acesso em 3 de julho de 2022.

MORAES, Denise. Entrevista/Facilities Unidos: AKMX projeta futuro dos escritórios em meio à pandemia de covid-19. Entrevista concedida a Associação Brasileira de Facility Management, Property e Workplace, ABRAFAC, em 17 de Julho de 2020. Disponível em < https://abrafac.org.br/noticias/entrevista-facilities-unidos-akmx-projeta-futurodos-escritorios-em-meio-a-pandemia-de-covid-19/>. Acesso em 16 de maio de 2022.

105

MORAIS, Leonardo D. Guilda Coworking: Espaço de trabalho colaborativo para trabalhadores do conhecimento da indústria da construção civil. Orientadora: Cione Fona Garcia. 2019. 145 f. TFG (Graduação) – Faculdade de Arquitetura, Universidade Federal da Bahia, 2019.

ONU. Folha informativa sobre COVID-19. OPAS - Organização Pan-americana da Saúde, 2021 a. Disponível em < https://www.paho.org/pt/covid19>. Acesso em 10 de agosto de 2022.

ONU. Número de pessoas em Trabalho Remoto aumentou 10 vezes na América Latina. Organização Internacional do Trabalho. Organização das Nações Unidas, jul. 2021 b. Disponível em <https://news.un.org/pt/story/2021/07/1756362>. Acesso em 5 de abril de 2022.

ONU OMS afirma que COVID-19 é agora caracterizada como pandemia. OPASOrganização Pan-americana da Saúde, 2020. Disponível em <https://www.paho.org/pt/news/11-3-2020-who-characterizes-covid-19-pandemic>. Acesso em 19 de junho de 2022.

ONU. Transformando Nosso Mundo: A Agenda 2030 para o Desenvolvimento Sustentável. ONU (Organização das Nações Unidas), 2015. 49 f Traduzido por Centro de Informação das Nações Unidas para o Brasil, UNIC Rio. 2015.

PAIVA, Andréa de. Neuroarquitetura e as estratégias para melhorar a produtividade do seu escritório. Athié Wonrath & Trends. Disponível em <https://www.athiewohnrath.com.br/aw-e-trends/neuroarquitetura-escritorio/>. Acesso em 4 de agosto de 2022.

PANERO, Julius; ZELNIK, Martin. Dimensionamento Humano para Espaços Interiores: Um livro de consulta e referência para projetos. Editorial Gustavo Gili, SL, 1ª Edição. Barcelona, 2002

PEREIRA, Matheus. Escritório Veolia / Pitá Arquitetura. ArchDaily Brasil, 2020. Disponível em <https://www.archdaily.com.br/br/953167/escritorio-veolia-pitaarquitetura>. Acesso em 22 de julho de 2022.

PINTOS, Paula. Esferas da Amazon. ArchDaily Brasil, 11 Jul 2019. Disponível em <https://www.archdaily.com.br/br/920632/esferas-da-amazon-nbbj>. Acesso em 11 de agosto de 2022.

PITÁ Arquitetura (pitaarq). Um dia na Pitá. Instagram, janeiro de 2021. Disponível em <https://www.instagram.com/p/CJ_cAs6FVnj/> Acesso em 26 de julho de 2022

PITÁ. Projetos: Veolia. Pitá Arquitetura, 2020. Disponível em <https://www.pita.arq.br/pt/projetos/veolia>. Acesso em 25 de julho de 2022.

PONTES, Letícia.; DANSKI, Mitzy T. R.; PIUBELLO, Simone M. N.; PEREIRA, Jéssica F. G ; JANTSCH, Leonardo B; COSTA, Letícia B ; SANTOS, Juliana O.; ARRUÉ, Andrea M. Perfil clínico e fatores associados ao óbito de pacientes COVID-19 nos primeiros meses da pandemia Escola Anna Nery 26, 2022.

PORTOBELLO. Sala de descompressão: tendência para escritórios no pós-pandemia. ArchTrends Portobello. 3 de janeiro de 2022. Disponível em < https://archtrends.com/blog/sala-de-descompressao/>. Aesso em 7 de agosto de 2022.

106

PRATA, Erica. In: Congresso Brasileiro de Facility Management, Property & Workplace: Construindo o Futuro – Celebrando o Ambiente, 2020. São Paulo. AKMX fala sobre vivência híbrida dos escritórios. São Paulo, outubro de 2020. Disponível em < https://abrafac.org.br/noticias/congresso-abrafac-2020-akmx-fala-sobre-vivenciahibrida-dos-escritorios/> Acesso em 16 de maio de 2022.

SADER, Ana P. C. A Desterritorialização do escritório na Era da Informação: trabalho, tecnologia e cultura organizacional. Orientadora Elisabetta Romano. 2007. 247 f. Dissertação (Mestrado em Tecnologia da Arquitetura) - Universidade de São Paulo. 2007.

SALERNO JÚNIOR, Edson. Integração entre qualidade do ar de interiores, arquitetura e sistemas de condicionamento de ar em estabelecimento assistencial de saúde. Orientador Murilo Daniel de Mello Innocentini. 2019. 164 f. Dissertação (Doutorado em Tecnologia Ambiental) – Universidade de Ribeirão Preto, UNAERP, 2019.

SCJOHNSON. Frank Lloyd Wright e H. F. Johnson Jr: uma lendária parceria para a arquitetura americana. SC Johnson, 2020. Disponível em <https://www.scjohnson.com/pt-pt/a-family-company/the-johnson-family/hf-johnsonjr/frank-lloyd-wright-and-hf-johnson-jr-a-legendary-partnership-for-americanarchitecture>. Acesso em 5 de junho de 2022

SAVAL, Niki. Birth of the Office. N Plus, 2008. Disponível em https://www.nplusonemag.com/issue-6/essays/birth-of-the-office/. Acesso em 10 de agosto de 2022.

SOARES, Guilherme. O que é Coworking? Como funciona esse modelo e vantagens. Contabilizei. Conteúdos Contábeis, 2022. Disponível em < https://www.contabilizei.com.br/contabilidade-online/o-que-e-coworking/>. Acesso em 4 de julho de 2022.

SOUHI, Dima. Como os espaços de trabalho evoluíram de cubículos para cafeterias. ArchDaily, 2020. Disponível em < https://www.archdaily.com.br/br/937275/como-osespacos-de-trabalho-evoluiram-de-cubiculos-para-cafeterias>. Acesso em 10 de agosto de 2022.

STEELCASE. Changing Expectations and the Future of Work: Insights from the pandemic to create a better work experience. Steelcase Global Report. Jan, 2021 (a). Disponível em <https://www.steelcase.com/content/uploads/2021/02/2021_AM_SC_GlobalReport_Changing-Expectations-and-the-Future-of-Work-2.pdf>. Acesso em 4 de agosto de 2022.

STEELCASE. Designing a Better Work Experience: Four new design principles meet new employee needs. Steelcase, 2021 (b). Disponível em <https://www.steelcase.com/research/articles/topics/work-better/designing-betterwork-experience/?pdf=1>. Acesso em 6 de agosto de 2022.

STEELCASE. Four Essential Solutions for the Hybrid Workplace: New spaces and products give people what they need now. Steelcase, 2021 (c). Disponível em <https://www.steelcase.com/research/articles/four-essential-solutions-hybridworkplace/>. Acesso em 4 de agosto de 2022.

STEELCASE. Think Better Neuroscience: The Next Competitive Advantage. 360 Magazine, Edição 11: Think Better. 2015.

107

STEELCASE. Together Again: Shared Spaces in the Post-COVID Office. Steelcase. Jun, 2020. Disponível em <https://www.steelcase.com/research/articles/topics/post-covidworkplace/better-together-future-shared-spaces-office/>. Acesso em 7 de agosto de 2022.

SZATKOWSKI, Felipe. Viagem ao Vale do Silício: visitamos o Googleplex, sede do Google! Canaltech. Abril, 2013. Disponível em <https://canaltech.com.br/eventos/viagem-vale-do-silicio-visita-ao-google-5/>. Acesso em 12 de agosto de 2022.

TABACOW, Maria Fernanda. Coworking Escola PORTAL by MOFO. MOFO Workspaces, 2021. Disponível em <https://youtu.be/RatU06hfSu0>. Acesso em 3 de julho de 2022.

TAYLOR, Frederick Winslow; trad. Arlindo Vieira Ramos. Princípios de Administração Científica. 8. São Paulo: Atlas, 1990.

THE RICHEST. Inside Google's Insane Headquarters Googleplex. The Richest, 2021. Disponível em <https://youtu.be/rMt8voLhnrc>. Acesso em 12 de agosto de 2022.

VASCONCELOS, Yuri. A Breve História do Escritório. Funcional Mobiliário Corporativo, 2017. Disponível em <https://funcional.com.br/breve-historia-do-escritorio>. Acesso em 5 de junho de 2022.

VEOLIA. Estamos de Casa Nova Veolia Brasil, 2021 (a) Disponível em <https://www.linkedin.com/feed/update/urn:li:activity:6739971988208545793/>. Acesso em 25 de julho de 2022.

VEOLIA. Veolia in brief. Disponível em <https://www.veolia.com/en/veolia-group/profile>. Acesso em 22 de julho de 2022.

VEOLIA. Veolia lança solução digital inteligente para meio ambiente no Brasil: o Hubgrade VEOLIA, 2021 (b) Disponível em <https://www.veolia.com/latamib/pt/noticias/veolia-lanca-solucao-digital-inteligentepara-meio-ambiente-no-brasil-o-hubgrade>. Acesso em 25 de julho de 2022.

VILLAROUCO, Vilma; ANDRETO, Luiz F. M. Avaliando desempenho de espaços de trabalho sob o enfoque da ergonomia do ambiente construído. Produção, v. 18, n. 3, p. 523-539, 2008.

VOORDT, Theo J. M. vand der; WEGEN, Herman B. R. van. Arquitetura sob o olhar do usuário: programa de necessidades, projeto e avaliacao de edificações. Oficina de Textos, 2013.

WIKIARQUITETURA. Edifício Larkin. Wikiarquitetura, 23 de maio de 2018. Disponível em < https://pt.wikiarquitectura.com/constru%C3%A7%C3%A3o/edificio-larkin/>. Acesso em 9 de abril de 2022.

XAVIER, Silvana; MARCIANO, Marcelo. Liderança inclusiva: como desenvolver essa habilidade. CI&T, 2022. Disponível em < https://ciandt.com/br/pt-br/article/liderancainclusiva-como-desenvolver-essa-habilidade>. Acesso em 10 de julho de 2022

108

ANEXOS

Anexo A. Entrevista com funcionário da Veolia

A entrevista a seguir foi realizada através de uma conversa via LinkedIn, no dia 26 de julho de 2022, com o funcionário Gabriel Fava, assistente de SGI da Veolia Brasil. Todas as respostas do entrevistado estão destacadas em cor azul, e os comentários e perguntas se mantém na cor preta.

1. Quais foram os protocolos de higiene adotados durante o período do Covid-19 dentro da Veolia?

-Usar máscaras, disponibilidade de máscaras para os funcionários, álcool em gel para mesas e para mãos, treinamentos de higienização e uso de máscaras, palestras incentivando a vacinação e o uso de máscaras, folders dizendo a importância do uso das máscaras e como devem ser usadas, bases de álcool em gel na entrada.

2. A veolia produz um sistema de monitoramento da qualidade do ar. Vocês aplicam isso no escritório?

-Atualmente temos uma empresa terceira que realiza o monitoramento e a manutenção

3. As janelas que têm por toda a volta podem ser abertas ou são fixas?

-Variam de acordo com cada contrato, mas falando da matriz em si, as janelas são fixas

4. Quanto à forma de trabalho, quantos funcionários são remotos, híbridos ou presenciais? Qual é a sua forma de trabalho?

-A forma de trabalho dos colaboradores pode ser definida por cada gestor de cada área, tendo apenas 1 regra, que o colaborador precisa vir presencial 2 vezes na semana no escritório Do administrativo, 100% tem essa disponibilidade do híbrido; A operação é 100% presencial.

- Eu trabalho presencial e remoto também Faço híbrido

5. Funcionários de obras também frequentam esse espaço?

-Há funcionários que esporadicamente estão em obras, e frequentam o escritório normalmente.

6. As estações de trabalho são fixas por pessoa, ou cada um tem um notebook e pode escolher trabalhar em outro posto de trabalho?

- Os postos de trabalhos não são fixos, cada colaborador tem um notebook e trabalha onde bem entender, sempre alinhando com o gestor da área

109

7. Você saberia dizer o que são esses ambientes em verde? Seria possível também ter acesso a foto desses ambientes?

- Todos são salas de reuniões. Menos esse com a seta laranja que é um lugar pro café, onde fica máquinas de café e uma baia pra impressora.

-Eu tinha pensado que talvez esse ambiente em azul pudesse ser um "mommy room", que é uma proposta que eu já vi em outro caso sobre um espaço que as mães podem ir para amamentar ou tirar o leite, com uma poltrona e uma pia.

-Sim sim, é exatamente isso. Ia falar isso agora pra você

-Tirando esses dois pontos os outros são salas de reunião mesmo

-Entendi!! Aí essas salas só são utilizadas pelos funcionários mesmo, né?

-Sim

8. Posso mencionar o seu nome na pesquisa quando me referir aos assuntos que foram conversados por aqui?

-Claro Muito obrigada! Se por acaso você conseguir foto desses ambientes em verde, eu te agradeço muito! Seria ótimo para complementar a pesquisa.

- Então, as fotos dos locais eu não poderei encaminhar por regras da empresa Eu não sabia se podia ou não e tirei a dúvida com meu gestor hoje.

- Ah sim. Entendo. Eu imaginei que isso pudesse acontecer. Muito obrigada de qualquer forma. Foi ótimo poder trocar essas informações com você.

110

Termo de Compromisso

Eu, Bianca da Cunha Bandeira Rodrigues, aluno regularmente matriculado no Curso de Arquitetura, Cidade e Sustentabilidade do Programa Lato-sensu de PósGraduação do Centro Universitário Belas Artes de São Paulo, declaro que o conteúdo da monografia intitulada: Conforto em Ambientes Corporativos: aspectos de projeto arquitetônico com enfoque na ergonomia e conforto térmico é autêntico, original, e de minha autoria exclusiva. As obras consultadas e as transcrições dos textos de apoio foram devidamente citadas e referenciados.

Estou ciente de que, por ocasião da entrega do trabalho ou a qualquer tempo, caso o mesmo seja caracterizado como plágio total ou parcial, estarei reprovado(a), sem direito à revisão de notas, e sujeito(a) às sanções previstas por lei.

Sorocaba, 12 de agosto de 2022

Cunha Bandeira Rodrigues

111
B
ANEXO
da

Turn static files into dynamic content formats.

Create a flipbook
Issuu converts static files into: digital portfolios, online yearbooks, online catalogs, digital photo albums and more. Sign up and create your flipbook.