Skip to main content

ARCHITECTURAL PORTFOLIO_BHAVYA SHAH

Page 1

PORTFOLIO ARCHITECTURAL

BHAVYA SHAH

bhavyashah0308@gmail.com

WORK | 2020-2024 01
8010380516 SELECTED

BHAVYA SHAH | 22 (AGE)

I, Bhavya Shah, am an undergraduate student of architecture, applying as an intern. Architecture for me has always been all about space, texture, material and light. I have been curious about both the reality and imagination of architecture. Here on I wish to further dive into other aspects of architecture and improve my abilities to work as an professional in near future. It’s my pleasure to apply in your firm.

❑ EDUCATION

- AES Ashokbhau Firodia English Medium School, Ahmednagar SSC | (2006-2018 )

- Shri Ramkrishna Education Foundation, Ahmednagar HSC | (2018-2020 )

- Aayojan School of Architecture and Design, Pune B.ARCH | 2024 ( PURSUING )

❑ ARCHITECTURAL COMPETITION

- NASA 64th OAN TROPHY | (2022)

- NASA 64th GRIHA TROPHY | (2022)

- NASA 65th ANDC TROPHY | (2022)

- NASA 66th ANDC TROPHY | (2023)

- COA HERITAGE COMPETITION | (2023) SELECTED

❑ LANGUAGES

- English

- Gujarati

- Hindi

- Marathi

❑ EXTRA CURRICULAR

- Head boy | AES school | (2018)

- Vice General Secratory of students council | (2022-23)

- IIT kanpur – earthquake resistant | (2023)

- Ai mastery coarse | (2023 pursuing)

- Stad pro software workshop at banglore (ANC) | (2022)

- Edge software elective | (2024)

- Dronogrammetry | (2024)

- Basketball player

❑ SOFTWARE SKILLS

AUTOCAD | PROFICIENT

SKETCHUP| PROFICIENT

LUMION| PROFICIENT

PHOTOSHOP| COMPETENT

RESIST | PROFICIENT

❑ SKILLS

- Model making

- Leadership

- Drafting

- Teamwork

- Rendering

- Problem solving

- Photography

REVIT | NOVICE

ARCHICAD| NOVICE

V-RAY| NOVICE

INDESIGN | COMPETENT

POWERPOINT | PROFICIENT

❑ WORK EXPERIENCE

- Intern at studio thread101, Pune Time duration – 3 months

- Ar. Rutuja Kendurkar

Work done-

On site work, site visits

Designing

3d & rendering

C U R R I C U L U M V I T A E
02
CONTENT BUNGLOW DESIGN ( SEM3 ) HOSPITAL DESIGN 01 02 05 - 06 07 - 10 ( SEM6 ) 03
05 06 03 04 TECHNICAL SHEETS WD , ABCS HOUSING DESIGN CAMPUS DESIGN COMPETITIONS NASA , COA MISCELLANEOUS MODEL , PHOTOGRAPHY 07 04 23 - 26 27 - 28 19 - 22 15 - 18 11 - 14 ( SEM7 ) ( SEM5 )

BUNGLOW DESIGN

Design A Bungalow In Ahmedabad With Contemporary Architecture, Incorporating Traditional Elements For Cultural Relevance. Emphasize Natural Light, Ventilation, And Sustainable Materials For Eco-friendliness. Prioritize Spaciousness, Functionality, And Privacy In The Layout, With Seamless Indoor-outdoor Transitions. Incorporate A Rooftop Garden Or Terrace For Leisure And Relaxation Ensure The Design Reflects The Client's Preferences While Adhering To Local Building Regulations And Climate Considerations

CLIENT’S STORY

A Family Of Six, Including Grandparents, Parents, And Children, Leads A Luxurious Lifestyle. The Father, A Successful Businessman, Is Supported By The Grandfather In Business Matters While The Grandmother Focuses On Religious Activities. The Older Boy Enjoys Cricket, The Younger Girl Is Interested In Playing The Piano, And The Mother Loves Experimenting With New Dishes. They Prefer A Spacious Bungalow With A Front Garden And Travel In An Car, Reflecting Their Affluent Lifestyle

Massing / Form Development – Plinth Level, First Floor Level, Till Head Room

B U N G L O W
3 01 (
SEM
Hand done )
Hand Done Model With Ai Rendering 05
06 B U N G L O W NORTH
WEST
ELEVATION
ELEVATION VIEW VIEW
PLAN FIRST
PLAN
PLAN Terrace Over head water tank Solar water heater Solar electric panels Bedroom 3 Bedroom 4 Hall Balcony Workspace/office Study room Water body Balcony Bedroom 2 Bedroom 1 Dining space Kitchen Semi-open courtyard 3D Model:- Foam Sheet, Box Board, OHP sheet. SITE PLAN LAKE Swimming Pool Gym Parking
TOWARDS SEMI-OPEN COURTYARD
ROOF FLOOR
FLOOR
GROUND FLOOR

02

HOSPITAL DESIGN

SEM 6

The Proposed General Hospital Project In Saswad By The Local Municipal Corporation Aims To Address The Healthcare Needs Of The Semi-urban Population, Including Residents Of Pawar Wadi And Kalewadi. Situated Along The Diveghat Road, It Strategically Connects Saswad Town And Pune City, Ensuring Accessibility For The Community, Especially During Ashadi Ekadashi Celebrations. With A Focus On Well-designed Spaces To Support Healing And Accommodate Evolving Healthcare Technology, The Hospital Will Offer Basic Outpatient, Diagnostic, Surgical, And 24-hour Patient Care Services. This 50bed Facility Aims To Serve As A Healing Space And Contribute To The Overall Improvement Of Healthcare Infrastructure In The Region.

Initiating From The Principles Of Solid Geometry, The Space Is Evenly Partitioned Into Two Identical Areas, With A Quarter Portion Gracefully Curved To Form A Serene Courtyard. Optimal Utilization Of The Southern Side Is Deliberately Chosen For The Placement Of Ot (Operation Theaters), Strategically Capitalizing On Its Unobstructed Nature Without Any Openings. This Thoughtful Approach Ensures The Southern Facade Is Intelligently Utilized To Its Fullest Potential, Enhancing Functionality And Aesthetic Appeal.

H O S P I T A L MASTER PLAN
07
Hand Done Model View Of Hospital Building
BASEMENT PLAN COLUMN LAYOUT & CENTER LINE TOP VIEW Solar Electric Panels & Over Head Water Tanks SECTION BB’ SECTION AA’
A Visual Representation Illustrating The Emergency Access Points, Medical Shop Amenities, And Designated Parking Areas For Firefighting Vehicle.

FIRST FLOOR PLAN

ELEVATIONAL VIEW

FIRST FLOOR – GENERAL WARDS

SECOND FLOOR – OT & ICU WARDS

THIRD FLOOR – SPECIAL ROOMS & CANTEEN

The Design Of The Hospital's Service Entry And Ductwork Reflects A Commitment To Both Functionality And Aesthetic Appeal

The Deliberate Placement And Organization Of These Elements Indicate A Thoughtful Approach To The Operational Efficiency Of The Facility

SECOND FLOOR PLAN

THIRD FLOOR PLAN

H O S P I T A L
09
10 H O S P I T A L
ROOF FLOOR PLAN A Visual Depiction Showcasing The Primary Entrance Of The Hospital . Fourth Floor – Special Rooms & Admin Fifth Floor – Headroom & Terrace Entrance To Hospital At Saswad From The Main Road .
FOURTH FLOOR PLAN FIFTH FLOOR PLAN

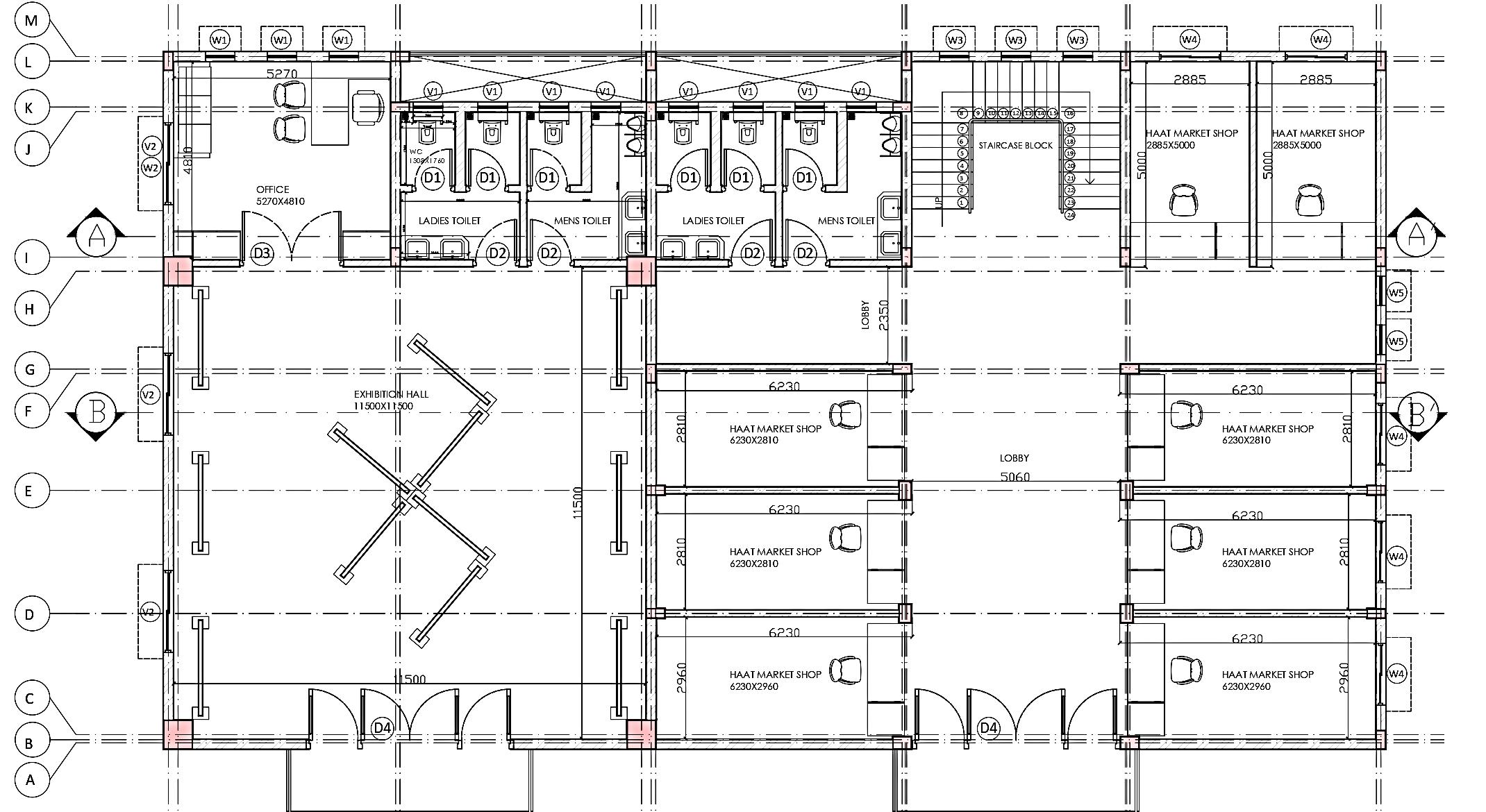
HOUSING DESIGN

SEM 7

The Project Aims To Reimagine Worker Housing In India By Designing An Integrated, Mixed-use Housing Project Comprising 200-250 Tenements In The Kasurdi Midc Area Of Pune. Managed By A Cooperative Society Composed Of Employees From Various Industries Within The Midc, The Housing Scheme Also Offers Affordable Housing Options For Students From Nearby Colleges

03
H O U S I N G M A S T E R L A Y O U T SITE SECTION AA, 11

AMENITIES & SITE VIEWS

INDUSTRIAL HOUSING PROJECT

An Affordable Industrial Housing Project In Pune Aims To Address The Housing Needs Of Workers In The Industrial Sector Located Strategically Near Industrial Zones, It Offers Affordable Housing Options Tailored To The Income Levels Of Workers The Project Emphasizes Efficient Space Utilization And Cost-effective Construction Methods To Keep Prices Low With Amenities Catering To The Needs Of Industrial Workers And A Focus On Accessibility, It Provides A Viable Solution To The Housing Challenges Faced By This Demographic In Pune.

BUNGLOW PLAN FOR CEO

MEDITATION SPACE PLAN &

COMMUNITY HALL PLAN

12 H O U S I N G PLAN PRIMARY HEALTH CARE CENTER, SECURITY OFFICE GYM AT G+1
3D VIEW
H O U S I N G STUDIO APPARTMENT PLAN AT – 1, 3, 5 LEVELS X 2 STUDIO APPARTMENT PLAN AT – 2, 4, 6 LEVELS X 2 MODULAR UNIT OF STUDIO APPARTMENT 1 BHK APPARTMENT PLAN X 2
SECTION AA’ ELEVATIONAL VIEW OF I BHK APPARTMENT SECTION AA’ SECTION BB’ VIEW OF STUDIO APPARTMENT
STUDIO & 1 BHK APPARTMENT 13
VIEW OF 1 BHK APPARTMENT
14 H O U S I N G
ELEVATIONAL VIEW OF I BHK DUPLEX APPARTMENT SECTION BB’
MODULAR UNIT
2 BHK APPARTMENT 2 BHK APPARTMENT PLAN 1 BHK DUPLEX APPARTMENT PLAN X 2
VIEW OF 1 BHK DUPLEX APPARTMENT
OF
SECTION AA’ SECTION AA’
1 BHK DUPLEX & 2 BHK APPARTMENT
VIEW OF 2 BHK APPARTMENT

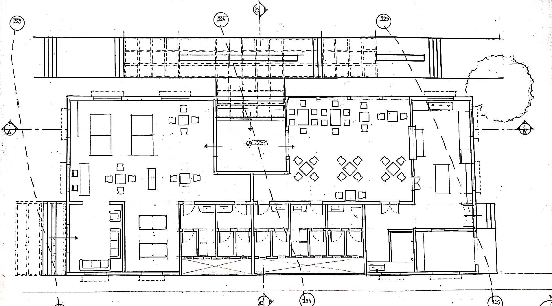
ENTREPRENEUR FACILITATION CENTER

The Project Aims To Establish An Entrepreneur Facilitation Center In Pune, Led By The Bavdhan Corporator, Offering Top-tier Infrastructure, Mentorship, Funding, And Industry-academia Connections. It Will Nurture A Collaborative Environment For Diverse Individuals To Innovate, Ensuring Inclusivity And Integration With The Surrounding Community While Accommodating A Sloping Site.

04
SEM 5 GROUND FLOOR PLAN
CAMPUS DESIGN
( Hand Done ) 15

SECTION AA’

INITIAL OPTIONS FOR COMPOSITION AND MASING

ON SCALE MASSING FOR OPTION 2

SECTION BB’

16 C A M P U S
SECTION
FIRST FLOOR PLAN
SITE
BB’
CAFÉ & SPORTS AREA DETAIL PLAN
SECTION AA’ SECTION BB’ ADMIN AREA DETAIL PLAN SITE SECTION CC’ ROOF FLOOR PLAN
17
VIEWS OF ENTREPRENEUR FACILITATION CENTER, CAMPUS DESIGN

SITE VISIT VIEWS

Observations Of The Ongoing Construction Process Of Three Villas Situated In Karjat, Focusing Particularly On The Valuable Learning Experience Gained From The Implementation Of Filler Slab Technique And Effectively Managing Double-height Spaces.

TWIN VILLAS PLAN

VILLA PLAN WITH SWIMMING POOL

Over The Course Of Three Months, Significant Progress Has Been Made, Primarily Focusing On The Meticulous Planning And Execution Of Detailed Plans And 3D Renderings For The Villas. This Involved Frequent Site Visits, On-site Marking, And Coordination With Contractors And Workers, Resulting In A New And Enriching Experience. Effective Communication And Collaboration With The Owner Were Also Key Aspects Of The Project During This Timeframe.

18 WORK EXPERIENCE
W O R K E X P E R I E N C E
OUT KITCHEN PLAN
AT STUDIO THREAD101, PUNE SITE LOCATION – KARJAT, RAIGAD DISTRICT PROJECT TYPE - VILLA
INTERN
WORKING DRAWING WD II - SEM 6 COLOUMN LAYOUT GROUND FLOOR 19
20
SECTION BB’ TOILET LAYOUT
ELECTRICAL LAYOUT CEILING LAYOUT DESIGN PLAN
ADVANCED BUILDING CONSTRUCTION & SERVICES I ABCS I - SEM 7 B-1 FIRE SERVICE LAYOUT RAMP GOING DOWN TO - FLOOR COMING UP - FLOOR ELECTRIC METER ROOM RAMP GOING DOWN TO - FLOOR RAMP COMIN FROM B-2 FLOOR UP -3850 -3550 -3850 MULTI PURPOSE HALL HVAC ROOM FIRE FIGHTNING RAMP GOING DOWN TO - FLOOR RAMP COMING UP FROM - FLOOR HVA ROOM ELECTRIC METER ROOM RAMP GOING DOWN TO - FLOOR RAMP COMIN FROM B-2 FLOOR -3850 UP -3550 -3850 FIRE FIGHTNING RAMP GOING DOWN TO - FLOOR RAMP COMING UP FROM - FLOOR B-1 ELECTRICAL LAYOUT B-1 VENTILATION & DRAINAGE LAYOUT MULTI LEVEL BASEMENT 21
22 SWIMMING POOL INDUSTRIAL SHADE

We Are Proposing A Sustinable Gst Building. The Plan For Building Is Modelled, Taking Into Consideration Climate Change And Its Surroundings. The Site Is Located Near A Gst Building, Kamala Nehru Nagar, Ghaziabad, Uttar Pradesh. It Is Barren Land With An Ara Of App. 8959 M2. As The Is Site Is Located In Uttar Pradesh, It Predominantly Has Hot And Dry Climate. But In Recent Years, Due To Climate Change, The City Of Ghaziabad Has Been Receiving More Than Avg. Rain.

NASA , COA NASA 64th GRIHA TROPHY (SEM 3)
ARCHITECTURAL COMPETITIONS
SERVICES OVERHEAD WATER TANKS DUCTS
CENTRAL STAIRCASE CORRIDORS & BRIDGES FIRST FLOOR PLAN SECOND FLOOR PLAN SECTION AA’ SECTION BB’ 23
FIREFIGHTING STAIRCASE

The Assignment Explores The Intricate Relationship Between Time, Space, And Societal Importance Within Key Community Zones. It Aims To Address The Evolving Nature Of These Spaces, Balancing Preservation With Progress While Transcending Temporal Constraints. Through Meticulous Engagement And Research, It Seeks To Identify And Transform Zones Of High Societal Significance Through Architectural Intervention. The Project Envisions A Resilient Urban Landscape That Honors The Past, Navigates The Present, And Paves The Way For A Vibrant Future

A Pergola Was Proposed For The Fruit Market

Adjecent To Shivaji Market As A Design Intervention

Gutter Detail As Intervention As Their Was Existing Open Gutter

DESIGN INTERVENTION

A Public Seatout Which Was Proposed For People Around The Market

A Fabrication Frame With Flowing Way

Shows The Photos And History Os Shivaji Market

SURROUNDINGS

24 NASA 65th ANDC TROPHY (SEM 5)
SECTION ROOF PLAN PLAN
TOP ISOMETRI VIEW OF SHIVAJI MARKET OF SHIVAJI MARKET

We Observed The Relation And Connection Between All The User Categories Of Varied Age Groups. Our Inference Pointed Towards The Need For Recreational Space For Students Which Will Give Them A Quick Break From Academic Jorney. Such Recreational Space Would Promote Interaction Betwwen Students And Teaching, Non-teaching Staff And Also With Supportive Staff. This Pavilion Will Act As A Simple Yet Effective Relaxation Therapy, Which Will Optimise The Academic Progress Of Students, Increase The Bonding Among All The User And Turn Our Site Into A More User-friendly Space

ANTROPOMETRIC ANALYSIS

BROKEN CHAIRS

In The Rubble At The College, There Were Many Shattered Plastic Chairs, Instead Of Recycling Them, We Came Up With The Idea Yo Turn Them Into Stools So They Might Once Again Be Used For Siting. We Broke The Back Rest Of The Chair. Which Were Used For Board Games. Used In Forward Leaning As Designed

DISMANTABLE TABLE

STUDENTS PLAYING CHESS ON FURNITURE MADE BY RECYCELED MATERIAL

Discarded Pvc Pipes Of Various Diameters Were Used To Construct The Table Bodies. To Give The Table The Required Stability And Strength They Were Joined Together. The Table Top Was Made Out Of An Acrylic Sheet That Was Found Among The College Trash. The Tables Are Designed So That They May Be Taken Apart And Put On The Façade Walls To Serve As Storage For Some Board Game Equipment.

WEST SIDE SECTIONAL ELEVATION

CREATIVE FAÇADE

EAST SIDE SECTIONAL ELEVATION

An Attractive Paneled Façade Was Constructed Using A Grid What Was Made By Combing Leftover Casing

Capping Channels. Segregated According The Existing House Colours.

25 NASA 66th ANDC TROPHY (SEM 7)
PROPOSED DESIGN PLAN SECTION TROUGH ART COURT

Victorian And European Influence: Gabled Roofs, Ornate Banisters, Pilasters, Columns, And Decorative Doors And Windows. These Houses Beautifully Imitate The Victorian Architectural Style, Giving Them A Unique Charm

COA HERITAGE COMPETITION

The Purpose Of This Competition Was To Document The Heritage Of The City , We As A Group Documented Architectural Heritage Of Siddhpur, Gujarat.

Siddhpur Is Classified Into 3 Major Areas Juna Bohrwad, Naya Bohrwad & Braminwad.

This Sheet Gives The Glims Of Naya Bohrwad, Siddhpur & Entire Documentation Is Handone.

The Bohri Houses Have Significant Cultural And Heritage Value. They Are Not Only A Reflection Of The Architectural Fusion But Also A Testament To The Community's History And Success As Traders Who Traveled Abroad And Brought Back Design Inspirations From Their Journeys.

PARIS LANE ELEVATION
PARIS LANE ELEVATION PLAN ISLAMPURA NAYA BOHRWAD
VIEW OF NODE AT NAYA BHORWAD
(SEM 7) 26

MISCELLANEOUS MODEL MAKING, PHOTOGRAPHY

PAPER ART

Completely Made Of Interlocking

Own Bunglow Model

Completely Made Out Of Box Board, Before Ar. College.

DOCUMENTATION
MODELS &
CUBE Out of Eraser KITCHEN MODEL (SEM 2 HOSPITAL MODEL (SEM 6) INSTALLATION DESIGN (SEM 3)
27
Working Installtion From Cube And Sphere , Intricate Cutting, Play Of Light And Shadow
28
PHOTOGRAPHY

8010380516

bhavyashah0308@gmail.com

Turn static files into dynamic content formats.

Create a flipbook
ARCHITECTURAL PORTFOLIO_BHAVYA SHAH by Bhavya Shah - Issuu