[Outdated] Beth Campbell | University of Waterloo | Selected Works 2024

Page 1


Hi, my name is Beth.

I am a second-year student at the University of Waterloo School of Architecture.

I am not only interested in architecture but design as a whole and how culture impacts design and vice versa. Drawing inspiration from fashion, film, product design and graphic design I believe everything is connected and so my designs and ideas should reflect that. My sense of style is driven by nostalgia, sustainability, and community. We are in an age where we are becoming very aware of how we are impacting the earth and how the digital age has changed how we interact with each other. I believe there is this growing need to feel at home and comforted in a world that can be very cold and isolating. Bringing warmth, coziness and novelty to my projects creates a sense of connection that I believe is so important. (647) 678-5115

bcampbel@uwaterloo.ca Contact me!

Beth Campbell

Jan. - Apr. 2024

Edmonton, AB

Senaltek Architecture Planning + Design

Architectural Co-op Student

• Markeing and promotional work

• RFP response writing and development

• Project and file management

• Project lead for multiple TI scopes

• Drafting and standards management

• Worked closely with building code

CGS Architects May 2023

Hamilton, ON

Jun. - Aug. 2022 - 2023

Haliburton, ON

Architectural Intern

• File and material library management

• AutoCAD drafting

• Selected interior finishes and created SI documents

• Material palletes and elevations in Illustrator

YMCA Wanakita

Overnight Camp Counsellor

• Outdoor educator

• Collaborated to plan and deliver the leadership training program

• Developed new and creative programming

Sept. 2020 - Jun. 2022

Hamilton, ON

Designwerx

Senior Graphic Designer

• Communicated with clients and Jr. Designers, to create thoughtful and Creative branding and promotional material for businesses.

Distinctions

Feb. 2023

Aug. 2022

University of Waterloo Athletic Financial Award

Awarded to select Varsity athletes to recognize athletic talent and contribution to Warrior Athletics, their team, and the school.

University of Waterloo President’s Scholarship

Achieved admissions average of 90% to 94.9%.

University of Waterloo

Bachelor of Architectural Studies Honors Co-op

Education Experience Skills

Rhino 7 AutoCAD

SketchUp Enscape Illustrator InDesign

Photoshop

Premiere Pro GIMP Canva Hand drafting Model making

Photography Sketching

3D printing Laser cutting

Hobbies

Galt Publication Camping

Sewing Rowing

Yoga

Gardening

December 1, 2023

To whom it may concern,

It is with great pleasure that I write a letter of reference for Beth Campbell. Beth joined CGS Curran Gacesa Slote Architects Inc. as architectural student for a month in 2023. I was her supervisor for the duration of her time here, and worked closely with her on various projects.

Beth came to our firm after completing her first year in architecture at the University of Waterloo. Her enthusiasm for the field was evident from the outset, and she displayed a remarkable dedication to learning and contributing to our projects. She showed great promise in her understanding of architectural concepts and was eager to apply her academic knowledge in practical settings.

During her time with us, Beth exhibited a strong work ethic, attention to detail, and a keen desire to understand the intricacies of architectural design. She actively engaged in various tasks, demonstrating her ability to work both in dependently and collaboratively within our team. Her willingness to take on new challenges and her proactive approach to problem-solving were commendable

Beth's effective communication skills, coupled with her creative thinking and eagerness to learn, greatly benefited our projects. She consistently demonstrated a willingness to go above and beyond what was expected of her as an intern.

It is without hesitation that I recommend Beth Campbell. Her passion for architecture, coupled with her dedication and capabilities, make her a valuable asset to any architectural endeavor she chooses to pursue. I am confident that she will continue to excel and contribute positively to the field.

Should you require any further information, please do not hesitate to contact me.

Regards,

Contents

Canopy

Studio | 1B Design Studio Software | Rhino, Enscape, Illustrator, Photoshop, InDesign Supervisor | Isabel Ochoa

Located in Kitchener, Ontario’s Victoria Park, “Canopy” looks to replace the existing foot bridge with a new partially covered bridge. The pedestrian bridge takes inspiration from the surrounding environment of the park to incorporate seamlesly with the surroundings. Constructed primarily of weathering steel, the bridge is meant to mimic a tree canopy through varied perforation.

Looking ahead

Longitudinal section

Lookout

Exploded axonometric

Jewlery Box

Studio | 2A Design Studio

Software | Rhino, Enscape, Illustrator, Photoshop, InDesign Supervisor | Lola Sheppard

In the heart of Chinatown in Toronto, this archive of romanitic tokens and jewlery explores the experience of making and gifting something important. This project aims to bring together the local jewlery store community and highlight the culural meanings and significance of different artifacts.

Ground floor plan
Third floor plan
Second floor plan

Morphology Diagrams

The two highligted voids act as a language to seperate key spaces while connecting them through a key space. The orange void centrilaizes the making aspect of the programming with a public workshop. The blue void centrilizes the visiting and viewing program in the form of an outdoor courtyard.

Courtyard View
Plan View
Section View

Section Perspective

Bloom

School | Environmental Building Design

Software | Rhino, Enscape, Adobe Suite, Climate Consultant

Collaborator | Nara Kang

Supervisor | Anna Beznogova

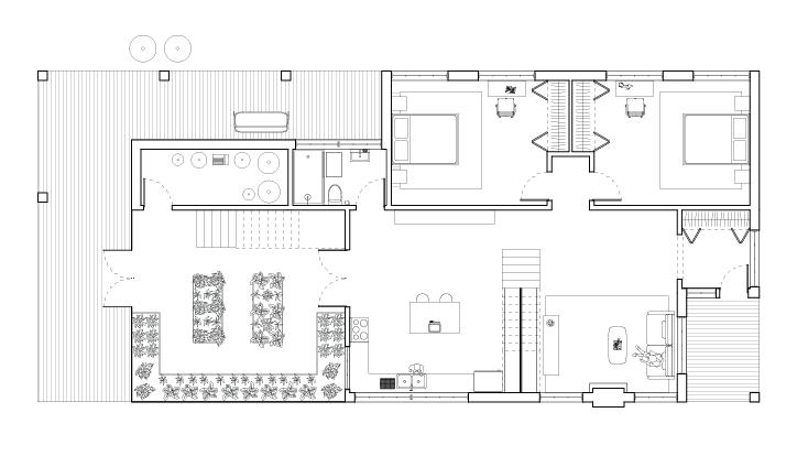
Located in Ontario’s Haliburton Highlands the oasis inhabits a live-work space for two botanists. The off-grid house offers passive heating and cooling strategies including insulation suitable for a house in northern Ontario, sustainable energy sources and a net-zero water system. In addition, materials such as window frames, brick, and concrete were salvaged and reused insitu from the existing uninhabited building.

With a greenhouse and a loft workspace the oasis is a warm and welcoming home for botanists to study the local flora yearround.

Context plan Southeast elevation Southwest elevation

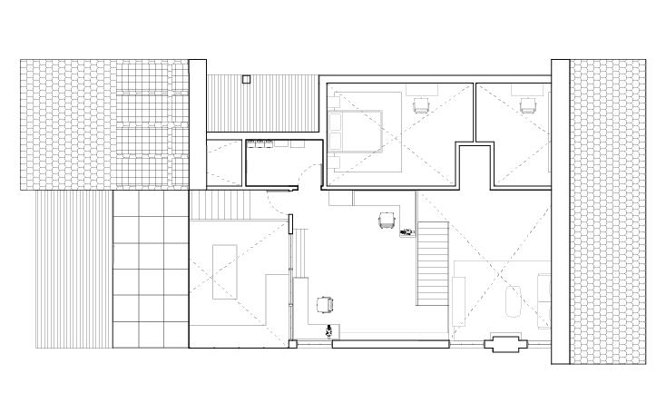
Ground floor plan

Second floor plan

PHOTOVOLTAIC PANELS

SOLAR WATER HEATER

INVERTER

GENERATOR

GEOTHERMAL RADIANT FLOOR HEATING

COMPOSTING TOILET

POTABLE STORAGE

PRESSURE TANK

CARBON FILTER

CHLORINE FILTER

RAINWATER STORAGE

Systems axonometric

BREAKER

SOLAR BATTERIES

GREYWATER STORAGE

SAND FILTER

Living Room

Studio | 1B Design

Software | Rhino, Enscape, Illustrator, Photoshop, InDesign Supervisor | Isabel Ochoa

The Living Room is a small branch library in Toronto, Ontario. Taking inspiration from the living rooms of the 70s, this build creates a warm a homey feel for it’s visitors. It works to bring the surrounding comunity together as a hub for all program needs.

Ground floor plan
Front elevation

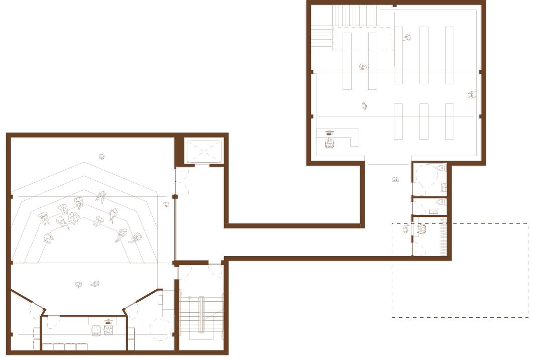
Below grade plan

Second floor plan

Book stacks render

Other Works

Light Study

2A Studio

River and Rowing Museum Case Study

Supervisor - Lola Sheppard

Hospital Interior

2A Cultural Encounters

Utopia Project

Supervisor - Tara Bissett

Light Study

Beinecke Rare Book Library Case Study

Supervisor - Isabel Ochoa

1B Studio

Turn static files into dynamic content formats.

Create a flipbook
Issuu converts static files into: digital portfolios, online yearbooks, online catalogs, digital photo albums and more. Sign up and create your flipbook.
[Outdated] Beth Campbell | University of Waterloo | Selected Works 2024 by Beth. - Issuu