
Contact
Linkedin : Bertille Personnaz
Linktree : bertille_personnaz
Téléphone : +33 6 51 81 89 12
Mail : personnazbertille@gmail.com
projets urbains
Quartier saint-jean, villeurbanne
le village du 207, villeurbanne secteur chabanel, montréal
projets d’architectures
le mur : une salle d’esacalde
quartier saint-jean
le village du 207 une colcoation sur mesure
projets d’aménagements
la mer dans nos f lets promenade lumineuse i
projets divers
projets artistiques
le grand hôtel dieu photos et photomontage
QUARTIER SAINT-JEAN
Réaménagement du quartier par un plan guide, villeurbanne, 2021
Le quartier Saint-Jean est un quartier de Villeurbanne. Il présente de nombreuses problématiques liées à sa position géographique en tant qu’enclave entre un périphérique, un canal et voies principales. Il est essentiellement composé de maison résidentielle côtoyant de grands hangars industriels sans transition. De plus, ce site est dépourvu de centralités, il n’y a pas de véritable place, ni magasins de proximité. Des grands HLM sont laissés à l’abandon et squattés en attendant d’être démolis. Les rues sont inondées de voitures empêchant la circulation piétonne et cycliste.. Nos objectifs, lors du rémanégement de ce quartier, sont : créer de la centralité et de l’attractivité, hiérarchiser les voies, réorganiser le réseau de transport en commun et développer les modes doux (flux piétons et cyclistes en premier plan), organiser une véritable trame verte à travers tout le quartier, densifier le quartier tout en imaginant des ilots luttant contre les phénomènes de chaleur. Nous avons séléctionné trois îlots types pour transposer ces idées à une plus petite échelle.
Légende :
Mixité des typologies
Bâtiments existants
Logements collectifs

Logements collectifs à rezde-chaussée actif
Logements intermédiaires
Bureaux

Résidences étudiantes et logements sociaux
Réafirmation de l’identité du quartier
Parcs citadins
Jardins partagés

Lignes de bus
Ligne de tram
Voies cyclables
Cheminements piétons
Nouvelles attractivités


Places princiaples
Pôle commercial


Pôle sporif
Pôle éducatif



























le village du 207 transformation d’un ilôt de jardins paratgés, villeurbanne, 2022
La parcelle du 207, à Villeurbanne est composée de deux bandes construites reliées par un sol goudronné ce qui forme un phénomène d’îlot de chaleur et de vastes jardins partagés (14 000m²). La densification souhaitée est de 5000 m² de logements tout en conservant l’emprise au saule des jardins dont la morphologie peut changer. Un nouvel accès depuis la rue Flachet doit être imaginé.
La bande construite en limite de parcelle est conservée car elle abrite des activités en pleine croissance. Un parking sillo prend place entre l’entrée et ce bâtiment afin d’effacer les voitures du paysage de l’ilot. Il est traité en façade avec des plantes grimpantes pour le camoufler.
L’entrée dans la parcelle se fait donc par une rue pavée partagée avec la priorité aux piétons et aux cyclistes. Celle-ci permet de rejoindre la rue Francis de Préssensé à la rue Flachet en desservant tous les logements. Un parc linéaire fait le lien entre le bâtiment en sheds existant et une nouvelle bande construite parallèlement. Cette dernière est entrecoupée afin de lutter contre le phénomène de chaleur. La végétation, et l’eau ramenée dans la totalité du site permettent d’apporter de la fraicheur au site.
Deux languages architecturaux cohabitent l’un pour les immeubles de logements collectifs et le second pour les logements intermédiaires et inclusifs. Les bâtiments sont pensés afin de répondre à des enjeux d’intimités tandis que les espaces extérieurs sont avant tout des espaces favorisant les rencontres et les échanges entre les différents usagers du Village du 207. Il y a par exemple des exposition de la galerie d’art dans le parc entre la galerie et les logements collectifs.
ilôt du au coeur
l ’ ilôt du 207 : une architecture nature au coeur d ’ un ilôt de fraicheur
l ’ ilôt du au coeur
l ’ ilôt du 207 : une architecture nature au coeur d ’ un ilôt de fraicheur


l ’ ilôt du 207 : une architecture nature au coeur d ’ un ilôt de fraicheur



l ’ ilôt du 207 : une architecture nature au coeur d ’ un ilôt de fraicheur














secteur chabanel
renouvellement d’un quartier industriel, montréal, 2022
SECTEUR CHABANEL
plan d’ensemble Vision 30ans
Le secteur Chabanel est un ancien quartier de Montréal ayant eu un passé dans le domaine de la mode et l’industrie. Aujourd’hui, il manque de dynamisme, souffre de bruits et beaucoup d’espaces sont laissés vacants. La ville souhaite y installer une cour de voirie.
Afin de renouveller son patrimoine et ses activités nous avons commencé par prendre sa trame, semblable à des fils entrelacés pour déterminer les différentes couches qui compose la zone : les circulations, les bâtiments à conserver ou non, la trame verte et le bruit. Suite à cela, nous avons déterminé les grandes actions à faire pour lancer le projet.
La première est de positionner la cour de voirie en semi-sous-sol et de la recouvrir avec un parc linéaire traversant la totalité du secteur. De cette façon, le camionnage est en contrebas des espaces communs ce qui évite les nuisances sonores. Le parc est mis en tension par deux édifices: la gare et l’hôtel au Sud et un musée au Nord. De plus, il est relié à une trame verte bordant les voies de chemin de fer. S’ajoute à cela le développement d’un marché, d’une zone de restauration et un centre communautaire afin d’attirer des personnes habitant même en dehors du secteur. Pour cela, il fallait créer des porosités dans ce site notamment avec la piétonnisation de la rue de l’esplanade, et les accès au parc par des passerelles entre les immeubles depuis la rue Chabanel.
L’apport de logements était aussi une nécessité car le site en était dépourvu. Les immeubles ont alors été imaginé en fonction des flux publics puis des plus semiprivés afin de déterminer les formes. Les hauteurs varient afin que l’apport d’ensoleillement soit maximal pour tous.







secteur chabanel
renouvellement d’un quartier industriel, montréal, 2022














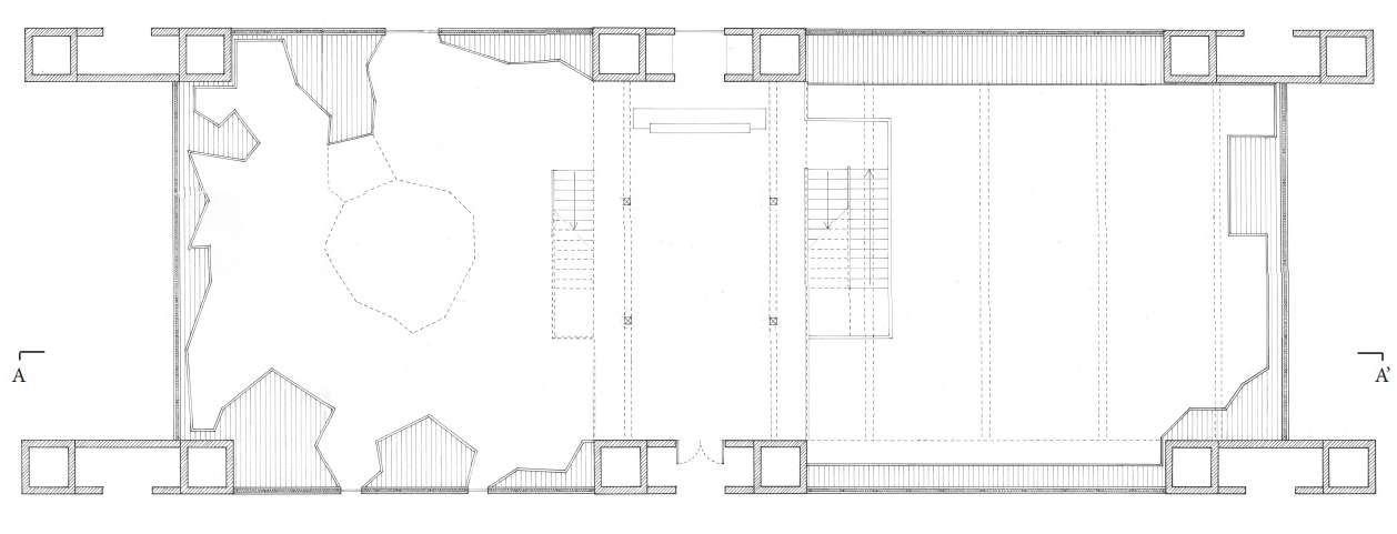
le mur : une salle d’escalade réhabilitation de l’école nationale supérieure d’architecture de lyon, vaux en velin, 2020
Dans le cas fictif où l’ENSAL est déplacé, nous avons imaginé une possible réhabilitation de ses salles.
Pour cela, nous avons commencé par faire un relevé géométral avant de transformer les espaces. Le bâtiment est structuré autour d’une rue intérieure principale déservant de part et d’autres des salles dans un volume en béton et débouchant sur un atrium pour le pôle administration. Puis à l’étage, deux grands volumes vitrés forment les ateliers de projet à nouveau de chaque coté de la rue intérieure. J’ai ainsi pris deux volumes de salles au rez de rue et un volume de salle à l’étage en conservant la structure porteuse en béton et la verrière.
L’entrée se fait depuis la rue intérieure entre les deux salles, ce vaste hall débouche sur un espace d’accueil. des esacliers permettent d’accéder aux vestiaires situés en mezzanine.
Sur la gauche se trouve la salle de bloc, la séparation se fait pas les épais tapis de protection en cas de chutes. De hautes fenêtres étroites offrent des vues aux visiteurs et apportent de la lumière.

Plan de rez-de-chaussée
À droite, le sol a été abaissé et le plafond entre les étages est enlevé. Cela permet d’obtenir une hauteur suffisante pour créer une salle de difficulté (des voies). Le hall d’entrée donne un point de vue intéressant sur les grimpeurs sans avoir besoin de se tordre le cou. Coupe longitudinale



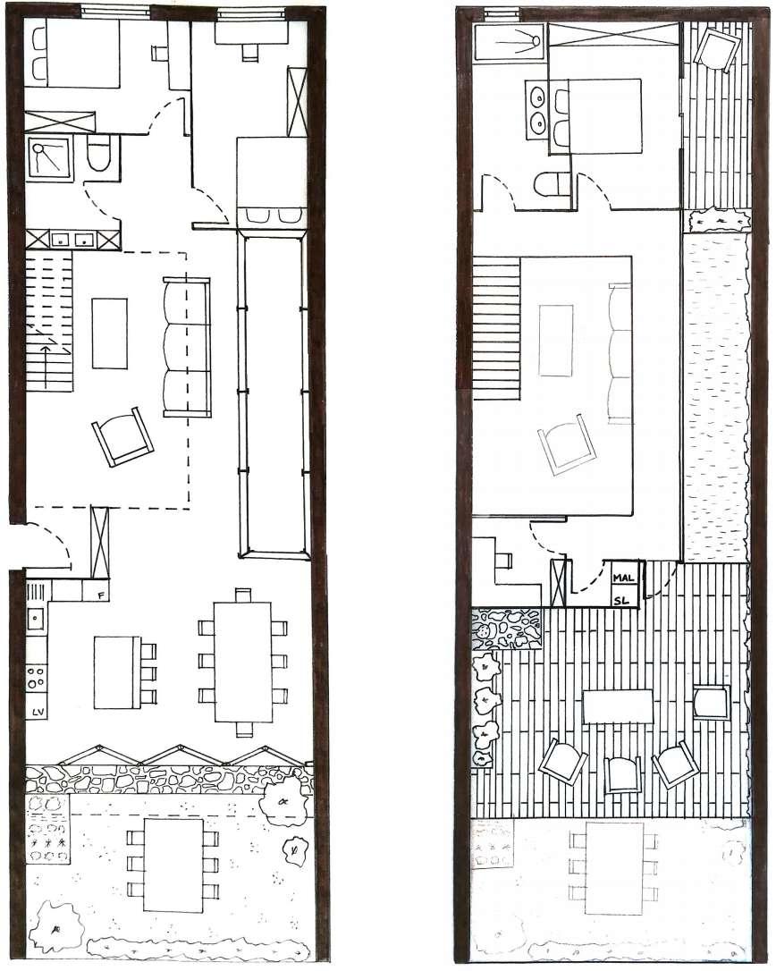
une colocation sur mesure
Lieu f ctif, 2021
Dans le cadre d’un cours de sociologie, nous avons étudié un ménage et leur logement. Dans mon cas, il s’agissait d’un couple et de deux amis vivant en colocation. Suite à mon analyse de leur mode de vie et leur description de leur appartement, je leur ai proposé une colocation sur mesure. La forme était imposée : soit un duplex de 6x20m avec les deux murs longitudinaux aveugles (seule la porte d’entrée peut s’y trouver) soit un simplex de 12x20 m.
Il était important pour eux d’entrer dans un espace intime et protéger du monde extérieur. C’est pourquoi, l’entrée est coupée du reste du logement par un meuble de rangement.
Les salles communes sont principales dans leur fonctionnement, elles sont donc placé au Sud et au coeur du logement. Le salon bénéficie d’une double hauteur et malgré sa position centrale il n’est pas sombre grace à la verrière à l’étage et à la piscine tombant à ce niveau. La cuisine et la salle à manger où ils aiment recevoir donnent sur un jardin extérieur et un potager séparé par une baie en accordéon. Au Nord, se trouve un premier espace nuit pour les deux amis qui partagent une salle de bain.
A l’étage se trouve la suite du couple avec sa salle de bain, sa chambre et une petite terrasse privée.
Une passerelle entre le vide sur salon et la verrière donnant sur la piscine permet d’accéder au bureau de l’homme du couple car il travaille de chez lui, à la buanderie et à la terrasse.
Cette dernière est une casquette pour la baie au rez-de-chausée afin d’éviter les surchauffes en été. Elle permet d’accéder à une piscine étroite car l’une des amies doit régulièrement s’entrainer.



quartier
saint-jean, Ilôt des moineaux
Réaménagement du quartier, zoom sur un ilôt type, villeurbanne, 2021
L’ilot des moineaux est positionné au Nord du quartier, juste en dessous du pôle sportif. Un arrêt de tram le dessert, ainsi que le réseau de bus et des hubs a vélo. La voirie à l’intérieur de l’ilot est composée uniquement de voies partagées où les voitures peuvent circuler au pas et stationner peu de temps.
Afin de préserver les habitants des nuisances sonores et leur garantir de l’intimité, les immeubles sont positionnés avec un retrait de 5m par rapport à la rue. Ce retrait est traité par un aménagement paysager. De plus, les bâtiments proches d’une route passante ont des rez-dechaussées actifs accessibles pour tous avec une matérialité au sol identique à celle de la rue.
Pour desservir les halls d’entrée, les cheminements présente une matérialité différente afin de marquer le passage d’un espace public à semi-privé. Cela permet de ne pas avoir à fermer le champ visuel par des clôtures.
Tous les logements, peu importe leur typologie, bénéficient d’un espace extérieur privé. En plus de créer une mixité fonctionnelle au sein de chaque ilot, nous voulions créer une mixité sociale en proposant plusieurs tailles de logements allant du T3 au T7.
Légende












les
lisés et des ouvertures.
Le village du 207 zoom sur un immeuble de logements collectifs, villeurbanne, 2022
et d’échanger. Une agence de paysage, de coworking et des ateliers d’artistes étaient déjà présent sur le site. Les activités proposées viennent donc se diversifier avec des commerces de bouches et d’autre ateliers d’artisans au rez-de-chaussée des logements inclusifs.
Toujours dans cette volonté de mixité, les logements varient dans leur typologie et dans leurs ambiances tout en gardant des qualités communes : chaque logement dispose d’un espace extérieur privé,
Les immeubles de logements collectifs ont été imaginé comme des collines sortant de terre puis extrudées en escalier. Une faille vient couper le volume en deux: ce sera l’espace de circulation semi privée et le tout est recouvert de végétation. La végétation est considéré comme un élément à part entière de l’architecture.
Sur la totalité du site, il y a 25 logements de ce type allant du T2 au T5. La structure en pierre est massive et les fenêtres hautes et étroites, afin de créer une aspérité que chacun est libre de s’approprier (assise, support pour cadre, ...).
La façade donnant sur le parc est laissé minérale et imposante tandis que les autres sont végétalisés. Cela, ajouté aux larges bacs plantés pour fermer les terrasses donne la sensation que la nature reprend ses droits sur le bâtiments. Ainsi, depuis les jardins partagés, le dessins de l’architecture s’efface au profit du prolongement de la végétation à la vertical. Mais au cas où la végétation ne prenne pas, la façade peut aussi fonctionner avec son calepinage en pierre.
Le rez-de-chaussée peut être actif, comme c’est le cas dans les plans exposés avec, au Nord, un café et sa terrasse extérieure. L’entrée pour les logements est alors marquée par un traitement au sol différent. Les logements vont du plus grand au plus petit en montant. Les intérieurs sont très intimistes, la terrasse est protégée du monde extérieur par les arbres et arbustes. Tandis que la largeur des espaces de circulation favorise les échanges entre voisins.
Les logements intermédiaires sont, quant à eux, en ossature bois. Des poteaux viennent marquer la verticalité à l’extérieur et sont le support à un treillis. Cela permet à la végétation de grimper et de venir dessiner la façade avec le temps. Les interstices entre chaque logement deviennent des terrasses partagées que les voisins sont libres de s’approprier. La végétation permet ici aussi de gérer
assise approriable
détail de la fenêtre


d’usage t2:
Plan rez-de-chaussée











vue intérieure sur la fenêtre et l’extérieur

























le village du 207 zoom sur les logements intermédiaires et inclusifs, villeurbanne, 2021
Il y a deux ensembles de logements intermédiaires inclusifs. Cela veut dire que chaque logement dispose d’une entrée privée et d’un espace de travail d’une centaine de m². Ils sont imaginés comme des boites rectangulaires (une pour chaque unité de logement) prises dans une forêt de poteaux avant d’être mis en quinconce et relier au sol par un socle.
La structure poteaux / poutres en bois permet une grande liberté dans l’aménagement des espaces intérieurs en permettant ainsi un vaste panel des ménages susceptible d’y vivre. Ainsi, l’aménagement de la pièce de vie peut être fait en fonction des besoins et des envies de chacun, une chambre peut etre transforme en bureau, une pièce divisée en deux, ...
La mise en quiconce des unités de logements permet d’éviter le vis-à-vis au niveau des chambres. Cette notion d’intimité est aussi gérée au niveau du seuil, en effet, l’ensemble est placé en retrait par rapport à la rue. Un premier chemin permet d’accéder à l’espace d’activités de chaque logement situé au rez-dechaussée. Un second cheminement, d’une autre matérialité arrive jusqu’aux escaliers du logement derrière un claustra donnant sur une terrasse privée. Ces différentes étapes marques plusieurs passages visant à distancier le logement du flux public. Les espaces extérieures entre les logements sont des terrasses partagées entre les voisins afin de créer une vie en communauté. L’accés au jardin arrière se fait depuis l’espace de travail.


R+2




ressources utilisées











Détail structurel




Schéma concept volume





réveiller la ruine
un institut culinaire dans les ruines de la torre salvana, 2024
Morphogénèse probable en 992
Morphogénèse probable en 1297
Altération chromatique
Graffiti (contour)
Volumes historiques
Morphogénèse probable en 1716



accentuer les dégradations du site. La frontière entre l’intérieur et l’extérieur se brouille, ce que nous conserverons.




Friche végétale diminuant la visibilité de la ruine
Chemins d’accès informel ou non entretenu
Plaine agricole en contrebas déconnecté de la parcelle
Relation au grand paysage depuis le premier étage de la ruine
Croquis axonométriques d’analyse des principaux enjeux du site existant



Morphogénèse actuelle de la ruine


Pôle pratique
Pôle théorique
Pôledécouverte
Exploitation agricole
Pôle de détente
Restructuration des flux
Nouveaux points de vue Gare


réveiller la ruine
un institut culinaire dans les ruines de la torre salvana, 2024
Le pôle pratique de l’institut est le cœur de ce programme il comprend les cuisines (d’application et d’expérimentation) avec leurs salles annexes. Il est en lien constant avec le pôle de découverte, de théorie et d’exploitation.
Ces deux derniers pôles ne sont pas à l’intérieur de la ruine, mais en dehors, afin de créer des connexions visuelles au paysage lointain et au territoire proche qui permet à ce programme d’exister. Ainsi, de nouveaux volumes sont à créer sur la parcelle pour les salles de cours au Sud et la serre dans l’espace d’exploitation au Nord.
Les espaces de découverte, quant à eux, sont dédiés aux personnes voulant venir manger à la Torre Salvana. Un parcours pour s’y rendre sera mis en place afin de donner à voir les diverses étapes du champs à l’assiette. Il traverse des espaces d’exploitation agricoles avant de passer devant des cuisines. Ces dernières ont une importance capitale dans l’expérience de la pratique du lieu.
La parcelle est aménagé comme une toile de fond permettant de rejoindre les différents pôles du programme à travers des aménagements paysagers de repos et de circulations. Ce sont des lieux de croisement et d’échange entres les différents flux du programme. Cela est aussi visible au sein de la ruine ou des espaces partagés entre les cuisiners et les visteurs prennent place dans les espaces extérieurs.

















réveiller la ruine
un institut culinaire dans les ruines de la torre salvana, 2024
La ruine presente des caractéristiques pittoresques fortes que je trouve intéressant de conserver. Pour cela, il faut garder la volumétrie générale de la ruine en l’état. Ainsi, les nouveaux éléments, seront invisibles depuis l’extérieur. Une fois dans la ruine, trois stratégies architecturales sont misent en place en fonction de l’état de conservation de la ruine. Si la structure est exploitable, notament dans l’aile Est, nous pourrons nous appuyer dessus pour l’intervention à venir. Si la structure existante des murs est non exploitable, deux possibilités s’offre à nous : créer une extension à distance ou conserver l’espace extérieure créer par la chute des planchers anciens.
L’intervention ne concurrence pas la ruine. Elle la souligne en donnant à voir ces vestiges. Les formes créées prennent le partie de se couler à travers les interstices et porosités de la ruine. Cependant, cette intériorité et discrétion architecturale n’est pas dissociée de la reconnection au territoire avec l’amplification de la connection visuelle à ce dernier. La végétation aujourd’hui obstruante est retravaillée de manière à créer des percées visuelles ponctuelles à plusieurs endroits du site. La forte topographie à l’Est de la ruine est utilisé pour l’installation de vignes permettant, depuis les espaces de travail du rez-de-jardin de se connecter au paysage agricole et lointain. Accentuée par les nouvelles ouvertures en façade Est. Ce projet ambitionne de placer les espaces propres à l’institut et les espaces agricoles comme des caractéristiques centrales à l’expérience du lieu. Pour cela, les parcours mis en place les renderont visibles. Cela permet de sensibiliser le grand public et mettre en avant le travail des chefs.















réveiller la ruine
un institut culinaire dans les ruines de la torre salvana, 2024
Les classes sont accessbile par un cheminement depuis la ruine permettant un séquencage : extérieur à travers le paysage, couvert et semi enterré entre le mur de la classe et la végétation puis intérieur avec une vue le paysage agricole depuis la classe. Une continutié matérielle est réalisé entre cette extensions et celles présentes dasn les ruines. D’une part, le sol est recouvert par une mosaique identitque à celle que l’on retrouve dans les cuisines et d’autre part, les façade reprennent le même language architectural de mur rideau en arrière d’une trame porteuse en acier auto-patinable. Un patio, entre les deux classes, vient faire echo à celui à l’intérieur de la ruine.
Toujours dans une logique de connection au territoire, ces salles sont occupé dans des temporalités différentes par les locaux pour des cours de soutiens scolaires ou des réunions par exemple.
Les extensions à l’intérieur de la ruine son comosé d’une trame porteuse de poteau triangulaire en acier auto patinable derrière laquelle un mur à ossature bois recouvert d’une plaque d’acier auto patinable prend place. De larges baies vitrées coulissantes viennent perforer la façade à 1m de haut afin de laisser place au meubles de cusiisne en partie basse. En partie haute, une ménuiserie oscillobattante permet de garantir la ventilation des cuisines.









la mer dans nos f lets
Concours pour la fête des lumières, lyon, 2020
La ville de Lyon offre un espace à ses étudiants pour exoser une installation lumineuse dans le cadre de la fête des lumières.
Le site réservé fut le jardin André Malraux et l’esplanade Saint Pothin sur la colline de Fourvière.
Nous avons décidé de nous installer dans les escaliers reliant les deux zones. Notre projet avait pour but de sensibiliser les visiteurs à propos de la pollution des océans et la surpèche.
Pour cela, notre structure est composée de gobelets en plastique translucide, transparents ou colorés placés dans les mailles d’un filet de pêche. Ce dernier est suspendu au plafond de l’escalier. Des spots lumineux viennent créer des jeux de lumières sur les marches. Depuis le haut des escaliers, l’installation remonte au-dessus du garde corps formant une immense vague de plastique.





promenade lumineuse
architecture de petite échelle, quais de saône, lyon 2021
Le projet s’implante sur les quais de Saône à Lyon. Ces derniers attirent beaucoup de monde surtout avec les fortes chaleurs estivales. Nous devions créer une architecture de petite échelle, pour cela j’ai décidé de créer une couverture à la promenade sur une petite portion.
La structure est composée d’une trame poteaux / poutres en bois et métal dont les fixations aux sites sont pensées pour ne pas le détériorer. L’installation est ainsi fixée sur le sol du quai et au mur de soutainement.
Des panneaux perforés métalliques viennent recouvrir la structure en toiture et sur le côté donnant sur le fleuve rythmer le parcours avec des jeux de lumières mouvantes. Des ouvertures offrent des cadrages sur la vieille ville de Lyon et la basilique de Fourvière.










































