
“CENTRO CULTURAL LUDICO SOSTENIBLE EN LA PROVINCIA DE SULLANA 2024”
![]()

“CENTRO CULTURAL LUDICO SOSTENIBLE EN LA PROVINCIA DE SULLANA 2024”
Bereche Arevalo Benjamin Franklin
Ramirez Montalvan Robin Raul
PERFIL
Soy estudiante de la Facultad de Arquitectura, Urbanismo y Artes, actualmente en el 10º ciclo de la carrera. Poseo habilidades en el diseño de espacios y su representación arquitectónica.
Autocad
Upscayl
Archicad
Photoshop
FORMACION
Colegio TTE. Miguel Cortes
Universidad Privada Antenor Orrego
Primaria y Secundaria (2005 - 2016) 2017 - Actualidad
IDIOMAS
Español Ingles
Natural Avanzado



benjaminberechearevalo@gmail.com benjaminberechea
Estudio en la Facultad de Arquitectura, Urbanismo y Artes, y actualmente me encuentro cursando el 10º ciclo de la carrera. Tengo competencias en la creación de espacios y en su representación arquitectónica.
Autocad
Upscayl
Archicad
Photoshop
FORMACION
Colegio TTE. Miguel Cortes Universidad Privada Antenor Orrego
Primaria y Secundaria (2005 - 2016) 2017 - Actualidad
IDIOMAS
Español Ingles
Natural Avanzado



montalvan.robin@gmail.com robinmontalvan
APROXIMACION AL LUGAR
UBICACION
ESQUEMA DE LOCALIZACION
PROBLEMATICA DEL SITIO
OBJETIVOS PREVISTOS
ENFOQUE ESTRATEGICO
ESTRATEGIAS PROYECTUALES
ORIENTACION PROYECTUAL
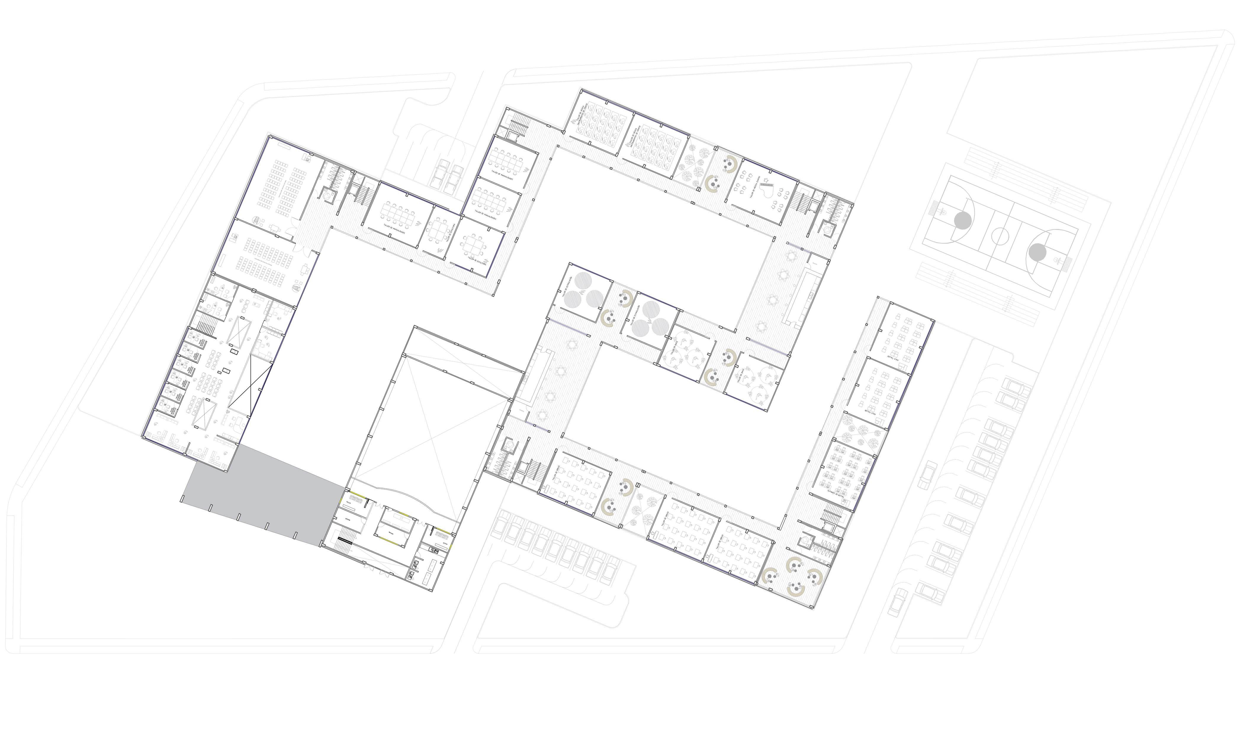
ORGANIZACION ESPACIAL
ZONIFICACION Y ACCESOS
RENDERS 3D 04 05 06
PLANIMETRIA ARQUITECTONICA
PLANOS GENERALES
PLANOS POR BLOQUE
CORTES Y ELEVACIONES
DETALLES ARQUITECTONICOS
VISTAS DEL PROYECTO








OBEJTIVO GENERAL
DISEÑAR UN CENTRO CULTURAL RECREATIVO
SOSTENIBLE EN LA PROVINCIA DE SULLANA, 2024
IDENTIFICAR LOS CRITERIOS DE LA ARQUITECTURA
SOSTENIBLE QUE SERAN APLICADOS EN EL DISEÑO DE UN CENTRO CULTURAL RECREATIVO SOSTENIBLE EN LA PROVINCIA DE SULLANA
IDENTIFICAR LAS NECESIDADES DE LOS USUARIOS
PARA EL DISEÑO DE UN CENTRO CULTURAL
INTEGRAR EN EL DISEÑO ESPACIOS DE SOCIALIZACION
QUE FOMENTEN LA INTERACCION Y LA CONEXION
ENTRE LOS HABITANTES DE SULLANA



Recorrido solar y del viento

Mayor flujo vehicular y peatonal

Se diseñarán espacios que ayuden a fomentar la cultura en Sullana, destinados a la comunidad para actividades sociales y recreativas, mediante aulas de formacion laboral incentivando la cultura local.

Sistemas constructivos con materiales con baja huella de carbono disminuyendo las emisiones de gases de efecto invernadero
La fachada ventilada reduce la radiación solar y el calor acumulado, protege térmicamente el interior del edificio
Aprovecha el calor de la tierra a través de sistemas de intercambio térmico. enterrado, ofreciendo una fuente de energía renovable
El espacio natural en interiores en clima de calor mejora el confort térmico al aumentar la circulación de aire fresco





JERARQUÍA: Generando un Volumen sustraido de ingreso, indicamos el inicio del centro cultural generando un recorrido por los espacios de formacion y expresion artistica
EJE: El paseo peatonal se proyecta como un eje principal con el propósito de conectar las calles, relacionando todas las zonas existentes en el proyecto.
RITMO: Se producía la continuidad de planos horizontales para unir los volúmenes. generando la repetición de elementos verticales, permitiendo continuar con el alineamiento del volumen.

ZONA ADMNISTRATIVA
ZONA DE TALLERES
ZONA DE AUDITORIO
ZONA DE USOS GENERALES








































BISAGRA de 180°
BISAGRA de 180°
MADERA DE 4 CM CON ACABADOS DE PINTURA BLANCA
B SAGRA de 180°
PUERTA BATIENTE
BISAGRA de 180°
LOSA DE CONCRETO

BISAGRA de 180° .95 1.90 .95 2.50
MANI A DE ALUM NIO TROPEZ MANIJA DE ALUMINIO TROPEZ

Tarugo de 1 1/4" x 3/4"
Tarrajeo e = 1cm
Ap ica 1/4"x1 1/4"
Canal "U" de Alum nio 3/32"x5/8"x1 1/4"
Bastidor 1 1/4"x1"
Pintado color blanco.
Rel eno de crucetas de cedro 4mm @ 0 10
Parapeto de a bañi eria Pintado Latex Sat nado
Marco de 3" x 2"
Canal "U" de Alum nio 3/32"x5/8"x1 1/4"
EXTERIOR INTER OR
Pintado color blanco
Bastidor 1 1/4"x1"
MADERA DE 4 CM CON ACABADOS PINTURA BLANCA
BISAGRA de 180°
Puerta de madera Bisagras de 180° sistema fijo

Garrucha Difusa R-20 Dob e armAda
EXTERIOR
Marco de 3" x 2" Cana "U" de Aluminio
1/4"































