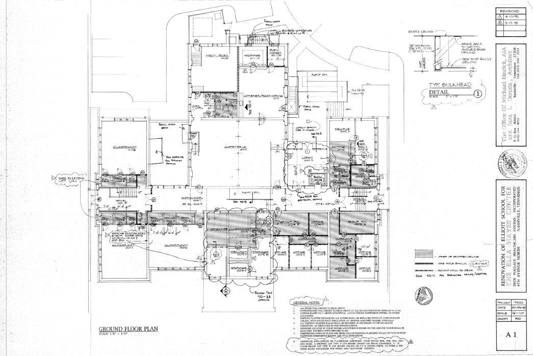
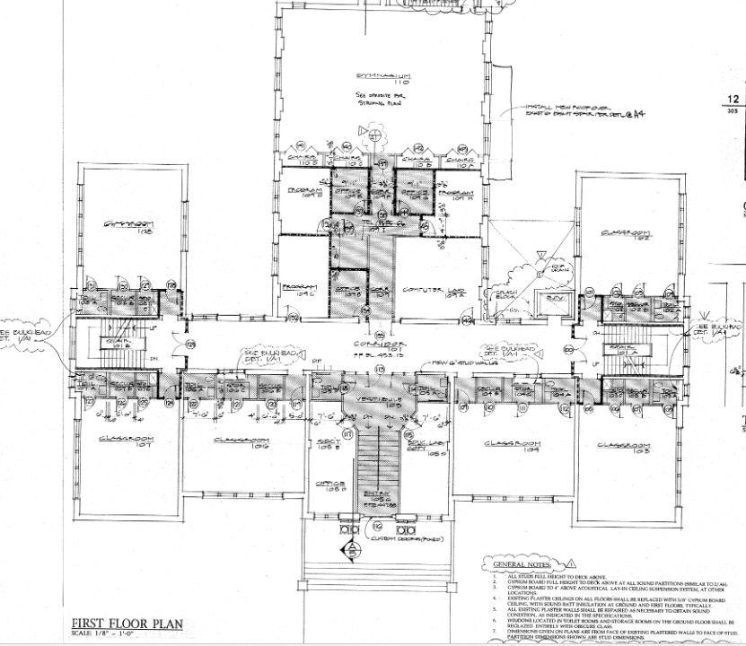
The Elliott Community Center
Senior Thesis by Merrie Luton

The History of The Elliott School
● Architect- Thomas Marr
● 1873- Built as a school
● 1916- Additions added for growth
● 1971- Vacant at this time due to desegregation
● 1979- National Register of Historic Places
● 1989- People of Germantown bought the building
● 1995- Bought by Centerstone and turned into offices


























