PORTOFOLIO ARSITEKTUR - BELLINA FELICE IVANA YONG

Page 1

PORTOFOLIO ARSITEKTUR PORTOFOLIO ARSITEKTUR

feliceivana07@gmail.com

089521872785

https://fbiarchdesign.studio.site/

Tentang Saya

Saya adalah mahasiswa S1 Arsitektur yang disiplin dan bertanggung jawab

dalam mengurus hal-hal yang berkaitan dengan perancangan khususnya di bidang arsitektur.

DATA DIRI

Nama

Tempat, Tanggal Lahir

Alamat

Jenis Kelamin

Kewarga Negaraan

Status

PENDIDIKAN

SMP DEK Padang ( 20142015)

: Bellina Felice Ivana Yong

: Padang, 7 April 2002

: Jln. Baypass km 10, Kecamatan Kuranji

: Perempuan

: Indonesia

: Belum Menikah

SMA Kristen Kalam

Kudus Padang (20172020)jurusanIPA

SMP Kristen Kalam Kudus Padang(2015-2017)

KETERAMPILAN

Sketchup

Autocad

Archicad

PENGUASAAN BAHASA KEPRIBADIAN

TanggungJawab

ManagementWaktu

Kejujuran

Universitas Kristen Duta

Wacana(2020-2024)

Bahasa Indonesia Bahasa Inggris

Kerapian&Ketelitian

1
2
Rumah Tipe 36 Bilik Skrining Mobile Vacination Glamping Coworking Space
D
High Rise Building
A F T A R K A R Y A
Rumah Minimalis Rumah Jepang

REDRAW RUMAH TIPE

Tugas

Fungsi

Kapasitas

Luas lahan

Luas bangunan

36 / 100 : Semester 2 : Rumah Tinggal : 1 keluarga : 8 m x 12,5 m : 100 m2

Bangunan ini berada disekitar area perumahan

dimana tujuannya sendiri sebagai rumah tinggal

yang dapat dihuni oleh 1 anggota keluarga (± 4 orang). Tersedia taman mini, dan carport

sedangkan bagian dalam rumah sendiri tersedia 2

kamar tidur dan 1 kamar mandi serta dilengkapi

dengan ruang tamu (bersama). Pada proyek ini

saya mencoba mendesain rumah dengan luasan

yang minim namun memiliki fasilitas yang lengkap

yang dapat dilihat dari ketersediaan ruangnya.

3
4 D E N A H R U M A H
5 T A M P A K K I R I T A M P A K K A N A N T A M P A K B E L A K A N G T A M P A K D E P A N
P O T O N G A N A - A P O T O N G A N B - B 6 E X P L O D E D

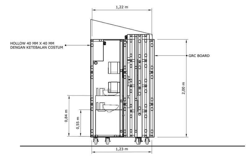
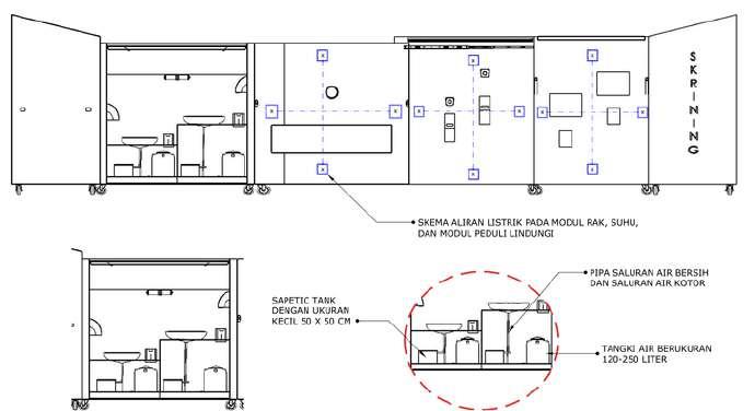
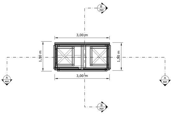
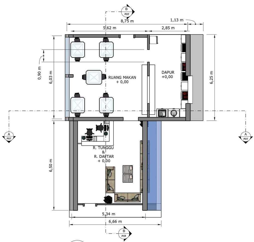
BILIK SKRINING

Tugas

Fungsi

Kapasitas

Luas awal

Luas akhir

COVID 19 : Semester 3 : Skrining covid 19 : 2 - 7 orang : 8 m x 12,5 m : 12 m2

Bilik skrining merupakan bangunan yang bersifat transformable, dimana dapat diubah - ubah berdasarkan kebutuhannya. Bilik skrining

ini dapat ditempatkan dimana saja yang fungsinya sendiri sebagai alat

/ tempat bantu untuk melakukan skrining terhadap covid 19 ataupun

virus lainnya yang berkaitan untuk mensterilisasikan pengunjung dari

virus - virus tersebut. Bilik inipun bersifat fleksibel dikarenakan

terdapatnya roda yang membuat bilik ini dapat dengan mudah

dipindah - pindahkan serta di angkut kek beberapa lokasi.

7
8 D E N A H A F T E R D E N A H B E F O R E
9 P O T O N G A N A - A P O T O N G A N B - B

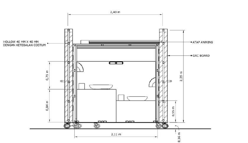
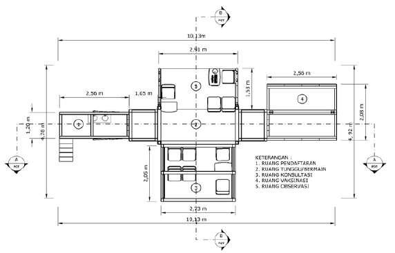
MOBILE VACINATION

Tugas

Fungsi

Kapasitas

Luas awal

Luas akhir

: Semester 3

: vaksinasi covid 19

: 10 - 15 orang : 4,5 m2 : 40 m2

Sebuah bangunan (mobile) yang dapat ditempatkan dibeberapa

lokasi yang berfungsi membantu pelaksanaan penanganan terhadap

virus yang beredar dimasyarakat yaitu covid - 19. Mobile vacination

ini membantu menjangkau beberapa masyarakat yang ingin

melakukan vacination dikarenakan terjadinya penumpukan dalam

rumah sakit. Oleh karena berat beban pada mobile yang dapat

diangkut oleh mobil / alat transportasi lainnya menjadikan mobile ini

sangat diperlukan kedepannya khususnya dalam perkembangan

zaman dimana sistemnya yang juga dapat ditransformasikan

10
11 D E N A H B E F O R E D E N A H A F T E R
12 T A M P A K K I R I T A M P A K K A N A N T A M P A K B E L A K A N G T A M P A K D E P A N
P O T O N G A N B E F O R E P O T O N G A N A F T E R D E T A I L E X P L O D E D 13

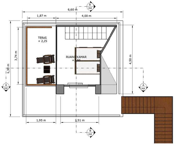
GLAMPING "HUTAN PINUS"

Tugas

Fungsi

Kapasitas

Luas lahan

Lokasi

: Semester 4

: Vacation

: 1 keluarga

: 2000 m2

: Jln. Hutan Pinus Nganjir Area

Wisata Hutan Pinus Kios No 5, Sukrorame, Mangunan, Dlingo, Kabupaten Bantul, Daerah

Istimewa Yogyakarta

Kegemaran kalangan muda hingga dewasa untuk

menikmati alam memberikan salah satu manfaat

untuk menikmati alam lebih lama lagi, dimana

kehadiran bangunan glamping (penginapan glamor) di alam membuat kesan yang unik dan

sensasi yang berbeda dari camping biasanya.

14
15 K A W A S A N B E R K O N T U R
16 D E N A H R E S T O
T A M P A K K I R I 17 T A M P A K K I R I T A M P A K B E L A K A N G T A M P A K D E P A N
18 D E N A H K A N T O R
19 T A M P A K K I R I T A M P A K D E P A N T A M P A K K A N A N T A M P A K B E L A K A N G
21 P O T O N G A N A - A A R E A R E S T O P O T O N G A N B - B A R E A R E S T O P O T O N G A N B - B A R E A K A N T O R P O T O N G A N A - A A R E A K A N T O R
22 D E N A H L T . 1 G L A M P I N G K E L U A R G A D E N A H L T . 2 G L A M P I N G K E L U A R G A
23 T A M P A K K I R I T A M P A K K A N A N T A M P A K B E L A K A N G T A M P A K D E P A N
24 D E N A H L T . 1 G L A M P I N G S E N D I R I D E N A H L T . 2 G L A M P I N G S E N D I R I
25 T A M P A K K I R I T A M P A K D E P A N T A M P A K K A N A N T A M P A K B E L A K A N G
26 P O T O N G A N A - A G L A M P I N G S E N D I R I P O T O N G A N B - B G L A M P I N G S E N D I R I P O T O N G A N B - B G L A M P I N G K E L U A R G A P O T O N G A N A - A G L A M P I N G K E L U A R G A

Tugas

Fungsi

Kapasitas

Luas lahan

Luas bangunan

: Semester 4

: Coworking Space : 20 orang : 5 m x 20 m : 5 m x 15 m

Bangunan ini berada disekitar area pemukiman dan kampus, dimana bangunan tersebut bertujuan sebagai daya tarik terhadap costumer yang akan menikmati bangunan tersebut. Dimana bangunan ini ditujukan sebagai tempat coworking space bagi para mahasiswa, pekerja, maupun perusahaan yang beru merintis (start up) untuk menikmati dan melakukan pekerjaannya dalam ruangan bangunan tersebut. Oleh sebab itu keberadaan bangunan ini menjadi daya tarik bagi penduduk sekitar.

D E M A N G A N ' S C O W O R K I N G
27
28 D E N A H L T . 1 D E N A H L T . 2 D E N A H L T . 3
29 3 D I N T E R I O R
30 T A M P A K K I R I T A M P A K K A N A N T A M P A K B E L A K A N G T A M P A K D E P A N
31 P O T O N G A N A - A P O T O N G A N B - B

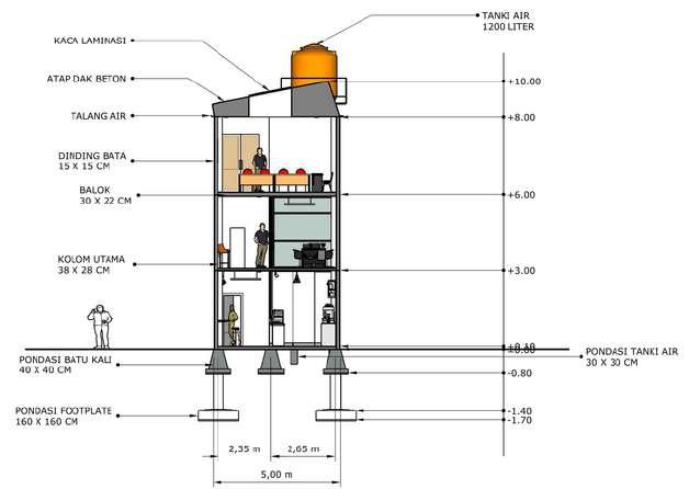
HIGH RISE BUILDING "TRAPéZE TOWER"

Tugas

Fungsi

Kapasitas

Luas site

Luas bangunan

Lokasi

: Semester 5 : Perkantoran : 50 - 100 orang : 8338 m2 : 4000 m2 : Jalan Simpang Dukuh, Kec.

Genteng, Surabaya, Jawa Timur

Merupakan sebuah bangunann tinggi berjumlah

sekitar 28 lantai, dimana bangunan tersebut

merupakan bangunan office tower yang juga

dilengkapi berbagai fasilitas mix-use di dalamnya, seperti supermarket, cafe, toko buku, dan ruang

kerja. Bangunan tinggi ini memiliki ruang terbuka

pada lantai tertentu seperti taman terbuka untuk

menerapkan konsep ramah lingkungan di dalamnya.

32
33 T A M P A K D E P A N T A M P A K D E P A N T A M P A K K A N A N T A M P A K K I R I
34 D E N A H P O D I U M L T 1
35 D E N A H P O D I U M L T 2
36 D E N A H P O D I U M L T 3
37 D E N A H T O W E R 1 D E N A H T O W E R 2
P O T O N G A N A - A P O T O N G A N B - B 38

SAYEMBARA DESAIN KELOMPOK

Judul

Fungsi

Kapasitas

Luas lahan

Luas bangunan

: Rumah Milenial : Rumah Tinggal : 1 keluarga : 8 m x 12,5 m : 12 m2

Bangunan ini merupakan sebuah rumah minimalis

yang merespon lahan terbatas dengan bentuk

geometrik yang menjadi trend kekinian pada rumah

masa kini, bangunan ini juga menerapkan

arsitektur modern yang dapat dilihat dari bentuk

bangunan polos menampilkan kejujuran material

beton dengan fasad yang membentang horizontal

dan merespon ruang yang dirancang menjadi ruang

multifungsi dengan menerapkan mezzanine dalam bangunan.

39
40 D E N A H L T . 1 D E N A H L T . 2
41 T A M P A K K I R I T A M P A K K A N A N T A M P A K B E L A K A N G T A M P A K D E P A N
42 3 D I N T E R I O R
43 P O T O N G A N B - B P O T O N G A N A - A

SAYEMBARA DESAIN KELOMPOK

Judul

Fungsi

Kapasitas

Luas lahan

Luas bangunan

: Rumah Milenial Jepang

: Rumah Tinggal : 1 keluarga : 8 m x 12,5 m : 12 m2

Bangunan ini ialah sebuah rumah milenial Jepang

yang juga disebut sebagai rumah TENKI atau

TENKI house, dimana merupakan sebuah rumah

milenial dengan gaya arsitektur Jepang modern yang responsif terhadap keterbatasan lahan dan iklim yang tropis. Selain itu, beberapa desain pada

rumah ini juga disertai dengan teknologi

smarthome untuk dapat beradaptasi juga dengan

perkembangan global dan kebutuhan gaya hidup

milenial yang sedang berkembang saat ini.

44
45 D E N A H L T . 1 D E N A H L T . 2
46 3 D I N T E R I O R
47 3 D I N T E R I O R
48 T A M P A K D E P A N T A M P A K B E L A K A N G T A M P A K K I R I T A M P A K K I R I
49 P O T O N G A N B - B P O T O N G A N A - A

Turn static files into dynamic content formats.

Create a flipbook
Issuu converts static files into: digital portfolios, online yearbooks, online catalogs, digital photo albums and more. Sign up and create your flipbook.