Potfólio (1)-compactado

Page 1


TGI II ( TRABALHO DE GRADUAÇÃO INTEGRADO II)

ENCONTRO COM O ESQUECIDO : CRIAÇÃO DE UM COMPLEXO

CULTURAL NA CIDADE DE RIO CLARO - SP

TGI II ( TRABALHO DE GRADUAÇÃO INTEGRADO II)

ENCONTRO COM O ESQUECIDO : CRIAÇÃO DE UM COMPLEXO CULTURAL NA CIDADE DE RIO CLARO - SP

Beatriz Habermann Arquiteta e Urbanista

Brasil, SP 14.03.2001

CONTATO:

Telefone: (16) 991588105

Email: beatriz.habermann@usp.br / bia.habermann14@gmail.com

behance: https://www.behance.net/behabermann

Linkedin: https://www.linkedin.com/in/beatrizhabermann-4b9aa52b5/

FORMAÇÃO:

Ensino Médio: ETEC Prof. Armando Bayeux da Silva/ Rio Claro - SP Ensino

Superior Completo: Arquitetura e Urbanismo / Universidade de São PauloUSP Instituto de Arquitetura e Urbanismo de São Carlos - IAU USP

CURSOS/OFICINAS

INTERESSES

projetos arquitetônicos e paisagísticos projetos/estudos urbanísticos projetos arquitetônicos de interesse histórico e cultural representação gráfica e design digital espaços e dispositivos expográficos patrimônio cultural, material e imaterial etapas de estudo, criativo ao executivo

COURSERA - LUND UNIVERSITY- Greening the Economy: Sustainable Cities CURSO DE DIFUSÃO (USP) / Taipa de mão aplicado à edificação do Grupo Habis CURSO DE DIFUSÃO (USP) Bacia do Gregório: paisagem, projetos e políticas. OFICINA DE DESENHO Difusão do patrimônio histórico de São Carlos por meio do desenho digital 3D intermediado pela realidade virtual CURSO - ESCOLA NACIONAL DE ADMINISTRAÇÃO PÚBLICA / ENAP Inventário Participativo

CONGRESSO DE PATRIMÔNIO CULTURAL "Identidades e imaginários"

VI SEMANAU; “ Viver e projetar frente ao colapso ambiental e urbano" 2022 - VIII

IX SEMANAU; "Corpo e gênero na produção do espaço"

HABILIDADES

EXPERIÊNCIAS

Bolsista PIBIC Ensino Médio

Atividades:

Estudos de ciências biológicas e suas metodologias; Pesquisas na área pedagógica e análises bibliográficas.

Membro da ENACTUS Campus USP São Carlos

Participação de 2021 / 2022

Líder de marketing 2022

Atividades:

Criação de conteúdos digitais, produção gráfica e comunicação;

Produzir apresentações, relatórios e materiais de divulgação dos projetos.

Participação em projetos de empreendedorismo social, estruturação de cronograma de atividades e pesquisas na área de sustentabilidade; Fazer diagnóstico de comunidades e mapear necessidades locais; Coletar dados, organizar entrevistas e analisar indicadores de impacto.

Pesquisa na área de patrimônio cultural e arquitetura eclética

“Estudo das recorrências em elementos das fachadas ecléticas como constituinte do repertório formal da paisagem urbana”

Atividades:

Pesquisa e estruturação de relatórios; Cronograma de atividades; Desenhos, colagens e produção gráfica.

Integrante da Semana Acadêmica de Arquitetura e Urbanismo (SEMANAU)

Participação de 2023 / 2025;

Atividades:

Realização de atividades acadêmicas, pesquisa e produção gráfica; Cobertura de eventos e programação cultural.

Estágio no Centro Cultural da USP, São Carlos - SP

De julho de 2023 à agosto de 2024

Atividades:

Experiência na área de acervos, projetos arquitetônicos e artísticos;

Elaborar a agenda de eventos, exposições e oficinas;

Articular a infraestrutura necessária para a realização das atividades (espaço, som, iluminação, materiais, etc.) / Auxiliar na organização de eventos

Criação de elementos gráficos para eventos e atividades culturais; Avaliar a recepção das atividades por meio de formulários, conversas e observações.

Atendimento ao público e cobertura de eventos;

Monitorias em exposições;

Planejamento de espaços expográficos.

Diretora de arte na área de cenografia e design, São Carlos - SP

Curta-metragem “Nó na garganta” financiado pela Lei Paulo Gustavo

De março de 2023 à 2024;

Atividades:

Organização e planejamento de cenário, criação de conteúdos gráficos e acompanhamento das atividades/gravações do curta.

Estágio no escritório de arquitetura BauerArq / Indaiatuba - SP

2024-2025

Atividades:

Experiência em diferentes etapas de projeto, projetos executivos, detalhamentos, complementares, compatibilização e estudos.

Monitora da disciplina de Plástica I (IAU - USP)

Primeiro semestre de 2025

Atividades:

Acompanhamento dos alunos nas atividades e no aprendizado na sala e extra-aulas; Estruturamento dos cronogramas e organização da rotina de atividades.

TGI

(Trabalho de Graduação Integrado II)

ENCONTRO COM O ESQUECIDO:

Complexo cultural na cidade de rio claro

“Estre trabalho permitiu que eu encontrasse o meu caminho”

Orientação: Prof. Luciana Bongiovanni Martins Schenk

Opresenteprojetopropõeadiscussãosobreosespaços esquecidos próximos a estação ferroviária na cidade de RioClaroemmeioaocrescimentourbanoeasatividades culturais produzidas pela comunidade dentro de antigos galpões na região histórica da cidade. O projeto fundamenta-se, essencialmente , na leitura da comunidade, no estudo do território já “habitado” onde se estabelecem atividades sociais e culturais. Além disso, procuracompreenderosfluxoseasbarreirasnaturais,ao passoquefazumaleituraemrelaçãoaspreexistênciasjá estabelecidas.

A comunidade parte como sendo o ponto estrutural do projeto, transformando--se no próprio partido inicial de criação. É por meio da leitura dela que o projeto pode ser desenvolvido, coletando os usos e as apropriações que já são estabelecidas na quele território e nas suas proximidades. O contraponto surge quando a Estação Ferroviária, atualmente terminal urbano da cidade de Rio Claro tombada pelo CONDEPHAAT em 1985, permanece em meio a regiões abandonas e esquecidas pelo tempo como consequência do declínio das atividades ferroviáriasnacidade

RUÍNAS E GALPÃO ANTIGO

TERMINAL DE ÔNIBUS URBANO

ÁREA DE INTERVENÇÃO

Território abandonado e ruínas das atividades ferroviárias

A área de projeto tem aproximadamente 26400 m2, fica próximo do centro histórico da cidadeeservecomoáreadedepósitodaoficinaferroviáriaamaisde20anos.

A área que se desenvolve até o antigo galpão da estação tem aproximadamente 20.000 m2,sendo comoumacontinuidadedoprojetoemquestão.

A escolha da área partiu, principalmente, pela sua potencialidade no local, próximo ao centro histórico e comercial na cidade de Rio Claro. A presença da área próxima ao terminal de ônibus urbano, junto a potencialidade de criar uma conexão entre ambos tambémfoiumdospontosprincipaisaseremconsiderados.

O recorte do território de atuação do projeto se torna o espaço esquecido pelo tempo próximo aos galpões e a oficina da antiga estação. Ele chama a atenção em relação a sua “estagnação” com o passar dos anos e em como o território se manteve esquecido e ausente em relação a cidade. Assim, chama a atenção o contraste entre a antiga estação, tombada e atualmente usada como terminal de ônibus urbano, e outros locais quepermanecemsemusos,abandonadosapósodeclíniodaslinhasdetremnaregião. E como já dito, além do edifício tombado, o local conta com outros galpões que hoje servem de usos esportivos e culturais pela própria comunidade, mesmo que não estejam sendoconservadospelopoderpúblico.

Fotos históricas / Google Earth

TERMINALDEÔNIBUSURBANO

ÁREARECREATIVA

ARENACIRCULAR

LOMBOFAIXA

ÁREAMOLHADA

PÁTIOABERTOGALPÃO+ANEXO

FEIRAS + ACESSO TERMINAL DEÔNIBUS

ENCONTRO COM O ESQUECIDO: Complexo cultural na cidade de rio claro

O projeto é proposto, como um sistema que tem o objetivo de percorrer o trajeto do território abandonado da oficina ferroviária até o antigo galpão onde ocorrem as atividades culturais estabelecidas pela comunidade rioclarense, dando novos usos a este local. Nesta extensão, busca se relacionar com os fluxos existentes, além de garantir outros trajetos, como o exemplo da ciclovia.

O objetivo é criar um complexo cultural que possa ser aberto e convidativo para a cidade, como um grande “quintal”, aproveitando as qualidades e os benefícios da localização do território e as diferentes atividades que são realizadas na região além daquelas que podem ser estabelecidas.

ÁREA 1. PÁTIO CULTURAL
ÁREA 3 - ANTIGO GALPÃO + ANEXO
ÁREA 2 - ÁREA ESPORTIVA

PÁTIO CULTURAL

A

área dos novos edifícios culturais busca preencher o espaço que por anos foi desocupado e abandonado pelas atividades ferroviárias.

Enquanto antes era um espaço fechado e murado para cidade, agora o local se torna um fluxo intenso de novos usos e de novos percursos. Os volumes foram incorporados a paisagem, de forma que fosse importante a distância e o caminhar entre eles, o contato com a paisagem e a vegetação.

EDIFÍCIOSNAÁREA:

1.TEATROEXPERIMENTAL

2.LUTASEDANÇA

3.EXPOSIÇÕES,ADMECAFÉ

RELAÇÕES ENTRE VOLUMES

O projeto que se estabelece no Pátio Cultural busca, além, principalmente, da abertura deste local para a cidade e seus fluxos, a integração entre os edifícios de diferentes programas, complementar e estabelecervínculosvisíveisdapaisagementreseuscaminhos.

As plantas internas dos volumes se consolidam por meio da relação com o meio externo, cada um em sua maneira particular. Destacando como exemplo o caso do Teatro Experimental, sua abertura do teatro para o centro do projeto possibilita a inter-relação entre as atividades internas do edifício, atividades do palco externo e atividades que já são estabelecidasnopróprioespaçocentraldoPátioCultural.

Em outros casos, as plantas internas dos demais edifícios buscam a criação de outros circuitos ao redor, para além do uso apenas interno daedificação,comoexemplodovolumedeLutasedança.

AV.8A

DIAGRAMA DE VOLUMES

RECORTE E PERMEABILIDADE VISUAL

DIAGRAMA DE VOLUMES

PERMEABILIDADE E FLUXOS PRINCIPAIS

DIAGRAMA DE VOLUMES

INSOLAÇÃO E ESTRATÉGIAS DE CONFORTO TÉRMICO

Desde sua idealização, o Pátio Cultural busca uma relação direta com o centro do projeto, ao passo que direciona alguns dos seus programas e usos principais para o centro. A estratégia se estabelece na permeabilidade visual vindo do fluxodaruacomoum“convite”para o encontro com o espaço interno daqueleterritório.

Alguns fluxos de fora do pátio são direcionados para principais acessos no interior do projeto. Diferentemente do restante, o Teatro é o volume que cria uma barreira física, deixando essa possibilidade de acessar seu interiorfacilmente.

Emáreasondeosolsepõe(oeste) eocalorficamaisintensonofinal do dia, foi importante pensar em estratégias de coberturas vegetais maisdensasecomcopasmaiores.

Além disso, inclui-se muitas das vezes o usos de outros artifícios, como fechamentos em brises de madeiraouplacasperfuradaspara comporaselevaçõesdoedifícios.

TEATRO EXPERIMENTAL

LUTAS E DANÇA

EXPOSIÇÕES, ADMINISTRAÇÃO E CAFÉ

ÁREAREACREATIVAINFANTIL/EXPERIÊNCIACOMÁGUA

PALCOEXTERNOEARQUIBANCADAEXTERNA

ARENACIRCULAR-LUTASAOARLIVRE

PROGRAMA PROPOSTO PARA TODOS OS EDIFÍCIOS DO PÁTIO CULTURAL

TEATRO EXPERIMENTAL/ SALAS MULTIUSOS

+ SALAS DE ENSAIO

1.RECEPÇÃO

2.COMEDORIA

3.SALA TÉCNICA TEATRO

4.APOIO TÉCNICO / APOIO DE FUNCIONÁRIOS

5.CAMARIM GERAL/ABERTO

6.CAMARIM INDIVIDUAL + BANHEIRO

7.PRÉ-CAMARIM

8.BANHEIROS CAMARIM

9.BANHEIROS PÚBLICO / PCD

10.DEPÓSITO

11.DESPENSA

12.ÁREA ADMINISTRATIVA DAS SALAS

13.SALAS MULTIUSOS INTEGRADAS

14.FOYER

15.SALAS DE ENSAIO

16.SALA DE CAMARIM + REUNIÃO

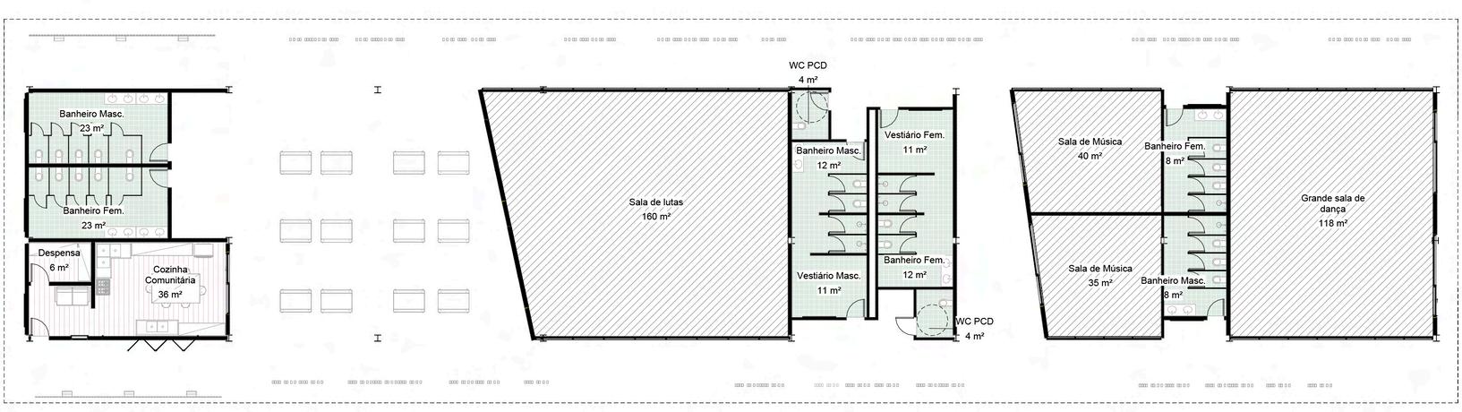
LUTAS E DANÇA/MÚSICA

1.SALÃO DE LUTAS

2.SALA DE MÚSICA

3.GRANDE SALA

4.BANHEIROS + VESTIÁRIOS / PCD

5.BANHEIRO EXTERNO PÚBLICO

6.REFEITÓRIO E COZINHA COMUNITÁRIA

7.DESPENSA

8.APOIO COZINHA + DEPÓSITO

EXPOSIÇÕES + CAFÉ + ADMINISTRAÇÃO

1.SALA DE FUNCIONÁRIOS

2.REUNIÃO PARA SERVIÇOS GERAIS

3.ENFERMARIA

4.DEPÓSITO DE MATERIAIS GERAIS/DE LIMPEZA

5.DESPENSA

6.ACERVO

7.BANHEIROS PÚBLICOS / PCD

8.2 SALAS EXPOSITIVAS

9.DEPÓSITO E MATERIAIS EXPOSITIVOS

10.ACERVO E ADMINISTRATIVO

11.COZINHA

12.DESPENSA COZINHA

13.APOIO COZINHA

14.CAFÉ

15.BANHEIROS CAFÉ

TEATRO EXPERIMENTAL

LUTAS E DANÇA

EXPOSIÇÕES, ADMINISTRAÇÃO E CAFÉ

EXPERIÊNCIAS COM ÁGUA

ÁREA DE ESPORTES

Esta área tem como principal objetivo estabelecer uma conexão entre o Pátio Cultural e o Antigo Galpão. Esse percurso proposto também possibilita a diversificação das formas de uso dos programas já existentes nos edifícios e na implantação, como o esporte, promovendo uma diferente relação entre as duas outras áreas citadas anteriormente. Além disso, destaca-se como aspecto relevante a abertura da área para a cidade, favorecendo o fluxo de pedestres e a criação de novos trajetos e acessos. Inserida em uma região de intensa circulação tanto de pedestres quanto de transportes públicos, a proposta contempla a abertura do muro e a criação de uma ligação direta com o Terminal de Ônibus (RUA 1, como marco inicial da cidade). Essas pontuais intervenções viabilizam novas formas de apropriação do espaço, anteriormente isoladoefechadoemrelaçãoaosfluxosnaturaisdacidade.

ESPAÇO REDES QUADRA DE VÔLEI

ÁREA DE FEIRAS

ISOMÉTRICA ÁREA DE ESPORTES SEM ESCALA

Inserida em uma região de intensa circulação tanto de pedestres quanto de transportes públicos, a proposta contempla a abertura do muro e a criação de uma ligação direta com o Terminal de Ônibus (RUA 1, como marco inicial da cidade). Essas pontuais intervenções viabilizam novas formas de apropriação do espaço, anteriormenteisoladoefechadoemrelaçãoaosfluxosnaturaisdacidade.

GALPÃO DE ATIVIDADE DO BOXE + ANEXO

ISOMÉTRICA GALPÃO + ANEXO SEM ESCALA
PRAÇA EXTERNA SECA ANEXO

O Teatro Experimental conta com o uso predominantemente do térreo, com ambientes abertos, com o pé direito alto e aberturas temporárias. As salas multiusos contam com aberturaslateraisquepermitemarelaçãocomo ambienteinternoeexternodaedificação.

Ambos os blocos podem ser apropriados separadamente ou compartilhados, no caso do volumecomoPalcoExterno,elepodecomporum eventocompleto,enquantooblocodassalasde ensaio são utilizadas para atividades complementares ou separadamente como salas deensaioindependentes.

TEATRO EXPERIMENTAL

TEATR EXPERIMENTAL

PALCO EXTERNO / INTERNO

ÁREA TECNICA

FOYER / COMEDORIA E RECEPÇÃO

SALAS MULTIUSOS

BANHEIROS

CAMARIM

SALAS DE ENSAIO

Este edifício se caracteriza por ser o elemento central das atividades culturais do pátio, já que recebe atenção de todos os fluxos vindos da rua e de outros volumes adicionaisnaimplantação.

Seu volume se apresenta com aberturas zenitais e uma estrutura de pilares e vigas metálicas. Em ambientes de usos diversos, como as salas multiusos, foi importante explorar a permeabilidade visual e física, apenasdandoatençãoapequenasdivisórias ouelementosdefechamentotemporários.

isométricasistema construtivo

O edifício que contempla o programa de ampliação das atividades de lutas e dança busca se relacionar, principalmente em sua forma, com galpão antigo das atividades do boxe. As salas são divididas entre si com vestiários/banheiros, mantendo em toda sua circulação o contato com o ambiente externo. A escolha dos fechamentos permitem permeabilidade visual para o pedestre que caminha a sua volta, já o uso de brises de madeira na fachada é a escolha ideal para diminuir a incidência solar conforme sua orientação.

TÉRREO - LUTAS E DANÇA

USOS E PROGRAMAS

LUTAS E DANÇA/MÚSICA

1.SALÃO DE LUTAS

2.SALA DE MÚSICA

3.GRANDE SALA

4.BANHEIROS + VESTIÁRIOS / PCD

5.BANHEIRO EXTERNO PÚBLICO

6.REFEITÓRIO E COZINHA COMUNITÁRIA

7.DESPENSA

8.APOIO COZINHA + DEPÓSITO

USOS E PROGRAMAS

O galpão de atividades conta com espaços reduzidos em seu interior, com poucas divisõesinternasouapoiotécnicosparaas atividades. A construção do anexo surge como um edifício de uso agregado, que tem comoobjetivoauxiliarnofuncionamentodo galpão como um todo, incluindo todas as suasrotinasdeatividadesjáexistentesno espaço.

Para isso, foi importante compreender as necessidades mais claras do edifício e coloca-las em um volume adjacente, que tivesserelaçãodiretacomacirculaçãode pessoasnogalpãoeaáreaexterna.

Assim,oprogramapropostofoi2banheiros acompanhadoscadaumdelesporvestiários, uma cozinha comunitária, um depósito e um espaço de permanência e eventos na parte externadoedifício.

Brises de madeira
Projeção da cobertura
PLANTA ANEXO DE APOIO
CORTE AA ANEXO DE APOIO

Considerando a escala do pedestre, o projeto possui como premissa a permeabilidade física e visual entre as quadras, algo que se estrutura a partir dos espaços livres, desenhos de pisos e gabaritos dos edifícios. Tendo em vista os edifícios e as pré-existentes e a relação destes com a memória local, propomos uma série de anteparos metálicos nas fachadas das intervenções.

Os anteparos reconstituem o ritmo das antigas fachadas e reforçam o caráter permeável das quadras. Na quadra ao norte, em um mesmo bloco concentra-se as células de produção e foi realocado as instalações do sindicato (Atividades já exercia das nas antigas edificações) O antigo edifício passa a alocar uma cafeteria que se interliga com uma grande área de convivência,comumàsquadras.

Continuando o percurso, numa quadra ao sul foi proposto uma área de eventos, composta por dois palcos para diferentes tipos de manifestações artísticas, um núcleo de apoio além de uma área expositiva. A parte com a área expositiva recebe uma atenção maior já que, por meio da sua materialidade e disposições, destaca o patrimônio. Na sequência, foi proposto um restaurante e uma área de convivência, que se abre para o bloco administrativo eparaapraçacriadaapartirdarelaçãocomarua.

O trabalho foi realizado em um grupo de cinco integrante para uma disciplina Optativa(2023)duranteagraduaçãodeArquiteturaeUrbanismo.

USINA

Núcleo de produção cultural em São Carlos

Poligonal histórica

Intervenção entre pré-existências na cidade de São Carlos - SP

Poligonalhistórica

Intervençãoentrepré-existênciasna cidadedeSãoCarlos-SP

A ideia projetual do trabalho é a integração das preexistências com as novas edificações de uso misto. Assim, o projeto se constrói em meio a presença de três preexistências, sendo um obstáculo e/ou um elemento a ser incorporado no desenho geral do projeto. No interior do pátio entre os volumes por meio das formas orgânicas, é possível criar um ambiente de convívio entre o público e o privado, permitindo que a quadrasejaocupadaemseuinterior.segundopav.

Além da relação com o existente, o projeto se estrutura através da necessidade de habitação estudantis e familiares na região, também com o intuito de desenvolver uma região mais povoada, através da incorporação de usos mistos e do térreo destinado para serviços e comércios. O apartamento se resume em residência unifamiliar/estudantil com 2 quartos, 1 banheiros e sala de estar e cozinha integrados. A área comum dos moradorestambémservecomoumavarandacompartilhadaentreosapartamentos.

Foi interessante, apesar do contraste em relação a fachada e os materiais, criar uma relação entre as volumetrias das preexistências, nesse caso, em relação ao suas proporções e posição do terreno. A nova edificação, como mostra o cor te, toma proveito da circulação vertical e da sua relação com a materialidade em seus fechamentos. isométricas explodidas - sistema construtivo. No projeto também foi interessante pensar em como novos usos nas antigas preexistências poderiam partilhar o uso dessa nova dinâmica na quadra . Como exemplo, em um dos edifícios foi proposto o uso de coworking integrado a usos comerciais e alimentícios, de forma que fosse possível criar diferentes experiências e usos para o que ali antes era apenas um local de circulação de pessoas com pouco nível de permanência.

Pav. Térreo

PISO DE CONCRETO MOLDADO IN LOCO

DETALHAMENTO SISTEMA CONSTRUTIVO

PAINEL METÁLICO

PERMETAL - METAIS

PERFURADOS

BRP 13

Foi interessante, apesar do contraste em relação a fachada e os materiais, criar uma relação entre as volumetrias das preexistências, nesse caso, em relação ao suas proporções e posição do terreno. A nova edificação, como mostra o cor te, toma proveito da circulação vertical e da sua relação com a materialidade em seusfechamentos.isométricasexplodidas-sistemaconstrutivoNoprojetotambém foi interessante pensar em como novos usos nas antigas preexistências poderiam partilhar o uso dessa nova dinâmica na quadra . Como exemplo, em um dos edifícios foi proposto o uso de coworking integrado a usos comerciais e alimentícios, de forma que fosse possível criar diferentes experiências e usos para o que ali antes era apenas um local de circulação de pessoas com pouco nível de permanência.

COBERTURA KINGSPAN ISOESTE ISOTELHA TRAPEIZOIDAL

SISTEMA DE ÁGUAS PLUVIAIS TIGRE

CALHA, CONDUTOR VERTICAL, CONDUTOR HORIZONTAL, LIGAÇÕES METÁLICAS

TRELIÇA PRÉ-FABRICADA

VEDAÇÃO GYPSUM CHAPA CIMENTÍCIA

RUFO FEITO SOB ENCOMENDA
PLACA CIMENTICIA
MANTA HIDRÓFUGA
PLACA CIMENTÍCIA (3,5 x 1,75 m)
PILAR VIGA
PLACA OSB
LÃ DE VIDRO
PERFIL METÁLICO

Um dos pontos centrais no projeto permaneceu sendo como o uso misto e de que forma ele seria especializado nessa nova dinâmica do interior da quadra. Neste caso, a ideia de criar a integração do interior da quadra com o externo permitiu que novas dinâmicas fossem possíveis para além da habitação e o uso particular. Ressalta-se também que para que este fator fosse possível, era interessante, no momento do projeto, pensar em estratégias que pudessem permitir a circulação privada junto a pública, sem grandes interferências em ambos.

público privado circulação

CORRÉGO DO SIMEÃO

DECK

VEGETAÇÃO

RASTEIRA

MIRANTE

BACIA DE MITIGAÇÃO

CICLOVIA

VIAS

COMPARTILHADAS

8 CONJUNTO DE MIRANTES

DECK 02 (FIGUEIRA) ÁREA DE PERMANÊNCIA E CONTEMPLAÇÃO

BACIAS DE MITIGAÇÃO, pontos de inundação para diminuição e retenção dos fluxos d'água, diminuindo a incidência de possíveisalagamentosnessaregião MIRANTES,pontosdeestarecontemplação paramiraredesfrutarapaisagem,tornaro córregodoSimeãovisível,buscandoampliar o contato com a água e criar relações de sentidoepertencimentoentrerio,cidadee seushabitantes.

DECK 01 ÁREA DE PERMANÊNCIA DOS ESTUDANTES

DECK MADEIRA PINOS

ARQUITETURA DA PAISAGEM I

PROJETO DE REQUALIFICAÇÃO DA ÁREA DA ANTIGA FABER CASTELL

Arquiteta e Urbanista

Brasil, SP

14.03.2001

CONTATO:

Telefone: (16) 991588105

Email: beatriz.habermann@usp.br / bia.habermann14@gmail.com

behance: https://www.behance.net/behabermann

Linkedin: https://www.linkedin.com/in/beatrizhabermann-4b9aa52b5/

Turn static files into dynamic content formats.

Create a flipbook
Issuu converts static files into: digital portfolios, online yearbooks, online catalogs, digital photo albums and more. Sign up and create your flipbook.