PORTFÓLIO ARQUITETURA
BEATRIZ LIMA DA SILVA 2025
![]()
BEATRIZ LIMA DA SILVA 2025

INFO





BEATRIZ.LSILVA2003@GMAIL.COM
(11) 96248-3005
20/06/2003
SUZANO – SP
BRASILEIRA

LINKEDIN.COM/IN/BEATRIZ-LIMAA/
Estágio em Arquitetura
Facilidade de aprendizagem e comunicação; pontualidade; proatividade; criatividade e organização
2021 – 2025 Graduação em Arquitetura e Urbanismo – Universidade Anhembi Morumbi – Mooca, SP
2020 – 2021 Técnico em edificações – ETEC
Presidente Vargas – Mogi das Cruzes, SP
2019 – 2020 Curso de espanhol – CNAIdiomas –Ferraz de Vasconcelos, SP
2012 – 2019 Curso de inglês – CNAIdiomas –Ferraz de Vasconcelos, SP
Abr. 2023 – Dez. 2024 Estagiária em arquitetura
Rosangela PenaArquitetura – São Paulo, SP
Mar. 2025 – o momento Estagiária em arquitetura
Rodraarq Arquitetura – São Paulo, SP
Inglês intermediário – Janeiro de 2020: FCE (First Certificate in English) – University of Cambridge, Inglaterra
Espanhol intermediário – Agosto de 2021: SIELE (Servicio Internacional de Evaluación de la Lengua Española)
Pacote Office –AutoCAD –SketchUp –Layout –V-Ray –
Fevereiro – 2023: Curso básico Vray 5 0 – BM Maquetes (concluído)
Junho – 2022: Curso básico Layout – BM Maquetes (concluído)
Abril – 2021: Curso de iniciação profissional em desenho arquitetônico – SENAI Campo Grande (concluído)
EDIFÍCIO MULTIFUNCIONAL OFFICE & CO | PROJETOE
MODELAGEM3D
COMPLEXO ESPORTIVO DE FUTSAL | PROJETOE
MODELAGEM3D
ESCOLA TÉCNICA CAPÃO REDONDO | PROJETOE
MODELAGEM3D
ESCRITÓRIO AGILE CREDIT | PROJETO,MODELAGEM3DE RENDER
SÍTIO EM SANTA ISABEL - SP | PROJETO,MODELAGEM 3DERENDER
REFORMA APARTAMENTO E&J | PROJETO,MODELAGEM 3DERENDER
PROJETOS EXECUTIVOS | PROJETO
OUTROS RENDERS | MODELAGEM3DERENDER


ANO: 06/2023


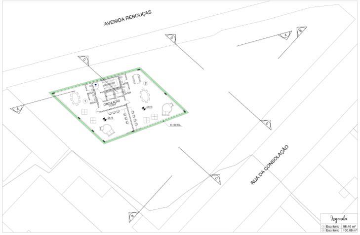
O projeto Edifício multifuncional Office & Co é composto por 2 (duas) torres ligadas entre si por uma plataforma elevada O programa contempla atividades como escritórios, lojas, restaurantes, biblioteca e terraços O perfil do edifício permite uma transição suave entre uma avenida existente e uma rua menos movimentada

Mapadeanálise doterreno

Isométrica explodida
Comercial:995,87m²
· Unidades comerciaislojas e restaurantes
Outrosusos:497,94m²
· Biblioteca pública e espaço de coworking
Corporativo:3.485,55m²
· Unidades de escritórios e clínicas
Plataforma:162,52m²
· Interligação dos edifícios
Estacionamento:987,41m²
· Localizado no subsolo

Implantação
O local de inserção é um terreno de esquina com a Av Rebouças, Rua da Consolação e Alameda Jaú, localizadas no bairro Jardim Paulista, na cidade de São Paulo

Diagrama deevolução daforma

Moodboard de materialidade




Pavimentotipo(8ºao13ºpav.)










ANO: 11/2023


Projeto elaborado como resposta à proposta de criação de um complexo esportivo de futsal com ênfase na sua cobertura e no tipo de sistema estrutural desenvolvido
Com o objetivo de implementar uma volumetria cheia de movimento, beleza e conforto para a região em que será inserida, a implantação define um formato que através da utilização de uma cobertura ondulada, possibilita uma fluidez visual e torna-se uma construção diferente do existente


Croquideestudo
Seu programa contempla, além das quadras, sede administrativa, conjunto de sanitários com vestiários, dois bares, dois espaços para churrasco, estacionamento e torre de reservatório de água
Por conta do grande fluxo nas avenidas do entorno, o complexo esportivo possui recuos em todos os lados com a intenção de não intimidar o caminhar do pedestre
Numa tentativa de trazer fluidez ao entorno, o formato proposto é orgânico e quebra a rigidez dos grandes prédios, visto que seu formato remete às ondas do mar
Para isso, conta com vidros, madeira e concreto na sua concepção

O sistema estrutural adotado para todo o complexo foi o de MLC (Madeira laminada colada), trazendo maior leveza e autenticidade para o projeto














ANO: 06/2024


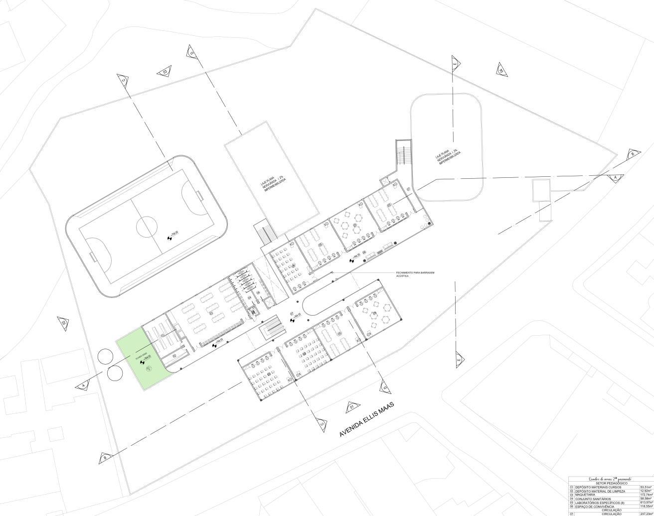
Criação de uma escola técnica composta por 4 blocos com passarelas elevadas, visando promover interligação entre eles
O projeto foi desenvolvido de forma que priorize aspectos urbanos e climáticos, gerando ambientes bem setorizados, com ventilação adequada e iluminação natural.
A implantação do edifício de forma angulada foi uma excelente alternativa para melhorar o conforto acústico do local, já que reduz a exposição direta às fontes de ruído

Implantação
Implantaçãoparaminimizar osruídos

Croquideestudo
Estudodeventilaçãonatural

Croquideestudo
Seu programa contempla salas de aula, laboratórios, oficinas, refeitório, auditório, biblioteca e espaços de convívio
A solução proposta consistiu em dividir o edifício em 4 blocos, separados por pátios internos Essa divisão não apenas proporciona uma abundante luz natural às áreas de estudo, mas também oferece espaços externos protegidos do vento Nordeste, que traz consigo o odor característico do córrego localizado no parte posterior do terreno
Sistemaadotadopara melhoraraacústicainterna

Croquideestudo














Projeto:RosangelaPenaArquitetura
Projetista:BeatrizLimadaSilva








Projeto:RosangelaPenaArquitetura
Projetista:BeatrizLimadaSilva









Projeto:RosangelaPenaArquitetura
Projetista:BeatrizLimadaSilva






Projeto:RosangelaPenaArquitetura
Projetista:BeatrizLimadaSilva


Projeto:RosangelaPenaArquitetura
Projetista:BeatrizLimadaSilva


Projeto:RosangelaPenaArquitetura
Projetista:BeatrizLimadaSilva





