Architecture Portfolio 2023

Page 1

BEATRIX NGIA

ARCHITECTURE PORTFOLIO

BEATRIX NGIA

WORK EXPERIENCE

ARCHITECTURAL DESIGNER

JRJ Architects, llc | June. 2021 - Present

ARCHITECTURAL DESIGNER

• Developed detailed drawings for healthcare projects including imaging facilities, medical office tenant improvements, and emergency department remodel in all phases of design

• Implemented a comprehensive graphic standards manual and established a consistent visual identity for 4 project proposals

• Lead creation of high-quality 3D renderings, fly-through animations, and other project visualizations

• Assisted with project close out and construction administration

TECHNICAL DRAFTER - FREELANCE

Melissa Marans Interiors | Oct. 2020 - March 2022

• Developed presentation graphics and technical drawings for various residential interior design projects with assistance of project manager

• Presented design layout options and worked closely with Principal to ensure accuracy and feasibility of design plans

SCORE HOME ENERGY ASSESSOR

EWEB and Oregon Department of Energy  | January 2020- July 2020

• USDOE Certified Home Energy Assessor

• Performed home inspections and organized data of Eugene homes based on the USDOE Home Energy Assessment

• Generated and distributed EWEB household energy efficiency information and recommendations for energy-saving improvement to landlords and renters

ARCHITECTURE INTERN

UIG Architects  | Jun. 2018 - Aug. 2018

• Assisted architects and designers in the design development of luxury apartment units

• Prepared sales drawing presentations and documents

• Researched apartment and hotel building trends and proposed conceptual design of a residential apartment complex

EDUCATION

Bachelor in Architecture at the University of Oregon- Fall 2020

Minor in Interior Architecture

Robert D. Clark Honors College

PERSONAL SKILLS

Organized

Team player

Fast learner

Good time management

PROGRAM SKILLS

Adobe Photoshop

Adobe InDesign

Adobe Illustrator

AutoCAD

Bluebeam Enscape

Hand Drawing

Lumion

Hand Rendering

Microsoft Office 360

Revit

Rhino

ACHIEVEMENTS

Studio Commendable Pass | Winter

2016 | Studio Critic: Landry Smith

Published in "Case Study Winter

2018" by Alison Kwok

Building Science Principles Certification of Knowledge

Accelerate the City Competition 2020

Finalist Bubble Features Platform

(248) 885-5817 beatrixngia@gmail.com
Table of Contents 04 Dexter
Spring
Critic:
Rockcastle 03 Emergency
Expansion JRJ Architects 02 Downtown
Summer
01 Eudiamonia
Apartments Fall
Studio
05 Courtyard
Artwork 08 07 Voodoo
Brambach 06 Bench
Lake Boathouse
2018 | Studio
Siobhan
Department
Eugene Affordable Housing
2019 | Studio Critic: Lyndsey Deaton
Health and Wellness
2018 | Studio Critic: Sebastian Guiverneu |
Partner: Aubrey Timmons
H2OMES Winter/Spring 2020 | Studio Critic: Peter Keyes
Donuts Retail Electric Lighting Fall 2019 | Project Partner: Marin Nagle & Sydney
Project Spring 2017 | Project Partner: Brian Krall

Eudiamonia Health and Wellness Apartments

Fall 2018 | Studio Critic: Sebastian Guivernau | Studio Partner: Aubrey Timmons

Subscription Architecture is exploring multi-use building typologies in a flexible sense, by using the building as an ecosystem of diverse uses available only to its “subscribers”. Unlike ordinary mixed use buildings, our concept focuses on the aspect of membership. If you “subscribe” to an apartment unit, you will become part of a community that involves like minded individuals who want to better themselves physically, mentally and have access to the health and wellness facilities that are on the property. The program is aligned with WELL Certification values to encourage and emphasize physical and mental health.

Program: Inspired by the local community and its interest in health and wellness programs and lifestyle, this eight story residential building provides tenants with access to a gym, with workout classes, a restaurant and café with healthy food options included with their “subscription fee” of rent. We used the WELL Certification as a guideline on what to include in a health and wellness building.

01
Physical Model

Crystal Concept

Crystals represent the idea of whole body wellness, not just physical wellness that people first think of with the words health and wellness

We incorporated the central core of the building to symbolize the restorative nature and overall wellness the residents and users of the building. It symbolizes the idea that the central “core” idea of the building is to promote health seen and unseen.

Eighth Floor

WELL Building Standards Diagram Sun Diagram

Morning Noon Evening

Ground Floor
Floor
Second Floor Fourth
AMERICANJAKE'SGRILLRESTAURANT JACKKNIFE BAR SENTINEL HOTEL BLONDIEA SALON COCKKASKBARTAIL BISTRO AGNES HEART COFFEE SHOP PACIFIC EYE CLINIC PORTLAND MEDICAL CENTER COMMERCIADOCUMARTLPRINTER MILLINEPINKHAM RY ADORN BOUTIQUE SANTOSARTGALLERY FRANCES YAM MODERN BOUTIQUE PERSIAN RUGS ECHOAUDIOSHOP ACE TLANDRPOLHOTE OWNTSTUMP COFFEE ROASTERS KENNY & ZUKE'S JEWISH DELI G-STAR RAW LUXURY RETAILER TIMBUK2LUGGAGESTORE EMERGE INTERACTIVE DESIGN AGENCY BAMBOOSUSHI KUREJUICEBAR ROCHE BOBOIS HIGH END RUG STORE INSTITUTETLANDRPOOF TRARYCONTEMPORA STARBUCKS NON-PROFIUNITEDWAYTORGANIZATION HIGHALDERANDCOENDBOUTIQUE PETUNIA'SPIESANDPASTRIES FIRSTPRESBYTERIAN CHURCH ARCHITECTURETERLEAFAW TIONAFOUNDTETASLBENEFICIA BANK WASHINGTON PLAZA APARTMENTS ICECREAMSHOP AMERICANRESTAURANT APARTMENT BUILDING MASUSUSHI ZGFARCHITECTS BEER O'CLOCK GRASSA CAFE LARDORESTAURANT SWHARVEYMILKST SW 11TH AVE SWALDERST SW 10TH AVE SW 12TH AVE
APARTMENTS LOISD ASSOCICOHENATES ANIA BRIDAL UPANDOUT NON-PROFIT HERBALALCHEMY BEAUTY SALON MARKET LUGGAGE STORE
TASTYN
LEASE CRUTCHER LEWIS CONTRACGENERALTOR HYATTCENTER PORTLAND THE GREEN ROOM BAR CHIZU A CHEESE BAR SHALOM Y'ALL SW RESTAURANT OFFICENEWCONSTRUCTIONANDRETAILBUILDING QUICKFISH SEAFOOD RESTAURANT HOTELSPENCERMARKTHE Site Plan Building Entrance Main Lobby Exterior Render
BEVERLY-ALDER
COX'SDRY CLEANERS
ALDER
E V A H T 1 1 W S E V A H T 2 1 W S SW WASHINGTON ST SW 12TH A VE SW WASHINGTON
Ground Floor Plan Second Floor Plan East Elevation West Elevation
SW 1 1TH A VE ON ST
North Elevation
Eighth Floor Plan

Downtown Eugene Affordable Housing

Summer 2019 | Studio Critic: Lyndsey Deaton

The Greyhound Bus Station in Downtown Eugene is a streamline modern historical building that was the hub for transportation since 1949. After 78 years, the Greyhound Bus Station has relocated, leaving behind the historical building. Based on research of the Downtown Eugene area, we see a need for affordable housing options. In order to stimulate the area, I designed a multiuse space with commercial and retail spaces in addition to housing. I added a courtyard and outdoor public spaces to the area, as the closest public square is located a couple blocks away to the north east of the site. By bringing more life and spaces for social interaction into the Downtown area, it will promote more people to come to Downtown Eugene. My design intent saves the historical building facade and bus bay while adding more modern forms on top for housing. I set back the additional floors to highlight the strong, unique corner that the original building had. The shifting rectangular forms for the housing provides balcony space for the housing units and a multitude of different views. The shifting floors also lets those who don’t want a balcony to still view and interact with the public square below.

02

Shifting Floors

The floors in this project shift ever two levels, to show movement and dimension to the building facade. The two floors shift together as a unit to emphasize the shifting boxes. It is designed this way to provide different social environments to each apartment unit and private balconies. Tenants can either have interaction on the street or in the interior courtyard.

Second and Third Floor Fourth and Fifth Floor Sixth and Seventh Floor
Eighth and Ninth Floor
Original Building and Site Pull back to open up courtyard Add bridge between two parts Concept Diagram Outdoor Green Space Diagram
Pearl St. 10th St. A B Lobby Second Lobby Retail Space #1 Retail Space #2 Retail Space #3 Trash Ground Floor Plan

Massing Models

Floor Plan
Plan Sixth Floor Plan Eight Floor Plan Tenth Floor Plan
Second
Fourth Floor
Semi-enclosed Courtyard Double Shifting Towers Connecting Bridges

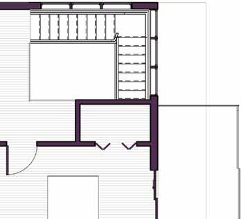
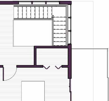
Emergency Department Expansion

Summer 2021-Current | In collaboration with JRJ Architects

The 60,000 square foot remodel and expansion project of an existing emergency department in the Portland Metropolitan area was a challenge, as it had to remain operational throughout the construction process. Despite being the busiest emergency department in the area, the team was able to expand the capacity from 52 to 84 beds to better meet the growing demand. The upgrade included a modern diagnostic imaging department, a dedicated behavioral health department, as well as new staff amenities such as a breakroom and locker rooms. The entry lobby was also redesigned to provide a welcoming atmosphere, and the exam rooms were made flexible to accommodate pediatric, adult, and behavioral health patients.

As a key player in the design phase, I was responsible for creating 3D renderings and visualizations for the remodel. I took the lead in creating marketing images and promotional materials for the hospital foundation board. My renderings, VR, and flythrough videos were used in presentations and to support the success of the project.

03
Lobby Render Staff Breakroom Arrival Care and Waiting Area Staff Workroom Fast Track Room and Donor Recognition Plaque
Storyboard
Lobby Donor Recognition
Storyboard
Lobby Donor Recognition

Site Analysis in Relation to Building Location.

Dexter Lake Boat House

Spring 2018 | Studio Critic: Siobhan Rockcastle

The goal for the boat house is to create a building where each space is linked together by a continuous expansive view of the lake where rowing practices, as well as race competitions take place can be seen wherever you are in the building. The building is divided into 4 sections through ceiling height and subtle level changes. The building also has a circular circulation to allows one to have the views of a plot of trees that are planted in the center of the building from any part of the building. The common theme throughout the building is vertical wood panels that frame each window and repeated through columns and beams. This also imitates the tree trunks found around the site. The building has easy access to docks as well as the parking lot.

Sunset 4:36 PM -57° Sunset 7:19 PM -90° remmuS ecaloS Sunrise 7:10AM 90° Sunset 7:32 PM -125 retniW ecaloS Sunrise 6:51AM 125 pS/llaF r xoniuqEgni Sunrise 7:42 AM 57° 23° 47° 70° Views White Oak Red Cedar Pine
04

Existing Structures

ecaloSretniW Sunrise 6:51AM xoniuqEgnirpS/llaF Sunrise 7:42 AM 23° 47° 70° White Oak Red Cedar Pine Big Leaf Maple Red Alder Ponderosa Pine Sun and Wind Noise Levels Circulation and Automobile Traffic Foliage Identification
Sunset 4:36 PM Sunset 7:19 PM ecaloSremmuS Sunrise 7:10AM Sunset 7:32 PM Parking Lot Play Ground Restroom Basketball Court Concession Stand O.A.R Dock Walking Dock Marina Picnic Area Highway Main launching Area Swing Set O.A.R Boat House UO Boat House Picnic Area Race Finish Lookout Point Site Analysis Diagrams
A B Ground Floor Plan
Form Parti

Green Roof Composition

Grass

Soil

Course Gravel

Sand

Filter Fabric

Drainage

Protective Layer

Waterproof Membrane

Insulation

Vapor Barrier

Plywood Decking

Course Gravel

Sand

Fine Gravel Activated Charcoal

1. Rain water not used by the green roof will be collected and stored in a gray water tank. 2. The water is then filtered. 3. The filtered gray water is then pumped and used throughout the building for sinks, showers, and toilets.
Filtration System
Systems Diagram

Courtyard H

Winter/Spring 2020 | Studio Critic: Peter Keyes

Resilient housing is houses that can withstand changing environments and adapt with it. In this project I tackled designing for predicted drought climate change and housing needs in Southern California with multi-generational living style. This housing complex has a variety of unit types that has flexible organization on the site, making it easy to adapt and accommodate to different living situations. It also allows tenants to choose if they want shared or private outdoor spaces. These houses are focused less on personal cars as the main form of transportation and focuses on walk-ability and accessibility. These houses are organized on the site as a series of small courtyards. These courtyards act as pocket neighborhoods and serve as a space to practice water collection, storage and reuse. This project is expanded in my honors thesis and has additional written supporting research.

SECTION A INTERIOR PERSPECTIVE COURTYARD H2OMES Beatrix Ngia | Professor Peter Keyes | ARCH 486| Spring 2020 05
Units Continued- Three Bedroom and One Bedroom Units Scale: 1/8”=1’

share a courtyard in the middle. This idea strengthens the goal of community living of a shared backyard space but can also have semitransparent dividers to provide privacy.

FLOOR PLAN
FLEXIBILITY 2 3 4 Unit 1 Unit 2 Unit 3 Unit 4 Unit 5 Unit 6 Unit 2 Unit 3 OPTION 2 OPTION 3 Unit 1 Unit 1 Unit 4 Unit 4 Unit 2 Unit 3 UNIT VARIATIONS KITCHEN/DINING ENTRANCE
COURTYARD
Parti Diagram

Scale: 1/64”=1’

B
A SITE PLAN
Site Plan

SITE SECTIONS

Scale: 1/32”=1’

SECTION A: NORTH TO SOUTH CUT Site Section
SECTION A: NORTH TO SOUTH CUT SECTION B: EAST TO WEST CUT

Second

Story Units Senior Living Unit One Bedroom Unit Two Bedroom Unit Two Bedroom Unit Ground Level Units
Shared Outdoor Space Three Bedroom Unit Ground Level Second Floor Roof Plan Shared Outdoor Space One Bedroom Unit
Unit Types

Sunset Bench

Spring 2017 | Collaboration: Brian Krall

An outdoor seating system that accommodates various activities. This parametric bench was created using a Grasshopper script. This woven park bench is constructed out of purple recycled plastic material. The woven pattern allows the bench to have good ventilation and sun exposure. It also creates interesting shadows to enhance the user’s experience.

06

Voodoo Donuts Retail Electric Lighting

2019 | Project Partner: Marin Nagle & Sydney Brambach

This popular local donuts shop in Eugene, OR has amazing donuts but not so amazing lighting in their store. We wanted to tackle the challenge of redesigning the electric lighting in the store and create a unique luminaire that reflected the company’s eclectic vibe. Our goal was to highlight the merchandise wall and menu to emphasize the product and donuts that Voodoo is selling while also improving task lighting in the kitchen and hallway. To do this, we created a cove floor lighting in the hallway and lowered the ceiling of the store. We also made the half wall on the storage side of the store into a full wall because their storage boxes were visible, causing the store to seem disorganized. Finally, we used the luminaire that we created to emphasize the main space and sitting area.

Fall
07
Designed and Constructed Luminaire

Luminaire Concept

“The Magic is in the Light” is a suspended direct luminaire that is constructed with zip ties and 16 gauge wire. The pink color is inspired by Voodoo Doughnut’s signature color and eclectic style. Directly inspired by the actual doughnuts that Voodoo Doughnuts sells, specifically the “Voodoo Doll” and “The Magic is in the Hole” doughnuts where the luminaries shape takes on the spiral found in the “Voodoo Doll” and the pink and coconut flakes from the “The Magic is in the Hole”. “The Magic is in the Light” slightly emits light from the top of the luminaire, but most of the light is directed downwards on to the customers.

Luminaire Iterations +

Lighting leading to the ATM

Track Lighting for storage area

More tasks lighting over the kitchen.

Recessed canned lighting

In-Floor Aluminum

Mounting

Channel for LED Strip Lights

Wall wash to emphasize the large menu of donuts that is mounted on this wall

Our luminaire

More lighting on the store front to draw people in, as well as feel safer in Downtown Eugene

Reflected Ceiling Plan

Wall wash on the merchandise

Darker over by the Arcade so the lights from the machines are heightened.

Wall wash to draw in customers from the side walk as well as laminate the staged platform and sitting area.

Design Iteration Perspective View

Candela Distribution

The system sits inside the wired coiled frame.

The system sits inside the wired coiled frame.

Candela Distribution 125 105 90 75 55 15 0 115 115 85 65 25 5 180 165 145 35 175 155 135 45
Axon Candela Distribution 125 105 90 75 55 15 115 115 85 65 25 5 165 145 35 175 155 135 45

Track Lighting for storage area

Lamp Specification

-Philips LED 40 Watt Equivalent

-Energy Used: 5 Watts

Recessed canned lighting

Design Iteration Perspective View

-Glass

-Soft white light

Lamp Specification

-E26 Base

-Light Appearance: 2700 K

-CRI: 80

-Philips LED 40 Watt Equivalent -Energy Used: 5 Watts

-Lumens: 350 Lumens -15,000 Hours

-Soft white light

Base

Wall wash on the merchandise

Appearance: 2700 K

80

350 Lumens

Lamp Specification

-Philips LED 40 Watt Equivalent

Darker over by the Arcade so the lights from the machines are heightened.

-Energy Used: 5 Watts

-Glass

Pink chain is attached to the top of the wire frame and wrapped around the light cord for decorative purposes.

-Soft white light

-E26 Base

-Light Appearance: 2700 K -CRI: 80

-Lumens: 350 Lumens

Pink chain is attached to the top of the wire frame and wrapped around the light cord for decorative purposes.

Wall wash to draw in customers from the side walk as well as laminate the staged platform and sitting area.

Pink chain is attached to the top of the wire frame and wrapped around the light cord for decorative purposes.

Suspended 2.5’ from ceiling, 12.5’ from ground.

Suspended 2’ from ceiling, 10’ from ground.

Suspended 3.5’ from ceiling, 8.5’ from ground.

Suspended 2’ from ceiling, 10’ from ground.

Suspended 3.5’ from ceiling, 8.5’ from ground.

angle reading(lux) 0 15 35 55 75 90 105 125 145 165 180 40 38.8 21.3 6.7 2.5 2.0 2.1 1.9 1.8 1.5 1.4
40 180 2.5 5 7.5 10 12.5 15 17.5 20 22.5 25 27.5 30 32.5 35 37.5
Longitudinal Section
angle reading(lux) 0 15 35 55 75 90 105 125 145 165 180 40 38.8 21.3 6.7 2.5 2.0 2.1 1.9 1.8 1.5 1.4
Suspended 2.5’ from ceiling, 12.5’ from ground.
-15,000 Hours 0 40 180 175 2.5 5 7.5 10 12.5 15 17.5 20 22.5 25 27.5 30 32.5 35 37.5
angle reading(lux) 0 15 35 55 75 90 105 125 145 165 180 40 38.8 21.3 6.7 2.5 2.0 2.1 1.9 1.8 1.5 1.4
-CRI:
-Lumens:
0 40 180 2.5 5 7.5 10 12.5 15 17.5 20 22.5 25 27.5 30 32.5 35 37.5
-Glass
-E26
-Light
-15,000 Hours
Self-Portrait - Acrylic Veggie Bin - Acrylic
08
Still Life - Acrylic
Artwork
Losing Track of TIme- Mixed Media Morning Coffee - Pen At the Market - Acrylic Living Room - Digital Drawing Apple Picking - Graphite Seattle Fish Market- Acrylic Living Room - Digital Drawing
THANK YOU

Turn static files into dynamic content formats.

Create a flipbook
Issuu converts static files into: digital portfolios, online yearbooks, online catalogs, digital photo albums and more. Sign up and create your flipbook.