


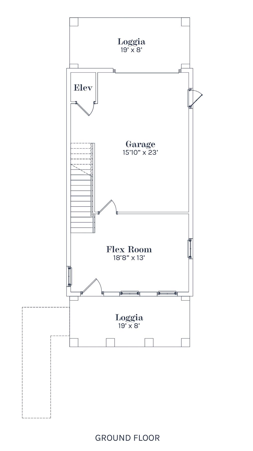
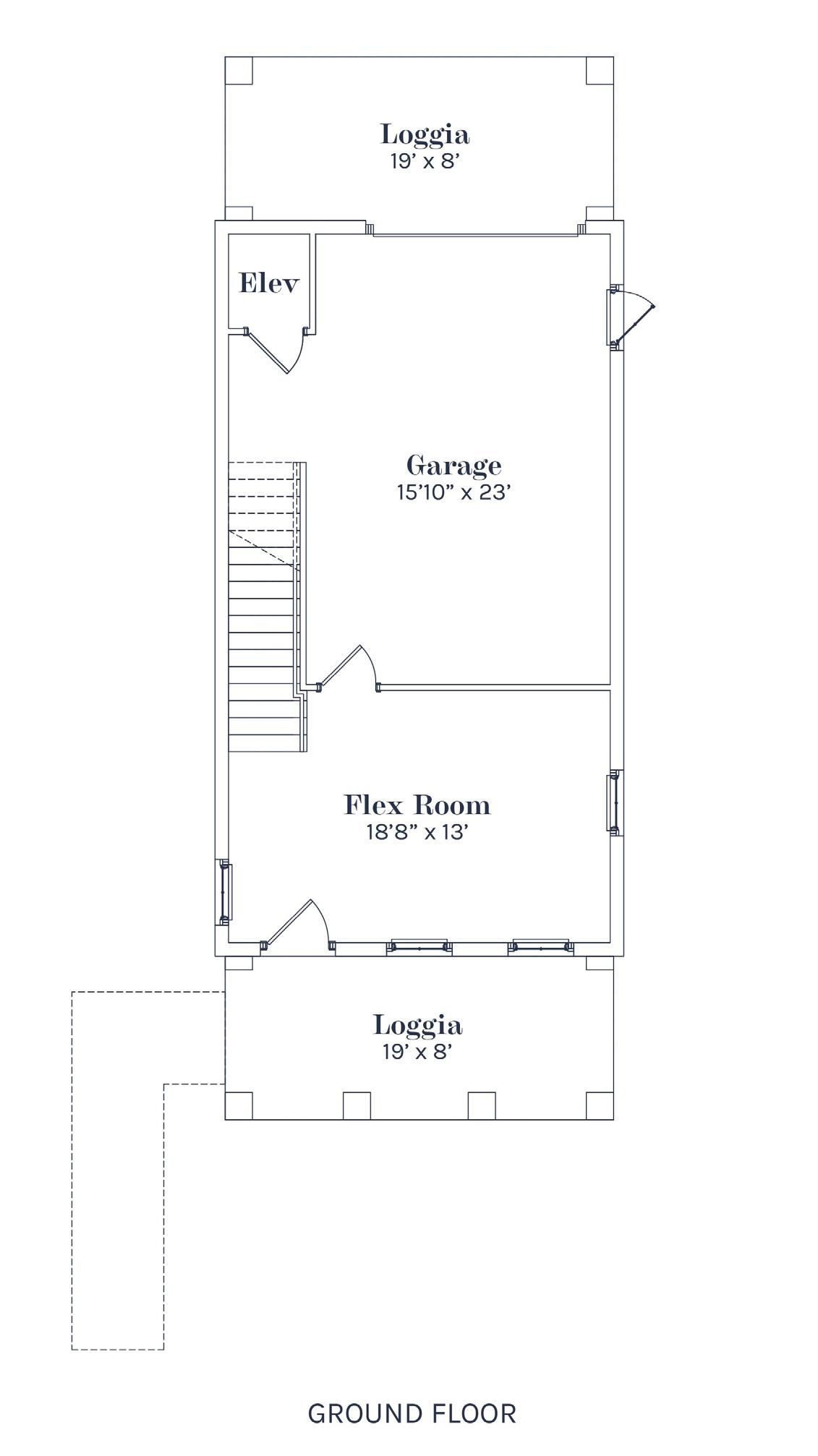
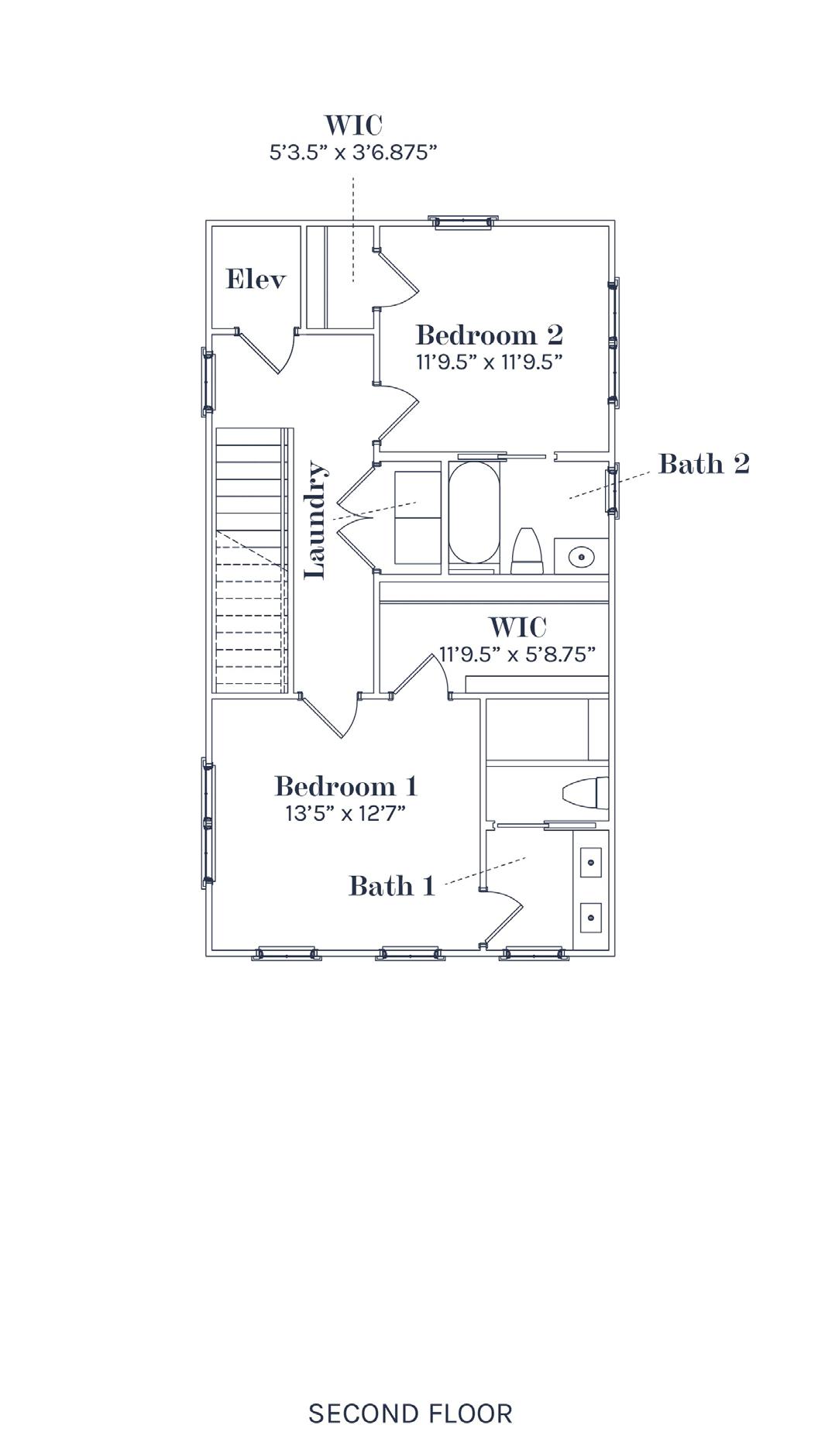
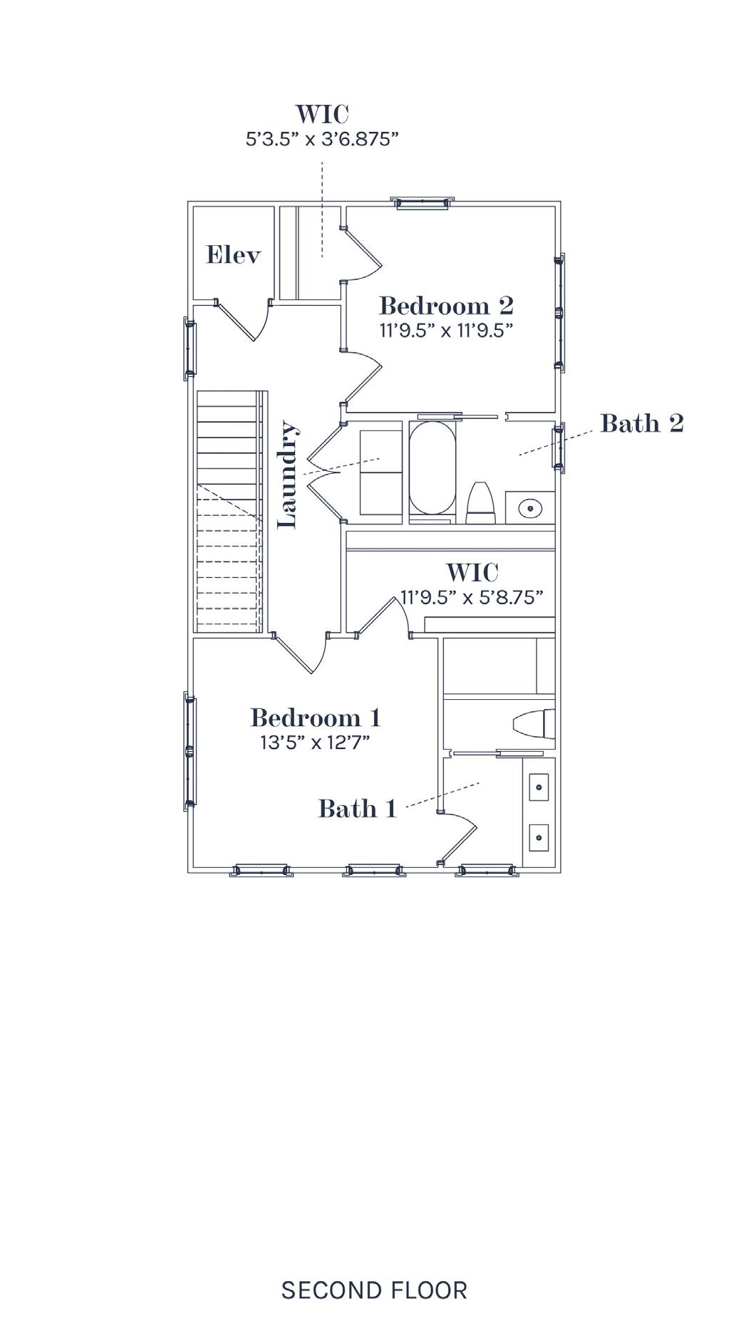
COTTAGE | LOT 43
![]()



COTTAGE | LOT 43
Please understand the actual colors of your selections may vary slightly from your monitor and these pictures. We cannot guarantee that the color you see accurately portrays the true color or texture of the product.














Renderings, floor plans, and product descriptions provided herein are to describe and highlight the features of Moss Landing development homes. Attributes including dimensions, room configurations, and finishes identified herein may contain minor variations during construction from what is stated.







Please understand the actual colors of your selections may vary slightly from your monitor and these pictures. We cannot guarantee that the color you see accurately portrays the true color or texture of the product.

Flooring: Site-Finished Hardwoods Stain: Rustic Beige on White Oak





Please understand the actual colors of your selections may vary slightly from your monitor and these pictures. We cannot guarantee that the color you see accurately portrays the true color or texture of the product.




Preliminary Cabinet Drawings







Please understand the actual colors of your selections may vary slightly from your monitor and these pictures. We cannot guarantee that the color you see accurately portrays the true color or texture of the product.










Please understand the actual colors of your selections may vary slightly from your monitor and these pictures. We cannot guarantee that the color you see accurately portrays the true color or texture of the product.







Preliminary Cabinet Drawings



Please understand the actual colors of your selections may vary slightly from your monitor and these pictures. We cannot guarantee that the color you see accurately portrays the true color or texture of the product.



Please understand the actual colors of your selections may vary slightly from your monitor and these pictures. We cannot guarantee that the color you see accurately portrays the true color or texture of the product.








