Skip to main content

TKU EA1 Chen Pin-Ying

Page 1

陳品穎
林宏聰

大一下,

開始真的踏入建築,

熬了無數個夜,

通宵也成了日常,

但這學期收穫良多,

不僅體會到做模型的意義,

也更了解建築、開始思考空間體驗。

~ 1
~ 2
1

Behaviorology in-between

Enclosure
Disclosure 6
and

阿伯鐵蛋店

地點:新北市淡水區三民街21號

8
10
12
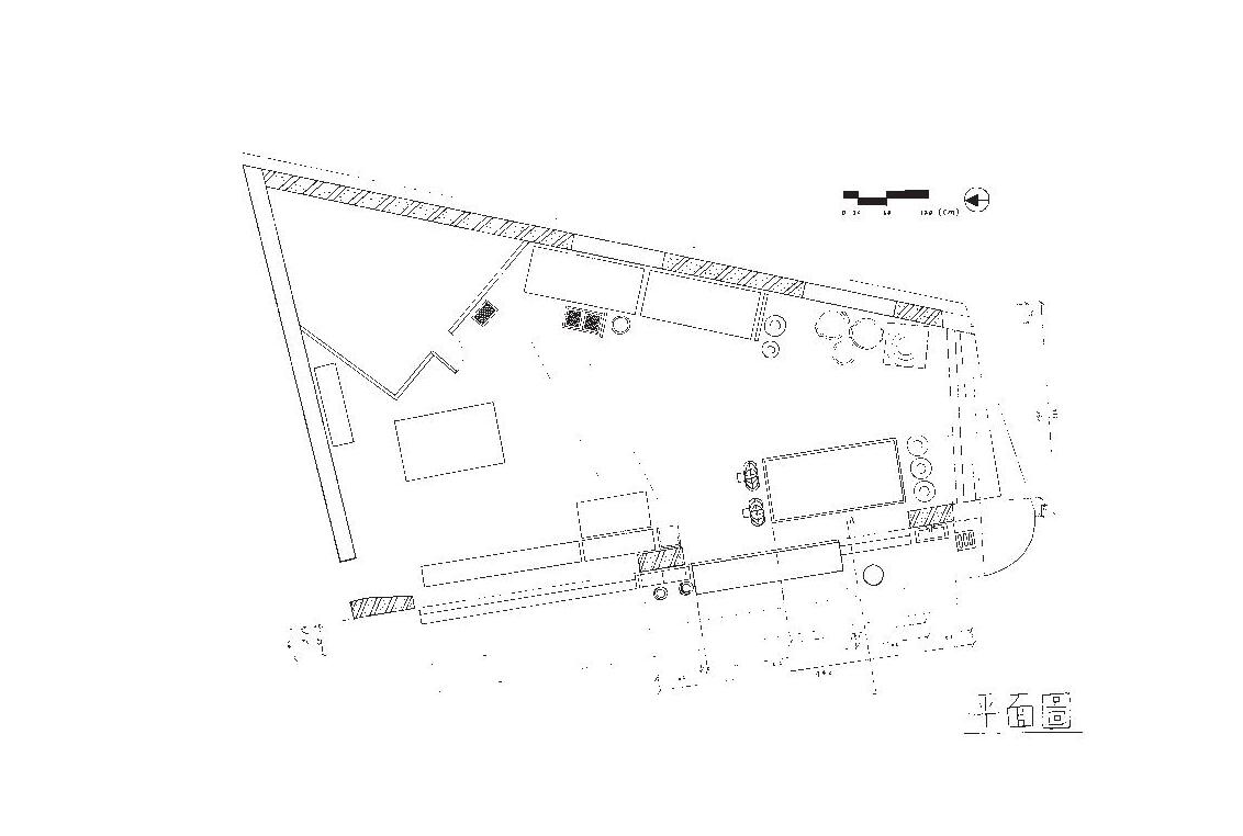
轉角處人車行走路線 行人 車子 斜度影響視角 行人 車子 窗
走一次 重複數次 高低差 鐵蛋製作流程 滷 風乾 冰 真空包裝 14
鐵蛋製作流程動線
流動與移動(突破窗的界線)
16
紅:氣味動線 、 藍:人的視線 、 綠:鐵蛋生產線
18

蛋的香氣吹出各個窗口,吸引路過的人群, 打破窗的界線

1 (原主店面位置改成副店面)前往停車場 的路線,汽車可以直接繞入電線桿,不用下 車就能買鐵蛋,再順順繞出,如得來速,不 僅解決電線桿擋住視線的問題,也利用車高 度解決原本店家與人的高低差,拉近交易距 離,更形成車子進入交易範圍的完美弧線, 方便的交易形式增加鐵蛋銷售量

3

2 行人逛老街的其中一條行走路線的尾端, 原本鐵蛋的小攤販在側邊,會被電線桿直接 擋住,改成能在路線方向一眼能看的位置作 為主店面,且讓人直直走就會進入店家範圍 ,走上前買鐵蛋

3 從上方下來的行人,能進入店家空間,安 全行走平緩的樓 梯 ,避免走危險的大馬路, 順便買個鐵蛋,再走向另一側的道路

(左)洗鍋台

整合鐵蛋整個生產線的軌道

(右)火

順接不同斜度的馬路,弧線順應馬路、連接 馬路人不同的進入方向,寬大的階梯使人願 意停留

20
22

Turn static files into dynamic content formats.

Create a flipbook