Ostvig Grad Portfolio

Page 1


Baylie Ostvig

Architecture Student

Table of Contents

Jeffrey Mayfield Competition

Rural Community Wellness Center

AIA WV Design Competition

Farm to Table Restaurant

Interfaith Space Elemental Cubes

Earth Air

Fire

Water

Model Making

Interfaith Space Model

Textile Block

Cube Transformation

Competition Projects

During the Junior and Senior years for an architecture student in West Virginia a state-wide competition is available. Each year there is a new project program, location, and requirements for the competition. Students submit a project board, where it is then reviewed by a board of architects before selecting only three students who compete with a final presentation in front of the board of architects.

Won AIA WV Design Competition Fall 2023

Won Jeffrey MAyfield Competition Fall 2024

Jeffrey Mayfield Competition

Fall 2024 Winner

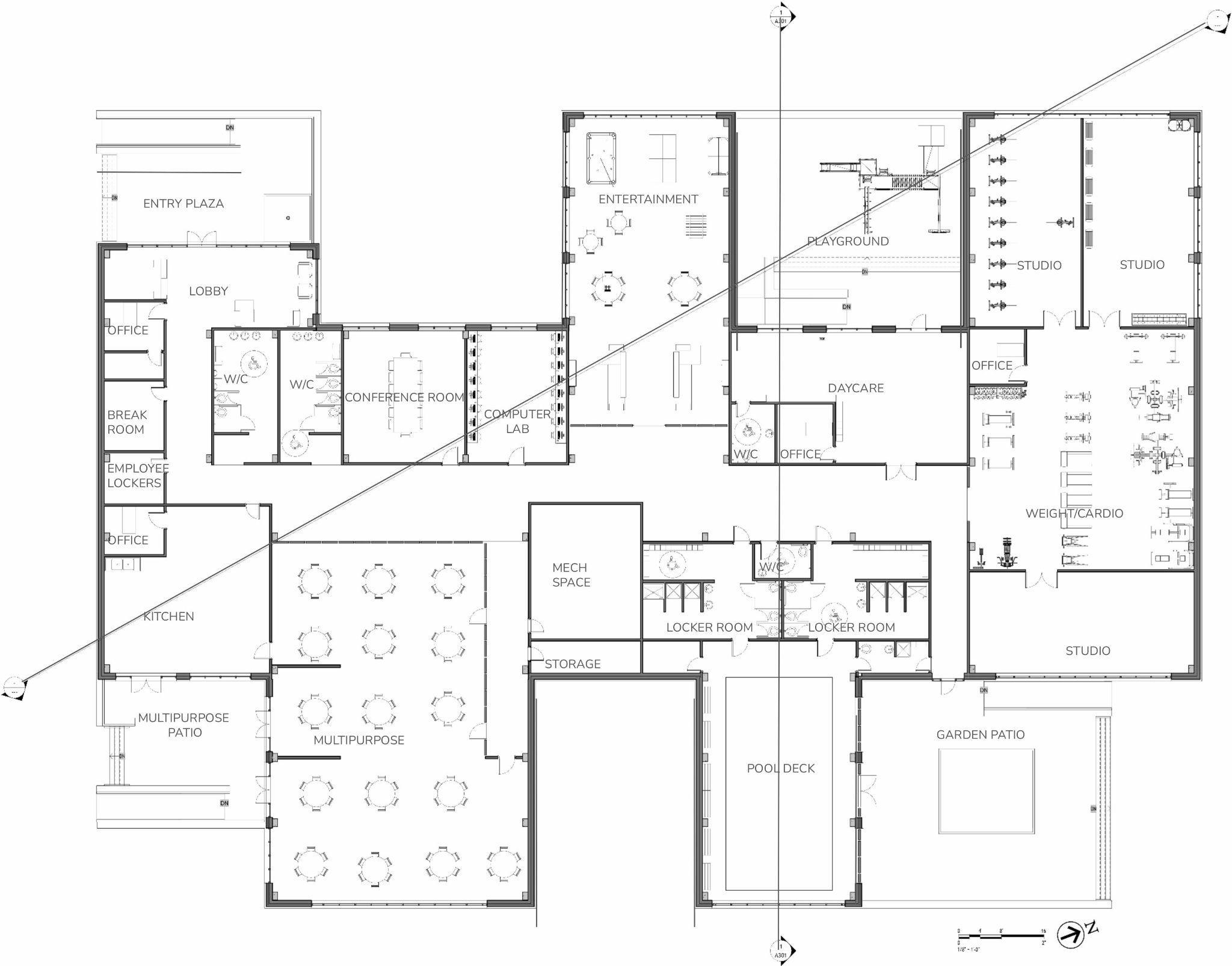
Rural Community Wellness Center

Project Board

Fall 2024 Winner

Project Write-Up

The Rural Community Wellness Center in Belington, West Virginia, serves as an essential resource for a small, underservedruralcommunityofabout1,800people.With many rural areas lacking access to health and wellness facilities, this center aims to address that gap by supporting the four key pillars of wellness: mental, physical, social, and communal health. The center offers various spaces designed to promote these aspects of well-being for Belington and its neighboring communities. The building's design emphasizes accessibility and community engagement, with large, inviting rooms that encouragesocialinteractionandwell-being.

The architecture of the Wellness Center features dynamic, outwardly extending spaces with angled roofs that create a sense of openness and volume while also physically reaching out and welcoming the community. Thecentralhallway,whichexpandsandcontracts,addsto the inviting and interactive atmosphere, with skylights enhancing the sense of height and openness. Outdoor spaces are integrated into the design, offering secure areas for daycare and transforming into plazas for community events. The exterior of the building combines regional architectural elements, with arched windows and brick walls. The interior features natural materials like red maple wood and native limestone tiles, creating a warm, rustic environment that connects the center to the beauty ofWestVirginia.

MAIN ENTRANCE
ENTERTAINMENT ROOM
FLOOR PLAN

AIA WV Design Competition

Fall 2023 Winner

Farm To Table Restaurant and Gardens

Project Board

Fall 2023 Winner

Project Write-Up

ThegoalofthisprojectistocreateaFarmtoTable Restaurantandgardentobringinfreshproduceand revitalizeacommunity.Thesiteforthisprojectis locatedintheRiverAvenueCorridor,ofPittsburgh,PA. Itisconsideredabrownfieldduetothecurrentstateof abandonment,underutilization,andprevioususeasthe HeinzFactoryComplex.Pittsburghisconsideredto havethehighestpercentageofpeopleresidinginfood deserts,whichmakeshavingfreshproducegrownon siteahugeasset.

The final restaurant design reflects the topography and context of the site. The northeast corner of the building respects the geometry of the rectilinear Heinz factories, but as one moves toward the interior, it transitions into an organic flow, similar to the edge of the terraced garden. The building is focused on serving the community with additional amenities, such as a market to sell excess produce and a coffee shop where people can grab something quickly while exploring the gardens. Both outdoor and indoor dining options are available, along with an open-air bar overlooking the gardens. There are two greenhouses—one for public use and the other for employee access only. This Farm to Table restaurant asks the patron to have a different relationship with food by enjoying food for the purpose ofnourishment,ratherthanconsumption.

MARKET
HIGH ANGLE OF ENTRANCE

Interfaith Space

This design was conceived after exploring the Abrahamic faiths - Christianity, Judaism, and Islam, and how their beliefs are manifested into architectural forms to create a space that serves all three. Using light and water, visitors are led on a pilgrimage through a series of contemplative experiences to a central gathering space. This allows people of each faith to meet, worship, pray, and meditate with their own faith community. The design also accommodates and encourages interfaith dialog between the various groups.

Spring 2024

Interfaith Space Project Board

Spring 2024 Final Project

Project Write-Up

The objective of this building is to create a welcoming gathering space for followers of the three Abrahamic faiths: Judaism, Christianity, and Islam. It serves as a place whereindividualscancometogethertoworship,pray,and connect within their respective faith communities. Beyond servingtheseindividualneeds,thespaceisdesignedto foster and promote interfaith dialogue, encouraging collaboration and understanding between these diverse religious groups. Located in downtown Fairmont, West Virginia, between Adams and Meredith Street, the structure is set amidst historic buildings and nestled within the natural beautyofthesurroundingforest.

Renownedforitsstunninglandscapes,thebuilding'sdesignisinspiredby West Virginia's state flower, the Rhododendron. The five-petaled flower is symbolizedthroughafive-pointedstar,withapentagondefiningthelayout of each point. The roof's overlapping semi-circular shapes mirror the gracefulblossomingoftheflowerpetals."GatePathPlace"anarchitectural concept explored by Douglas Hoffman in “Seeking the Sacred”, embodies theideaofaspiritualjourney.Beginningwiththegate—asymbolicopening in the site’s wall that marks spiritual initiation. The path leads through four contemplative spaces, offering meditation and exploration, ultimately culminating at the heart of the gathering space beneath a skylight. This “place” serves as the axis mundi, connecting earthly and celestial realms. The central gathering area spans 1300 square feet and accommodates up to 60 worshippers. With storage and maintenance facilities located on a lower level, visitors can freely explore the building's rooms. The basement includesacryptforadditionalevents,andtherestroomsandablutionspace at the entrance offer visitors a symbolic opportunity for purification upon arrival.

HIGH ANGLE OF ENTRANCE
PATH TO PLACE
CONTEMPLATIVE

Elemental Cubes

The Element Cube project explores how the experiences of earth, air, fire, and water can be amplified in relation to the Jewish faith.

The 12-foot cube is located in downtown Fairmont, West Virginia, and nothing may extend beyond the 12-foot cube envelope in any direction. The corners of the cube must remain intact and visible. The cube may be pressed below grade but must retain its 12-foot dimensions. No utilities (electricity, gas, or water) or power-driven equipment are permitted. No overt symbols are allowed—the goal is to create a subtle connection between the architecture and the religion, one that only followers of the Jewish faith would understand. The primary focus of the cube is the experience of the space, designed to interact with as many of the five senses as possible.

Spring 2024

The design of the earth-inspired cube reflects personal and Jewish perspectives on the significance of the earth. Earth symbolizes growth and stability, echoing the Jewish belief in cultivating and caring for the world as an extension of divine command. The cube, envisioned as a public pavilion, incorporates elements of the Star of David in the roof design, the twelve tribes of Israel represented through the pillars, and a flat southern wall facing towards Jerusalem. Constructed with stone materials, the pavilion offers a permanent space for meditation, with its descending entryway creating a grounded and enclosed atmosphere. The design engages the senses, from the textures of rough-cut stone to the earthy scents that fill the space during rainfall. Ultimately, the pavilion provides visitors with a meditative retreat, fostering a deeper connection to themselves and their environment.

Itisacool,windyday,andthesofthumof something can be heard in the distance. Approaching a large cubic structure, the source of this ethereal hum becomes clear.Largemetalstringsvibratewiththe wind,producingdeep,resonanttones.On theothersideofthestrings,threemetallic wind catchers gently tap the strings as the breeze moves them, creating subtle changes in the music. Along the sides of the building, a repeated flower-like pattern is carved into the cool, smooth concrete, each petal recessed about a foot. At the front, where the strings are located, plucking one of the cool metal strings produces a rich note that reverberates through the air. The wind catches the sound, drawing it out until it fades back into the instrument's hum. At the structure's center, a wooden core echoes the design of the Kinnor instrument, with the same flower-like patternpressedintoitssurface.

As the sun dips below the horizon, shadowsstretchacrossthestreets,cast by towering buildings. Among the monotony of the surroundings, a remarkable structure stands out. Constructed from a blend of light and dark concrete, it features intricate colored glass patterns adorning each layer.Closerinspectionrevealshowthe glassreflectsvividpatternsoflightonto the road, creating an intriguing and dynamic scene. Inside, a substantial pillar of fire glows warmly, illuminating the space with a captivating light. Around the back, the heat from the containedflameradiatesoutward,while the fading sunlight combines with the glass to cast a kaleidoscope of colors across the skin. Fingers trace the grooves of the brass and concrete frames holding the glass in place, immersing the moment in texture and warmth.

Water

Approaching the structure, visitors are greeted by an arched pavilion encircled by a moat, offering a serene ambiance. Upon closer inspection, the walls supporting the arched roof reveal a cluster of towering columns,eachreachingupto12feethighand extending beyond the roof to collect rainwater. Inside the structure, deep grooves run down the center of each column, originating from the exterior extensions designed to gather water and runoff. These groovesguidetheeyetothemoat,whichalso delineates the stepping stones on the floor, creating a harmonious division within the space. During rainfall, the structure comes to life as visitors seek shelter beneath its sturdy wooden roof, listening to the rhythmic patter of rain and observing its descent along the concrete columns into the moat. The rough exterior of the concrete contrasts with the smoothness carved by the flowing water, adding to its allure. Even in dry weather, the moat retains water, inviting observers to ponder its collection process and trace the patternsofthecolumns,makingthestructure captivatingyear-round.

Model Making

There have been several projects each semester exploring different materials and how to take ideas or digital media into physical scaled models.

Interfaith Space Model 1

Spring 2024

ThroughoutthedesignprocessoftheInterfaithSpace,severalscaledmodelswerecreatedtoexploreandrefinetheconcept.Inspiredbytheformofa Rhododendron,itwascrucialtoexperimentwithhowtheroofcouldoverlaptocreatepetal-likeshapes.Thefirstmodelrepresentsanearlyiteration,where theentranceissimpleandtheworshipspaceappearsoversized.

Interfaith Space Model 2

Thefirstmodelwasanearlyiterationofthedesignwheretheentranceisverysimple,andtheplaceofworshipisoversized.Thesecondmodelismoresimilar tothefinaliterationoftheinterfaithspace.Thismodelshowstherefinedentranceandbetterscaledworshipbuildingforthesite.

ThismodelwasachievedthroughtheuseofRevit,Sketchup,andAutoCAD,aswellasphysicalskillswiththelasercutter,andhandassembly.

Textile Block

TheConcreteBlockprojectofferedanopportunitytodelvedeeperintotheconstructionaspectofconcretedesign.Mytaskwastocreateatextileblock inspiredbythegoldensection,andthendevelopamoldtopourandsetthedesign.Theresultingblockwasintendedtoberepeated,formingapatternedwall asdemonstratedinthefinalimage.

Cube Transformation

TheCubeTransformationprojectwasanexplorationinreimaginingasimplegeometricshapeintosomethingmoredynamic.Thechallengeinvolved deconstructingthecubethroughaseriesoftransformations,eachiterationevolvingintoanewformwhilepreservingkeyelementsoftheoriginal.Thefinal designwasconceptualizedasaversatilecolumn,incorporatingthevariousformscreatedthroughouttheprocess.

Baylie Ostvig

Architecture Student

Turn static files into dynamic content formats.

Create a flipbook
Issuu converts static files into: digital portfolios, online yearbooks, online catalogs, digital photo albums and more. Sign up and create your flipbook.