MArch Portfolio

Page 1

CONTENTS

02 planting a seed

03 saldo

04 dance village

05 rooted

01 design 6 06 nia centre

DESIGN 6

Museum

Church St, Toronto Revit, Grasshopper, Enscape, Ps, Ai Academic Individual Project Winter 2019 | Full Semester

Design6 is a space that gives Canadians the opportunity to witness the evolution of design that has come with the changing culture over the years. Situated within the rich history of Church Street, the design aims to reimagine the material world to reflect the unity of all the arts. It combines architecture, sculpture, and painting into a single creative expression. This is inspired by the Bauhaus Movement as it merges all artistic mediums into one unified approach. Design 6 is home to many varying artifacts which inspires the abstract, angular and geometric characteristics of the building. The façade celebrates the permanent collection on the exterior as it is derived from the elements of pattern and repetition which are found in most of the objects being displayed.

Design 6

BAUHAUS INSPIRED

Facade Vertical Core Embedded Arrangement Community Spaces Gallery Spaces St. James Cathedral Courthouse square Native Arts Society
Multi-media
LOCATION PROGRAMS PROJECT TYPE CREDIT DATE
Interior
Floor
Perspective: Ground
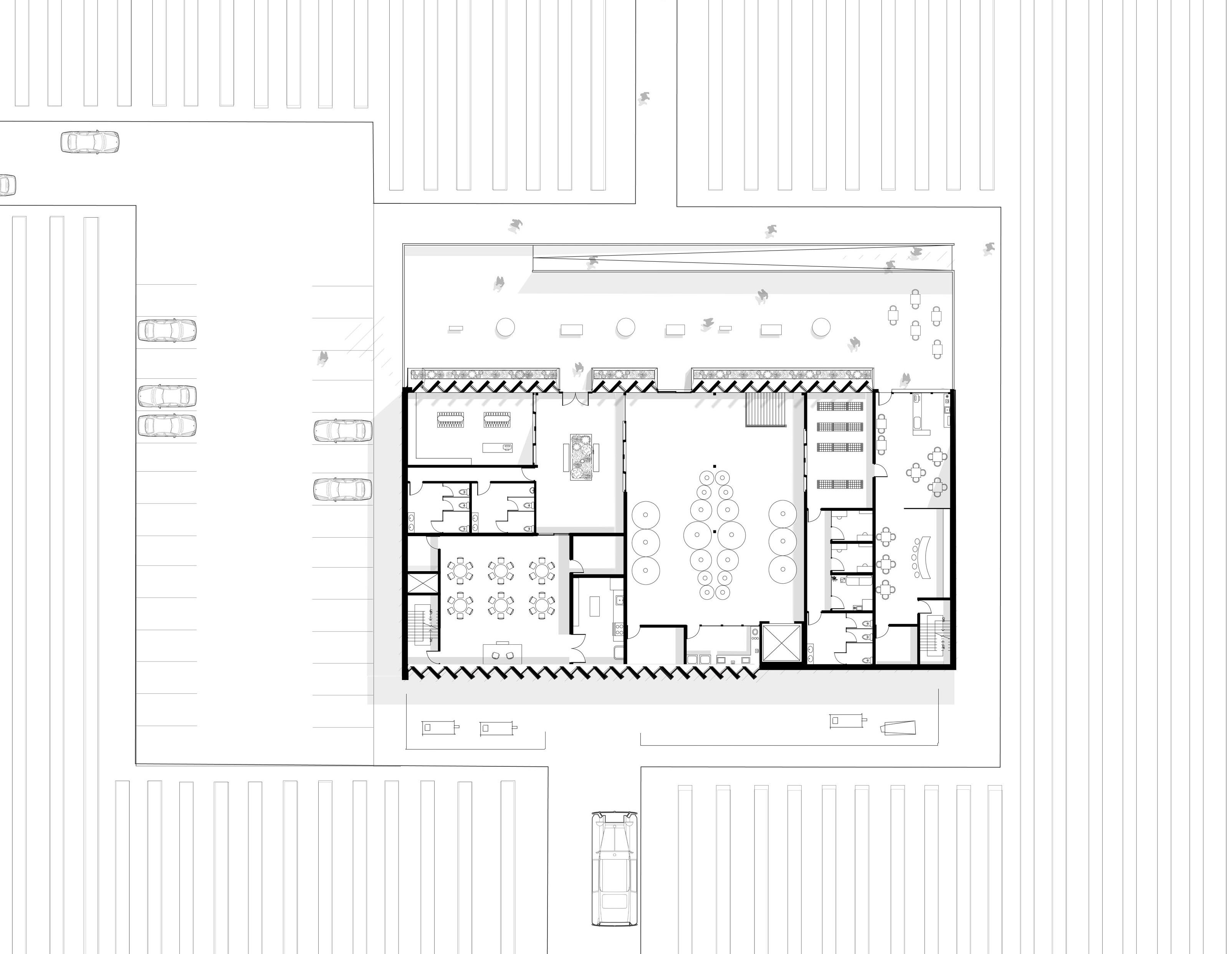
Concept Floor Plan Developed Floor Plan | First Floor 1. Lobby 2. Reception 3. Cafe 4. Retail 5. Lecture Room 6. Object Prep. 7. Woodshop 8. Lockers 9. Loading 10. Freight Elevator 11. Mechanical Shaft 12. Electrical Room 13. Communications Room 2 1 3 4 5 6 7 8 9 10 11 12 13 A A

The objects displayed in the permanent gallery carry the elements of repetition, pattern and rhythm as a commonality. This is reflected on the exterior

2

Exterior

Recycled Glulam fins covering South & West facades

Plan: fins bring in the element of linearity through light & shadow

Dimensions of fins

1

3 4 1 2 second floor

Processional circulation is used as a method to direct people through the public spaces in the museum.

Interior Sketches: Linear arrangement of objects allows visitors to witness a chronological sequence of design evolution

|

10,000mm
250mm
chair display is inspired by the silhouette of a couch textile gallery 2
Interior Perspective: chair gallery
3 Interior Perspective: chair gallery
Section A-A
4 Interior Perspective: small appliances
1. Glulam Fin 2. Steel Bracket 3. Bolt 4. Metal Flashing 5. Slab Edge Cover 6. Rigid Insulation 7. Vapor Barrier 8. Parapet 9. Soil 10. Plantings 11. Filter Fabric 12. Resevoir Layer 13. Moisture Retention Layer 14. Aeration Layer 15. 3 Layers of Rgid Insulation 16. Drainage Layer 17. Root Barrier 18. Protection Course 19. Air Barrier 20. Water & Vapor Barrier 21.Horizontal Mullion 22. Snap Cap 23.Glass Curtain Wall 24.Vertical Mullion 1. Vertical Mullion 2. Glass Curtain Wall 3. Pressure Plate 4. Snap Cap 5. Drainage Path 6. Horizontal Mullion 7. Vapor Barrier 8. Membrane Tie-in 9. Rigid Insulation 10. Metal base 11. Reinforced WConcrete Slab 12. Grade Wall to Roof Detail Wall to Slab Detail 4 5 7 1 2 3 8 9 11 12 13 14 15 16 17 18 19 20 21 22 23 24 10 6 1 2 3 4 5 8 9 6 7 13 10 11 12 Wall Section

The site is located on a remote Indigenous Reserve in Ontario, Canada (Wahnapitae Indian Reserve). While the reserve is home to around 200 people, it lacks basic facilities such as a school, library or community centre due to government neglect. For this reason, the proposed design is created with replicability and adaptability in mind so that it can be implemented on numerous reserves.

CONCEPT

The “tree” like columns symbolize wisdom in Indigenous culture

The diagrid structure mimics the interior of a wigwam The indigenous symbol for “gathering” inspires the overall layout

ONTARIO, CANADA WAHNAPITAE RESERVE
current module EXPANSION OF STRUCTURE possible expansion 1 possible expansion 2 Tree widsom central column wigwam form structure gathering layout community
The inflatable has airlocks allowing it to retain its form and maintain indoor temperatures. Zarreen Khan structure held down with fasteners
inflatable
INFLATABLE STRUCTURE
A SEED School | Honourable Mention SITE MAP OF RESERVES Learning spaces Library Community space Floor Plan Semi-outdoor Design CONTRIBUTION | Developing concept, 3D modelling and Design Production | Partner: Zarreen Khan LOCATION PROGRAMS PROJECT TYPE CREDIT DATE
Revit, CAD,
All work produced individually unless otherwise specified Inflatable Wire Structure
attached to pavement
is blown up during colder seasons 1 2
PLANTING
Wahnapitae, Ontario
Enscape, Ps, Ai, Id Academic Competition Group Project Winter 2022 | 2 Months

Learning on the land is also an important part of Indigenous culture, which inspires this interstitial space within the domes that supports interactive learning and play

The design promotes innovative activities that stimulate learning and development. It focuses on creating a fun and playful environment outside of the classrooms as an extension to the formal learning spaces. Education is used as a tool to reanimate communities that have been neglected and forgotten.

INTERACT LEARN ENGAGE PLAY

SKYLIGHT: central skylight deep reveal allows for daylight penetration

BEAM TO BEAM CONNECTION: Aluminum concealed beam connector with full threaded screws

SKIN: timber facade panels

STRUCTURE: horizontal and vertical members

TREE COLUMN: column made from glulam members

SLAB: concrete pavement at the base

WINDOW: triple glazed windows FOOTINGS: concrete footings

PREFABRICATED TIMBER DOME INTERACT
GATHER

Portugal Rhino, CAD, Enscape, Ps, Ai Competition Individual Project Summer 2021 | 3 Weeks

LOCAL MATERIALS: CORK & TIMBER

These local elements reflect an aspect of the land’s sustainable and earthy resources. Cork posseses impermeability to water and air, thermal and acoustic insulation and ease in manufacturing.

FASTENING

Skylights: Frames and double glazed glass

Charred wood cladding

Timber exterior area

Steel framing and double glazed window

Recycled cork blocks

Steel framing and double glazed sliding doors

Entrance: Steel frame and double glazed glass

Recycled interior timber cladding

Structure: Wood beams and columns

As one approaches Vale de Moses, different parts of the extensive landscape are slowly revealed one hill after the other, the gentle breeze filters through the trees and the singing birds provide a gentle rhythm that reminds one of the existence of mother nature. In the midst of all this, the ‘Saldo’ cabin – “balance” in Portuguese - gives guests the opportunity to escape their repetitive routines and complex lifestyles to relax and immerse themselves in the beauty of this natural and preserved environment. Balance is a crucial element in all existing things; light and darkness, solid and void, space and time. Consequently, guests are invited into a space that contrasts their daily life allowing them to leave ‘Saldo’ feeling whole and content. A technique that eliminates the use of adhesives or screws as each block fits into the next like lego pieces

Recycled cork blocks and concrete footings

Peaked
1.
2.
3.
4.
5.
6.
7.
8.
9.
10.
TONGUE & GROOVE
METHOD Two opposites Establishing heirarchy
roofs mimic surrounding architecture Connecting forms
EXPLODED
1.
3.
5.
10.
AXO
2.
4.
6. 7. 8. 9.
LOCATION PROGRAMS PROJECT TYPE CREDIT DATE
SALDO Meditation Cabin SITE MAP

Rainwater storage and reuse

Operable skylights for natural light and ventilateion

Connection between interior and exterior

Natural shading & heat minimizing system

Reduced landscpae impact & efficient stormwater movement

Roof form mimics surrounding architecture

DANCE VILLAGE The Geometry of Dance

LOCATION PROGRAMS PROJECT TYPE CREDIT DATE

The intent of the Dance house is to create a dialogue between the landscape, architecture and the human body through the lenses of movement and geometry. The dance village explores housing as a response to the movement of the human body in which dance is used as a vehicle to investigate body in space.

Warkworth, Ontario Rhino, Revit, Enscape, Ps, Ai Academic Individual Project Fall 2021 | 2 Months EXTENSION OF THE MILLENNIUM TRAIL EXTENSION OF CONSESSION ST. E

This proposal introduces a live-work environment in the midst of Warkworth’s fields by merging the private life of inhabitants with public and open program, generating exciting mixed-use spaces and making daily spatial distributions more complex.

SITE AXO CONTEXT PLAN

GEOMETRY TO BUILT FORM

This LIGHTHOUSE acts as the main gathering hub for the dancers, offering multiple dance studios and a performance space for the community.

LIGHTHOUSE PERFORM SPROUT DANCE + LIVE FRAGMENT LIVE RAMP PERFORM

First floor Second floor Longitudinal section

1 3 2 3 4
1. lounge 2. theatre 3. dance space 4. w/c 5. promenade 5
1. 2-bedroom dance studio 2. dance studio 3. green roof 4. w/c 5. bridge 1 2 2 3 3 4 5
A | LIGHTHOUSE - PERFORMANCE RAMP

Aluminum shell surface with perforations

Longitudinal structural glulam Frame

Downward force travels longitudinally through the strcture and to the foundation

Latitudinal sturctural glulam Frame

The latitudinal frames transmit the force horizontally through the structure

Panels combine the natural warmth of timber with the durability and performance of aluminum. Geometrical layout

circular layout space distribution envelope 1.
2.
3.
4.
5.
6.
7.
1 2 2 3 3 4 5 6 7 1.
2.
3.
1 1 2 3 2
cafe
1-bedroom apartment
2-storey apartment
2-storey dance space
1-storey dance space
atrium
outdoor multi-use area
1-bedroom apartment
2-storey apartment
2-storey dance space
First floor Second floor 1. public Cafe 2. one-bedroom apartment 3. two-story apartment 4. dance studio
1 2 3 4 2 3 4
Exploded Structure Axo B | SPROUT

Longitudinal Section

First floor

Second floor

Illustration

Geometric planes Skewed surface Trimming: skylight
C | DANCING CABIN

ROOTED Martin Road Estate Winery

LOCATION PROGRAMS

PROJECT TYPE CREDIT DATE

Niagara-on-the-lake, Ontario Revit, CAD, Enscape, Ps, Ai

Academic Individual Project Fall 2019 | 1.5 Months

Martin Road Estate Winery integrates the building into the landscape in order to echo the belief that the vineyard is of utmost importance. As the building is approached, excavated land continues underground. This marks the beginning of the visitors journey of exploring the process of winemaking; Just as the first step of winemaking starts by digging beneath the earth. The building as well as the circulation pattern follow a linear arrangement, which is greatly inspired by the form of the site, where the vineyard runs strictly north to south. The building uses wood construction as a natural material relating to the overall concept of the project. Vinyard arrangement creates a linear site

Form mimics site conditions Building is embedded; appearing to emerge from the ground Underground activity space is created

sunset

sunrise

Vines run north to south with trees & bushes mainly outlining the east side

Sun hits site uninterruptedly from sunrise to sunset. Wind flows continuously from lake to escarpment

Relatively flat site with major downhill slope on the south end

Main enterance through QEW highway & minor path on the south end

support spaces retail & cafe

public/community administration wine-making

PROGRAMME FLORA SUN & WIND PATHS TOPOGRAPHY ACCESS POINTS

2

1 main vehicle entrance from highway

2 pedestrian walkway

3 service pathway

Pathways are set in place to serve the visitors’ experience and assist in the winemaking process

spaces cafe public/community administration wine-making

Landscaping and greenery are brought underground as a natural element that starts at the ‘root’.

vinyard is enhanced & expanded to cover more ground area

7-meter excavation is implemented to establish building space

Ramp guides visitors to underground activity space as well as the winery’s main entry point

Circulation is linear, mimicing the form of the site. Elevator and fire exits connect to both floors, including grade level. PROGRAMME LANDSCAPING CIRCULATION
1 3

1 Ramp 2 Outdoor seating 3 Lobby 4 Shop 5 WC 6 Event space 7 Kitchen 8 Fermentation 9 Blending/Bottling 10 Storage 11 Offices 12 Cafe 13 Bar 14 Crushing/ Pressing

HARVESTING CRUSHING FERMENTATION AGING BOTTLING PRIMARY WINEMAKING PROGRAM
Section
2 3 4 5 6 7
A A B B SITE PLAN LEFT TO RIGHT:
South Elevation Section A-A
B-B
1
8 9 10 12 13 14 11

NIA

Centre for the Arts

LOCATION PROGRAMS PROJECT TYPE CREDIT DATE

SITE ANALYSIS

Little Jamaica, Toronto Rhino, CAD, Enscape, Ps, Ai Academic Group Project Winter 2021 | Full Semester

The changes that have taken over the Oakwood-Vaughan neighborhood have left the area fragmented as the people struggle to maintain their culture and community. The expanded NIA Centre for the Arts is a space that restores the community by providing a safe space for black creatives. A light tunnel runs through the verticality of the building forming a central core which serves as the social heart of the building.

CONTRIBUTION | Developing concept, Site Analysis, 3D modelling and Design Production | Partner: Zarreen Khan

All work produced individually unless otherwise specified

CONSTRUCTION VEHICLE BASED STREET FURNITURE

On-going construction along Eglintion Ave has narrowed down sidewalks, resulting in congestion and slower circulation. The site lacks facilities that contribute to the pedestrian experience. This proposal takes these elements into account by providing seating areas, gathering spaces and vegetation.

CONCEPT

The faceted form pieces together fragments, creating a “whole”, reflective of unifying the community once again.

AVE VAUGHANRD OAKWOOD AVE

SITE EXTENDED NODE BUILDING CORE NIA CENTRE for more outdoor gathering space housing informal activities for the Arts

EGLINTON
Artist studio (1) Artist studio (2) Lounge Event space 1. Reception 2. Theatre 3. Stage 4. BOH 5. Open event 6. Retail 7. Art Gallery 8. Cafe 9. Security 10. Janitor Room 11. Loading 12. Coat check 1 2 3 4 5 6 7 8 9 10 11 4 6 6 7 7 7 7 7 5 1. Artist studio 2. Social Service 3. Classrooms 4. Lounge 5. Library 6. Meeting room 7. Offices 8. Private lounge 9. kitchen and dining 10.Office support 11. Media tech workshop First floor
TECTONIC DIAGRAM

Spaces are organized to create interstitial areas that are connected through the public realm which interacts with different parts of the building

2 3 8 9 11 10 1 Second floor Wall Section
INTERIOR PERSPECTIVE | GROUND FLOOR
LONGITUDINAL SECTION
4mm Metal Panel Interlocking Channel Rail
Air/ Water Barrier 30mm Rigid Insulation 150mm Batt Insulation 40mm Corrugated Metal Deck 150mm Concrete Topping 30mm Rigid Insulation
10mm Drop Ceiling Cross Tee Hanger Wire
Batt
Metal Cap 10mm Drop Ceiling Cross Tee Hanger Wire Fireproofing Foam Spray 600mm OWSJ HVAC 40mm Corrugated Metal Deck 150mm Concrete Topping 1.2mm Galvanized Sheet Steel Vision Glass Horizontal Mullion Mineral Wool Firestop ALUMINUM PANELS TO CURTAIN WALL CONNECTION CANTILEVER TO WALL CONNECTION EXPRESS GATHER PRELIMINARY PHYSICAL MODELS
Air/ Water Barrier 15mm Gypsum Sheathing 150mm Batt Insulation 10mm Gypsum Board 4mm Metal Panel Interlocking Channel Rail Steel Track 2x8 Steel Track Anchor
6mm Aluminum Perforated Panel Steel Framing 4mm Aluminum Spandrel Panel 130mm
Insulation

batoolqasas@gmail.com (647) 244 - 7820

THANK YOU

Turn static files into dynamic content formats.

Create a flipbook
Issuu converts static files into: digital portfolios, online yearbooks, online catalogs, digital photo albums and more. Sign up and create your flipbook.