Glomski Portfolio

Page 1

Bartłomiej Leszek

Głomski

Architecture Portfolio

Selected works 2020-2024

Bartłomiej Leszek Głomski

°21 May 2001

3rd year undergraduate student at WUT

Based in Warsaw, Poland

glomski.design@gmail.com +48 530 928 488

Education

Skills Education Experience

2021-2022, 2024 - Politecnico di Milano, Italy

BSc in Architecture (exchange)

2020- onwards - Warsaw Univeristy of Technology, Poland

BSc in Architecture, Ave. 4.9 / 5.0, Chancellor's scholarship for best students

2017-2020 - Batory High School, Warsaw, Poland

IB Diploma, final score 44/45

2017-2020- Architectural Freehand Drawing Course

Labirynt School of Drawing, Warsaw

Courses

Work Experience

2016 - Digital Photography Course

Akademia Fotografii, Warsaw

2023-2024 - Interior designer | Freelance 3D modeler

designing private apartment spaces - preparing technical drawings for contractors, renderings, 3d models, concepts, surveing, selection of materials and products

2022 - Intern | Spatial policy department

Bureau for Architecture and Spatial Planning of the Capital City of Warsaw (summer internship)

2021 - Freelance graphic designer- Visual identity design

Polish Embassy in Bern, Switzerland (2 months)

2018-2022 - Instructor - Summer camp, Carpenter workshops organiser

Scouting Association of the Republic of Poland

Other Experiences

2022 June - Social Media Officer

Interni Magazine, Fuorisalone Milano 2022

2019 - Organiser, Under Secretary General for Design and Supplies Warsaw Model United Nations

2017-2019 - Event Production Manager, Chief of Graphic Design department

Unique Off Festival XIII, XIV edition

2021 - Quiver Tree Design Challenge - shortlisted Savannah lodge design; Lena Olszewska, Bartłomiej Głomski

Achievements

2021 - MIES + Competition - audience award laureate Best academic project; Magdalena Niewczas, Bartłomiej Głomski

Adobe Photoshop

Profficient in Archicad Rhino 3D Autodesk AutoCAD

Adobe PremierePro Lumion Enscape MS Office 365 Intermediate in Revit, Autodesk Robot, Sketchup, Grasshopper, QGIS, Midjourney AI

Adobe Illustrator

Adobe InDesign

Hobbies Photography, Film editing, Rendering, Bikepacking, Skiing, Geography

Selected works

Bus
33-35
36
Axis 37
4-7 Savannah Lodge 8-13 Garden Embraced House 14-20 Stadtvilla x3 21-23
+ Tram Canopy 24-27 Scout Haven 28-32 Cabin Over The River
City-Forming
Humanising Sempione
Photography

Savannah Lodge

Location: Limpopo, South Africa

The 78 m2 cabin draws its inspiration from natural features of the project site such as the archaic baobab trees. Geometry of the baobab, its fruit and seed was inscribed in the project. Structural core, beams and blinds finished in wood allow the project to completely blend with the surroundings when at the same time the biomimicry aspects generate a silhouette that is unique and well recognizable even from distance.

Type: Competition Entry

Awards: Shortlisted

Design Team: Bartłomiej Głomski, Lena Olszewska

Date: December 2021

4
5
Savannah Lodge

The lodge is positioned on an elevated wooden decking in order to minimise the environmental impact on the site. At the same time it keeps out unwanted guests such as snakes and insects.

All the storage for luggages and clothing is hidden in drawers under the wooden platforms. The lodge contains two small bar areas - one is attached to the core on the ground floor and the other one is located on the roof terrace (easy access to drinks and snacks on both levels).

The Location of the roof terrace gives the opportunity to admire wildlife during day and night. It also functions as an observation deck allowing for the best views of the night sky.

6 Savannah Lodge

The blinds can be easily opened to show the seamless transitions from indoors to outdoors and incorporate the unique, panoramic view of the valley. Power is entirely sourced from solar panels located on the roof. Such a solution allows to supply sustainably heated water to the bathroom instantly. A slight inclination of the roof also allows for collection of rainwater. It is transferred through embedded downpipes into a water tank under the bathroom situated in the building’s central core.

The structure is predominantly made from timber that can be easily sourced locally. It is easy to manufacture and assemble on-site in a couple of days using modular parts, larger ones prefabricated beforehand. At its entire perimeter the building is fenced with double-layered blinds that allow for air circulation. They are made of weather resistant membrane and timber cladding on an aluminum framework.

7 Savannah Lodge

Garden embraced House

Location: Boernerowo, Warsaw, PL

Facing the street, it preserves the scale and humble appearance characteristic for this prewar settlement, comprising of small detached and semi-detached masonry houses. From the side of the garden, the archetypal form lifts above the slightly inclined plot, inviting the garden’s greenery inside and opening its living spaces entirely towards the seemingly infinite perspective of a public park.

Type: Academic Project

Date: 4th semester, 2023

Supervision: (JEMS Architekci)

Maciej Miłobędzki, Maciej Rydz + Wiktor Gago

schwarzplan 20 60 100m schwarzplan 20 60 100m 8
9 Garden embraced House

Throughout the design process natural ventilation, light and also precise framing of views were key considerations for composing openings in the CLT walls and roof slab. Adding holes to the elonlongated eave allows vegetation to thrive and creates a special microclimate in this external part of the living room.

Conceptual
Conceptual
sketches
sketches
Kitchen with breakfast area and study. Interior view: dining and conservator
10 Garden embraced House
Prewar neighbours

Plan of the building was organised around two centrally located chimneys, to which later all the wet and ‘servant spaces’ were attached: pantry, bathroom and kitchen. Despite resulting in a clear division of spaces, the remaining rooms of the ground floor stay open and do not hold a fixed function, thus can transform with changing seasons or throughout the family’s lifetime.

In the central part, wide and sculptural stairs were located to serve as a multifunctional piece of furniture open towards the warm living room.

Exterior view: summer kitchen and open conservatory Ground Floor Plan 1. foyer 2. living 3.kitchen 4. conservatory 5. dining 6. hobby room / master bedroom 7. pantry 8. closet 9. bathroom 10. study room 11. summer kitchen 12. rainwater tank 13. pond 14. parking lot 15. workshop Second Floor Plan 1. hall 2. bedroom 3. bedroom 4. bathroom 5. loundry 6. loggia for drying clothes 7. vaulted space above dining
11 Garden embraced House

Additional distinctive features of the house are 3 glacial erratics, typical for Masovian landscapes. These boulders were inscribed into the composition not only to apply a certain order to the garden aisles, but also they serve a structural role for the strained roof overhang, supporting it and cantilevering the main purlin.

Dining. View towards the summer kitchen. Garden Elevation
12 Garden embraced House
Section A-A

The projects is a reinterpretation of the settlement's long tradition of inhabiting in close contact with nature - by dislimining the perimiter of a house and inducing exposure of its inhabitants to climatic factors.

13 Garden embraced House
Street Elevation

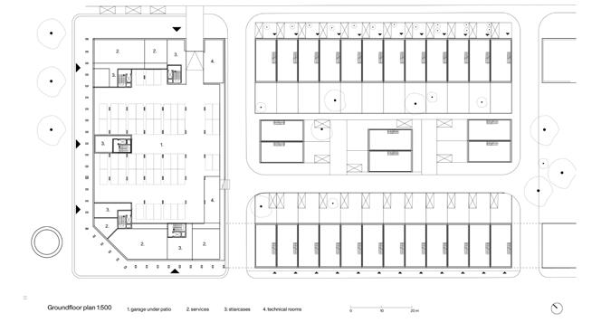
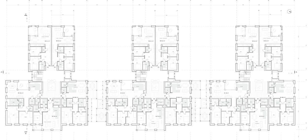
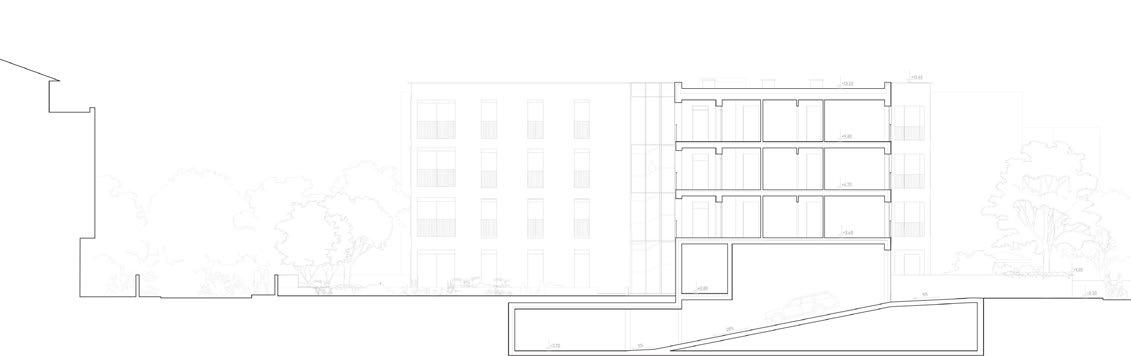
Stadtvilla x3

Location: Szczęśliwice, Warsaw, PL

This multifamily building design in Szczęśliwice, Warsaw, addresses the challenge of balancing high building intensity while providing spacious, high-quality apartments suitable for multi-child families. The main concept involved reconciling this intensity with the surrounding detached housing morphology. It is for this reason why the proposed massing comprises three distinct units connected by narrow entry areas shaded b freestanding lightweight timber loggias - “nests.”

Type: Academic Project

Design team: Bartłomiej Głomski, Jeremi Dziedziejko

Date: 4th semester, 2023

Supervision: Łukasz Piątek, Jan Chwedczuk, Maciej Kowalczyk

14
15 Stadtvilla x3
SIte Plan 0 10 30 50 m
Massing Model 1:500
16 Stadtvilla x3
Woonerf Sketch

Internally, the building maximizes natural light with numerous skylights and glazings in the staircase and elevator shafts, illuminating both the large flats and common areas.

The zoning strategy involves ground-floor apartments with private gardens, some of which open onto a woonerf—a shared space between the building and the neighboring apartments block. This consideration of spatial organization caters to the needs of multi-child families while fostering a sense of community and connection with the surrounding environment.

The design is shaped by the balance between urban intensity and family-oriented living, creating a distinctive and harmonious addition to the Szczęśliwice neighborhood in Warsaw.

Plan 1:100
elevation 17
x3
East
Stadtvilla

Local Law Requirements

The main challange was fullfilling the sctrict sunlight and view obstruction laws which significantly affected the final shape of the building. Its form is then balancing beetwen the two confilcting scales of the naighbourhood and strict functionality of the building

Section BB
Section AA
West Elevation
building limits + footprint + sun & view obstruction study 0 5 10 m 0 5 10 m 18 Stadtvilla x3

Post-industrial context of the plot, inspired the use of corrugated steel as old-native, yet contemporary material. Warm timber framing within the nests, window frames, and interior finishes are juxtaposed against the cold and shiny steel finish to create a visually striking aesthetic, all harmoniously situated amidst the extensive vegetation of the surrounding Szczęśliwicki Park.

The landscaping details utilize on-site grey cement bricks and reused perforated pavings that seamlessly integrate with both lush greenery and the steel elements.

W1 3cm 7cm 15cm 25cm 2cm R1 5cm 15cm 20cm 4cm 28cm 2cm F1 2cm 5cm 5cm 28cm 1cm F2 2cm 5cm 5cm 28cm 10cm F3 2cm 4cm 20cm 28cm 10cm F4 2cm 4cm 20/10cm 25/10cm F5 20cm 30cm 20cm corrugated alluminium sheets ventilated cavity wind bareer mineral wool in-situ reinforced concrete wall internal render/ash panelling R1 vegetation layer filtration matt gravel XPS styrofoam hard waterproofing light concrete sloping layer in-situ reinforced concrete slab internal render F1 wooden floor leveling mortar accoustic insulation reinforced concrete slab plaster F2 ceramic glaze leveling mortar accoustic insulation reinforced concrete slab ISOVER Stropmax insulation F3 wooden cladding, impregnated beam cladding supports XPS reinforced concrete slab ISOVER Stropmax insulation F4 wooden deck corrugated steel secondary beam main beam F5 vegetation layer mineral subtrate filtration matt on waterproofing xps borads
Section XX Section YY 9.68 6.70 9.80 12.80 13.24 13.47 3.60 0.00 9.43 12.50 6.33 3.23 -0.37 -1.40 -1.10 -0.12 3.48 6.58 12.48 9.4 6.31 2.87 -0.47 -1.50 Cantilevered cornic Titan-zync Brushed alluminium T pro r e CleverBox screen exterior louver system Air Brushed alluminium frame Insulated window Φ4mm stainless steel wire cabl Larch handrail embedded on T pro PS boards 20cm Gravel apro Vegetation laye Gypsum plaster boards suspended ceiling on alluminium substructure Parapet wal Drainage matt OPTIGR Mineral substrate Filtration matt on waterpro 4 R F F F F F W 0 1 3 5 m
Facade Detail 1:10
conceptual sketch
Timber-Framed Gallery Loggias Loggia Stadtvilla x3

Bus + Tram Canopy

Location: Szczęśliwice, Warsaw, PL

The elongated, narrow platform, shares both bus and tram stops, and is directly accessible from the metro station through an existing underpass. The main design idea was to provide a canopy sheltering both the existing stairs and the platform with as few supports as possible to save space for numerous waiting passengers.

Utilizing the complicated existing infrastructure pushed the designed structure to the limit. Through the glass and steel language of contemporary metro entryways in Warsaw, the canopy becomes a new glowing focal point for the messy modernist neighbourhood.

Type: Academic project

Date: 5th semester, 2024

Supervision: Paweł Przybysz PhD, Joanna Pietrzak PhD

Theme: Structural design, public transport

Materials: steel, safety glass, chrome

Technology: cable stayed truss

21

Metro Wierzbno is an important transportation node connecting vast office clusters, located in this part of Warsaw through tramways with the rest of the city by M1 metro line. Despite several investments into technical infrastructure of the crowded tramline, like new two-way trams and additional side tracks, the shelter infrastructure for office workers and tram drivers resting at the side track has been neglected.

The design response uses the humble, cubist language of modernist blocks and alludes to surrounding contemporary architecture with transparency. It also creates an urban wall for this underdeveloped public space and aims at creating a sort of beacon for the visually chaotic crossroad of great functional importance.

22 Bus + Tram canopy
23 Bus + Tram canopy

Scout Haven

Location: Bog Całowanie Landscape Park, PL

Situated in a marshy area, the scout base serves as a venue for scout gatherings and camps for young people from the surrounding counties. Scouts are hosts here, but the bog also serves as a unique field of service for them: they guide park visitors, impart knowledge about ecology and the history of the place, but also organize workshops on scouting techniques.

Type: Academic Project

Date: 3rd semester, 2022/2023

Supervision: prof. Jan Słyk

25 Scout Haven

The heart of the scout hut is a bright and spatious hall, occasionally heated by a freestanding woodstove. Scouts own a lot of stuff and providing enough storage was central to the design, hence some in-floor compartments, built in cupboards and spacious chest warehouse were introduced.

The central space is also underlined with a vertical gesture - placement of a roof terrace with night sky observatory just above it enriches the vaulted space of the attic and acts as a frame for tree canopies views.

26 Scout Haven
Process sketches - from concept to detail 27 Scout Haven

Gatherer’s cabin

Location: Całowanie Marsh, Masovian, PL

Located just outside of Warsaw, the cabin spans over the Swider river nearby where it joins with Mienia River, an area which adjoins the Masovian Landscape Park.

The project was inspired by our roots - the forager lifestyle of our ancestors. The main goal was creating a space for active recreation but also one that is functionally adjusted for processing and accumulation of organic goods: mushrooms, berries and herbs, naturally abundant in the Masovian forests. Our design is also an architectural divagation on the issue of sustainable management of natural resources. The bridgelike design allows for better access to crops located on both coasts of the river.

Type: Academic Project

Awards: MIES + Audience Award

Design team: Bartłomiej Głomski, Magdalena Niewczas

Date: 2nd semester, 2020/2021

Supervision: Justyna Dziedziejko/ TOPO Scape

28
29 Gatherer's cabin
Gatherer's cabin

The proposed layout springs strictly from the main function, with the airy drying room as the heart of the cabin, additionally used as a workshop. It serves as a “bridge” between the sun-dappled living area, with a kitchen and pantry, and the well shaded bedroom connected with a small toilet, powered by rainwater.

31 Gatherer's cabin

The cabin is holistically blended with natural surroundings thanks to elements such as the green roof, forming an organic continuation of the forest’s undergrowth.

32 Gatherer's cabin

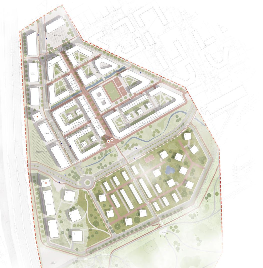
Citymaking: Stare Świdry Estate

Location: Żerań, Warsaw, PL

This estate is a fraction of a bigger masterplan transforming a post-industrial plot along the Vistula Valley, overcoming challenges such as expressway estacade barricades and elevation variations. The site where once large scale modernist blocks from the communist era were mass produced is the best place for a mdoel city-making endeavour characterised by density and typological diveristy creating neighbourly bonds and liveliness in the neighbourhood.

Located at a gateway to the new district the plan proposes a mixture of low rise - and high density which brings back the city’s prularism and individualism and opposes past homogenity. Factory reamianings are underlined through important streets as landmarks.

Academic Project

Theme: Urban Design, Housing Estate Masterplan References: Amsterdam Houthhavens, Ijburg 4th semester, 2023/2024

Supervision: dr Dana Matouk, dr Tomasz Majda

Extent of the masterplan

Three key walkable axes define the design: a central park with the iconic Park Pavilion,a commercial axis using silos as visual dominants.and a recreational axis enclosed by an office tower building.

To address noise pollution a strip of strategically placed office buildings not only secludes the area but also provides workspaces, attracting activity from other parts of the city. Shared streets, dense bike infrastructure, and perimeter-directed car traffic enhance the neighborhood’s cohesion. Water management integrates swales and elevated courtyards.

Architecturally, the project balances single and multifamily typologies, preserving industrial structures and high vegetation. There’s a housing density gradation towards the river, fostering a harmonious transition from urban intensity to the waterfront. The result is a sustainable, vibrant, and cohesive urban environment that seamlessly blends modern amenities with the historical and industrial character of the site.

1-
axis
canal Street grid formation - old factory streets + adjacent urban blocks + inlets +main collective artery View 2- Shared street + row housing 34 CItymaking
View
Recreational
and
visual connections and bariers Funcrional zoning Public -private map Public transport analysis Tram line catchment areas SIte's overall rail transport accessibility Proposed bus lines and new stops 35 Citymaking
Functional and spatial analysis of the project area Territorial

Urban strategy: Humanising the Sempione axis

Location: Milan, IT

Type: Academic Project (Group 5)

Date: Summer Term 2022

Supervision: Marco Facchinetti, Valeria Fedeli

Context

Corso Sempione, initially represented in Beruto`s 1889 plan of Milan, is a long radial boullevard followed by the Arch of Peace, Parco Sempione and Castello Sforzesco, main landmarks of the city. Nowadays through Sepmione significant connections for Milan are spread.

Main goalStrenghtening the axis

The project's aim was to use this uniqely pronounced urban establishment and improve the standard of its contemporary extentions (Sempione - GallarateCertosa) in terms of green continuity and walkability. Our strategy established a new pedestrianbased axis between Milan's restored neighbourhoods (City Life - Cascina Merlata), connecting them and creating new potential centralities on the way.

36
and film 37 Photography
Photography digital
Selected works 2020 - 2024 glomski.design@gmail.com tel. +48 530 928 488
Bartłomiej Leszek Głomski

Turn static files into dynamic content formats.

Create a flipbook
Issuu converts static files into: digital portfolios, online yearbooks, online catalogs, digital photo albums and more. Sign up and create your flipbook.