01/02 Trabalho conclusão de curso : Centro de acolhimento para pessoas em situação de rua

Page 1

ESTAÇÃO: LAR

CENTRO DE ACOLHIMENTO PARA PESSOAS EM SITUAÇÃO DE RUA

2022

BARBARA FERNANDES PAJUABA DE MOURA

ESTAÇÃO: LAR

CENTRO DE ACOLHIMENTO PARA PESSOAS EM

SITUAÇÃO

DE RUA EM UBERLÂNDIA - MG

Trabalho final de graduação apresentado no 100 período ao curso de Arquitetura e Urbanismo do Centro Universitário do Triângulo - UNITRI como requisitos necessários à

obtenção do título de bacharel em Arquitetura e Urbanismo.

Orientador: Prof. Dr.Adaílson Pinheiro Mesquita; Coorientadores: Prof. Me. André Luiz Borges de Ávila Prof.ª Esp. Maria Eliza de Freitas Otoni.

Uberlândia - MG

2022

Meus mais sinceros e enormes agradecimentos a todos que me deram força para continuar esse trabalho, àqueles que presenciaram minha loucura e chatice e mesmo assim não deixaram de estar presentes.

À minha mãe, minha segunda coluna vertebral. Sem ela, parar em pé é tão díficil quanto partir o mar vermelho.

À minha tia, que se dispôs a corrigir a monografia, e foi muito gentil, mesmo pensando que seria uma primeira versão na que já era a última.

Aos meus amigos, pessoas imprescindiveis para eu continuar seguindo, que estudaram comigo, me fizeram rir, chorar e querer destruir o mundo, e que de bom grado me acompanhariam na empreitada.

Aos incriveis profissionais que me acompanham para eu não efetivamente perder a sanidade mental, meu psiquiatra e minha psicológa; sem eles todas as dificuldades seriam dobradas.

A todos aqueles que não chegaram até aqui comigo em carne e osso, mas que em espiríto

continuarão em minha companhia para sempre.

Ao meu orientador Adaílson, o professor mais humano de todos meus anos acadêmicos. Com enorme conhecimento, experiência, e capacidade de passar isso a frente.Para mim, a personificação do que é ser pedagogo.

Aos meus chefes de estágio, Alexandre e Paulo, que contribuiram mais do que eles jamais imaginariam para minha formação. Pela humanidade com que nos tratam, fator cada vez menos presente em estágios de arquitetura.

A mim, que nunca levo crédito suficiente pelo o que conquisto, e que necessita um pouco mais de amor próprio e confiança.

E por fim, agradeço ao universo, aos astros, às estrelas, que têm a qualidade extraordinária de me lembrar de que somos um mero pontinho, um pingo na imensidão da existência; Insignificantes grandiosamente indispensáveis.

“Coisa que gosto é poder partir sem ter planos

Melhor ainda é poder voltar quando quero

Todos os dias é um vai e vem

A vida se repete na estação

Tem gente que chega pra ficar

Tem gente que vai pra nunca mais

Tem gente que vem e quer voltar

Tem gente que vai e quer ficar [..]

São só dois lados da mesma viagem

O trem que chega é o mesmo trem da partida

A hora do encontro é também despedida

A plataforma dessa estação

É a vida desse meu lugar”

RESUMO ABSTRACT

Neste trabalho de conclusão de curso procura-se desenvolver uma pesquisa a respeito da população em situação de rua, buscando elucidar conceitos, fenômenos, que ajudem a entender melhor a problemática, além de tentar caracterizar esses indivíduos a fim de que não sejam meras ideias distantes e sim sujeitos únicos, integrantes da sociedade. Percebe-se com o estudo como o preconceito ainda permeia esse tema, devido talvez, a contínua falta de uma visibilidade geral; que não seja seletiva. Ainda, nota-se a insuficiência e precariedade nos serviços de atendimento a essa população, que portanto, não consegue se manter fora dessa situação de vulnerabilidade. Dessa forma, é proposto um projeto arquitetônico, na cidade de Uberlândia, Minas Gerais, de acolhimento a esse grupo, que ofereça suporte adequado e atenda às suas necessidades e demandas constatadas no desenvolvimento do estudo. Para tanto, utilizouse a apuração bibliográfica, valendo-se de documentos acadêmicos, pesquisas censitárias, leis nacionais, e análise de mapas da área escolhida para a implantação do projeto.

Palavras chave : Pessoas em situação de rua. Projeto arquitetônico. Acolhimento Institucional.

This final course thesis seeks to develop a research on the homeless population, intending to disclose concepts, phenomena, that aid in the better understanding of the problem, in addition to attempting to characterize these individuals so that they are not mere distant images but unique subjetcs, members of society. Its noticeable with the study how prejudice still permeates the subject, perhaps because of the continuous lack of a general visibility, instead of a selective one. Moreover, the insuficiency and precariousness of the services meant for this population its apprehensible, which therefore makes them unable to keep themselves away from this state of vulnerability. As so, it is proposed an architectural project of shelter qualities, in the city of Uberlândia, Minas Gerais, which can offer adequate support, and meets the needs and demands of this group as seen in the course of this study.To this end, bibliographical research was used, drawing from academic documents, census data, national laws, and analisys of the project’s chosen area maps.

Keywords: Homeless population. Architectural project. Institutional Shelter.

DO PRINCÍPIO - ENTENDENDO A PROBLEMÁTICA DO MORAR NA RUA SUMÁRIO 01 02 03 04 1.1 Desigualdades sociais . . . . . . . . . . . . . . . . . . . . . . . . . . . . . . . . . . . . . . . . . . . . . . . . . . . . . . . . . . . . . . . . . . . . . . . . . . . . . . . . . . . . . . . . . . . . . . . . . 10 1.2 Exclusão social . . . . . . . . . . . . . . . . . . . . . . . . . . . . . . . . . . . . . . . . . . . . . . . . . . . . . . . . . . . . . . . . . . . . . . . . . . . . . . . . . . . . . . . . . . . . . . . . . . . . . . . 12 1.3 Direitos humanos . . . . . . . . . . . . . . . . . . . . . . . . . . . . . . . . . . . . . . . . . . . . . . . . . . . . . . . . . . . . . . . . . . . . . . . . . . . . . . . . . . . . . . . . . . . . . . . . . . . . 13 1.4 As pessoas em situação de rua no mundo . . . . . . . . . . . . . . . . . . . . . . . . . . . . . . . . . . . . . . . . . . . . . . . . . . . . . . . . . . . . . . . . . . . . . . . . . . . . . . . . 15 1.4 No Brasil . . . . . . . . . . . . . . . . . . . . . . . . . . . . . . . . . . . . . . . . . . . . . . . . . . . . . . . . . . . . . . . . . . . . . . . . . . . . . . . . . . . . . . . . . . . . . . . . . . . . . . . . . . . 18 ELES NA RUA - QUEM SÃO? 22 2.1 Dados . . . . . . . . . . . . . . . . . . . . . . . . . . . . . . . . . . . . . . . . . . . . . . . . . . . . . . . . . . . . . . . . . . . . . . . . . . . . . . . . . . . . . . . . . . . . . . . . . . . . . . . . . . . . . . 23 2.2 As consequências do viver nas ruas 26 2.3 O espaço urbano - Rua 28 OS ESPAÇOS RESERVADOS A ESSA POPULAÇÃO 31 3.1 Os serviços oferecidos pelo governo . . . . . . . . . . . . . . . . . . . . . . . . . . . . . . . . . . . . . . . . . . . . . . . . . . . . . . . . . . . . . . . . . . . . . . . . . . . . . . . . . . . . . 32 3.2 O esquema funcional . . . . . . . . . . . . . . . . . . . . . . . . . . . . . . . . . . . . . . . . . . . . . . . . . . . . . . . . . . . . . . . . . . . . . . . . . . . . . . . . . . . . . . . . . . . . . . . . . 33 3.3 Os espaços em Uberlândia . . . . . . . . . . . . . . . . . . . . . . . . . . . . . . . . . . . . . . . . . . . . . . . . . . . . . . . . . . . . . . . . . . . . . . . . . . . . . . . . . . . . . . . . . . . . . 34 REFERÊNCIAS PROJETUAIS 37 The Six Affordable Veteran Housing . . . . . . . . . . . . . . . . . . . . . . . . . . . . . . . . . . . . . . . . . . . . . . . . . . . . . . . . . . . . . . . . . . . . . . . . . . . . . . . . . . . . . . . . 38 Shelter From The Storm 47 Dr. George W. Davis Senior Building 53 05 TRABALHO FINAL DE GRADUAÇÃO BARBARA MOURA
DIAGNÓSTICO DA ÁREA E 58 ANÁLISE AMBIENTAL 58 5.1 A cidade e o entorno imediato . . . . . . . . . . . . . . . . . . . . . . . . . . . . . . . . . . . . . . . . . . . . . . . . . . . . . . . . . . . . . . . . . . . . . . . . . . . . . . . . . . . . . . . . . . . 59 5.2 MAPAS DE DIAGNÓSTICO 63 5.3 PERFIS VIÁRIOS 67 5.4 ÁNALISE BIOCLÁMTICA . . . . . . . . . . . . . . . . . . . . . . . . . . . . . . . . . . . . . . . . . . . . . . . . . . . . . . . . . . . . . . . . . . . . . . . . . . . . . . . . . . . . . . . . . . . . . . . . . 68 5.5 TOPOGRAFIA . . . . . . . . . . . . . . . . . . . . . . . . . . . . . . . . . . . . . . . . . . . . . . . . . . . . . . . . . . . . . . . . . . . . . . . . . . . . . . . . . . . . . . . . . . . . . . . . . . . . . . . . . 70 O PROJETO 71 6.1 A proposta . . . . . . . . . . . . . . . . . . . . . . . . . . . . . . . . . . . . . . . . . . . . . . . . . . . . . . . . . . . . . . . . . . . . . . . . . . . . . . . . . . . . . . . . . . . . . . . . . . . . . . . . . . . 72 6.2 Conceito e Partido . . . . . . . . . . . . . . . . . . . . . . . . . . . . . . . . . . . . . . . . . . . . . . . . . . . . . . . . . . . . . . . . . . . . . . . . . . . . . . . . . . . . . . . . . . . . . . . . . . . . . 74 6.3 Modificações topográficas . . . . . . . . . . . . . . . . . . . . . . . . . . . . . . . . . . . . . . . . . . . . . . . . . . . . . . . . . . . . . . . . . . . . . . . . . . . . . . . . . . . . . . . . . . . . . . 77 6.4 Plantas técnicas . . . . . . . . . . . . . . . . . . . . . . . . . . . . . . . . . . . . . . . . . . . . . . . . . . . . . . . . . . . . . . . . . . . . . . . . . . . . . . . . . . . . . . . . . . . . . . . . . . . . . . . 78 6.5 Cortes . . . . . . . . . . . . . . . . . . . . . . . . . . . . . . . . . . . . . . . . . . . . . . . . . . . . . . . . . . . . . . . . . . . . . . . . . . . . . . . . . . . . . . . . . . . . . . . . . . . . . . . . . . . . . . . 81 6.6 Plantas humanizadas 85 6.7 Planta de paisagismo 86 REFERÊNCIAS 87 05 06 06 TRABALHO FINAL DE GRADUAÇÃO BARBARA MOURA

INTRODUÇÃO

O fenômeno de morar na rua dificilmente pode ser compreendido como algo exclusivo da esfera econômica; ele representa uma multi-plicidade de questões que variam desde esse elemento mais concreto a conteúdos psicossociais e filosóficos. É um tema que se encontra permeado por conceitos pre-sentes em obras de célebres intelectuais, como Zygmunt Baumann , Michel Focault, e Karl Marx; elementos que retratam a realidade da sociedade humana desde o século passado.

Os usuários das ruas formam um grupo extremamente diverso, com particularidades assim como qualquer outro con-

junto social, contudo, têm em comum fragilidades, advindas do modo operante do capitalismo, que evoluem até o ponto de ruptura, levando-os então a esse lugar. São, portanto, parte essencial desse sistema, intrinsecamente ligados a “fatores macro-estruturais de ordem socioeconômica e política”(MENDES; RONZANI; PAIVA, 2019, p.02).

No Brasil, embora existam documentos e legislações que preveem a proteção dos direitos desses indivíduos, o cenário nas ruas prova a ineficácia desses papéis; a população de rua no país só cresceu desde 2012, além de ter havido um crescimento mais

substancial de 2019 a 2020( IPEA, 2020). São muitos que não utilizam dos serviços destinados a eles pelas más experiências passadas, quando não foram atendidos ou o tratamento que receberam foi muito aquém do ideal, além de preferirem não frequentar os albergues devido ao comprometimento à sua autonomia. Em um país como o Brasil, onde a desigualdade social e a pobreza são exorbitantes e enraizadas historicamente, é de extrema relevância o estudo e análise do tema aqui discutido, principalmente nesse momento de recessão econômica e fragilidade das relações assistenciais, do relapso do go-

verno com as políticas públicas. O presente trabalho tem como objetivo a compreensão, mais abrangente possível, do que significa essa ocorrência, como é a vida dos que utilizam a rua como moradia, quem realmente são essas pessoas, como o habitar na rua os afeta e quais são suas demandas. No primeiro capítulo, aborda-se alguns fundamentos necessários para a contextualização do cenário das pessoas em situação de rua e apresenta-se um histórico desse grupo no Brasil, além de revelar as circunstâncias históricas que levaram ao aparecimento destes grupos no exterior. O segundo capítulo traz dados sobre essa popu-

07 TRABALHO
FINAL DE GRADUAÇÃO BARBARA MOURA

lação no país, e analisa a vivência na rua sobre a perspectiva social. Já o terceiro e último capítulo da fundamentação teórica foca nos espaços arquitetônicos destinados aos usuários das ruas, apresentando as regulamentações existentes, o esquema de funcionamento, críticas e a realidade dessas instituições na cidade de Uberlândia. É com esse entendimento, portanto, que será proposto um projeto arquitetônico de acolhimento a esse gupo, que forneça os aparatos possíveis para alavancar o desenvolvimento da autonomia e segurança necessárias para a saída das ruas. Mais do que um “teto sobre a cabeça”, a proposta tem o intuito de criar um ambiente que seja prazeroso, atendendo bem a diferentes indivíduos, e que esses possam ajudar ativamente a tornar esse espaço uma comunidade.

TRABALHO
08
FINAL DE GRADUAÇÃO BARBARA MOURA

DO PRINCÍPIO - ENTENDENDO O MORAR NA RUA

1.1 Desigualdades sociais

A discussão sobre as pessoas em situação de rua, é, antes de mais nada, uma pauta sobre pessoas em situação vulnerável. De que modo elas se apresentam, ou como vieram a ocupar essa posição mostram diferenças, visto que são processos extremamente individuais e complexos.

(SILVA, 2021). Porém, todas possuem um determinante em comum, o qual contribuiu exponencialmente para essa circunstância, e continua a mantê-las nesse lugar; a desigualdade social.

Diferenças entre “classes” sociais, de uma forma ou de outra, sempre existiram nos agrupamentos de seres humanos,

fossem nas diferenças entre funções exercidas, como na préhistória, ou pela determinante hereditária de posse de terras nas sociedades feudais. De acordo com BURSZTYN, 2000, p.27:

Diferentes modos de produção e de organização social e política reproduziam contextos em que, pela tradição e mesmo diante da lei, a desigualdade era institucionalizada

A discussão do fenômeno como se conhece atualmente, foco de sociólogos e antropólogos, deu-se no começo do século XX. Com o fim do sistema feudal e o surgimento dos burgos, houve a oportunidade, pela primeira vez, de mobilidade social.Ou seja, não mais nascia-se e morria-se na

mesma condição, tornou-se possível mudar a própria circunstância.

Entretanto, da mesma forma como aqueles detentores de terras pos-

Estratificação da sociedade feudal. Fonte: https://www.coladaweb.com/historia/sociedade-feudal; acesso em 15/03/2022

teriormente se tornaram a classe dominante de nobres, os indivíduos que foram sucedidos em seus comércios começaram, também, a acumular suas riquezas, e dessa forma, adquiriram o poder de alistar outros para fazer o que, antes, seria de sua própria responsabili-

TRABALHO FINAL DE GRADUAÇÃO BARBARA MOURA 10

[..] é preciso que duas espécies bem diferentes de possuidores de mercadorias se defrontem e estabeleçam contato; de um lado, possuidores de dinheiro, meios de produção e meios de subsistência, que buscam valorizar a quantia de valor de que dispõem por meio da compra de força de trabalho alheia; de outro, trabalhadores livres, vendedores da própria força de trabalho e, por conseguinte, vendedores de trabalho. (MARX, 2013, p.515)

dade. Como assinalado por Marx: Teve-se então o nascimento da classe possuidora de recursos, e aquela sem escolha a não se submeter a eles, visando sua sobrevivência. O que difere essa nova classe social, e essa nova relação de poder, que deu origem às grandes desigualdades, foi justamente a quantidade e a rapidez com o qual se produziam as mercadorias. Foi possível, com a revolução industrial, a produção de muito, em pouco tempo, o que até então não acontecia. Com isso, a concentração

de riqueza somente aumentava, deixando os ricos mais ricos, enquanto os pobres, trabalhadores, tiveram sua mobilidade hierárquica social estagnada.

O trabalhador não precisa necessariamente ganhar com o ganho do capitalista, mas, necessariamente, perde quando ele perde (MARX, 2004, p. 25).

Por conseguinte,as desigualdades, inerentes ao capitalismo, privam o sujeito de alcançar e manter condições de sobrevivência, como ter um emprego estável, e consequentemente uma moradia fixa, um círculo social que sirva de apoio, oportunidades para seu desenvolvimento pessoal, como o acesso à educação e, inclusive, muitas vezes, de suas próprias identificações com o mundo e elas mesmas. Como salienta Buarque:

https://theworkweek.wordpress.com/2020/02/16/rising-pric-

Os pioneiros, Capitalistas na Bolsa de Valores de Londres, em 1891 Fonte: https://revistaveja.wordpress.com/2009/10/03/um-gene-capitalista/; acesso em 10/04/2022
11 TRABALHO FINAL DE GRADUAÇÃO
Battle of Detroit, Diego Rivera Fonte: es-underground/ ; acesso em 10/04/2022
BARBARA MOURA

[..]a desigualdade levada a seu paradoxismo pode gerar uma situação de dessemelhança, caracterizada pela ruptura dos laços de solidariedade e de pertencimento a uma mesma espécie, que permitem a identidade entre seres humanos(1993 apud BURZSTYN, 2000, p.28):

Essas desigualdades excepcionais, que são fruto do funcionamento do sistema (SAWAIA et al.,2016) fazem surgir um novo tipo de pobreza, que carece não somente de recursos econômicos, como também de apoios sociais e de identidade com a sociedade.

São, portanto, deixados ao largo dessa esfera, constituindo-se em um novo grupo social: os excluídos.

1.2 Exclusão social

A exclusão social, como pode-se perceber pela análise de vários autores, é um processo que

ocorre a partir da desvinculação do indivíduo da sociedade por meio da percepção de diferenças entre um cidadão “comum”, e o alvo da desidentificação. São cara-cterísticas, elementos, que os distinguem do outro como a sexualidade, a etnia, a idade, sua condição e aparência física.1

É um processo que ocorre a partir de particularidades que são identificáveis visualmente ou não.

Diferentemente do que se pode imaginar, a exclusão social não é exclusiva, nem mais intensa em esferas sociais marginalizadas, como aponta Sawaia et al. (2016);

1 O termo estigma é utilizado diversas vezes para exemplificar as violências sofridas por um indivíduo, ou parcela da população, decorrentes de características perceptíveis. O termo tem origem na Grécia, e era utilizado para nomear uma marca de queimadura ou corte corporal, utilizada para distinguir aqueles que cometeram crimes, escravos, ou que possuíam algum desvio moral aos olhos dos gregos.

é uma ocorrência crescente, e também, até certo ponto, histórica. Os excluídos sempre fizeram parte da sociedade humana, tendo-se como exemplo, os doentes leprosos e aqueles com transtornos mentais, que desde a origem da humanidade foram afastados, isolados do resto de sua comunidade.

Para fins de elucidação, a pobreza, atualmente um tema tido como problema social, não mais constitui-se em uma condição passageira, estado em que se encontra um indivíduo; para muitos autores e estudiosos, a pobreza é, agora, um estado semi-permanente, levando o termo “miséria” como definição. Além disso, a carência de recursos econômicos, como componente de destaque desse grupo populacional, não é mais suficiente para estabelecer as circunstâncias às quais essa coletividade está sujeita.

A extrema pobreza se configura como um fenômeno multidimensional e está relacionada a elementos sociais, culturais, etários, de gênero, de relações internacionais e em confluência com aspectos econômicos, de modo que decorre de um complexo sistema de carência de recursos múltiplos desembocando na fome e na privação física (SIQUEIRA, 2013 apud STRAPASSON; PAMPLONA, 2014, p.439-456).

Os pobres são, portanto, uma parte significativa dos excluídos, principalmente no Brasil, que levados à condição extrema de sua situação podem se ver na rua.

Fonte: IPEADATA

Figura 1:Número de pessoas abaixo da linha da pobreza. Segundo o Banco Mundial são aqueles que ganham menos do que $1,90 por dia ou R$140 por mês. Em 2014 eram 8.191 não se tem dados atuais.
TRABALHO FINAL DE GRADUAÇÃO BARBARA MOURA 12

% da população que vive em domicílios urbanos sem o serviço de coleta de lixo

% de pessoas em domicílios com abastecimento de água e esgotamento sanitário inadequados

Figura 2:Índices de desenvolvimento humano em relação a infraestrutura urbana fonte: IPEADATA

Os excluídos, desvinculados da sociedade, tornam-se alvos de preconceitos, de violências, têm seus direitos ameaçados, como já visto anteriormente, e ainda por muitas vezes, não contam com o apoio da própria família, sendo esta também, por vezes, uma alienante de sua participação na sociedade.

os excluídos não são simplesmente rejeitados física, geográfica ou materialmente, não apenas do mercado e de suas trocas, mas, de todas as riquezas espirituais, seus valores não são reconhecidos, ou seja, há também uma exclusão cultural (SAWAIA et al., 2016, p.18).

Assim, ao perderem sua identificação com o corpo social, essa segregação pode afetar como se relacionam com outras pessoas, tornando-os mais isolados, intolerantes, e ainda, podem também perder a própria imagem que têm de si mesmos, não reconhecendo nem a si próprios.

A exclusão social, caracteriza-se, pela falta de pertencimento social, falta de perspectivas, dificuldade de acesso à informação e perda de auto-estima( COSTA 2005, apud ROCHA; EUSÉBIO, 2013 p.258-268)

Os excluídos são, portanto, privados de elementos necessários para a constru-ção de identidade individual, e ainda, de outros compo-nentes que os contemplem dentro da socie-

Para discutir sobre direitos humanos é necessário entender, primeiramente, que a formulação desses direitos ocorreu de forma gradual, e partindo de ideias e pressupostos decorrentes das épocas nas quais teve-se a preocupação com tal assunto. Por exemplo, o que hoje conhece-se como direito à moradia, é, na verdade, o direito à propriedade privada, um conceito presente nas ideias do liberalista John Locke.

os direitos do homem, por mais fundamentais que sejam, são direitos históricos, ou seja, nascidos em certas circunstâncias, caracterizadas por lutas em defesa de novas liberdades contra velhos poderes, e nascidos de modo gradual, não todos de uma vez e nem de uma vez por todas.(BOBBIO, 2004, p.09)

A evolução acerca do tópico, pelo menos no mundo ocidental, pode ser traçada desde a época da Gré-

dade, como seus direitos básicos. 1.3 Direitos humanos
13
Foto de Danilo Vieira Fonte: https://olhares.com/exclusao-social-foto1521220.html TRABALHO FINAL DE GRADUAÇÃO BARBARA MOURA

cia antiga, quando Aristóteles, dentre outros filósofos, já discutiam sobre a definição de cidadão, e portanto, quais seriam as atividades exercidas e possíveis para esses indivíduos. Na idade média, tem-se a constatação da forte presença religiosa no tratamento dos direitos humanos, fato que perdu dura até a contemporaneidade.

No final da Idade Média, no século XIII, aparece a grande figura de Santo Tomás de Aquino, que, tomando a vontade de Deus como fundamento dos direitos humanos, condenou as violências e discriminações, dizendo que o ser humano tem direitos naturais que devem ser sempre respeitados, chegando a afirmar o direito de rebelião dos que forem submetidos a condições indignas.(DALLARI, 2000, apud SIQUEIRA; PICCIRILLO, 2009)

Na Inglaterra, após a revolução gloriosa e anterior à revolução francesa, em 1689, temse a redação do Bill of Rights2 , no qual constam os direitos à liberdade, à segurança, à proprie-

dade privada, dentre outros, que já haviam sido imortalizados em outros docu-mentos, porém, dificilmente eram respeitados pelo poder real.(ARAGÃO, 2001, apud SIQUEIRA; PICCIRILLO, 2009).

Durante o período absolutista, é visível o tratamento do assunto como algo concessório; os direitos dos cidadãos não parecem se constituir, de fato, em direitos irrevogáveis, sendo discutidos como beneficiações, ou concessões, sendo passíveis ao poder político.(SIQUEIRA; PICCIRILLO, 2009).

Decorrido cem anos do documento inglês, e tendo a Revolução francesa como gestora de seus ideais, em 1789 teve-se a redação da “Declaração

2 Bill of rights foi um documento redigido pelos parlamentares ingleses, após a fuga do rei Jaime II, que alistava elementos pensados imprescindíveis para a vida digna dos lordes e outros cidadãos ingleses. Foi uma declaração que visava a manutenção dos poderes reais, e a consolidação do parlamento. Ademais, contribuiu exponencialmente para a queda do absolutismo na Inglaterra mais tarde.

dos direitos do Homem e cidadão”3, no qual constava:

Artigo 1º-Os homens nascem e são livres e iguais em direitos. As distinções sociais só podem fundar-se na utilidade comum.

Artigo 2º-O fim de toda a associação política é a conservação dos direitos naturais e imprescritíveis do homem.

Esses Direitos são a liberdade, a propriedade, a segurança e a resistência à opressão. Artigo 17º-Como a propriedade é um direito inviolável e sagrado, ninguém dela pode ser privado, a não ser quando a necessidade pública legalmente comprovada o exigir evidentemente e sob condição de justa e prévia indemnização. (FRANÇA, 1789)

Embora tenha havido uma evolução, ao tratar objetivamente das garantias de todo cidadão, esse manuscrito não conseguiu englobar as particularidades dos indivíduos; não havia, portanto, preocupação com as camadas sociais mais vulneráveis.

3 Disponível em https://www.ufsm.br/ app/uploads/sites/414/2018/10/1789.

pdf

A liberdade guiando o povo - Eugene Delacroix. Fonte: https://www.wikiart. org/pt/eugene-delacroix/a-liberdade-guiando-o-povo-1830

14
TRABALHO FINAL DE GRADUAÇÃO BARBARA MOURA

Para tanto, fez-se necessária a composição da Declaração Universal dos Direitos Humanos, datada de 1948, logo após a segunda guerra mundial. Nela estão afirmados, dentre outros:

Artigo 2

1. Todo ser humano tem capacidade para gozar os direitos e as liberdades estabelecidos nesta Declaração, sem distinção de qualquer espécie, seja de raça, cor, sexo, língua, religião, opinião política ou de outra natureza, origem nacional ou social, riqueza, nascimento, ou qualquer outra condição

Artigo 3° Todo indivíduo tem direito à vida, à liberdade e à segurança pessoal.

Artigo 6 Todo ser humano tem o direito de ser, em todos os lugares, reconhecido como pessoa perante a lei.

Artigo 17°

1. Toda a pessoa, individual ou coletiva, tem direito à propriedade.(ONU,1948)

Constata-se que a redação da maior parte, senão de todos, os documentos que tratam dos direitos dos homens, foram frutos de tempos decorridos após guerra, de revoluções, ou de

golpes de estado. Dessa forma,

Os direitos humanos se converteram em uma política fundamental por excelência, legitimadora da atuação estatal, capaz de apresentar o que seria um padrão mínimo do que é aceitável ou tolerável frente às situações legais, políticas, sociais e econômicas” (STRAPASSON; PAMPLONA, 2014, p.439-456)

Percebe-se, também, que durante a evolução do tema, não houve grandes mudanças quanto às garantias dos cidadãos, e todos os documentos têm, de certa forma, inspiração em outros do mesmo cunho. Assim como atualmente, há a necessidade constante de reformulá-los a fim de não somente atualizar suas finalidades e expandir o grupo de atuação, incluindo as minorias prejudicadas, como também de lembrar ao poder público e aos próprios cidadãos que esses direitos são imprescindíveis e indestrutíveis.

Os relatos históricos acerca de pessoas que viviam na rua, ou que utilizam-na como moradia esporadicamente, são, muitas vezes, imbuídos de noções preconceituosas, classificavam-se esses indivíduos como pre-guiçosos, incumbindo a eles a razão de estarem sem sustento e portanto sem lugar próprio para residência. A fala, muitas vezes presente em discursos atualmente, como demonstram Costa, Ping e Massari (2018) é, portanto, muito antiga, assim como as práticas higienistas4. Esses indivíduos que não conseguiam condições de vida igualitária a seus contemporâneos, apare- cem desde a época das cidades gregas e de Roma, vítimas de guerras.(MELO, 2009, p. 13).

No fim da idade média, período

1.4 As pessoas em situação de rua no mundo
15 TRABALHO FINAL DE GRADUAÇÃO BARBARA MOURA
Campanha UNICEF - Liu Bolin. Fonte: https://optalidonmusical.blogspot. com/2020/11/el-nino-invisible.html

marcado pela forte influência da Igreja Católica em diversos assuntos, a presença dos pobres andarilhos, indivíduos que além de não possuírem terra, não conseguiam por conta própria suprir suas necessidades básicas, era habitual. Até certo ponto nesse tempo histórico, eram atendidos pela igreja, contando também com os cidadãos comuns, que praticavam a caridade como bons cristãos(FIG.03). Porém, com o declínio do feudalismo, e portanto, a entrada do período moderno, esses pobres tiveram sua imagem fortemente degradada,como aponta Geremeck apud Nogueira:

Massas esfomeadas de miseráveis dirigiam-se para lá, enchendo as praças e ruas, e quando encontravam as portas fechadas ficavam esperando ajuda ao pé das muralhas, contando com a comida, o leito ou a esmola de um passante (...) a ideia de pobreza relacionada a dogmas cristãos é superada nesta fase da Idade Média dando lugar a uma imagem da miséria como uma praga social e do pobre como uma figura perigosa para a ordem pública. (NOGUEIRA, 2008, p.19)

Durante a idade moderna5, nos territórios de origem RomanoGermânico, existiam políticas focadas em combater o ócio, principalmente decorrente dos numerosos estrangeiros em seus territórios, que, em sua maioria, eram pobres. Além disso, existiam também critérios excludentes

4 O termo higienismo é originário das convicções, e consequentes práticas, de um grupo de médicos, originários da Europa no século XVIII, que levavam em consideração elementos ambientais, e consequentemente socioeconômicos para a explicação e tratamento de doenças. O fenômeno é intrinsecamente atrelado ao urbanismo, já que para os profissionais o ambiente era a causa.

5 Denomina-se idade moderna o período de tempo entre 1453, ano marcado pela queda do império romano ocidental, e 1789 com a Revolução francesa. Ainda, é um momento caracterizado pelo início da transição do sistema feudal ao capitalismo, o início da globalização, com as navegações, e grandes descobertas, inovações científicas

Fonte: https://setemargens.com/ acolher-dar-e-tratar-os-mecanismos-de-assistencia-aos-pobres-edoentes-na-idade-media-ensaio/

para a doação, na qual os indivíduos eram classificados de acordo com a capacidade de trabalhar, e se eram locais ou não. Se não fossem aptos fisicamente e sua situação não fosse decorrente de suas próprias ações, essas pessoas podiam receber as doações, que eram administradas pela Igreja Católica. (SIMON, 2009 apud STRAPASSON; PAMPLONA, 2014, p.439-456).

Percebe-se já nesse momento, o preconceito e a culpabilidade aos indivíduos que não conseguem uma forma de subsistência. Assim como o governo do antigo império Romano-Germanico, os ingleses também possuíam políticas excludentes tocante aos estrangeiros pobres no país, e muito como acontece também atualmente, em várias cidades do Brasil, a prática de “despejo” à suas cidades originais

Figura 3:Catarina de Clèves distribui esmolas pelos pobres e doentes
TRABALHO FINAL DE GRADUAÇÃO
MOURA 16
BARBARA

era uma medida comumente aplicada. (BURSZTYN, 2000, p.19)

Sabemos que, históricamente, no Ocidente, a partir da época moderna, a rua passa a ser um espaço importante a ser governado, e as políticas médicosanitaristas e higiênicas se esforçam para esquadrinhar espaços e privatizar e nuclearizar famílias; políticas de promoção de saúde, trabalho, educação e bem-estar passam a definir populações governáveis e disciplinar sujeitos( Ariés, 1981; Donzelot, 1980; Foucault, 1979).[..]a polícia, finalmente, tentava controlar desvios e incentivar a vigilância quanto aos comportamentos aceitáveis (Costa, 1983; Pechman, 2002). Novos problemas e autoridades para seu combate passaram a ser criados e, no que se refere às populações que teimavam em fazer da rua seu local de existência social, mesmo que temporariamente, um olhar de suspeita e anormalidade passou a se evidenciar.

( SCHUCH; GEHLEN, 2012, p.14)

Foi somente na década de 1990 que a população em situação de rua começou a ser levada em consideração como problema social nas capitais europeias, principalmente em decorrência da declaração de 1987, que

instituiu o ano internacional dos desabrigados pela ONU. Logo, dois anos depois, teve-se então a criação do FEANTSA ( Federação Europeia de Organizações Nacionais de Trabalho com os sem-teto), grupo formado por ONGS que oferecem serviços de apoio, e conduzem pesquisas e relatórios acerca da população de rua. A maior parte das medidas tomadas em relação a esse público compõe-se de censos, que são inevitavelmente pouco confiáveis nas estimativas. Contudo, temse exemplos atuais, como o da Finlândia, que buscam ativamente por formas pouco implantadas de planos assistenciais, como o programa Housing First6. O sistema, em prática desde 2008, é subsidiado totalmente pelo governo do país, que adquire os edifícios desocupados para então oferecer contratos de residência

aos moradores de rua a um preço acessível. Além do domicílio, os aplicantes também recebem apoio em questões de educação financeira e oportunidades de emprego. No país, a população diminuiu em mais de 35%7. Alguns outros países europeus também implementam o programa como principal elemento na questão dos moradores de rua, dentre eles estão a Dinamarca, França, Portugal, Suécia e Irlanda. Já na Inglaterra o programa mais comumente adotado para as pessoas em situação de rua consiste em casas de transição. São espaços que visam propiciar apoios necessários para a eventual saída e recuperação dessas

pessoas em um só lugar. (PLEACE, 2008). Além dos países europeus, tem-se também um exemplo de programa, aparentemente bemsucedido, nos Estados Unidos, em São Francisco, chamado de “Navigation Centers”(FIG.4).

A primeira leva do sistema foi inaugurado em 2015 e é uma modalidade de abrigo temporário. Os edifícios ficam abertos 24 horas, todos os dias, e são abertos à famílias e a pessoas com animais de estimação. Além disso, os usuários têm acesso irrestrito aos equipamentos como a lavanderia, e a cozinha, que não possuem condicionantes de horários para a utilização. Para a entrada, os aplicantes selecionados pelo time

6 O “Housing first” é uma modalidade do sistema assistencial que foca na oferta de unidades residenciais aos grupos vulneráveis. Diferentemente dos processos mais utilizados, que seguem uma linha evolutiva de acompanhamento desses indivíduos, o “housing first” acredita que a etapa domiciliar pode facilitarmais a resolução de problemas de saúde, sociais e econômicos.

7 Dados retirados do jornal The Guardian, em 2019

17
TRABALHO FINAL DE GRADUAÇÃO BARBARA MOURA

Fonte: https://www.sfpublicworks.org/navigationcenter

de profissionais sociais devem se cadastrar no local, informando seus dados básicos e suas necessidades para que possam ter atendimentos específicos.

Dos mais de 5.000 que passaram pela primeira implantação, quase a metade conseguiu moradia permanente ou foi reunida com seus familiares e amigos, de acordo com o Departamento dos sem moradia e assistência residencial (GREEN, 2020).

1.4 No Brasil

A população em situação de rua no país, diferentemente do continente europeu, é relativamente recente, levando em conta que até meados do século XVI o Brasil ainda não se constituía como colônia portuguesa e portanto, a condição urbana, sujeito proeminente no surgimento desse grupo social, não existia.

A partir do século XIX, o país começou a aplicar várias leis visando a contenção dos

“mendigos” nas cidades.

As Leis Criminais do Império de 16 de dezembro de 1830 possuem o capítulo IV, denominado Vadios e Mendigos. Os arts. 295 e 296 definiam que aqueles que não possuíssem uma ocupação honesta depois de serem advertidos, seriam presos de 8 a 24 dias. Caso estivessem aptos a trabalhar, fingissem doenças ou chagas, ou se inválidos estivessem reunidos em quatro ou mais seriam presos de 8 a 30 dias (BRASIL, 1830 apud STRAPASSON; PAMPLONA, 2014, p.439-456)

É possível ver que desde o começo, o conteúdo desses documentos levava em conta o utilitarismo desses indi-víduos e tinham cunho puni-tivo, ao invés de assistencial, assim como acontecia em vários países da Europa. A transformação econômica e logo em seguida a crescente urbanização das cidades brasileiras teve seu ápice por volta da década de 1940 (SANTOS, 1996, apud ARAUJO, 2019). No espaço de 40 anos, a população brasileira aumentou de 41 milhões para 119 milhões,

sendo que nas cidades o aumento foi de 8 vezes a população em 1940. O crescimento populacional, infelizmente, não foi proporcional à oferta de empregos, deixando muitos daqueles que foram às cidades sem renda e sem perspectivas de trabalho ou moradia.

Somente em 1988, com a saída do país do regime militar, foi que as problemáticas sociais tiveram a oportunidade de serem abordadas, a começar pela nova constituição. O documento engloba os direitos de todos que residem no país.

Art. 5º Todos são iguais perante a lei, sem distinção de qualquer natureza, garantindo-se aos brasileiros e aos estrangeiros residentes no País a inviolabilidade do direito à vida, à liberdade, à igualdade, à segurança e à propriedade,[..]”

Art. 6º São direitos sociais a educação, a saúde, o trabalho, o lazer, a segurança, a previdência social, a proteção à maternidade e à infância, a

Figura 4:Navigation Center em São Francisco
TRABALHO FINAL DE GRADUAÇÃO BARBARA MOURA 18

assistência aos desamparados, na forma desta Constituição.” (BRASIL, 1988).

Posteriormente tem-se a modificação do 6º artigo para incluir alimentação, moradia e transporte. A redação do documento marca uma nova etapa na construção das politicas brasileiras, como salienta Couto:

Pela primeira vez um texto constitucional é afirmativo no sentido de apontar a responsabilidade do Estado na cobertura das necessidades sociais da população e, na sua enunciação, reafirma que essa população tem acesso a esses direitos na condição de cidadão. (2006, apud SCHUCH et.al, 2012,p.72)

Especificamente para a população em situação de rua, é somente em 1993 que se percebe a preocupação com essa parcela dos brasileiros, começando pela inauguração de um espaço destinado à sua visibilidade: o fórum nacional de estudos sobre a população de rua, na cidade de Belo Horizonte. Ainda no mesmo ano,

teve-se a criação da Lei Orgânica de Assistência Social(LOAS), que institui o direito à assistência e o dever do Estado de provê-la. Tem por objetivos “a garantia da vida, a redução de danos, à prevenção da incidência de riscos[..]”

e “a habilitação e reabilitação das pessoas com deficiência e a promoção de sua integração à vida comunitária;” (BRASIL, 1993). Em sua publicação original não tratava dos moradores de rua especificamente, como beneficiários dos serviços de assistência, acrescentando-os somente em 2005. Também na LOAS são instituídos os programas de assistência social e os locais de provimento, os Centros de referência de assistência social (CRAS) e o centro de referência especializado social (CREAS). Os dois se diferem nos tipos de público-alvo, e portanto, nas atividades ofertadas.

Embora o Brasil possua esses variados documentos, leis, e regulamentos em relação aos vulneráveis, na prática, os procedimentos não são em nada satisfatórios. Muitos em situação de rua discorrem sobre como são mal atendidos nos equipamentos públicos de saúde, como os atendentes de albergues, casas lar, também os tratam com má vontade, e por muitas vezes com preconceito. Aliás, poucos fazem uso dos direitos os quais a lei e a política de assistência social instituíram, alguns por simplesmente desconhecerem essas regulamentações e outros por afirmarem que elas não os ajudam. Em 2020 estimava-se a existência de 221.869 pessoas em situação de rua no Brasil.(IPEA, 2020)

19
TRABALHO FINAL DE GRADUAÇÃO BARBARA MOURA

Figura 5:Linha do tempo dos momentos significativos para a população em situação de rua

TRABALHO FINAL DE GRADUAÇÃO BARBARA MOURA 20
Fonte: elaborada pela autora

“Eu já me inscrevi em tantas coisas… Nunca ganhei nada. Daquele lado eles chegam aqui e diz: Ei, me dá seu nome, por favor? Aí eu digo: Pra quê vocês querem meu nome? Aí eles dizem: Rapaz, é para realmente o governo fazer algum benefício para você. Eu digo: Rapaz, ó…o governo já tem meu nome várias vezes e eu não ligo. Eu creio que ele nunca pegou um papel que vocês leva pra ler. E se ele nunca pegou pra ler porque vocês todas vezes chegam pedindo meu nome? Em Sobradinho eu dei nome, em Taguatinga eu dei nome...aqui eu dei nome. E não foi só uma vez, nem duas e nem trêes. Nunca adiantou” (SOTERO, 2011, p. 799-817)

Além disso, com a crescente adesão à prática de cortes ao setor público, não é estranho ver casas de acolhimento, abrigos emergenciais e centros de referência sendo fechados ou englobados por outros edifícios, deixando a situação para esses indivíduos ainda mais precária. Diante disso, percebe-se que as medidas que visam assistir esse grupo são relativamente re-

centes, pouco eficazes e , até então, se encontram estagnadas, sem avanços. Ademais, as poucas que tiveram alguma evolução, atualmente se encontram em retrocesso, como percebe-se ao observar a situação desses grupos nas cidades brasileiras.

21
Fonte: https://gauchazh.clicrbs.com.br/porto-alegre/noticia/2015/08/ex-mendigo-dedica-a-vida-para-ajudar-necessitados-de-porto-alegre-4830282.html
TRABALHO FINAL DE GRADUAÇÃO BARBARA MOURA

ELES NA RUA - QUEM SÃO?

2.1 Dados

Para projetar um espaço que atenda essa coletividade fazse necessário conhecê-la assim como qualquer outro cliente, como salienta Quintão:

É necessário caracterizar esta população, para saber qual a realidade do ‘cliente’, como em qualquer projeto de arquitetura. Isto é importante para se poder trabalhar com as necessidades reais do indivíduo, e não com uma imagem de morador de rua que seja fruto de um imaginário arquiteto. É isto que irá balizar os projetos. (QUINTÃO, 2000, apud CRUZ; GOMES, 2018, p.05 )

o decreto 7.053 de 2009 a população em situação de rua pode ser definida como:

[..] o grupo populacional heterogêneo que possui em comum a pobreza extrema, os vínculos familiares interrompidos ou fragilizados e a inexistência de moradia convencional regular, e que utiliza os logradouros públicos e as áreas degradadas como espaço de moradia e de sustento, de forma temporária ou permanente, bem como as unidades de acolhimento para pernoite temporário ou como moradia provisória.” (BRASIL, 2009).

Dessa forma, de acordo com Embora o grupo seja diverso, no-

ta-se a predominância de alguns elementos nas várias pesquisas acerca do assunto, como por exemplo, a preponderância do sexo masculino nessa população. Atualmente no Brasil, o último censo mais completo e abrangente das pessoas em situação de rua continua sendo aquele feito pelo Ministério de desenvolvimento social e combate à fome(MDS) em 2008. Ainda que a coleta de dados pelo sistema do SUAS, o CAD único, seja uma alternativa e que consiga números mais recentes, essa plataforma sofre ainda mais com a questão de quantificar essas pessoas, visto que a adesão ao programa não é completa, e é

muito menos possível saber quantos, de fato, fazem uso dela. Portanto, embora haja necessidade de utilizar informações mais recentes, esse primeiro Censo continua sendo referência, apesar de também possuir suas limitações8. Logo, tendo como base as informações contidas na pesquisa de 2008, de um total de 31.922 adul-

8 O censo, realizado em 2008, obteve números apenas de cidades com mais de 300 mil habitantes e cidades como São Paulo, Belo Horizonte, Porto Alegre e Recife não foram consideradas devido à iniciativas próprias de quantificação desse grupo. Além disso, o método para contar essa população teve como base as instituições e locais públicos, o que também pode ter afetado a contagem devido a característica transitória do grupo em situação de rua e a relativa baixa aderência às instituições.

TRABALHO FINAL DE GRADUAÇÃO
MOURA 23
BARBARA

tos, 27.133 eram homens. Desses homens, a maioria tinha mais de 25 anos, quase 28% do grupo. O grupo feminino teve números parecidos, superando em 3% o número de homens. Em todas as faixas etárias, o grupo masculino prevaleceu, exceto a mais nova, de 18 a 25 anos, na qual as mulheres tinham 21,17% enquanto os homens 15,30%. Em relação à cor

de pele, de todos os indivíduos, a maior parte se autodeclarou parda, enquanto o restante, dividido entre brancos e pretos, ficaram quase com a mesma porcentagem. Se somados a população de pretos e pardos, constata-se que a porção de negros nesse grupo é, com certa margem, maior que a no Brasil, totalizando 67% na população de rua e 44,6% no país.

Fonte:

Fonte:

Com relação à escolaridade, é importante ressaltar que a maioria dos que estão na rua sabem ler e escrever, somando 74%, apenas 17% se constituem como analfabetos e 8,3% somente escrevem o próprio nome. Já em 2008 existiam algumas pessoas com ensino superior em situação de rua, embora compusessem somente 0.7%.

Figura 6:Gráfico quantidade de pessoas na rua por sexo Dados retirados da Pesquisa Nacional sobre a população de rua, 2008 Figura 7:Distribuição por etnia Dados retirados da Pesquisa Nacional sobre a população de rua, 2008 Figura 8: Distribuição por sexo + idade Fonte: Dados retirados da Pesquisa Nacional sobre a população de rua, 2008
24 TRABALHO FINAL DE GRADUAÇÃO BARBARA MOURA

Tabela 1:Escolaridade das pessoas em situação de rua

Embora esses indivíduos vivam em uma condição exclusiva, na qual contratos empregatícios formais sejam raros, também formam maioria(70,9%) os que exercem alguma atividade remunerada, mesmo que essa não seja efetivada, ou constante. As principais ocupações que constituem suas rendas são:

● catador de materiais recicláveis

●“flanelinha”

●serviços no ramo da costrução civil e no setor de limpeza

●carregador/ estivador.

Ademais, somente 15,7% pedem dinheiro nas ruas como única forma de sustento. Além disso, 88,5% dessa população não recebe nenhum auxílio do governo, como aposentadoria, bolsa família, e o benefício de prestação continuada9. Assim como os indivíduos que compõem essa comunidade são diversos, as situações que os levaram a usar a rua como espaço de moradia e sustento também são diferentes e inúmeras. Temse, sim, o abuso de substâncias aditivas como um dos principais fatores que levam às ruas, con-

tudo, deve-se olhar além desse estado físico-psíquico como origem do problema “morar na rua”, e sim como sintoma. O que ou quais acontecimentos levaram a esse abuso de substância? Como falam Mendes, Ronzani e Paiva:

Não é possível, dessa forma, afirmar que, mesmo em não situação de rua, não havia vulnerabilidades outras, como a afetiva, a étnico racial, de gênero, de violências e de discriminação(2019, p.10).

É de extrema importância entender as condições tanto enquanto na rua, como previamente, do contrário não se pode esperar que a simples intervenção médica, ou assistencialista básica retire esses indivíduos dessa condição de exposição extrema. Em todo o caso, dentre outras causas para a ida às ruas observa-se como

9 O benefício de prestação continuada é um direto salarial, por mês, previsto na Lei Orgânica de Assistência Social, concedido a idosos com mais de 65 anos e a pessoas com restrições físicas.

mais proeminentes o desemprego e os desentendimentos familiares, muitas vezes fatores correlacionados até mesmo pelos próprios indivíduos. Do total de entrevistados, 71% citaram pelo menos um desses fatores.

Fonte: Dados retirados da Pesquisa Nacional sobre a população de rua, 2008 Figura 9:Principais fatores descritos como causa da ida às ruas
TRABALHO FINAL DE GRADUAÇÃO BARBARA MOURA 25
Fonte: Dados retirados da Pesquisa Nacional sobre a população de rua, 2008

2.2 As consequências do viver nas ruas

O habitar na rua é um processo. Na maioria dos casos, a passagem da rua de espaço público transitório a âmbito misto privado-público permanente, não acontece do dia para a noite. Claro, existem as exceções decorrentes de processos extraordinários, como a quebra da bolsa de valores em 1929 nos Estados Unidos, ou a perda de todos os membros familiares de uma só vez em acidentes, ou em pandemia. Contudo, levando em conta diversas pesquisas já feitas com essa população, verifica-se o caráter evolutivo dessa circunstância. Anterior à consolidação desse cenário, como pode-se perceber pelos dados, já se encontram problemas que contribuem para a ida às ruas, porém o que pode

ou não ser percebido é o quanto esses problemas são exacerbados pela permanência nesse lugar, e quais outros ainda podem surgir. De acordo com estudos feito pelo grupo inglês nacional de caridade, Crisis, no documento “ Homelessness Kills”, as pessoas em situação de rua além de sofrerem com as condições de violência por parte de outros indivíduos, ainda estão sujeitos a doenças e transtornos em proporção bem maior do que seus pares. Os dados foram coletados no começo do século, porém, como o fenômeno continua crescendo, ainda mais com a pandemia do vírus COVID-19, é razoável a conclusão de que esses números podem ter aumentado. O estudo ainda faz a ressalva que, devido à dificuldade de quantificar os moradores de rua, fato notoriamente contestado por quaisquer pesquisadores do

assunto, os dados são estimativas e certamente excluem algumas pessoas em situação de risco.

● Na faixa etária de 16 a 24 anos, as pessoas em situação de rua são, pelo menos, duas vezes mais suscetíveis à morte do que seus contemporâneos. Na faixa de 25 a 34 anos, as chances passam a quatro vezes mais. De 35 a 44 anos, são cinco vezes mais susceptíveis.

• As pessoas em situação de rua são três vezes e meia mais prováveis de cometer suícidio do que a população em geral. ( THOMAS, 2012, p.09)

No Brasil, ainda utilizando os dados da pesquisa de 2008, 30% do grupo entrevistado tinha algum problema de saúde. Dentre os mais citados estavam Hipertensão com 10,1%, problemas psiquiátricos com 6.1% e ain-

Fonte:https://www.redebrasilatual.com. br/cultura/2016/02/fotografo-conta-historias-de-amizade-entre-moradores-de-ruae-seus-caes-7234/

26
TRABALHO FINAL DE GRADUAÇÃO BARBARA MOURA

da, diabetes e HIV/ AIDS. Todas as doenças documentadas com quantidade proporcionalmente maior dentro desse grupo do que na população brasileira geral.

“Más condições de higiene, alimentação, sono, e dificuldade em acessar os serviços de saúde, podem levar a um quadro de saúde menos que ideal” ( THOMAS, 2012, p.10 )

Dessa forma, a existência dessas pessoas é permeada de riscos; aqueles palpáveis, derivados do espaço físico onde estão sujeitas às intempéries, às violências físicas, e às mínimas qualificações de manutenção da saúde, quanto aqueles abstratos, que os afetam na esfera social e psíquica;

[..]são alvos de práticas discriminatórias, classificando e constituindo de forma depreciativa e opressora as vidas desses indivíduos. [..] fornecendo à pessoa que o porta um reconhecimento perverso de inferioridade frente aos demais” (MOURA; XIMENES; SARRIERA, 2013, p.19).

Seguindo a lógica da evolução desses fenômenos, os mesmos autores ainda ressalvam: enfraquecendo igualmente o respeito que este último também poderia ter com outras pessoas e podendo desenvolver, assim, um ciclo opressor e vicioso de práticas de humilhação.

Logo, percebe-se que as pessoas em situação de rua fazem parte, e são proeminentes, no grupo dos excluídos sociais; ou seja, sofrem com as situações de desvinculação e perda de identidade, características desse corpo social. Diferentemente de outros grupos, entretanto, no espaço da rua, essas pessoas não possuem muitas alternativas quanto a referência de um novo apoio, possuindo somente duas opções:

O indivíduo[..]pode ter duas escolhas: a) se aproximar de outros moradores, fazer parte de um grupo e fazer novas relações

sociais ou b) ficar isolado, [..]nos grupos, a pessoa recupera, até certo ponto, sua identidade pessoal e social; ela é aceita na condição de igual, enquanto que, por outros segmentos sociais, é discriminada e inferiorizada( VIEIRA, et al. apud OLIVEIRA; COSTA, 2015, p.347-355)

A chance de assimilar esse novo grupo social ao seu repertório de apoios é um dos pouquíssimos pontos que os usuários das ruas veem como positivo em suas condições( ARAÚJO et.al, 20 ) Entretanto, até mesmo nessas relações aparentemente benévolas existe um elemento insidioso, como aponta Escorel:

O agrupamento, funcionando como viabilizador da sobrevivência afetiva e fisiológica em condições extremamente precárias, tem seu tecido relacional fortemente marcado pela ambigüidade: reconhecimento (identidade) e rejeição; solidariedade e conflitos; cooperação e disputa se apresentam em suas intensidades máximas. O outro morador de rua é seu melhor amigo, que lhe faz companhia, lhe dá informações e com quem divide os ganhos; mas é, também, seu pior inimigo, pois é quem lhe rouba os pertences quando está dor-

mindo, pode agredi-lo por conflitos tolos e provocar seu isolamento (ESCOREL, 1999, apud MATTOS, 2006, p.149)

Além de tudo, os indivíduos que se veem na situação de rua se deparam com duas circunstâncias, ainda que contraditórias, coexistentes. Por um lado, tornam-se invisíveis – sua existência adquire um caráter comum, de normalidade, e que portanto não é passível de atenção dos demais cidadãos, dos serviços de saúde, dos censos municipais e até do federal, dos serviços assistenciais existentes para eles; são transformados em objetos, sujeitos à incidentes, impessoais. Enquanto por outro lado, se encontram expostos, hiper-visíveis, não possuem privacidade, seus pertences são deixados ao relento, muitas vezes sendo roubados, e ainda susceptíveis a violência, inclusive a de oficiais da polícia ou seguranças

27
TRABALHO FINAL DE GRADUAÇÃO BARBARA MOURA

privados.

Como se a situação já não fosse ruim, embora a maior parte dos que habitam a rua sejam sozinhos, há uma crescente parcela da população que constitui famílias na rua, como apontam dados do sistema CAD único e os autores Andrade, Costa e Marquetti:

Existem diversas experiências de rua que perpassam gerações, situação relacionada principalmente ao aumento da população das cidades brasileiras, somado ao crescente processo de desfiliação e à dificuldade de as políticas de assistência social e moradia acompanharem tal aumento (COSTA; PING; MASSARI,2018,p.03)

Nos últimos sete anos, a quantidade de famílias em situação de rua registradas no Cadastro Único aumentou mais de 16 vezes(SAGI, 2019)

Dessa forma, esse fenômeno pode ser indicativo de que o habitar a rua está se tornando uma situação cada vez mais crônica. Ademais, se as consequências para os indivíduos que habitam o espaço urbano

já são muitas, e ainda se estuda para compreender melhor as particularidades desse cenário individual, quais serão, então, as consequências para uma geração que experiencia esse viver?

Como já se pode constatar, a experiência de vida no espaço da rua traz consigo repercussões, em sua maior parte negativas, por vezes afetando permanentemente quem faz uso contínuo desse ambiente. A rua como espaço habitável é uma questão pertinente e já discutida por algum tempo no âmbito do urbanismo, visto que esse espaço é público e deveria ser pensado para atender às necessidades de todos os seus usuários. Contudo, não é o que se observa no contexto atual.

A cidade, historicamente, é o lu-

Figura 10: Pessoas na rua que constituem família Fonte: Monitoramento SAGI
28 TRABALHO FINAL DE GRADUAÇÃO
2.3 O espaço urbano - Rua
BARBARA MOURA

gar de trocas, de experiências, de encontro entre diferentes parcelas de sua própria população e aqueles de fora.. É o espaço destinado ao lazer, ao exercício da vida cívica, às interações sociais e proporciona também a manifestação de momentos individuais, introspectivos; uma cidade funcional é aquela que consegue suprir justamente todas as necessidades de seus habitantes.

A cidade é o lugar da manifestação individual e da experiência coletiva, já que há uma multiplicidade de trocas que são constitutivas da produção da sociabilidade na cidade. A cidade, como lugar, tem uma dimensão explicativa e é uma condição de realização da vida cotidiana, vida essa que resulta de uma relação do indivíduo com a própria cidade. (VITTE, 2010, p.81)

Entretanto, com o urbanismo moderno, desde a primeira guerra mundial até meados de 1970, surgiram preocupações acerca do tipo de público que fre-

quenta esses espaços se os usam de maneira “correta”, devendo então ser retirado se não o faz: os indesejáveis urbanos. Anterior a implantação de sistemas de esgoto e drenagem, a rua constituía-se como um espaço insalubre; era inclusive um agravante para a saúde pública e por isso no século XX surgiram então as teorias higienistas.

Contudo, mesmo durante esse período as pessoas usufruíam dos espaços públicos de forma variada; para lazer, introspecção, manifestações sociopolíticas, e mera passagem. A mudança na forma de utilização desses lugares é relativamente recente, e foi decorrente dos interesses de uma classe dominante que necessitava selecionar quem usufruía do entorno de seus empreendimentos.

“as pessoas em situação de rua são impedidas de acessar os serviços de saúde (18.4%), os transportes coletivos (29.8%), os shopping centers (31.3%),

os estabelecimentos comerciais (31.8%) e os órgãos públicos (21.7%). (MOURA; XIMENES; SARRIERA 2013, p.19)

A população em situação de rua possui uma relação diferenciada com esse espaço; além de ter que vivenciá-lo de uma forma anatural a ele, como residência, o experiencia tanto como espaço físico como simbólico(MATTOS, 2006). veem-se em uma posição continuamente inquietante: seria a rua a liberdade, o refúgio, ou o abandono? E como se não fosse o bastante, ainda são os principais afetados pela complexa questão das relações de domínio do espaço público.

Sendo a casa o local da continuidade das relações e objetos, de um grupo de pertencimento e de um espaço geográfico que nos oferecem estruturas plausíveis para constituir nossas identidade, estar em situação de rua é estar “sem lugar no mundo” [..]Dissolvem-se as certezas, a estabilidade[..]( MATTOS, 2006, p.129)

Ademais, para esses indivíduos as esferas do público e privado se misturam, e com isso tem-se diversos problemas, alguns já vistos anteriormente.

Não há estrutura no espaço da rua para que se tenha esse mundo privado e dificilmente seria permitido na sociedade atual tal coisa. Existem diversas tentativas por parte desses indivíduos de alcançar a privacidade na rua, como a montagem de barracas com papelão, ou tendas, porém não são poucas as vezes que até desses elementos eles são desprovidos, seja pelas prefeituras numa tentativa de limpeza do espaço urbano, ou pela própria população. Esse tipo de violência se estende até a paisagem urbana, com a adição de elementos que impedem a utilização de espaços nas calçadas. A prática, comumente chamada de arquitetura hostil,

TRABALHO FINAL DE
29
GRADUAÇÃO BARBARA MOURA

tem variadas formas, como detalhadas no trabalho de mestrado da arquiteta Débora Raquel Faria, “Sem Descanso: Arquitetura hostil e controle do espaço público no centro de Curitiba”. Esses pinos, espetos, gradis, as famosas grades e até mesmo arranjos vegetais deturpam a arquitetura existente assim como o espaço urbano, afinal, não seriam ambos feitos para proveito das pessoas? Pior, além de irem contra o propósito definitivo de seus espaços originais, não são raras as vezes que ferem pedestres desatentos.

Fonte https://www.thatsmags.com/china/post/22993/guangxi-authorities-erectforest-of-poles-to-keep-out-homeless

https://www.nytimes.com/2019/11/08/ nyregion/hostile-architecture-nyc.html

devolvendo o espaço público ao público, tanto a cidade como os que não tem escolha a não ser “morar na rua” se beneficiaram. Entretanto, enquanto não há mudanças positivas nesse espaço, as pessoas em situação de rua continuarão a ser desprovidas do único lugar que realmente possuem e que podem utilizar.

Fonte:https://pjhollis123.medium.com/anti-homeless-architecture-e6ba56416753

A transformação do espaço urbano, decorrente das preocupações de certos grupos da sociedade, descaracteriza esse lugar, retira seu objetivo e função principal, que é a de reunião, encontro entre os habitantes da cidade. Portanto, o fenômeno não é uma questão exclusiva da comunidade que a utiliza como morada, é pertinente a toda a população;

Figura 11:Pinos em peitoril Figura 12:Balizadores e grades em espaço de circulação Figura 13:Bancos de concreto cobertos por uma grelha de metal. Fonte:https://theath. ca/arts-culture/dark-art-anti-homeless-architecture/ ; Figura 14:Jardim embutido no banco de alvenaria juntamente com pinos. Fonte:
30
TRABALHO FINAL DE GRADUAÇÃO BARBARA MOURA

OS ESPAÇOS RESERVADOS A ESSA POPULAÇÃO

3.1 Os serviços oferecidos pelo governo Vista a situação de extrema vulnerabilidade à qual os utilizadores da rua estão submetidos, a concepção e implantação de espaços dedicados a atender às suas diversas e complexas necessidades é um tema que precisa, e está em constante desenvolvimento. Historicamente, como já se pode constatar, os lugares destinados a abrigar essas pessoas partiam da iniciativa da igreja católica, que por vezes oferecia o próprio espaço de culto como abrigo emergencial, e das pessoas civis, que faziam seu dever de cristão ao praticar a caridade. Embora as organizações religiosas ainda sejam bastante proeminentes na administração dos espaços para esses indivíduos, o Estado finalmente assum-

iu a responsabilidade de prover esses sujeitos dos seus direitos, incluindo o fornecimento de um espaço digno para permanência. No Brasil, junto a criação das leis de assistência social, foram redigidos os documentos que caracterizam e regulamentam os espaços destinados a essa parcela da população brasileira, como a resolução 109 do conselho nacional de assistência social. Nesse documento, as unidades são divididas de acordo com a complexidade, que variam de básica a alta. As tipologias descritas são:

• Serviços de proteção social básica, que incluem o serviço de proteção e atendimento integral a família, o PAIF

• Os serviços de proteção social especial de média complexidade, que incluem os serviços de proteção especial para pessoas com deficiên-

cia, idosos e suas famílias e os serviços especializados para pessoas em situação de rua • e os serviços de proteção social especial de alta complexidade - no qual estão inseridos os serviços de acolhimento institucional, tais como abrigos, casa-lar, casa de passagem, e residência inclusiva.

Todos os serviços são detalhados na resolução citada, possuindo descrições gerais e as específicas, que são dividias pelos usuários, descriminando faixa etária, sexo, presença de necessidades especiais e se constituem família. Além disso, também descrevem os objetivos, categorizados da mesma forma. O normativo também apresenta as necessidades do espaço físico de acordo com os grupos e no geral, com a provisão de materiais relevantes, estabelece o período de

funcionamento, as articulações necessárias com outros serviços sociais e o impacto social esperado.

Figura 15: Logo da PAIF

Fonte: https://www.jacuizinho.rs.gov.br/ encontros-do-paif-assistencia-social-divulga-cronograma-do-mes-de-agosto/

Figura 16:Logo do

Fonte: https://www.sigas.pe.gov. br/pagina/centro-de-referncia-de-assistncia-social--cras

CRAS
TRABALHO FINAL DE GRADUAÇÃO BARBARA MOURA 32

De acordo com a resolução o serviço de acolhimento institucional tem os principais objetivos:

•Acolher e garantir proteção integral;

• Contribuir para a prevenção do agravamento de situações de negligência, violência e ruptura de vínculos; Restabelecer vínculos familiares e/ou sociais;

• Possibilitar a convivência comunitária;

• Promover acesso à rede socioassistencial, aos demais órgãos do Sistema de Garantia de Direitos e às demais políticas públicas setoriais;

• Favorecer o surgimento e o desenvolvimento de aptidões, capacidades e oportunidades para que os indivíduos façam escolhas com autonomia;

• Promover o acesso a programações culturais, de lazer,

de esporte e ocupacionais internas e externas, relacionando-as a interesses, vivências, desejos e possibilidades do público. (BRASIL, 2009).

3.2 O esquema funcional

Essas instituições descritas no documento seguem um sistema de funcionamento denominado “sistema de escada”. Esse método é adotado pela maior parte dos países mundo afora, embora mais recentemente estejam surgindo alternativas a ele. Nos Estados Unidos, esse esquema surgiu em meados de 1960, devido aos fechamentos de inúmeros hospitais psiquiátricos que propiciavam uma perma-nêncial longa aos seus pacientes. Logo, os indivíduos saindo desses hospitais eram movidos sequencialmente a espaços cada vez menos assistivos, até que en-

tão as pessoas estivessem aptas a se mudarem para uma residência própria (PLEACE, 2011). Esse método também chamado de “Continuidade do cuidado” (em inglês, Continuum of care) é focado em oferecer apoio e se não a eventual superação dos problemas que permeiam a vida dos seus utilizadores, pelo menos o alcance de um controle suficiente sobre eles; essa etapa deve ser atingida antes do oferecimento de uma residência própria. Comumente aplicado também em países da Europa, esse sistema possui um regimento bastante restritivo, sendo proibido o consumo de qualquer substância aditiva e na ocasional descoberta desse, os usuários podem ser rebaixados de etapa ou simplesmente expulsos do programa por completo. Ademais, também

devem aceitar o acompanham-

ento integral e participar de todos os tratamentos recomendados. (JOHNSEN; TEIXEIRA, 2010). Nesse tipo de intervenção, normalmente as etapas acontecem em locais diferentes. Portanto, os indivíduos precisam se mudar diversas vezes, fato que atrapalha ainda mais no restabelecimento dessas pessoas na sociedade. Atualmente, diversos pesquisadores do assunto criticam duramente esse esquema devido a alta incidência de abandono do programa; muitos usuários não se adaptam ao regimento desses espaços e se veem forçados a largar essas instituições entre etapas.

33 TRABALHO FINAL DE
GRADUAÇÃO BARBARA MOURA

Apesar das adaptações, em muitos casos, estes es-paços não são adequados. Normalmente não possuem ambientes que condizem com a ocupação esperada e raramente apresentam áreas para lazer e des-canso satisfatórios. (SILVA, 2019, p.10)

Os prazos restritos para a permanência[..]Cumprir ho-rários, não usar álcool e drogas, não manter rela-ções sexuais, apresentar-se adequadamente[..]sua autonomia cidadã torna-se cada vez mais frágil, durante o acolhimento institucional a pessoa pode perder o controle de alguns aspectos básicos de sua vida, como agendar uma consulta na Unidade Básica, lembrar-se dos horários de sua medicação e ter os remédios sobre sua responsabilidade, escolher os horários de suas refeições, planejar seus horários de saída e chegada à instituição. Isso acaba comprometendo a autonomia socioafe-

tiva[..]( OLIVEIRA; COSTA, 2014, p. 351352)-

Além disso, os próprios funcionários desses locais por muitas vezes, reforçam as imagens negativas, os preconceitos dirigidos a esse grupo.

Ela fala que as pessoas que estão no Abrigo são muito perigosas. Estão calmas, porque querem ganhar a casa própria oferecida pela prefeitura (MOURA; XIMENES; SARRIERA, 2013, p.22)

Logo esses lugares não serviriam como suporte, reforçando a visão estereotipada que violenta as pessoas em situação de rua. “[..]

toda a organização tende a ter a mesma estrutura que o problema que deve enfrentar e para o qual foi criada” (BLEGER, 1998, apud

5. Grupo Ramatisiano. opções mantidas por meio de doações.

FUNDAÇÃO ABRIQ, 2005?, p.31) O primeiro é uma organização sem fins lucrativos que recebe subsídio da prefeitura e possui três unidades. Essas são dividas em duas tipologias: resgate e reabilitação.

Os espaços destinados a população em situação de rua na cidade de Uberlândia, Minas Gerais, seguem o modelo funcional descrito anteriormente e a maior parte das instituições são administradas por grupos independentes, de cunho religioso. No município existem quatro opções de abrigo:

1. Os CEAMIS,

2. Missão Vida e Instituição Cristã de Assistência Social de Uberlândia,

3. ICASU. Estas duas subsidiadas parcialmente pela prefeitura e setor cívil.

4. Casa Santa Gemma e

O resgate funciona como um albergue e é específico para o sexo masculino, enquanto o segundo é focado na reabilitação dos indivíduos dependentes químicos.

Na unidade de resgate há camas para pernoite, três refeições principais, um local para banho e são feitos os encaminhamentos necessários. Os usuários não podem residir no local, a permanência permitida é de alguns dias. O programa da instituição para os usuários de drogas tem um período de duração de 8 meses, no qual os participantes residem

3.3 Os espaços em Uberlândia
TRABALHO FINAL DE GRADUAÇÃO
34
Figura 17: Esquema do programa contínuo de cuidado Fonte: Elaborado pela autora
BARBARA MOURA

na edificação e fazem parte das ações que procuram a re-inserção dos mesmos no mercado de trabalho. Já a ICASU é uma instituição focada na qualificação e oferta de empregos para jovens e adultos de ambos os sexos.

A Casa Santa Gemma e o Grupo Ramatisiano são unidades de origem religiosa, mantidas por doações da população. Assim como os abrigos apoiados pela prefeitura, essas organizações também oferecem camas, três refeições, banho e encaminhamentos pertinentes. Porém diferente dos primeiros possibilitam a moradia no local. Excepcionalmente o segundo atua em parceria com prefeituras municipais em várias outras cidades. O número de vagas nessas casas é mais limitado devido à dependência de pessoas civis para a manutenção dos locais.

Ao todo são quatro unidades de atendimento à população de rua que são reconhecidas pelo município. O número de vagas totalizado por elas é de 160 leitos, de acordo com a prefeitura de Uberlândia. São unidades que visam o atendimento básico a essas pessoas, sem programas que ofereçam um suporte amplo e eficiente envolvendo as esferas sociais, psico-sociais, e econômicas. Procuram, de fato, fornecer a mínima dignidade aos moradores de rua, mas não possuem programas efetivos para a reestabilização desses indivíduos como cidadãos.

Além desses espaços, Uberlândia possuía até 2019 um Centro de atendimento especializado para pessoas em situação de rua, o Centro POP. Essa unidade ficava no bairro Martins, perto da rodoviária municipal, um dos locais na cidade foco das pessoas

Figura 18: Grupo Ramatasiano Fonte: Imagem satélite, Google Maps Figura 19:CEAMI resgate. Fonte: Imagem satélite, Google Maps Figura 21:Casa Santa Gemma, unidade masculina. Fonte: http://www.casasantagemma.com.br/; Figura 20:Estrutura de papelão para apoio dos colchões doadas para uma unidade de acolhimento
35 TRABALHO FINAL DE GRADUAÇÃO BARBARA MOURA
Fonte: Prefeitura de Uberlândia

“moradoras” de rua. Entretanto, o edifício passou por mudanças estruturais em seu funcionamento e logo foi fechado, incorporado ao Centro de Migração da cidade. Atualmente nesse local, não se oferecem mais os serviços de alimentação, nem higiene e muito menos a possibilidade de permanência durante o dia. Ademais, a maior parte das unidades voltadas para o atendimento dessas pessoas estão loca-lizadas em bairros distantes do centro, dificultando o acesso, e principalmente a visibilidade, tanto para os usuários quanto para a população em geral e o poder público, que, portanto, pode agir com descaso. Para o agravamento da situação, além de Uberlândia ser uma cidade-dormitório, fato que comprovadamente influencia no crescimento dos indivíduos em situação de rua, a

pandemia do vírus COVID-19 aumentou conside-ravelmente o número de desabrigados. De acordo com levantamento feito pelo fórum permanente das pessoas em situação de rua, a quantidade é de 1.500 indivíduos no município, constituindo um acréscimo maior que 100%.10

Diante desse cenário vêse a necessidade de implantar uma unidade assistencial para esses indivíduos que cumpra com as funções descritas em seus regulamentos e ofereça de fato suporte para esse perfil diverso da população de rua. Um local que comporte a demanda por esse serviço, que os provenha das condições básicas e que vá além, oferecendo espaços de recreação, de socialização, mas que também não

10. Dados disponíveis em https://diariodeuberlandia.com.br/noticia/28526/ pandemia-faz-dobrar-numero-de-pessoas-em-situacao-de-rua-em-uberlandia

os confine ao edifício; fatores que podem proporcionar o desenvolvimento e recuperação de suas identidades e independência.

36
TRABALHO FINAL DE GRADUAÇÃO BARBARA MOURA

REFERÊNCIAS PROJETUAIS

FICHA TÉCNICA

NOME:

The Six Affordable Veteran

Housing

TIPO:

Moradia assistencial

ARQUITETOS:

Escritório Brooks+Scarpa

ANO CONCLUSÃO:

2016

LOCALIZAÇÃO:

Los Angeles, CA, Estados Unidos

ÁREA TOTAL:

1708 m²

Localizado numa das áreas mais densamente populadas nos Estados Unidos, esse projeto tem como público alvo os veteranos de guerra dos Estados Unidos, um grupo exposto a condições de vulnerabilidade, muitas vezes também acabando por habitar as ruas e sofrendo com o preconceito. O objetivo da empreitada é oferecer moradia permanente e serviços de apoio e de reabilitação para os veteranos, especialmente aqueles com restrições físicas

O edifício tem duas fachadas recortadas para entrada de luz e de ar( FIGURA 22), que são a sul e a leste. Visando a eficiência energética, esses rasgos estão localizados nas fachadas com maior incidência solar e proporcionam uma ventilação cruzada que perpas-

sa toda a estrutura, não deixando o ambiente muito quente nem muito frio, oferecendo assim um maior conforto térmico.

TRABALHO FINAL DE GRADUAÇÃO BARBARA MOURA
Figura 22: Fachada principal Fonte:https://www.archdaily.com/877376/the-six-affordable-housing-brooks-plus-scarpa-architects
38

Figura 23:Elevação Leste Fonte:https://www.archdaily.com/877376/the-six-affordable-housing-brooks-plus-scarpa-architects

Figura 25:Elevação oeste Fonte:https://www.archdaily.com/877376/the-six-affordable-housing-brooks-plus-scarpa-architects

Figura 24:Elevação sul Fonte: https://www.archdaily.com/877376/the-six-affordable-housing-brooks-plus-scarpa-architects

Figura 26:Elevação norte Fonte:https://www.archdaily.com/877376/the-six-affordable-housing-brooks-plus-scarpa-architects

TRABALHO FINAL DE GRADUAÇÃO BARBARA MOURA 39
As fachas restantes - norte e oeste - possuem aberturas convencionais, com janelas verticais dividas em parte móvel do tipo abrir e fixa na parte inferior.

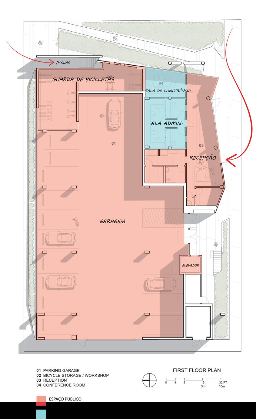
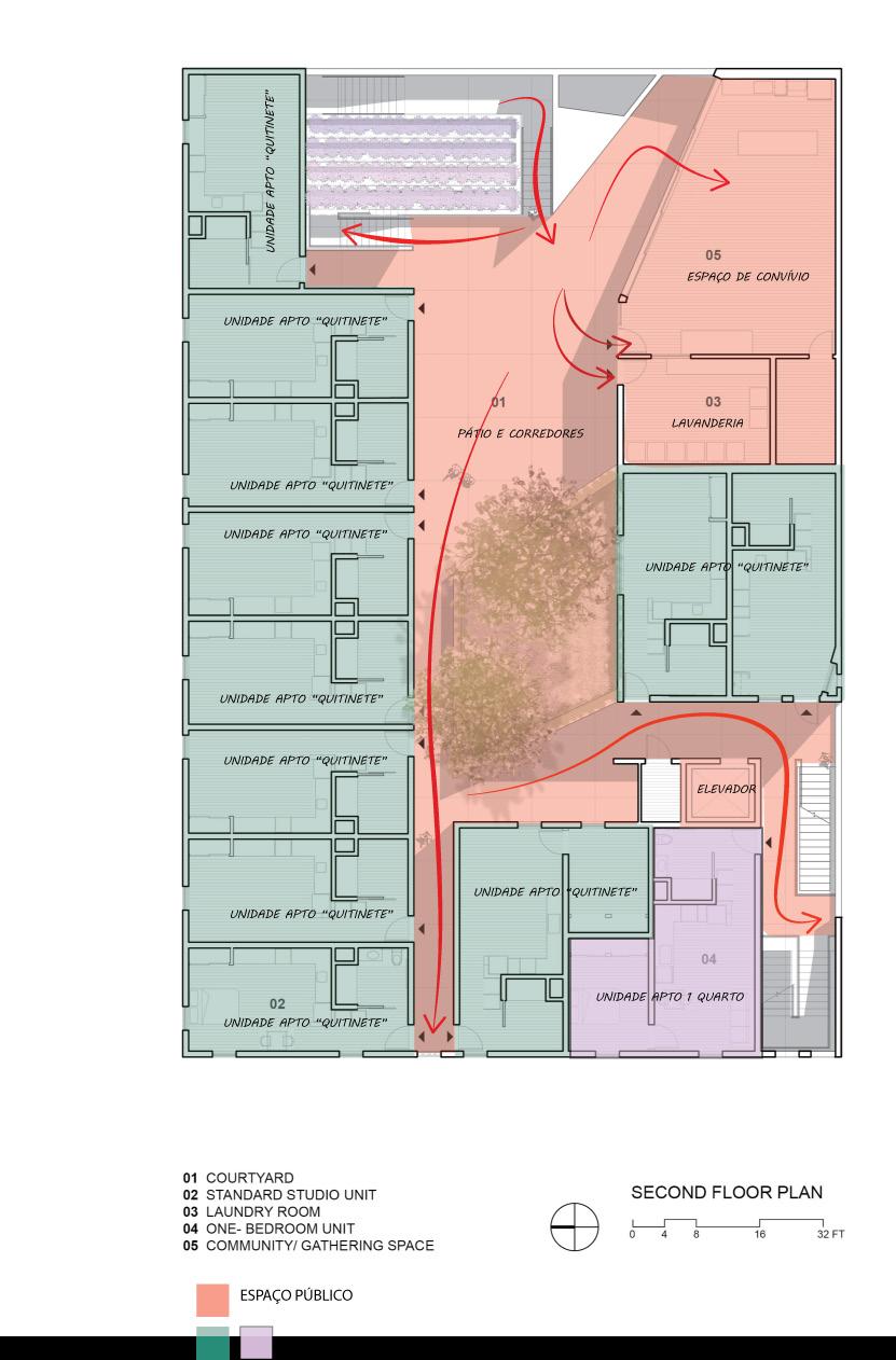
O programa é dividido em 5 pavimentos, incluindo o térreo. Nesse foram propostos escritórios para administração, espaços para o atendimento e suporte aos veteranos, além de um bicicletário e estacionamento. Seguido por um andar totalmente público, no qual encontra-se um pátio interno, aberto para a vista leste por meio do rasgo central no edifício. Nesse mesmo pavimento, há também um espaço fechado comunitário, com utilitários de cozinha( geladeira, fogão, mesas e uma sala com sofá e televisão). No mesmo bloco coberto fica a lavanderia compartilhada. Ao todo são 52 unidades de residência, dividas em duas tipologias

Figura 27:Elevação norte Fonte:https://www.archdaily.com/877376/the-sixaffordable-housing-brooks-plus-scarpa-architects

Figura 28: Planta primeiro pavimento Fonte:https://www.archdaily.com/877376/ the-six-affordable-housing-brooks-plus-scarpa-architects;modificado pela autora

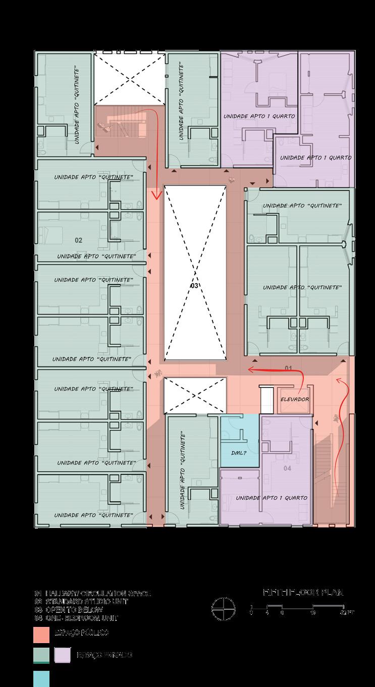
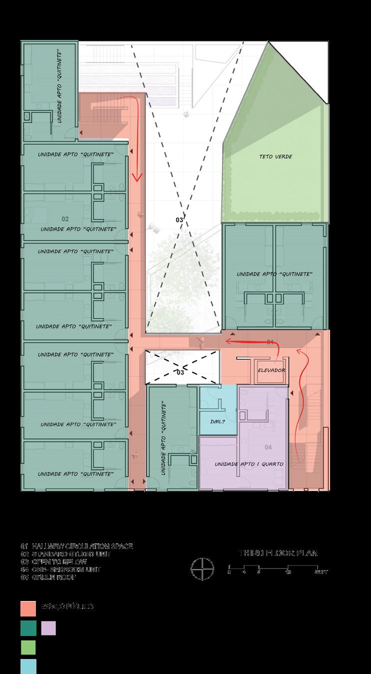
A primeira é do tipo "quitinete", com cozinha, sala e quarto integrados, com a única parede interna servindo para o banheiro. A segunda unidade é do tipo um quarto. Por andar a distribuição dos ambientes permanece a mesma; os quartos acontecem na razão de 11 : 1 até o quinto pavimento, no qual aparecem 3 unidades da segunda tipologia. Os quartos, dispostos ao redor desse átrio, terão suas entradas iluminadas pelo sol da manhã. Do pátio interno existem duas escadarias que levam aos andares superiores, nos extremos esquerdo e direito do edifício. ( figura a esq. )

40
TRABALHO FINAL DE GRADUAÇÃO BARBARA MOURA

the-six-affordable-housing-brooks-plus-scarpa-architects ;modificado pela autora

the-six-affordable-housing-brooks-plusscarpa-architects ;modificado pela autora

the-six-affordable-housing-brooks-plusscarpa-architects ;modificado pela autora

No quinto andar, além de acrescer 2 unidades a tipologia de 1 quarto, têm-se também a adição de uma quitinete do outro lado da escadaria no extremo leste. Visto que o projeto é feito para os afetados fisicamente pelas guerras, todos os banheiros possuem dimensão para acessibilidade.

No último andar foi feito um terraço com jardim, espaço comunitário, e uma área reservada para placas solares.

Figura 29:Planta terceiro pavimento Fonte:https://www.archdaily.com/877376/ Figura 30:Planta quarto pavimento Fonte:https://www.archdaily.com/877376/ Figura 31:Planta do terraço Fonte:https://www.archdaily.com/877376/
TRABALHO FINAL DE GRADUAÇÃO BARBARA MOURA 41

housing-brooks-plus-scarpa-architects ;modificado

Nos cortes é possível ver o terraço-jardim, o pátio interno, que também possui vegetação rasteira e forração, o espaço para as placas solares, uma sala de uso comunitário, a recepção, e o local para a guarda de bicicletas. Além disso, nota-se a circulação vertical - nos cortes representada somente pela escada - porém é importante ressaltar que há um elevador no edifício visto que seu público-alvo possui restrições físicas.

housing-brooks-plus-scarpa-architects

Ademais, nos desenhos verifica-se a presença das telas de madeira em prancha reciclada que envolveriam os corredores internos para proteção contra os raios solares. Infelizmente esse elemento não foi efetivado na obra finalizada.

Figura 32:Planta terceiro pavimento Fonte:https://www.archdaily.com/877376/the-six-affordable- pela autora Figura 33:Vista do pátio interno, imagem renderizada Fonte:
42 TRABALHO FINAL DE GRADUAÇÃO BARBARA MOURA
Figura 34:Planta do terraço Fonte:https://www.archdaily.com/877376/the-six-affordable- ;modificado pela autora

O material usado tanto na fachada como nas áreas internas públicas, revestindo paredes e teto, consiste em painéis de fibra de cimento branco, que podem ser confeccionados a demanda, personalizados. O piso aparenta ser de concreto na maior parte dos espaços, enquanto nos aparta-

mentos é utilizado madeira, que traz mais aconchego ao ambiente privado. Tem-se ainda um outro tipo de piso, empregado na sala comunitária que lembra um pouco cortiça, mas não foi possível identificar o material exato.

Figura 35: Fachada vista aérea Fonte:https://www.archdaily.com/877376/the-six-affordable-housing-brooks-plus-scarpa-architects Figura 36: Vista do pátio interno para a área de reunião Fonte:https://www.archdaily.com/877376/the-six-affordable-housing-brooks-plus-scarpa-architects
TRABALHO FINAL DE GRADUAÇÃO BARBARA MOURA 43

No interior dos apartamentos revestimentos são quase inexistentes, sendo dominante a simples aplicação de tinta branca nas paredes, no rodapé e no teto.

able-housing-brooks-plus-scarpa-architects

Figura 37: Sala de conferência Fonte:https://www.archdaily.com/877376/the-six-affordable-housing-brooks-plus-scarpa-architects
44 TRABALHO FINAL DE GRADUAÇÃO BARBARA MOURA
Figura 38: Vista interna de um apartamento Fonte: https://www.archdaily.com/877376/the-six-afford-

Figura 39:Isométrico explicativo das estratégias bioclimáticas

Fonte:https://www.archdaily.com/877376/the-six-affordable-housing-brooks-plus-scarpa-architects ;modificado pela autora

Com as estratégias de eficiência energética implantadas o edifício ganhou o certificado LEED platinum, a categoria mais alta das quatro existentes. Além de posicionarem a construção favorável aos ventos dominantes e distribuir, dimensionar aberturas de acordo com a posição do sol, o The

six também possui um sistema de coleta e reuso da água pluvial, utili za celulose reciclada nas fachadas para controle térmico, e claro, a pre sença de placas solares para geração de energia e aquecimento de água.

Figura 40: Corte perspectivado

Fonte: https://www.archdaily.com/877376/the-six-affordable-housing-brooks-plus-scarpa-architects; modificado pela autora

TRABALHO FINAL DE GRADUAÇÃO BARBARA MOURA 45

CONSIDERAÇÕES FINAIS

O projeto possui uma volumetria muito interessante, e com propósito claro: o conforto térmico; e se sai tão bem na empreitada que consegue a melhor certificação da categoria LEED. A escolha dos materiais externos e internos também contribui nesse quesito, além de não impor sensações variadas advindas do uso de cores chamativas, dando espaço para a contribuição individual em cada unidade.

O pátio interno, sendo o receptor principal da luz e da ventilação, é um lugar que poderia ter sido melhor utilizado. Há carência de lugares para sentar ou deitar aproveitando do sol, o foco da reunião dos moradores se tornando então o ambiente fechado da sala de tv e cozinha comunitária. O mesmo pode ser dito do terraço jardim. Talvez haja uma carência também de um ambiente para exercícios físicos, visto que seu público muitas vezes necessita de fisioterapia, e essa vem acompanhada da atividade física.

46 TRABALHO FINAL DE GRADUAÇÃO BARBARA MOURA
Figura 41: Ideações da fachada e fachada final Fonte: https://brooksscarpa.com/the-six

FICHA TÉCNICA

NOME:

Shelter From The Storm

TIPO:

Abrigo temporário

ARQUITETOS:

Holland Harvey Architects

ANO CONCLUSÃO:

2020

LOCALIZAÇÃO:

Londres, Inglaterra, Reino Unido

ÁREA TOTAL:

400m² Internos

Previamente um super-mercado, o abrigo Shelter from the storm( Abrigo contra a chuva) adquire uma poética, resgatando esse ambiente desgastado, abandonado, e o reformulando para abrigar aqueles da sociedade que também se encontram rejeitados. Nesse espaço, ambos ganham uma segunda chance, e aproveitando-se um do outro podem se reapropriar. Com um prazo restritivo, a equipe teve apenas quatro semanas para planejar o espaço e conseguir a aprovação para construir.

TRABALHO FINAL DE GRADUAÇÃO BARBARA MOURA 47
Figura 42: Entrada - cafeteria. Fonte: https://www.archdaily. com/950057/shelter-from-the-storm-holland-harvey-architects

A intenção dos arquitetos era criar um espaço que fosse acolhedor, que transmitisse o sentimento de lar, segundo o arquiteto responsável Jonathan Harvey:

“Tínhamos que entender a situação da pessoa que entra em um abrigo, como hóspede, pela primeira vez. Sensibilidade, domesticidade, e acolhimento foram chave para esse projeto” ( RIBA, journal )

Assim, foram utilizados materiais que fossem familiares, tal qual pastilhas e madeira, e até alguns já existentes no edifício, como o tijolinho à vista. Os elementos estruturais, lajes e pilares, foram deixados sem revestimento, em concreto.

https://www.archdaily.com/950057/shelterfrom-the-storm-holland-harvey-architects

O programa é dividido por sexo, com quartos para homens e mulheres separadamente(Figura 54). No total e no momento presente, o edifício conta com 38 camas. Nos quartos há também espaços individuais para a guarda de pertences.

O abrigo conta com uma cozinha, lavanderia, uma sala para serviços de suporte aos usuários, um espaço para reuniões ou aulas, uma sala de televisão, um jardim coberto e amenidades como uma mesa de sinuca, e computadores em uma área com estantes de livros - uma pequena biblioteca(Figura 54).

A mistura de usos - abrigo e cafeteria - tem a intenção de trazer as pessoas de fora para esse ambiente, ajudando a desestigmatizar esses indivíduos em situação de rua. A entrada do café e a entrada dos moradores são feitas em áreas diferentes, mas se o usuário quiser acessar pelo café não há problema, já que o es-

Figura 43: Entrada cafeteria - recepção. Fonte:
48 TRABALHO FINAL DE GRADUAÇÃO
Figura 44:Entrada exclusiva abrigo. Fonte:https://inovasocial.com.br/solucoes-deimpacto/shelter-from-the-storm-londres/
BARBARA MOURA

paço é essencialmente o mesmo. Como a construção é de uso misto, foram feitas duas análises em planta; uma separando as funções e a outra os ambientes. A entrada do café é feita pela rua do lado direito, enquanto a do abrigo fica na extremidade oposta. No meio da construção, conectando

os dois usos, estão as áreas de convívio público, como o espaço de estudo, e lazer, e a cozinha.

Existe na unidade um pátio jardim que possui janelas em toda a extensão de sua parede norte, maximizando a entrada de sol. Os quartos da ala feminina possuem vista e saída para esse espaço. Na ala exclusiva do abrigo ficam a recepção, a sala para atendimento

assistencial, uma sala de tv, a lavanderia compartilhada, e os banheiros, localizados nesse local para que os recém-chegados, se quiserem, façam sua higiêne pessoal.

Figura 45:Setorização por usos. Fonte: https://www.archdaily.com/950057/ shelter-from-the-storm-holland-harveyarchitects; modificado pela autora Figura 46:Setorização por tipos de espaços. Fonte: https://www.archdaily.com/950057/ shelter-from-the-storm-holland-harvey-architects; modificado pela autora
TRABALHO FINAL DE GRADUAÇÃO BARBARA MOURA 49

Turn static files into dynamic content formats.

Create a flipbook
Issuu converts static files into: digital portfolios, online yearbooks, online catalogs, digital photo albums and more. Sign up and create your flipbook.
01/02 Trabalho conclusão de curso : Centro de acolhimento para pessoas em situação de rua by Barbs M. - Issuu