02/02 Trabalho conclusão de curso : Centro de acolhimento para pessoas em situação de rua

Page 1

Devido a restrição de prazo e de recursos financeiros disponíveis para o projeto, a fachada original foi alterada minimanete, trocando-se os materiais e aproveitando aberturas já existentes para os acessos e janelas ( Figura 52

).

e 56 Figura 47:Corte em isometria. Fonte:https://www.archdaily.com/950057/ shelter-from-the-storm-holland-harvey-architects; modificado pela autora
50 TRABALHO FINAL DE GRADUAÇÃO BARBARA MOURA
Figura 48:Corte em isometria. Fonte:https://www.archdaily.com/950057/ shelter-from-the-storm-holland-harvey-architects; modificado pela autora

A paleta de cores, combinada com a iluminação traz a sensação de aconchego pretendida, e há um equilíbrio em relação a esses dois elementos dependendo do ambiente interno. As áreas de trabalho, como a recepção e a cozinha comunitária possuem bastante iluminação, tanto artificial como a provinda do exterior, enquanto ambientes mais privativos, vide a sala de televisão, já nao possuem tantos pontos lu-

minosos. Dessa forma, não há áreas muito escuras e nem claras demais para o uso pretendidos.

Figura 49: Recepção abrigo.Fonte:https:// streetsmart.org.uk/shelter-from-the-storm/ Figura 50: Recepção abrigo.Fonte:https:// streetsmart.org.uk/shelter-from-the-storm/ Figura 51: Área de refeição café e abrigo. Fonte:https://www.archdaily.com/950057/shelterfrom-the-storm-holland-harvey-architects
TRABALHO FINAL DE GRADUAÇÃO BARBARA MOURA 51
Figura 52: Ilustração área de refeição café e abrigo.Fonte:https://www. archdaily.com/950057/shelter-from-the-storm-holland-harvey-architects

Figura 53: Cortes A e B humanizados.Fonte:https://www. archdaily.com/950057/shelter-from-the-storm-hollandharvey-architects; modificado pela autora

Pela análise dos cortes humanizados não nota-se a presença de desnível entre os ambientes sociais, talvez herança do uso prévio do edifício. Nos desenhos também é possível ver a quantidade e variação nos tipos de luminárias, o que resulta nas qualidades mencionadas anteriormente.

CONSIDERAÇÕES FINAIS

A disposição dos espaços ficou um pouco comprometida pela inserção do uso do café no meio da unidade, separando os blocos dos quartos por exemplo, dos banheiros, que só podem ser acessados atravessando o núcleo de uso misto. Ainda, o conjunto feminino é prejudicado na questão de ventilação e luz natural, possuindo somente uma abertura para o pátio jardim, embora isso se dê talvez pela questão de privacidade necessária ao grupo feminino.

da e tira a sensação, muitas vezes presente em instituições do tipo, de apatia, nada acolhedora.

Figura 54: Cortes C e D humanizados.Fonte:https://www. archdaily.com/950057/shelter-from-the-storm-hollandharvey-architects; modificado pela autora

A solução de entradas diferentes e o uso das cores, materiais e luz entretanto, foi muito bem sucedi-

52 TRABALHO FINAL DE GRADUAÇÃO
BARBARA MOURA

FICHA TÉCNICA

NOME: Dr. George W. Davis Senior Building

TIPO:

Moradia assistencial e Centro comunitário

ARQUITETOS: David Baker Architects

ANO CONCLUSÃO:

2016

LOCALIZAÇÃO:

São Francisco, CA, Estados Unidos ÁREA TOTAL:

1.300m² - Centro comunitário

Servindo tanto como moradia como centro comunitário, o edifício para idosos Dr. George W. Davis é um projeto que visa a implantação de um espaço adequado aos moradores sêniores, onde eles possam experienciar essa fase da vida com dignidade. (ARCHDAILY, 2018). Para atingir esse objetivo, a arquitetura inclui espaços de apoio, diversos locais de encontro e ainda se destaca pelo uso misto, incentivando a relação com pessoas de fora do abrigo. A construção fica em um bairro historicamente ligado à população afro-americana, portanto com fortes influências de suas culturas. Para conservar essa identidade e criar um espaço condizente com os usuários, foram incorporados elementos na arquitetura que remetessem à es-

TRABALHO FINAL DE GRADUAÇÃO BARBARA MOURA 53
Figura 55: Ilustração fachada.Fonte:https:// www.millercomp.com/1751-carroll-st

TRABALHO FINAL DE GRADUAÇÃO BARBARA MOURA

sas raízes, como a forma orgânica do átrio, os revestimentos, a paginação, o paisagismo e as cores. Na fachada a distribuição das cores tem como inspiração o tecido de lama MalianoBògòlanfini.(MCKNIGHT, 2018)

A edificação recebeu mais de 4.000 inscritos para o programa de 120 residências, destacando a demanda crítica por esse tipo de construção no bairro. ( ARCHDAILY, 2018)

Na parte de serviço do projeto, o centro comunitário, tem-se um espaço de reunião, onde há uma mesa de sinunca, cozinha comunitária, e uma vista para o jardim frontal(Figura 66).No centro também se oferecem atividades diversas, como oficinas de arte, cu-

como aliadas na recuperação do senso de independência e valor próprio dos mais velhos. A forma da construção faz um U no terreno, dividindo o volume em duas alas e um bloco central, onde se encontra a maior parte da circulação vertical - escadas e elevadores. No espaço vazio formado pela disposição da arquitetura, foi implantado um pátio descoberto com mesas e cadeiras para refeições ou descontração. (Figura 68)

Figura 56: Fachada Lateral.Fonte:https://www.archdaily.com/903815/drgeorge-w-davis-senior-residence-and-senior-center-david-baker-architects Figura 57: Bogolanfini. Fonte:https:// tdsblog.com/bogolanfini-mali-mudcloth/senior-residence-and-seniorcenter-david-baker-architects
linária e eventuais palestras. Além disso, são realizadas noites de jogos, competições de sinuca, e sessões de jazz a tarde. As refeições servidas no local somam-se em mais de 500 por dia.. Nesse espaço também existem pequenas vitrines, reservadas para o uso dos idosos locais, trazendo oportunidade de renda no mesmo local, além de contribuir para o incentivo à práticas de atividades artesanais, que têm sido demonstradas 54

São 121 apartamentos residenciais, sendo 23 desses reservados aos idosos previamente em situação de rua e dois destinados aos que saíram do regime carcerário. Os apartamentos são divididos em duas tipologias, um e dois quartos, sendo 117 unidades do primeiro e o restante do segundo.

Para tanto, o edifício possui quatro pavimentos, nos quais são distribuídas as unidades, e em cada andar há uma lavanderia comunitária e espaços para socialização.

Na parte térrea do residencial ficam os serviços de apoio, como conselho financeiro e terapia.

Ainda, possuem uma copa privativa, uma sala de ginástica, com aparelhos de academia, e futuramente o espaço receberá também um salão. Para o convívio há uma sala na extremidade sudoeste com uma lareira.

Figura 58:Sala comunitária.Fonte: https://www. archdaily.com/903815/dr-george-w-davis-seniorresidence-and-senior-center-david-baker-architects Figura 59: Oficina.Fonte: https://www.archdaily. com/903815/dr-george-w-davis-senior-residenceand-senior-center-david-baker-architects Figura 60: Pátio interno .Fonte: https://www. archdaily.com/903815/dr-george-w-davis-seniorresidence-and-senior-center-david-baker-architects
TRABALHO FINAL DE GRADUAÇÃO BARBARA MOURA 55
Figura 61:Planta térreo. Fonte: https://www.archdaily.com/903815/dr-george-w-davissenior-residence-and-senior-center-david-baker-architects, modificado pela autora

Os quartos são distribuídos nas duas alas do projeto, utilizando de todo o espaço possível para atender à demanda. A tipologia 2 quartos aparece uma vez por andar. Todas as unidades possuem sacada, e aquelas viradas para o pátio formam um corredor externo que integra o espaço a baixo com o de cima e permite uma maior sensação de comunidade, inclusive pelo limite de pavimentos.

O edificio conta também com um subsolo, onde fica o estacionamento com 57 vagas. O prédio possui esquadrias metálicas em preto, com janelas de abrir; o interior possui três tipos diferentes de forro: em madeira, pvc modular, e um com isolamento acústico, o material não foi identificado. Os pisos são de vínilico, mas variam; às vezes imitando madeira, e outras com padrões seguindo o conceito do projeto.

Figura 62:Planta pavimento tipo. Fonte: https://www.archdaily.com/903815/dr-george-wdavis-senior-residence-and-senior-center-david-baker-architects, modificado pela autora Figura 63:Fonte:https://www.archdaily. com/903815/dr-george-w-davis-senior-residenceand-senior-center-david-baker-architects
56 TRABALHO FINAL DE GRADUAÇÃO BARBARA MOURA
Figura 64:Fonte: https://www.archdaily.com/903815/ dr-george-w-davis-senior-residence-and-senior-centerdavid-baker-architects, modificado pela autora

CONSIDERAÇÕES FINAIS

A atenção prestada ao contextoum bairro historicamente ligado a população negra estadunidenseé um fator que se destaca e acaba sendo o ponto principal do projeto, definindo o conceito, os materiais, a forma da edifi-cação e o programa. É um projeto idealizado com fortes convicções, e isso se mostra na arquitetura.

O programa, que mistura usos e ainda atende aos idosos nos dois, dá vitalidade ao lugar, elemento importante principalmente nesse tipo de arquitetura, para esse público.

A disposição dos quartos procura não prejudica-los em ventilação e entrada de luz, usando do átrio para tanto. Esse mesmo elemento ainda proporciona a

existência das varandas externas que integram o espaço ainda mais como ja dito anteriormente. A distribuição dos ambientes no térreo, na ala residencial entretanto, ficam um pouco perdidas. São vários espaços aparentemente só para reuniões hiperdimensionados. O foco nesse pavimento parece ser na ala do centro comunitário, e os residentes ficam um pouco esquecidos. Como não foram achadas informações mais completas dos ambientes de apoio, não é possível comentar a respeito dessa área. Outro ponto a salientar é a inexistência de banheiros acessíveis nos quartos, sendo que esses existem no térreo.

Figura 65:Fachada principal. Fonte: https://www.archdaily.com/903815/drgeorge-w-davis-senior-residence-and-senior-center-david-baker-architects,
TRABALHO FINAL DE GRADUAÇÃO BARBARA MOURA 57

DIAGNÓSTICO DA ÁREA E ANÁLISE AMBIENTAL

5.1 A cidade e o entorno imediato

O projeto a ser desenvolvido fica na cidade de Uberlândia, em Minas Gerais, região do triângulo mineiro. A cidade possui uma população estimada de 706.597 pessoas( IBGE, 2021) é a segunda mais populosa do estado, ficando atrás somente da capital Belo Horizonte. Uberlândia é dividida em cin-

co setores, quatro compostos pelas direções cardeais e uma zona central.

A área de implantação está situada nessa última, e ocupa um quarteirão inteiro, fazendo as esquinas da Av. Brasil, e da Av. Monsenhor Eduardo.

Figura 66: Mapa Brasil. Fonte:https://www.mapasparacolorir.com.br/mapa-brasil.php

Figura 67: Mapa Minas Gerais. Fonte: https://alago.org. br/hotsite.asp?id=18 modificado pela autora

Figura 68: Mapa Uberlândia. Fonte: https://www.mapasparacolorir.com. br/mapa-municipio-mg-uberlandia.php modificado pela autora

Foram consideradas para o projeto regiões próximas a centros de comércio, linhas de transporte público, unidades de atendimento de saúde e principalmente áreas de concentração da população em situação de rua no município. Este terreno foi escolhido devido a proximidade com a região mais significante em comércio e serviços de Uberlândia; Fica a três quarteirões do terminal central de ônibus, que além de fornecer as frotas de ônibus mais usadas da cidade, possui restaurantes, lojas, lotéricas e outros serviços. Além disso, o sítio situa-se em frente à praça Sergio Pacheco, um dos locais de maior concentração das pessoas em situação de rua na cidade.

TRABALHO FINAL DE GRADUAÇÃO BARBARA MOURA 59
Figura 69:Área de entorno do projeto. Fonte: Mapa levantamento planialtimétrico Prefeitura Uberlândia modificado pela autora

A área fica próxima à divisa entre a Zona central 1 - ZC1 e a zona mista, se enquadrando na primeira. Esse zoneamento permite todas as tipologias de residência, inclusive habitações de interesse social, e o uso misto. Entretanto, equipamentos da categoria C3, médio e grande porte, e C4 são proibidos. Além disso, os S3, E2, E3 e em frente, e I2 e I3 também

não são permitidos. Entretanto, como o terreno tem fachadas voltadas para os setores de vias estruturais, arteriais e coletoras, é possível utilizar as permissões menos restritivas dessas zonas, a depender da fachada principal.

No zoneamento ZC1 as restrições são as seguintes:

●Taxa de Ocupação Máx: 60%

●Coeficiente de aproveitamento

max: 4,5%

●Afastamento frontal min: Facultativo

●Afastamento lateral e de fundo min: 1,5(m)

●Testada mínima: 10(m)

●Área mínima do lote: 250m²

Figura 70:Concentração de pessoas em situação de rua na cidade de Uberlândia. Fonte: Lemes, Juliana. 2019. Figura 71:Mapa de zoneamento de Uberlândia. Fonte: Prefeitura de Uberlândia, modificado pela autora
60
Tabela 2: Coeficientes por zonas. Fonte: Prefeitura de Uberlândia, modificado pela autora TRABALHO FINAL DE GRADUAÇÃO BARBARA MOURA

Esses coeficientes, entretanto, possuem pequenas ressalvas; no TO tem-se que são permitidos 80% nos 3 primeiros pavimentos acima do térreo, para comércios e serviços. Já no tópico afastamento frontal, a lei permite que esse não seja feito em todos os usos exceto os de residência. Se a fachada voltada para R. Roosvelt de Oliveira for considerada como principal, os coeficientes a serem utilizados mudarão então para os da zona de vias coletoras, constados na tabela 03.

Foram analisadas também as vistas do terreno, que dão para as avenidas Brasil e Monsenhor Eduardo e as ruas Roosevelt de Oliveira e Dos Pereiras, consecutivamente: fachada lateral esquerda e direita, fachada frontal e fachada posterior. Percebe-se a presença de algumas árvores muito antigas, que fornece bastante sombra, e com certeza ajudam na climatização desse pedaço do bairro pois a brisa é bem perceptível no local.

Tabela 3: Coeficientes por zonas. Fonte: Prefeitura de Uberlândia, modificado pela autora Figura 72:Vista fachada lateral esquerda. Fonte: Acervo da autora, 2022 Figura 74:Vista fachada lateral esquerda. Fonte: Acervo da autora, 2022 Figura 75:Vista fachada frontal. Fonte: Acervo da autora, 2022 Figura 76:Vista fachada lateral direita. Fonte: Acervo da autora, 2022 Figura 77:Vista fachada posterior. Fonte: Acervo da autora, 2022 Figura 78:Vista fachada lateral direita. Fonte: Acervo da autora, 2022 Figura 79:Vista fachada posterior. Fonte: Acervo da autora, 2022
TRABALHO FINAL DE GRADUAÇÃO BARBARA MOURA 61
Figura 73:Vista fachada frontal. Fonte: Acervo da autora, 2022

Além do fácil deslocamento, e da proximidade com serviços diversos, a escolha do local também foi feita levando em consideração os existentes abrigos na cidade, que após análise percebe-se que são, em sua maioria, localizados em bairros periféricos, com acessos difíceis, a não ser para quem já habita a região.

Terreno

Serviços de saúde

Pontos de interesse - Alimentação, transporte, cultura

Áreas verdes - parques e praças

Cursos técnicos, serviços profissionalizantes

Serviços de acolhimento para pessoas em situção de rua

Figura 80:Mapa pontos de interesse e serviços do tipo acolhimento na cidade de Uberlândia. Fonte: https:// snazzymaps.com/ modificado pela autora
62 TRABALHO FINAL DE GRADUAÇÃO
MOURA
BARBARA

5.2 MAPAS DE DIAGNÓSTICO

Fonte:

Prefeitura

Com a visualização do perfil fundiário nota-se uma divisão do solo às vezes bem regular, com lotes de 10x25 em sua maioria, e outras um tanto caóticas, talvez resultados de unificações, processo comum na área devido ao seu caráter comercial.

Prefeitura Uberlândia modificado pela

A malha viária no entorno é feita em grelha, ortogonal, exceto na quadra confrontante a Av. Monsenhor Eduardo, que a estreita no decorrer da via.

0 50m 100m 150m 200m 0 50m 100m 150m 200m
Área de projeto Área de projeto Vias Quadras Figura 81: Mapa de perfil fundiário Mapa levantamento planialtimétrico Uberlândia modificado pela autora Figura 82: Mapa figura-fundo malha viária Fonte: Mapa levantamento planialtimétrico autora
TRABALHO FINAL DE GRADUAÇÃO BARBARA MOURA 63

Na área escolhida é notável a predominância dos espaços privados, possuindo apenas duas praças dentro do raio de 500 metros, a principal sendo a Sérgio Pacheco. O entorno é formado por vias locais, coletoras, uma de transposição e arterial e diversas estruturais, que são as mais

utilizadas da cidade, como as Av. Afonso Pena, João Pinheiro e Floriano Peixoto. A Av. Monsenhor Eduardo, arterial, que faz divisa com o terreno escolhido, tem um corredor de ônibus que leva até o bairro Jardim Umuarama e dá lugar a uma feira aos domingos. A avenida do outro lado do sítio, a Brasil, leva até o bairro Umuarama, onde ficam o hospital do câncer, o hospital da Universidade Federal e um campus dela.

0 50m 100m 150m 200m 0 50m 100m 150m 200m
Figura 83:Mapa espaços públicos e privados Fonte: Mapa levantamento planialtimétrico Prefeitura Uberlândia modificado pela autora Figura 84:Mapa sistema viário. Fonte: Mapa levantamento planialtimétrico Prefeitura Uberlândia modificado pela autora
Arterial Transposição Estrutural Local Área projeto Coletora Público 64 TRABALHO FINAL DE GRADUAÇÃO
MOURA
Privado
BARBARA

Fonte:

Prefeitura

Construído Sem edificações

A região quase não possui terrenos vazios, provavelmente devido a grande movimentação comercial. Possui construções de tamanho variados, porém a maioria ocupa somente um terreno regular, de 10x20, ou 12x25. Observa-se pelo mapa de gabarito a predominân-

BARBARA MOURA

Até 10 pavimentos

Fonte:

Prefeitura Uberlândia modificado pela autora

cia de edificações térreas, seguidas por aquelas de até 3 pavimentos, normalmente misturando usos. São poucos os espaços construídos que excedem 10 pavimentos e os que existem são residenciais.

0 50m 100m 150m 200m 0 50m 100m 150m 200m
Figura 85:Mapa espaços construídos Mapa levantamento planialtimétrico Uberlândia modificado pela autora Figura 86:Mapa gabarito - alturas Mapa levantamento planialtimétrico
TRABALHO FINAL DE GRADUAÇÃO
Térreo Até 4 pavimentos Mais de 10 pavimentos Área projeto 65

Fonte:

Prefeitura

O uso mais difundido no entorno são os comércios e serviços, distribuídos mais nas vias arteriais, estruturais e coletoras. A maioria são pequenos, no máximo S2 e C2, justamente pois o zoneamento não permite as classificações do tipo 3. Existem também bastantes residências, como ja visto anteriormente térreas. O uso misto - comercio e residência- ou residência serviço, se encontram igualmente nas vias coletoras e estruturais, e não costumam exceder os 3 pavimentos acima do térreo. As instituições são mais representadas pelas igrejas, embora as de educação sigam em seguida. É notável também a existência de edificações sem uso aparente, e várias placas de aluga-se ou vende-se, em quantidade maior do que anos passados, fato que pode ser atribuído a pandemia do vírus COVID-19.

0 50m 100m 150m 200m Residencial Misto Institucional Sem uso Terreno baldio Área projeto Comercial/Serviço
Figura 87: Mapa uso do solo Mapa levantamento planialtimétrico Uberlândia modificado pela autora

5.3 PERFIS VIÁRIOS

Analisando os perfis viários nota-se que todas as vias são de mão única, com faixas veiculares por vezes menores do que o recomendado e calçadas também estreitas, mal suportando uma cabine de ônibus e a passagem de pedestres. Contudo, todas possuem arborização e lixeiras, embora as espécies de vegetação não sejam adequadas pois são muitas as que as raízes danificaram o passeio. Além do mais, por se tratar de uma área mais antiga, percebe-se a existência de um calçamento de rua em pedra, tampado pelo asfalto já desgastado, o que acarreta em diferenças nos meios-fios das calçadas.

Figura 88:Av. Monsenhor Eduardo Fonte: Elaborado pela autora Figura 89: R. Dos Pereiras Fonte: Elaborado pela autora Figura 90: Av. Brasil. Fonte: Elaborado pela autora
TRABALHO FINAL DE GRADUAÇÃO BARBARA MOURA 67
Figura 91: R. Roosevelt de Oliveira. Fonte: Elaborado pela autora

5.4 ÁNALISE BIOCLÁMTICA

Em Uberlândia o clima predominante é o tropical, portanto tem-se um verão chuvoso, e um inverno bem seco.

com períodos de máximo e mínimo de 78% e 37%, enquanto a temperatura varia de 29º C a 20ºC. As médias mensais ficam mais baixas devido à queda de temperatura durante a noite.

Fonte: http://www.mme.gov.br/projeteee

Durante o dia os ventos predominantes veem do nordeste, enquanto à noite eles passam a vir do oeste. A umidade relativa do ar fica em média 57,86%,

Fonte: http://www.mme.gov.br/projeteee

0 100cm 200cm
Figura 92: Ventos dominantes em Uberlândia. Figura 93: Gráfico de temperaturas em Uberlândia.
68 TRABALHO FINAL DE GRADUAÇÃO BARBARA MOURA
Figura 94: Condicionantes ambientais no terreno. Fonte: Elaborado pela autora

O estudo solar foi inicialmente feito com as 4 fachadas do terreno, entretanto, como duas fachadas do edificio não coincidiam com as do sítio, foi necessário analisar a insolação nas outras fachadas do projeto arquitetônico. Com o estudo é possível a visualização da incidência dos raios solares por todo o período do dia e durante todo o ano, permitindo assim propostas para o conforto térmico.

Na fachada Sudeste só haverá sol da manha durante o ano inteiro, desde o amanhecer às 6:00 até 12:00. Naquelas viradas para nordeste o sol também incide a manha inteira todos os dias, e ainda parte da tarde em alguns períodos do ano até quase 16:00.

À noroeste o sol da tarde predomina, presente em todo o ano, mas ainda há incidência do sol a partir das 10:00 no inverno.Na fachada sudeste os raios solares são exclusivamente vespertinos, indo do 12:00 até o pôr do sol todos os dias.

Figura 95: Fachada Sudeste no terreno. Fonte: Elaborado pela autora Figura 96: Fachada Nordeste no terreno. Fonte: Elaborado pela autora Figura 97: Fachada Noroeste no terreno. Fonte: Elaborado pela autora
TRABALHO FINAL DE GRADUAÇÃO BARBARA MOURA 69
Figura 98: Fachada Sudoeste no terreno. Fonte: Elaborado pela autora

Nas fachadas que não são paralelas às do terreno, sudoeste e norte, respectivamente, terá incidência solar exclusivamente na parte da tarde, durante todo o ano, enquanto na segunda o sol incindirá em ambos os períodos do dia com exceção dos meses Dezembro, Janeiro e final de Novembro.

5.5 TOPOGRAFIA

Para começar a projetar a edficicação foi feito o estudo da topografia do sítio, no qual nota-se a presença de apenas uma curva de nível passando pelo terreno.

A partir dela, à direita, há aclive; para melhor entendimento, adotou-se essa curva como o nível +1,00 em metros.

Além da análise em planta, foram feitos dois cortes no sítio, um transervesal e um longitudinal.

Dessa forma, percebe-se a suave aclividade do terreno, sendo quase efetivamente plano.

0 10m 5m 0 10m 5m
Figura 99: Fachada Sudoeste da edificação. Fonte: Elaborado pela autora Figura 100: Fachada Norte da edificação. Fonte: Elaborado pela autora Figura 101: Planta guia dos cortes no terreno, escala 1:2000. Fonte: Elaborado pela autora Figura 102: Corte transversal. Fonte: Elaborado pela autora Figura 103: Corte longitudinal, escala. Fonte: Elaborado pela autora
70
TRABALHO FINAL DE GRADUAÇÃO BARBARA MOURA

O PROJETO

"Que eles possam se sentir livres dentro daquele espaço sem sacrificarsegurança,conforto,ousuaprópriaidentidade."

6.1 A proposta

Diante da situação apresentada no desenvolvimento téorico, especialmente levando em consideraçao a precariedade dos lugares destinados a esse público em Uberlândia, percebe-se a necessidade de implantação de um local que possa atender de fato, da melhor maneira possível, as mais diversas demandas desse público. Assim surge o projeto Estação: Lar, um centro de acolhimento para as pessoas em situalção de rua. O projeto pretende oferecer diversas modalidades de uso de seu espaço, para atender a maior parcela possível desse grupo tão distinto. Assim, há espaço para aqueles que desejarem permanecer por um determinado

período, com acompanhamento assistencial, fazendo dali uma morada temporária, assim como para os que preferem passar o dia e ainda aos que precisem somente da estadia noturna. A ideia geral do projeto é proporcionar um local de segurança, quer ele seja para vivência esporádica ou semipermanente, que seja agradável, que respeite as diferenças e a privacidade de cada indivíduo, e que ofereça apoio pisco-social de fato. Um lugar de pertencimento, aonde eles possam se sentir livres sem sacrificar segurança, conforto, ou sua própria identidade. Para tanto, foi elaborado um programa de necessidades, possível a partir da

pesquisa bibliográfica, que levou ao estudo de manchas, à setorização inicial, influenciadas também pelo conceito e partidos do projeto.

O programa(Fig.104) conta com ambientes gerais de serviço e administração, como vestiários, lavanderia, sala de reuniões, e recepção. Já dentre os específicos estão uma bilbioteca, oficinas - para desenvolvimento de atividades artesanais - um canil de uso noturno, permitindo aos usuários ficarem com seus animais de estimação, salas de assistência psicológica, financeira e jurídica, e salas de convivência separadas por sexo.

Devido ao conceito e partido adotados, o edifício foi divido em 3 blocos, afastados de si pelo centro,

resultando em uma área aberta de frente ao domínio público. No contexto desse terreno, criou-se então uma quadra aberta, permitindo o fluxo livre.

Do total de blocos, 2 são térreos, enquanto o que restou foi verticalizado para abrigar os quartos e as salas de atendimento. Devido a fragmentação da arquitetura, as divisões dos ambientes para cada bloco teve o intuito de não criar "setores", misturando portanto atividades.

Em razão da tipologia social do projeto, e do terreno escolhido, também foram pensadas estratégias para a viabilidade desse plano,

TRABALHO FINAL DE GRADUAÇÃO
72
BARBARA MOURA

tal como o estacionamento subterrâneo que poderia servir como rotativo, e um espaço reservado no terreno para um futuro empreendimento, como um edifício vertical de uso misto.

Um elemento relevante no projeto, desde os estudos de caso, foi a mistura de usos. Além de ajudar na vitalidade da vida urbana ao redor, essa conjunção pode servir como facilitador para oportunidades de trabalho, de escolarização, e de socialização, fazendo dois públicos distintos se confrontarem, interagirem, tornando a vida também mais rica. Por isso nessa proposta foi utilizado um restaurante como conciliador , ponte, entre um público bem específico e o geral. A cozinha servirá refeições para o instituto, e também para a população no período do almoço. No mesmo bloco, aproveitando a entrada pública, propô-se também um espaço de

galerias, para aluguel. e eventuais amostras do que os próprios usuários do abrigo produzem nas oficinas, que ficam ao lado e de frente ao restaurante.

Figura 104: Programa de necessidades Fonte: Elaborado pela autora

TRABALHO FINAL DE GRADUAÇÃO BARBARA MOURA 73
A área totalizada da edificação, contanto com os pavimentos tipos que se repetem, é de 4.990m2.

6.2 Conceito e Partido

Devido a natureza da situação do público alvo desse projeto, surgiram as ideações acerca do conceito de equilíbiro. Como notado na pesquia teórica, o viver dessa parcela da população é permeado por contradições que tonram a abordagem frente a suas adversidades complicada. Por um lado, se tornam invísiveis, não-pessoas em não lugares, enquanto por outro, estão híper-vísiveis, completamente expostas e sem privacidade no meio urbano. Ficaram apenas consigo mesmas. Por essas e tantas outras questões, foi que a ideia de harmonia permeou o trabalho; é necessário ter um equílibrio proficiente a fim de evitar tratar em extremos esse grupo, com preconceito, ou a total vitimização.

Auxiliando no desenvolvi-

mento do projeto, foi tomado grande partido da praça, como lugar de encontro, passagem, vivências esporádicas e claro, aquelas permanentes. Procurou-se trazer esse espaço com um elemento a mais de segurança para quem os usufrui de maneira mais acentuada. A praça como articulador social, espaço ambiental importante mais moradia, sem, assim se espera, todos os danos que o morar na rua traz. Além disso o espaço em frente a praça guarda uma memória do que um dia foi seu próposito. Havia ali, onde foi colocado o projeto, os galpões da estação ferroviária mogiana, uma das mais famosas do país. Infelizmente desativada em favor do transporte rodoviário, a estação parou de transportar passageiros, os galpões foram retirados, e hoje

Figura 105: Conceito diagrama Fonte: Elaborado pela autora Figura 106: Inauguração Praça Sérgio Pacheco. Fonte: https://www.museuvirtualdeuberlandia.com.br/ site/inauguracao-da-praca-sergio-pacheco-1976/ Figura 107: Trilhos da Mogiana. Fonte: https://docplayer. com.br/49734678-Praca-sergio-pacheco-arqueologiada-paisagem-da-memoria-ao-tangivel.html
TRABALHO FINAL DE GRADUAÇÃO BARBARA MOURA 74

ali não resta nada que remeta a ela. Tem-se a esperança, portanto, um tanto poética, de que ao ocupar esse espaço os usuários possam manter viva não a memória da estação de ferro, dos trilhos e do carvão, mas sim do que a mogiana proporcionou, que eles possam trazer de volta o sentimento. De passagem, de caminho, de chegada, de partida, de encontros, e que tudo que essa estação proporcionou possa se refletir no que esse projeto permita a eles.

Figura 108: Estudo de manchas. Fonte: Elaborado pela autora
75 TRABALHO
FINAL DE GRADUAÇÃO BARBARA MOURA
SERVIÇO 32,3% 14,7% INSTITUCIONAL DE USO LIVRE ADMINISTRATIVO LAZER EXTERNO 11,7% 41%
Figura 109: Fluxograma.
TRABALHO FINAL DE
MOURA 76
Fonte: Elaborado pela autora
GRADUAÇÃO BARBARA

6.3 Modificações topográficas

Devido à presença de apenas uma curva de nível no terreno, e sendo essa em um extremo do sítio, optou-se por nivelar as 3 edficações pelo ponto mais alto - o da Av. Brasil. Iniclamente, o intuito era de deixar a área aberta em relevo natural, porém com a implementação do estacionamento subterrâneo criou-se um platô contínuo. Pela rua dos pereiras, ao fundo, fez-se a entrada do estacionamento e o flixo de carga e descarga do restaurante, por isso o nível adotado foi de acordo com o local de entrada desses veículos, em um ponto mais baixo, resultando na única parte do projeto com corte do terreno natural.

CORTE BB

ESCALA 1:600

CORTE AA

ESCALA 1:600

Figura 110: Corte bb terreno modificado.

Fonte: Elaborado pela autora

Figura 111: Corte aa terreno modificado.

Fonte: Elaborado pela autora

Figura 112: Planta da topografia alterada.

Fonte: Elaborado pela autora

0 10m 5m GSEducationalVersionGSEducationalVersion B B A A
Muro de arrimo Aterro Corte Terreno com topografia original 77 TRABALHO FINAL DE GRADUAÇÃO
MOURA
BARBARA

6.4 Plantas técnicas

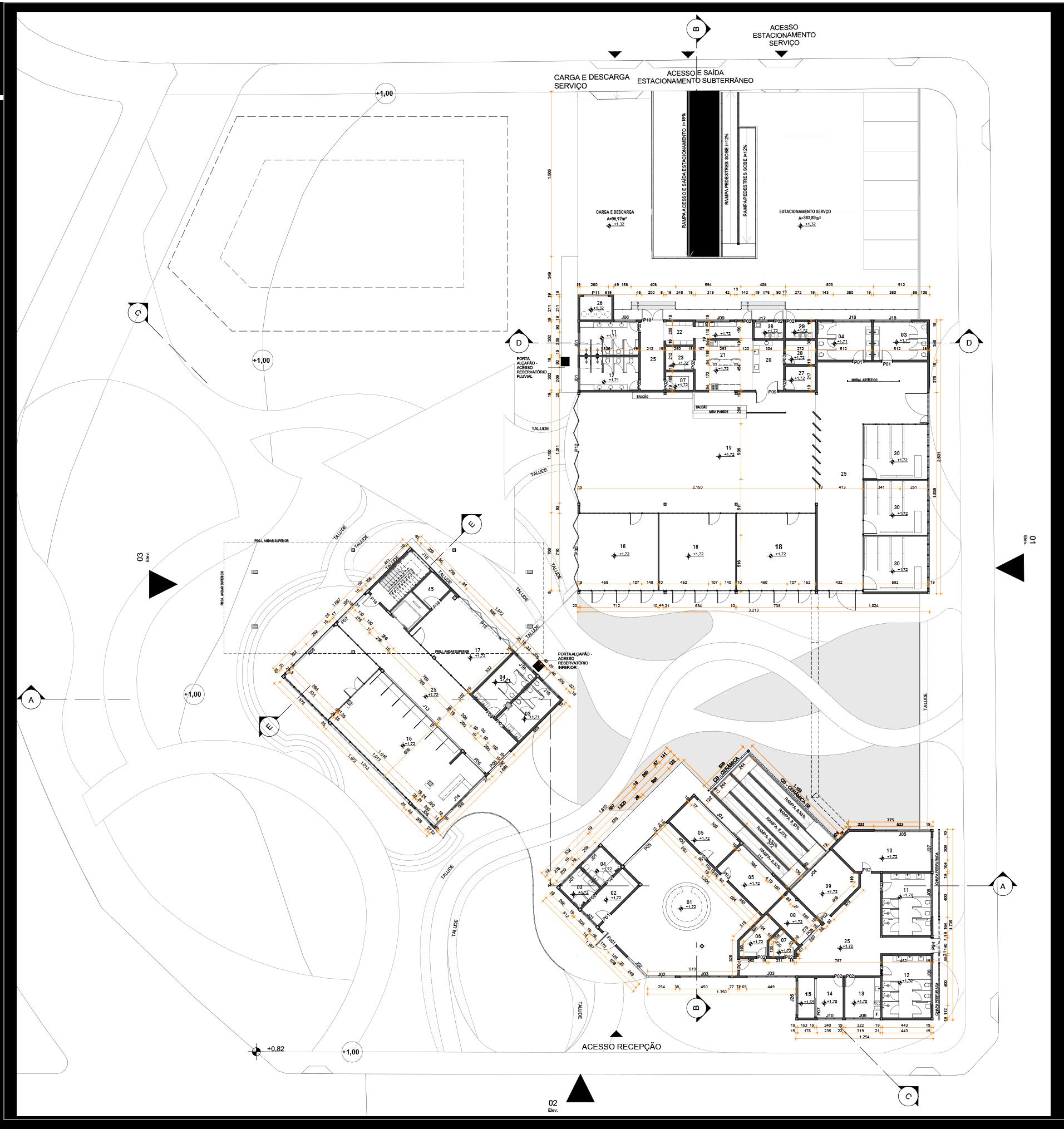
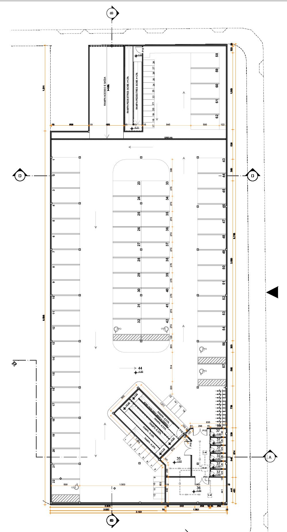
0 10m 5m 0 10m 5m PLANTA PAVIMENTO TÉRREO PLANTA PAVIMENTO SUBSOLO
Figura 113: Planta técnica pav. térreo. Fonte: Elaborado pela autora
TRABALHO FINAL DE GRADUAÇÃO BARBARA MOURA 78
Figura 114: Planta técnica pav. subsolo. Fonte: Elaborado pela autora
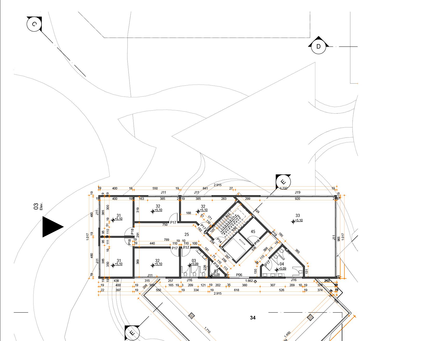
0 10m 5m 0 10m 5m PLANTA 2 PAVIMENTO
PLANTA TIPO - QUARTOS X4 Figura 115: Planta técnica 2 pavimento Fonte: Elaborado pela autora
79 TRABALHO FINAL DE GRADUAÇÃO BARBARA MOURA
Figura 116: Planta técnica 3 pavimento, tipologia 4x repete. Fonte: Elaborado pela autora
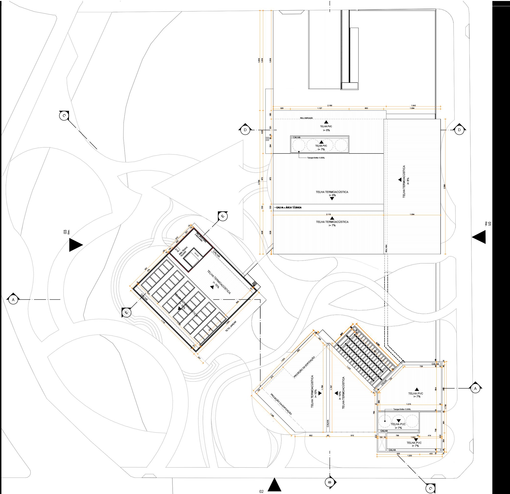
PLANTA DE COBERTURA 0 10m 5m
TRABALHO FINAL DE GRADUAÇÃO BARBARA MOURA 80
Figura 117: Planta técnica cobertura. Fonte: Elaborado pela autora

6.5 Cortes

CORTE B 0 5m
Figura 118: Corte bb
81 TRABALHO FINAL DE GRADUAÇÃO BARBARA MOURA
Fonte: Elaborado pela autora
CORTE D CORTE E 0 5m 0 5m
Figura 119:Corte EE Fonte: Elaborado pela autora
TRABALHO FINAL DE GRADUAÇÃO BARBARA MOURA 82
Figura 120: Corte DD Fonte: Elaborado pela autora
CORTE A 0 5m CORTE c 0 5m
Figura 121: Corte CC. Fonte: Elaborado pela autora
83 TRABALHO FINAL DE GRADUAÇÃO BARBARA MOURA
Figura 122: Corte AA. Fonte: Elaborado pela autora
PLANTA DE implantação 0 10m
5m Figura 123: Planta de implantação.
TRABALHO FINAL DE GRADUAÇÃO BARBARA MOURA 84
Fonte: Elaborado pela autora

6.6 Plantas humanizadas

PLANTA 2 pavimento 0 5m PLANTA 3 pavimento tipo 4x 0 5m Figura 124: Planta humanizada 2 pavimento. Fonte: Elaborado pela autora
85 TRABALHO FINAL DE GRADUAÇÃO BARBARA MOURA
Figura 125: Planta humanizada pavimento tipo. Fonte: Elaborado pela autora

6.7 Planta de paisagismo

Plinia caulifloraJabuticabeira

Tabebuia roseoalba - Ipê branco

Árvores existentes

Tabebuia ochracea - Ipê amarelo

Lagerstroemia indicaResedá

Bauhinia forficata - Pata de vaca

Schizachyrium microstachyum+ Melissa officinalis

Senecio brasiliensis

Schizachyrium microstachyum+ Pelargonium graveolens

Pennisetum villosum + Salvia

Rosmarinus

Mentha

Pennisetum villosum + Hemerocallis x hybrida

Borreria capitata+ Melissa officinalis

Hemerocallis x hybrida + Salvia

Rosmarinus

Schizachyrium microstachyum+ Borreria capitata

Pennisetum villosum + Strelitzia reginae

5m
0
TRABALHO FINAL DE GRADUAÇÃO BARBARA MOURA 86
Figura 126: Planta de paisagismo. Fonte: Elaborado pela autora

REFERÊNCIAS

ARAUJO, G. A. D. Do corpo à cidade: Acolhimento para população de rua. Tese(Graduação) — Departamento de Arquitetura e Urbanismo, Universidade Federal de Uberlândia, 2019.

ARCHDAILY. Dr. George W. Davis Senior Residence and Senior Center / David Baker Architects. Disponível em: https://www.archdaily.com/903815/dr-georgew-davis-senior-residence-and-senior-center-david-baker-architects. Acesso em: 19 abr. 2022.

ARCHDAILY. Shelter From The Storm by Holland Harvey Architects. Disponível em: <https://www.archdaily.com/950057/shelter-from-the-storm-hollandharvey-architects>. Acesso em: 19 abr. 2022.

ARCHITECTS JOURNAL. Shelter From The Storm by Holland Harvey Architects. Disponível em: https://www.architectsjournal.co.uk/buildings/shelter-fromthe-storm-by-holland-harvey-architects. Acesso em: 19 abr. 2022.

BOBBIO, N. A era dos direitos. Rio de Janeiro (RJ): Elsevier, 2004.

BRASIL. Constituição da República Federativa do Brasil: promulgada em 5 de outubro de 1988. 1988. Disponível em: http://www.planalto.gov.br/ccivil_03/ constituicao/constituicaocompilado.htm. Acesso em: 14 abr. 2022.

BRASIL. Lei no 8.742. LEI ORGÂNICA DA ASSISTÊNCIA SOCIAL. . 8 dez. 1993.

BRASIL. Resolução nº 109, de 11 de Novembro de 2009. Aprova a Tipificação Nacional de Serviços Socioassistenciais. Diário Oficial da União. Brasília , n.225, 2009.

BRASIL. Decreto No 7.053. Política Nacional para a População em Situação de Rua. . 23 dez. 2009.

BROOKS + SCARPA. The Six / Brooks + Scarpa Architects. Disponível em: https://www.archdaily.com/877376/the-six-affordable-housing-brooks-plus-scarpaarchitects. Acesso em: 18 abr. 2022.

TRABALHO FINAL DE GRADUAÇÃO BARBARA MOURA
88

BURSZTYN, M. et al. No meio da rua. Rio de Janeiro, Brazil: Garamond, 2000.

CRUZ, A. I. A.; GOMES, G. F. M. A FUNÇÃO SOCIAL DA ARQUITETURA: ACOLHIMENTO PARA MORADORES EM SITUAÇÃO DE RUA. Ourinhos: Faculdades Integradas de Ourinhos - FIO/FEMM, 2018.

FRANÇA. Declaração dos direitos do Homem e cidadão, 1789. Disponível em: <https://www.ufsm.br/app/uploads/sites/414/2018/10/1789.pdf>. Acesso em: 10 abr. 2022

GREEN, M. Inside San Francisco’s Newest, Hotly Contested Navigation Center. Disponível em: <https://www.kqed.org/news/11801074/inside-san-franciscosnewest-hotly-contested-navigation-center>. Acesso em: 10 abr. 2022.

HENLEY, J. “It’s a miracle”: Helsinki’s radical solution to homelessness. Disponível em: <https://www.theguardian.com/cities/2019/jun/03/its-a-miraclehelsinkis-radical-solution-to-homelessness>.

MARX, K. Manuscritos econômicos-filosóficos. Tradução: Jesus Ranieri. 1. ed. [s.l.] Boitempo, 2004.

MARX, K. O capital. 2. ed. [s.l.] Boitempo, 2011. v. 1

MELO, T. H. D. A. G. A Rua e a Sociedade: articulações políticas, socialidade e a luta por reconhecimento da população em situação de rua. Programa de PósGraduação em Antropologia social—Curitiba: UFPR, 2011.

MENDES, K. T.; RONZANI, T. M.; PAIVA, F. S. DE. POPULAÇÃO EM SITUAÇÃO DE RUA, VULNERABILIDADES E DROGAS: UMA REVISÃO SISTEMÁTICA. Psicologia & Sociedade, v. 31, p.15 , 2019.

MOURA JR, J. F.; XIMENES, V. M.; SARRIERA, J. C. Práticas de discriminação às pessoas em situação de rua: histórias de vergonha, de humilhação e de violência em Fortaleza, Brasil. Revista de Psicología, v. 22, n. 2, p. 18, 1 jan. 2013.

TRABALHO FINAL DE GRADUAÇÃO BARBARA MOURA
89

NATÁLIO, F. Pandemia faz dobrar o número de pessoas em situação de rua em Uberlândia. Disponível em: <https://diariodeuberlandia.com.br/ noticia/28526/pandemia-faz-dobrar-numero-de-pessoas-em-situacao-de-rua-em-uberlandia>. Acesso em: 22 abr. 2022.

NOGUEIRA, F. DA G. P. HÓSPEDES INCÔMODOS: ESTUDO SOBRE MORADORES DE RUA NO HOSPITAL DE EMERGÊNCIA. MESTRE EM SERVIÇO SOCIAL—Rio de Janeiro, Brazil: PONTIFÍCIA UNIVERSIDADE CATÓLICA DO RIO DE JANEIRO, 4 set. 2008.

ORGANIZAÇÃO DAS NAÇÕES UNIDAS, O.-. Declaração Universal dos Direitos Humanos. Comunicação & Educação, v. 0, n. 3, p. 13, 30 ago. 1995.

PING, S. L.; MASSARI, C. T.; COSTA, S. L. DA. Famílias em situação de rua: perspectivas de trabalhadores e usuários do suas sobre proteção social e guarda familiar. Pesquisas e Práticas Psicossociais. p. 1–20, 2018.

PLEACE, N. Effective Services for Substance Misuse and Homelessness in Scotland: Evidence from an International Review. Scottish Government Social Research. p. 130, 2008.

ROCHA, C. M.; EUZÉBIO, C. A. Relatos e memórias dos moradores de rua: estudos sobre qualidade de vida, políticas públicas e lazer para a população em situação de rua da cidade de Criciúma/SC. Motrivivência, v. 0, n. 41, p. 258–268, 26 nov. 2013.

SAGI. População em situação de rua no Brasil: o que os dados revelam? [s.l: s.n.].

SAWAIA, B. et al. As artimanhas da exclusão. 14. ed. Petrópolis, Rio de Janeiro: Vozes, 2016.

SCHUCH, P. et al. A rua em movimento. 1. ed. Belo Horizonte, Minas Gerais: Didática Editora do Brasil, 2012.

SILVA, P. V. P. M. PEDRO VICTOR PLACIDES MACHADO SILVA. [s.l: s.n.].

SIQUEIRA, D. P.; PICCIRILLO, M. B. Direitos fundamentais: a evolução histórica dos direitos humanos um longo caminho. Disponível em: <https:// ambitojuridico.com.br/cadernos/direito-constitucional/direitos-fundamentais-a-evolucao-historica-dos-direitos-humanos-um-longo-caminho/>. Acesso em: 90

TRABALHO FINAL DE GRADUAÇÃO BARBARA MOURA

10 abr. 2022.

SOTERO, M. Vulnerabilidade e vulneração: População de rua, uma questão ética. Revista Bioética. v. 19, p. 799–817, 2011.

STRAPASSON, K.; PAMPLONA, D. A. O DIREITO EM CONTRADIÇÃO: direitos humanos, atuação estatal e população em situação de rua. Revista Políticas Públicas, v. 18, n. 2, p. 439, 2 fev. 2015.

THE SIX DISABLED VETERAN HOUSING LOS ANGELES, CA. Disponível em: <https://brooksscarpa.com/the-six>. Acesso em: 18 abr. 2022.

TRABALHO
FINAL DE GRADUAÇÃO BARBARA MOURA
91

FACHADA R. ROOSEVELT/ PRAÇA SÉRGIO PACHECO

TRABALHO FINAL DE GRADUAÇÃO BARBARA MOURA
92

FACHADA AV. BRASIL

TRABALHO FINAL DE GRADUAÇÃO BARBARA MOURA
93

FACHADA MOSENHOR/ PRAÇA SÉRGIO PACHECO

TRABALHO FINAL DE GRADUAÇÃO BARBARA MOURA
94

Turn static files into dynamic content formats.

Create a flipbook
Issuu converts static files into: digital portfolios, online yearbooks, online catalogs, digital photo albums and more. Sign up and create your flipbook.