Skip to main content

CV + Portfolio Architecture Bangkit Adhi Wicaksono

Page 1


PORTFOLIO ARSITEKTUR

BANGKIT ADHI WICAKSONO

2016-2020

Bangkit Adhi Wicaksono

BANGKIT ADHI WICAKSONO ARSITEK | URBAN DESIGNER

Saya ialah arsitek/urban designer berpengalaman 2-3 tahun yang berfokus pada pengembangan tata ruang yang berkelanjutan dan inovatif. Lulusan S2 Arsitektur (Rancang Kota) Universitas Diponegoro dengan IPK 3,62 yang berpengalaman dalam merancang proyek kawasan mengintegrasikan teknologi modern dan prinsip keberlanjutan. Berpengalaman dalam menggunakan aplikasi Autocad, Sketchup, Archicad, Lumion, Enscape, Photoshop, Illustrator, dan Indesign untuk menciptakan solusi desain yang efisien dan estetis. Saya berkeahlian dalam memimpin tim, kolaborasi multidisiplin, serta berpengalaman dalam kompetisi desain arsitektur dan perkotaan hingga berhasil menjadi top 15 Sayembara TKIMAI XXXV di Yogyakarta. Saya sangat tertarik untuk terus berinovasi dalam menciptakan lingkungan yang lebih baik dalam skala perkotaan maupun bangunan dengan pendekatan yang ramah lingkungan dan fungsional. Saya juga bersemangat untuk mempelajari hal-hal baru serta berkontribusi positif terhadap proyek yang diberikan.

Data Diri dan Kontak

• :Karanganyar, 23 Maret 1998

• :+6288806728449

• :bangkitadhi89@gmail.com

• :www.linkedin.com/in/bangkit-adhi-wicaksono-138663150

• :Karanganyar, Jawa Tengah, Indonesia

Pendidikan

S2 Arsitektur (Urban Design)

Universitas Diponegoro Agustus 2021 - Juli 2024

• IPK 3,62

S1 Arsitektur

Universitas Muhammadiyah Surakarta Agustus 2016 - Juli 2020

• IPK 3,45

Keahlian

• Rendering dan Animasi

• Illustration dan Architectural Drawing

• Modelling 3D (Exterior/Interior/Landscape Design)

• Analisis Site dan Riset

• Pengembangan Konsep Desain

• Presentasi Desain

• Planning

• Teamwork

• Graphic Design

Aplikasi

• Autocad

• Sketchup

• Archicad

• Lumion

• Enscape

• Adobe Photoshop

• Adobe Ilustrator

• Adobe Indesign

• Microsoft Office

Bahasa

• Indonesia (Aktif)

• Jawa (Aktif)

• Inggris (Pasif)

Pengalaman Kerja

Freelancer Arsitek

Playmaker Space

Agustus 2020 - Sekarang

• Bekerja sama dengan klien untuk menghasilkan solusi desain yang inovatif dan efisien.

• Memakai AutoCAD, SketchUp, Lumion, Enscape, dan Photoshop untuk visualisasi desain yang mendetail.

• Mengintegrasikan prinsip-prinsip desain yang berkelanjutan ke dalam proyek pusat budaya.

• Membuat 2 animasi kawasan cultural center dan wisata air yang berdurasi 2-3 menit, konsep desain dan gambar kerja 4 hunian serta 1 Rest Area Pucangsari, Gunung Kidul dengan pendekatan Minimalis, Industrial, Tropis, dan Kontekstual serta render bergaya anime secara hybrid sehingga lebih efisien dan fleksibel.

Magang Arsitek

DPUPR Kabupaten Karanganyar

Agustus - Desember 2022

• Mengawasi proses konstruksi Gedung Kebudayaan Kab. Karanganyar untuk memastikan kesesuaian antara rencana dan pelaksanaan di lapangan.

• Membuat laporan harian agar pelaksanaan konstruksi terkendali sesuai jadwal.

• Merevisi gambar 3D Rumah Dinas Bupati Karanganyar menggunakan Sketchup dan merendernya dengan Lumion.

• Merancang dan mengembangkan desain mushola sesuai dengan standar teknis dan estetika yang ditetapkan.

• Berkoordinasi dengan tim proyek dan kontraktor untuk memenuhi peraturan dan standar keberlanjutan dalam proyek-proyek arsitektur.

• Berkolaborasi dengan tim multidisiplin untuk memastikan integrasi yang baik antara aspek arsitektur, struktural, dan utilitas.

Magang Pengawas Lapangan dan Drafter CV. Sutikno

Juli - Agustus 2019

• Mengawasi pekerjaan struktur atap dan dinding dengan sukses dan menghasilkan bangunan yang sesuai peraturan dan standar konstruksi.

• Memastikan setiap tahapan pekerjaan struktur atap dan dinding berjalan sesuai jadwal.

• Merevisi gambar teknis dan rencana detail struktur memakai Autocad sesuai spesifikasi proyek.

• Mengupdate dan memelihara dokumentasi gambar dengan baik.

• Berkoordinasi dengan kontraktor dan klien untuk memastikan pelaksanaan proyek berjalan dengan lancar.

Pengalaman Organisasi

Anggota Biasa

Sinan Aga Sketch Community Agustus 2019 - Juli 2020

• Menggambar dan mendokumentasikan keindahan arsitektur hingga kehidupan perkotaan serta memahami konteks sosial/ budaya di sekeliling bangunan.

• Berpartisipasi dalam sesi sketsa di berbagai lokasi, baik itu bangunan bersejarah, ruang publik, maupun elemen lanskap kota guna menangkap esensi visual dan atmosfer setiap tempat, sambil mengedepankan teknik menggambar yang detail dan ekspresif.

• Berbagi pengetahuan dan pengalaman dengan anggota lain, mendorong kolaborasi dan pertukaran ide, serta terlibat dalam berbagai pameran karya sketsa anggota dengan tujuan mempromosikan apresiasi terhadap seni dan arsitektur di masyarakat.

• Berkontribusi pada pengembangan Sinan Aga Sketch Community sebagai platform yang mendukung eksplorasi dan ekspresi visual dalam konteks arsitektur dan urbanisme.

Pengalaman Sukarela

Pembicara

Virtual Architecture Ideas Sharing

Juli 2020

• Mempresentasikan dan mengenalkan terkait Surakarta Cultural Center dengan pendekatan Urban Acupuncture.

Peserta Pameran

Pameran Bazar Desa Gentungan

Juli 2019

• Pengabdian masyarakat melalui desain arsitektur di Ds. Gentungan, Mojogedang, Karanganyar.

Penghargaan

Top 10

Tugas Akhir S1 Arsitektur

Februari - Juli 2020

• Merancang Tugas Akhir yang berjudul “Surakarta Cultural Center Sebagai Landmark Perdamaian Multikultural dengan Pendekatan Urban Acupuncture”.

Top 15

Sayembara TKIMAI XXXV

Mei - Juli 2019

• Membuat bentuk bangunan, menata layout poster, dan rendering sebuah instalasi “Sang Penghubung” di dekat Stasiun Tugu Yogyakarta dengan pendekatan Berkelanjutan dan Kontekstual.

Daftar Isi Portfolio

1. Surakarta Cultural Center Sebagai Landmark

Perdamaian Multikultural Dengan Pendekatan

Urban Acupuncture

2. Urban Organic Center “A Piece of Gentungan”

3. Sang Penghubung

4. Pendopo Rumah Dinas Bupati Karanganyar

5. Rest Area Pucangsari

6. Rumah Tinggal Tw.

7. Rumah Tinggal Wd.

8. Rumah Tinggal Tr.

9. Rumah Tinggal Tk.

Surakarta Karanganyar

Yogyakarta

Karanganyar

Gunung Kidul

Karanganyar

Karanganyar

Karanganyar

Salatiga

Surakarta Cultural Center Sebagai Landmark Perdamaian Multikultural Dengan Pendekatan Urban Acupuncture

• Lokasi : Jl. Ahmad

Yani, Gilingan, Banjarsari, Surakarta

• Luas : 29.000 m2

• Tahun : 2020

• Arsitek : Bangkit

Adhi Wicaksono

Latar Belakang

Kebijakan diskriminatif menghancurkan ikatan sosial Kota Surakarta. Perbedaan identitas sosial di Kota Surakarta telah mengakibatkan terjadinya berbagai konflik seperti konflik Jawa-Tionghoa, Keraton, dan umat Islam-Kristen. Masa sekarang kota menjadi berkembang dan alam mulai tak terawat. Muncul sebuah konsep untuk menetralisir permasalahan tersebut yaitu urban acupuncture yang bertujuan untuk mempengaruhi dalam skala kecil menjadi besar dan luas. Urban acupuncture akan mengubah kondisi Kota Surakarta saat ini karena bisa menjadi landmark perdamaian multikultural dan dibutuhkan cultural center.

Input

Sosial-budaya

Non-muslim Muslim

Ekonomi

Tekstil

Ekologi

Kebutuhan Lahan

Kurang Air

Limbah

Tekstil/Barang Bekas

Proses

Komunitas Kampung Jawa

Komunitas Kampung Tionghoa

Komunitas Kampung Arab

Output

Pendapatan Tinggi Fungsional

Kawasan Urban Acupuncture

Kualitas
Hidup
Aplikatif
1. KDB 2. View 3. Sirkulasi 4. Angin 5. Matahari 6. Suara 7. Hujan 8. Hasil

Struktur dan Unit Container

Murah Container mudah dibeli dengan harga mulai dari Rp 16 juta atau container bekas.

Sirkulasi Bangunan

Keterangan: : Sirkulasi : Bangunan

Berkelanjutan Mengefisienkan penggunaan container demi mengurangi dampak negatif lingkungan.

Zoning dan Ruang Suku

Refleksi Ruang

Alur pendengar/ penonton. Pendengar/penonton paham.

Area Konflik Jawa-Tionghoa

Keterangan: : Menceritakan peristiwa Jawa-Tionghoa : Pendengar/penonton

Area Konflik Islam-Kristen

Keterangan: : Menceritakan peristiwa Islam-Kristen : Pendengar/penonton

Area Konflik Keraton

Keterangan: : Menceritakan peristiwa Keraton : Pendengar/penonton

Ruang Terbuka(Menyatukan Masyarakat)

Area Olahraga

Area Piknik Keluarga

Sistem Bangunan(Menyeimbangkan Sistem)

Material (Menyatukan Material)

Air Limbah

Beton Baja

Batu Bata

Paving Block

Area Amphiteater

Ground tank
Pompa Tumbuhan
Bak kontrol
Bak khlorinasi
Selokan
Penghawaan Alami
Manajemen Air Bersih
Manajemen
Tampak Depan dan Potongan A-A

Urban Organic Center “A Piece of Gentungan”

• Lokasi : Gentungan, Mojogedang, Karanganyar

• Luas : 50.000 m2

• Tahun : 2019

• Arsitek : Bangkit Adhi Wicaksono

Latar Belakang

Indonesia merupakan negara agraris. Hal ini dikarenakan oleh mata pencahariaan pendudu knya sebagai petani. Banyak sekali jenis tanaman di Indonesia. Salah satunya adalah padi. Padi merupakan makanan pokok penduduk Indonesia. Bagaimanakah kualitas padi dan dampaknya ke masyarakat? Oleh karena itu harus diteliti dan mengembangkannya.

Pemetaan Eksisting

Desain Kawasan

Keterangan:

Keterangan: Infrastruktur

1. Masjid

2. Sekolah

3. Pos Kamling

4. Selepan

5. Tanggul

6. Kelurahan Gentungan

7. Kantor Kelompok Tani

Alam

8. Sawah

9. Sungai

10. Kebun

Ekonomi

11. UKM Makanan Ringan

12. Bazar Produk Organik

Sejarah

13. Bendungan VOC

Seni Budaya

14. Wayang

15. Reog

Keterangan: Infrastruktur

1. Masjid

2. Bungalow Tengah Sawah

3. Orgoint

Alam

4. Lumbung Desa

5. Sheltganic

6. Sungai dan Sawah

7. Tanggul

8. Kebun

Ekonomi

9. UKM Makanan Ringan

10. Bazar Produk Organik

Sejarah

11. Bendungan VOC

Seni Budaya

12. Teaterganic

Master Plan

Keterangan: : Orgapoint : Teaterganic : Sheltganic

Jalan Mojogedang-Jambangan
Transformasi Bentuk

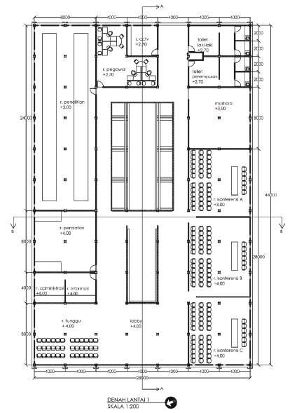
Denah Lantai 1 Laborganic

Keterangan:

1. Ruang Tunggu

2. Lobby

3. Ruang Konferensi C

4. Ruang Konferensi B

5. Ruang Konferensi A

6. Ruang Administrasi

7. Ruang Informasi

8. Ruang Peralatan

9. Mushola

10. Ruang Penelitian

11. Toilet Perempuan

12. Toilet Laki-Laki

13. Ruang Pegawai

14. Ruang CCTV

Arsitektur Islam

1. Membuat bentuk yang sama secara berurutan yang membuat mata merasa lelah.

2 . Meninggikan plafon memiliki arti menyadarkan manusia bahwa manusia merupakan makhluk yang kecil dan jangan sombong.

Blue Water System

Grey Water System

Green System

Sirkulasi Udara Alami
Cahaya Alami
Bangunan Dikelilingi Sawah

Sang Penghubung

• Lokasi : Jl. Kleringan, Gowongan, Jetis, Yogyakarta

• Luas : 4.200 m2

• Tahun : 2019

• Arsitek : Bangkit

Adhi W., Ni’ma Ajrul J., dan Eko Budi P.

Latar Belakang

Yogyakarta memiliki banyak sekali kebudayaan yang tersimpan didalamnya. Untuk menjaga budaya dan tak terputusnya tali sejarah ialah dengan tetap adanya Keraton Ngayogyarta Hadiningrat. Keraton ini tumbuh dan berkembang di dalam keluarga, masyarakat, dan bangsa. Air juga dikenal sebagai tanda kehidupan. Makhluk hidup membutuhkan air untuk bertahan hidup. Banyak manusia yang boros menggunakannya. Pembangunan Kota Yogyakarta berdampak pada identitas kota dan kekeringan air tanah. Lalu bagaimanakah cara untuk mengatasinya? oleh karena itu perlu penanggulangan krisis air yang selaras dengan kearifan lokal kota.

Aspek Pertimbangan

Budaya

Pelestarian budaya diterapkan dengan menggunakan metode preseden arsitektur bangunan Ngayogyakarta Hadiningrat. Pengenalan Keraton Yogyakarta kepada masyarakat menjadi point penting dalam melestarikan.

Transformasi Bentuk

Teknologi

Isu yang kini sedang dihadapi oleh Yogyakarta sendiri adalah kekuarangan air tanah. Oleh karena itu, perlu disediakan area resapan air berupa taman dan Instalasi penampungan air hujan untuk menabung air. Air yang ditabung dapat digunakan untuk menyiram tanaman dan flash budaya toilet.

Sosial

Fasilitas Ruang Serba Guna dapat digunakan untuk berbagai acara (seperti teater, pentas seni, seminar dsb.). Melalui event-event yang diselenggarakan di Ruang Serba Guna dapat menciptakan hubungan sosial antara pendatang dan masyarakat Yogyakarta.

Ekonomi

Penyediaan kios-kios sebagai tempat makan yang aktif dari pagi sampai malam hari dapat memperdayakan masyarakat untuk berjualan sehingga ikut meningkatkan perekonomian masyarakat.

KDB View
Kebisingan
Sirkulasi
Angin
Hujan Matahari
Tampak Depan dan Samping Kiri

Pendopo Rumah Dinas Bupati Karanganyar

• Lokasi : Karanganyar, Karanganyar, Karanganyar

• Luas : 800 m2

• Tahun : 2022

• 3D Modeler Ulang : Bangkit Adhi Wicaksono

Latar Belakang

Pendopo Rumah Dinas Bupati Karangnyar dirancang sebagai ruang serbaguna yang mencerminkan identitas budaya lokal, sekaligus berfungsi sebagai pusat kegiatan pemerintahan dan masyarkat sosial. pendopo memakai filosofi arsitektur tradisional jawa, juga menekankan keterbukan, keabadian, dan simbol kebersaman antar pemimpin dan rakyatnya. Dengan menghadirkan elemen-elemen arsitektur khas seperti tiang-tiang besar dan atap dome, pendopo ini berperan sebagai ruang yang ramah dan representatif untuk menyambut tamu, menjalankan kegiatan formal, serta memfasilitasi interaksi sosial dalam suasana yang santai dan akrab.

Rest Area Pucangsari

• Lokasi : Candirejo, Semanu, Gunung

Kidul

• Luas : 1000 m2

• Tahun : 2022

• Arsitek : Bangkit

Adhi Wicaksono dan Ian Presa Utama

Latar Belakang

Rest Area Pucangsari dirancang sebagai fasilitas peristirahatan yang mengutamakan kenyamanan pengguna jalan dan mempromosikan potensi lokal wilayah sekitarnya. Terletak strategis di jalur yang ramai, rest area ini bertujuan menyediakan tempat yang nyaman dan aman bagi para pelancong untuk beristirahat sambil menikmati pemandangan alam. Selain berfungsi sebagai titik istirahat, Rest Area Pucangsari juga menampilkan unsur-unsur budaya dan produk unggulan daerah, sehingga dapat mendukung pemberdayaan ekonomi lokal dan menjadi daya tarik tersendiri bagi para pengunjung.

Rumah Tinggal Tw.

• Lokasi : Nangsri, Kebakkramat, Karanganyar

• Luas : 98 m2

• Tahun : 2021

• Arsitek : Bangkit

Adhi Wicaksono Konsep Rumah Tinggal Tw. berfokus pada keseimbangan antara fungsi, kenyamanan, dan estetika dalam kehidupan sehari-hari (konteks sekitar). Dengan mempertimbangkan kebutuhan ruang yang efisien dan suasana yang hangat dengan warna jingga/coklat, rumah ini mengutamakan penataan yang fleksibel dan pemanfaatan pencahayaan alami untuk menciptakan lingkungan yang sehat dan hemat energi. Desain interiornya mengadopsi pendekatan minimalis yang menghadirkan suasana tenang dan rapi, sementara elemen-elemen hijau turut ditambahkan untuk memberikan kesegaran serta mendukung suasana rumah yang harmonis dengan alam sekitar.

Denah Lantai 1

Keterangan:

1. Teras

2. R. Tamu

3. Garasi Motor

4. R. Tidur 1

5. R. Tidur 2

6. R. Keluarga

7. R. Makan

8. Dapur

9. WC

10. R. Tidur 3

Tampak Depan dan Potongan A-A

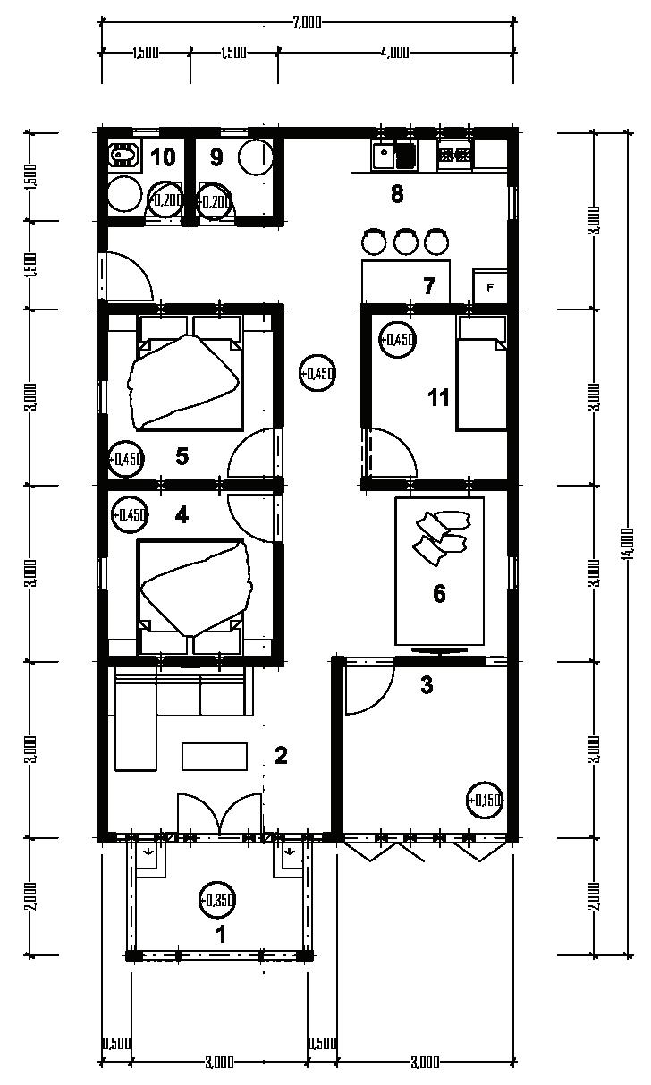
Rumah Tinggal Wd.

• Lokasi : Pulosari, Kebakkramat, Karanganyar

• Luas : 211 m2

• Tahun : 2020

• Arsitek : Bangkit Adhi Wicaksono Konsep Rumah Tinggal Wd. menekankan pada suasana hunian yang minimalis namun tetap hangat dan ramah keluarga. Desain ini mengoptimalkan tata letak ruang untuk menciptakan konektivitas antar-ruangan yang baik, memberikan akses pencahayaan dan ventilasi alami, serta memastikan privasi bagi penghuni. Gaya arsitektur yang diadopsi menggabungkan elemen kontemporer dengan sentuhan material alami, seperti beton dan batu bata ekspos, yang menambah karakter sekaligus mendukung keberlanjutan. Rumah ini dirancang untuk menjadi tempat tinggal yang nyaman, fungsional, dan dapat tumbuh sesuai kebutuhan keluarga di masa mendatang.

Denah Lantai 1

Keterangan:

1. Teras

2. Carport

3. R. Tamu

4. R. Tidur 1

5. Garasi Motor

6. R. Bermain Anak

7. R. Makan

8. R. Keluarga

9. R. Tidur 2

10. R. Tidur 3

11. Dapur

12. WC

13. R. Cuci

14. Taman

Tampak Depan dan Potongan A-A

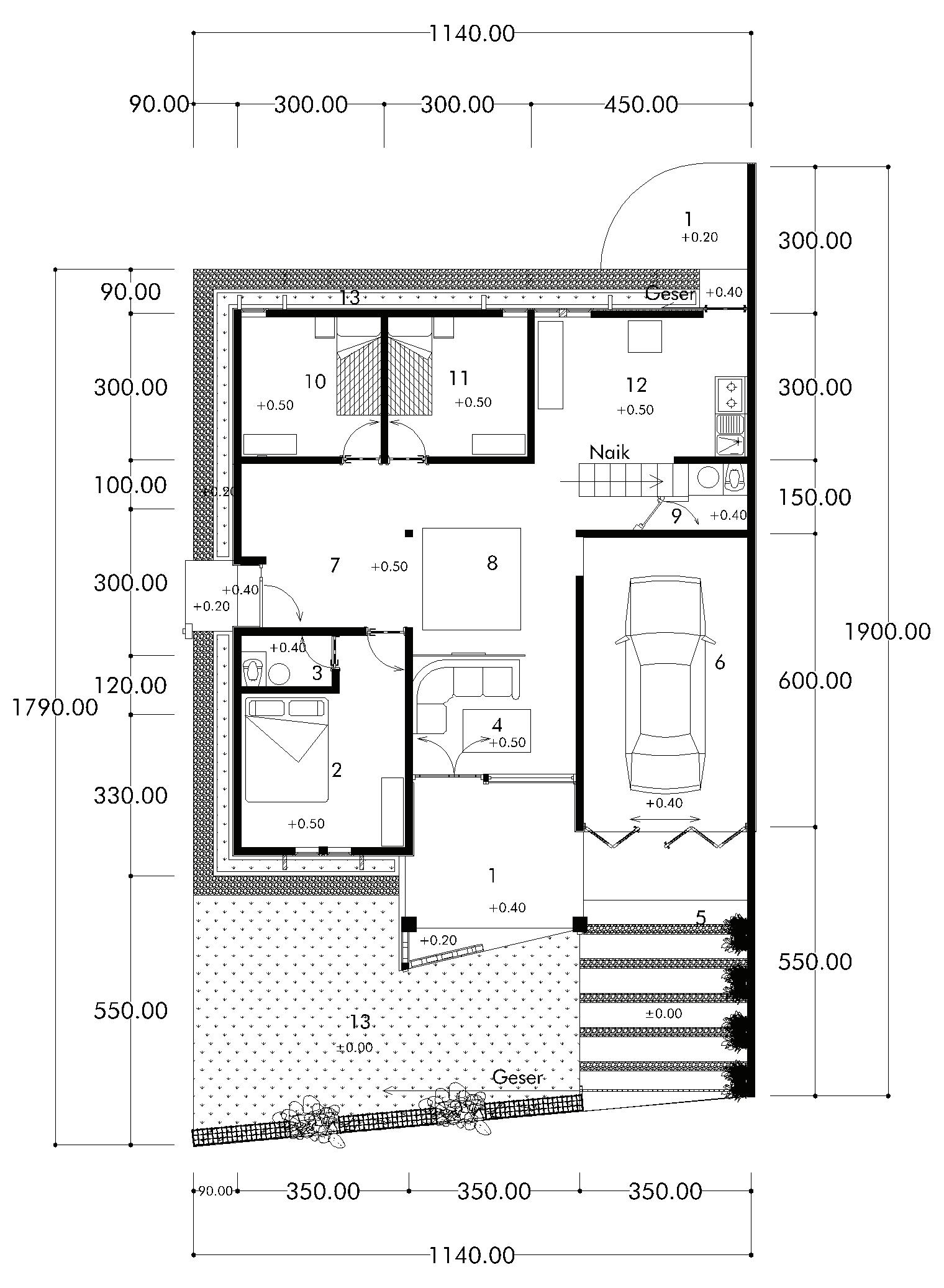
Rumah Tinggal Tr.

• Lokasi : Nangsri, Kebakkramat, Karanganyar

• Luas : 218,5 m2

• Tahun : 2023

• Arsitek : Bangkit Adhi Wicaksono Konsep Rumah Tinggal Tr. mengutamakan kenyamanan dan kepraktisan untuk memenuhi gaya hidup modern penghuninya. Rumah ini dirancang dengan pendekatan ruang terbuka, di mana area publik dan privat tertata secara efisien untuk memaksimalkan fungsionalitas tanpa mengorbankan estetika. Material yang digunakan, seperti cat putih, batu alam, dan kayu, menciptakan kesan elegan dan natural yang selaras dengan lingkungan sekitar. Ditambah dengan pencahayaan dan ventilasi alami yang optimal, rumah ini menawarkan suasana hangat dan terang, menjadikannya hunian yang harmonis dan berkelanjutan bagi keluarga.

Keterangan:

1. Teras

2. R. Tidur 1

3. WC

4. R. Tamu

5. Carport

6. Garasi

7. R. Sholat

8. R. Keluarga

9. WC

10. R. Tidur 2

11. R. Tidur 3

12. R. Makan/ Dapur/R. Cuci

13. Taman

Tampak Depan dan Samping Kiri
Denah Lantai 1

Rumah Tinggal Tk.

• Lokasi : Ledok, Argomulyo, Salatiga

• Luas : 199,5 m2

• Tahun : 2021

• Arsitek : Bangkit

Adhi Wicaksono Konsep Rumah Tinggal Tk. berfokus pada kehangatan dan keseimbangan antara modernitas dan nuansa alam. Hunian ini mengadopsi tata ruang terbuka yang menyatukan area keluarga, ruang makan, dan dapur untuk menciptakan suasana yang ramah dan interaktif. Material seperti kayu, batu alam, dan elemen hijau dipilih untuk menghadirkan kesan natural yang mendukung kenyamanan dan relaksasi. Dengan memaksimalkan pencahayaan dan sirkulasi udara alami, Rumah Tinggal Tk. didesain sebagai tempat yang tidak hanya fungsional tetapi juga menyegarkan dan menenangkan bagi penghuni.

Denah Lantai 1

Keterangan:

1. Teras

2. R. Tamu

3. R. Tidur 2

4. Garasi

5. R. Tidur 1

6. WC

7. R. Keluarga

8. R. Tidur 3

9. R. Makan

10. WC

11. Mushola

12. Dapur

13. R. Cuci

14. Taman

15. Carport

Tampak Depan dan Potongan A-A

Terima Kasih

Turn static files into dynamic content formats.

Create a flipbook
CV + Portfolio Architecture Bangkit Adhi Wicaksono by Bangkit Adhi Wicaksono - Issuu