Architecture portfolio

Page 1

Ar c h i t e c t u r e Po r t f o l i o B a s h a i r A l m a t a n i
BASHAIR ALMATANI 2023 ARCHITECTURE PORTFOLIO 2
ARCHITECTURE PORTFOLIO 2023 BASHAIR ALMATANI 3 NO MAN’S LAND SAVANNAH HOUSING SQUARE KAYAK HOUSE THE CHILDREN’S CLOUD REDISCOVERING SHENZHEN WELCOME CENTER WILDFIRE HOUSE CHARLOTTE OFFICES SQUARE C O N T E N T S 01 02 03 04 05 06 07 08 04 08 12 16 20 26 32 38

ASYLUM SEEKERS SHELTER

PROJECT TYPE Academic - SCAD LOCATION Piedras Negras, Coahuila, Mexico DATE 2020

NO MAN’S LAND - ASYLUM SEEKERS SHELTER BASHAIR ALMATANI 2023 ARCHITECTURE PORTFOLIO 4
O M A N’ S L A N D
A large scale project housed 1600 asylum seekers at the Mexican border at Eagle Pass, Texas. the temporary residential project and its facilities is a shelter that housed people on the border during the immigration process that usually takes a few months.
N

“there has been a tectonic shift along the borders of US-Mexico. This led to American Immigration Crisis in 2014, following which a crackdown implemented by the Trump government. With ‘Zero Tolerance Policy’ in 2018 and ‘Metering’ in 2019, the total border crossings have been constant but the no. of people seeking asylum has increased. This has led to thousands of asylum seekers waiting for refugee status along the US-Mexico border in hard condationd ” (UNI | Competition, 2020).

Site Location

The site is located in Eagle pass borders the city of Piedras Negras, Coahuila, Mexico, where the Eagle Pass International Bridge I connects these two cities and it considers one of the crossing points for thousands of Mexico asylums seekers out of 8 crossing points along the borders of US-Mexico

Vision

The project program is based on accurate data information about the numbers of asylum seekers, their age, and the increasing percentage throughout the year. This helps to build a project that can be developed in the future. According to the statistics (figure1), children’s percent is significantly increased over the last 5 years. In addition, this number of unaccompanied children increased in the last two years. This makes the issue more important, and it needs prompt intervention to build a safe place and create a satisfying environment for these children and their families during the immigration process.

(figure1)

The children and families

40% of the asylum seekers

NO MAN’S LAND - ASYLUM SEEKERS SHELTER ARCHITECTURE PORTFOLIO 2023 BASHAIR ALMATANI 5
Overview

Children Zone

Children are the target user in the project. They form about 400 kids from the total number of asylum seekers, So the project has a building designed to feed the children’s needs in these hard situations. It is a building based on educational and entertainment programs for children. The education part focuses on preparing the children for a public school in the united states and teach them some basic information about the education system in the united states. In addition, it has a different activities for kids outdoor and indoor.

Building Planning

one floor building with a playground in the middle.Classrooms for up to 400 kids,24 classrooms, 18 kids each

NO MAN’S LAND - ASYLUM SEEKERS SHELTER BASHAIR ALMATANI 2023 ARCHITECTURE PORTFOLIO 6

Registration Zone

The registration building Is the only building that links directly to the bridge to make the access process easier for asylum seekers.

The entry process for the asylum seekers

1- waiting area

2- registration area

3- storage for the asylum seekers’ baggage (the ones who finished the documentation process)

4- all the asylum seekers are subject to a medical examination

5- the Destination for the asylum seekers is the exit from the registration building through the stairs that leads to the dwelling units

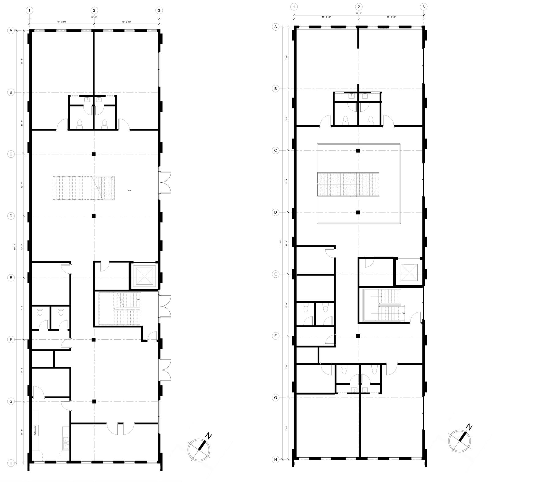
Residential Zone

the residential zone consists of two buildings, 5 floors each, 40 units on each floor. Building A is for the families and unaccompanied children, and building B for singles (male, female).

NO MAN’S LAND - ASYLUM SEEKERS SHELTER ARCHITECTURE PORTFOLIO 2023 BASHAIR ALMATANI 7

S A V A N N A H H O U S I N G S Q U A R E

Student Housing

Savannah Housing Square provides a community gathering space for the students and Savannah’s visitors. The building’s design resonates with the neighborhood’s distinctive character, enhances its vibrant mix of uses, based on an in-depth analysis of the urban edges of the site. Savannah housing square is located downtown, and it is within walking distance of major bus, stores, and SCAD buildings.

Concept

The concept is about a building that gradually allows the natural light and airflow to access the buildings, as well as the views of the surrounding contexts.

BASHAIR ALMATANI 2023 ARCHITECTURE PORTFOLIO 8 SAVANNAH HOUSING SQUARE – STUDENT HOUSING
PROJECT TYPE Academic
DATE 2019
- SCAD LOCATION Savannah, Georgia
ARCHITECTURE PORTFOLIO 2023 BASHAIR ALMATANI 9 SAVANNAH HOUSING SQUARE – STUDENT HOUSING Site base contour proportion to surrounding building context wide views from all the building parts sun and shadow angles Wind direction Context views
Program
Massing Diagrams
Diagrams
BASHAIR ALMATANI 2023 ARCHITECTURE PORTFOLIO 10 SAVANNAH HOUSING SQUARE – STUDENT HOUSING
* green dashed lines represents the travel path for egress
ARCHITECTURE PORTFOLIO 2023 BASHAIR ALMATANI 11 SAVANNAH HOUSING SQUARE – STUDENT HOUSING

K A Y A K C E N T E R

Recreation Building

DATE 2018

A one-story building faces a river surrounded by cliffs and creates an aesthetically pleasing view from the building to the river. A designed deck that has wide steps that provide diverse activities and create amazing views for kayak riders in the river and the ditch as well.

BASHAIR
2023
12 KAYAK HOUSE – RECREATION
ALMATANI
ARCHITECTURE PORTFOLIO
PROJECT TYPE Academic - SCAD LOCATION Hilton Head, SC
ARCHITECTURE PORTFOLIO 2023 BASHAIR ALMATANI 13 KAYAK HOUSE – RECREATION
Site Plan
1. Kayak storage 2. Kayak maintenance 3. Storage for kayak equipment 4. Outdoor shower 5. Storage and mechanical 6. Restrooms 7. Community room 8. Private offices 9. Meeting room 10. Event space 11. warming kitchen

Concept

the building roof design is in folded shapes that are inspired by the kayak geometric shape that has obtuse angles.

Massing & Spaces

The building is divided into two parts, one part for the kayak storage, and the other one is a community center for indoor activities.

Isometric Developmen

BASHAIR ALMATANI 2023 ARCHITECTURE PORTFOLIO 14 KAYAK HOUSE – RECREATION
Private spaces Public Spaces Kayak Storage
ARCHITECTURE PORTFOLIO 2023 BASHAIR ALMATANI 15 KAYAK HOUSE – RECREATION
Section B - B Section A - A

Child Care Center

A center that aims to enrich the lives and minds of children in its classrooms. The center incorporates the “Before and After school program” for the age group of 4 to 12 years old. Focuses on the play and the individual interests of the children in each classroom.

A colored glass that created with cheerfulness in mind. The colored glass glows from the outside, and break up the white space on the inside to create joyful spaces for the children’s classrooms.

The private and public spaces are carefully designed to provide a safe environment for children. the classrooms located on the second floor fully separated from the lobby and reception office and the playground in the back and hedged by a fence.

BASHAIR ALMATANI 2023 ARCHITECTURE PORTFOLIO 16 THE CHILDREN’S CLOUD – CHILD CARE CENTER
public spaces private spaces
H E C H I L D R E N’ S C
colored glass
T
L O U D
PROJECT TYPE Academic - SCAD LOCATION Bucuresti, Romania DATE 2018
ARCHITECTURE PORTFOLIO 2023 BASHAIR ALMATANI 17 THE CHILDREN’S CLOUD – CHILD CARE CENTER
Classroom Classroom
BASHAIR ALMATANI 2023 ARCHITECTURE PORTFOLIO 18 THE CHILDREN’S CLOUD – CHILD CARE CENTER
Ground Floor First Floor Section A - A
- B
Section
B
ARCHITECTURE PORTFOLIO 2023 BASHAIR ALMATANI 19 THE CHILDREN’S CLOUD – CHILD CARE CENTER

Urban Design

PROJECT TYPE Academic - SCAD

LOCATION Shenzhen, China DATE 2020

most say that Shenzhen had no culture before it developed into the fast-paced city it is today. we believe that culture did exist; it was lost in the turbulence of life, so we aim to create a balance between the primary essence of historic Shenzhen and the instantaneous nature of modern Shenzen.

BASHAIR ALMATANI 2023 ARCHITECTURE PORTFOLIO 20 REDISCOVERING SHENZHEN – URBAN DESIGN
Bashair Almatani
E D
S C O V E
collaborated with Peaches Shipley and Haha Xiangyun Mou.
R
I
R I N G S H E N Z H E N

Concept

The goal is to use the site as a natural ground that allows residents, commuters, and tourists to personally connect to the city. this will be accomplished by creating a design that first in with the existing climate and the natural profiles that exist in the site ( the river). while allowing plenty of opportunities to step away from the fast-paced lifestyle Shenzhen has adopted by creating joyful public activities.

the design concept relies on the variation of building heights to soften the skyline. this decision supports the concept of mindfully adding to the congested skyline of Shenzhen. the topographic elements are implemented to terminate the current views of construction and port activity while sparking the visual curiosity of the inhabitants.

ARCHITECTURE PORTFOLIO 2023 BASHAIR ALMATANI 21 REDISCOVERING SHENZHEN – URBAN DESIGN
BASHAIR ALMATANI 2023 ARCHITECTURE PORTFOLIO 22 REDISCOVERING SHENZHEN – URBAN DESIGN
Masterplan
Bashair Almatani

Activities + Program

the public activities program tends to create urban planning that promotes walkability by having public activity areas and green space which allow people to have a different experience and encourage them to go outside. some of these activities are specifically designed to fit culturally and geographically needs. culturally, such as the sports courts, and geographically, such as the raised landscape to protect against the wind.

ARCHITECTURE PORTFOLIO 2023 BASHAIR ALMATANI 23 REDISCOVERING SHENZHEN – URBAN DESIGN
Physical Model
Bashair Almatani

Streets Types and sections

BASHAIR ALMATANI 2023 ARCHITECTURE PORTFOLIO 24 REDISCOVERING SHENZHEN – URBAN DESIGN

The central park shows daily activities, rest areas like restaurants and cafes. In addition, the sitting steps, pathways, and water activities on down the river like a kayak.

The waterfront view overlooks the canal, it shows the public activities down by the river, the movement path, dock, booths, and dining area. Also, it shows the vertical circulation for pedestrians and horizontal circulation for vehicles and how it’s related to the street level.

Located in the front north side of the central park, the district amphitheater represents a cultural landmark that can hold some cultural local events.

ARCHITECTURE PORTFOLIO 2023 BASHAIR ALMATANI 25 REDISCOVERING SHENZHEN – URBAN DESIGN
Front View River Walk Amphitheater Bashair Almatani Bashair Almatani Bashair Almatani

Mixed Use Building

a mixed-use building that contains commercial office space assigned for eleven companies subdivided into 6 stories and public gathering space located on the ground level. The design invention focuses on the uses of forms, materials, scale, light, and heat in particular ways, especially in ways that integrate sustainable strategies and enhance practicality by linking form to function.

BASHAIR ALMATANI 2023 ARCHITECTURE
26 CHARLOTTE OFFICES SQUARE -MIXED USE BUILDING
PORTFOLIO
C H A R L O T T E O F F I C E S S Q U A R E
PROJECT TYPE Academic – Virginia Tech LOCATION Charlotte, NC
DATE 2021

Masterplan

Façade Details

ARCHITECTURE PORTFOLIO 2023 BASHAIR ALMATANI 27 CHARLOTTE OFFICES SQUARE -MIXED USE BUILDING
BASHAIR ALMATANI 2023 ARCHITECTURE PORTFOLIO 28 CHARLOTTE OFFICES SQUARE -MIXED USE BUILDING
ARCHITECTURE PORTFOLIO 2023 BASHAIR ALMATANI 29 CHARLOTTE OFFICES SQUARE -MIXED USE BUILDING
BASHAIR ALMATANI 2023 ARCHITECTURE PORTFOLIO 30 CHARLOTTE OFFICES SQUARE -MIXED USE BUILDING
ARCHITECTURE PORTFOLIO 2023 BASHAIR ALMATANI 31 CHARLOTTE OFFICES SQUARE -MIXED USE BUILDING

PROJECT TYPE Academic – Virginia Tech

LOCATION Malibu Hills, California

DATE 2022

Single Family House

A proposal for a family house located in the woods, the house designed to meet the client’s requirement. A three-house section consists of a private area, a guest section, and an activity area in the center that connects the two sections. A part large pool with a large backyard, and grill area. The house will be for temporary residency, with family and friends all year round.

BASHAIR ALMATANI 2023 ARCHITECTURE
32 WILDFIRE HOUSE -
PORTFOLIO
SINGLE FAMILY HOUSE
W I L D F I R E H O U S E
ARCHITECTURE PORTFOLIO 2023 BASHAIR ALMATANI 33 Ground Floor
First Floor

Site condition:

- Difficult topography (too steep)

- Location prone to wildfires

- Large-scale single-family house

The house is divided into three parts, each has a different design and different space use.

Entertainment Area: Home Cinema, game area.

Guest Area: Able to accommodate them comfortably make it feel welcome ( kitchen, dining room, bathroom, bedrooms, large living room)

Living Area: Private area

Bedroom 2, bathroom, (suite for the couple) the main kitchen, dining area, the living area

Living Area: main kitchen, dining, living area.

2 The walkout basement: studio, art gallery connected to the outdoor environment

Two sorties : The roof is covered with topography. Walkout Basement The second-floor walls be all glass

One floor: Double height ceiling Green Slope Roof Steeps with 1-meter Hight (5 steeps with a raise 20 cm)

One floor: 5-meter ceiling Hight

BASHAIR ALMATANI 2023 ARCHITECTURE PORTFOLIO 34 WILDFIRE HOUSE - SINGLE FAMILY HOUSE

Dimensions :

20-meter height from the ground level (topography level)

Footprint 25*10

Three-floor building

Daylight/ walkout basement

Foundation:

Deep hole of it lest 8 feet with footing placed below forest depth to support the 4-inch-thick concrete slab

Dimensions : 15-meter height from the ground level (topography level)Double height ceiling

Footprint 30*10

Green Slope Roof

Steeps with 1-meter Hight (5 steeps with a raise of 20 cm each )

Foundation:

Stepped Footing, Foundation sidewall. Footing protected from the forest.

Dimensions : 10-meter height from the ground level ( topography level)

Footprint 10*25

Ceiling Hight 5 meter

Foundation:

Simple foundation

Pad footing

ARCHITECTURE PORTFOLIO 2023 BASHAIR ALMATANI 35 WILDFIRE HOUSE - SINGLE FAMILY HOUSE
BASHAIR ALMATANI 2023 ARCHITECTURE PORTFOLIO 36 WILDFIRE HOUSE - SINGLE FAMILY HOUSE
ARCHITECTURE PORTFOLIO 2023 BASHAIR ALMATANI 37 WILDFIRE HOUSE - SINGLE FAMILY HOUSE

Recreation Building

PROJECT TYPE Academic - SCAD

LOCATION Savannah, GA

DATE 2019

A Wood frame structure is designed to be a local community center activities in Savannah, GA, in the first mo-ment and later a permanent facility for visitors as a situation that they can relax in their tour around Savan-nah. It has a café and a large lounge that hosts events.

BASHAIR ALMATANI 2023 ARCHITECTURE
38 WELCOME CENTER – RECREATION BUILDING
PORTFOLIO
W E L C O M E C E N T E R

Concept:

The design intent is to design a landmark that looks welcoming in the design of its spaces for both local residents and Savannah visitors. the building design drives people to pass through the two buildings and discovers the interior spaces when they move in downtown from one place to another.

ARCHITECTURE PORTFOLIO 2023 BASHAIR ALMATANI 39 WELCOME CENTER – RECREATION BUILDING

The air access to the building from the west-north side, which is has a glass façade that interactives with the weather conditions

The glass façade and the structure system allow an aesthetically pleasing view in both inside and outside of the building

The building has a wooden frame structure that allows the sun light to access to the building to provide a natural light

BASHAIR ALMATANI 2023 ARCHITECTURE PORTFOLIO 40 WELCOME CENTER – RECREATION BUILDING
skylight roof wood frame structure that is covered with glazed glass for natural view
ARCHITECTURE PORTFOLIO 2023 BASHAIR ALMATANI 41 WELCOME CENTER – RECREATION BUILDING
BASHAIR ALMATANI 2023 ARCHITECTURE PORTFOLIO 42 WELCOME CENTER – RECREATION BUILDING
Joints Structure Details
Bottom Chord+King Post and Webs Dome Hub Connector 4W Beam to Column Connection Supportive for Roof Structure
ARCHITECTURE PORTFOLIO 2023 BASHAIR ALMATANI 43 WELCOME CENTER – RECREATION BUILDING

Turn static files into dynamic content formats.

Create a flipbook
Issuu converts static files into: digital portfolios, online yearbooks, online catalogs, digital photo albums and more. Sign up and create your flipbook.