Bakr Mahasin_Portfolio_2023

Page 1

BAKR MAHASIN

BAKR MAHASIN

Academy Of Kyudo Archery ............................................................................................................ 1 - 12 Tectonic Kindergarten ................................................................................................................... 13 - 22 REINCARNATION OF ART AND DESIGN ...................................................................................... 23 - 37 PROFESSIONL WORK .................................................................................................................... 39 - 45
of
Table
Contents

Academy Of Kyudo Archery

Kyudo, the way of bow, is a tradition of meditation archery roots in old worrior traditions of Japan. The perfect archery was created by Samurais, Today, Kyudo is being practiced by thousands of people all over the world for there to develop a physical, mental and spiritual development. The simple elegance of the movements, the beauty of holding the bow and stretching the arrow in a quite predominant, in the practice of time and place, who wish to work upon the path of self-knowledge.

Kyudo is practiced to develop a physical, mental and spiritual development and trained for competitions.

Zen gardens are a representation of peace and contentment. It acts as a place that could help with relaxation and meditation, which is beneficial for Kyudo training.

A museum that celebrates and commemorate the history and tradition of archery, with the hopes of raising awareness and education.

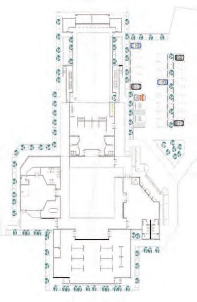
-Floor PlanLevel 1
1.Parking
2.Main Lobby
3.Zen Garden 4.Japanese Traditional Museum 5.Office
6.Preparation Area
7.Shooting Area 8.Observation Area 1. 2. 3. 4. 5. 6. 8. 7. 8. -Museum - - Kyudo - - Zen Garden - - Kyudo -
-Private Circulation - - Public Circulation - - Egress & Emergency Circulation -
-West
-
Elevation
- Longitudianal Building Section -
-East
- Cross Building Section -
Elevation

Tectonic Kindergarten

History has proved that architecture has a certain place in life and to expand by a selection of members that interact themselves from a majority of people. the learning program is an school that teaches the basic knowledge that young kids have to learn.

SITE PLAN

FIRST FLOOR PLAN

SECOND FLOOR PLAN

THIRD FLOOR PLAN

OFFICE SPACE ENTRANCE LUNCH ROOM PLAYGROUND REST AREA STUDY ROOM

NORTH ELEVATION

WEST ELEVATION

SECTION AA SECTION BB

REINCARNATION OF ART AND DESIGN LOCATION:

Roghudi Vecchio, South Italy

My intention is to enhance and re-populate the area by creating a learning space. “Reincarnation of Art and Design” is a place of growth encouraging individuals to learn the traditional crafts that one has been performing in that location. As they progress and adapt, they can cooperate and proceed in enhancing the village and hoping that the bond between the village and this craft educational space will bring knowledge and practice growth actively.

CLASS ROOM
RECEPTION OUTDOOR VIEW CAFETERIA LIVING SPACE
WHEEL THROWING ROOM
KILN ROOM
Total sqft : 8,047 sqft Total sqft 12,829 sqft Level 1 Class room Class room Art Gallery Arh shop Cafeteria Residential Common area Total sqft : 20,318 sqft Total sqft 12,829 sqft Level 2 Level 3 Level 4 & 5 0’4’8’16’ 32’ 0’4’8’16’ 32’ 0’4’8’16’ 32’ 0’4’8’16’ 32’

RESIDENCE

INSULATION GYPSUM WALL BOARD

GLAZZED LOUVER WINDOW

RIGID INSULATION ASBOND BREAK MATERIAL

CAFETERIA

CONCRETE SLAB

CONCRETE FOUNDATION WALL

LEVEL 1

CLASS ROOMS

CONCRETE FOOTING

1# Shedding water simply means sloping a horizontal surface to drain water away from the building. This works for almost all exterior building elements like roofs, canopies, window and door sills, and grading. If the material is particularly porous (ex: grass and earth) a steeper slope is better for faster removal of water.

2# Louver to cover the window with an arrangement of parallel, horizontally other material designed to regulate air or light while keeping sunshine or moisture out.

15” 30” 40” 55” 70” SECTION AA Class room Class room Art Gallery Arh shop Cafeteria Residential Common area Residential Common area
ENTRANCE CLASS ROOM ART GALLERY
LEVEL 4
LEVEL 3
LEVEL 2

ROOF

INSULATION

GUTTER SYSTEM

REBAR #5

LEVEL 5

RESIDENCE

Residential Common area

LEVEL 4

RESIDENCE

Residential Common area

Cafeteria

LEVEL 3

CAFETERIA

Class room

Art Gallery

Arh shop

Class room

LEVEL 2

ENTRANCE

REBAR #5

INSULATION CONCRETE

2# Hopper windows provide ventilation and control humidity in damp environments. I want to use that method in my classrooms and wheel-throwing to prevent the clay from drying up.

15” 30” 40” 55” 70” water cistern SECTION BB
1# An open steel joist span and rigid beam system lateral in the building. The truss system in level 3, which is the cafeteria area where the supporting between the roof and floor.
15’’ 40’’ 30’’ 55’’ 70’’ EAST ELEVATION 0’ 12’ 24’ 36’ 48’ 60’ WEST ELEVATION
SOUTH ELEVATION 0’ 12’ 24’ 36’ 48’ 60’

PROFESSIONL WORK

Lot 1A

Belfair Club

Lorem ipsum dolor sit amet, consectetuer adipiscing elit, sed diam nonummy nibh euismod tincidunt ut laoreet dolore magna aliquam erat volutpat. Ut wisi enim ad minim veniam, quis nostrud exerci tation ullamcorper suscipit lobortis nisl ut aliquip ex ea commodo consequat. Duis autem vel eum iriure dolor in hendrerit in vulputate velit esse molestie consequat, vel illum dolore eu feugiat nulla facilisis at vero eros et accumsan et iusto odio dignissim qui blandit

The Blossom

This five-bedroom, Five bath low country home with a pool in Belfair presents a gorgeous display of Hardie board siding and an attached with three-car garage spaces. Just inside the covered front porch, you are greeted by a foyer with a triple-height ceiling. Head straight to the main floor, where you'll find the study room, living room, and two access halway to the main bedroom and the additional bedroom with a suite bath and walk-in closet, a powder bath.

BAKR MAHASIN

Turn static files into dynamic content formats.

Create a flipbook
Issuu converts static files into: digital portfolios, online yearbooks, online catalogs, digital photo albums and more. Sign up and create your flipbook.