Metzner: Educational Portfolio

Page 1

ailey Metzner educational Portfolio interiors + landscaPe +architecture + design select Works
B
contents

University of Cincinnati Masters Work

Masters Thesis | Rehabilitative Architecture’s Sociological Impact

Public | Institution | Sociological Architecture

Research Studio | Bringing Back the Rhine

Public | Landscape | Culture

Comprehensive Studio | How Site Influences Design

Education | Site Specific | Form vs Function

University of Cincinnati Undergraduate Work

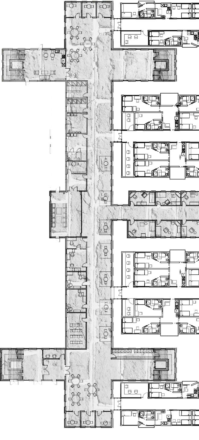
BLOC | Building for the Aging

Public | Detail | Construction

Historic Preservation | Taking the Past Into the Future

Preservation | Education | Sustainability

Winery | Articulated Landform as Built Form

Culture | Public | Landform Articulation

Urban Mixed Use Development | How Buildings Meet

Urban Planning | Public and Private | Shared Space

Freehand Work | The Importance of Sketches

Shading | Landscape | Architecture

1 7 11 17 23 25 27 31
university of cincinnati Masters Work

The physical environment in which treatment occurs impacts both the treatment’s progression and its effectiveness. Today, prisons have become the unconventional home for the imprisoned mentally ill. Though there are facilities for mental health care, there is not a specialized, unique location for those that are serving time. This thesis offers humane design techniques found within the changing models of psycho-environmental and prison designs as a way to create a new building typology that utilizes the juxtaposition of old and new structures in an urban location. The design utilizes theories of humanity and rehabilitation to define the imprisoned mentally ill’s humane environmental needs. An intimate attention to detail engages the user in a way that promotes recovery and evokes relationships between people, experience, place and culture.

Masters thesis 2014-2015

Materiality Studies

2
Examples of Re-Used Asylums in New York Rehabilitative Architecture’s Sociological Impact
Deconstruction Diagram of Existing Structure Aerial View of Every Prison in the United States Site Study Diagrams Circulation and Lighting Diagrams
West Elevation and Exterior Perspectives
thesis 2014-2015
Site
Masters
First Floor Plan East Elevation, Exterior Recreation Perspective and West to East Section Patient Courtyard Perspective
4
Rehabilitative Architecture’s Sociological Impact

Interior Perspectives

thesis 2014-2015
Masters
6
Site Model Rehabilitative Architecture’s Sociological Impact

Researching the history of Cincinnati and the canals, we developed a plan to bring back the original Rhine.With a nod to the historic context of Over the Rhine, a desire to fill in the empty lots, and a hope for new commerce through tourist attractions, the design took on a Venicelike layout throughout the entire neighborhood. Entry to the neighborhood and travel within was dictated by the privacy level of each road: residential, commercial or tourist. The canal system consisted of bridges, walkways and parks, with the overall layout allowing for large events.

research studio 2014
8
Above: Section Views Down Liberty and Vine with Activity Zones Below: Mock-Up Model of Bridging and Final SIte Model Made of Clay Bringing Back the Rhine
research studio 2014
10
Perspectives of the Private and Public Spaces Along the Reintroduction of the Rhine Bringing Back the Rhine

Using precedence studies of four major themes, (construction, structure, how the building meets the sky, and how it meets the ground) we analyzed current designs and architects to better understand how to generate design ideas. Using those principles, we created a facility for students to create, display and learn about art. My main focus was on creating a design that complimented it’s surroundings, while supplying the users with a variety of spaces. With an emphasis on process, the building moves from living, to learning, to creating, to display spaces with areas of overlap and opportunities to engage the surrounding campus.

coMPrehensive studio 2012

Precedent Works: Steven Holl Landscape; Steven Holl Skin

Precedent Works: Door Study; Steven Holl Spacial Relationship

Cranbrook: Work. Live. Create.

12
Study Model of Materiality Final Sectional Model of Division Wall
coMPrehensive studio 2012
Final Site Model
14
Sectional Model Detail Final Site and Fisrt Floor Plan
Model Division
Final
Final Sectional
Wall Texture
Cranbrook: Work. Live. Create.

university of cincinnati undergraduate Work

Over the course of ten weeks, we were given the challenge to create a facility for the aging population. The main goal was to create something different from the failing systems already in place. Our group decided that the main focus should be to bring care to the people that need it, in a way that allows them to customize to their level of need and taste. The issues that we found with current health care facilities could be erased through our system of customizable walls and rooms. After more research, we found that these systems could be used for different archetypes, and changed as needed, even down to the location of the spaces as time and care level changed.

Bloc 2011
Track System Built in Lit Hand Rail Retractable Bed Track Wall System Building for the Aging 18
Custom Made BLOC Construction / Delivery
20
BLOC Community Building for the Aging
Bloc 2011
22
Building
the Aging
BLOC Community Plug Ins
for

WOMENS RESTROOM

Starting with a design of a sustainability kiosk, we were challenged to take an existing building on our campus and turn it into a sustainability center. Focusing on historic preservation and sustainable strategies, the design was focused on minimal changes to the existing structure that would compliment the needs of the sustainability center and it’s users.

Fresh Air Vent Fresh Air Vent Vent Duct Vent Duct Recess for concealed radiator Recess for concealed radiator Recess for concealed radiator Recess for concealed radiator 17'-0 5' 5' 3'-6" 3'-6" 9'-8" 17'-2 MEETING ROOM Stack Vent Flue Iron Grating Iron Grating VESTIBULE Raised platform Radiator enclosure Step up PORCH Iron Grating Iron Grating Counterbalanced re escape ladder N
FIRE
ELEVATOR
CAFE
KITCHEN MAIN STAIR
STAIR
MENS RESTROOM
DW
STORAGE SUSTAINABILITY INFORMATION CENTER
2010
Historic Preservation
24
Sustainable Kioske Design Preservation/Sustainability Design Perspectives of Deck Addition Perspectives of the Exterior Addition Sustainable YMCA

Starting with ideas formulated through a landform and a painter, this design explored what a landform is and how architecture plays a roll in forming and responding to it. Using a three dimensional representation of our research, a winery would be designed with the same articulation.The site was then transformed through built forms that played with the land in a way that organized the vineyard, the usable spaces, and the manufacturing areas within the building.

2009
Winery
Above: Final Site Model Below: Light Studies for Winery Articulated Landform as Built Form

This mixed use project created space that was more accessible for the surrounding neighborhood in Cincinnati using a series of perimeter buildings. Through diagramatic research and observation, each group of two created separate buildings in hopes of creating a usable site that allowed both buildings to serve as housing and retail space for the neighborhood.

Urban Mixed use develoPMent 2008
28
Diagramatic Drawing/ Model of Permeability & Density Below: Circulation, Housing and Retail Spaces Urban Living and Working
Urban Mixed use develoPMent 2008
30
Mixed Media Walk Through Buidling Spaces Urban Living and Working

By using freehand work in my presentations, I was able to capture the feeling of spaces, textures and light. Above is a sketch of the Ludlow Fire Station showing brick work and texture. The images are all created through layering of materials, pencil, charcoal, and marker.These drawings all experiment with texture and technique to show spacial use and arrangement.

freehand Work 2007 - 2015

Concept Sketches for Canal Reintroduction

Play With Perspectives

Light Studies

Conceptual Sketch Detail and Site Analysis

Collection of Free-Hand Pencil, Charcoal and Paint

32
thank you

Turn static files into dynamic content formats.

Create a flipbook
Issuu converts static files into: digital portfolios, online yearbooks, online catalogs, digital photo albums and more. Sign up and create your flipbook.