Interior Design Portfolio 2021-2025

Page 1


INTERIOR DESIGN PORTFOLIO 2021-2025 BAILEY FLINN

Hi, my name is Bailey Flinn, and I am pursuing a Bachelor of Fine Arts in Interior Architecture and Design at Harding University. I have always been drawn to art since a young age when I would take art classes over the summer, and knew I wanted to pursue a creative career. My mind works both creatively and analytically and because of this I am very detail-oriented. Interior design uses both of those qualities throughout the design process. My favorite part of the design process is the schematic phase. I love sketching and thinking about how the concept can influence choices and features of the design and interweave with the functions of users.

EDUCATION

Bachelor of Fine Arts, Interior Architecture and Design

Harding University | Searcy, AR |

August 2021 – May 2025

STATEMENT

GPA: 3.98 Huntsville, AL

ORGANIZATIONS

ASID

Junior Class Representative/Student Member

NKBA

Student Member

CERTIFICATIONS

PASSED NCIDQ IDFX - April 2025

LEADERSHIP

ASID - Junior Class Representative - 2023/2024

SIGMA PHI MU - Treasurer, Historian, Activity Director - 2022-2024

baileyflinn2002@gmail.com (256)-200-5152

LinkedIn: linkedin. com/in/baileyflinn

AWARDS

DEAN’S LIST Fall 2021 - Spring 2025

HU ACADEMIC SCHOLARSHIP Fall 2021 - Spring 2025

SOPHOMORE PORTFOLIO

SCHOLARSHIP Spring 2023 - Spring 2025

2025 ASID SCC STUDENT COMPETITION April 2025

Workplace - Gold Award

Hand-Rendering - Gold Award

Portfolio - Gold Award

Healthcare - Silver Award

WORK EXPERIENCE

Intern - Goodwyn Mills Cawood - 2024

• Selected finishes and created digital and physical finish boards and presented to clients.

• Observed OAC meetings and construction progress on sites.

• Completed a punch list for a project.

• Completed construction document sheets for 3 different projects including ceiling plans, elevations, details, and finish sheets.

Computer Lab Supervisor - Harding University - 2024-2025

• Created the schedule for the lab attendants.

• Managed the lab and reported technical issues.

SKILLS

Drafting/Rendering

Drawings

& ADA Codes

INVISIBLE THREADS LIBRARY

SENIOR YEAR: SPRING 2025

SOFTWARES USED:

PROJECT DESCRIPTION

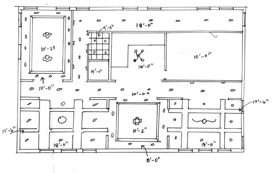
This project focused on creating a library that is for the community and connected to the community of Sarasota to create a place full of energy, belonging, and to foster learning. This project specifically focused on connecting different generations within the community to combat social isolation and build community trust. This building is three stories and around 50,000 sq. ft.

INVISIBLE THREADS LIBRARY

PROJECT STATEMENT

Social isolation is prevalent among older populations, and younger generations need casual social interactions to form trust and belonging in their community. Both of these generations greatly benefit from “third places” where they can connect with others and engage with the wider community. A lack of understanding and connection between different generations can contribute to public distrust and feelings of division.

Revit, Enscape, Photoshop RECEPTION/ WAITING ROOM

Libraries can attract these groups of people, but can feel disconnected from the context of the community overall, and can cater to one group of people more than others because of activities or spatial allocation.

This introduces the question of: How can public libraries serve as inclusive spaces that connect different generations, while also highlighting a communities’ historical and cultural context to create a shared sense of belonging and combat social isolation?

Sarasota has a rich history in the arts and entertainment and one of the influential factors driving this surge of art and culture was the Ringling’s’ Circus Winter Quarters being placed in Sarasota. This event shaped the city and created a unique community that valued belonging and a celebration of differences within the larger community of Sarasota, FL. Invisible Threads Library hopes to embody this spirit of contrast within unity by uniting elderly and younger generations within Sarasota and fostering intergenerational connections and growth. The design will explore the tension and release seen in many acts of the circus by creating unique views and a contrast in volume of space. Part of the draw of the circus is the bright, bold, colors and unique forms and the library will utilize this strategy of bold colors to create emphasis in key areas of connection and maintain a youthful energy throughout the library.

The color palette progresses as patrons navigate up through the floors. The first floor which is mainly public, features all of the colors. This serves to show the crossover and connection between the generations.

DAYLIGHTING STRATEGIES

The building is designed to capture lots of natural light for reading and to counteract negative feelings that can lead to isolation. The open atrium has light wells that bring sunlight all the way through the first floor. The floors are also designed to have the majority of book stacks situated on the southwest wall with lots of windows.

HISTORY WALL

The history wall leads patrons to the history room and provides a conversation starter and connects members of the community from both the past and present. The history wall shares the founding of Sarasota and the impact that the Ringlings had on making the community what it is.

CHILDREN’S AREA

The children’s area is separated from the main atrium for safety but still maintains visual connection. It also features a puppet room for older patrons to put on shows or read to kids. The flooring changes act as wayfinding tools to lead kids to the classroom or puppet room.

Each floor features a large wall graphic that is easily seen from the open atrium space and serves as a grounding graphic for patrons to orient themselves with. The progression of the color scheme from warm to cool can also be seen present in the floors.

Wilsonart Laminate
Tarkett Carpet Tiles
Tarkett Linoflor
BUILDING SECTION

HOBBY HAVEN

The hobby haven is a place for people to gather and participate in simple hobbies such as knitting or simple sewing. This provides a comfy space for them to gather and create with comfortable seating, tables that can swing out for more work surface, a tackable wall that can hold inspiration photos.

TEEN AREA

The teen area serves as a comfortable, safe space for teens to hangout, do homework, and relax with a variety of seating options. It is also open to the main floor to foster connection with other patrons.

CORRIDOR

LARGE READING ROOM

The large reading room has lots of windows and is situated southeast to bring in natural light for reading and research. This room also includes large wingback chairs and carpet flooring to emulate a living room feel.

The “Best Reads” wall serves as a recommendation feature where patrons can put a book they enjoyed, and a way to connect patrons with others over a shared experience.

The story wall displays the personal stories of patrons in the community who can be highlighted monthly and shares them with the community at large.

ART WALK

The art walk features local artists in a flexible exhibit that can be changed out at will. The pieces are displayed on a track system that can be configured differently for a variety of exhibits.

2 PERENNIAL WOMEN’S CLINIC

SENIOR YEAR: FALL 2024

SOFTWARES USED: Revit, Enscape, Photoshop

PROJECT DESCRIPTION

This project focused on designing a women’s clinic that was an outpatient Obgyn facility serving women in the state of Arkansas. This clinic is located in West Little Rock and is on the third floor of a medical office building. There are views of nature on the south and west sides of the building, and no other tall buildings nearby.

This clinic took into consideration ADA Standards for Accessible Design, HIPPA Privacy Rules, and used evidence-based design with research to make informed decisions. CONCEPT BOARD

CONCEPT STATEMENT

Ribbons are seen as a symbol of femininity and are a strong awareness symbol for illnesses that primarily affect women. They are also used as a symbol of new beginnings and fresh starts. These feelings of hope and light will be shown in the clinic through the use of a bright, triadic color scheme that feels fresh and airy and brings in nature’s earth tones. The design will also utilize the contrast between curved forms and straight lines, shown in ribbon, to bring emphasis to key areas in the clinic and assist with way-finding for both patients and providers. The sheen and transparency of ribbon will be explored in the design through the use of indirect lighting and smooth textures to create a feeling of warmth and openness.

PARTI SKETCHES

ZONE PLAN

EVIDENCE-BASED DESIGN

CODES & ADA

All patient corridors are 5’-0. Doors are all 3’-0 to accommodate for wheelchairs and flooring transitions are welded for seamless transitions. All sinks are and countertops are ADA height with ADA cabinets underneath. The reception desk and nurse stations include an ADA height area for patients to converse with staff. Exam tables are all adjustable height with clear floor space on one side. Door handles are operable with one hand and room signage has contrasting colors for readability.

ERGONOMICS:

The waiting room includes furniture that is modular for different configurations and conversations. There are also a variety of lounge chairs with arms, some without for pregnant women to allow for comfort, and bariatric options. The office furniture includes sit-to-stand desks and modular storage. The chairs in the nurse stations and practitioner offices are all adjustable to the staff member.

NURSE STATION/ SUB-WAITING

Way-finding is made easy through bands of flooring and pink that wrap around the central exam room blocks. Nurse stations are open to the corridor for sight-lines to exam rooms and act as a landmark for patients. The sub-waiting space includes comfortable furniture for family members to wait, take phone calls or take in the views outside.

STAFF LOUNGE
SKETCHES

3 CIEL CLAIR

JUNIOR YEAR: SPRING 2024

SOFTWARES USED: Revit, Enscape, Photoshop

GROUP PROJECT: All Renderings Shown Were Completed By Me

PROJECT DESCRIPTION

Groups consisting of Interior Design, Graphic Design, and Marketing students were tasked with creating a cohesive brand that flows seamlessly through all design aspects of a restaurant. Ciel Clair, a luxury dining experience in the clouds above the bustling downtown district of New Orleans was born out of this brand.

Amidst the hustle of the New Orleans streets below, Ciel Clair offers a serene retreat as you dine in the clouds. The ambiance is a blend of airy spaces and luminous decor that is sure to create a weightless atmosphere. Lightness and airiness is reflected in all parts of the restaurant through organic forms and reflective materials that capture the environment around. Inspired by the first flight around the world, flights of food are offered for a unique experience. The global flavors in the featured fusion cuisine is a destination of its own, and promises a dining experience that soars above the clouds.

CONCEPT STATEMENT

Ciel Clair was inspired by the first flight around the world and takes inspiration from the weightless feeling of soaring above the clouds. This rooftop restaurant emulates the soaring and suspension of flight and captures this through the light color palette and soft materials. The repetition and rhythm created in the forms of the ceiling elements and rounded furniture pieces contribute to the feeling of air flowing and give a cloudlike nature.

MAIN DINING ROOM

CONCEPT BOARD
BUBBLE DIAGRAMS

THE FIRST FLIGHT AROUND THE WORLD

GALLERY FLYER

DINING

EXTERIOR VIEW

OUTDOOR ROOFTOP SEATING PRIVATE DINING ROOM MAIN DINING

VIP SPACE BAR BACK-OF-HOUSE MEN’S/WOMEN’S RESTROOM RECEPTION SKY DECK SKY DECK

4 BOUTIQUE HOTEL

JUNIOR YEAR SPRING 2024

HAND-DRAFTED/RENDERED

PROJECT DESCRIPTION

This is a boutique hotel set in Newport, Rhode Island on historic Bellevue avenue. It is an upscale hotel for vacationers that are older and for families looking for a summer getaway to relax and refresh. The hotel is set in a historic Newport mansion and adopts the surrounding colonial architecture.

THE COMMODORE

CONCEPT STATEMENT

The Commodore at Bellevue takes inspiration from the historic architecture and New England, coastal aesthetic. Colonial architecture features are present through the segmented space planning, central entryway, arched doorways, windows, detailed moldings, and wall paneling. The coastal aesthetic of Rhode Island is brought in through the many different tones of blue and white and darker wood tones to create a fresh interior.

Pattern in the textiles and wallpaper, along with the eclectic use of art and antique furniture pieces, create a luxurious, timeless interior that welcomes vacationers.

CONCEPT IMAGERY

1. Entry

2. Concierge

3. Seating Area

4. Seating Area

5. Back of House

6. Reception/Stairs

7. Elevator

8. ADA Bathroom

9. Clothing Boutique

10. Garden Exit

11. Boutique Separate Entrance

5 NEXT OFFICE

JUNIOR YEAR: FALL 2023

SOFTWARES USED:

Revit, Enscape, Photoshop

PROJECT DESCRIPTION

NEXT is a design firm based in Dallas, Texas. It is a community uniquely designed around connection and adapting to both the employees and the clients. It is inclusive for all and is universal in its implementation of wellbeing and comfort. NEXT allows for innovation and fosters creativity and community growth. It is a workplace designed for all and tailored to the individual.

CONCEPT STATEMENT

Throughout Dallas there is a prominent amount of visual art, specifically sculptural art. It is seen in parks, in front of buildings, inside buildings, and there is a museum dedicated to sculpture. Looking at sculptures is a universal experience, but each viewer experiences the work and interprets it differently. Sculptures make a statement and NEXT embodies this, while also providing a unique experience for each person.

CONCEPT: SCULPTED

FLOOR PLAN LEGEND

MEZZANINE

CLIENT PRESENTATION ROOM

Area that can promote activity through a change of location and has sight-lines to the office.

Seating area for reception or informal meetings.

The monumental stair serves as an intersection for the office and has a sculptural form leading users upward when they enter. It can also be used as a center for wellbeing by promoting being active, allowing for interaction with nature and natural materials, and has direct access to natural light and views.

MONUMENTAL STAIR
ConsentinoDekton Somnia
ConsentinoDekton Onirika
LBI Boyd Design- Walnut Fluted Paneling
Architex- Cutting Edge Upholstery
AXON
SKETCHES

The entire open office operates around a central sculpture as the axis. This allows for way-finding and a touchdown space for all studios to converge. OPEN OFFICE

The mezzanine allows for open views into the office to maximize connectivity.

All workstations have access to views and natural light.

All offices have open sight lines into studios. The resource center is set back to minimize noise and visual clutter.

Workstations all include sit-stand desks for worker individuality. Space for different work postures and collaboration.

EDUCATION STUDIO

Workstations are grouped together by studio and are also delineated by the repetitive rhythm of the acoustical blades and carpet flooring change. The private offices of the studio directors have direct sight lines into the studio and can easily interact with employees.

HUDDLE SPACE

This huddle space is centrally located within all of the workstations and studios that revolve around it for easy access. It serves as a hub for all of the different studios to interact with, encouraging connection and collaboration throughout the office. The sculpture is striking for both way-finding and to draw users in to experience the space the way they need.

Reqon- Silver Oak
DeNovo- Potrero Wall-covering White
Architex- Cutting Edge Upholstery
Pin-up and whiteboard space for collaboration.
Curved, laminated glass for acoustics and security.
AXON
SKETCH

HUDDLE SPACE

This huddle space is located on the mezzanine for smaller meetings. It includes lounge furniture for more relaxed postures and a relaxed atmosphere.

PRIVATE OFFICE

Private office layout can be individualized for the user. This layout uses long counter space along with storage on one wall that can be moved around as needed. All office layouts promote collaboration and open conversation.

Adjustable sit-to-stand desk to allow employees to customize their work style.

MEZZANINE-MEETING ROOM

The workstation side of the mezzanine includes a meeting room that is at the intersection of the different groupings of workstations for collaboration. It also includes taller seating options to allow for flexibility within meetings.

Whiteboard and pin-up space.

6 WELLNESS HOUSE

SOPHOMORE YEAR: SPRING 2023

SOFTWARES USED:

Revit, Enscape, Photoshop

PROJECT DESCRIPTION

The home is located in Anchorage, AK, and is designed for the clients, a family of three, to address their needs and goals. Christina and Martin are both in their fifties and have a sixteen-yearold daughter, Tiana.

Martin has been diagnosed with PTSD after serving in the military and is wheelchair-bound. Because of these factors, the home will be designed with accessibility, universal design, wellness, trauma-informed design, and aging in place. This will be their dream home and will not be larger than 3,000 sq. ft.

CONCEPT STATEMENT

Still water is peaceful and relaxing because of the reflective surface that mirrors the environment around it and the constant repetition of lines. It also creates symmetry in the transition between reality and reflection. The design will emulate this through reflective materials and the use of lines in the arrangement of rooms. The exterior and interior will be reflective of each other and of the surrounding environment, in the forests of Alaska. There will also be symmetry and seamless transitions between the interior and nature.

CONCEPT BOARD SKETCHES

BUBBLE DIAGRAMS

WELLNESS STATEMENT

Wellness

EXTERIOR/PATIO

Physical health can be impacted through the environment and living conditions. Lighting plays a large role in circadian rhythm and maintaining good health. The design includes a circadian lighting system designed to simulate daylight when Alaska will be experiencing Midnight Sun. Natural light has also been maximized through the use of large windows and having windows throughout the house. The air quality of a space also contributes to overall health and has been addressed through the use of an air purification system and windows that open to allow for air flow. The vent hood and fireplaces also all vent directly to the outdoors. Materials have been selected with low VOC’s.

Veterans/PTSD/Trauma-Informed Design

First Floor

Trauma-informed design considers how the space can create a sense of safety and control of the spaces the people inhabit. People who suffer with PTSD can feel a sense of being out of control and having spaces that they cannot control, can make them uncomfortable. The floor plan is more of an open layout in the large, social spaces to limit blind corners. Doors also open directly into rooms so that there is maximum visibility. There are sidelights on the side of the front door so that any visitors can be easily seen. The color palette is calming with natural colors and the use of green, which has been shown to relax veterans who deal with PTSD.

Universal Design/Aging in Place/Accessibility

Universal Design encompasses accessibility and aging in place principles in that spaces are designed with every user of every type in mind. Everybody who uses the space should be able to navigate and be safe while using it. The house is designed accessible by being built on grade, has doors with lever handles, or are sliding, and has minimal flooring transitions. Rugs are also inset into the floor to allow for a wheelchair to easily roll on top. Floorings are all non-slip and counters are easily rolled under. The main bedroom and laundry room are on the first floor to allow for easy access when users are older.

The exterior uses natural materials to reflect the surrounding nature and forests. The site is secluded back from the road so large windows can be used without worrying about lack of privacy. Repetition is used through the horizontal emphasis and the angle of the roofs.

BUTLER’S PANTRY

The bedroom has a vaulted ceiling over the bed to echo the ceilings of other parts of the house and to not feel constrained. The lowered ceiling over the fireplace however makes it feel warm and comfortable. The natural light from the windows and the sliding door that leads outdoors to the patio keep this room attached to nature.

The workout room is set off the living room to the front of the house. It has large windows to the natural views to make it a space that energizes and vitalizes people. It promotes hydration with the mini fridge and promotes rest and relaxation as well with a sauna room connected to it.

MASTER BATH
MATERIALS
AXON

MARKER RENDERINGS

DRAWINGS/PAINTINGS

Turn static files into dynamic content formats.

Create a flipbook
Issuu converts static files into: digital portfolios, online yearbooks, online catalogs, digital photo albums and more. Sign up and create your flipbook.
Interior Design Portfolio 2021-2025 by BaileyFlinn - Issuu