Portfolio

Page 1

Bahaa Ershid

ARCHITECTURE PORTFOLIO

Selected Works

1
Table Of Content Interior Design Shop Drawings Academic Project Graduation Project 4-13 14-19 20-23 24-29 3

Graduation Project

Bahaa Ershid
Urban intervention on the archaeological center of the city of Shahba 4

The city of Shahba, which was once called Little Rome, and the home of the Roman Emperor Philip the Arab, is one of the most important archaeological sites around the world, and in Syria in particular.

In previous years, the city lost its archaeological value and was neglected for several reasons, so it was necessary to direct attention to the region and reconsider its current situation in order to develop it and restore its archaeological and historical value.

Selected Works
5

Current Site plan

The block and void plan and the elevation plan show the high density of buildings in the center, which causes separation between the archaeological sites and cuts off the visual and kinetic axes between them.

Bahaa Ershid 6

Proposed Site plan

After the intervention, we notice the formation of the visual and kinetic axes between the archaeological sites and the achievement of linking between them

Selected Works 7

Archaeological sites

The proposed square (the forum) forms a link between the archaeological sites

Bahaa Ershid 8

The proposed hotel and its direct connection with the Forum in particular and the archaeological sites in general

Connecting the buildings with a network of pedestrian walkways and diverting vehicular traffic from penetrating the site

Selected Works 9

FORUM PLAN

the Square was designed to imetate the old roman forum with a big gathering area at the middle and surrounding it are some activites comercial and tourism

DESIGN PROCESS

10

AXES & ENTRANCES

SHOPS & CAFETERIAS

MAIN GATHERING AREA

SITESEEING PLATFORMS

Selected Works 11

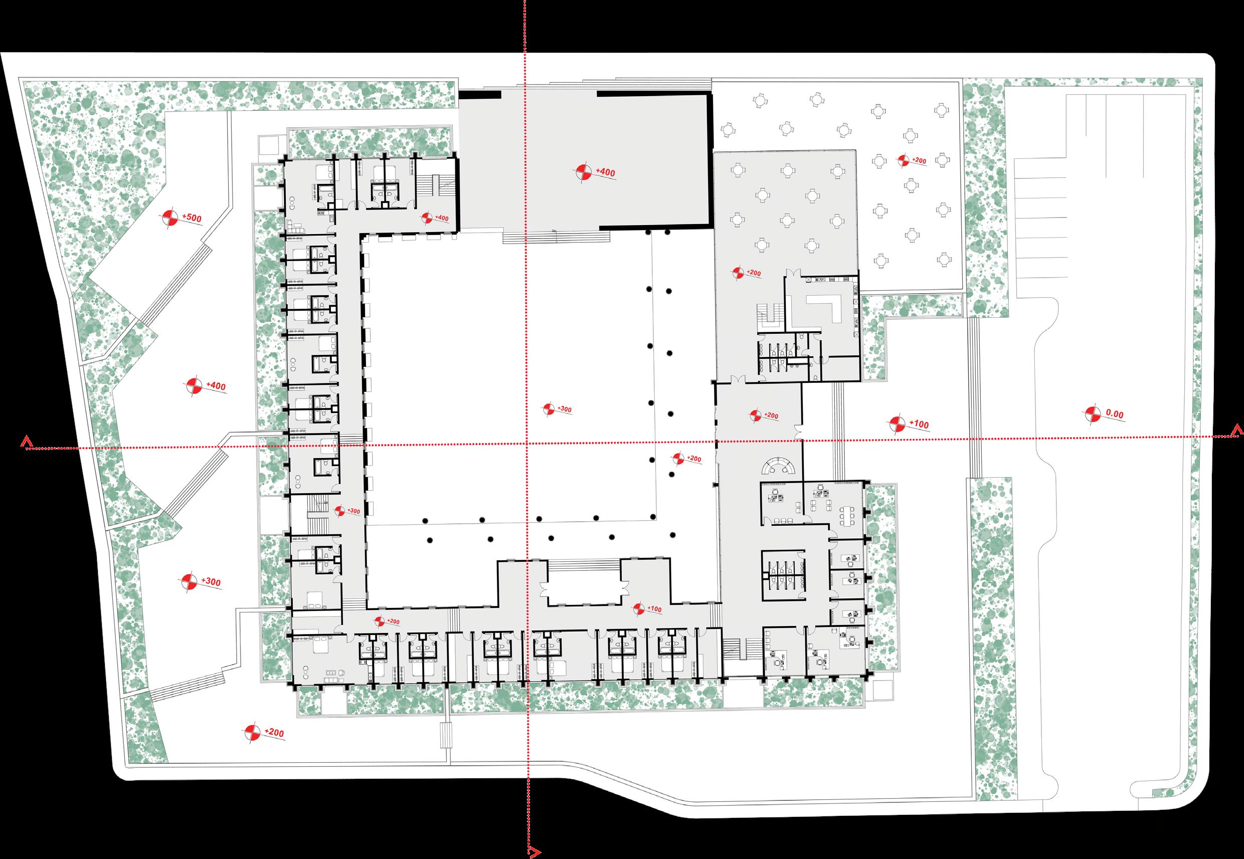
HOTEL GROUNDFLOOR PLAN

The hotel was designed in a way that combines the historical style of Roman architecture from the decorative columns, the inner courtyard and the gate that defines the entrance and is located on an optical and kinetic axis with the Forum Gate and the modern style in building from modern building materials and the use of glass facades to take advantage of the full view of the city.

DESIGN PROCESS

12

HOTEL FIRSTFLOOR PLAN

Selected Works 13

Academic Project:

Urban Design near the Southern entrance of the city of Damascus

Bahaa Ershid 14

This Academic Project was given to us to design an Urban area near the southern entrance of the city of Damascus, to provide resedence and services for the Proffesors in the colleges near the area.

The following is a small part of the given area, it includes 3 resedintal buildings, a clinic and an elemantry school, with a small park for the resedents of the area.

Selected Works 15
Bahaa Ershid 16 SITE PLAN A E 1 E
A B B
2

RESIDENTIAL FLOOR PLANS

Selected Works 17
1st 4th 2nd 5th 3rd 6th
Bahaa Ershid 18
Selected Works 19
Section AA Elevation 1 Elevation 2 Section BB

Personal Work:

Interior Design

Bahaa Ershid 20

Bedroom Design:

A modern Bedroom design foucesd on Luxury yet Simplicity, with white as the main color and a warm brown wooden floor to give the room some Contrast.

Selected Works 21

Living Room & Kitchen Design:

A modern design of an open Living room and Kitchen area with a black marble tiles floor to give it a Luxurious look and some Contrast.

Bahaa Ershid 22
Selected Works 23

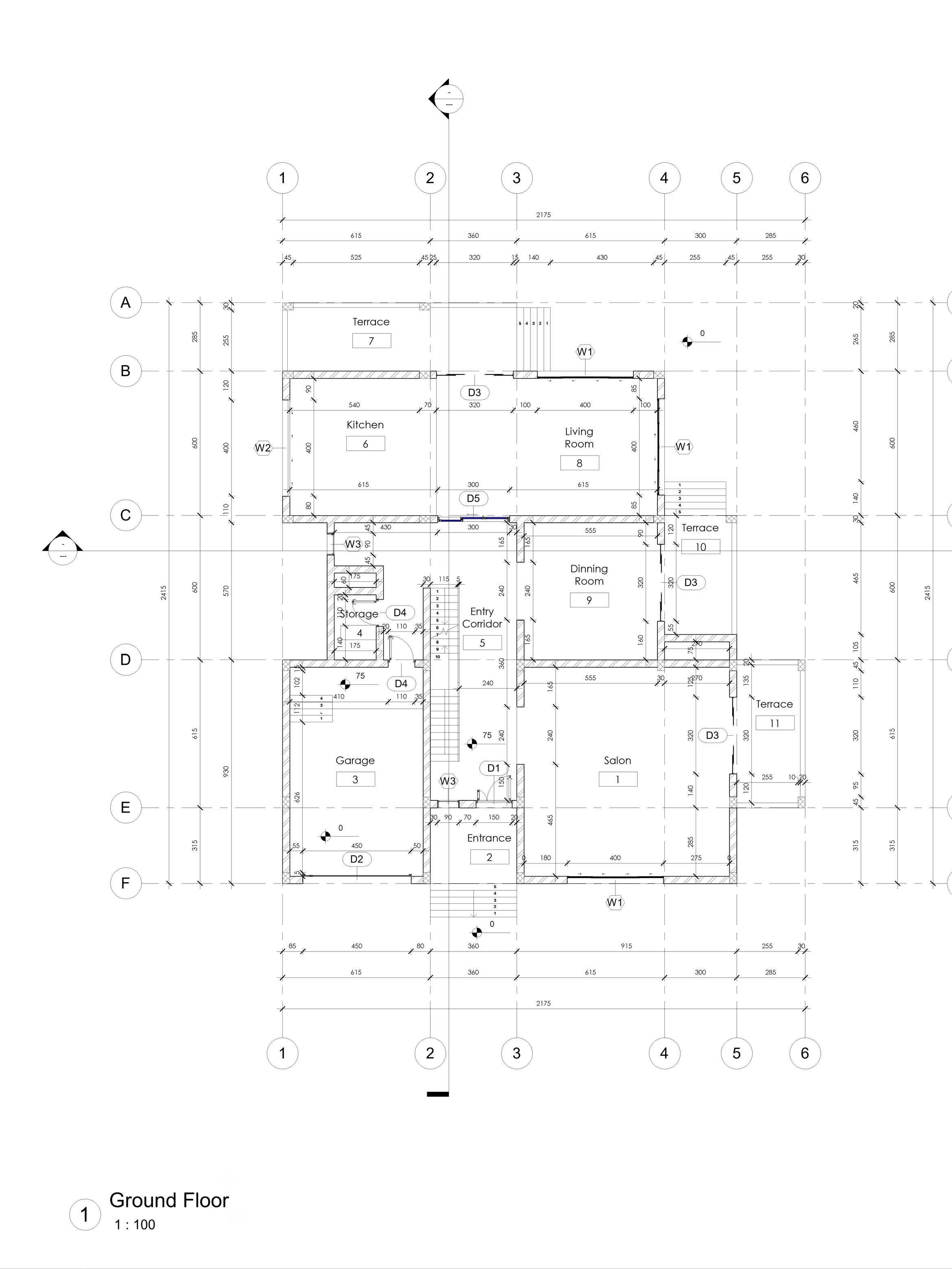
Office Work:

Villa SHOPDRAWINGS

Bahaa Ershid
24

This was a small project assigned to me by the office i trained at to Design Architectural plans for this Villa as well as the Shopdrawings required.

The following Plans are selected from many plans that were made for this project, to showcase the quality and details in them.

Selected Works
25
Bahaa Ershid 26
Selected Works 27
Bahaa Ershid 28
Selected Works 29

Turn static files into dynamic content formats.

Create a flipbook
Issuu converts static files into: digital portfolios, online yearbooks, online catalogs, digital photo albums and more. Sign up and create your flipbook.