Skip to main content

PORTFOLIO

Page 1

ARCHITECTURAL PORTFOLIO

PERSONAL PORFILE 自我介紹 SMALL DWELLING 小住宅 KEELUNG COMMUNITY CENTER 咖啡廳+社區空間 MATSU STRONGHOLD RENOVATION 據點改造 CONGREGATE HOUSING 集合住宅 COMPOSITE SPACE 教堂+幼稚園+咖啡廳+社區空間 TOPOLOGICAL BRICK MASONRY 數位製造+磚結構 00 01 02 03 04 05 06 02 03 05 09 13 17 21
CONTENT

PERSONAL PORFILE

NAME BIRTH TELEPHONE MAIL EDUCATION EXPERIENCE SKILL 張嘉芸 2000/10/09 0978583835 b0982196611@gmail.com 中原大學建築系四年級 實習/清水建築工坊 AUTOCAD SKETCHUP RHINO GRASSHOPPER ENSCAPE ADOBE ILLUSTRATOR
MODEL MAKING 01 02
PHOTOSHOP

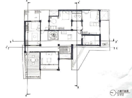
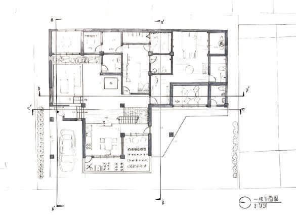
SMALL DWELLING

/SITE 桃園 中壢 莒光公園

/SITE ISSUE

設計住宅中的社區空間 ,處理社區居民、家庭 成員、自己的空間。

/CONCEPT 將公園引入住宅,逐層

退縮,讓每層樓都有許 多大小不一的庭院,每 個庭院也有公私之分。

03
04

KEELUNG COMMUNITY CENTER

/SITE 基隆 太平社區 /CONCEPT 利用基地高低差創造階 梯咖啡廳延伸社區入口 狹縫至基地成為主動線
05
06
07
08

MATSU STRONGHOLD RENOVATION

/SITE

馬祖 東莒 53據點 /CONCEPT 在測繪時,由靜止的封 閉坑道內部突然接觸到 開口與外部,深深的被

島上的風景與時間吸引 ,所以設計一個時間美 術館,希望藉由路徑感 受島上的時間,靜靜感 受光線與時間的變化。

09
10
11
12

CONGREGATE HOUSING

/SITE 台北 大安 /PROGRAM 包含家庭式與單人套房 的集合住宅以及咖啡廳 /CONCEPT 逐層退縮製造露臺與陽 台,做植栽綠化,利用 公空間切分私空間 0 2 4 10 SITE PLAN 13
14
0 1 2 5 10m 2F PLAN 15
0 1 2 5 10m 5F PLAN 16

COMPOSITE SPACE

/SITE 台北 大安 聖約翰幼兒園 /PROGRAM 聖約翰教堂附設幼兒園 、社區空間及咖啡廳

量體分為兩棟,使用共 同服務核,以空橋串連 ,教堂軸線東西朝向, 室內最重要的部分放在 最東面,使教徒可以面 向基督來臨的方向。藉

由巷弄感製造世俗空間

,與神聖空間做對比

/CONCEPT
17
18

延伸巷道,作為社區空間的主軸線,供人自由穿越

掃具間 0 2 4 10 20m 1F PLAN
19
20

TOPOLOGICAL BRICK MASONRY

/SITE 桃園 中壢 中原營區

/PROGRAM

利用數位構築,將拓樸

形狀轉化成磚砌結構 21
MEMBER 崔元耀、錢本威
/TEAM

5.結果的顯示方式

調整的係數越大,產生較細且較必要的結構

1.產生外力的負載面 2.限制結構落下的範圍 3.限制產生結構的邊界框 4.邊界框分割的網格大小
22 1 2 3 4 5
23
24
張嘉芸 中原大學建築系四年級 E-MAIL: b0982196611@gmail.com 電話:0978583835 01

Turn static files into dynamic content formats.

Create a flipbook