Portofolio Arsitektur 2022 - Azizah

Page 1

PORTOFOLIO ARSITEKTUR

A Z I Z A H 2019 2022 Selected work

Saya menyelesaikan studi S1 di Program Studi Arsitektur Universitas Lambung Mangkurat. Memiliki motivasi tinggi untuk terus belajar hal baru dan tertarik dalam bidang desain khususnya arsitektur Selama perkuliahan, saya terbiasa melakukan proses menganalisa permasalahan arsitektur dan bereksplorasi dalam menemukan solusi. Saya dapat bekerja samadalamtim,bertanggungjawab terhadappekerjaan,danberorientasipadadetail.

CURRICULUM VITAE
CURRICULUM VITAE
AZIZAH 23 tahun Banjarmasin, Indonesia 08971444529 azizahytb10@gmail.com
azizahazizaah

Pengajar Soware 3D dan Rendering Arsitektur - Freelance

Ÿ

Ÿ

Juni 2022 - Juli 2022

Meningkatkan kemampuan keterampilan dalam aplikasi 3D dan rendering arsitektur dengan aplikasi SkecthUpdanEnscapebagi2orangmurid.

Menerapkan konsep pembelajaran pasif dan akf dengan menjelaskan materi secara langsung dan prakkpembuatangambar3Ddanrenderingarsitekturbagi2orangmurid.

Desember 2021 - Juni 2022 Asisten Arsitek - Freelance

Ÿ Mengembangkankonseprancangandesainarsitekturdalanbentukgambar2D,3D,danrendering.

Ÿ

Membuatgambarkerjaproyekrancangan.

Ÿ Mengkomunikasikanhasilidekonseprancangankeklien.

PENGALAMAN KERJA PRAKTIK

Asisten Arsitek - CV. Mitra Cipta Nuansa

Ÿ

Melakukansurveiobjekrancangankelapangan.

Ÿ Melakukananalisakontekstualdankonseptualterkaitobjekrancangan.

Ÿ Membuatkonseprancangandalanbentukgambar3Ddanrendering.

PELATIHAN

Ahli Pengawas Konstruksi Bangunan Gedung - PUPR

Ÿ

KEPANITIAAN DAN RELAWAN

Februari 2020 - Mei 2020

Agustus 2021 - September 2021

Penerapan kerja di lapangan seper keselamatan dan kesehatan kerja (K-3), organisasi pengawas lapangan,laporanhasilpemeriksaan,pemeriksaanpekerjaantambah/kurang,dll.

Februari 2020 - September 2020 Peserta - Urban Cizenship Academic Banjarmasin

Ÿ MenganalisispermasalahanmengenaiisuPemberdayaanEkonomidiKampungSasirangan.

Ÿ MeningkatkankemampuanmasyarakatuntukmengekspresikanaspirasimerekaterkaitPemberdayaan EkonomidiKampungSasiranganBanjarmasin.

Februari 2019 - Oktober 2019 Kru Pameran - Archday 2019

Ÿ

Membuatidekonsepdanmerancangruangpameranbiografitokoharsitekuntuk450+pengunjung.

Ÿ Memimpinmkrupamerandalamprosespengerjaanhasilkonsepdesaindilapangan.

PENDIDIKAN

Agustus 2017 - September 2021 S1 Arsitektur - Universitas Lambung Mangkurat

Ÿ IPK 3,55

SKILL

Soware

MicrosoOffice

Autocad

Enscape Photoshop CorelDraw

Bahasa BahasaIndonesia BahasaInggris CURRICULUM VITAE

CURRICULUM VITAE PENGALAMAN KERJA
SketchUp

DAFTAR ISI

Project

09 - Interior Kantor Pemerintahan 11 - Fasad dan Interior Kensington Bakery 15 - Rumah Tinggal Tipe 45 Akademik

27 - Perpustakaan Berbasis Makerspace

DAFTAR ISI DAFTAR ISI
Freelance dan Team Event Project 42 - Pameran Archday 2019
01 - Interior Rumah Tinggal 05 - Interior Kamar Tidur Anak 19 - Rumah Kontrakan Tipe 45

DESAIN INTERIOR RUMAH TINGGAL

Klien : Bapak. S

Juni 2022 Citraland, Banjarmasin

Interior ruang rumah tinggal dengan luas area yang didesain 98 M². Berkonsep modern kontemporer dengan elemen garis dekoratif dan warna-warna netral agar ruangantetapterasanyaman.

01
02 Freelance Project - Juni 2022
INTERIOR RUANG TAMU, RUANG KELUARGA, RUANG MAKAN

Pada ruang tamu, klien menginginkan desain ruang yang elegan dan sedikit lebih kontras dari ruang-ruang yang lain. Diberikan dinding sekat pemisah antara ruang ramu dan ruang keluarga untuk memberikan rasa ruang yang lebih privasi di area ruang keluarga dan ruang makan. Pada ruang keluarga dan ruang makan, klien menginginkan nuansa ruang dengan ambiance yang nyamandantenangnamuntetapmemberikankesanelegandarikonsepruangkontemporer

Freelance Project - Juni 2022 03
RUANG MAKAN
INTERIOR RUANG KELUARGA,
04 Freelance Project - Juni 2022
INTERIOR KAMAR TIDUR UTAMA, WALK IN CLOSET, RUANG BAYI

DESAIN INTERIOR KAMAR TIDUR ANAK

Klien : Bapak. R

Juli 2022 Jl. Manarap, Banjarmasin

Sebuah ruang privasi anak laki-laki dengan konsep ruang modern kontemporer yang mengutamakan kenyamanan dengan pencahayaan yang maksimal, warna netral dan sedikit sentuhan warna kontras, serta elemengarissederhananamundekoratif

05
06 Freelance Project - Juli 2022 INTERIOR KAMAR TIDUR ANAK LAKI-LAKI 1
07 Freelance Project - Juli 2022 INTERIOR KAMAR TIDUR ANAK LAKI-LAKI 2
08 Freelance Project - Juli 2022 INTERIOR KAMAR TIDUR ANAK LAKI-LAKI 2

DESAIN INTERIOR KANTOR DINAS PENANAMAN MODAL DAN PELAYANAN TERPADU SATU PINTU

Interior ruang lobby kantor dengan konsep kontemporer dengan warna netral bercorak kayu membuat ambience ruangan nyaman dan terasa lebih humanis. Detail garis melengkung dengan LED strip pada backdrop membuatnya menjadi view utama ruangan. Oktober 2022 Jl. Sultan Adam, Banjarmasin

09
10 Freelance Project - Oktober 2022
INTERIOR KANTOR PEMERINTAHAN RUANG LOBBY, RUANG PENGADUAN DAN
KONSULTASI

DESAIN FASAD DAN INTERIOR KENSINGTON BAKERY

Desember 2022 Jl. Merpati, Banjabaru

Kedai bakery dengan desain interior berkonsep klasik modern. Ruang kedai didominasi dengan warna hijau emerald dengan pencahayaan temaram agar memberikan kesan private padasetiappengunjung

11
12 Team Project - Desember 2022 EKSTERIOR KENSINGTON BAKERY
Kensington Bakery adalah kedai yang menjual berbagai macam pastry dan teh dengan target pengunjung anak-anak muda di sekitaran Banjarbaru. Klien menginginkan fasad Kensington Bakery berkonsep klasik modern dengan nuansa Kota London. Warna hijau emarald dan abu-abu tuapadafasaddipilihagaradanyakesatuandesainantarainteriordaneksteriorkedai.
13 Team Project - Desember 2022 INTERIOR KENSINGTON BAKERY
14 Team Project - Desember 2022 INTERIOR KENSINGTON BAKERY

RUMAH TINGGAL TIPE 45

Klien : Bapak. RS

Februari 2022 Jl. A Banjarmasin

15
SITEPLAN 1 Carport Halaman depan Halaman belakang 2 3 7 8 9 4 5 6 Ruang tamu Kamar tidur utama Ruang keluarga Dapur Kamar mandi / WC Kamar tidur anak 2.00 1.00 1.50 4.00 1.50 3.00 1.50 2.00 1.50 3.50 3.00 3.50 1.50 2.00 1.50 11.50 3.00 4.00 3.00 10.00 A A B B 16 Freelance Project - Februari 2022 DENAH RUMAH TINGGAL TIPE 45

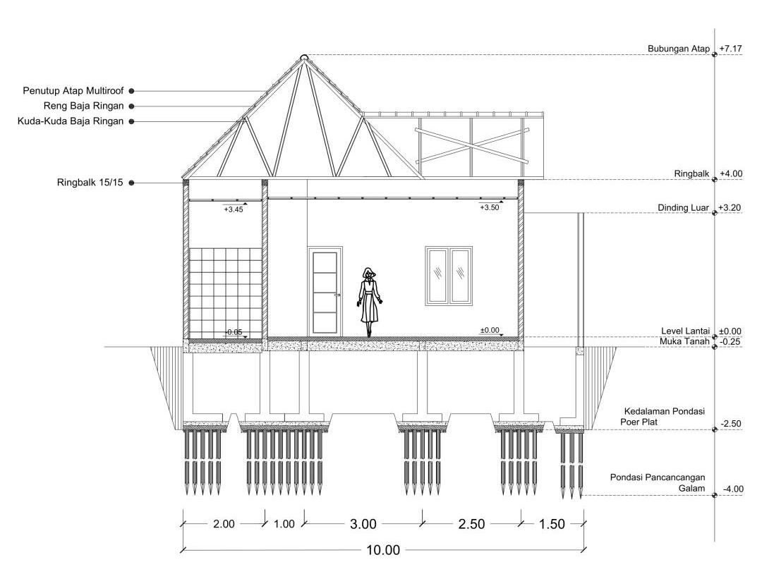
POTONGAN A

POTONGAN
B
17 Freelance Project - Februari 2022 POTONGAN RUMAH TINGGAL TIPE 45

Pada project hunian rumah tinggal tipe 45 pada perumahan ini, klien menargetkan pasanganpasangan muda millenial ataupun keluarga dengan anggota yang kurang dari 5 orang. Untuk memenuhi keinginan klien tersebut, fasad didesain dengan konsep scandinavian dengan elemen garis dekoratif untuk memberikan tampilan kekinian pada bangunan namun tetap terlihat sederhana.

18 Freelance Project - Februari 2022
RUMAH TINGGAL TIPE 45
EKSTERIOR

RUMAH TINGGAL KONTRAKAN TIPE 45

Klien : Bapak. M

Juni 2022 Jl. Cemara Ujung, Banjarmasin

Hunian kontrakan dengan dua tipe denah serupa dibangun di atas lahan seluas 600 M². Konsep arsitektur tropis pada facade terlihat pada jendela yang lebar dan pilihan warna yang netral dengan aksentuasikayudanbatualam.

19
1 Parkiran Mobil Parkiran Motor Taman Depan 2 3 4 5 Rumah Tipe A Rumah Tipe B 20 Freelance Project - Juni 2022 SITEPLAN RUMAH KONTRAKAN
SITEPLAN
2 3 7.50 1.50 1.15 1.00 1.60 2.00 1.20 1.30 2.00 1.00 3.20 0.75 0.55 3.00 2.50 2.15 0.60 5.25 1 1 1 2 3 4 5 6 7 4 5 6 7 21 Freelance Project - Juni 2022 DENAH DAN EKSTERIOR RUMAH KONTRAKAN TIPE A
DENAH TIPE A 1 Teras Ruang Tamu Dapur Kamar Tidur Utama Kamar Mandi / WC Kamar Tidur Laundry
1.15 5.25 1.60 1.00 2.58 0.60 2.80 0.60 2.80 2.00 0.75 1.50 2.13 1.25 0.60 3.10 1.10 0.75 6.80 1 1 2 3 7 4 5 6 DENAH
B 1 Teras Ruang Tamu Dapur Kamar
WC
Laundry 2 3 4 5 6 7 22 Freelance Project - Juni 2022 DENAH DAN EKSTERIOR RUMAH KONTRAKAN TIPE B
TIPE
Tidur Utama Kamar Mandi /
Kamar Tidur

Pada rumah kontrakan tipe 45 ini terdapat enam unit rumah dengan dua tipe denah yang serupa. Denah dibuat dengan dua tipe untuk merespon bentuk eksisting tapak serta kebutuhan rancangan. Pada project rumah kontrakan ini, klien menginginkan desain dengan konsep arstitektur tropis dengan bukaan jendela yang lebar Pagarpadarancangan ini didesain tinggi dan cukup masif untuk memberikankesanprivasipadatiapunitrumahdenganjendelayangcukuplebar

23 Freelance Project - Juni 2022 EKSTERIOR RUMAH KONTRAKAN
24 EKSTERIOR RUMAH KONTRAKAN Freelance Project - Juni 2022
25 Freelance Project - Juni 2022 INTERIOR RUMAH KONTRAKAN TIPE A
26 Freelance Project - Juni 2022 INTERIOR RUMAH KONTRAKAN TIPE B

MAKER HUB : PERPUSTAKAAN BERBASIS MAKERSPACE

Final Project Agustus 2021 Jl. Merpati, Banjabaru

Perpustakaan Berbasis Makerspace merupakan bentuk perubahan inovatif perpustakaan berupa ruang berkumpul bagi masyarakat untuk berkreasi, berkesplorasi,berkolaborasi,membangun relasi, berbagi pengetahuan, serta belajar bersama untuk mengambangkan potensi diridanskill.

27

LATAR BELAKANG

TEKNOLOGI DAN INTERNET

Jumlah pengguna internet di Indonesia 2019-2020 mencapai 196,7 juta atau 73,7% dari jumlah penduduk Indonesia. Jumlah ini meningkat 8,9% dari 2018 (APJII)

PERPUSTAKAAN BERADAPTASI

Penyimpanan koleksi perpustakaan menjadi katalogisasi digital, koleksi digital, dan ICT (Information and Communication Technology)

PERPUSTAKAAN MENGALAMI PERLUASAN MAKNA

Adaptasi penyimpanan koleksi membuat perpustakaan memiliki makna lebih luas menjadi pusat aktivitas masyarakat yang mendukung pembelajaran seumur hidup

MAKERSPACE

Ruang bengkel kreatif yang berperan sebagai “ ruang praktik” bagi pemustaka di dalam perpustakaan yang mendukung pembelajaran seumur hidup

METODE PERANCANGAN Program pembelajaran dan observasi PERPUSTAKAAN MAKERSPACE Program pengembangan diri dan skill METODE DISPROGRAMMING (Bernard Tschumi) Mengkombinasikan dua program ruang yang sifatnya berbeda sehingga kongurasi program pertama mengkontasminasi kongurasi program kedua agar keduanya dapat saling melengkapi dan membentuk hubungan kuat antara kedua program tersebut KONSEP PROGRAMMING FLEKSIBILITAS ARSITEKTUR Adaptation Transformation Movability Interactivity DISPROGRAMMING Adaptation Merespon terhadap perubahan yang akan terjadi Berhubungan dengan bentuk, vulume dan tampak bangunan yang berubah Transformation Hubungan interaksi antara arsitektur dengan penggunanya Unsur bangunan yang dapat dipindahkan Interactivity Movability FLEKSIBILITAS ARSITEKTUR 28 Final Project - Agustus 2021
BELAKANG, METODE
LATAR
PERANCANGAN, KONSEP PROGRAMMING
ANALISIS PROGRAM RUANG 1PROGRAM AKTIVITAS Produksi Observasi Pematangan ide Promosi ONFIGURASI RU Belajar dan diskusi Pembuatan produk Promosi dan hiburan Penunjang Ruang baca Learning space Ruang koleksi Ruang karya Working space Plaza Galeri Teknisi Galeri Adm Komersil DIS-PROGRAMMING Workshop R. Diskusi R. Kelas Seminar Galeri Plaza MAKERSPACE Kolaborasi Berkarya Working Space PERPUSTAKAAN Gagasan dan Ide Interaksi R. Koleksi R. Baca Learning Space R. Karya : Aktivitas
: :
: Aktivitas primer :
ruang 3HASIL KONFIGURASI RUANG
29 Final Project - Agustus 2021 ANALISIS PROGRAM RUANG
sekunder Keterangan
Kebutuhan ruang
Kelompok
Menghubungkan aktivitasaktivitas pada program perpustakaan dan program makerspace kemudian menyimpulkan kebutuhan ruang berdasarkan aktivitas

KONSEP RUANG

Layering

Fungsi ruang kombinasi yang memainkan layering untuk memberikan zonasi yang jelas

Interactivity

Konsep ruang tunggal yang dibatasi oleh perabot multifungsi dan dinding display

Interactivity

Pintu berfungsi sebagai penghubung antar ruang luar dan ruang dalam maupun penghubung antar ruang dalam bangunan

Transformation dan movability

Konsep ruang yang mewadahi kegiatan tertentu yang cenderung tidak dilakukan setiap hari dengan menghubungkan antar ruang eksibel

Open layout

Tidak ada dinding pembatas permanen agar tercipta keterhubungan ruang dan aktivitas

Adaptibility

Ruang dengan konsep mini tribune untuk ruang eksibel yang multifungsi

30 Final Project - Agustus 2021 KONSEP RUANG

KONSEP MASSA BANGUNAN

Perpustakaan

Analogi

Perkotaan

Pusat pembelajaran (otak manusia) Sel-sel pada otak

Makna perpustakaan dianalogikan sebagai otak (pusat pembelajaran) pada sebuah perkotaan, kemudian bentuk bangunan perpustakaan terinspirasi dari sel-sel otak yang sedangmembelahdiri

Split

Bangunan perpustakaan terbagi menjadi empat massa bangunan berdasarkan fungsi bidang koleksi perpustakaan dan administrasi perpustakaan yaitu seni dan budaya, pengetahuanumumdansains,desaindanteknologi,sertapenunjang

Kaca dan ramp Sebagian besar dinding bangunan menggunakan kaca agar aktivitas pemustaka di dalam ruangan bisa terlihat. Ramp sebagai akses utama ke dalam bangunan menuju ke ruangperpustakaan

KONSEP FACADE

Pola fasad

Jaringan sel saraf pada otak manusia

Pola fasad terinspirasi dari neuron atau bentuk jaringan sel saraf yang ada pada otak manusia,bentukinijugadigunakansebagaisunshadingpadabangunan

Ruang program perpustakaan Ruang program makerspace Sel otak yang membelah diri Pola pada fasad bangunan
31 Final Project - Agustus 2021
MASSA BANGUNAN, KONSEP FASAD
KONSEP

LOKASI TAPAK DAN DATA EKSISTING

Lokasi : Jl. Teluk Tiram Darat, Kel. Telawang, ............Banjarmasin

ANALISIS TAPAK

Jl.TelukTiramDarat

MATAHARI

Jl.TelukTiramDarat

GSB : 10 M 2 Luas : 5.942 M Jembatan Pekauman

GSS : 30 M

Ÿ

Lokasi tapak berjarak ±1,5 KM (±6 menit) dari pusat kota menggunakan kendaraan

Lokasi tapak berada di kawasan pemukiman warga

Jembatan Pekauman

Jl.TelukTiramDarat

U

Sungai Martapura

Jembatan Pekauman

Sungai Martapura

Tapak berorientasi ke arah barat laut. Mahatari terbit berada di kanan tapak (area komersil) dan tidak tertutupi oleh bangunan tinggi

Jembatan Pekauman

PENGHAWAAN

Sebagian besar penghawaan alami berasal dari arah sungai dan tidak terlalu terhalangi oleh bangunan-bangunan disekitar tapak

Jl.HjDokMentaya

Jl.REMartdinata Jl.TelukTiramDarat

Sungai Martapura

KEBISINGAN

: Kebisingan tinggi : Kebisingan sedang Tingkat kebisingan tinggi disebabkan kendaraan yang hilir mudik di Jl. Teluk Tiram Darat dan Sungai Martapura. Sedangkan tingkat kebisingan sedang disebabkan suara-suara dari aktivitas yang berasal dari bangunan sekitar

PENCAPAIAN MENUJU TAPAK

: Jalan primer : Jalan sekunder : Jembatan

Terdapat dua jalur akses menuju tapak, yaitu jalur darat menggunakan kendaraan bermotor ataupun jalan kaki dan jalur sungai menggunakan perahu atau kelotok

LOKASI DAN ANALISIS TAPAK
Jl.TelukTiramDarat U Pemukiman Sungai Martapura Jembatan Pek Komersil SITE 54.60m 57.33m 108.62m 105.41m Pemukiman
Sungai Martapura Sungai Martapura
Jembatan Pekauman U
Ÿ
32 Final Project - Agustus 2021 LOKASI DAN ANALISIS TAPAK

SITEPLAN

Keterangan

U
54.60 A A B B
B C D E G F H I A B C D E F F G H I 33 Final Project - Agustus 2021 SITEPLAN
: Area Seni dan Budaya Area Pengetahuan Umum dan Sains A Area Desain dan Teknologi Area Penunjang Open Space Plaza Parkir Pos Jaga Loading Dock
108.60 57.30
105.40
TAMPAK DEPAN KAWASAN
34 Final Project - Agustus 2021 TAMPAK KAWASAN
TAMPAK SAMPING KIRI KAWASAN
35 Final Project - Agustus 2021 TAMPAK KAWASAN

BANGUNAN DESAIN DAN TEKNOLOGI

BANGUNAN PENUNJANG SKYBRIGDE PLAZA

POTONGAN A

PLAZA

BANGUNAN PENGETAHUAN UMUM DAN SAINS SKYBRIGDE

POTONGAN B

36 Final Project - Agustus 2021 POTONGAN KAWASAN

BANGUNAN SENI DAN BUDAYA

SKYBRIGDE SIRKULASI KENDARAAN

BANGUNAN DESAIN DAN TEKNOLOGI OPEN SPACE

PLAZA BANGUNAN PENUNJANG

37 Final Project - Agustus 2021 POTONGAN KAWASAN

Perancangan Perpustakaan Berbasis Makerscape ini merupakan salah satu wujud perkembangan dan perubahan inovasi perpustakaan untuk menjadi solusi terhadap stigma masyarakat yang masih banyak terjebak dalam pemahaman bahwa perpustakaan merupakan gudang buku yang cenderung membosankan. Makerspace pada perpustakaan berfungsi sebagai aktivitas lanjutan setelah pemustaka membedah bacaan atau berdiskusi pemikiran kreatif yang kemudian dapat menghasilkan karya-kara real. Hal ini membuat perpustakaan menjadi salah satu pusat aktivitas pembelajaran yang kompleks.

38 Final Project - Agustus 2021 EKSTERIOR KAWASAN

Lantai satu pada area perpustakaan difungsikan sebagai sirkulasi dan area pemaran. Selain itu, pada area ini juga memberikan pengalama “ ruang antara”, pemustaka seolah-olah berada di luar bangunan namun juga di dalam bangunan. Sedangkan area luar pada lantai dua bangunan difungsikan sebagai area pameran dan sirkulasi yang menghubungkan tiap massa bangunan dan juga sebagai area duduk atau satai bagi pemustaka

39 Final Project - Agustus 2021 EKSTERIOR KAWASAN
40 Final Project - Agustus 2021 INTERIOR
BANGUNAN SENI DAN BUDAYA BANGUNAN SENI DAN BUDAYA BANGUNAN PENGETAHUAN UMUM DAN SAINS BANGUNAN PENGETAHUAN UMUM DAN SAINS BANGUNAN DESAIN DAN TEKNOLOGI
41 Final Project - Agustus 2021 INTERIOR
BANGUNAN DESAIN DAN TEKNOLOGI

PAMERAN ARCHDAY 2019

RUANG BIOGRAFI VAN DER PJIL

Oktober 2019 Mess L, Banjarbaru

Kepingan CD bekas yang dipotong acak membentuk wajah Van Der Vjil dengan warna monokrom dan pantulan warna pelangi dari CD kemudian ditempel pada bidang putihberukuran3.5m x 3.5m

42 Event Project

TERIMA KASIH

Turn static files into dynamic content formats.

Create a flipbook
Issuu converts static files into: digital portfolios, online yearbooks, online catalogs, digital photo albums and more. Sign up and create your flipbook.