PORTFOLIO (AZIEL BARRIENTOS)

Page 1

PORTFOLIO

ARCHITECT

projects

rueda chapel casa caja
4 6 10
centro xi’paal
villa cenit tetramall arquo magazine 12 16 18 3

INTERACTIVE CENTER FOR AUDIOVISUAL ARTS FOR CHILDHOOD

xi’ paal

built area: 3 000 m²

typology: educatonal - cultural location: Tegucigalpa, MDC

descriptive

The project consists of the creation of a building for an interactive audiovisual arts center, with the provision of a property with 861.8169 m in its perimeter, and an area of 38,672.768 m2, located in La Cañada, at a local neighborhood from southern Tegucigalpa.

This interactive center must have the capacity for 34 parking spaces in total, horizontal circulation, distribution of the different pavilions, considering the capacity of each room where fifteen children and one educator develops the functions of the space, recreation areas and maintenance areas, under the urban regulations city plans.

master plan

Centro Interactivo XI´ IPAAL
section central playground
c-c
C C D D A A B B
5

EXPERIMENTAL HOUSING

casa caja

built area: 100 m²

typology: habitational location: Zambrano, MDC

descriptive

The project is a single-family home. It works as a rest house located in the forest of Zambrano; intentionally with minimal but pleasant areas, playing with shadows and lights through different openings and heights.

The architectural plan, seeks to respond to an initial premise for a rest house, but experimental from its shape to its basic areas; It consists of a covered garage, a social area with a swimming pool, a laundry room, a cellar, a hall, a living room, a kitchen, a dining room, two main bedrooms, two terraces, and three sets of full bathrooms and one half bathroom, spread over three levels.

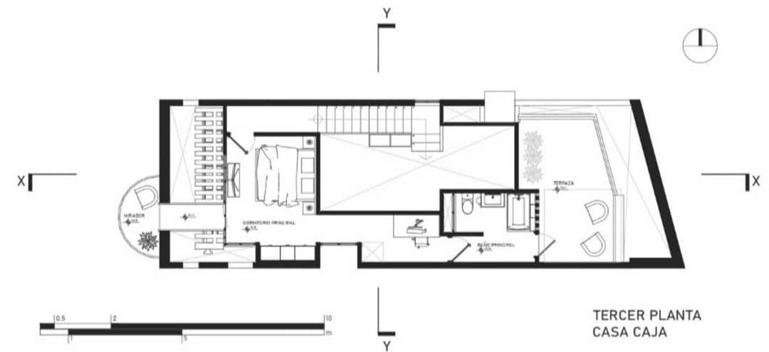
7

EXPERIMENTAL HOUSING

casa caja

first floor plan

second floor plan

third floor plan

render type model

“It’s literally a floating glass box, inside a concrete box with holes in it” - Aziel Barrientos

y-y section x-x section
9

rueda chapel CATHOLIC RETIREMENT HOUSE

built area: 172 m²

typology: religious location: La Ceiba, Atlántida

architectural floor plan

Design for a Catholic Chapel as a Focal Point on the Hilltop. This would be located at the end of a long driveway in the Catholic Retreat Center developed as a design project by the group (Aziel Barrientos, Andrea Varela, María José Zaldívar, Yonathan Peréz).

The chapel tries to stand out from its context, and to be imposed on a hill. For this reason its name and its round shape. It has capacity for 63 parishioners, an altar, and a bathroom cubicle, in addition to a fountain and a defined access and exit.

63 PSNS.
BODEGA ACCESO SALIDA BAÑOS FUENTE 0 0.5 1 1.5 2 NICHO
descriptive rueda chapel rear facade NAVE
ALTAR
63 PSNS.
BODEGA ACCESO SALIDA BAÑOS FUENTE 0 0.5 1 1.5 2 NICHO
frontal facade
NAVE
ALTAR
isometric view
11

villa cenit HOUSING DISTRICT

built area: 97 732.52 m²

typology: habitacional location: Tegucigalpa, MDC.

design: Aziel Barrientos, Carlos Mejía, Clarissa Ardón, Gabriel Vásquez

descriptive

For the development of an urban proposal, several analyzes of the site to be intervened were carried out in class, such as its urban morphology, and identification of urban pathologies, that is, problems in the area. Thus, recognize needs and propose a project. In this case, an urbanization called Villa Cenit was carried out, where a conceptualization, functional and schematic analysis is proposed to conclude with an overall plan, a zoning plan, distribution and corresponding lotification.

master plan

Urban project of a residence called “Villa Cenit” made up of living spaces starting with a commercial entrance square and continuing with a green area axis with several public spaces connected to it. Two types of singlefamily houses and multi-family buildings distributed from this axis.

green axis

13

villa cenit

schematic analysis

secure spaces

habitational division

apartment buildings

spacious public spaces

sports modules

sport courts

elevated bikeway

modulation

recreational spaces cultural exchange

15

tetramallSHOPPING CENTER

built area: 3 000 m²

typology: commercial location: Juticalpa, Olancho

design: Aziel Barrientos, Carlos Mejía, Clarissa Ardón, Gabriel Vásquez

main entrance

descriptive

In order to create an urban balance in the economic, commercial, and architectural sphere; The need has been seen to be able to make way for the location and design of an architectural element that manages to welcome or exit the city of Juticalpa, balancing the urban profile.

Giving way to the premise, it was established that it is necessary to occupy within the access to the city of Juticalpa, coming from Tegucigalpa, a geographic space that serves as a reception, interconnection and interest point for the local citizen and the tourist. Identifying itself, as a solution, to propose the design and construction of a shopping center that integrates these concepts for the local user and the visitor to the city.

Generating Idea: Tetris (Tetronyms)

In search of a unifying element and that as pieces connect a whole. This element is chosen because through the design we want to achieve dynamism, gradation, interconnected, linked spaces, and complementary to each other. Play an important role in the two and three dimensions of the project idea.

view
isometric
17

arquo

editions: 3

publication: trimestral/digital

founders: Clarissa Ardón, Aziel Barrientos, María José Andrade, Irina Cáceres, Yolanda Suárez, Daniela Irías, Andrea Medina, Daniela Ruiz

UNIVERSITY MAGAZINE
ARCHITECTURE

descriptive

Through this project we see an example of those words that a group of students with concern and initiative make a reality and do not develop a product that only publicizes the work of the faculty, but achieves the integration of a multidisciplinary team that breaks schemes. in the presentation of a magazine that has diverse perspectives, reasons and opinions on design, art and architecture.

arquo magazine second edition 19 arquo magazine first edition arquo magazine third edition
Jonatan Aziel Barrientos Guevara Architect graduated from the School of Architecture at the Universidad Católica de Honduras. CELL: +504 9635-5650 TELL: +504 2229-3082 e-mail: jonatanbarrientos31@gmail.com contacts

Turn static files into dynamic content formats.

Create a flipbook
Issuu converts static files into: digital portfolios, online yearbooks, online catalogs, digital photo albums and more. Sign up and create your flipbook.
PORTFOLIO (AZIEL BARRIENTOS) by Aziel Barrientos - Issuu