PORTFOLIO.AZIELBARRIENTOS

Page 1

PORTAFOLIO ARQUITECTO

proyectos

4 6

centro xi’paal

casa caja 10

capilla rueda
12
3
villa cenit tetramall revista arquo
16 18
xi’ paal CENTRO INTERACTIVO DE ARTES AUDIOVISUALES PARA LA NIÑEZ área construida: 3 000 m² tipología: educativa - cultural ubicación: Tegucigalpa, MDC

descriptivo

El proyecto consiste en la creación de una edificación de un centro interactivo de artes audiovisuales, contando con la disposición de un predio con 861.8169 m en su perímetro, y un área de 38,672.768 m2, ubicándose en la Aldea la Cañada, frente a la autopista del Anillo Periférico.

Dicho centro, deberá contar con la capacidad para 34 plazas de aparcamiento en total, circulaciones horizontales, distribución de los diferentes pabellones, considerando la capacidad de cada salón será de quince niños y un educador, áreas de recreación y áreas de mantenimiento, respetando la normativa vigente del Reglamento de Zonificación y Plan de Arbitrios de la Alcaldía Municipal del Distrito Central.

Centro Interactivo XI´ IPAAL
corte c-c
plaza de juegos
planta conjunto
C C D D A A B B
5
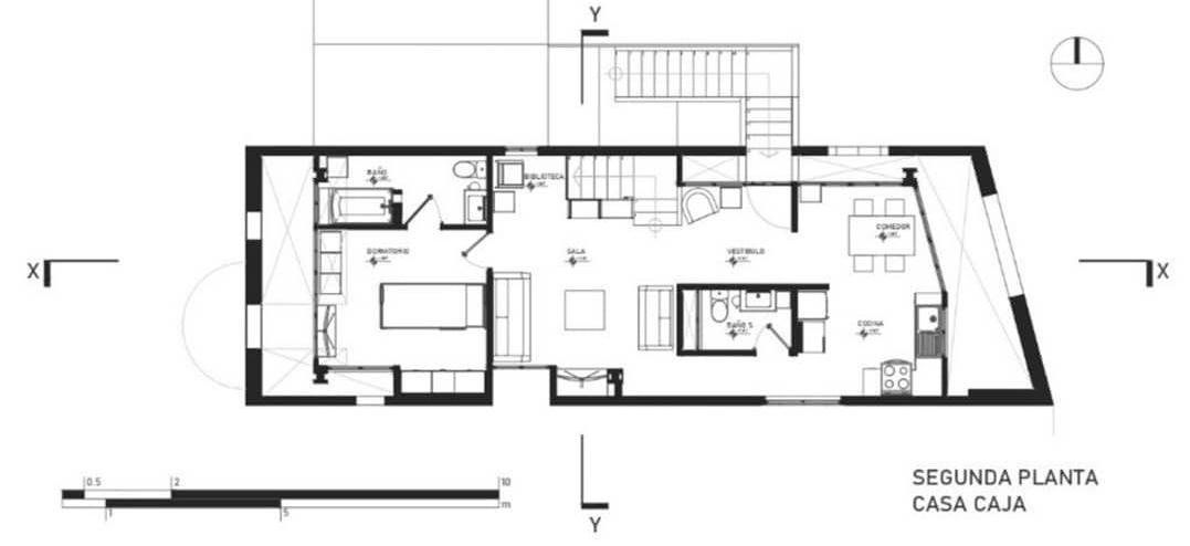
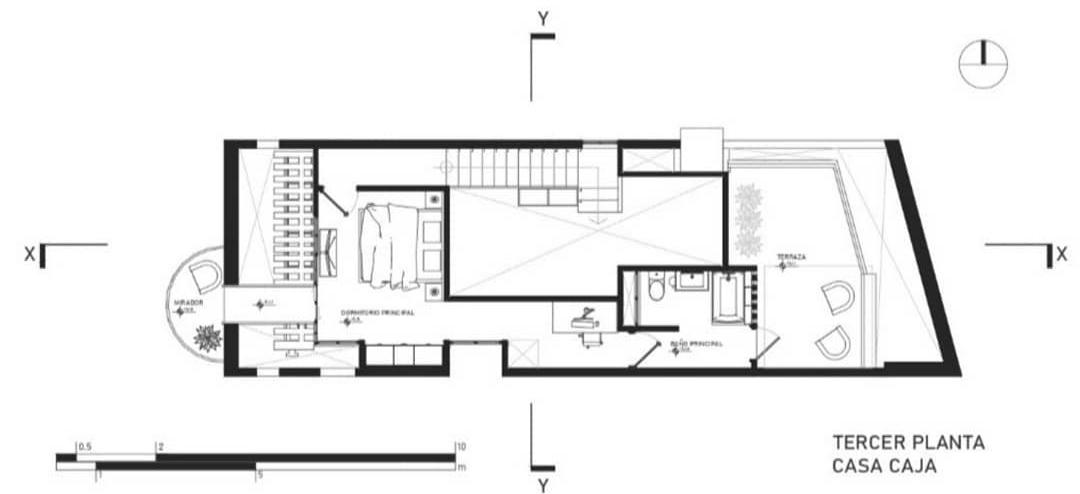
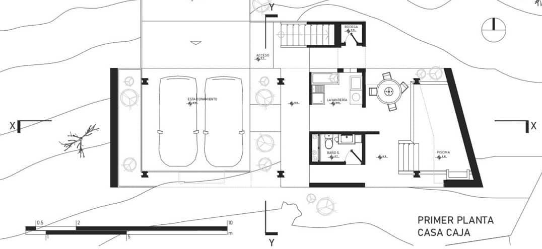
casa
VIVIENDA EXPERIMENTAL
Zambrano, MDC
caja
área construida: 100 m² tipología: habitacionall ubicación:

descriptivo

El proyecto es una vivienda unifamiliar. Funciona como casa de descanso situada en el bosque de Zambrano; intencionalmente de áreas mínimas pero agradables, jugando con sombras y luces por medio diferentes aberturas y alturas.

El plan arquitectónico, busca dar respuesta a una premisa inicial para una vivienda de descanso, pero exprimental desde su forma hasta sus áreas básicas; se compone de un garaje cubierto, área social con piscina, lavandería, bodega, recibidor, sala de estar, cocina, comedor, dos habitaciones principales , dos terrazas y tres juegos de baños completos y un medio baño, repartido en tres niveles.

7

primer nivel

segundo nivel tercer nivel

casa caja VIVIENDA EXPERIMENTAL

render tipo maqueta

“Es literalmente una caja de vidrio flotante, dentro de una caja de concreto con huecos” - Aziel Barrientos

corte y-y corte x-x

9
capilla
CASA DE RETIRO CATÓLICA área construida: 172 m² tipología: religiosa ubicación: La Ceiba, Atlántida
rueda

planta arquitectónica

NAVE

PSNS. ALTAR

NAVE

BAÑOS

capilla rueda fachada posterior

ALTAR

descriptivo

Diseño de una capilla católica como punto focal en la cima de una colina. Esta se ubicaría al final de una larga calzada en el Centro de Retiro Católico desarrollado como proyecto de diseño por el grupo (Aziel Barrientos, Andrea Varela, María José Zaldívar, Yonathan Peréz).

La capilla intenta destacarse por sobre su contexto, e imponerse sobre una colina. Por ello su nombre y su forma redonda. Tiene capacidad para 63 feligreses , un altar, y un cúbiculo de baños, además de una fuente y un acceso y una salida definida.

63
BODEGA ACCESO SALIDA BAÑOS
FUENTE
0 0.5 1 1.5 2 NICHO
63 PSNS.
BODEGA ACCESO SALIDA FUENTE
0 0.5 1 1.5 2 NICHO isometría fachada frontal
11
villa cenit DISTRITO HABITACIONAL área construida: 97 732.52 m² tipología: habitacional ubicación: Tegucigalpa, MDC. diseño: Aziel Barrientos, Carlos Mejía, Clarissa Ardón, Gabriel Vásquez

descriptivo

Para el desarrollo de una propuesta urbana, en la clase se desarrollaron varios análisis del sitio a intervenir, como su morfología urbana, e identificación de patologias urbanas, es decir, problemas en la zona. De esta forma reconocer necesidades y plantear un proyecto. En este caso se realizó una urbanización denominada Villa Cenit donde se plantea una conceptualización, análisis funcional y esquemático para concluir con un plano de conjunto, un plano de zonificación, distribución y lotificación correspondiente.

planta conjunto

Proyecto urbanístico de una residencia denominada “Villa Cenit” conformada por espacios de convivencia iniciando con una plaza de acceso de tipología comercial y continuada con un eje de área verde con varios espacios públicos conectados a el. Casas unifamiliares de dos tipos y edificios multifamiliares distribuidos a partir de este eje.

eje
13
verde

villa cenit

análisis esquemático

oferta habitacional espacios seguros

15
tetramallCENTRO COMERCIAL área construida: 3 000 m² tipología: comercial ubicación: Juticalpa, Olancho diseño: Aziel Barrientos, Carlos Mejía, Clarissa Ardón, Gabriel Vásquez

descriptivo

Para poder crear un equilibrio urbano en el ámbito económico, comercial, y arquitectónico; se ha visto la necesidad de poder dar paso a la ubicación y diseño de un elemento arquitectónico que logre dar la bienvenida o salida a la ciudad de Juticalpa, equilibrando el perfil urbano.

Dando paso a la premisa, se estableció que se necesita ocupar dentro del acceso a la ciudad de Juticalpa, proveniente de Tegucigalpa, un espacio geográfico que sirva de punto de recepción, interconexión e interés para el ciudadano local y el turista. Identificándose, como solución, plantear el diseño y construcción de un centro comercial que integre estos conceptos para el usuario local y el visitante a la ciudad.

Idea Generatriz: Tetris (Tetrónimos)

En busca de un elemento unificador y que como piezas conecte un todo. Se escoge este elemento porque a través del diseño se quiere lograr dinamismo, gradación, espacios interconectados, enlazados, y complementarios unos de otros. Juega un papel importante en las dos y tres dimensiones de la idea de proyecto.

isometría
17
acceso principal
arquo REVISTA ESTUDIANTIL DE ARQUITECTURA ediciones: 2 publicación: trimestral/digital fundadores: Clarissa Ardón, Aziel Barrientos, María José Andrade, Irina Cáceres, Yolanda Suárez, Daniela Irías, Andrea Medina, Daniela Ruiz

revista arquo primera edición

descriptivo

Por medio de este proyecto vemos un ejemplo de esas palabras que un grupo de estudiantes con inquietud e iniciativa hacen realidad y no desarrollan un producto que solo de a conocer la labor de la facultad, sino que logre la integración de un equipo multidisciplinario que rompe esquemas en la presentación de una revista que tiene diversas miradas, razones y opiniones.

revista arquo segunda edición

19
Aziel Barrientos Guevara Arquitecto graduado de la Escuela de Arquitectura en la Universidad Católica de Honduras. CEL: +504 9635-5650 TEL: 2229-3082 e-mail: jonatanbarrientos31@gmail.com contactos
Jonatan

Turn static files into dynamic content formats.

Create a flipbook
Issuu converts static files into: digital portfolios, online yearbooks, online catalogs, digital photo albums and more. Sign up and create your flipbook.
PORTFOLIO.AZIELBARRIENTOS by Aziel Barrientos - Issuu