My first document

Page 1

portfolio

As an enthusiastic college student seeking an architecture internship, I possess a deep passion for design and a strong desire to learn and grow within the field. My academic background in architecture has equipped me with technical knowledge and an understanding of architectural history, theory, and principles. I am a creative problem solver with a keen eye for detail and strong organizational skills. I am a team player, eager to collaborate and contribute to the success of the firm. Overall, I am a dedicated and driven individual with a passion for architecture and ready to make a valuable contribution to any team.

CONTACTS

Phone: 9995438580

Email: ayra.badrudeen@barch.christuniversity.in

EDUCATION

Primary School The Indian High School, Dubai, UAE

2006 - 2010

Secondary School Chinamaya Vidhyalaya, Kannur, Kerala 2010 - 2016

B. Architecture School of architecture, CHRIST (Deemed to be University)

Bangalore, Karnataka

SOFTWARES

Autocad

Sketchup

Adobe Photoshop

Adobe Illustrator

In-Design

Rhino

Grasshopper

Lumion

Twinmotion

Revit

Metashape

Filmora

ACHIEVEMENTS

Hospitality head 64th Annual Nasa Convention 2022

Class Representative Chrit Univerity 2023

Presented a Research Paper at ZEMCH

Curated several exhibitions, and hosted several events within college and outside.

W ORKSHOPS

Conference held at BMS School of Architecture, November 2022 2022

Christ University, Chinmaya Vidhyalaya 2019-2023

MANUAL SKILLS

Gender Space Ecology Rohan Shivkumar 2023

Photogrammetry Maniyarasan R 2023

Architectural Psycology Prachi Sharma 2022

Model Making Sketching Painting Craft Wood Working Stone Carving LANGUAGES English Hindi Malayalam Kannada Tamil Arabic

1 2 3

ANGANWADI HOTEL RESORT FEMINIE CUBE

4 5 6

WATHEEN KIOSK RHINO EXPLORATIONS REVIT EXPLORATIONS

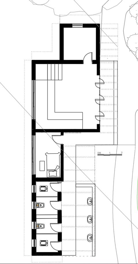
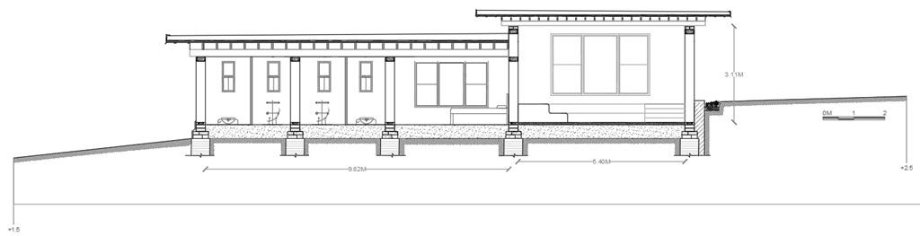
ANGANWADI

As an architecture student, I designed an Anganwadi with a focus on creating a safe and stimulating environment for children. Incorporating biophilic design, flexible spaces, and inclusive facilities, I aimed to promote their well-being and foster holistic growth. Collaborating with educators and experts, I integrated age-appropriate learning areas, play zones, and child-friendly materials. The design emphasized natural light, greenery, and proper ventilation. This experience allowed me to merge my passion for design with a social cause, reinforcing the transformative power of architecture in enhancing communities and supporting the development of young children.

1
2
4 ANGANWADI INFIRMARY STORAGE WASHING AREA +2.7 lvl +2.64 lvl +2.79 lvl +3.66 lvl +3.2 lvl +2.86 lvl +2.49 lvl
SECTION BB’ SECTION AA’

ECO RESORT

Designing a resort in Alleppey, Kerala as an architecture student was a transformative experience. Inspired by the region’s natural beauty, I blended traditional Kerala architecture with modern design principles to create a harmonious and immersive environment. The resort integrated seamlessly with the surroundings, featuring openair spaces and waterfront accommodations. Sustainability was prioritized through rainwater harvesting and solar panels. Collaborating with local artisans added cultural richness to the project. Designing this resort allowed me to celebrate Kerala’s heritage while offering a memorable and sustainable experience for guests, merging architecture, nature, and culture in a harmonious way.

5
6
7
8
9
10

SECTION 1

SECTION 2

11

SECTION 2

SECTION 1

FEMININE CUBE

I had the opportunity to design a gender studio intervention near Ulsoor Lake in Bangalore, and it was an incredibly empowering experience. Recognizing the need for inclusive spaces that promote gender equality and women’s empowerment, I approached the design with great sensitivity and enthusiasm. Designing the gender studio intervention near Ulsoor Lake allowed me to merge my passion for architecture with a commitment to social justice. It reinforced my belief in the power of design to transform spaces into platforms for empowerment and inclusivity.

13
14
15
EXPLORATION 875 750 875 625 1125 1250 750 860 1000 625 1125 700 860 1450
EXPLORATION 1
16

WATHEEN KIOSK

Designing a kiosk for a supermarket in Wayanad, Kerala was an exciting project during my time as an architecture student. The challenge was to create a functional and visually appealing structure that would seamlessly blend with the aesthetics of the surroundings. By incorporating local materials and utilizing sustainable design principles, the constructed kiosk not only fulfilled its purpose as a service point but also became an aesthetically pleasing addition to the surroundings, contributing to the overall charm of the supermarket.

17
18

RHINO EXPLORATIONS

As an architecture student, incorporating Rhino into your workflow can significantly enhance your design process and presentation skills. Rhino’s intuitive interface and powerful modeling tools make it an invaluable software for creating detailed and accurate 3D models of architectural structures. By utilizing Rhino, you can explore different design concepts, experiment with forms and shapes, and refine your ideas with precision.

19
21
22

MISCELLANEOUS

As an architecture student, designing extends beyond my academic pursuits and becomes a fulfilling hobby in my everyday life. Whether it’s sketching architectural concepts, experimenting with interior design, or even creating 3D models, I find immense joy in exploring new ideas and pushing the boundaries of creativity. This hobby allows me to continuously refine my skills, stay connected to my passion, and cultivate a deep appreciation for the art and science of architecture.

23

PODCASTS

24
During lockdown, it was in initiative to start my own podcast on architectureand architects in india.

JACKET DESIGN

Our college team required different iterations of jackets and color-scemes for their dance performance

25
26
COMPETIONS

COLLEGE RENDERS

27
shown above are blocks 1 and block 2 of Christ university(deemed to be) with an open auditorium in between

CAFE INTERIOR DESIGNS

28
cafe interior design iteration for a client in kerala

ILLUSTRATIONS

some of the illustrations done on adobe illustrators as a hobby

29

The above posters are start up ideas that I believe has great potential and will be executed in the future

30 NOTE EVERY SINGLE DAY Themed cover illustrations Customize- No. of pages, gsm, Page style etc. Yearly themed customiseable BOOKS NOTEPADS Reusable notepad Personalised cover Detachable sheets Space for pens, Additional pouch storage etc. CREATING DESIGNING, and Delivering QUALITY stationery materials, products and design solutions at student friendly prices. SHEETS Loose sheets of various gsm, style. Gateway, buttersheets, plain, ruled etc. Can be attached to our reusable notepad. To- do lists. JOURNALS Personalised Cover page. Self- help/ organisational activities. Sticky notes, stickers CALENDERS STICKERS ONE STOP STATIONARY DESTINATION
START
UP PITCHES

KIOSKS DESIGN CONCEPT

31
This is a concept for dryfruits and nuts store for a kiosk to be built in a supermarket in bangalore

SMALL BUISNESS

32
33 .

Turn static files into dynamic content formats.

Create a flipbook
Issuu converts static files into: digital portfolios, online yearbooks, online catalogs, digital photo albums and more. Sign up and create your flipbook.