AveryVuong_Portfolio_2025

Page 1


TABLE OF CONTENTS

ACADEMIC PROJECTS

WORK SAMPLES

DESIGN COMPETITION

PHOTOGRAPHY

Hello! I’m Avery, a fifth-year architecture student from Cal Poly SLO. I’m interested in socially-impactful design and sensory experience as they relate to wellness and connectivity; I use these concepts to ensure that my projects are appropriately tailored to their unique contexts.

ANCHOR

With limited space in Washington D.C.’s city center and demand for housing on the rise, Anchor is a speculation on how housing can take on significance beyond common programmatic function. A mixeduse building at D.C.’s NE2 boundary stone becomes a community beacon for Takoma, backing the neighborhood’s desire to evolve from its roots as a commuter town. Passerby are invited to pause and take in their surroundings at the ground-floor bakery cafe and adjacent seating areas. Thirteen affordable housing units and communal spaces, woven in between structural CLT panels, occupy the floors above.

Lot size: 10,700 SF

Building footprint: 6,000 SF (4,500 SF setback area) Program:

Cafe-Bakery: 4,000 SF

Residential units: 500 SF ea (13)

Green area: 3,200 SF (min. 3,100 SF)

Jun. 2024

Rhinoceros Photoshop

Illustrator

Left: Composite of local sights and influences

Bottom Left: Conceptual structure diagram

Below: Approaching from downtown

+66’-0”

PENTHOUSE STRUCTURE

+54’-0”

4TH FLOOR

+41’-0”

3RD FLOOR

+28’-0”

2ND FLOOR

+15’-0”

1ST FLOOR

RESONATE

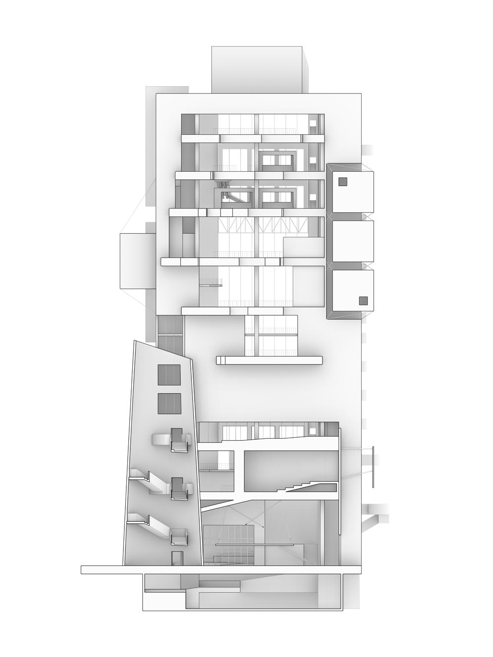
Although an important component in many of our day to day lives, the world of sound remains relatively unexplored. A 50,000 SF high-rise for a VR/AR company in San Francisco’s financial district, Resonate fosters aural discovery, analysis, and sharing through innovative form and program informed by sound and lighting qualities. Suspension and isolation (in both structural and programmatic senses) support new modes for collaboration.

Program:

Workspaces: 16,000 SF

Self-proposed program: 8,000 SF

Parking: 6,000 SF

Amenities: 6,000 SF

Equipment testing: 5,000 SF

Public space: 4,000 SF

Support: 3,500 SF

Administrative: 1,500 SF

Jun. 2023

Rhinoceros Photoshop

Grasshopper Ladybug

SE view from the California & Drumm St. intersection

FIBER CEMENT PANEL

ELEV. 228' ABOVE GRADE

PERFORATED 3MM TEMPERED ALUMINUM ALLOY PANELS

ALUMINUM GIRT SYSTEM

STICK MULLION

ELEV. 36' ABOVE GRADE

GRAVEL STOP

ELEV. 210' ABOVE GRADE FIRE STOP

STEEL BRACKET

ELEV. 192' ABOVE GRADE

INSULATED GLAZING ALUMINUM MULLIONS

TWO WAY CONCRETE SLAB

ELEV. 174' ABOVE GRADE

INSULATED GLAZING

STEEL MULLION

STEEL CLIP

SPIDER JOINT

5/8" FROSTED GLASS

JUN. 21: 76° DEC. 21: 30° B C A

5/8" EXTERIOR GRADE PLYWOOD

INSULATION

WATER RESISTANT MEMBRANE 2'

SCALE: 1/2" = 1'-0" 0'

ACOUSTIC BACKING CEILING TILE

WATERPROOFING T-TRACK

RIGID INSULATION

ELEV. 0'

DRAINAGE LAYER

GRANULAR BACKFILL

FILTER FABRIC

DRAINAGE PIPE

DRAINAGE GRAVEL

WOODEN BAFFLE

PERIPHERAL VISION

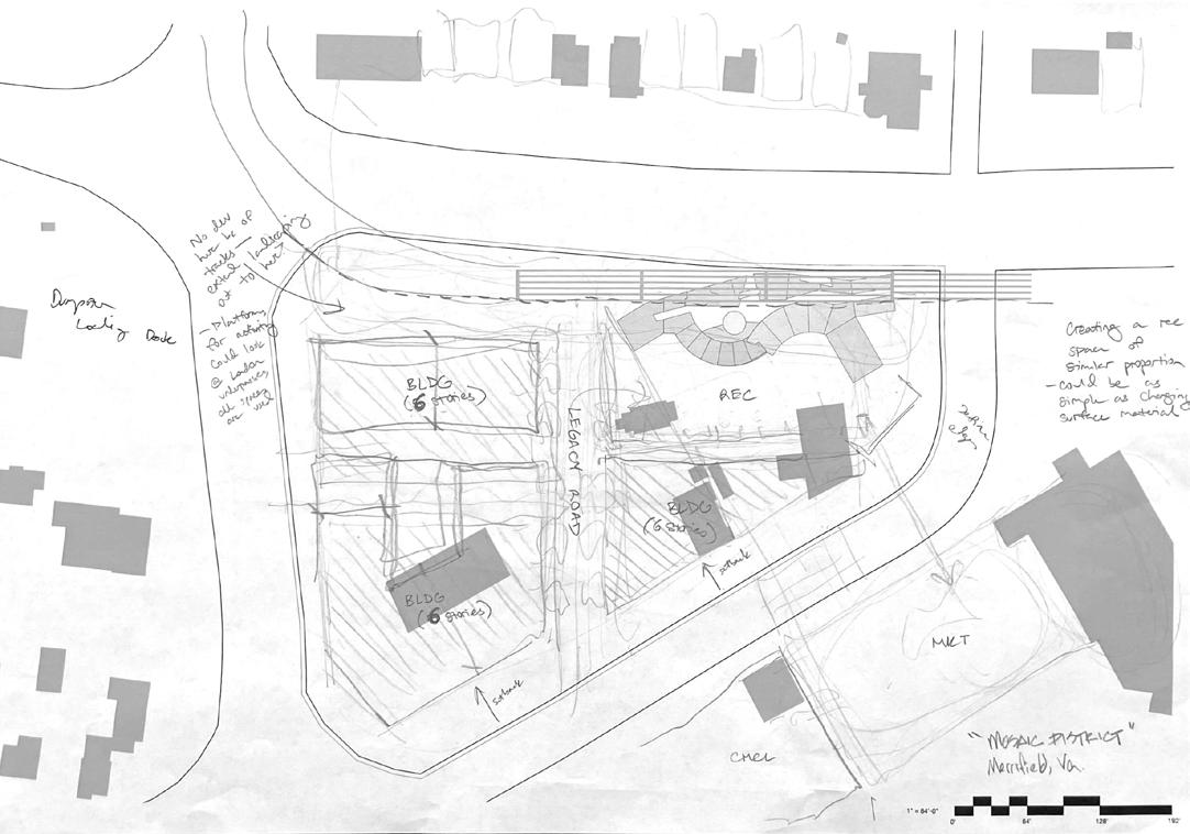
Peripheral Vision speculates on the future of Riverdale, MD and how it will develop as Maryland’s Purple Metro Line (currently under construction) comes to fruition. In response to a local need for nature access and teen-friendly spaces, the lightrail metro station doubles as functional public space. The space underneath the tracks, commonly relegated to being a host for “delinquent” activity, invites all with the addition of a dry streambed and the platform’s interactive structural supports. As seasons change, locals and visitors share in discovering the experiences the space has to offer.

2023

Conceptual sketches

From across the road

Dec.
Rhinoceros
Photoshop
Illustrator

Form Sketch

Analysis & Form Drivers (1” = 64’-0”)

Castro Youth Activist Arts Center

A social and spatial mediator located in a historically queer neighborhood, Castro, in San Francisco, CA. Site analyzed through lenses of ecology, culture, & the built environment. Synthesized site analysis with approximately 30,000 SF of self-determined community-oriented programming . Use of acoustic visibility to signal levels of interaction of different areas to center visitors.

Dec. 2022

Rhinoceros Covetool Photoshop

Circulation concept sketch: inspired by an experience common to older buildings in SF of entering a residence below street grade, then circulating upwards

View from Market & Castro Street
Street Intersection

REBOO[S]T

An exploration project for thesis, Reboo[s]t draws upon the logic of a discarded vacuum robot’s (presumed) obsolete components to become a diffuser, exemplifying a redirection revealed through repair and maintenance. Shifting the focus towards architecture, what opportunities might arise from embracing the diversity of a building’s components, states, and interactions?

Nov. 2024

iRoomba Robot Arduino PLA Water

Essential Oils

Airflow through Reboo[s]t
Modified brush cage
Mechanical Dissassembly
Reboo[s]t
Modified fan system
“Snout”

INTERNSHIP WORK SAMPLES

My internship at NAC’s Seattle office helped me better understand the importance of storytelling, as well as the various roles architects take on. Major assignments completed in this internship include: development of a Community-Engagement Graphics Toolkit to be implemented firm-wide, topography editing in Revit and Enscape renders for a university housing project, compilation of materials for two AIA Civic Design award submittals (can show upon request), and RFP graphics.

responses from multiple respondent groups with considerable overlap

Instructions here: Use this when there's too much overlap in answers from your respondent groups such would reduce a Venn Diagram to a circle. You can point out how many respondent groups contributed to diagram on left).

Washington-Blakely

Washington-Blakely Student Housing

Axonometric diagram courtesy of NAC Preliminary renders such that it

contribution: Editing topography and hardpreliminary renders

For displaying comparative data

See slide 5 of the PPT template (linked in

Foster  collaborative,  creative, vibrant,  visible learning  spaces

Encourage  teacher  collaboration

Size indicates  total votes,  opacity indicates  # of user groups  comment is from

1) Walking along the Burke Gilman Trail
2) Main site entrance
3) Within the agora

SYNAPSE SYMPHONY

Synapse Symphony, completed for the 2022 Barbara G. Laurie Student Design Competition, re-imagines a pedestrian overpass to reunify two sides of a North Nashville neighborhood severed by Interstate-40. The seeds for placemaking and re-establishing community ownership draw heavily upon local performing arts strength.

Our project team of 11 members worked over 4 months. This entry advanced to the national final round and was presented at the NOMA National Conference.

Oct. 2022 Photoshop Indesign After Effects Rhinoceros

Personal contributions: Project management (schedul ing, team assignments); Presentation boards (layouts, additional graphic elements); Render view selection (also added entourage, colors, texture—base materials rendered by other team members); Digital modelling

“The Synapse Symphony” pays homage of a previously severed neighborhood for North Nashville to determine its own the major design strategy implemented interstate underground. Residents can

The Synapse Symphony conducts itself park space as an extension of Hadley Park, between Pearl-Cohn High School and the ground plane, the community is able additional communities to take back ownership as a tourist attraction but rather supplements

Title Presentation Board

Walking along the bridge gallery,

homage to North Nashville, Tennessee’s past and present by prioritizing the reunification neighborhood while revitalizing and illuminating today’s community, and by sowing the seeds own future through placemaking. In order to repair the damages caused by the I-40, implemented to allow the community to retake ownership of their land is pushing the divisive can celebrate their history of musical talent, thriving black businesses, and activism.

itself towards the local community with integrated musical practice rooms, recreational Park, a sweeping monolith serving as a circulatory gallery, and a space for mentorship HBCUs such as Tennessee State University. By minimizing the highway’s presence at able to re-weave streets, grant access to student resources, and set a precedent for ownership of what was stolen from them. This design does not reinvent or try to act supplements and highlights the pride and richness of the North Nashvillian community.

PHOTOGRAPHY

Fixations on mundane delights

Turn static files into dynamic content formats.

Create a flipbook
Issuu converts static files into: digital portfolios, online yearbooks, online catalogs, digital photo albums and more. Sign up and create your flipbook.