Fall 2025 Avonian

Page 1


The Ann K. Kirby Wellness Center

3 Head of School 4 Village Green

from the EDITOR

As readers of last spring’s cover story will recall, Avon Old Farms School has proudly embraced Theodate Pope Riddle’s original architecture for nearly a century. Our campus is steeped in tradition and grounded—literally and figuratively—by enduring foundations. Yet even the most timeless institutions must evolve to meet the needs of their students.

This fall, we are thrilled to unveil the newest addition to Mrs. Riddle’s campus: the Ann K. Kirby Wellness Center.

The Kirby Wellness Center represents a bold new foundation for our community—one rooted in the belief that true growth must be nurtured both physically and mentally. With state-of-the-art spaces dedicated to health, wellness, and counseling, the center stands as a testament to Avon’s commitment to student well-being. Funded by the Ann K. Kirby Foundation, through the leadership and generosity of Avon Board Member Wade and his wife, Linda Kirby, P’17, ’18, the center reflects our shared understanding that developing young men of character requires more than academic rigor—it requires care, balance, and support.

Avon has always been thoughtful in expanding our historic campus. In 2002, the Ordway Science & Technology Center enhanced our ability to teach modern science in modern spaces. In 2007, the Brown Student Center and the Beatson Performing Arts Center addressed the needs of a growing student body while furthering our mission of educating the whole person. Now, the Ann K. Kirby Wellness Center builds on that legacy, offering our students the resources they need to thrive—academically, socially, and emotionally.

With another school year underway, 2026 fast approaching, and our centennial celebration on the horizon, Avon Old Farms will continue our pledge to honor tradition and inspire excellence, but we’re also forging ahead.

Aspirando et perseverando,

JACQUELINE KELLER, EDITOR kellerj@avonoldfarms.com (860) 404-4116

Established 1927

HEAD OF SCHOOL

Jim Detora P’12

ASSOCIATE HEAD OF SCHOOL

Robert J. Whitty ’87, P’16

MANAGING EDITOR

Jacqueline Keller

ASSISTANT EDITOR

Adam Hushin

The Avonian is published for the alumni, parents, grandparents, and friends of Avon Old Farms School. It is distributed to approximately 7,000 readers. All rights reserved.

AVON OLD FARMS SCHOOL

500 Old Farms Road Avon, CT 06001 www.avonoldfarms.com (860) 404-4100

ADMISSIONS (800) 464-2866 admissions@avonoldfarms.com

ALUMNI

We enjoy hearing from you! Please send us your latest news and notes:

EMAIL: alumni@avonoldfarms.com

ARCHIVES archives@avonoldfarms.com

EMAIL

Members of the administration and faculty can be emailed by using the following formula: last name + first initial @avonoldfarms. com. The directory on the school website also includes email links.

Avon Old Farms School admits students of any race, color, national and ethnic origin to all the rights, privileges, programs, and activities generally accorded or made available to students at the school. It does not discriminate on the basis of race, color, national or ethnic origin, disabilities, or sexual orientation in the administration of its educational policies, admissions policies, scholarship and loan programs, and athletic and other school administered programs.

Dear Avonians,

By the time you read this, the first months of the school year will be behind us, and our campus will be fully immersed in the rhythm of fall. The days grow shorter, athletic fields glow under evening lights, and classrooms hum with curiosity and discovery. It is in these ordinary yet remarkable moments, when Avon’s spirit shines, that boys find their place, build confidence, and learn what it means to be part of something larger than themselves.

This fall, we welcomed 406 students from 25 states and 13 countries, including 143 new Avonians. Their families have entrusted us with the responsibility of guiding their sons toward becoming men of strong moral character, a charge we embrace with care and conviction. Whether on the playing fields, in the art studios, or around the dining table, every boy adds to the strength of our brotherhood.

Our campus continues to reflect both tradition and progress. The renovation of Eagle Dormitory has refreshed one of our cherished residential spaces, the Ann K. Kirby Wellness Center is nearing completion and will open later this school year, and the new entrance to campus now provides a warm welcome to students, families, and alumni. These improvements represent our ongoing investment in Avon’s future, ensuring that even as we modernize, we remain true to the timeless character that defines our school.

Equally important are the moments that deepen our sense of community. This fall, we gathered for a spectacular Reunion Weekend in September, where alumni cheered our football team to victory, celebrated milestones, and honored enduring legacies, all while reflecting on the values that unite us. Family Weekend followed in October, bringing students and families together in classrooms and on the fields to share in the Avon experience. These traditions continue to connect generations of Avonians and keep Mrs. Riddle’s vision alive.

As we approach Avon’s Centennial in 2027, we carry forward a proud tradition while embracing the opportunities of a new century. The investments we make today, in our students, in our campus, and in our shared values, ensure that Avon remains a place where boys grow into men of character and purpose. I am grateful for your partnership and excited for what lies ahead.

Aspirando et perseverando,

FROM THE HEAD OF SCHOOL

village green

Avon Old Farms Gets A NEW MAIN ENTRANCE

As students were dropped off to begin the 2025–26 academic year, they were greeted with a newly unveiled main entrance to campus. While the location is the same, the approach to Avon’s historic Water Tower now has an entirely different feel, building on the state-funded Old Farms Road Project.

Approved by Avon voters in December 2022, the Old Farms Road Project addressed long-standing safety concerns along the rural, winding road while accommodating the area’s increased traffic demands. According to town planning documents, Old

Farms Road and Thompson Road had long been considered rural in character, but increased residential development to the west and commercial growth to the east had placed added strain on this already vulnerable corridor. For Avon Old Farms, which owns most of the surrounding land, the road had become not only a main vehicular access point but also a crucial pedestrian link between campus living spaces and athletic facilities. The risk posed by growing traffic had become increasingly evident.

In the spring 2023 edition of The

Avonian, we shared news of the roadwork and its implications for campus access and safety. A key feature of this first phase was the addition of a new roundabout at the intersection of Old Farms Road and Scoville Road—one arm of which now leads directly to Avon’s new main entrance.

With the help of The S/L/A/M Collaborative—longtime design partners of the school thanks to Rich Connell ’74—the vision for the new entrance began to take shape. Planning began in fall 2021, with the final design approved in early 2024 and construc-

tion commencing in spring 2025. According to Alisa Harrison, an associate landscape architect at S/L/A/M, several design and construction considerations guided the process:

• seamless integration with the new town-constructed roundabout

• use of existing materials, including salvaged stone from original entryway walls

• protection of mature trees and thoughtful replanting to create a boulevard effect

• preservation of sightlines to the iconic Water Tower

• cohesive design with matching stone columns and walls at both the north and south campus entrances

• improved traffic circulation and wider clearance for larger vehicles

One of the defining features of the design is the use of columns of varying sizes: larger, more prominent columns mark the transition from the roundabout to the driveway, while a secondary set further defines the formal campus threshold. New plantings along a center median frame the roadway and reinforce the feel of a traditional school boulevard.

By May 1, 2025, traffic was flowing smoothly on the newly paved stretch of Old Farms Road and through the roundabout. The school’s main entrance was paved on May 5, with final coats applied by May 29. The final flourish was the installation of a new entrance sign and new lamp posts, completing the transformation. With safety as the guiding priority, the new entrance balances tradition and progress, offering a dignified welcome to generations of Winged Beavers—past, present, and future.

AVON OLD FARMS TO HOST ACADEMIC CONFERENCE ON THE DECLARATION OF INDEPENDENCE

Yale Professor David Blight to Deliver Keynote, Livestreamed for All Alumni

In April 2026, Avon Old Farms School will host a landmark academic conference titled “The Meanings and Uses of the Declaration of Independence at 250 Years” as part of the prestigious Evans History Initiative. The event will take place on April 9, 2026, and marks another ambitious intellectual gathering—Avon’s third to date—placing Avon at the forefront of national commemorations for the Declaration’s semiquincentennial.

Anchoring the conference will be a keynote address by Pulitzer Prizewinning historian and Yale University professor David Blight, author of the acclaimed Frederick Douglass: Prophet of Freedom. His keynote will be livestreamed on Avon’s website, offering our community around the globe an opportunity to virtually engage in this historic conversation.

“The Declaration of Independence is more than a founding document,”

says Dr. Chris Doyle of Avon’s History Department. “It has served as a rallying cry for justice, equality, and liberty across centuries—not just in the United States but around the world. Our conference will explore how this document has been interpreted, used, and even contested across time and place.”

The conference invites participation from Avon students, educators from across New England, and academic leaders from area universities. Attendees will present papers, lead teaching demonstrations, and engage in discussions ranging from civil rights to global revolutions, all rooted in the evolving legacy of the Declaration.

Avon Old Farms has previously hosted similarly robust academic events, including conferences on the 400th anniversary of slavery and modern pedagogy in the 21st century, drawing national and international scholars. The 2026 conference is

expected to build on that momentum, further establishing Avon as a thought leader in secondary education.

In addition to drawing a scholarly crowd, the school will invite alumni and parents working in law, politics, journalism, and education to attend or tune in virtually. The school also plans to collaborate with Connecticut’s official America 250 Commission to align conference details with broader statewide commemorations.

“By hosting this event, we aim to do more than reflect on history—we seek to initiate critical thought and dialogue that defines the Evans History Initiative,” says Doyle. “This is about engaging students and the broader community in the active pursuit of understanding our past to inform our present.”

Alumni who wish to attend the livestream of Professor Blight’s keynote will receive information in advance of the event. Stay tuned for details.

● Save the Date: April 9, 2026

● Keynote Livestream Featuring David Blight, Yale Professor and Pulitzer Prize-Winning Author

DETAILS, VISIT

Anthony “AJ” Zappone ’26

Adolescence is a time of selfdiscovery, and the 860-acre oasis that is the Avon Old Farms School campus is intentionally and purposefully designed to be the best environment for boys to make their discoveries. Trail-clearing with the Nimrod Club at Beaver Pond can awaken a love for the outdoors. Joining a sub-varsity sports team can introduce teens to an eventual lifelong hobby. Walking through the quad has inspired alumni to pursue architecture,

following in the footsteps of school founder Theodate Pope Riddle. Other students, like Anthony “AJ” Zappone ’26, make their personal discovery amidst the color and creativity of the Estabrook Fine Arts Building.

Before arriving at Avon, AJ had no interest in the arts. “I had taken art classes, but I don’t remember ever enjoying it,” he admits. The arts weren’t always on AJ’s radar growing up, but Avon Old Farms School certainly was. AJ’s dad, Bill ’97, uncles

John ’82 and Steve ’99, and cousin Ryan ’23, had all become Winged Beavers before him. So, when his family relocated from Litchfield to Avon when he was 10 years old, AJ saw it as a sign he’d be the next Zappone to attend. “We have strong family ties to Avon, but it wasn’t always on my path. I’ve had my eyes and heart on Avon for a while, since I first stepped foot on campus for youth hockey games,” AJ shares. Therefore, when it was his turn to submit an application, he took the

process very seriously. “I was really stressed, actually. It was a huge relief when I got my acceptance package in the mail.” In the fall of 2022, AJ arrived for his freshman orientation and quickly realized that attending boarding school is an adjustment even for someone already very familiar with the school. “It was a bit of a culture shock. There were a lot of aspects that weren’t easy, but I never once doubted my decision.”

One of these early challenges came when he was selecting his course load

for the year. He tried to get into a photography class to get his required art credits out of the way early. Unfortunately—or so he thought at the time—AJ ended up in a drawing class instead. “I remember thinking ’Are you kidding me? Now I have to spend the whole semester drawing.’

But by the time I was a few weeks in, I discovered I really like drawing. It helped me find out more about myself. It gave me a creative outlet and was a big stress reliever, which actually helped me in my other classes.”

AJ says his parents were just as shocked as he was by his new interest. “I was always a sporty kid. I was never artsy. I think that says a lot about the art staff here at Avon. Mrs. Pinton, Mr. Calibey, they’re all superstars.”

He goes on to explain what it was that appealed to him. “It was a release. It’s a creative escape. I finish my classes, head to the art building, put headphones in, and work. There’s no rules. I am free to just explore myself. It’s an outlet that I can use however I need to on any given day.”

According to teacher Greg Calibey, AJ’s talent for art developed just as quickly as his interest in it. “AJ displayed skill immediately as a freshman. He was able to recognize and represent complex nuances,” Calibey says. “His technique and understanding continues to grow each year.” For AJ, this type of praise from a mentor is partially why he continued to explore his new discipline. “I think hearing Mr. Calibey say, ’You’re good at this,’ made me want to try even harder and pursue this more. I didn’t want my potential to go to waste.”

His talent started to become more apparent by his sophomore year, when his art pieces started earning accolades. Most recently, his painting Seated Girl won a Gold Key at the 2025 Connecticut Scholastic Art Awards. “That was some pretty

I’ll get to a point in my art where the painting starts to look too good, so I have to ruin it—and by that I just mean take a risk. These gambles are creative risks that you have to take when painting. … In the end, all of the components come together and make for a great piece.

good recognition that I wasn’t expecting. I think my parents were as shocked as I was, but I know they were super proud of me.” Although, AJ adds, he doesn’t create to win awards or to get a good grade in art class. He says it’s all about the feeling he gets when painting and being able to express himself.

For AJ, each painting is a microcosm of his overall self-discovery in the arts. “When I finally finish a piece, I reflect and realize that I was such a different person before starting it. How I see the finished product isn’t even close to the same as what I envisioned at the start.” This is due in part to AJ’s unique approach and process to his paintings. “For most of my paintings, there’s no set plan after the first day. Things aren’t exactly

calculated in the moment, but I always find a way to take advantage of the results of my decisions. It’s a real feeling of freedom.” He says the outcomes are a true reflection of how he was feeling while creating it. “A lot of times, I’ll get to a point in my art where the painting starts to look too good, so I have to ruin it—and by that I just mean take a risk. These gambles are creative risks that you have to take when painting. They could go wrong, but is it really wrong? Or is it just unexpected? In the end, all of the components come together and make for a great piece. My decisions may not be logical, but they’re necessary.”

This relentless pursuit of subjective perfection is what sets AJ apart. It has certainly impressed his teachers. “AJ

is a grinder, which you need to be to have any chance in the arts—or anywhere else, for that matter. It’s a great asset,” Calibey says. “My goal for him this year is to continue to learn through the struggle and hopefully create his finest work yet.”

In one example, AJ reached a point where a piece he was working on looked perfect, but to AJ, it looked “too perfect.” So, he found an electric power sander in the art studio and began applying it to his canvas. The end result was an interesting blend of textures that accentuated certain features of the painting. “I loved how it came out,” AJ says.

With the amount of work that goes into each piece, AJ has been an avid participant of the Advanced Independent Project (AIP) program. The AIP program allows students to use their afternoon activities time slot to pursue a passion project. Past AIPs range from official internships in medicine or finance to scientific lab work. Many, including AJ’s, have involved working on a visual art portfolio. This meant AJ had even more time throughout the week to create and express himself. It also meant an expanded art education. “Painting, and art in general, got so much more complex when I was working on that AIP. Color theory, the hundreds of different shades of white, new strategies and tools, and so much

more was exposed to me during that experience.”

Despite spending so much time painting, AJ still manages to be involved all over campus. He is a member of the National Art Honor Society, a Big Brother, a Head Monitor, a member of the Italian Club, and last year was captain of sub-varsity hockey and baseball teams. “It’s funny. My dad likes to tell me he started the Italian Club when he went here. I don’t know if it’s true, but I love being a part of it either way.”

The largest area of involvement for AJ—perhaps even larger than art—is community service. He is a co-president of Avon Outreach, the school’s community service club. Avon Outreach organizes weekly volunteer opportunities on and off campus, including a recurring trip to US Horse Welfare and Rescue Organization in Avon that AJ formalized by himself last year. “I set that one up myself because I wanted to make something of my own that would carry on after me. I reached out to them, built a relationship with the

I’m going to be walking around museums for the rest of my life. Art has become a burning passion. It’s not all of me, but it’s a big part of me, and it’s changed who I am.

organizers, and now I try to get a couple guys to come with me once a week to help out. I love giving back to the community and serving any way I can.” This means that in addition to his other service trips, every Wednesday, when the Connecticut chapter of Special Olympics visits campus for sports practice, AJ is one of the first on the court or fields to join in. “It’s a highlight of my week. I love that there’s this shared middle ground that brings us together. I have just as much fun as the athletes.”

This dedication to service isn’t just a way for AJ to pass the time at Avon. It’s a commitment that has persisted throughout his entire life and will continue on after he graduates. The same way attending Avon Old Farms seems to be a Zappone tradition, so is the desire to serve one’s community. AJ’s dad and grandfather both served in the military, and AJ plans to pursue an ROTC scholarship for college and eventually follow in their footsteps. Of course, that doesn’t mean art won’t be a part of his life. After his transformational experience at Avon, he couldn’t possibly have it any other way. “I’m going to be walking around museums for the rest of my life. Art has become a burning passion. It’s not all of me, but it’s a big part of me, and it’s changed who I am.”

athletics

Avon Old Farms Varsity Football opened the season with a 34-21 win over Brunswick School on Saturday, September 13. Pictured: Junior quarterback Matthew Baer celebrates in the end zone after scoring a touchdown.

Derek Yeboah ’26

Varsity Soccer Head Coach Carl Stensland was on a routine recruiting trip in early February 2024 to watch a few players he had been informed might fit in well at Avon Old Farms. On this trip, however, it was a different player that ended up catching his attention. “He was a standout,” Stensland shares. “He created a bunch of chances, scored a goal, and made good decisions.”

Stensland reached out about the player and the two were soon introduced. Derek Yeboah ’26, from Manchester, Conn., impressed his soon-to-be coach just as much with his actions and demeanor off the field. “The more I got to know him, I liked him even more. It’s nice he’s a great soccer player, but how considerate and kind he is made it even better. He has a very high emotional intelligence. He’s equally book smart and socially aware. It’s honestly refreshing to talk to him,” Stensland says.

While Stensland was sure he wanted Derek on his team, Derek wasn’t sure he wanted to leave the school he was already playing for and start all over in a new environment. “I was really hesitant,” Derek admits. “I’m someone who likes routine. Change is hard, and so is leaving my comfort zone. But my older brother said you never know where it’ll take you, and that I might as well take the chance.”

This wouldn’t be the first time Derek followed his brother’s guidance in his soccer journey. In fact, you really cannot tell Derek’s story without mentioning his brother, Bennett. Bennett, who currently plays as a striker for the Saint Francis University soccer team, was Derek’s first opponent and team-

mate. “My brother and I are really competitive. Since I could walk, we’ve been playing in the front yard, sometimes we’d have full family soccer games with our sisters. Whoever won would get bragging rights for the rest of the week,” Derek says.

Winning was fun, but Derek recognized that while on the surface he was just playing with his siblings, it was also an opportunity to improve his game. “I would watch my brother to uncover his weaknesses. Then, I’d train in those areas in an effort to get better than him.” With one brother already a collegiate-level player and the other deciding between multiple college offers, it’s clear these training sessions paid off. It could also have something to do with genetics. Derek and Bennett’s father, Daniel, played soccer growing up in Ghana before immigrating to the United States.

So, when Derek’s family encouraged his move to Avon, he decided to go for it. “I decided to stop being complacent.” In late August of 2024, he arrived on campus for his first preseason sports camp.

He already knew a few of his teammates, and as a Connecticut native, he wasn’t totally out of his element, but there was still an adjustment period. “The first month, there was so much going on. It took me about three months to get used to the schedule. Luckily, meeting new people wasn’t an issue. Everyone at Avon is really nice.”

There was an adjustment period on the soccer pitch as well for Derek, which was a serious mental struggle for him. “The first

He’s a really good leader by example. He’s never missed a practice or game. He’s always working hard. He can also bring people together. He’s super welcoming, knows how to talk to anyone, people just gravitate to him.

few games, I wasn’t scoring. That’s what I got recruited for, and I wasn’t doing it. I wasn’t playing with confidence. I wasn’t having fun with it,” he says. His coach, however, never lost confidence. “Coach Stensland is great. He always checks up on us. He told me to have fun, that there was no pressure on me. The next game, I played with that mentality, and that’s when the goals started rolling.”

He ended that season with 13 goal contributions in 18 games, earning AllNEPSAC, All-Founders League, and All-State honors. Stensland was impressed but not surprised by Derek’s debut season. “One of his strengths is his size. I swear he gets taller every time I see him. He’s really good at hold-up play, letting others get involved. His defensive work rate is also high. He has speed and doesn’t just use it when attacking. He uses it to press. When he gets inside the box, he can score in a variety of ways and create chances for others. He’s a lot of fun to watch,” Stensland says.

Derek’s current skillset isn’t what his coach likes most, however. “He always wants to get better. Even in the offseason, he’d bring in film from his club team and go over it with me. He’s extremely coachable, and you don’t always get that from one of your best players,” Stensland shares.

“You can always improve, no matter what,

if you put in the work well and work on the right things consistently,” Derek adds.

As Derek settled into life at Avon and began to see success on the field, he also started to branch out, finding new ways to get involved in the school community. “You can either be lonely, or you can expand, meet new people, and learn so much more about yourself.” He joined the track team, became a Big Brother and a Monitor in Elephant Dormitory, joined the Poetry Club, and ran for Student Council. His peers voted for him to represent the junior class and is now on the council again for his senior year, serving as recording secretary.

He takes his role on the council very seriously and is working with his colleagues on several initiatives. “At Avon, unlike other schools, the Student Council has a lot of say,” Derek says. The council’s main focus this year is the revitalization of school spirit. One interesting strategy the council came up with is to create a “check-in” system for sports games and other school events that will work as a competition between dorms, with incentives to end the year as the dorm with the most participation.

Through his time on the council during the school year and his time volunteering as a coach for soccer camps in the summer, Derek has evolved into a leader among his peers. “After serving in these roles, I really

started to feel the leadership being brought out of me. Then, my mom told me that my name actually means ’leader.’” His teammates on the soccer team must have noticed his fast-growing leadership skills as well. They voted him to be one of the team’s captains for the 2025 season. Stensland speculates why he was nearly unanimously chosen. “He’s a really good leader by example. He’s never missed a practice or game. He’s always working hard. He can also bring people together. He’s super welcoming, knows how to talk to anyone, people just gravitate to him.”

Derek will have to put those leadership skills to use this season as one of the most important returning players on the roster. The varsity soccer team ended last season with an impressive final record of 11 wins, 6 losses, and 1 draw. With team success his number one priority, Derek says he hopes to be able to set an example on and off the pitch for his younger teammates.

While he is making the most of his final season at Avon, this won’t be the end of Derek’s soccer journey. He is expected to play at the next level, having already received multiple Division I offers. His ideal school would be one of the Ivy League institutions. Regardless of where he ends up next, we’re glad Derek decided to take his family’s advice and give Avon a try.

Avon Old Farms Celebrates LATEST HALL OF FAME INDUCTEES

Over the years, Avon Old Farms School recognizes outstanding coaches, players, and teams in our history by inducting them into the Athletic Hall of Fame. Physically located within the Brown Student Center in a corridor leading to the three-court Field House, placards honoring our tradition of strong athletics spotlight the most talented and dedicated athletes. In the 2025 calendar year, four more frames were added to the hallowed hall.

John T. Gardner

Legendary Hockey Coach

John T. Gardner Legendary Hockey Coach

In the spring, John T. Gardner was inducted into Avon’s Athletic Hall of Fame before a crowded Susan Casey Brown Auditorium. Many spoke at the event, including current Head of School Jim Detora P’12, current Athletic Director and Varsity Hockey Assistant Coach Geoff Barlow ’98, former Headmaster Ken LaRocque H’19, P’01, ’10, and alumnus John Mori ’05.

“Today’s tribute marks an extraordinary milestone—recognizing Coach Gardner’s remarkable 50-year career and the incredible hockey program he began building back in 1975,” Detora started. With 867 wins, Gardner is one of the most successful and influential prep school hockey coaches in American history.

“We’re here to honor the greatest coach and mentor in the country and someone who’s had an enormous impact on countless lives in the hockey rink and outside of it,” said Mori.

“All of us former players are truly grateful for the way he has influenced us and shaped our lives not only when we were here but also now in our professional and personal lives.”

50 YEARS

867 WINS

The culmination of the ceremony in May was a proclamation recognizing Gardner’s decades of service to, leadership of, and mentorship at Avon Old Farms:

Whereas John T. Gardner has dedicated an extraordinary 50 years to Avon Old Farms School as a revered faculty member, assistant head of school, and legendary head hockey coach;

Whereas through his unwavering commitment, leadership, and mentorship, he has shaped generations of Winged Beavers, instilling in them the values of discipline, teamwork, and integrity;

Whereas his impact on and off the ice has left an indelible mark on the Avon Brotherhood and the greater school community;

Now, therefore, we proudly recognize John T. Gardner with the title of Head Hockey Coach Emeritus, with deepest gratitude for his decades of service, leadership, and lasting legacy at Avon Old Farms.

In the wings, Gardner joked that we hadn’t saved anything to bestow upon his retirement, but the entire community knew that this honor was already well earned.

This September, Reunion Weekend featured the presentation of three new honors celebrating one athlete and two teams.

1980 Varsity Lacrosse Team

The 1980 Avon Old Farms varsity lacrosse team entered the season with an ambitious goal: to defend their title as New England Division I Prep School Champions while navigating one of the most rigorous schedules in school history. Rising to the challenge, the Winged Beavers compiled a dominant season record, going undefeated in Division I play to secure another championship, with their only loss coming to Division II powerhouse Westminster. But for that one setback, the team would have celebrated back-to-back undefeated seasons.

The season began with a highlight few prep programs ever experienced: an invitation to participate in the Lacrosse Hall of Fame Tournament at Johns Hopkins University. There, Avon faced some of the nation’s best, falling to eventual champion St. Paul’s of Baltimore before bouncing back to defeat Maryland state champion Towson High School, 8-6. Both games were broadcast nationally on the All-Sports Network, giving the Winged Beavers a stage to showcase their talent.

During regular season play, Avon proved unstoppable in league play, compiling a 6-0 Division I record with victories over Choate, Loomis, Hotchkiss, Deerfield, Taft, and

Kingswood Oxford. The team’s attack, led by Peter Scott ’80, James “Boog” Powell ’80, and a rotating cast of standout contributors including Phil Pratt ’80, P’19, Scott Woelfel ’80, P’07, ’13, Tripper McShane ’81, Steve Dyson ’82, P’14, and Jon Chester ’80, provided relentless scoring. The midfield developed into a decisive strength, while a stalwart close defense and dependable goalkeeping formed the backbone of the championship run.

Individual honors reflected the team’s depth and character. Peter Scott and Shaun Stanton ’80 were named MVPs, Bob Mark ’80 earned Most Improved Player, John Harker ’80 received the Connecticut Valley Spirit Award, and James “Boog” Powell was honored with the Shawn Corcoran Memorial Trophy. The squad was supported by managers John Harker and RC Sayyah ’82, P’18, whose work behind the scenes contributed to the team’s success.

Division I

Record Back-to-Back

New England

Division I

Prep School Championships

1999–2000 Varsity Hockey Team

The 1999–2000 Avon Old Farms varsity hockey team embodied the spirit of the school’s motto, aspirando et perseverando, as they battled through a demanding season to capture the New England Division I Prep School Championship. With a final record of 20-6-2, the Winged Beavers demonstrated resilience, teamwork, and determination, peaking at precisely the right moment to secure the program’s third New England title in just twelve years.

Led by captains Mick Mounsey ’00, P’26, Corey Salvatelli ’00, and Scott Horvath ’00, the team overcame early-season challenges and grew stronger as the schedule intensified. Their campaign was highlighted by a sweep of the 17th Annual Christmas Classic, where Horvath’s standout performance earned him MVP honors. With the regular season closed, Avon clinched a playoff berth with decisive victories over Canterbury and Loomis, setting the stage for a dramatic postseason run.

In the New England tournament, Avon stunned previously undefeated Taft in the opening round, propelled by Tim Warner ’01’s brilliant goaltending and goals from Horvath,

Mike Warner ’00, and Michael Cuccia ’00. In the semifinal, the Winged Beavers blanked Lawrence Academy 2-0 before an overflow Avon crowd, advancing to a thrilling championship final against rival Deerfield Academy. In front of a sea of Avon supporters, the team persevered through a tense, back-and-forth contest, ultimately capturing the title on an overtime goal by Chris Higgins ’01, assisted by Mick Mounsey.

The victory was a testament to the dedication and leadership of the team’s seniors, including Eric Pederson, Scott Trahan, Mike Warner, Nick Malinosky, Vinnie Montalbano, Mike O’Neill, Michael Cuccia, Dan Pike, Travis Preble, Drew Weisman, Nate Cardoza, and Josh Zimmering, whose contributions throughout the season built the foundation for success. With guidance from Head Coach John Gardner, alongside assistants Brian Doyle P’12, ’14 and Dan Murphy P’25, and supported by managers Matt Biscaldi ’00, Matt Journalist ’00 and Earl O’Garro ’01, P’27, the 1999–2000 team is remembered for its perseverance, unity, and championship glory.

20-6-2

Division I Record

New England Division I Prep School Championship

Tim Trautman ’75, P’03

The journey of Tim Trautman ’75, P’03 from Avon Old Farms to collegiate athletics exemplifies the school’s motto: aspirando et perseverando. His time at Avon was marked not only by extraordinary athletic accomplishments but also by leadership, humility, and a commitment to excellence both on and off the field.

A four-year, three-sport varsity athlete, Tim’s impact was felt in football, hockey, and lacrosse. On the gridiron, he served as captain of the football team, earning Most Valuable Player honors, a top spot on the Prep AllAmerican Football Team, and recognition from the Northern Connecticut Chapter of the National Football Foundation Hall of Fame, awarded to a student who excels both academically and athletically. His leadership and performance set a standard for those to follow.

On the ice, Tim was a defenseman on an all-freshman varsity line that quickly became

one of the strongest units on the hockey team. His natural leadership, positivity, and ability to elevate those around him distinguished him just as much as his athletic gifts.

It was lacrosse, however, that Tim’s legacy truly shone. An All-American lacrosse player, he became Avon’s all-time scoring leader, a title he held for four years, surpassing 100 career points. He earned Most Improved Player honors as a sophomore before going on to be named the team’s Most Valuable Player and one of the school’s most celebrated athletes.

After Avon, Tim continued his athletic journey at the University of Pennsylvania, where he competed at the Division I level in both football and lacrosse for the Quakers. His ability to excel in two demanding sports at an Ivy League institution underscored his rare combination of talent, discipline, and determination.

Beyond his athletic success, Tim was an academic standout and a humble teammate whose encouragement and leadership inspired peers and coaches alike. His story reflects not only the power of perseverance and talent, but also the values of sportsmanship and community that lie at the heart of Avon Old Farms School.

Most Valuable Player, Football and Lacrosse

Prep

All-American Football Team

All-American Lacrosse Player

For those interested in learning more about Avon’s Athletic Hall of Fame, please visit avonoldfarms. com/hall-of-fame.

FEATURED AVONIAN

Lukas Archer ’26

Why boarding school? It’s a question every Avonian has asked themselves, or been asked by others, at some point in their journey. Here at Avon, we never get tired of answering that question. However, we know that the decision to attend a boarding school can be a difficult one for teens. The question, “Why boarding school?” usually sparks a series of further questions: What if I don’t get along with anyone? What about my friends at my old school? Will I be able to handle the schedule and course load? Am I ready to live away from home? Etc.

Lukas Archer ’26, a senior from Brooklyn, N.Y., found himself asking similar questions after finishing his sophomore year at a local day school. He knew he needed tougher competition to further sharpen his lacrosse skills, but he was understandably apprehensive about such a big change. “I started looking for other options, but I really wasn’t sure about boarding,” Lukas shares.

Ultimately, Lukas considered what was best for his future—something that doesn’t always come easy for teenagers. He told himself a temporary sacrifice would be worth it in the end, but his mentality changed almost immediately upon starting at Avon. “That first week I realized there was nothing to sacrifice. I realized this place is amazing, and I have to enjoy it while I can.”

So, for any students struggling to answer the question, “Why boarding school?” Lukas would likely give you the following advice: Attending a boarding school is an opportunity to start new and really find out who you are. In his own words, he says, “Realize the opportunities you have in front of you. You have a blank canvas, and Avon gives you every possible tool to paint it.”

While there can be an adjustment period for some, Lukas is unique

“Why boarding school?”

Realize the opportunities you have in front of you. You have a blank canvas, and Avon gives you every possible tool to paint it.

— LUKAS ARCHER ’26

from other students. His change in mentality came right away. “It didn’t even feel like school. I flipped my script. I wasn’t involved in much at my old school, but that changed when I got to Avon. Right away I signed up for thirds soccer just to get myself out there.”

He adds that at Avon in particular, making new friends just happens naturally. “I didn’t know a single person at Avon when I got there, which was scary at first, but everyone at Avon is so friendly. I found myself making friends, and I didn’t have to be something I’m not.” In fact, Lukas’s friends weren’t limited to just his teammates or a few different cliques. He found himself making connections all over campus. His advisor, Katherine Doemland, took notice. “Lukas is a great listener. He’s quick to hear what others have to say and slow to form

casual or cavalier judgments or opinions. He’s really thoughtful. He’s inclusive and approachable. He’s good at reaching out to his brothers,” Doemland explains.

The rest of the student body started to notice as well, and it wasn’t long before some of Lukas’s classmates began to wonder if he was considering becoming the next Warden. “It wasn’t something I had thought about coming into Avon at all, but people started coming up to me and asking about it, including the most recent Warden, Sam Houston ’25. I think a big part of it is how approachable I am to different groups across campus. I know more than just their names. I can go beyond the head nod and a ’What’s up?’ At first, I wasn’t sure what to think, but that conversation with Sam motivated me to run for Student Council, and eventually I

began to see myself in the role of Warden as well. I give a lot of credit to Sam and the other friends I’m surrounded by at school who have always given me nothing but positive support,” Lukas explains. He decided to take the first step and join the Student Council his junior year. From there, he still had to make an impact noticeable to his peers, gain the support and trust of the school administration, and deliver a compelling speech to the entire student body.

While the support from his classmates gave him confidence, Lukas admits the process was a bit intimidating. “Leading up to it was super nerve-racking, but when I finished my speech, I saw that it had connected with everyone. That was great. When they announced I had won, my mentality immediately shifted from nervousness to, ’Okay, let’s get this done and make next school year the best it can be.’”

Lukas and the rest of Avon’s Student Council wasted no time and spent the remaining weeks of that school year and most of the summer

making plans. Their main goal: to revitalize school spirit. A few strategies Lukas and his council colleagues plan to implement are increasing the size and number of appearances the Avon Army makes each athletic season and reinforcing basic rules that strengthen tradition, like proper dress code. Another initiative the council is planning for this year is creating game-day meals. Lukas has been in discussions with Chef Hector Vazquez P’23 about crafting a menu to serve on game days to make sure athletes are best prepared to play. “There’s no better time for a change,” Lukas shares. “We have a strong senior class that is all on the same page.”

Some of these initiatives come as no surprise to Doemland. “Lukas is dedicated to our community and committed to the mission and vision of Avon Old Farms,” she says. “He’s proud of the Avon Brotherhood and invests his time and energy in building relationships that create and sustain community across grade levels and individual interests. Lukas likes to laugh with his friends, compete with his teammates, engage

in cultural conversation, and find solutions to community issues that respond to the common good.”

She goes on to explain why she feels Lukas will be successful in achieving his goals. “Lukas is passionate about this important leadership role. He listens deeply, communicates clearly, focuses intently, and he’s solution-driven in a challenge. He can communicate with both peers and adults effectively. Through his role as a monitor in residential life, as a steady presence and positive leader on the lacrosse team, and in his work in student government, I know he’ll be successful,” Doemland says.

While Lukas does have these leadership experiences under his belt, being the voice of the entire student body is a big responsibility. He says a lot of the lessons he’s learned about leadership came from observing his mother in her profession as a doctor and visiting his dad at work as a private equity investor. Through these experiences watching his dad interact with clients, witnessing the importance of forming connections,

Lukas gained an understanding of how these connections can benefit everyone involved. It also ignited an interest in the field of finance for Lukas, who says he will most likely pursue a similar path in college. “I’ve also learned a lot from my mom being a doctor. I’ve observed her doctor to patient interactions over the years, and it’s taught me a lot about relationships and how to form and maintain them. I also want to add how blessed I am to have parents who support me unconditionally and have been the best role models my entire life.”

He says one aspect of leadership he feels is particularly important is taking other perspectives and opinions into account before making a decision. “I look at leadership as being the voice for everyone around me. I’m not making a decision on my own,” Lukas

says. “It’s not always about knowing all the answers, it’s about being someone who others can lean on when the answers don’t come easy.”

Lukas’s leadership has also been evident on the lacrosse field. A midfielder, Lukas was an integral part of the varsity team his sophomore and junior years, and his role in the team is likely to grow in his senior season. He is committed to improving his own skills, but his aspirations are much more team oriented. “I don’t necessarily have any specified personal goals for myself—I have goals of the team succeeding as much as we can.”

While Lukas is heavily focused on his duties as Warden, he’s also making sure to take time to enjoy his final year at Avon. In fact, he already knows what he’ll miss the most after

graduating. “It sounds cliché, but it’s time with the boys in the dorms. It’s the times when you think you’re doing nothing, but when you look back, it’s some of the best memories you have.”

Luckily for Lukas, he has a younger brother, Felix, who is fully committed to becoming a Winged Beaver, which will give him plenty of excuses to return to the Farm.

“He loves Avon more than anything. He’s got all his Avon merch already. He basically thinks he’s enrolled,” Lukas jokes. Maybe Felix will follow in Lukas’s footsteps and become Warden himself! Maybe he’ll forge his own unique path at Avon. One thing is for sure: after witnessing his older brother’s experiences, he won’t have any trouble answering the question, “Why Avon?”

FACULTY FOCUS

Tim Roller

When Tim Roller graduated from Tabor Academy in the 1980s, he swore he would never return to the prep school world. He had grown up at Tabor, where his parents taught, coached, and counseled for decades. He knew every corner of campus life, from living in dormitories to playing on teams coached by his father. “When I graduated from Tabor, I told my parents, ’I don’t know why you do it,’” Roller recalls with a laugh. “I never thought I would one day teach at a boarding school, and I never could have imagined I’d stay at one for 30 years.”

And yet, that is exactly what happened. Since 1996, Roller has been a fixture at Avon Old Farms School, shaping generations of Avonians through his teaching, coaching, and mentoring. After earning a double major in economics and public policy from Duke University, Roller imagined a career in finance. “I had Wall Street aspirations,” he admits. “But I quickly realized it wasn’t what I wanted to do.” A different calling took hold when he joined the now-defunct Institute for International Sport, where he helped organize summer programs first at the University of Rhode Island and then in Belfast, Northern Ireland.

That year abroad changed everything. “In Belfast, I was the number two in charge of overseeing operations, and I got my first exposure to coaching middle and high school kids,” Roller says. “I loved working with them. It made me think maybe prep schools weren’t such a bad idea after all.”

While home from Ireland, Roller began interviewing at a few independent schools through a placement service. On the way to one interview, he decided to stop by Avon Old Farms to introduce himself to then-Headmaster George Trautman H’98, P’75, ’81, ’82, GP’03. “The prep school world is pretty small,” Roller explains. “George had started out at Tabor and was friendly with one of my former coaches, so I thought it would be smart to make a connection. When I met with him, he told me I’d be a good fit at Avon and offered me a job—we may have even called it an internship, as there wasn’t a defined need yet. But I looked at the campus, the people, and the opportunities, and accepted. I’m glad he saw something and took a chance on me.”

Trautman definitely had an eye, and it turns out that Avon has been a great fit for Roller. What began as an

I never thought I would one day teach at a boarding school, and I never could have imagined I’d stay at one for 30 years.

informal opportunity quickly became a career. Roller started out as an assistant basketball coach and taught lower-level math. By 1998, he was the head varsity basketball coach and had added economics to his teaching load.

While his love for coaching wasn’t a surprise, his deepening passion for his role in the classroom was. Teaching economics allowed him to bridge theory and real-world events in ways that captured his students’ attention. “Because of the nature of economics, I am able to use current events on a regular basis,” he explains. “I think that really helps to keep the guys interested, focused, and excited about class.”

He also shares that the style of relational learning at Avon has allowed him to showcase his person-

ality in the classroom in a way that helps him keep the energy high.

“I believe in setting a very high standard for the level of work I expect from the students, and then I make the kids accountable for reaching that standard,” Roller says. “Whenever possible, I try to stay away from just having them regurgitate facts back to me. While they do have to learn certain facts, terminology, and formulas, I also regularly make them apply those concepts to connect ideas and to think analytically.”

Avon Old Farms did not just provide Roller with a career; it also became the place where he built his life. Shortly after joining the faculty, he met his future wife, Dawn. He was working at a basketball summer camp at West Point when he blew out his knee. It was bad enough that he

needed physical therapy to reduce the swelling before he could have surgery to correct the injury. “Dawn was one of my physical therapists. But, I do have to say that we did not start dating until I was officially not her patient anymore.” Dawn knew about Avon Old Farms, as many Winged Beavers visited her office, and she was familiar with the boarding school world after growing up down the street from St. Mark’s School in Northborough, Mass. When the two tied the knot, their wedding reception was at Tabor Academy, and then they went home to Avon Old Farms.

Together, the couple raised two daughters on Avon’s campus. “I think they enjoyed it for the most part,” he says. “The backyard was basically the whole place, and they had 400 teenagers around. They even got to

I believe in setting a very high standard for the level of work I expect from the students, and then I make the kids accountable for reaching that standard.

We have nearly 900 acres, but our community is actually very compact. We have to learn to live with each other here, and out of that comes close connections that stand the test of time. I’m still in touch with guys who haven’t worked here for 20 years.

sit on the bench at basketball games and had so many opportunities to be part of the community.”

It’s through the lens of raising a family on campus that Roller reflected on just why Avon held his loyalty over the years. “Schools are obviously a lot more accommodating than corporate jobs, but even still, I think Avon’s community goes above and beyond. My girls got a lot more ’follow daddy to work’ days than most, and I can’t say I saw many other coaches in the Founders League with their young daughters sitting on the bench. Avon embraced

not only me but my wife and kids.”

Roller went on to explain that while Avon is completely right to emphasize the fraternal bonds created among our alumni community, he believes it’s just as strong of a selling point for recruiting faculty and staff. In 2013, The Avonian profiled a group of Avon faculty known as the “Band of Brothers,” a tight-knit circle of colleagues who found joy and purpose in working together at an all-boys school. Roller was one of them, and the phrase still resonates with him today.

“I believe what’s kept me here for 30 years is that same feeling among the faculty and staff.” This sense of community, he argues, is what distinguishes Avon. “We have nearly 900 acres, but our community is actually very compact. We have to learn to live with each other here, and out of that comes close connections that stand the test of time. I’m still in touch with guys who haven’t worked here for 20 years.”

When asked what’s been the biggest challenge over his years at Avon, Roller explains that it also is tied to the closeness of our community: it’s hard to see colleaguesturned-friends move on. “I’ve gotten so close to so many great people over the years, and when they choose to continue their journey elsewhere, it leaves a void for sure.” But Roller was also quick to turn the negative into a positive, noting that it’s always exciting to meet the new people who inevitably come along and fill that void. “I’ve gained so many lifelong friends through Avon, just like our students do. I am so grateful for that.”

Like many long-serving faculty, Roller’s career has spanned multiple

To teach effectively, the students have to see who you are as a person. Avon embraces that. And that’s why I’ve stayed.
— TIM ROLLER

roles throughout his tenure. In addition to teaching and coaching, he served in the college counseling office, where his deep knowledge of athletics and recruiting helped countless boys navigate the NCAA process. He also stepped into a leadership position in the school’s diversity, equity, and inclusion work, building on the efforts of colleagues before him. “That role in particular gave me another opportunity to support our boys, especially those who needed a voice.”

Through each new role, Roller discovered the value of balance. “A lot of people aspire to become a department head, a dean, or an administrator,” he observes. “I did some of that, but I know now that my true calling is being in front of the kids in class or on the field, not in meetings. There were a couple of years when I was a full-time administrator without teaching or coaching duties, and I really missed it. I missed being in front of the boys. And I think it’s their constant testing of me, keeping me on my toes, that has kept me young.” Roller has witnessed tremendous changes over three decades at Avon, from new buildings to evolving curricula to shifting student needs.

He’s one of only a few who have worked under three different heads of school: George Trautman, Ken LaRocque, and Jim Detora. Yet one theme has remained constant: Avon’s commitment to caring for the whole boy.

“We get to know them more than other schools,” Roller says. “In the moment, they might not like the structure and required participation, but we get to know them pretty well. There are things they don’t love doing—afternoon activities, study hall—but that’s what is important to their overall development and ability to handle life further down the line. We’ve all said it before, but it’s so rewarding when they return from college and share how easy the transition was or how prepared they were compared to their roommate. Our guys get to college and seeing a professor for office hours isn’t new. They’ve already learned how to engage with adults here. We push them outside of their comfort zones, and that’s where they grow.”

Now Roller has come full circle at Avon. He is back in the classroom full-time, teaching four sections of economics and coaching lower-level teams where boys learn quickly and

laugh often. He also oversees Avon’s summer camps, reconnecting with his roots in youth programming. As he looks back on nearly three decades at Avon, Roller acknowledges that the path has not always been straightforward. He has considered trying something new elsewhere, but ultimately, he has found something irreplaceable here. “I won’t be shy about admitting that I’ve entertained the idea of exploring opportunities,” he says. “But I’ve learned the grass isn’t always greener on the other side.”

Each school, it seems, has its own personality, formulated by not only tradition and values but by the types of students it attracts, as well as the type of faculty and staff. Roller has found his place at Avon. What has kept him rooted is simple: the community, the mission, and the boys themselves. Three decades ago, Roller never would have predicted this life. Today, he cannot imagine anything more fulfilling.

“The all-boys atmosphere suits me,” he says. “It allows me to be authentic and free in how I approach things. To teach effectively, the students have to see who you are as a person. Avon embraces that. And that’s why I’ve stayed.”

CARING for the WHOLE BOY

For families seeking an environment that challenges boys academically while also developing strong moral character and healthy life habits, Avon’s comprehensive approach offers a compelling path forward.

For nearly 100 years, Avon Old Farms School has continued to build upon its proud tradition of educating boys with intention and heart, reaffirming our commitment to single-sex education time and again by always asking ourselves, “What’s best for the boys?” This student-centered approach is woven through every aspect of life on campus—academic, athletic, artistic, residential, and spiritual. The most recent addition to Avon’s campus—the Ann K. Kirby Wellness Center—is the newest showcase of our dedication to supporting the whole boy.

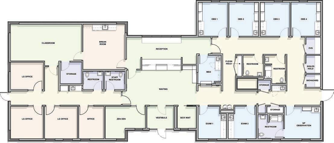
Ann K. Kirby Wellness Center to Open in January 2026

When Heather Callaghan P’25 became Avon’s director of nursing nearly a decade ago, the health center operated mostly in isolation. Of course the center offered boys help and care when they needed it, but that most often was left to boys seeking it out: whether that be a band-aid or an ibuprofen. “We worked completely siloed from the rest of campus,” she recalls. “There wasn’t a lot of health and wellness programming within campus life for students, and I always knew that we were missing a great opportunity to teach our boys to be healthy people.”

And so, over the past several years, Callaghan has put a lot of effort into expanding wellness programming on campus and creating a more open environment in the health center. In doing so, the space became a more integrated part of campus life, where students could go to ask questions, have tea with a nurse, or talk about missing their dog back home. “As we grew our presence on campus and transformed into more than just a nurses’ station where boys could go when they’re sick, we dreamed of one day having a space that reflected the amount of diverse things we offer. We wanted to create a space where boys would know their health is important. The new Ann K. Kirby Wellness Center is symbolic of the work we’ve been putting in for years.”

The brand new, state-of-the-art center—made possible through the Ann K. Kirby Foundation, thanks to the generosity of Wade and Linda Kirby P’17, ’18—will offer far more than medical care. It will have dedicated physical and mental health wings, as well as office space for staff, a classroom for group learning, and a “zen den” for students to utilize when they need some time away from the bustle of campus. The

Kirbys hope it will be a symbol of Avon’s dedication to the whole boy and an inspiration for others who want to support improvements and enhancements on Avon’s campus.

When Wade and Linda Kirby learned that they’d be blessed with triplet boys, Wade—the product of an all-boys prep school—planted an idea: he’d like them to attend an all-boys school when the time came.

“I believe that an all-boys educa-

We wanted to create a space where boys would know their health is important. The new Ann K. Kirby Wellness Center is symbolic of the work we’ve been putting in for years.
— HEATHER CALLAGHAN P’25

tion during his high school years is foundational to a young man’s success. It focuses on character building, and the highly regimented schedule really motivates a boy’s ability to develop life skills like organization, setting priorities, and time management. It is a critical time to focus on honing skills a boy will need for the rest of his life,” says Wade, who has served on Avon’s Board of Directors since 2017.

Fast-forward a few years, and as their sons Reade ’18, Taylor ’17, and Croft approached high school age, Wade began exploring opportunities for them. Ideally, he wanted each boy to attend a different school to ensure they each found their own way in life and discover their unique identity.

“I agreed with Wade. High school is an incredibly formative time, and I’d say those years are more important than college,” shares Linda. “From

the start, Wade wanted the boys to have their own experiences, so Taylor, we thought, would attend Salisbury and Reade, Avon. But the plan changed on Revisit Day.”

“We were sitting in Brown Auditorium, Linda on one side and Reade and Taylor on the other, listening to Headmaster Ken LaRocque tell us all about the journey ahead for the newly accepted Avonians, should they choose to enroll,” continues

Wade. “Linda leaned over and said, ’I wish just once you’d consider letting them go to the same school,’ and then Taylor said, ’I’d really like to go here.’ Nothing had sparked his interest up until that point, so there I was: literally loved ones on both sides were asking me to reconsider our carefully laid plans.”

As it turns out, both Reade and Taylor did attend Avon Old Farms. Reade loved soccer and pursued his athletic goals on Avon’s soccer pitch, earning a starting spot on the varsity team for three years. After Avon, he studied government at St. Lawrence University. Reade remains connected to the sports world through his career in professional sports management, working in the front office for the Norwich Sea Unicorns and now the Richmond Flying Squirrels. Taylor was an Avon lacrosse goalie who went on to study business and economics at Wofford College and is a valuation analyst at Newmark, a world-leading commercial real estate firm in New Jersey. As Linda put it, the two were highly competitive before Avon, and came out on the other side as brothers. “Avon treated Taylor and Reade as individuals, and they each still had their own experience, which is all we ever wanted,” explains Wade.

Linda continues, “Avon as an institution is wonderful, but for me it always came down to the individual connections and relationships that the boys formed. When we returned to Avon for our very first Family Weekend, I was deeply impressed that not only the teachers really knew and understood my sons, but even Headmaster LaRocque knew each boy by name. It was a strong sign that

our boys were fully embraced, supported, and challenged. As a mom of triplets, I had felt a little guilty handing them off with a bit of relief, letting someone else manage the day-to-day for a bit. But I could already see that Avon truly had seen it all and knew exactly how to get the most out of each student. By the time I knew Avon, I knew that it was the right place for our boys.”

While attending an all-boys school was Wade’s original idea, the Kirbys’ support of a new wellness center on campus was 95 percent Linda’s project. Previously, in support of Avon’s Inspiring Boys, Building Men capital campaign, the Ann K. Kirby Foundation and the Kirbys made leadership gifts to support the kitchen and servery renovations. “I enjoy projects focused on health, wellness, and supporting the individuals who do the work every day,” explains Linda. “For the refectory project, it was about providing good nutrition and sustenance for the boys, while giving the kitchen team the physical space and resources they needed to do their job well. The idea for improving the health center on campus is very similar: the boys need better services, and the staff need better spaces and resources to support the boys the best way.

“As a mother, I think I went into the old health center the first time to pick something up at the counter and thought, ’Wow, this is quite a small space. I wonder how they do it all.’ I asked questions, mostly logistically, wanting to understand how they’d care for our boys, but also all of their schoolmates. I knew a more modern and better-equipped health center

was something Avon needed and also wasn’t as flashy as a new hockey rink or student center. I wanted to focus on a project that would have a deep impact but maybe wouldn’t have gathered as much excitement from donors as the other things Avon is known for.”

For Linda, the wellness center is also inspired by one of her role models: her mother, Jewel Dean Randolph Taylor. A dedicated nurse, Jewel was described as a tough act to follow— giving, modest, and strong. The oldest of six, she was a caregiver to others since childhood and always inspired Linda with her dedication to her patients and her poise in difficult situations. “She lived in a harder time for women in the workplace than we do now, but she loved her work regardless of the hardships. She told me I could do anything I wanted in life, except become a nurse like her— she didn’t want that for me. Because of her, I’ve always had a reverence for nurses. I know first-hand the support they need, and what they are capable of. If I could make one boy’s day better by ensuring a nurse has a good space to work in and the resources they need, I think my mother would be proud.”

To that end, Avon agreed to look into upgrading the health center. Originally, the goal was to modernize the existing space and build an addition, but as the project evolved, it became evident that a different approach would be more appropriate. “It turned out that the cost to renovate was going to be more expensive than breaking ground on a new facility, and the end result would have still been limited by the restrictions of the

If I could make one boy’s day better by ensuring a nurse has a good space to work in and the resources they need, I think my mother would be proud.

— LINDA KIRBY P’17, ’18

existing structure,” explains Director of Facilities Glenn Wilcox. “We were not going to be able to have all of the modern amenities and features that would come easily with a new build, which wasn’t ideal. Additionally, with a new structure being added to campus, that opened a window of opportunity to revisit the existing health center and revert it to faculty housing, as it was originally.”

Once that decision was made and plans were getting drawn for the new space, the Kirbys ensured that the people with the most insight into Avon’s healthcare needs had a say in the project. “Toward the beginning of the planning phase of the project, Wade came to me and asked me to compile a wish list with the rest of the health staff,” shares Callaghan. “We took our time and wrote down everything we could dream of having, knowing that this was really pie-inthe-sky thinking. They included everything on our list.”

The design process was highly collaborative, with the Kirbys consulting Callaghan throughout the process. “They would share drawings with us, and I was able to bring it back to my team to review. We were able to weigh in on design choices but also functionality … even little things like where the water fountain should go made us really feel like our opinion was valued,” Callaghan says. “I’ve spoken with health directors at other schools who lived through a redesign, and they weren’t consulted like we were. The Kirbys really took it upon themselves to ensure we had a say in the project, which I cannot express my gratitude for enough.”

New Center Brings Comfort, Connection, and Care to Equal Ground

When Avon Old Farms students walk into the school’s new wellness center, they will be stepping into a space intentionally designed to remove barriers, foster trust, and meet the needs of the whole student. It has two wings: a dedicated physical health wing and a counseling and psychological services wing, both centered around a warm, welcoming reception area with views of the Farmington Valley.

Inside the new physical health wing, visitors will find two exam rooms (up from one), five overnight beds (a big change from two double rooms and one single room in the older facility), and a bright, open reception area where the nurses’ station is central. A dedicated sick waiting area keeps those awaiting pick-up separate from overnight patients and prevents the need for flipping a bed over for new use after a boy has been in it for just an hour or two. The new spaces support expanded hours and increased coverage—two nurses are on duty until 9 p.m. from Monday through Thursday.

For Director of Counseling and Psychological Services (CAPS) Dr. Victoria “Tori” Bosse, the change is more than cosmetic—it’s about access and environment. “We don’t want it to be this sterile, institutional hospital-like feel … it needs to be warm and welcoming because this space matters just as much as the student’s relationship with the CAPS staff,” she explains.

The new building will bring nursing and counseling together with a single, visible entrance.

“Mental health is health,” Bosse emphasizes. “With the new building encompassing both physical health and mental health, when a student comes to us and doesn’t realize what sort of support he needs, now … the nurses will be able to literally walk a student down the hall to us in the

moment. It changes access, reduces barriers, and creates a coordinated team caring for the whole student.”

The former location of the counseling center—tucked down a cracked driveway below and behind the health center—posed both physical and symbolic challenges. Poor soundproofing and lack of internal stairs limited collaboration, and the setting risked sending the wrong message. “There’s probably subliminal messaging about ’lower level, back door,’” Bosse notes. “We worked with what we had, but this new design says something different from the moment you walk in.”

Inside, the CAPS wing will house three counseling offices, a classroom for group work, and a “zen den” for students to recharge with comfortable seating, calming features, and space to stretch or rest. Natural light and thoughtful color choices make the environment inviting without feeling overly personal or sterile. “We need the room to be able to hold the conversation,” Bosse says, explaining why larger office spaces and sturdy furniture were key—especially for Avonians who might be football linemen or hockey players.

The new center also allows CAPS to expand services. In addition to Dr. Bosse serving as a full-time counselor, two part-time counselors will provide more immediate availability for students in need, one doubling as a mental performance coach supporting both emotional well-being and the athletic mindset. This physical growth of counseling space and offerings responds to a national trend of rising student health needs. “In society, boys face

many pressures to conform to cultural ideals of masculinity every day. At Avon, we’ve been helping boys navigate that and finding ways to be true to themselves for a long time,” said Callaghan. “Asking for help is a really brave thing to do.”

When Bosse reflects on how much the wellness offerings at Avon have grown just in the past couple of years, she says, “What we’ve gotten to do in just a year is pretty dang cool.”

Above all, the goal is to weave counseling into the fabric of daily life

at Avon. “I’m not holed up in my office all day—I’m at Morning Meeting, I’m at lunch, I’m at sports,” says Bosse. “It’s about being part of the community and still maintaining healthy, appropriate boundaries.”

Ultimately, the new center reflects Avon’s commitment to integrating health, wellness, and education. “Our job as educators is to teach our kids the tools to overcome challenges and be resilient,” Callaghan says. “This building, and the programs inside it, will help us do exactly that.”

How R.E.A.L. Learning Supports Health and Wellness

At Avon, the wellness team has been able to integrate their services and assistance into daily life, thanks to our unique educational philosophy and comprehensive R.E.A.L. Learning approach—a program built upon four guiding pillars: Relational, Experiential, Active, and Lifelong learning.

At Avon, learning begins with relationships. Opening up, being vulnerable, and asking for help begins with solid relationships too. Experiential and active learning permeates the curriculum: from hands-on science experiments on the ice rink or in laboratories, to living history lessons in the Oak Grove, students see classroom ideas come to life. This learning

continues through the Compass program, which engages students in lessons outside of the traditional curriculum on topics including leadership, integrity, citizenship, mindfulness, emotional wellness, healthy relationships, substance abuse, nutrition, and more.

Finally, Avon aims to instill the mindset of lifelong learners—young men committed to personal growth long after graduation. Students are taught not only to master content but to seek wisdom. The expectation is that boys will graduate not just prepared for college but prepared for life—driven by curiosity, guided by moral conviction, and equipped for meaningful leadership.

Through alumni programs such as the mentorship program we talk about on page 46 of this magazine, we continue to support and reinforce the Avon Brotherhood long after graduates leave Mrs. Riddle’s campus and set their sights on larger goals. Similarly, under Callaghan’s guidance, wellness programming focuses on ensuring that Avonians know how to take care of themselves through the demanding years ahead. “The fact that our boys are already reaching out will set them up for success in college and beyond,” Callaghan notes, also mentioning that she’s noticed how often student Chapel talks address the importance of seeking help.

Comprehensive Support and Encouragement: Student Health Council, Peer Counselors, Mental Health Club, and More

For years, Avon has strengthened its educational model with robust academic resources like The David C. Bigelow ’44 Learning Center and the Baxter Library. More recently, Callaghan and Bosse have built structures to support robust health resources including a Student Health Council, Peer Counseling Network, Mental Health Club, and more.

The Student Health Council plays a key role in this work, meeting weekly to identify and support students facing social, emotional, behavioral, academic, or substancerelated challenges. Council members collaborate to create personalized strategies, communicate with families, and set each boy on a path toward growth and success. This formal safety net is complemented by the Peer Counseling Network, where trained juniors and seniors provide confidential, informal support for everyday challenges such as building confidence, navigating friendships, or staying motivated. Admission to this program is highly competitive— last year more than 40 students applied for just 10 open spots—and those selected complete specialized training in active listening, suicide prevention training (QPR), and teen mental health, with monthly workshops led by health professionals to reinforce skills and boundaries. Student-led initiatives like the Mental Health Club further strengthen our culture of care. Founded by boys who wanted to reduce the stigma around seeking help, the club models

openness and encourages younger students to speak up and access available resources.

This emphasis on whole-person growth is deeply rooted in Avon’s mission. The Compass Program— named for its focus on moral direction—provides boys with the tools, practices, and reflection time necessary to navigate a complex world. Through small-group workshops and guest speakers, students explore themes of character, masculinity, and brotherhood, as well as health, wellness, and college preparedness. Weekly gatherings, including the tradition of senior Chapel talks, offer personal stories of resilience, integrity, and moral courage, reinforcing that wellness extends far beyond physical health.

In times of increasing uncertainty, distraction, and division, Avon stands firm in its purpose: to guide, teach, and love its students well. The Ann K. Kirby Wellness Center is more than a new building—it is a testament to the belief that caring for the whole boy is central to Avon’s mission. By investing in the daily lives of Avonians, the Kirbys have not only honored their own story but also strengthened the foundation for generations of boys to come. Just as Avon shaped Reade and Taylor as individuals and brothers, the Kirby family’s gift ensures that every boy who walks through this campus is supported, known, and cared for—body, mind, and spirit.

In times of increasing uncertainty, distraction, and division, Avon stands firm in its purpose: to guide, teach, and love its students well.

Unlocking Potential:

Inside the AOF Alumni Network Mentorship Program

Every great journey starts with a meaningful connection. At Avon Old Farms, we believe that the path from potential to achievement is best traveled with guidance, and our annual Mentorship Program is designed to offer exactly that. In just 14 weeks, mentors and mentees embark on a dynamic journey together, forming connections that bridge generations and spark transformation.

This isn’t a casual catch-up or quick networking chat. This is a structured, intentional experience—a six-meeting commitment designed to guide, support, and challenge participants to grow personally and professionally. Whether you’re an alumnus interested in mentoring or a recent graduate seeking guidance, this program is an invitation to make a difference and be transformed in the process.

From the very start of Avon’s Mentorship Program, mentors and mentees are equipped with resources to lay a solid foundation for success. Both are guided through clear onboarding steps and supported by a comprehensive guidebook, instructional videos, and access to the AOF Alumni Network’s scheduling and video chat tools. Our platform provides resources specific to both the mentor and the mentee, guiding them through six planned meeting agendas:

MEETING 1: FOUNDATIONS— Get to know each other, understand your mentee’s strengths and goals, and set objectives and metrics for success.

MEETING 2: ACCOUNTABILITY AND ENCOURAGEMENT— Offer praise, reinforce progress, and help the mentee form a personal “board of directors” to support their growth.

MEETING 3: CAREER TOOLS— Dive into resume and cover letter tips, interview strategy, and soft skills development. Share feedback and check in with the Alumni Engagement team.

14 WEEKS 6 MILESTONE MEETINGS

MEETING 4: CONNECTIONS AND RESOURCES— Make two strategic introductions. Talk about networking and trust building. Recommend readings.

MEETING 5: REFLECTION AND DIRECTION— Revisit goals, follow up on connections, and evaluate what’s still to be achieved.

M EETING 6: CLOSURE AND CONTINUATION— Celebrate accomplishments. Reflect on what you’ve learned and how your relationship may continue.

This program is more than a checklist or a calendar. It’s about legacy. It’s about alumni investing in each other, in the values of Avon, and in the future. While we provide a full roadmap for the mentorship journey, we are excited for our pairings to take ownership of their time together and make it a unique experience that provides value to both. Every conversation that helps a mentee refine a resume, gain confidence in an interview, or navigate their early career is a powerful reminder: our alumni network is one of our greatest

36 MATCHES IN 2025

strengths. Mentors can benefit just as much, finding purpose in paying it forward, rediscovering their journey through the eyes of a young professional, and building lasting bonds with fellow Winged Beavers. Whether you’re five years out or five decades, your voice and experience can have an incredible impact. And if you’re navigating the early stages of your career, this program might just be the catalyst you’ve been waiting for.

Mentorship is an act of service. A bridge between who we are and who we’re becoming. Be a part of it!

To learn more or express interest in joining the 2026 January cohort, visit the AOF Alumni Network or contact the Alumni and Development Team at alumni@avonoldfarms.com. Let’s unlock potential—together.

Registration is open until December 31, 2025.

MENTORSHIP HIGHLIGHT: Palmer Hallagan ’87

&

When Hashim Ali ’20 signed up for Avon’s Mentorship Program, he had just graduated with his bachelor’s degree from Trinity College in political science and government and wanted to learn from Avonians who had successful careers in the corporate world.

“I was very fortunate to be paired up with Palmer, who has held various roles at many different firms, with experience in the worlds of finance, consulting, and law,” explains Ali. “These are all professions that I have had an interest in, so I greatly appreciated his insights on the different fields. He always found time to speak with me despite his demanding job, even checking up on me as the official mentorship program came to an end.”

Palmer Hallagan ’87, chief operating officer at Marasco & Nesselbush, LLP, was excited for the opportunity.

“Avon gave me an opportunity when other prep schools did not. I hope

that by mentoring, I can give back in some small way to the community that opened doors for me,” he says. “The rewards of helping others by sharing your experience and connections are immense. We all have something valuable to offer, and the shared experience of attending AOF made it easy to support each other in meaningful ways.”

Ali says what stood out the most from his experience was his mentor’s recognition of the work he had already put in at his current role, providing constant reassurance that his resume as an undergrad was more impressive than some law school students he’s interviewed.

Hallagan explains, “Early on, Hashim struggled to see what I saw in him, especially regarding his experience building his dad’s veterinary business. It has been incredibly rewarding to witness his growing confidence and recognition of his own skills and accomplishments—

he just needed someone to reflect that back to him.”

When asked what inspired him to become a mentor, Hallagan recalled a quote along the lines of: “No one will remember the car you drove, the house you lived in, or even the title you had, but they will remember how you treated them.” As he nears the end of his professional career, he wanted to take some time to help others who are just starting out— providing guidance, advice, or simply being a sounding board, just as others once did for him.

“Years ago, I attended a call about a vendor my firm was using, and one of the speakers was an AOF graduate. Though we never crossed paths at Avon, I reached out for career advice,” Hallagan says. “He immediately connected me with peers and helped me build further connections. That experience reinforced the strength of the brotherhood, and I thought it was time I gave back in the same way.”

Ali says he always knew that the Avon Brotherhood was lifechanging but never understood just how impactful it could be years after his time at Avon ended. “Palmer made sure to let me know the importance of the Avon community and how, at one point, I would be in a position to mentor someone else and that I should take on that responsibility when the opportunity presents itself.”

Hallagan shares that throughout his life, connections have been key. When his daughter was applying to a college a classmate attended, he reached out for insight and trusted his advice completely. “That level of trust and camaraderie is something every AOF graduate can rely on—it’s a powerful bond.”

MENTORSHIP HIGHLIGHT:

Andrew Valentine ’05 &

Andrew Valentine ’05, a donor administration manager at the National Philanthropic Trust, signed up to become a mentor to get more deeply involved with the AOF alumni community. “In my career, I’ve done a lot of new-hire training, offered interview preparation, and advised on career navigation. Avon has always been an important part of my life, and I wanted to help the younger brothers within our alumni community in the same way I’ve helped so many others.”

On the surface, Valentine and his mentee, Jack Eschert ’19, had very different backgrounds: a person with 15 years in finance was going to mentor someone interested in the medical field. “But, when we got to talking, I found that Jack was looking to figure out how to navigate making a career change,” explains Valentine. “We were able to cover a lot of ground, from styles of leadership, interviewing tips and techniques,

Jack Eschert ’19

follow-up format after an interview, and reassurance that he was taking the right steps.”

Eschert was immediately impressed, sharing how Valentine took the time to get to know him. “Our first call lasted almost two hours because we spent a lot of time reminiscing about our time at Avon,” says Eschert. “I looked forward to our weekly meetings because I enjoyed getting to know him better and hearing about his career and life experiences. He sent me two great professional development books and set up numerous meetings with people from his professional network who could offer me industry-specific advice about healthcare and working as a physician.”

In fact, Valentine’s favorite moment of the mentorship was when his classmate Dr. Adam Beeble ’05 joined a conversation. “I got to learn more about my friend, and he provided a ton of perspective on the medical field for Jack, sharing what med school

was like for him, the challenges he faced, and how he overcame them,” explains Valentine. “Even though Adam is in Florida, I’m in Pennsylvania, and Jack was in Connecticut, the FaceTime session felt more like a talk around a campfire.”

Throughout the mentorship, Eschert says he received invaluable advice about the soft skills necessary to be successful in any workplace. “Through anecdotes from his personal experiences, Andrew illustrated many crucial fine points that are often not discussed in workplace training programs or even professional development books. Andrew also helped me when I was interviewing for my current job. Although we work in different industries, his suggestions were incredibly insightful and applicable. He was so dedicated to supporting me during my recruiting process that he would always text me shortly after my interviews ended to ask about how they went.”

Aside from imparting career advice, Valentine says that it was really nice getting to know a younger member of the alumni community and hearing about his experiences at Avon and that the same values and principles he was taught are being handed down. “This has made me want to continue being involved in the AOF community and has strengthened my personal relationships with other Avonians.”

Eschert agrees, saying, “I feel that Andrew and I became friends through this program. Even though it’s over, we still check in with each other and talk about the things going on in our lives; I always look forward to updating him about my new job in NYC and hearing about the trips he’s been taking with his family and friends.”

MENTORSHIP HIGHLIGHT:

Sam Rubenstein ’85

&

Jonathan Haspilaire ’07

The mentoring process is a two-way street. Both the mentee and mentor must be committed to the process and willing to block time to meet. For Sam Rubenstein ’85 and Jonathan Haspilaire ’07, who were both busy with full-time careers and family, the Mentorship Program provided both a connection to a community they cared deeply about and offered a rewarding personal experience.

“As I began my second year at Brazos River South, I reassessed who I consider a mentor, and it was a small group,” explains Haspilaire. “My relationship with my mentors started to separate during the pandemic. As a result, I wanted to re-engage with fresh, new, and passionate mentors who wanted to support me in my new career and journey. It was refreshing to be paired with someone I could personally relate to, and also someone who had a similar career.”

At the same time, Rubenstein had a realization common to our mentors: As someone who has mentored several people during his career, why not donate his time to a group of individuals he wants to help succeed more than anyone: fellow Avonians. “The time commitment is not significant, but it is a serious commitment that requires you to be present and thoughtful. Mentoring needs to fit among competing priorities.”

Rubenstein explains that they took a bit of a different route based on their initial discussion and started with a monthly call. “We plan to continue the call as long as Jonathan is still getting the mentoring that can help him. As with any good mentoring relationship, we discuss a number of various topics, not just professional situations, as work-life balance is key in today’s world.”

Haspilaire shares that Rubenstein

provided input and insights on what he needed to consider as he transitioned from being an individual contributor to a partner at his consulting firm. “In our second meeting, Sam said, ’You have to be the rainmaker’ when I told him I had become a partner. It stuck with me because it is a viewpoint that I am not used to, as I value cultivating and building relationships. Sam coached me to lean into my relationships to develop and close businesses with people the right way. Sam has helped me learn how to balance client relationships and results, seeking new business opportunities with both new and existing clients, maintaining a digital presence, and leading others.”

Rubenstein shares that throughout the mentorship, and beyond, the pair has remained in touch: “It was great discussing Avon during our calls and realizing that our Avon experiences have a lot of commonalities. I also enjoyed discussing how we can give back to Avon and help the school continue with exciting programs like this one. It has been great over the last six months to talk to Jonathan and to hear that some of the advice we discussed helped him at work. It has been rewarding to see someone as successful as Jonathan open up and work to improve himself. I mentioned to him on our first call that he could probably be a great mentor for someone.”

Haspilaire comments, “The Avon alumni community goes deeper than I thought. If you take the time to seek who is out there, meet someone over coffee, and be vulnerable … there is a good chance the Avon alums will find a way to help you.

The Value of Mentorship

(Statistics as of 2024)

FOR MENTEES:

The CareerBoosting Impact

HIGHER CAREER ADVANCEMENT:

25% of employees who participated in a mentorship program had a salary-grade change compared to only 5% of those who did not (Gartner).

MORE PROMOTIONS:

Mentees are five times more likely to get promoted than those without mentors (Sun Microsystems Study).

GREATER JOB SATISFACTION AND RETENTION:

91% of mentees say they are satisfied with their job. Retention rates are significantly higher among mentees (72%) compared with non-mentees (49%) (Deloitte and Wharton School of Business).

CONFIDENCE AND GOAL SETTING:

87% of mentees say mentoring relationships help them build confidence (Sage). 97% of mentees feel that the mentor relationship helps them stay on track with personal and professional goals (Chronus).

NETWORKING OPPORTUNITIES:

89% of mentees report gaining valuable connections to their field through their mentor (LinkedIn).

FOR MENTORS:

A Source of Purpose and Growth

ENHANCED LEADERSHIP SKILLS:

87% of mentors say mentoring made them feel empowered (Mentorloop).

GREATER CAREER FULFILLMENT:

87% of mentors say they feel more satisfied with their careers because of the mentoring experience (LinkedIn).

SKILL DEVELOPMENT:

Mentors report significant improvements in listening, coaching, and communication skills (Chronus).

IMPROVED RETENTION AND ENGAGEMENT:

Mentors are 69% more likely to stay with an organization than those who don’t mentor (Sun Microsystems).

ALTRUISTIC AND PERSONAL REWARDS:

90% of mentors say they would like to continue mentoring (Forbes).

MUTUAL BENEFITS: Community and Growth

CULTURAL INCLUSION AND BELONGING:

Participants in mentorship programs report a 50% improvement in sense of belonging, critical to alumni engagement.

NETWORKING IMPACT:

Both mentors and mentees are significantly more likely to grow their professional networks, which is tied to better job placement and promotion rates (National Mentoring Partnership).

These statistics reinforce one central truth: mentorship is transformational. For mentees, it boosts confidence, competence, and connections. For mentors, it enhances leadership, purpose, and legacy. For a community like Avon Old Farms, it strengthens bonds across generations and fuels a cycle of giving back.

NUMBER OF PAIRS: GENERATIONAL CONNECTIONS:

Mentors ranged from Classes of 1970 to 2014

Mentees ranged from Classes of 2005 to 2024

GEOGRAPHICAL REACH: MOST

Participants span 19 states 3 countries TOP INDUSTRIES REPRESENTED:

LONGEST DISTANCE PAIR:

7,600+ miles and still going strong

TOTAL VOLUNTEER HOURS :

300+ generously shared by our alumni mentors

PERCENTAGE WHO SAID THEY WOULD DO IT AGAIN: 100%

class notes

WAS A NICE AOF CONTINGENT PRESENT FOR THE WEDDING

THERE
OF HARRY LYONS IN BOZEMAN, MONT. FROM LEFT TO RIGHT: MAJOR JOHN BOURGAULT ’80, H’24, P’09, PJ MCINNIS ’11, DOM ANDRE ’11, HARRY LYONS ’11, GARRETT BARRY ’15, DREW LYONS ’07 . BACK ROW: BEN LYONS ’06.
LAST FALL, HEAD OF SCHOOL JIM DETORA P’12 MET WITH GEORGE GIANNONI ’74 AND DON DAVIDSON ’38 AT DUNCASTER SENIOR LIVING IN WEST HARTFORD. WE BELIEVE DON MAY BE OUR OLDEST LIVING ALUMNUS!
PERRY BENSON ’65 AND KEATING PEPPER ’65 SPENT TIME TOGETHER IN ISLESFORD, MAINE.

50s

’52 SETH F. MENDELL Class Ambassador sethalicemendell@gmail.com

’55 CHARLES W. DAVIS Class Ambassador cwdavis@waretec.com

60s

’61 GEORGE F. HENSCHEL JR. Class Ambassador gfhjr@aol.com

’63 JACK R. STOKVIS Class Ambassador smarts@galaxy.net

’64 JON MITNICK Class Ambassador johnmit3@cox.net

’65 PERRY BENSON JR. Class Ambassador pbenson@jacobswyper.com

GEOFF DOUGHTY ’68 CO-AUTHORED AMTRAK, AMERICA’S RAILROAD: TRANSPORTATION’S ORPHAN AND ITS STRUGGLE FOR SURVIVAL, WHICH RECEIVED THE 2023 RAILWAY & LOCOMOTIVE HISTORICAL SOCIETY’S GEORGE W. AND CONSTANCE M. HILTON BOOK AWARD.

’66 MICHAEL D. BARKER Class Ambassador barkermike@aol.com

’68 CHASE DONALDSON Class Ambassador cfdifly@gmail.com

’69 DAVID F. COLEMAN Class Ambassador davidcoleman1150@gmail.com

70s

’71 TIMOTHY B. BEEBLE Class Ambassador tbeeble@aol.com

Christina Coons, daughter of HANK COONS ’71, P’07 , got married in October 2025 in Evanston, Ill.

’72 KEVIN J. DRISCOLL Class Ambassador driscollk@avonoldfarms.com

’73 JOHN BOURGET Class Ambassador witan@aol.com

’74 BRUCE ANSCHUTZ Class Ambassador branschutz@gmail.com

’74 EDWARD P. MOLLOY Class Ambassador Tmolloy@ArraySoftware.com

’74 RICHARD CONNELL Class Ambassador rtconnell@outlook.com

’77 JORGE E. CONSUEGRA JR. Class Ambassador jconsuegra29@gmail.com

’77 STUART BEATH

Class Ambassador sbeath@internationalfuel.com

TOM STERNBERG ’77 AND TIM TRAUTMAN ’75, P’03 IN ST. GEORGE’S, BERMUDA.
KEVIN DRISCOLL ’72, P’08 TRAVELED TO PANAMA IN MAY 2025.

TOM STERNBERG ’77, TIM TRAUTMAN ’75, P’03, AND FRIEND JIM FUNK (LEFT) FOLLOWING A SUCCESSFUL SAIL FROM ANTIGUA TO MYSTIC, CONN.

’78 JOHN M. GARVEY

Class Ambassador jmgarvey@garvspace.com

’79 ANTHONY M. GRAY Class Ambassador tgray@tonygray.net

80s

’80 THOMAS E. DAVEY JR. Class Ambassador thomasdaveyjr@gmail.com

’80 BRIAN MAITLAND Class Ambassador brmaitland366@gmail.com

’81 SAMUEL C. BOOKBINDER IV Class Ambassador samuel.bookbinder@wfadvisors.com

’81 MICHAEL SYMES Class Ambassador symesm@icloud.com

’82 EDWARD STEWART Class Ambassador epstewart4@gmail.com

Look at these two gray beards … GREGORY STANTON ’82, P’14 , his wife, Maria, and daughter Isobella had a great holiday lunch with PETER CABOT ’82 and his daughter Maggie. A testament to decades of friendship—from living across the hall from each other freshman year in 1978 to roommates senior year!

Several years ago, Gregory Stanton started an architectural salvage business with his wife, Green Circle Auctions, where they specialize in selling house parts from homes being torn down or renovated. Their go-to markets are Greenwich, Conn., Scarsdale, N.Y., the Hamptons, and Palm Beach but work on a nationwide basis.

TIM TRAUTMAN ’75, P’03 AND GRAHAM BOYLE ’83 GOT TOGETHER FOR THE FIRST TIME IN 43 YEARS THIS JUNE AT THE CORAL BEACH CLUB IN BERMUDA.

TO RIGHT: JERRY GARVEY ’82, ED STEWART ’82, CAL HENNESSEY ’84, BRIAN CONROY ’82, H’13, P’20 , AND DEAN GRAHAM ’84 , IMITATING PAYNE STEWART’S POSE AFTER PLAYING PINEHURST NO. 2.

BRAD ’84 AND AMY MORRIS P’20, ’24
HOSTED A RECEPTION AT THEIR HOME IN JUPITER, FLA.
LEFT

’83 WILLIAM E. ESCHERT

Class Ambassador billeschert@gmail.com

’84 JOHN S. GORDON Class Ambassador falconatlfan@gmail.com

’85 SAM L. RUBENSTEIN Class Ambassador srubenstein127@gmail.com

’85 WILSON ALFORD Class Ambassador wm.alford3@gmail.com

’86 HENRY KRUPNIKOFF Class Ambassador hkrupnikoff@gmail.com

’87 HAROLD R. BEACHAM JR. Class Ambassador hal.beacham44@comcast.net

JIM DETORA P’12 PLAYED A ROUND OF GOLF WITH GEORGE GETZ ’80 AND BRAD MORRIS ’84, P’20, ’24 AT FISHERS ISLAND, THANKS TO HOST BRIAN WILHELM ’92, P’26, ’28.
BRIAN MAITLAND ’80 P’18, NICK DEANS ’91, P’27, COLEY LYNCH ’91, PETER REED ’88, P’26 , AND MIKE CONROY ’85, P’22 ATTENDED THE FINAL AOF LACROSSE GAME OF THE SEASON IN MAY 2025.
ALEX AMORY ’85 MARRIED WAYLA RAMSEY THIS MAY IN EUREKA SPRINGS, ARK. IT WAS A BEAUTIFUL CEREMONY AND CELEBRATION.

’87 WILLIAM “WHIP” BURKS Class Ambassador whip@vtharvest.com

’88 SHAWN E. ATKINSON Class Ambassador shawnatki@gmail.com

’88 PETER D. REED Class Ambassador pdreed18@gmail.com

’88 ROBERT GRYBOSKI Class Ambassador gryboski@gmail.com

’89 ROBERT M. WILEMAN Class Ambassador rmw@wilemanagency.com

90s

’90 PETER J. DECKERS Class Ambassador deckersp@avonoldfarms.com

’91 ROBERT A. DOWLING JR. Class Ambassador dowlingr@avonoldfarms.com

’92 WILLIAM P. AUSTIN Class Ambassador wpaustin55@gmail.com

’95 DANIEL FITZPATRICK Class Ambassador dpagfitz@gmail.com

’95 TIMOTHY MCANDREW Class Ambassador tim.mcandrew@alliant.com

’95 ANTHONY D. SILVESTRO Class Ambassador tony.silvestro@insperity.com

’98 J. ANDREW CORRIGAN Class Ambassador jamesandrewcorrigan@gmail.com

’99 DAVID R. GRYBOSKI Class Ambassador david@ghgdevelopment.com

’99 CHRISTOPHER GATEMAN Class Ambassador cgateman@gmail.com

00s

’00 DANIEL J. SEIDEN Class Ambassador seidend@gmail.com

’01 CHRISTOPHER D. COLEMAN Class Ambassador christopherdcoleman@gmail.com

’01 CRAIG CHESTER Class Ambassador cpchester@gmail.com

’03 JAMES T. TANG Class Ambassador jamesttang@gmail.com

’04 LUKE R. ARCHAMBAULT Class Ambassador archambaultl@avonoldfarms.com

’05 JOHN MORI Class Ambassador johncmori@gmail.com

ANDREW VALENTINE ’05, PATRICK SHERIDAN ’04, LUKE ARCHAMBAULT ’04, KYLE JAYNE ’05, HOST WESLEY JAYNE ’04 , AND GILMAN CALLSEN ’04 GATHERED WITH THEIR FAMILIES OVER THE SUMMER IN LONG VALLEY, N.J.
DAMIAN FOX ’91, P’23, ANDY CONSUEGRA ’80, P’14, KEVIN DRISCOLL ’72, P’08, AND KAMAL HOTCHANDANI ’92 HAD DINNER TOGETHER IN MIAMI, FLA.
CHIP KOHN ’93, P’26 HOSTED THE AOF GOLF TEAM FOR A FUN DAY AT MISQUAMICUT CLUB IN RHODE ISLAND IN SPRING 2025.

BOBBY JARAMILLO ’05 HOLDS HIS DAUGHTER, SOFIA, DURING HER FIRST BIRTHDAY CELEBRATION. PICTURED WITH CASEY COONS ’07 AND HIS SON, HENRY (LEFT), AND PORTER SARGENT ’05 (RIGHT).

’07 CASEY R. COONS Class Ambassador caseycoons4@gmail.com

’07 KENNETH TRENTOWSKI Class Ambassador ktrentowski@gmail.com

’07 JONATHAN HASPILAIRE Class Ambassador jonathan.haspilaire@gmail.com

’08 PETER HOLST-GRUBBE Class Ambassador holstgrubbep@gmail.com

’09 CONOR CUMMINGS Class Ambassador conorcummings@gmail.com

’09 JAKE R. BOURGAULT Class Ambassador jake.bourgault@gmail.com

PETER SELTENRIGHT ’07 CO-FOUNDED PREFABPADS WITH HIS WIFE, ANISHA, AND HER FATHER IN 2022. THEY BUILD PREFAB HOMES TO SHIP FROM THEIR FACILITY IN WAUKEGAN, ILL., TO CUSTOMERS AROUND THE COUNTRY. PETER IS THE COO, AND ANISHA IS THE CMO. PICTURED HERE IS PETER IN HIS FACTORY WHERE THEY EMPLOY EIGHT PEOPLE. ALSO WORTH NOTING THAT PETER AND ANISHA WELCOMED THEIR FIRST CHILD, DAUGHTER LEILA, IN 2024!

JOSHUA PAVANO ’06 GOT MARRIED ON AUGUST 9, 2025.

CASEY COONS ’07 AND MICKEY SHAW ’07 SPENT A WEEK IN JULY EXPLORING FINLAND, ESTONIA, AND LATVIA.

DEVIN KEOGH ’07, CASEY COONS ’07, RYAN PETERSEN ’07 , AND BRUCE PETERSEN P’07 PLAYED A ROUND OF GOLF IN NEW JERSEY IN AUGUST.

CHRIS WIELAND ’08 AND HIS WIFE, LAURIE, ATTENDED RICHARD ’08 AND POLLY WOODWELL’S WEDDING THIS JULY IN WOODSTOCK, VT. PICTURED LEFT TO RIGHT: CHRIS, POLLY, RICHARD, LAURIE.

10s

’10 PATRICK D. HAMPTON

Class Ambassador hampton@narf.org

’11 HARRISON M. LYONS Class Ambassador lyons.har@gmail.com

BOBBY MACDONALD ’11, ROBERT ARCHAMBAULT P’04, HOST RUSS LALLIER ’03, BRONSON KELLY ’11, AND LUKE ARCHAMBAULT ’04 PLAYED GOLF TOGETHER AT GREATHORSE IN HAMPDEN, MASS., OVER THE SUMMER.

’12 CONNOR P. DOYLE Class Ambassador doyle12187@gmail.com

’12 MICHAEL NICOLIA Class Ambassador michael.nicolia@gmail.com

’12 RYAN YEN Class Ambassador ryan.kho.yen@gmail.com

’13 WILLIAM WHITE Class Ambassador william.white1994@gmail.com

’14 MICKOY R. NICHOL Class Ambassador nicholm@avonoldfarms.com

’14 RYAN D. PHILLIPS Class Ambassador rydphillips@gmail.com

’15 EDMUND TAKATA Class Ambassador edmundtakata@gmail.com

’16 MATTHEW T. HORTON Class Ambassador mhorton@hortongroupllc.com

’16 ALESSO R. MARCOGLIESE Class Ambassador alessio.marcogliese@gmail.com

’16 BRADY WILLIAMSON Class Ambassador williamsonbrady6@gmail.com

THOMAS GIRARD ’17 got married in October 2024 and welcomed a child in July 2025.

20s

’21 CHRISTOPHER “CJ” BALDINI Class Ambassador cjbaldini@gmail.com

’21 DAVID HADEN Class Ambassador hadenda23@gmail.com

’21 PATRICK “PJ” A. NEAL Class Ambassador peejneal7@gmail.com

’22 NIKHIL SATPATHY Class Ambassador nikhilsatpathy@gmail.com

’22 JAVIER CALDERON Class Ambassador javiercsuarez4@gmail.com

’23 JACK GINTER Class Ambassador jginter@falcon.bentley.edu

’23 PETER SIANA Class Ambassador peterfsiana@gmail.com

’24 JOAQUIN ACUÑA GIRAULT Class Ambassador joaquinacunag05@gmail.com

’24 HUDSON MILLER Class Ambassador huddymills05@gmail.com

’25 SAMUEL HOUSTON Class Ambassador samhouston@gmail.com

’25 EDWARD “TEDDY” LISTER Class Ambassador teddylister@icloud.com

RAY WIACEK ’11 GOT MARRIED TO CHRISTINE RANDAZZO IN OCTOBER 2025 ON LAKE WINNIPESAUKEE!
ESTEEMED ARTIST MAX RIESER ’16 VISITED CAMPUS WITH MICKOY NICHOL ’14 DURING SUMMER 2025.
CARL VALIMONT ’84, P’13 AND CHUCK BLANCHARD ’24 ON CAMPUS IN MAY 2025.

THE SCHOOL HAS LEARNED OF THE FOLLOWING DEATHS:

ANDREW “ANDY” TREADWAY ’55

JOHN “KIRK” MICHAUX ’59

FRANCIS “CHI-CHI” GALLO ’61

RICHARD P. BEHR ’67

JOHN H. DUQUETTE ’67

GEORGE W. MADEIRA ’68

DOUGLAS W. TRUTER ’69

DENIS MCKEON ’71

GLENN M. BLUMENTHAL ’77

JOHN B. FARNHAM ’85

DAVID R. AYERS ’98

PARENTS AND ALUMNI GATHERED AT THE HOME OF MOLLY AND MIKE WALSH P’23 IN JULY 2025 FOR AN AOF RECEPTION ON NANTUCKET.
MAGNUS TURCOTTE ’24, ALEX PELLETIER ’24, HUDSON MILLER ’24, CHUCK BLANCHARD ’24 , AND STEPHEN PECK ’23 RAN INTO EACH OTHER ON THE STREETS OF NEW YORK CITY!

WE ARE AVON. WE ASPIRE TO GREATNESS. Together, We Give. OF FISCAL YEAR 2025 SUPPORTERS MADE A GIFT OF $500 OR LESS.

Aspirando et Perseverando — Aspiring and Persevering — is more than our motto. It is our call to action. The Fund for Avon’s Path to $3.4M 72% $150

THE MEDIAN GIFT SIZE FROM AVON SUPPORTERS IN FISCAL YEAR 2025:

This year, we aspire to reach $3.4 million for the Fund for Avon, which supports 10% of the school’s annual operating budget. The path is clear: a pyramid of gifts built by leadership at the top, strength and stability in the middle, and broad participation at the base. Every boy benefits. Every gift, large or small, matters.

WHEN YOU GIVE, YOU JOIN A COMMUNITY THAT PERSEVERES, TOGETHER, TO ENSURE AVON THRIVES.

YOUR FUND FOR AVON PARTNERSHIP POWERS THE STUDENT EXPERIENCE: Brotherhood

This is our moment. Together, we aspire. Together, we persevere. Together, we give.

PARTING SHOT

More than 100 new students kicked off their Avon journey with a river tubing trip through the picturesque Farmington Valley. With perfect September weather, boys floated, relaxed, and laughed their way down the river—chatting with new friends, hitting the occasional set of rapids, and soaking in the outdoors without a phone in sight. The adventure offered the perfect mix of fun and connection, helping friendships form before the school year even began.

500 Old Farms Road

Avon, Connecticut 06001

www.avonoldfarms.com

CHANGE SERVICE REQUESTED

Parents

If this issue is addressed to your son or to your family, but your son no longer maintains an address at your home, please reach out to us with the correct address.

Email us at: alumni@avonoldfarms.com

Turn static files into dynamic content formats.

Create a flipbook
Issuu converts static files into: digital portfolios, online yearbooks, online catalogs, digital photo albums and more. Sign up and create your flipbook.