2023 Portfolio

Page 1

AVARIE HONKOMP

INTERIOR
2023
ARCHITECTURE
SELECTED WORKS

AVARIE HONKOMP

Hello! I am a third year Interior Architecture student looking to gain experience and knowledge in the fields of interior design and/or architecture. The human experience within a building really interests me in commercial design, especially relating to healthcare and education. I’m looking forward to contributing to the field based on my education and experiences!

Education

BACHELOR OF SCIENCE IN INTERIOR ARCHITECTURE

The University of Kansas | Anticipated Graduation in May 2024

Anticipated MASTER OF ARCHITECTURE | Graduation 2026

SOUTH O’BRIEN HIGH SCHOOL

Paullina, IA | Graduation in 2020

Work Experience

FRONT DESK ASSISTANT

The University of Kansas | Jan 2022 – Present

· Handles basic inquiries and sorts mail

· Answers telephone calls, as well as screens and forwards calls.

GREENHOUSE SUPERVISOR

Stone River Nursery | May 2022 – Aug 2022

· Maintained stock and inventory records on a regular basis

· Assisted customers with their questions and concerns

· Cultivated plants from seeds or cuttings and transplanted them into larger containers

RETAIL ASSOCIATE

Homeology Décor & Boutique | May 2021 – Aug 2021

· Provided quality customer service to optimize customer purchasing and satisfaction

· Educated customers on available product options to meet and exceed customer service expectations

· Resolved customer complaints or issues to strengthen store reputation and grow customer retention

SERVER, HOSTESS, FOOD RUNNER

Okoboji Store Bar and Kitchen | May 2020 – Aug 2020

· Provided excellent customer service; worked with other staff to ensure orders were served in an efficient way

· Gained experience with multitasking, communication, and customer satisfaction

Achievements/Activities

GAMMA PHI BETA EXECUTIVE BOARD, EDUCATION VICE PRESIDENT | 2022 - Present

NANCY NAGLE BOLTS FINE ARTS SCHOLARSHIP | 2021Present

IIDA MEMBER | 2021 - Present

GAMMA PHI BETA EVENTS CHAIR | 2020 - 2022

LAWRENCE HUMANE SOCIETY FOSTER PARENT | 2020 - 2021

KU EXCELLENCE SCHOLARSHIP | 2020 - Present

ACADEMIC ALL STATE VOLLEYBALL, IOWA | 2020

Skills

PROFICIENT | Autodesk Revit, Enscape, Sketchup, Adobe Photoshop, Adobe InDesign, Adobe Illustrator, Microsoft PowerPoint, Microsoft Word, Microsoft Outlook

BASIC | 3DS Max, AutoCAD, Microsoft Excel

PAGE 2

Page 4 -

Vivacity Memory Care

Spring 2022

Page 22 -

Coworking Office

Spring 2022

Page 28 -

Sustainable Smart Home

Spring 2022 | Partner Project

Page 38 -

Pattern Cafe

Spring 2022

Page 46 -

Micro Retail

Fall 2022

PAGE 3
TABLE OF CONTENTS
Budig Hall Sketch

Vivacity Memory Care

PAGE 4
PAGE 5

VIVACITY MEMORY CARE

Project Background

I needed to create a vibrant, user-centered interior environment that encourages and facilitates social interactions and engaging activities among mildly cognitively impaired elderly with Alzheimer’s Disease. It was very critical that the design reflects a non-institutional ambiance. These expectations are all based on design research data that show that non-institutional type interior design significantly helps elderly populations with Alzheimer’s Disease. As a result, the Client will see the interior design of this facility incorporates state of the art design features that heavily draw from the most recent, cutting-edge research on designing for Alzheimer’s and Dementia and all design decisions are based only on research evidence.

Right now, there’s an estimated 6.5 million Americans with Alzheimer’s, and due to a higher life expectancy, the number is growing.

What is it? Alzheimer’s is a brain disease that causes problems with memory, thinking, and behavior.

How

is it caused?

The disease is caused by an abnormal build up of proteins in and around brain cells. Over time the brain cells die and the brain shrinks.

What are the effects?

Some symptoms of Alzheimer’s include; memory lapses, mood changes, disorientation, problems speaking, and problems with depth perception. Problems eating, incontinence, and serious problems with long and short term memory come with more severe Alzheimer’s.

PAGE 6

Concept FLOW

Inspired by the human brain, the design of Vivacity Memory Care Center focuses on the flow and energy of each space. The facility’s organic layout and well arranged activity and rest areas allow for a focus on psychological health and living a meaningful, functioning life.

Design Considerations

PAGE 7

Schematics

Important

Desirable

Negative

Primary

Secondary

Tertiary

Entrance/Lobby

Rec Areas

Restaurant Cafe

Salon/Spa

Reading Nook #1

Reading Nook #2

Reading Nook #3

Art Gallery

Movie Theater

Day Care

Sensory Garden

Restrooms

Storage

Adjacency Matrix

PAGE 8
Bubble Diagram Blocking Diagram

Floor Plans

PAGE 9 UP UP UP DN UP EXIT EXIT EXIT EXIT EXIT EXIT 1555 SF Art Gallery 2475 SF Cafe 1276 SF Circulation 625 SF Village Store 515 SF Rec Space 1 111 SF Storage 2 812 SF Lounge Space 1272 SF Rec Space 2 1117 SF Rec Space 2.1 847 SF Lobby 936 SF Daycare 2492 SF Circulation 1655 SF Exercise Rec Space 1494 SF Theater 576 SF Salon 2632 SF Restaurant 527 SF Restaurant Kitchen 87 SF Kitchen Storage 599 SF Art Studio 320 SF Enclosed Reading Nook 316 SF Sensory Garden Project number Date Drawn by Checked by www.autodesk.com/revit Rendered FP Copy 1 Project Number Avarie Honkomp Vivacity Memory Care Description 1 Furniture Floor Plan Copy 1 Project number Date Drawn by Checked by www.autodesk.com/revit Rendered FP Project Number Avarie Honkomp Vivacity Memory Care Issue Date Author Checker No. Description Date 1/16" = 1'-0" 1 Rendered FP
Complete Furniture Floor Plan Rendered Floor Plan of Select Spaces

Reflected Ceiling Plan

PAGE 10
Art Gallery & Lobby
Art Gallery Lounge Rendering
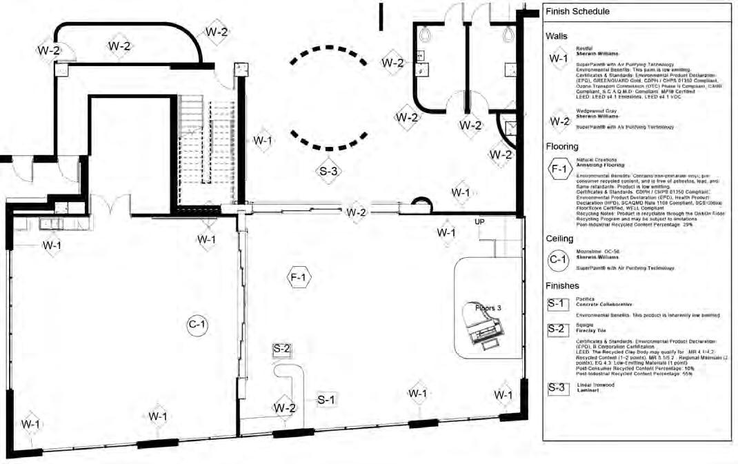
PAGE 11 Finish Plan
Rendering
Lobby

Art Gallery Rendering

PAGE 12
PAGE 13
PAGE 14 Material Callouts Cafe Reflected Ceiling Plan GLOWRING™ RECESSED OCL 2940 lm | LED CrossBar™ GRL Kelvix 2400 lm per 4 ft GLOWRING™ RECESSED OCL 2940 lm | LED

Material Callouts

Pennywise Sherwin-Williams

SuperPaint® with Air Purifying Technology

Environmental Benefits: This paint is low emitting.

Certificates & Standards: Environmental Product Declaration (EPD), GREENGUARD Gold, CDPH / CHPS 01350 Compliant, Ozone Transport Commission (OTC) Phase II Compliant, CARB Compliant, S.C.A.Q.M.D. Compliant, MPI® Certified

LEED: LEED v4.1 Emissions, LEED v4.1 VOC

Art Select Karndean Designflooring

Environmental Benefits: Product is free of phthalates and is low emitting. Produced in an ISO 9001 and ISO 14001 facility.

Certificates & Standards: CDPH / CHPS 01350 Compliant, Environmental Product Declaration (EPD), GreenTag Certified, SCS Global FloorScore Certified

Pressed Glass 3Form

Environmental Benefits: 3form partners with The Bonneville Environmental Foundation and Blue Sky to partially offset its operational and travel emssions.

Certificates & Standards: Certified for use in safety glazing applications.

GREENGUARD Gold certified.

PAGE 15 Finish Plan

Cafe Rendering

PAGE 16
PAGE 17

Recreation Space

PAGE 18
Reflected Ceiling Plan
West Side of Recreation Space Rendering Lounge Rendering
PAGE 19 Finish Plan
East Recreation Space Rendering

Habitat Coworking Office

PAGE 20
PAGE 21

HABITAT COWORKING OFFICE

Project Background

This project shows my process of creating a coworking space for the first level of the Two Light Luxury Apartments in downtown Kansas City. Starting with a site analysis, I worked through conceptual and schematic design to develop a space that emphasizes the use of natural elements and light.

Concept

This office space focuses on incorporating biophilia and using natural components in the design to make the space feel welcoming and bright. The inner city is full of energy and hustle. By incorporating elements from nature into the office space, it allows to keep the energy while transforming the chaotic energy into more of a relaxed feel. Greenery, lighting, natural tones, as well as materials like stone and wood help to bring that feeling to life.

INCLUSIVITY PRODUCTIVITY CIRCULATION SUSTAINABILITY

PAGE 22
Diagram
Diagram
Criteria Matrices Site Analysis Blocking
Blocking
PAGE 23
Rendering of Phone Booths
PAGE 24 1 Multipurpose Room Conference Rooms Coffee BarLactation Room Bathrooms Kitchenette Phone Booths
Level 1 0' - 0" Level 2 14' - 0" Rendered Floor Plan Elevation of Hot Desks Elevation of Small Offices Level 1 0' - 0" Level 2 14' - 0"
Plans & Elevations

Renderings, Materials, & Furniture

Sherwin WilliamsHoneydew

Steelcase West Elm- Greenpoint Bench

OCLGlowball™ Diverge Lighting

Salvage EuropeOld Growth French Oak

Vadara QuartzSereno Gold

Knoll TextilesArezzo

OCLPetals™ Acoustic Lighting

PAGE 25
Rendering of Indoor Garden Rendering of Lobby Herman MillerAeron Chair Green OasisLive Wall Pod

Sustainable Smart Home

PAGE 26
PAGE 27

SUSTAINABLE SMART HOME

Project Background

A classmate and I designed a sustainable smart home fit for a homeless family in Kansas City Kansas. We researched the challenge and then designed to accommodate it applying human factors, sustainable design, and smart technology. The home was designed to be LEED certified as well as to provide a safe, low cost housing option for a family coming out of homelessness.

Demographic Research

53% OF HOMELESS MOTHERS DO NOT HAVE A HIGH SCHOOL DIPLOMA

85% OF HOMELESS CHILDREN HAVE BEEN EXPOSED TO A SERIOUS VIOLENT EVENT

The Johnson’s have been struggling with homelessness for months after Jessica was a victim of domestic violence in their home. She and her children have been bouncing between homeless shelters, her car, and friend’s homes. She struggles with finding a permanent place to stay due to low funds from having to pay for some type of childcare while working at a local grocery store at minimum wage.

PAGE 28
JOHNSON FAMILY A MOTHER & THREE CHILDREN Jessica Johnson Timmy Johnson Luke Johnson Carl Johnson

Concept

This smart home incorporates materials and elements that aren’t overwhelming and flashy as well as an emphasizes balance between connection and privacy. People living in this smart home will be connected through spaces designed for social time, as well as rooms that are literally connected together through a wrap around deck on the second level. There are multiple outdoor spaces designed to connect the residents of the home to the outside.

Schematics

PRIVACYNATURALLIGHTEQUIPMENT

INCLUDE SUSTAINABLE MATERIALS AND SMART TECHNOLOGY

DESIGNED FOR A FAMILY & SAFE FOR CHILDREN

DESIGN FOR SOMEONE LIVING A LOW COST LIFESTYLE

COMFORTABLE COLOR SCHEME/ MATERIALS

PAGE 29
BACK OF HOUSE BACK OF HOUSE FRONT OF HOUSE Adjacency Matrix Bubble Diagram Blocking Diagram FRONT OF HOUSE

Floor & Ceiling Plans

Floor Plan Level 1-3

Floor Plan Level 4

Reflected Ceiling Plan Levels 1-3

Haiku Uplight Ceiling Fan Big Ass Fans

16 dimmable LED light levels

Output of up to 1,280 lumens for versatile lighting options

Integrates with SenseMe motion sensor

Remote, mobile app, and voice controls available

Symbol:

Retrofit Indirect Downlights

TECH LIGHTING

Award-winning, patent-pending innovative design

Reduced-Glare, Indirect LED General Illumination

Symbol:

Reflected Ceiling Plan Level 4

Sedona Medium Pendant TECH LIGHTING

Fully dimmable warm LED options to create the desired ambiance

As each piece is artisan made, slight variations are an inherent part of this handblown glass fixture

Symbol:

Gambit Chandelier TECH LIGHTING

Mixed materials and contrasting design elements combine for a warm contemporary design

Medium scale

Fully dimmable LED lamping options to create the desired ambiance

Symbol:

PAGE 30
Living Room Office Mechanical Laundry Dining and Homework Space Kitchen Entrance DN Deck Secondary Bedroom Bathroom Secondary Bedroom Lounge Space Primary Bathroom Primary Bedroom Garden
------1/8" = 1'-0" Level 5-------

Sections & LEED Information

ENERGY AND ATMOSPHERE

INDOOR ENVIRONMENTAL CONTROL

WATER EFFICIENCY

MATERIALS AND RESOURCES

SUSTAINABLE SITES

PAGE 31 3/16" = 1' 2 Section 11 3/16" = 1'-0" Section 10 West Section South Section
3/16" = 1'-0" 1 Section 11

Renderings

PAGE
32
Rendered Elevation of Kitchen Rendering of Kitchen & Back Entrance

These spaces are the ones I designed to be completely open. On the first levels, if someone was standing on one end of the house, they could see completely through to the other side. Since the home is designed for a family seeking help after homelessness, connection within the space was a top priority. A natural, flowing color scheme and room separation that is not completely closed off with a slight elevation difference helped with that in this design.

PAGE 33
Rendered Elevation of Living Room Rendering of Dining & Homework Space

Exterior Rendering & Sustainable Materials

PAGE 34 1 2 3 4 5 6 7 8 10 9
Rendering of Upstairs Lounge Space Exterior Rendering Rendering of Kitchen With Material Labels

Amalfi Coast Fireclay Tile

Environmental Benefits: This product ships carbon neutral. Product has zero VOC’s and contains recycled content.

Certificates & Standards: Environmental Product Declaration (EPD), Health Product Declaration (HPD), LEED

Compliant

LEED: MR 4.1/4.2: Recycled Content (1–2 points), MR 5.1/5.2: Regional Materials (2 points), EQ 4.2: Low-Emitting Materials (1 point)

Post-Consumer Recycled Content

Percentage: >50%

Emotions Line Veneer and Carved Finishes

Porcelanosa

Environmental Benefits: This product is a part of an ecological commitment.

Clovelly

Cambria

Certificate & Standards: Greenguard, Greenguard Gold, Health Product Declaration (HPD) Open Standard, Declare Certified and Living Building Challenge (LBC) Contributes to LEED credits

Eames Molded Fiberglass

Upholstered Stool

Herman-Miller

Sahara

KnollTextiles

Environmental Benefits: This product contains post-consumer recycled content. This product is low emitting.

Certificates & Standards: Clean Air Silver, Greenguard Certification, Health Product Declaration (HPD).

LEED: May contribute toward LEED credits.

Post-Consumer Recycled Content

Percentage: 63%

Alabaster Sherwin-Williams SuperPaint® with Air Purifying Technology

Environmental Benefits: This paint is low emitting.

Certificates & Standards: Environmental Product Declaration (EPD), GREENGUARD Gold, CDPH / CHPS

01350 Compliant, Ozone Transport Commission (OTC) Phase II Compliant, CARB Compliant, S.C.A.Q.M.D. Compliant, MPI® Certified

LEED: LEED v4.1 Emissions, LEED v4.1 VOC

3-Door French Door Refrigerator with Family Hub™

Samsung

Samsung’s Family Hub,™ now with Alexa built-in, helps you stay connected to your family and home, whenever and wherever. Family Hub™ lets you control your Samsung smart appliances and devices, stream music, share pictures with your family, and so much more, all right from your fridge.

Sereno Renzi Reward Flooring

Environmental Benefits: This product is low emitting.

Certificates & Standards: SCS Global FloorScore Certification.

LEED: Can contribute to LEED points.

Motorized Light Filtering Solar Shades SmartWings

SmartWings motorized roller shades have an integrated battery that is USB-C rechargeable, it is much more safe and applicable. Control and automate your smart shades by smartphone, smart speakers or remote.

Tavos Aliso Zandur

Environmental Benefits: Made from rapidly renewable and recycled content that is free of PVC, phthalates, halogens, and Red List chemicals. Product is low emitting.

Certificates & Standards: CDPH / CHPS

01350 Compliant

LEED: May contribute to LEED credits. Recycling Notes: Product is recyclable through Zandur take back program.

PAGE 35
Smart Light Bulbs
2 3 4 5 6 7 8 9 10 11 1
Phillip’s Hue With different types of shapes and bases, the smart bulbs can fit almost any lamp or fixture in a home — making it easy to add smart light throughout.

Pattern Cafe

PAGE 36
PAGE 37

PATTERN CAFE

Project Background

In this project the goal was to create a cafe space in the Grand Hall of Union Station in Kansas City, KS. We explored pattern creation and created multifunctional divider and seating systems.

Concept

The concept and focus of this cafe space are symmetry and movement. Both of these concepts were main characteristics of the French Art Deco style. Organization within the cafe is created by the symmetrical floor plan that replicates the shape of the final sunbeam pattern I created. The sunbeam shape and pattern plays a big role in the cafe space. Not only is it repeated in divider elements, but it is also the layout of the space. Both public and private spaces as well as different seating options are reflected over the middle x axis of the pattern element.

The way someone moves around the space is also an important factor in the design. The center kiosk works as a divider between the front of the space and the back as well as a central location for people to move around.

Circulation & Pattern Inspiration

PAGE 38
Deco Pattern Exploration Final Pattern
SYMMETRY & MOVEMENT Art

Rendering

PAGE 39
Rendering of Cafe Entrance

Divider Process

Initial Divider Sketches

Elevations Of Dividers And Furniture

Rendering of Divider

PAGE 40

Kiosk Process

Initial Kiosk Sketches & Model

Elevations Of Dividers And Furniture

Rendering of Kiosk

PAGE 41

Plans & Materials

Spatial Context Diagram

Perforated Metal Moz Designs Inc.

Perforated Metal Moz Designs Inc.

Academy Velvet

Justin David

Textiles

PAGE 42
Calacatta Dorada Vadara Quartz Rosewood Veneer National Solutions
PAGE 43

Micro Retail Space

MICRO RETAIL

Project Background

The class was tasked with designing a small space that creates a compelling retail experience. We designed built in displays that are also used for storage, and designed around a brand of our choosing.

Brand Research SLEEPER

BRAND IDENTITY

- MISSION “cultivating love and self care in everyday life”

- multipurpose garments that make you feel beautiful

-emphasis on being zero-waste and eco-friendly

STYLE ELEMENTS

- linen, silk, and viscose

- cross functional (can wear in or out)

- every piece of clothing is hand-made

Concept & Inspiration

SOFT PLAYFUL DREAMY

The concept for the space- a soft dreamlandwas inspired by the designs of Sleeper’s pajama sets. This space is playful and fun, perfect for a group of friends to come try on and shop for some matching pajamas. The overall layout includes two dressing rooms and a mirrored area behind curtains that can easily be opened up for a more spacious layout. The feeling when one walks in is comfortable and soft thanks to the rounded features of the furniture and the floor to ceiling drapes on the walls.

PAGE 46

Materials & Anthropometrics

LIGHTING

Natural and bright lighting will be in the space using general lighting. Accent lighting will also be used to call attention to certain items as well as near the changing rooms.

SCENT

A fresh cotton and dreamy lavender scent will be used in the store. Simple, fresh scents are known to make customers buy more when shopping. On top of that, lavender is known to create the feeling of serenity and luxury.

Reach Level above 6 ft

Eye Level 4 ft - 5 ft

Touch Level 3 ft - 4 ft

Stoop Level below 3 ft

PAGE 47
Schematic Sketch of Space Schematic Spatial Planning Diagram Fairest PinkWhite Oak Iridescent Pearl Acrylic Super White Ivory Fabric Madison Velvet

Plans, Elevations & Details

Reflected Ceiling Plan

PAGE 48
CEILING
Plan
10 FT CEILING 12 FT
Floor

Shoe Display Section

Cashwrap Section

PAGE 49
A
B 2'8" 3'8" 2' - 6" 0'7 3/4" 1' - 0" 0'4" 0' - 3" 1' - 0" 2' - 0" 0'4" 3' - 7" 3'2" 1'6" 1' - 1 1/2" 1' - 4"
Elevation
Elevation
1/2”
Pearl Acrylic Sheet Drawer Cut Outs 2x4 Wood Planks 2x4 Wood Planks 3/4”
White
Plywood
Display Cashwrap Drawers Not Pictured
Shoe
THANK YOU FOR TAKING THE TIME TO LOOK OVER MY PORTFOLIO. AVARIE HONKOMP EMAIL: a245h693@ku.edu, school amhonkomp@icloud.com, personal PHONE: (712) 631-1226

Turn static files into dynamic content formats.

Create a flipbook
Issuu converts static files into: digital portfolios, online yearbooks, online catalogs, digital photo albums and more. Sign up and create your flipbook.