Skip to main content

商業設計/室內設計作品集

Page 1

YANG, FANG

PORT FOLIO

2016/2022
Interior Design 室內設計作品 31 25 Project 行銷企劃 19 Package Design 包裝設計 13 Graphic Design 平面設計 03 Final Project 專題 About Me 關於我 01 Contents

YANG FANG

個性獨立且隨和,喜歡有條理的做事模式,擅長 時間管理與分配,具有上進心,團隊合作時,會 在適當時機表達想法,互相溝通,達成共識,傾 聽他人的意見,也追求自己想要的風格,不斷的 改善。我的特色就是負責且具有領導能力,從國 中到大學,我都曾擔任過股長或是社團的幹部, 認真負責的態度,受到老師們的肯定。

畢業當年即進入室內設計領域工作,從商業設計 非本科系畢業的美編,積極努力學習至升為設計 師助理,以當室內設計師為目標。

avery0424@gmail.com 0939028516 01

國立臺中科技大學

Nu Pasta

吧檯/廚師/場控/收銀

Chopa寵物美容

美宣

廣州火炬高新技術服務中心 行政、美宣

文騰文理語文數學短期補習班

行政、美宣、班導師

國立臺北商業大學

商業設計管理系

整合行銷管理師(丙級)

品牌管理師(丙級)

(ACA)Photoshop

(ACA)Illustrator

電腦軟體應用(丙級)

萬林工程有限公司

室內設計師助理、美宣

中華職人文化發展協會

室內設計師人才培訓班

EEC

活動、行銷企劃 視覺設計相關知識 CIS企劃設計 電腦排版設計 手繪技能表現 各式封面設計 SKILLS Sketchup Cad Auto EXCEL WORD PPT ID AE DW PR AI PS TOOLS LICENSE TQC-OA 電子商務概論 專業級 TQC-OA PPT 專業級
雲端服務規劃
EEC
企業電子化助理規劃師
EXPERIENCE
02
資訊管理系 EDUCATION
03

Final Project 02

04

專題名稱 - 變態

蝴蝶的蛻變又稱為「完全變態 」,是昆蟲發育的一種類型。

我們希望打破常規,改變在人們腦中的固有的型態,因此將本 次主題取名為「 變態 」。

希望透過我們所設計商品用與以往不同的形式,透過日常生活 用品向大家介紹臺灣蝴蝶之美,傳達臺灣蝴蝶品種相關知識給 大眾 ,喚起保育蝴蝶、守護環境的心態,使得消費者在使用 日常用品的同時,從產品上吸收知識。

負責項目:LOGO設計/海報設計/部分明信片設計/部分絲金設計/行銷企劃書/影片剪輯

05

變色傘| UMBRELLA

採取特別變色技術,下雨天 碰到水顯現更絢麗的色彩, 達到蝴蝶綻放的意象,兼具 實用與美觀。

06
07

真絲絲巾| SILKSCARF

以有機造型呈現臺灣特有 種蝴蝶,使用緞面手感細 膩柔滑、飄逸悠揚,表現 輕搧蝶翼的靈動輕盈。

08

明信片| POSTCARD

產品說明以圖鑑式的明信片呈現,以生活化的方式帶入蝴蝶相關知 識,明信片分為五大科,分別是鳳蝶科、蛺蝶科、粉蝶科、灰蝶科 以及弄蝶科,共25張。

09
正面 背面 10

宣傳影片| VIDEO

快節奏方式帶入圖片去做動畫,以三大主要概念的小圖示開場,並由蝴 蝶數量由少到多再帶到中間的LOGO為影片開頭,中段一一標示各項 製作產品的內容以及遇水變色效果和絲巾穿戴效果,最後再以由少到多

的明細片去做一個多款式的表現,全程影片皆以對節奏方式呈現,以達 到活潑的產品介紹目的。

11
00:05 00:10 00:22 00:26 00:39 01:01 01:02 01:04 12
13

Graphic design

03 14
15
電腦繪圖課程作業
16
參加第八屆全國學生臺灣原住民海報創作比賽
17
廣告設計課程作業
18
19

Package design

20
04
21
包裝設計課程作業
22
23
包裝設計課程作業

典雅配色與千塘之鄉的美譽相互呼應,以窗花藝術結合桃園著名 古蹟進行外觀設計,除推廣桃園地方特色外,也讓更多人了解桃

園陶藝控窯之美。
24
千陶窯包裝禮盒
25
05 26
Project

產品專案管理與設計思考

許多人會有搭大眾運輸工具交通卡感應失敗,又或想刷信用卡付 費時卻感應不到特定卡片等困擾,在這人手不只一卡的世代,我 們設計了一款指推式卡夾『Keepel』。

Keepel,一指推移出您想要感應的卡片,再也不必打開錢包或手 持卡夾一張一張的翻找,時尚有質感的外型兼具便利性。

27
商業化設計
28

創意思考與企劃

LINE-CHARITY公益捐贈系統

做公益等等的活動不勝枚舉,但目前捐贈對象幾乎都為企業型管理制度 的的大團體,但在眾多醜聞爆出後的更是失去捐贈者們的信任,且目前 市面上捐款、捐物資的管道仍多為轉帳匯款、親自載運捐贈物資等,因 此藉由L-Bank有更便捷的捐款方式外,也增添小團體捐贈對象,不僅 可以更快速便利的捐款,更可以排除使用者的捐款疑慮。

29
30
31
室內設計師人才培訓班作品 中華職人文化發展協會 32
Interior design 06
手繪演練與空間配置
33
各式樓梯練習
34
平面圖之圖片臨摹
35
立剖面圖演練
36
櫃體立剖面圖演練
37
商業空間平面及天花板配置圖
38
一點透視圖演練
套房空間設計
39
套房立面配置圖 套房平面配置圖
40
櫃體三視圖及大樣圖練習 套房天花板配置圖
3D套房外觀繪製
41
3D套房外觀繪製 3D套房傢俱配置
42
3D套房傢俱配置

五人住宅空間設計

[家庭成員]

56歲,自由工作者, 喜歡親近大自然, 希望家中與綠色做結合。

52歲,職業婦女, 喜好美食及收藏, 希望家中有烹飪空間與展示空間。

男主人

女主人

叔叔

52歲,男主人的弟弟, 未婚,白領階級, 喜好日本文化、品茶。

[概念發想]

78歲,過著退休生活, 喜歡親近大自然。

72歲,過著退休生活, 同丈夫喜歡親近大自然。

爺爺

奶奶

以課程專題『兩層樓的義大利建築大師Aldo Rossi的建築風格』為主軸,採用"新理性主義"的義大利建 築師 - Aldo Rossi的設計理念,且以"城市建築"為主要概念的手法,將使用者的需求與各自期望能看 見的城市風景、風格去做個人化的配置與設計,並同時在各個使用者重視的區塊中,使用Aldo Rossi擅 長使用的鮮豔配色與幾何元素去做搭配,個人化配置的同時,延續主軸也不失和諧。

[概念說明]

自然 :依男主人及爺爺奶奶喜歡大自然的喜好 , 將綠色環境與大自然氛圍帶進室內住宅。

『陽光』:陽光照射 『天臺』:天臺設計及天臺一側全透明玻璃窗,象徵陽光灑落。

『空氣』:淨化空氣

『植栽』:室內空間多處有綠色植栽與花牆做景觀佈置。

『 水 』:潺潺水流 『水景』:客廳透明水流地板及電視牆、臥室室內外流水通道以及從一

樓留下至二樓的小型瀑布。

美食 :依女主人喜歡美食及烹飪的喜好 , 將一樓的廚房空間擴大,同時也作為回到家繼玄關後,第一

個印入眼簾的室內區域。

品茶 :依叔叔喜歡品茶的喜好 , 在一樓客廳陽台有可品茶聊天的木板與榻榻米,其獨立臥室更是摻入

了日式風格的空間設計,由內而外延伸的加高木地板,區隔不同區域的同時又連通了內外空間 ,搭配茶桌與榻榻米和水面佈景,給予更足夠的空間與氛圍細細品茶。

43

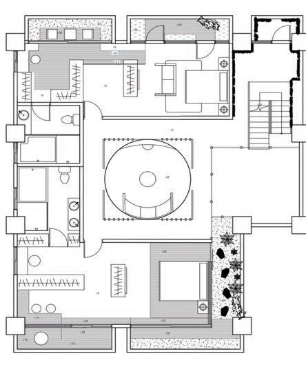
[空間配置

六樓3D空間配置圖 五樓3D空間配置圖 六樓平面配置圖 五樓平面配置圖
44
5、6樓B向立剖面圖 6樓天花板燈具平面圖 5、6樓A向立剖面圖
45
5樓天花板燈具平面圖
[手繪天花/剖面圖]
6樓手做模型 5樓手做模型 6樓3D空間配置圖
46
5樓3D空間配置圖

Turn static files into dynamic content formats.

Create a flipbook