PORTAFOLIO 2025 Daniel Avendaño Sáenz

Page 1


Daniel Avendaño Sáenz

TELEPROM UCR

The proposal aims to create a connection station that serves as a waiting area for transportation to various parts of the University of Costa Rica, while also providing a space for rest and recreation within a single vertically designed building The station consists of three levels: the lower level dedicated to transit and integration with the immediate landscape; the middle level, designated as the boarding area and an upper level that includes a café, study and relaxation areas, as well as restroom facilities

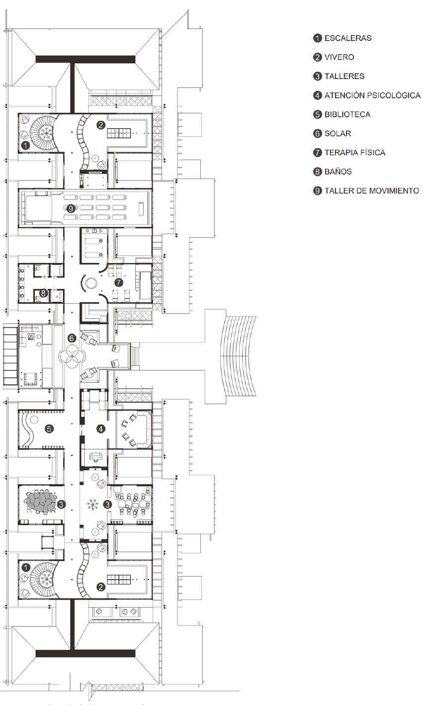
BOTANIA

Botania is a psychosocial healing accommodation for women that, unlike other lodging spaces, focuses on improving the quality of life for its users. It encourages the implementation of healing habits for daily life Through spaces that challenge traditional roles assigned to women, Botania fosters an environment where collaboration and co-creation are celebrated. Here women have the freedom to explore, experiment, and express themselves without restrictions breaking away from preconceived expectations and building new paradigms of equality and empowerment.

Transitional Residence Shelter for minors who require temporary protection services while their families manage to change their home situation and can guarantee the safe reintegration of the children into the Broran community. In this program, spaces are sought for bonding with the natural environment as a means to strengthen intra-family relationships It focuses on children from 4 to 12 years of age, and seeks not only to reintegrate them into their families, but also into their traditions and their economy

There is a clear problem of cultural loss in the child populations of Terraba. Many families are forced to leave their children at home due to the need to work. PANI intervenes and removes the children from the community, ensuring a place of care for them, but far from their roots With this, there is a cultural loss from an early age in Térraba

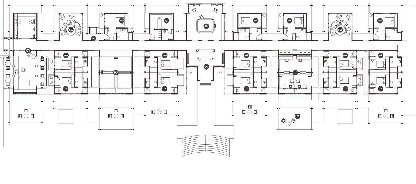
INDIGO COVE

This project consists of a destination hotel located in Playa Sámara, focused on teaching a healthy lifestyle This goal is achieved through spaces that promote positive habits, allowing our visitors to gain greater longevity and vitality The restaurant block and common areas have been primarily designed to encourage learning about nutritional and social health This approach aims to create spaces where users can learn about the proper consumption and preparation of the food products they encounter daily The space seeks to evoke a perception of natural luxury, primarily through the use of sober materials such as wood and concrete.

Actualcondition

FirstPhase SecondPhase

The first stage consists of the current situation of the project as airB&B and its respective adaptation to the proposal.

In the first phase, the implementation of the hotel proposal is proposed In this phase use is made of the front green space as a linking element with the immediate surroundings of the beach. It seeks to involve the community in the activities of the proposal Deadline: 1 to 5 years

In the second phase, the flooded area will be reconditioned and converted into a dock for small boats that will allow new recreational activities to be carried out in the project. Term: 10 to 15 years

Taking as a reference the studies conducted in the Nosara sector in March 2021 and the studies analyzed by NASA on the increase of sea level worldwide, where an increase of 10 mm per year is calculated, we conclude an approximate increase of 40 cm on average by 2050.

Based on NASA documents on global sea level rise.

The restaurant block and common areas have been designed mainly for habits that focus on the development of learning about food health and social health. With this, we seek to create spaces that allow users to learn about the correct consumption and preparation of the products they eat every day

04.RENDERS

This section is dedicated to showcasing renders of projects that are not of my own authorship but have been created on behalf of other architects during the year 2024. These projects and designs reflect collaboration and teamwork within the architectural field, where the directives and visions of the responsible architects have been followed, contributing to the realization of their concepts and proposals through detailed and carefully crafted visual representations

This project consists of an afrofuturist-themed nightclub located in Madrid Spain Through the use of renders, incorporating textures and lighting effects, an aesthetic in line with the desired concept was achieved. This project focuses on the use of artificial light to create a realistic level of detail, enhancing the overall ambiance and experience of the space

Design by Arquitect Priscilla Lescouflair

This project consists of a visitor center for tourism in the Santa María sector Through conceptualization, the design aims to mimic its context and the characteristic elements of common materials in Guanacaste. The renders seek to represent materials that align with the traditional style desired by the client

Design by Arquitect Carolina Carmona

Turn static files into dynamic content formats.

Create a flipbook
Issuu converts static files into: digital portfolios, online yearbooks, online catalogs, digital photo albums and more. Sign up and create your flipbook.