Audrey Pace Design Portfolio

Page 1

INTERIOR DESIGN PORTFOLIO SPRING 2024

A U D R E Y P A C E

AUDREY PACE

WORK EXPERIENCE

Interior Designer

KAI Enterprises, Dallas Texas — July 2023-Present

Interior Designer at the Dallas o ce working on civil, K-12, healthcare, and renovation projects. Duties included but not limited to: development of innovative design concepts to enhance learning environments while adhering to budgetary restrictions, coordination with outside consultants, conducting site visits, primary point of contact with clients, presenting concepts and proposals, also heavily involved in production of construction documents at all phases.

Junior Designer

Meet West Studios, Fayetteville Arkansas — August 2022-May 2023

Designer at a residential firm working primarily in Northwest Arkansas as well as projects in California. Duties included creating renderings, moodboards, site visits, sourcing, and contacting contractors and reps. I have been involved in all stages of design including kick-o s, conceptual design, design development, as well as design implementation. Responsibilities branched in to behind the scenes ordering, procurement, and product listings.

Design Intern

ENTOS Design, Dallas Texas — June 2022 - August 2022

Internship duties included creating renderings for clients including lobbies, tenant spaces, and elevator cabs. I was able to sit in on meeting for all stages of design including proposals, visioning sessions, bidding, and walk throughs. I also created finish boards and selected finishes for multiple projects. Responsibilities also stretched to in o ce organization and maintenance as well as assisting the Director of design with emails and other daily tasks.

Teaching Assistant

University of Arkansas, Fayetteville Arkansas — May 2021-Present

Responsibilities included assisting 60+ students through a 10 week course in Summer 2021 supplemental for Studio I and II. Delivered a range of teaching and assessment activities including tutorials for Rhino and Adobe products. Fall 2021 began assistant teaching for the class Digital Media in Design, a course focusing on Revit and Rhino. These responsibilities included holding o ce hours, helping students with technical di culties, and facilitating grading

AWARDS, INVOLVEMENT, AND CERTIFICATIONS

Metropolis Future 100 Award

Metropolis, Future 100 recognizes the top 100 graduating students from architecture and interior design programs in the United States and Canada and connects them with A&D firms across North America.

A4LE DALLAS

Interior Design Book Award

For students with intellectual curiosity and high academic performance. Certified Microsoft Word Specialist

ASID Student Chapter Member and Mentor

EDUCATION

Fall 2019 - Spring 2023

UNIVERSITY OF ARKANSAS

Bachelors of Interior Architecture + Design

June 2023-July 2023

FLORENCE UNIVERSITY OF THE ARTS

Study Abroad

August 2015-June 2018

MARCUS HIGH SCHOOL

High School Diploma

SKILLS

2
(214)490-9262 AudreyMariePace@gmail.com linkedin.com/in/audreypace Denver, CO CONTACT Adobe Photoshop Adobe InDesign Autodesk Revit Enscape VRAY Rhino Adobe Illustrator Bluebeam

PROFESSIONAL WORK

1

RESIDENTIAL

3

5

BLOSSOM

7

2

SCHOOL

4

6

DESIGN

8

3
OFFICE WORKPLACE DESIGN 50-57
RENDERINGS 28-33
K-12 DRAWINGS 22-27
CACHE
CORPORATE
EDUCATION
WELLNESS CLINIC 34-43
PRODUCT
ADVANCED STUDIO 44-49
58-62
STUDY ABROAD SKETCHING
MEET WEST 4-13
GOVERNMENT DALLAS COUNTY EOC 16-21

01

RESIDENTIAL

Meet West Studios, Fayetteville Arkansas

Junior Designer

September 2022-May 2023

HENRY HOUSE

Design project for a century-old home in Bentonville, Arkansas aiming to seamlessly blend its historic charm with modern elements, enhancing its functionality and aesthetic appeal while preserving its architectural integrity. This project required a meticulous approach to inregrate contemporary features within the traditional framework of the residence.

BHASKAR RESIDENCE

This project aimed to revitalize a builder-grade home in Bentonville, Arkansas lacking charm and individuality. Through thoughtful and creative design interventions, the goal was to infuse the home with character, personality, and a sense of warmth, making it a unique and inviting space that reflected the residents style and personality.

5

HENRY HOUSE

Design project for a century-old home in Bentonville, Arkansas aiming to seamlessly blend its historic charm with modern elements, enhancing its functionality and aesthetic appeal while preserving its architectural integrity. This project required a meticulous approach to inregrate contemporary features within the traditional framework of the residence. EXISTING

6
RENDERINGS

WHERE WE STARTED

WHERE WE ENDED

8
9

BHASKAR RESIDENCE

This project aimed to revitalize a builder-grade home in Bentonville, Arkansas lacking charm and individuality. Through thoughtful and creative design interventions, the goal was to infuse the home with character, personality, and a sense of warmth, making it a unique and inviting space that reflected the residents style and personality.

DINING ROOM AND LIVING ROOM BEFORE

10
DINING
*ALL WORK CREATED IN COLLABORATION WITH MEET WEST STUDIOS
DINING ROOM AND LIVING ROOM AFTER

BHASKAR RESIDENCE

This project aimed to revitalize a builder-grade home in Bentonville, Arkansas lacking charm and individuality. Through thoughtful and creative design interventions, the goal was to infuse the home with character, personality, and a sense of warmth, making it a unique and inviting space that reflected the residents style and personality.

12
BEFORE REIMAGINED

BEFORE

RENDERINGS AFTER

13
REIMAGINED

HONORABLE MENTION RENDERINGS

02 GOVERNMENT

KAI Enterprises / Dallas, Texas Interior Designer

July 2023- Present

DALLAS COUNTY EMERGENCY OPERATIONS CENTER

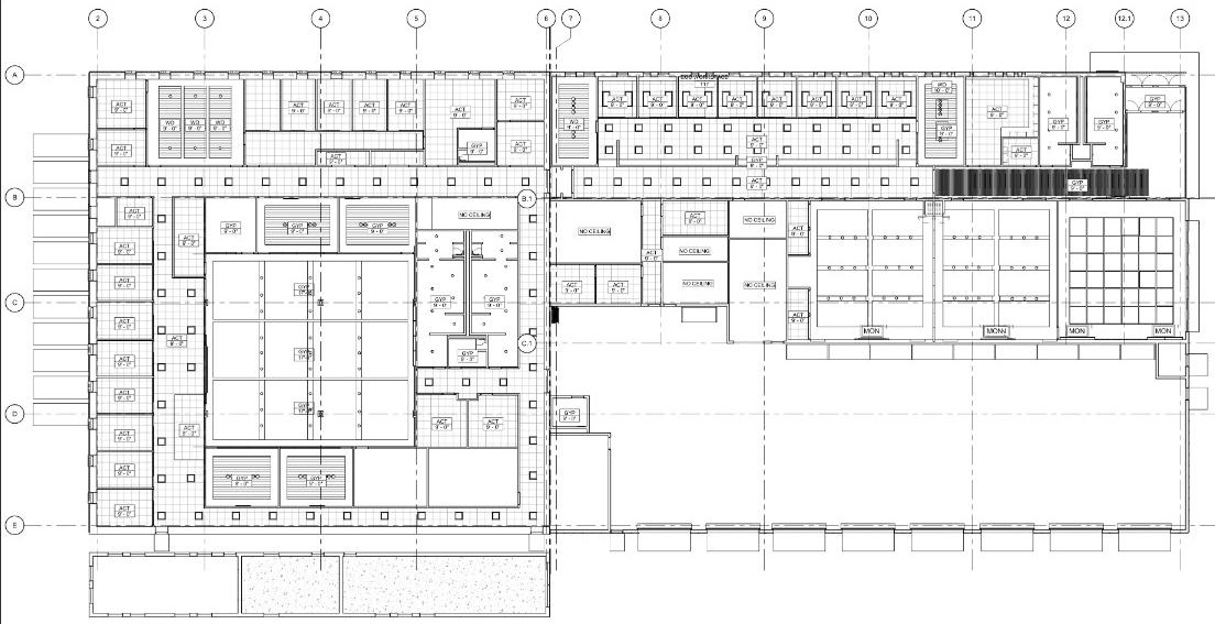
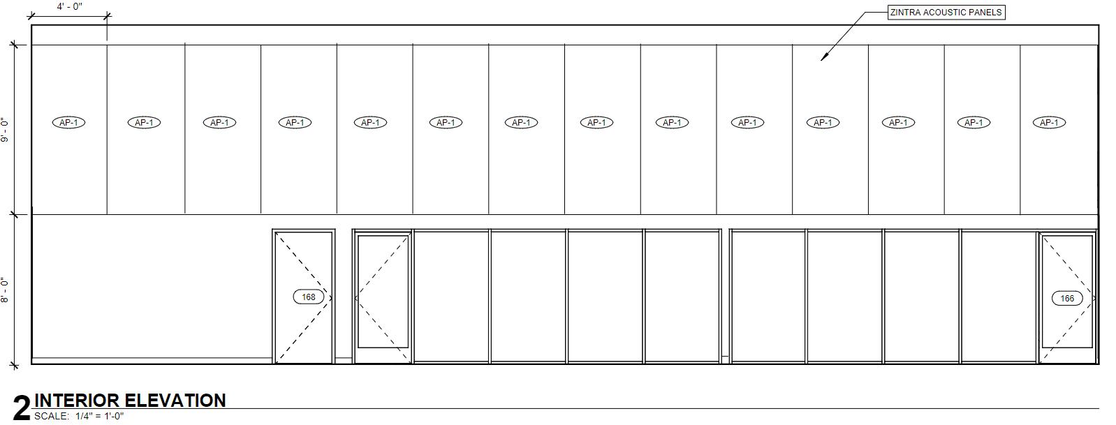
In times of crisis, effective coordination and communication are essential for efficient response and recovery efforts. The Dallas County Emergency Operation Center was designed to serve as the nerve center for managing and coordinating emergency responses. This project included a media center for interviews, 3 large training rooms with functional design, offices both open and closed, a judges suite and bathroom, conference rooms, as well as the main room- EOC main.

17
39,000 SQFT

DALLAS COUNTY EMERGENCY OPERATIONS CENTER

In times of crisis, effective coordination and communication are essential for efficient response and recovery efforts. The Dallas County Emergency Operation Center was designed to serve as the nerve center for managing and coordinating emergency responses. This project included a media center for interviews, 3 large training rooms with functional design, offices both open and closed, a judges suite and bathroom, conference rooms, as well as the main room- EOC main.

18
FINISH FLOOR PLAN
PLAN
SITE
FRONT ENRRY RENDERING
19 *ALL WORK CREATED IN COLLABORATION WITH KAI ENTERPRISES RCP
20
MEDIA RENDERING AND ELEVATION
EOC PROPER RENDERING AND ELEVATION
ELEVATION

03 EDUCATION

KAI Enterprises / Dallas, Texas

Interior Designer

July 2023- Present

KIMBALL HIGH SCHOOL

Nearly full interior design renovation with new finishes. Notable spaces included a new culinary classroom, new bench systems in areas where lockers were taken out, cafeteria, and auditorium renovations. This project has proven challenging as we are continuously discovering issues in the existing 1960’s building.

Stage: DD / CDs

BROWNE MIDDLE SCHOOL

Interior renovation of a neglected middle school built in the 40’s. The school was no longer a safe or comfortable space for students to learn and was in desperate need of some attention and a revamp.

Stage: SD

HOLLAND ELEMENTRY SCHOOL

Elementary school in Dallas, Texas receiving a full interior renovation and new branding. This project was challenging in the fact that I had to come on nearly a full year after CDs were finished and all the original designers had left. I have spent the last few months fixing errors, reselecting finishes as the previous selections were outdates, and completing submittals and RFIs.

Stage: CA

23

KIMBALL HIGH SCHOOL

Nearly full interior design renovation with new finishes. Notable spaces included a new culinary classroom, new bench systems in areas where lockers were taken out, cafeteria, and auditorium renovations. This project has proven challenging as we are continuously discovering issues in the existing 1960’s building.

Stage: DD / CDs

BROWNE MIDDLE SCHOOL

Interior renovation of a neglected middle school built in the 40’s. The school was no longer a safe or comfortable space for students to learn and was in desperate need of some attention and a revamp.

Stage: SD

HOLLAND ELEMENTRY SCHOOL

Elementary school in Dallas, Texas receiving a full interior renovation and new branding. This project was challenging in the fact that I had to come on nearly a full year after CDs were finished and all the original designers had left. I have spent the last few months fixing errors, reselecting finishes as the previous selections were outdates, and completing submittals and RFIs.

Stage: CA

24
25

DETAILS AND ELEVATIONS KIMBALL HIGH SCHOOL

Nearly full interior design renovation with new finishes. Notable spaces included a new culinary classroom, new bench systems in areas where lockers were taken out, cafeteria, and auditorium renovations. This project has proven challenging as we are continuously discovering issues in the existing 1960’s building. Stage: DD / CDs

KIMBALL HIGH SCHOOL NEW CULINARY CLASSROOM

04 CORPORATE

ENTOS Design Dallas, Texas Intern

June 2022-August 2023

Internship duties included creating renderings for clients including lobbies, tenant suites, and elevator cabs. I was able to sit in on meeting for all stages of design such as proposals, visioning sessions, bidding, and walk throughs. I also created finish boards and selected finishes for multiple projects. Responsibilities also stretched to in office organization and maintenance as well as assisting the Director of Design with emails and other daily tasks.

29
30 LOBBIES

ELEVATOR CABS

OUTDOOR AMENITIES

31
*ALL WORK CREATED IN COLLABORATION WITH ENTOS DESIGN DALLAS

ENVIRONMENTAL GRAPHICS

32
33 *ALL WORK CREATED IN COLLABORATION WITH ENTOS DESIGN DALLAS

05 BLOSSOM

Completed 3rd year - Spring 2022

PROJECT CONTEXT

The Blossom Behavioral Health and Wellness Clinic will be located in Bentonville, Arkansas. The clinic will specialize in treating kids and teens ages 2-18. Two specialties, one being mental illness and the other being substance abuse will be used to give patients the best treatment possible. The clinic offers both large and small group therapy rooms as well as research study rooms and personal and family therapy services.

THE DESIGN SOLUTIONS

The Blossom Behavioral Health and Wellness Clinic will use nature and evidence based design inspired by the Magnolia tree. Like us, magnolia trees come in many shapes, sizes, and colors. Blossom behavioral health is based off 3 of the most popular types of magnolias in the US. The Magnolia is known for its resilience, stature, and large white flowers that bloom every spring. Some design solutions used include incorporating greenery, natural materials, and using color for emphasis and identity. Nature is both mentally and physically healing and is a symbol of life and growth Plants will be spread throughout the space to serve as mental and physical therapeutic value.

MEDIA: Revit, Enscape, Adobe Illustrator, Adobe Photoshop

35
36
9TH FLOOR 1/8”=1’0” WHITE OAK WOOD BISQUE CARPETING BEIGE JUTE RUG POND CARPETING BEIGE TILE FLOWERING CARPET GREEN SQUARE TILE
37

CHECK IN

WAITING AREA
ELEVATOR ENTRY ELEVATION PATIENT LOCKERS ELEVATION
PATIENT LOCKERS

LARGE GROUP THERAPY

41
OUTPATIENT CONSULT ELEVATION EXAM ROOM ELEVATION
LARGE GROUP THERAPY SECTION WHITE OAK WOOD PURPLE WALLPAPER WALLPAPER DARK GREEN FABRIC LIGHT GREEN FABRIC BISQUE FLOORING

ADMIN WORKROOM AND COLLAB SPACE

CLINICIANS WORKROOM

STAFF LOUNGE

06

PRODUCT DESIGN

Completed 4th year- Fall 2022

THE PROJECT: As a 4th year student as Fay Jones, We take 2 advanced studios in our final year. In the class we were challenged to really understand the products around us that we use everyday. Throughout the semester we designed and constructed both a lap as well as a chair. The Florescence lamp and 27 chair celebrate the physical relationship between natural materials and digitally generated forms and material.

THE MATERIALS: The Florescence lamp is constructed out of 3 main materials. The lampshade and central hub were 3D printed using models from Rhino. The base is made out of hard maple that was spun and sculpted on a lathe machine. And the inner wooden pieces are laser cut bass wood. The 27 chair was constructed out of two wood types, hard maple and walnut wood. Held togther by lap joints, wooden dowels, spline joints, as well as a woven seat.

MEDIA: Rhino

45

FLUORESENCE

I pulled inspiration from memories that made me feel warm. This specific lamp derived from a trip to the Dallas Botanical Gardens I took with my family when I was very young. The shape and form is inspired by a tulip blooming in the spring- opening its arms to welcome in the new season.

46
3D PRINTED HUB MAPLE BASE E12 LED LIGHT BULB LASER CUT BASS WOOD 3D PRINTED LAMPSHADE 3D PRINTED HINGE 1/4” TUBE TO HIDE WIRE AND SUPPORT STRUCTURE TURNING THE MAPLE BASE 3D PRINTING THE SHADE 3D ELEMENTS ASSEMBLED LASER CUTTING BASSWOOD LASER CUT WOOD AND BASE HINGES AND MAGNETS

27 CHAIR

The 27 chair was constructed out of two wood types, hard maple and walnut wood. Held togther by lap joints, wooden dowels, spline joints, as well as a woven seat. The structure of the chair and separation of the two types of wood can appear to make the number 2 or the number 7 depending on the angle you are looking at it.

49
SANDING AND CONSTRUCTING CNC ASSEMBLY LAP JOINT STAIN BEGIN ASSEMBLING LAP JOINT WITH WOODEN DOWELS WALNUT HARD MAPLE SEAT WOVEN WITH CANVAS STRAPPING

07

WORKPLACE DESIGN

Completed 3rd year, Fall 2021

CACHE is an arts service organization located in Northwest Arkansas that works to coordinate, connect, augment, export, and exchange creative resources from Northwest Arkansas with the rest of the world. The office is to be located at 525 S School Ave in the creative arts district of Fayetteville, Arkansas.

THE PROGRAM: workspace for 28+ employees, a dining area, executive offices, locker room, conference rooms and more.

The DESIGN SOLUTIONS included greenery, comforting materials, natural light, and warm colors that correspond with CACHE’s company image. As an organization that promotes creativity, the office capitalizes on local art and focuses on both client and employee experience.

MEDIA: Revit, Enscape, Adobe Photoshop, Adobe Illustrator, Adobe InDesign

51

1 COLLABORATION

2 LOUNGE

3 CONFERENCE ROOM

4 EXECUTIVE DIRECTOR

5 EXECUTIVE ASSISTANT

6 PRIVATE OFFICES

7 ARTIST IN RESIDENCE

8 ART SUPPLY AND STORAGE

9 DIRECTOR MEETING

10 RESTROOMS

LEVEL 1

1 RECEPTION DESK

2 WAITING AREA

3 CAFETERIA

4 RESTROOMS

5 PUBLIC COLLABORATION

6. WORKSTATIONS

LEVEL 2 BASEMENT

1 MEP AND STORAGE

2 CALL BOOTHS

3 IT DIRECTOR

4 IT STORAGE

5 MOTHERS ROOM

6 FAMILY LOUNGE

7 SCREENING ROOM

8 LOCKER ROOM

52

8:00AM

BIKE TO WORK AND STORE BIKE ON VERTICAL RACK IN THE LOBBY.

C D E F

8:15AM

SHOWER AND GET READY IN THE LOCKER ROOMS IN THE BASEMENT

12:00PM

LUNCH

8:45AM

WORK AT A PERSONAL DESK SURROUNDED BY DEPARTMENT.

2:30PM

4:30PM

PRESENTATION IN THE

53
EAT IN THE DINING ROOM ON THE FIRST FLOOR. MEETING IN THE 2ND FLOOR CONFERENCE ROOM. ATTEND SCREENING ROOM.
A B
EMPLOYEE KITCHEN
55

WORKSTATIONS

57 PRINTING, TRASH, COMPOST, AND RECYCLE STATION BREAKOUT MEETING AREA

SKETCHING 08

FLORENCE UNIVERSITY OF THE ARTS STUDY ABROAD SUMMER 2023

Three week course of an immersive study abroad sketching class in Florence, Italy. Each day consisted of walking the city for 2-3 hours and spending 1-2 hours sketching in various locations. From historic landmarks to hidden gems we were able to develop our sketching skills while gaining a deeper appreciation for the ruch cultural tapestry of Florence.

59
62
63 THANK YOU! CONTACT (214)490-9262 AudreyMariePace@gmail.com Dallas, TX | Denver, CO linkedin.com/in/audreypace

Turn static files into dynamic content formats.

Create a flipbook
Issuu converts static files into: digital portfolios, online yearbooks, online catalogs, digital photo albums and more. Sign up and create your flipbook.