Audreanna Paige's Interior Design Portfolio

Page 1

APaudreanna paige

Interior Design Portfolio

CONTENT

C orporate

Wheels Up

Deposco

Memphis - Shelby County Airport Authority

RDX Trucking

H ospitality

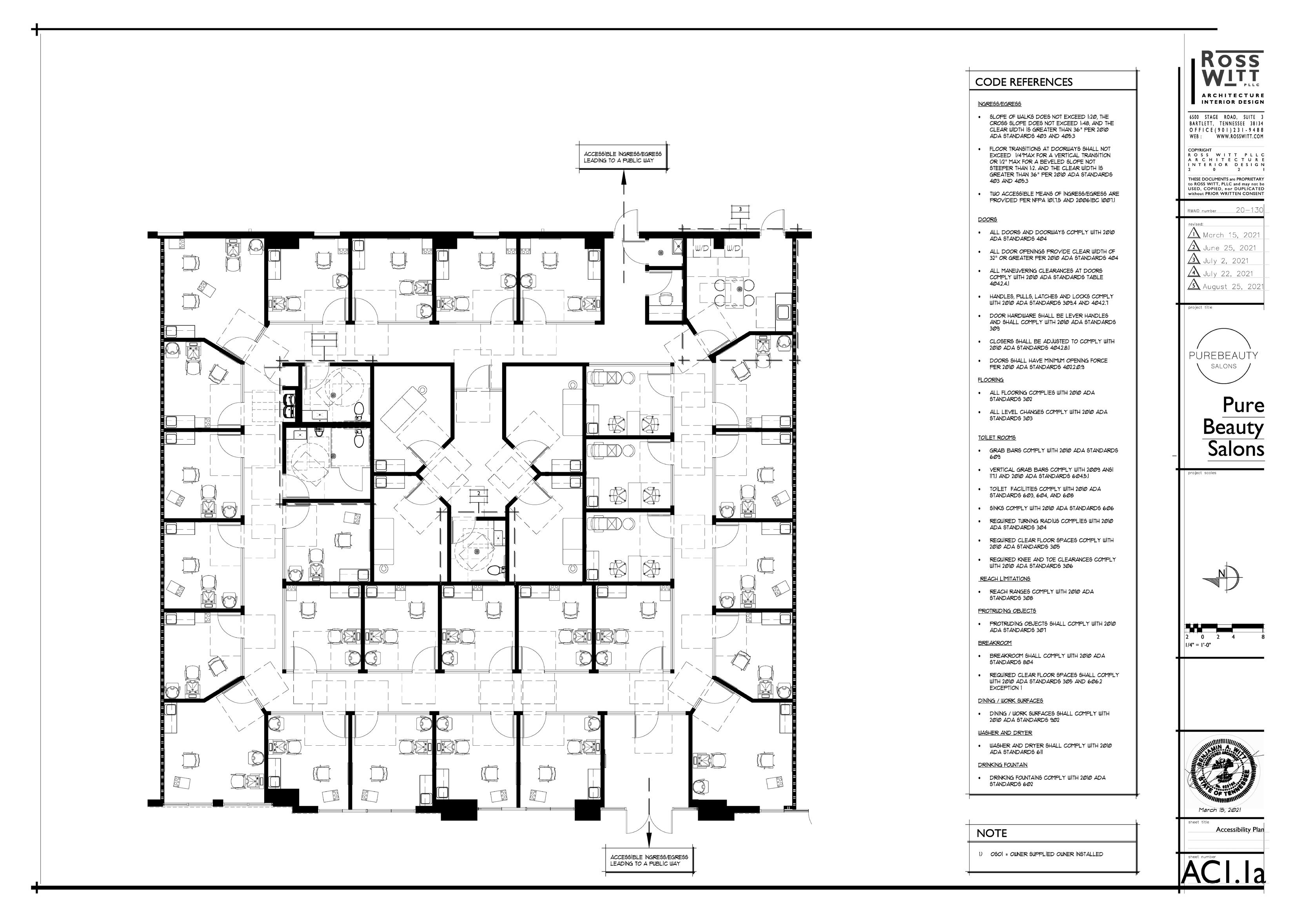
Pure Beauty Salon

Wolf River Brisket

Wheels Up

Chamblee, GA

Vickers Design Group
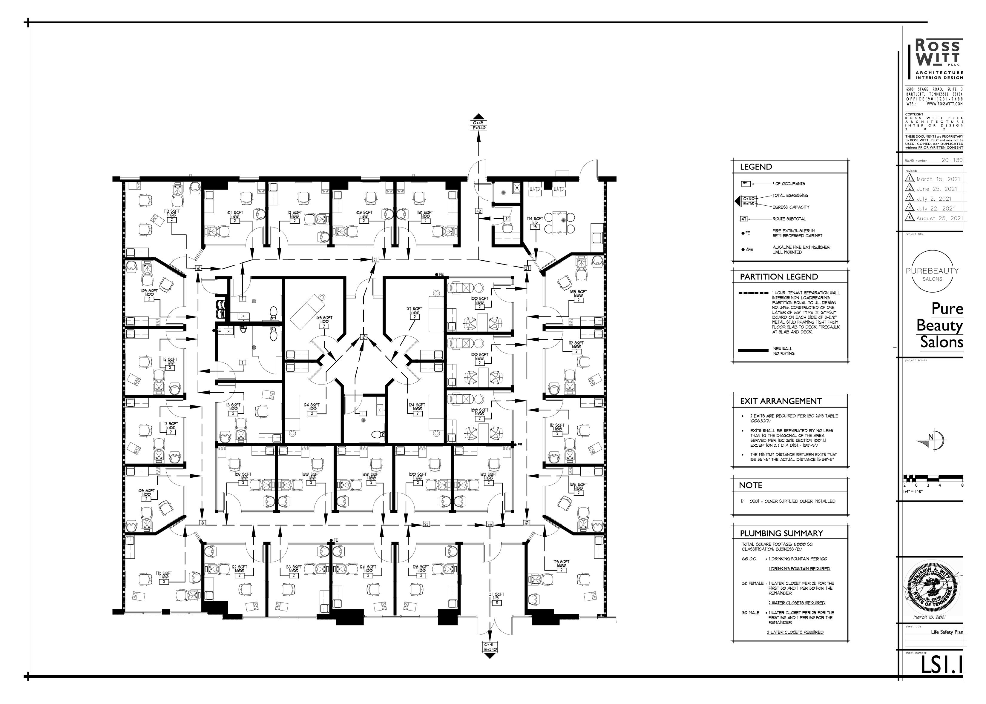
FD FD FD FD FD FD FD FD FLEX 134 PHONE 131 CONFERENCE 138 BROADCASTING 143 FLEX 140 BREAK 100 OFFICE 137 OFFICE 142 OFFICE 141 OFFICE 146 OFFICE 147 COFFEE 149 COAT / LUGGAGE CLOSET 151 OFFICE 114 OFFICE 113 OFFICE 112 OFFICE 111 FILE ROOM 110 HUDDLE 109 CONFERENCE 108 VESTIBULE 150 THE BRIDGE OFFICE 136 HUDDLE 133 BREAK/COLLAB 139 IT 127 MENS 123 WOMENS 122 STORAGE 105 MOTHER'S ROOM 104 OFFICE 107 RECEPTION 102 ELEC CLOSET 125 COLLAB 106 MAIL COAT CLOSET 103 HUDDLE 115 COFFEE 117 WELLNESS 116 ELEC CLOSET 152 IT STORAGE 128 LOCKERS 126 IT WORK ROOM 129 COLLAB 135 PHONE 132 OPEN OFFICE 145 VESTIBULE 124 STORAGE 130 TV TV TV TV TV TV TV TV TV TVTV TV TV TV TV TV TV TV IBR (CONFERENCE) 144 PHONE 148 COPY 153 FUTURE OPEN OFFICE 154 TRAINING 120 TRAINING 121 FURNITURE STORAGE 118 COPY COLLAB 119 TV TV TV TV
Overall Floor Plan

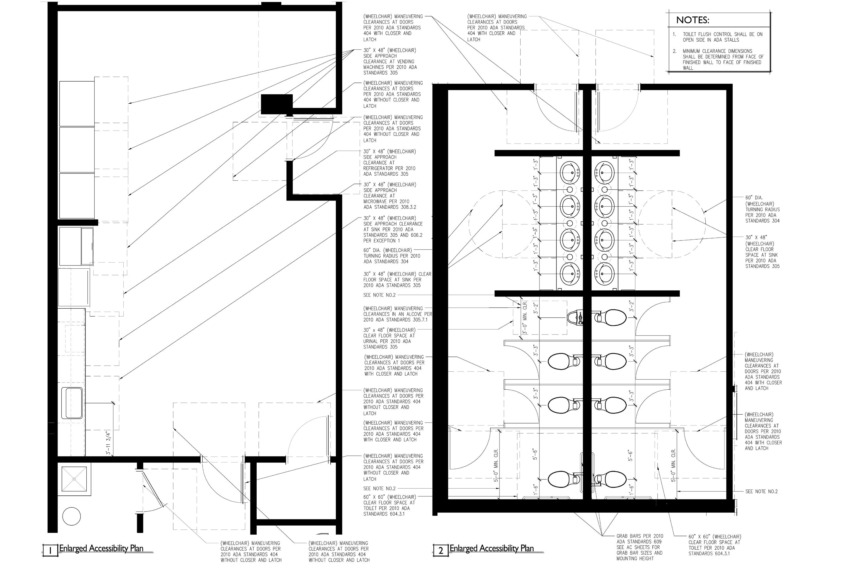
OCCUPANCY SUMMARY

corporate design wheels up Life Safety Plan FD FD FD FD FD FD FD ← ← ← ← ← ← ← → ↓ ↑↑ ↓ ↓ ↑ 34" 70" (164' -2") (23' -6" ) FLEX 134 PHONE 131 CONFERENCE 138 BROADCASTING 143 FLEX 140 BREAK 100 OFFICE 137 OFFICE 142 OFFICE 141 OFFICE 146 OFFICE 147 COFFEE 149 COAT / LUGGAGE CLOSET 151 OFFICE 114 OFFICE 113 OFFICE 112 OFFICE 111 FILE ROOM 110 HUDDLE 109 CONFERENCE 108 VESTIBULE 150 OFFICE 136 HUDDLE 133 STORAGE 130 BREAK/COLLAB 139 IT 127 MENS 123 WOMENS 122 OFFICE 107 ELEC CLOSET 125 HUDDLE 115 COFFEE 117 WELLNESS 116 ELEC CLOSET 152 IT STORAGE 128 LOCKERS 126 IT WORK ROOM 129 COLLAB 135 PHONE 132 OPEN OFFICE 145 VESTIBULE 124 THE BRIDGE COPY E E R FE R R R R FE FE FE FE FE R MEN (145' -2") (46'-7") WATER FOUNTAIN WATER FOUNTAIN BOTTLE FILLER BOTTLE FILLER IBR (CONFERENCE) 144 COPY 153 FA FA PHONE 148 FUTURE OPEN OFFICE 154 WATER DISPENER TRAINING 120 FURNITURE STORAGE 118 COLLAB 119 WALL SEMIRECESSED FIRE EXTINGUISHER: 10LB. A: BC DRY -CHEMICAL TYPE EXIT SIGN W/BATTERY BACKUP EGRESS CLEAR WIDTH CEILING MOUNTED FIRE ALARM NOTE: STEM MOUNT @ OTS LOCATIONS AUDIO/VISUAL ANNUNCIATOR -WALL MOUNTED TRAVEL DISTANCE (COMMON PATH) NOT IN SCOPE 3/32" = 1'-0" LIFE SAFETY PLAN 1 MEN'S WATER CLOSET 9 MEN'S LAVATORY 7 WOMEN'S WATER CLOSET 9 WOMEN'S LAVATORY 7 8 5 8 5 LEGEND 0' 48 16 32 WATER FOUNTAIN/BOTTLE FILLER/ WATER DISPERNSER 77 FD FD FD FD FD FD FD FD ← ← → → ← → ← ← → → ← ← → → ↓ ↑↑ ↑ ↓ → 34" 70" 70" (164' -2") (23' -6" FLEX 134 PHONE 131 BROADCASTING 143 FLEX 140 BREAK 100 OFFICE 142 OFFICE 141 OFFICE 146 OFFICE 147 COFFEE 149 COAT LUGGAGE CLOSET 151 OFFICE 114 OFFICE 113 OFFICE 112 OFFICE 111 FILE ROOM 110 HUDDLE 109 CONFERENCE 108 VESTIBULE 150 OFFICE 136 HUDDLE 133 STORAGE 130 IT 127 MENS 123 WOMENS 122 STORAGE 105 MOTHER'S ROOM 104 OFFICE 107 RECEPTION 102 ELEC CLOSET 125 COLLAB 106 MAIL COAT CLOSET 103 HUDDLE 115 COFFEE 117 WELLNESS 116 ELEC CLOSET 152 STORAGE 128 LOCKERS 126 WORK ROOM 129 COLLAB 135 PHONE 132 OPEN OFFICE 145 VESTIBULE 124 THE BRIDGE COPY E E FE FE R R FE FE FE FE R R MEN WOMEN (145' -2") (46'-7") WATER FOUNTAIN WATER FOUNTAIN BOTTLE FILLER BOTTLE FILLER R IBR (CONFERENCE) 144 COPY 153 FA FA PHONE 148 FUTURE OPEN OFFICE 154 WATER DISPENER TRAINING 120 TRAINING 121 FURNITURE STORAGE 118 COLLAB 119 34" WALL SEMIRECESSED FIRE EXTINGUISHER: 10LB. DRY -CHEMICAL TYPE EXIT SIGN W/BATTERY BACKUP EGRESS CLEAR WIDTH CEILING MOUNTED FIRE ALARM NOTE: STEM MOUNT @ OTS LOCATIONS AUDIO/VISUAL ANNUNCIATOR -WALL MOUNTED POINT OF CHOICE TRAVEL DISTANCE R "RELOCATED" FE E "EXISTING TO REMAIN" NOT IN SCOPE FA ITEM REQUIRED PROVIDEDREMARKS # OCCUPANTS 609 EXITS 3 3 EXIT STAIR WIDTH TRAVEL DISTANCE 300' MAX164'-2" COMMON PATH 100' MAX46'-7" DEAD END CORRIDOR 1. THE CONTRACTOR SHALL ENSURE THE INSTALLATION OF ALL LIFE SAFETY THE ARCHITECTURAL AND/OR ENGINEERING DRAWINGS, AS WELL AS THOSE REQUIRED BY THE AHJ. 2. CONTRACTOR SHALL FIELD VERIFY THE LOCATION OF ANY EXISTING FIRE WORK DONE AROUND EXISTING FIRE RATED WALLS SHALL BE DONE WITH COMPROMISE THE RATING'S INTEGRITY. ANY DAMAGE SHALL BE REPAIRED 3. PER IPC 2018, TABLE 403.1 THE REQUIRED WATER CLOSETS FOR MALES AND FOR THE FIRST 50 AND 1 PER 50 FOR THE REMAINDER EXCEEDING 50. THE LAVATORIES IS 1 PER 40 FOR THE FIRST 80 AND 1 PER 80 FOR THE REMAINDER 4. ALL DEVICES ARE NEW, UNO. EXIT DOOR WIDTH ITEM REQUIREDPROVIDEDREMARKS MEN'S WATER CLOSET 9 MEN'S LAVATORY 7 WOMEN'S WATER CLOSET 9 WOMEN'S LAVATORY 7 8 5 8 SHEET NOTES LIFE SAFETY SUMMARY PLUMBING SUMMARY LEGEND IDEAS, DESIGNS, ARRANGEMENTS AND PLANS INDICATE IGN GROUPAND WERE CREATED, EVOLVED, AND DEVELOPED F ECT. NONE OF THE IDEAS, DESIGNS,ARRANGEMENTS, OR PL ANS SHALL BE USED BY OR DISCLOSED TO ANY PERSON, FI RM, OR CORPORATION FOR ANY PURPOSE WHATSOEVER WITHO IS A CRIMINAL OFFENSE UNDER 18 U.S.C. SEC. 5 06 UNAUTHORIZED DISCLOSURE MAY CONSTITUTE TRADE SEC RET MISAPPROPRIATION INVIOLATION OF I.C.24-2-31-1 E T. SEQ. AND OTHER LAWS. THE IDEAS, ARRANGEMENTS, AN D DESIGNS DISCLOSED HEREIN MAY BE PATENTED OR BE TH E SUBJECT OF PENDING PATENT APPLICATION. FIRST 174" OCCUPANCY SUMMARY WATER FOUNTAIN/BOTTLE FILLER/ WATER DISPERNSER 77 FD FD FD FD FD FD FD FD ← ← ← ← ↓ ↑↑ ↑ ↓ → ↑ 34" 70" 70" (164' -2") (23' -6" FLEX 134 PHONE 131 CONFERENCE 138 BROADCASTING 143 FLEX 140 BREAK 100 OFFICE 137 OFFICE 142 OFFICE 141 OFFICE 146 OFFICE 147 COFFEE 149 COAT LUGGAGE CLOSET 151 CONFERENCE 108 VESTIBULE 150 OFFICE 136 HUDDLE 133 STORAGE 130 BREAK/COLLAB 139 IT 127 MENS 123 WOMENS 122 STORAGE 105 MOTHER'S ROOM 104 OFFICE 107 RECEPTION 102 ELEC CLOSET 125 COLLAB 106 MAIL COAT CLOSET 103 ELEC CLOSET 152 STORAGE 128 LOCKERS 126 WORK ROOM 129 COLLAB 135 PHONE 132 OPEN OFFICE 145 VESTIBULE 124 THE BRIDGE COPY E E R E FE R R FE FE FE FE E FE R R MEN WOMEN (145' -2") WATER FOUNTAIN WATER FOUNTAIN BOTTLE FILLER R IBR (CONFERENCE) 144 COPY 153 FA FA PHONE 148 WATER DISPENER TRAINING 120 TRAINING 121 FURNITURE STORAGE 118 COLLAB 119 34" X'-X" (X'-X") WALL SEMIRECESSED FIRE EXTINGUISHER: 10LB. A: BC DRY -CHEMICAL TYPE EXIT SIGN W/BATTERY BACKUP EGRESS CLEAR WIDTH CEILING MOUNTED FIRE ALARM NOTE: STEM MOUNT @ OTS LOCATIONS AUDIO/VISUAL ANNUNCIATOR -WALL MOUNTED TRAVEL DISTANCE (COMMON PATH) POINT OF CHOICE TRAVEL DISTANCE R "RELOCATED" FE E "EXISTING TO REMAIN" NOT IN SCOPE FA ITEM REQUIRED PROVIDEDREMARKS # OCCUPANTS 609 EXITS 3 EXIT STAIR WIDTH N/A TRAVEL DISTANCE 300' MAX164'-2" COMMON PATH 100' MAX46'-7" DEAD END CORRIDOR 50' MAXN/A 1. THE CONTRACTOR SHALL ENSURE THE INSTALLATION OF ALL LIFE SAFETY DEVICES INDICATED ON THE ARCHITECTURAL AND/OR ENGINEERING DRAWINGS, AS WELL AS THOSE THAT MAY BE REQUIRED BY THE AHJ. 2. CONTRACTOR SHALL FIELD VERIFY THE LOCATION OF ANY EXISTING FIRE RATED WALLS. ANY WORK DONE AROUND EXISTING FIRE RATED WALLS SHALL BE DONE WITH CARE SO AS NOT TO COMPROMISE THE RATING'S INTEGRITY. ANY DAMAGE SHALL BE REPAIRED IMMEDIATELY. 3. PER IPC 2018, TABLE 403.1 THE REQUIRED WATER CLOSETS FOR MALES AND FEMALES IS 1 PER 25 FOR THE FIRST 50 AND 1 PER 50 FOR THE REMAINDER EXCEEDING 50. THE REQUIRED AMOUNT OF LAVATORIES IS PER 40 FOR THE FIRST 80 AND 1 PER 80 FOR THE REMAINDER EXCEEDING 80. 4. ALL DEVICES ARE NEW, UNO. EXIT DOOR WIDTH 609 X .2 121.8"174" ITEM REQUIREDPROVIDEDREMARKS MEN'S WATER CLOSET MEN'S LAVATORY WOMEN'S WATER CLOSET WOMEN'S LAVATORY SHEET NOTES LIFE SAFETY SUMMARY PLUMBING SUMMARY LEGEND No. Date Revisions Submissions 1000 ABERNATHY RD, SUITE 100 Atlanta, Georgia 30328 404.937.6550 MAY CONSTITUTE TRADE SEC RET MISAPPROPRIATION INVIOLATION OF I.C.24-2-31-1 E T. SEQ. AND OTHER LAWS. THE IDEAS, ARRANGEMENTS, AN D DESIGNS DISCLOSED HEREIN MAY BE PATENTED OR BE TH E SUBJECT OF PENDING PATENT APPLICATION. WHEELS UP 2135 AMERICAN INDUSTRIAL WAY CHAMBLEE, GA 30341 INTERIOR MODIFICATIONS N/A FIRST FLOOR 174" / .2 = 870 MAX OCCUPANTS
WATER FOUNTAIN/BOTTLE FILLER/ WATER DISPERNSER 77

Interior Elevations

REF-2 TRASH CF-1 PT-05 PT-05 2'-2" 1'-8" 2" COORDINATE W/ EQUIP 2'-0" 2" V.I.F 1'-6" 10'-0" 10'-11" 8 A4-12 A4-12 154 8 FRAMED ARTWORK (BY OTHER) WC-03 SS-01 PL-01 PL-01 3'-6" WB- 2'-0" 7'-6 1/2" 2'-11" 3'-7" 1'-9" 9" 2'-10" ALIGN ALIGN CONTINUOUS RECESSED LED TAPELIGHT FIXTURE. REFER TO SHEET A1-30 FOR SPEC RELOCATED LIVE EDGE COUNTERTOP. REFER TO SHEET A1-30 FOR SPEC FE HOLD 1'-4" 2'-6" A4-13 10 A4-12 SS-01 13 A4-13 OPEN TO BEYOND 1/2" 10'-11" 2'-6" 3'-6" SS-01 SS-01 PL-01 6'-8" 6'-7" 3'-5 1/2" 11" 3'-0" 10 A4-12 1'-4" 161 1 2" 4" 4" METAL GROMMET 1'-10" REF-2 2'-10" 2'-0" FT-3 LAV-3 PT-05 PT-05 WT-02 SS-01 PL-01 PL-01 A4-13 A4-13 12 A4-13 3" HOLD 2'-0" COORDINATE W/ EQUIP 2'-0" SCHULTER JOLLY TRIM, BRUSHED CHROME ANODIZED 2" 3'-2" RB-1 PL-01 SS-01 2'-10 1/2" 7 1/2" 6'-8" 1'-11 1/2" 10 1/2" 6'-8" 1'-6 1/2" WB-1 LENTICULAR WALL SEE 4/A4-10 PT-05 SS-01 PL-01 2'-7 1/2" 10 1/2" 6'-8" 11 1/2" 5'-6" 2 1/2" 8" 2'-4" 2" OPEN TO BEYOND PT-01 9" 1'-1 1/2" 9897 1 7 0 5 7 10 A4-12 4" METAL GROMMET 2" 4" PT-01 WB-1 CUSTOM GRAPHIC (BY OTHER) A4-14 14'-6" 1'-4" HOLD 50'-3" 1'-4" HOLD PROJECT NUMBER: No. Date Revisions Submissions 1000 ABERNATHY RD, SUITE 100 Atlanta, Georgia 30328 404.937.6550 A4-10 INTERIOR ELEVATIONS 10.20.2022 ISSUED FOR CONSTRUCTION WHEELS UP 2135 AMERICAN INDUSTRIAL WAY CHAMBLEE, GA 30341 22074.00 INTERIOR MODIFICATIONS 1/2" = 1'-0" RECEPTION 102 FRONT 1 1/2" = 1'-0" RECEPTION 102 BACK 2 1/2" = 1'-0" MILLWORK @ MOTHER'S ROOM 104 5 1/2" = 1'-0" RECEPTION 102 LEFT 3 1/2" = 1'-0" RECEPTION 102 RIGHT 4 1/2" = 1'-0" LENTICULAR WALL 6 2REVISION 2 01.17.2023 3REVISION 3 02.14.2023
Interior Elevations DW-1 REF-1 TRASHTRASH CF-1 IWM-1 DW-1 5'-3" 2'-5 1/2" 2'-7" EQUAL 2'-0" 3'-2" 2'-0" 3'-0" 2 EQUAL 1'-6" 1'-6" 5'-3" 2'-10" 4'-5" 1'-9" QT-01 PL-01 PL-01 PL-01 PL-01 PL-01 WT-01 REF-1 REF-1 REF-1 LAV-2 FT-2 MW-1 MW-1 MW-1 A4-12 PT-04 PT-04 PT-04 PT-01 5'-0" A4-14 A4-14 2 A4-14 1/2" A4-13 FULL START TILE CONTINUOUS RECESSED LED TAPELIGHT FIXTURE. REFER TO SHEET A1-30 FOR SPEC CONTINUOUS RECESSED LED TAPELIGHT FIXTURE. REFER TO SHEET A1-30 FOR SPEC A4-13 2'-1" 2" 1'-5" 3'-0" 2'-0" 3'-0" 1/2" 2'-10" 2'-0" IWM-1 WT-02 SS-01 PL-01 LAV-3 PT-01 ALIGN FT-3 CF-1 BF-1 SCHULTER JOLLY TRIM, BRUSHED CHROME ANODIZED DW-1 3 A4-13 A4-13 A4-12 2'-0" FT-3 PL-01 12 A4-13 MW IWM-1 REF-1 REF-1 PL-01 SCHULTER JOLLY TRIM, BRUSHED CHROME ANODIZED WT-02 SS-01 2'-7" 1'-6" 1'-6" 2 EQUAL EXISTING BRICK 2'-1" A4-13 A4-12 TRASH 2'-10" TRASH CABINET PULL SPEC: MOCKETT 8" DP3D-8 1 1/2" PROFILE MATTE BLACK 90 (OR APPROVED EQUAL) NOTE: ALL CABINET DOORS TO RECEIVE RUBBER BUMPERS SOFT CLOSE PULL TRACK FOR BOTTOM MOUNT WASTE BIN, HEAVY DUTY. BASIS OF DESIGN: REV-A-SHELF RV 53492150DM-2. BLOCKING AS REQUIRED 3" INTERIOR SURFACE TO BE WHITE MELAMINE 1/2" MDF QUARTZ COUNTERTOP @ BREAK/COLLAB 139 PLASTIC LAMINATE @ COPY AREA 106A/153 AND SOLID SURFACE AT ALL OTHER LOCATIONS SEE ELEVATIONS 2'-10" NOTE: RECYCLE CABINETS TO RECEIVE BLUE RECYCLE BINS NO BACKSPLASH @ RECEPTION 102 AND TRAINING 120/121 TILE BACKSPLASH @ OTHER LOCATIONS SEE ELEVATIONS 2'-1" PLASTIC LAMINATE BASE, REFER TO ELEVATION AND FINISH PLAN FOR TYPE; SCRIBE TO FLOOR BLOCKING AS REQUIRED 2'-10" 4" 3" QUARTZ COUNTERTOP @ BREAK/COLLAB 139 PLASTIC LAMINATE @ COPY AREA 106A/153 AND SOLID SURFACE AT ALL OTHER LOCATIONS SEE ELEVATIONS CONCEALED HINGE, SPRING LOADED 3/4" MDF W/ PLASTIC LAMINATE INTERIOR SURFACE TO BE WHITE MELAMINE ADJUSTABLE 3/4" MELAMINE SHELF ON RECESSED STANDARDS CABINET PULL SPEC: MOCKETT 8" DP3D-8 1/2" PROFILE MATTE BLACK 90 (OR APPROVED EQUAL) NOTE: ALL CABINET DOORS TO RECEIVE RUBBER BUMPERS 2'-1" NO BACKSPLASH @ RECEPTION 102 AND TRAINING 120/121 4" SOLID SURFACE BACKSPLASH @ COPY AREA 106A/153 TILE BACKSPLASH @ ALL OTHER LOCATIONS SEE ELEVATIONS 19'-8" OPEN TO MILLWORK BEYOND QT-01 PL-01 EQ EQ EQ EQ EQ QT-01 QT-01 MITERED CORNER; TYP. TRASH TRASH TRASH 3'-6" OPEN TO BEYOND MW MW 1'-6" 1'-6" 1'-6" EQUAL 1'-5" 2'-7" 2'-7" QT-01 PL-01 A4-14 7 A4-14 A4-14 A4-14 QT-01 QT-01 1'-5 1/2" PT-01 PL-01 PL-03 TRASH TRASH EQUAL 1'-6" 1'-6" FE A4-12 A4-12 2" 3'-0" 2'-5 1/2" 2" 2'-1" PL-01 PL-03 FE EXISTING BRICK 10 A4-13 INTERIOR SURFACES TO BE WHITE MELAMINE, ALL SIDES PLASTIC LAMINATE BASE; SCRIBE TO FLOOR BLOCKING AS REQUIRED 2'-6" SOLID SURFACE 3/4" MDF W/ PLASTIC LAMINATE CABINET PULL SPEC: MOCKETT 8" DP3D-8 1 1/2" PROFILE MATTE BLACK 90 (OR APPROVED EQUAL) NOTE: ALL CABINET DOORS TO RECEIVE RUBBER BUMPERS 3" 5" 1/4" 1/4" 5" 1/4" 1/4" MDF BACK FILE DRAWER W/ METAL BARS TO ACCOMMODATE LEGAL SIZE FOLDERS; GLIDES -150 LBS. CAPACITY FULL EXTENSION LOCKABLE BOX DRAWER, PROVIDE DOOR STOP AND GLIDES AS NEEDED; DRAWER FRONT AND RETURN TO BE CLAD IN PLASTIC LAMINATE SOLID SURFACE COUNTERTOP PROJECT NUMBER: No. Date Revisions / Submissions 1000 ABERNATHY RD, SUITE 100 Atlanta, Georgia 30328 404.937.6550 A4-12 INTERIOR ELEVATIONS AND SECTIONS 10.20.2022 ISSUED FOR CONSTRUCTION WHEELS UP 2135 AMERICAN INDUSTRIAL WAY CHAMBLEE, GA 30341 22074.00 INTERIOR MODIFICATIONS
= 1'-0" MILLWORK @ BREAK/COLLAB 138 1 1/2" = 1'-0" MILLWORK @ COFFEE 149 5 1/2" = 1'-0" MILLWORK @ COFFEE 149 4 1" = 1'-0" TRASH SECTION -PLAM 8 1" = 1'-0" TYP BASE CABINET SECTION 9 1/2" = 1'-0" ISLAND BACK @ BREAK/ COLLAB 138 2 1/2" = 1'-0" ISLAND FRONT @ BREAK/ COLLAB 138 3 1/2" = 1'-0" COPY AREA 153 7 1/2" = 1'-0" COPY AREA 153 6 1" = 1'-0" RECEPTION DESK SECTION 10 2REVISION 01.17.2023 3REVISION 02.14.2023
1/2"
Reflected Ceiling Plan FD FD FD FD FD FD FD FD ← ← → → ← → ← ← → → ← ← → → ↓ ↑↑ ↑ ↓↓ → → → ↑ 33 33 OP 8'-0" 8'-0" 8'-0" 5'-8" 2'-9 1/2" 2'-5" 5'-5" EQ 2'-5 1/2" 8'-0" TYP GYP 10'-0" GYP 9'-0" ACT-2 12'-0" GYP 11'-0" GYP 12'-0" ACT-1 10'-0" GYP 9'-0" ACT-1 10'-0" GYP 10'-8" GYP 10'-8" GYP 10'-0" 3 3 3 33 3 3 D D 1 12 2 OP GYP 10'-0" FA FA 4 GYP 10'-0" GYP 10'-0" GYP 9'-0" GYP 9'-0" ACT-1 10'-0" 5 5 5 9'-1 1/2" 5'-0 1/2" 4'-1" 6 6 6 R R R R FLEX 134 PHONE 131 CONFERENCE 138 BROADCASTING 143 FLEX 140 BREAK 100 OFFICE 137 OFFICE 142 OFFICE 141 OFFICE 146 OFFICE 147 COFFEE 149 COAT LUGGAGE CLOSET 151 OFFICE 114 OFFICE 113 OFFICE 112 OFFICE 111 FILE ROOM 110 HUDDLE 109 CONFERENCE 108 VESTIBULE 150 OFFICE 136 HUDDLE 133 IT 127 MENS 123 WOMENS 122 STORAGE 105 MOTHER'S ROOM 104 OFFICE 107 RECEPTION 102 ELEC CLOSET 125 COLLAB 106 MAIL COAT CLOSET 103 HUDDLE 115 WELLNESS 116 ELEC CLOSET 152 IT STORAGE 128 LOCKERS 126 IT WORK ROOM 129 COLLAB 135 PHONE 132 OPEN OFFICE 145 VESTIBULE 124 COFFEE 117 5'-7" 5'-7" 1'-3" 2'-0 1/2" TYP D D D DD D 2 3 FA 33 STORAGE 130 8'-0" TYP 5'-0 1/2" 5'-9" 5'-9" 8'-5" 2'-11" 5'-9" 8 7 4'-0" D D D D ACT-1 12'-0" DDDD D D DDD D DD D DD DDDDDD D 2 2 2 2 2 2 N NN N 33 333 3 3 D D D DD D AA2 DA3 DA2 DA1 DA1 9 9 9 10 9 DA4 DA4 10 DA5 DA5 DA5 DA5 R R E R R R R DD D EQ 5'-9 1/2" 11 3'-0" 7'-5" 7'-5" 3'-0" 3'-0" 8'-5" 4'-3 1/2" 8'-0" TYP 12 1 EQ EQ GYP 10'-0" GYP 9'-0" GYP 10'-0" GYP 10'-0" D IBR (CONFERENCE) 144 D 5'-0" 28'-10" 2'-9 1/2" EQ 7'-5 1/2" 7'-5 1/2" 7'-5 1/2" 7'-5 1/2" 7'-5 1/2" EQ 7'-5 1/2" 7'-5 1/2" 7'-5 1/2" 7'-5 1/2" EQ COPY 153 2 2 2 2 2 13 E 5'-0 1/2" 8'-3 12" TYP 5'-0 1/2" FUTURE OPEN OFFICE 154 EQ EQ 14 BREAK/COLLAB 139 5'-1" 7'-7" 3'-0" 6'-0" 4'-2 1/2" 7'-7" 5'-11" 2'-11 1/2" D D 15 TRAINING 120 TRAINING 121 FURNITURE STORAGE 118 COLLAB 119 FD FD FD FD FD FD FD FD ↑↑ ↓↓ → 33 33 OP 8'-0" 8'-0" 8'-0" 2'-9 1/2" 2'-5" 5'-5" EQ 2'-5 1/2" 8'-0" TYP GYP 10'-0" GYP -0" ACT- 12'-0" GYP 11'-0" GYP 12'-0" ACT- 10'-0" GYP 9'-0" ACT-1 10'-0" GYP 10'-8" GYP 10'-8" GYP 10'-0" 3 D D 12 OP GYP 10'-0" FA FA GYP 10'-0" GYP 10'-0" GYP -0" GYP 9'-0" ACT- 10'-0" 5 9'-1 1/2" 5'-0 1/2" 4'-1" R R FLEX 134 PHONE 131 CONFERENCE 138 BROADCASTING 143 140 100 OFFICE 137 OFFICE 141 146 147 149 COAT LUGGAGE CLOSET OFFICE OFFICE 113 OFFICE OFFICE 111 FILE ROOM 110 HUDDLE 109 108 150 OFFICE 136 HUDDLE 133 MENS WOMENS 105 104 107 102 ELEC CLOSET 125 COLLAB 103 HUDDLE WELLNESS 116 ELEC CLOSET 152 128 LOCKERS 126 WORK ROOM 129 COLLAB PHONE 132 OPEN OFFICE 145 VESTIBULE 124 117 5'-7" 5'-7" 1'-3" 2'-0 1/2" TYP D D DD D 2 33 STORAGE 130 8'-0" TYP 5'-0 1/2" 8'-5" 2'-11" 5'-9" 7 4'-0" D D D D ACT- 12'-0" DDDD D D DDD D DD D DD DDDDDD D 2 2 2 2 NN 33 333 D D D DD D AA2 DA3 DA2 DA1 DA1 9 10 9 DA4 DA4 10 DA5 DA5 DA5 DA5 R R R R R DD D EQ 5'-9 1/2" 11 3'-0" 7'-5" 7'-5" 3'-0" 3'-0" 4'-3 1/2" 8'-0" TYP 12 1 EQ EQ GYP 10'-0" GYP 9'-0" GYP 10'-0" GYP 10'-0" D IBR (CONFERENCE) D 5'-0" 28'-10" 2'-9 1/2" EQ 7'-5 1/2" 7'-5 1/2" 7'-5 1/2" 7'-5 1/2" 7'-5 1/2" EQ 7'-5 1/2" 7'-5 1/2" 7'-5 1/2" 7'-5 1/2" EQ COPY 13 5'-0 1/2" 8'-3 12" TYP 5'-0 1/2" FUTURE OPEN OFFICE EQ EQ 14 BREAK/COLLAB 139 5'-1" 7'-7" 3'-0" 6'-0" 4'-2 1/2" 7'-7" 5'-11" 2'-11 1/2" 15 TRAINING TRAINING FURNITURE STORAGE COLLAB 119 3" RECESSED DOWNLIGHT (F) SPEC: ELITE, ER3-2000L-DIM10-MVOLT-WD-30K-90-ER3-TL-1302-WHT WATTAGE: 26.1 NEW GYP BD CEILING (EXISTING @ RECEPTION 102) NEW GRID & TILE SPEC: ARMSTRONG DUNE SQUARE LAY-IN 9/16" BEVELED TEGULAR 1775 W/SUPRAFINE XL 9/16 SUPENSION SYSTEM, 24" X 24 X 5/8", WHITE EXIT SIGN W/ BATTERY BACKUP NOTE: STEM MOUNT @ OTS LOCATIONS SPEC: EVENLITE, TLXEMGW MOUNTING HEIGHT: TO MATCH EXISTING EXISTING TO REMAIN SINGLE POLE SWITCH RE-CIRCUIT AS REQUIRED. RE-SWITCH AS INDICATED (LOCATED AT 48" AFF, UNO) 2' 4' LED DIRECT/INDIRECT LAY-IN (C) SPEC: HEW, LT-24-L40/830-AF-DRV-UNV WATTAGE: 32W OPEN TO STRUCTURE 4" SUSPENDED PENDANT @ OTS (B) SPEC: DMF LIGHTING, DC4-C4-S-L-D-30-WF-30-BK-O MOUNTING HEIGHT: 12'-0" AFF WATTAGE: 40W RECESSED LINEAR FIXTURE (A1-8,A1-20) SPEC: FINELITE, HO4-RO-(LENGTH)-B-830-OPN-277-SC-SE WATTAGE A1-8: 35.2W WATTAGE A1-20: 88W DECORATIVE PENDANT (G) SPEC: INSIGHT LIGHTING, ADB-68-30K-DI-ACA-48-DIM-TBL-TBL-LV MOUNTING HEIGHT: 7'-0" AFF WATTAGE: 58.1W ACOUSTICAL CLOUD SPEC: RITZ INTERIORS -CUSTOM, COLOR RA-04 MOUNTING HEIGHT: SEE 1 AND 3/A1-33 FOR HEIGHTS CONTACT: ANDY RITZ 678.878.0404 ANDY@RITZINTERIORS.NET ACOUSTICAL BAFFLE SPEC: RITZ SLIMZ #1, COLOR RA-05 @ OPEN OFFICE 145 DEPTH: 9" MOUNTING HEIGHT: 13'-0" AFF CONTACT: ANDY RITZ 678.878.0404 ANDY@RITZINTERIORS.NET (SEE 1/A1-32 FOR OVERALL DESIGN, SEE SUPPLEMENTARY DOCUMENTS FOR EXACT LAYOUT AND COORDINATION. SUSPENDED LINEAR FIXTURE (A-16,A-24,A-28,A-32,A-44) SPEC: FINELITE, HO4-D-RO-(LENGTH)-B-830-TG-OPN-277V-FA-OE MOUNTING HEIGHT: 12'-0" AFF WATTAGE A-16: 70.4W WATTAGE A-24: 105.6W WATTAGE A-28: 123.2W WATTAGE A-32: 140.8W WATTAGE A-44: 193.6W DIMMER -W Y3 RELOCATED PENDANT NOT IN SCOPE RELOCATED LED 1" RECESSED DOWNLIGHT (N) SPEC: ELITE, A1R-F-1102-800L-MD-30K-90-W-WH-A1R-LED-10W-DIM10-MVOLT-BP30 WATTAGE: 10W WALL GRAZER FIXTURE (H) SPEC: FINELIGHT, HP-WG-6W-4D-H-(LENGTH)-830-277-SC-SC-SSA-FEL-FER WATTAGE: LED COVE LIGHT FIXTURE (M) SPEC: ELITE, 1-LSC1-550LP-DIM10-MVOLT-120X120D-30K-90-CL-SI WATTAGE: 5.8W NOTE: CONTACT SUMMER DAVIS 770-449-7045 SDAVIS@SESCOLIGHTING.COM FOR ALL LIGHTING FIXTURES, UNO EXISTING SKYLIGHT DECORATIVE PENDANT @ RECEPTION (O) SPEC: SISTEMALUX, 1174-M-BO-20-930-L-SP-UNV-02-D10 MOUNTING HEIGHT: 6'-8" AFF WATTAGE: 905W NEW GRID & TILE SPEC: ARMSTRONG BACKSTAGE NOIR 15/16" SQUARE LAY-IN 1318 W/PRELUDE XL 15/16" SUSPENSION SYSTEM, 24" X 24" X 3/4", BLACK FA CEILING MOUNTED FIRE ALARM NOTE: STEM MOUNT @ OTS LOCATIONS FINISH: RED LED STRIP FIXTURE @ ELEC CLOSET 125 AND 151 (Q) SPEC: WILLIAMS 75 LED NARROW STRIP MOUNTING HEIGHT: 12'-0" AFF WATTAGE: 19.7W DECORATIVE SCONCE @ MOTHER'S ROOM, WELLNESS ROOM, ND PHONE ROOMS (L) SPEC: SAL, S3A20-L09-30-PT-BLK MOUNTING HEIGHT: 6'-0" AFF TO CENTER OF FIXTURE WATTAGE: 9W LED PENDANT @ RECEPTION (S) SPEC: KARMAN GANGSTER SUSPENSION LAMP DIA 19.69 MOUNTING HEIGHT: TO MATCH EXISTING RECESSED CELL LINEAR FIXTURE (D) SPEC: IGUZZINI, ILB-15-TR-S-NC-030-FL-UNV-D10-BN-LB-ADJ-TR-NC WATTAGE 36.6W CUSTOM SCONCE @ WOMENS AND MENS (I) SPEC: CUSTOM, W71051-20 WATTAGE: TBD EXISTING OPERABLE PARTITION OP LED RECESSED MULTI DOWNLIGHT @ WOMENS AND MENS (K) SPEC: ELITE, FC3-1500L-DIM10-FL-30K-90-F-BK-MVOLT WATTAGE: 21W NOTE: VERIFY FINAL DETAIL WITH MANUFACTURER RECOMMENDATIONS 1.REFER TO A0-03 FOR GENERAL RCP NOTES. 2.CEILING HEIGHT TO BE 10'-0" AFF THROUGHOUT, UNO. 3.SEE MEP DRAWINGS FOR ALL EMERGENCY FIXTURE LOCATIONS AND SPECIFICATIONS. 4.FURNISH AND INSTALL NEW CEILING GRID & TILE WHERE INDICATED, UNO. 5.LIGHTING FIXTURES TO BE CENTERED IN CEILING TILES UNO. 6. FURNISH AND INSTALL NEW FIXTURES THROUGHOUT, UNO 7.VERIFY EXISTING AND RELOCATED EXIT SIGNS ARE IN ROPER WORKING CONDITION AND MEET JURISDICTIONAL CODES; REPAIR/REPLACE AS NECESSARY AND/OR AS REQUIRED BY FIRE MARSHAL. PROVIDE NEW TO MATCH EXISTING AS INDICATED AND AS REQUIRED BY FIRE MARSHAL. EXIT SIGNS IN OPEN CEILING AREA ARE O BE STEM MOUNTED; BOTTOM OF FIXTURE TO BE HUNG @ 10'-0" AFF 8. REFER TO MEP DRAWINGS FOR VOLTAGE REQUIREMENTS 9. REFER TO MEP DRAWINGS FOR TWO (2) ON/OFF CONTROL LOCATIONS FOR ALL OPEN OFFICE LIGHTING AND AS REQUIRED PER ENERGY CODE 3/32" = 1'-0" REFLECTED CEILING PLAN 1 0' 48 16 32 KEYED NOTES LEGEND SHEET NOTES CENTER LIGHT FIXTURE WITHIN RESTROOM STALL IN ROOM WHERE INDICATED. PROVIDE AND INSTALL POWER AND BLOCKING ABOVE CEILING FOR TENANT PROVIDED CEILING MOUNTED TVS (NIC) @ IBR 144 AND OPEN OFFICE 145. COORDINATE ALL REQUIREMENTS WITH TENANT AND TENANTS A/V VENDOR. PROVIDE AND INSTALL AUDIO/VISUAL ANNUNCIATOR -CEILING MOUNTED. PROVIDE BLOCKING IF REQUIRED ABOVE CEILING FOR OPERABLE PARTITION (OP). COORDINATE EXACT SPECIFICATIONS PRIOR TO INSTALLATION. SEE STRUCTURAL ENGINEERING DRAWING FOR ADDITIONAL INFORMATION AND REQUIREMENTS. SPEC: MODERNFOLD LEGACY PAIRED FINISH: MAHARAM -TEK-WALL TRUSS BY LISA SCULL -007 WELL AND MARKERBOARD PROVIDE AND INSTALL POWER FOR SECURITY CAMERAS. COORDINATE WITH TENANT AND TENANT'S SECURITY VENDOR FOR EXACT SPECIFICATION AND POWER REQUIREMENTS. PROVIDE AND INSTALL MINIMAL FRAMING AND NEW GYP BD AT UNDERSIDE OF SKYLIGHT. GYP BD ON CEILING SIDE TO BE PT-02. PROVIDE AND INSTALL CONCEALED MANUAL SHADES. SPEC: MECHOSHADE MANUAL URBANSHADE, DOVE GREY 6209 6200 SERIES DROP CEILING TO START AT 13'-0" AFF AND END AT 11'-0". 10 SOFFIT TO EXTEND TO DECK WHERE INDICATED. ADD ALTERNATE DEDUCT ALTERNATE AA2 PROVIDE ELECTRONIC FROSTED GLASS SYSTEM IN LIEU OF MOTORIZED SHADES. DA1 APPROVED. IN LIEU OF ACOUSTICAL BAFFLES @ COFFEE 117/149, PROVIDE GYP BD CEILING @ 10'-0" AFF AND FOUR (4) DOWNLIGHTS. DA2 IN LIEU OF ACOUSTICAL CLOUDS @ COLLAB 106, PROVIDE GYP BD CEILING @ 10'-0" AFF AND NINE (9) DOWNLIGHTS. DA3 IN LIEU OF ACOUSTICAL CLOUDS THROUGHOUT @ BREAK/COLLAB 139, PROVIDE TEN (10) ABOVE ISLAND ONLY @ VARYING HEIGHTS AND LEAVE REMAINDER OTS. DA4 APPROVED. IN LIEU OF LED RECESSED MULTI DOWNLIGHT IN WOMENS 22 AND MENS 123, PROVIDE 3" DOWNLIGHT IN SAME LOCATION AS PREVIOUS. DA5 REMOVE DECORATIVE SCONCES FROM SCOPE @ MOTHER'S ROOM, WELLNESS ROOM, AND PHONE ROOM. PROVIDE POWER FOR TAPELIGHT WHERE INDICATED. SEE INTERIOR ELEVATIONS FOR EXACT LOCATIONS. SPEC: CONTECH, TLT24V23K30CR-TLCIPHW-TLCFF-TLACSC4-TLALF6-TLACSE2 WATTAGE: 4.3/FT DRIVER SPEC: CONTECH. TLP24VHW60MVD2-ENC WATTAGE: 60W 11 PROVIDE MASTER CONTROL SWITCH WHERE INDICATED FOR ALL OPEN OFFICE LIGHT FIXTURE. REFER TO MEP DRAWINGS FOR EXACT QUANTITIES AND REQUIREMENTS. 12 CENTER CUSTOM SCONCE WITH MIRROR. SEE INTERIOR ELEVATION 5 AND 6/A4-11. 13 PROVIDE AND INSTALL POWER AND BLOCKING ABOVE CEILING FOR FUTURE TENANT PROVIDED CEILING MOUNTED TVS (NIC) @ IBR 144. COORDINATE ALL REQUIREMENTS WITH TENANT AND TENANTS A/V VENDOR. 14 PROVIDE SUPPLEMENTAL UNIT WITHIN ROOM WHERE INDICATED. REFER TO MEP DRAWINGS FOR EXACT REQUIREMENTS. 1" = 1'-0" CEILING DETAIL -MODERNFOLD SOFFIT 2 1" 1'-0" MECHOSHADE MOUNTAING DETAIL 3 15 ROLLER SHADES TO BE TERMINATED @ FRAME OF DOOR 144 @ IBR (CONFERENCE 144)

*Renderings produced by third party

Renderings

corporate design wheels up

Deposco

Alpharetta, GA

Vickers Design Group

Overall Floor Plan

CONF COLLAB CONF IDF RR TV TV BREAK TV TV TV COFFEE/BAR RR LUGGAGE LOGO WALL BEV TV EXPERIENCE CENTER TV TV TV CONF RECEPTION OPEN COLLAB BRANDING GRAB & GO TV TV PHONE PHONE PHONE TV
Elevations corporate design deposco MW-1 EQUIP (NIC) GYP SOFFIT PLSS-02 2" EQ 2'-8" 2'-8" EQ 2" MW-1 IWMPT-04 PLPT-04 PT-04 EQUIP (NIC) PT-01 A4-12 10 A4-12 RB-1 EQUIP (NIC) EQUIP (NIC) TRASHTRASH REF-1 REF-1 GYP SOFFIT WT-2 WT-3 PL2'-10" 6'-5 1/2" 1/2" 1'-8" 3'-0" EQUAL 1'-6" 1'-6" 1/2" 2'-2" 3" PT-01 PLPLSS-02 PT-01 PT-03 PT-03 9 A4-12 13 A4-12 A4-13 14 A4-12 2 A4-13 RB-1 RB4 A0-02 FULL START TILE REF-2 OPEN TO BEYOND TRASH SS-01 STAINED WOOD CAP 3'-6" 2'-0" 2 EQUAL 1 1/2" 1'-6" 1'-6" PL- 1'-10" 2'-10" A4-12 A4-12 A4-12 A4-12 EXTERIOR GLAZING BEYOND SS-01 PLPLPL-4 4" 3" 1'-11 1/2" 11 1/2" 8'-11" 4" 5'-3" 3" RP-1 8'-11" SS-01 PLPL-1 PL-4 PT-01 PT-01 4" 3" 11 1/2" 2'-6" 3" 3'-0" 1'-0" 4'-9 1/2" RP- RP-1 RB-1 SS-01 ALIGN SS-01 PL-1 PL-1 4" 2'-6" 3'-0" 1 1/2" 1'-4" 4'-11 1/2" 2'-0" 3" 4" 3" 1'-11 1/2" 11 1/2" OPEN TO BEYOND GROMMET 2 A4-12 PLEXPERIENCE CENTER BEYOND SS-01 PL-1 4" 2'-6" 4'-9 1/2" 1'-4" 2'-6" 4" 3" 1'-11 1/2" 11 1/2" LOCKABLE DRAWER (TOP DRAWER ONLY) A4-12 15 A4-12 PLSS-02 2'-10" PLPT-01 PT-01 A4-12 RBTRASH TRASH PLSS-02 OPEN TO BEYOND 1/2" 1'-6" EQUAL 1'-6" 1/2" 2'-10" 11 A4-12 12 A4-12 OPEN TO MILLWORK BEYOND PL-1 SS-02 2'-10" 1/2" 1 1/2" WTQT-1 3'-6" QTPL-3 1/2" 1 1/2" PROJECT NUMBER: No. Date Revisions Submissions 1000 ABERNATHY RD, SUITE 100 Atlanta, Georgia 30328 404.937.6550 ALL IDEAS, DESIGNS, ARRANGEMENTS AND PLANS INDICATE IGN GROUPAND WERE CREATED, EVOLVED, AND DEVELOPED F ECT. NONE OF THE IDEAS, DESIGNS,ARRANGEMENTS, OR PL ANS SHALL BE USED BY OR DISCLOSED TO ANY PERSON, FI RM, OR CORPORATION FOR ANY PURPOSE WHATSOEVER WITHO HEREOF IS A CRIMINAL OFFENSE UNDER 18 U.S.C. SEC. 06 UNAUTHORIZED DISCLOSURE MAY CONSTITUTE TRADE SEC RET MISAPPROPRIATION INVIOLATION OF I.C.24-2-31-1 T. SEQ. AND OTHER LAWS. THE IDEAS, ARRANGEMENTS, AN D DESIGNS DISCLOSED HEREIN MAY BE PATENTED OR BE TH E SUBJECT OF PENDING PATENT APPLICATION. A4-10 INTERIOR ELEVATIONS 03.02.2023 ISSUED FOR CONSTRUCTION DEPOSCO 11605 HAYNES BRIDGE RD, SUITE 100 ALPHARETTA, GA 30009 22022.00 INTERIOR MODIFICATIONS 1/2" = 1'-0" MILLWORK @ GRAB & GO 119 7 1/2" = 1'-0" MILLWORK @ BREAK 116 10 1/2" = 1'-0" BEVERAGE COUNTER @ RECEPTION 100 5 1/2" = 1'-0" RECEPTION 100 NORTH 1 1/2" = 1'-0" RECEPTION 100 EAST 2 1/2" = 1'-0" RECEPTION 100 SOUTH 3 1/2" = 1'-0" RECEPTION 100 WEST 4 1/2" = 1'-0" MILLWORK @ GRAB & GO 119 6 1/2" = 1'-0" ISLAND @ GRAB & GO 119 9 1/2" = 1'-0" ISLAND @ GRAB & GO 119 8 1/2" = 1'-0" FRONT OF BAR @ COFFEE/BAR 118 11 MITER TILE FULL START TILE
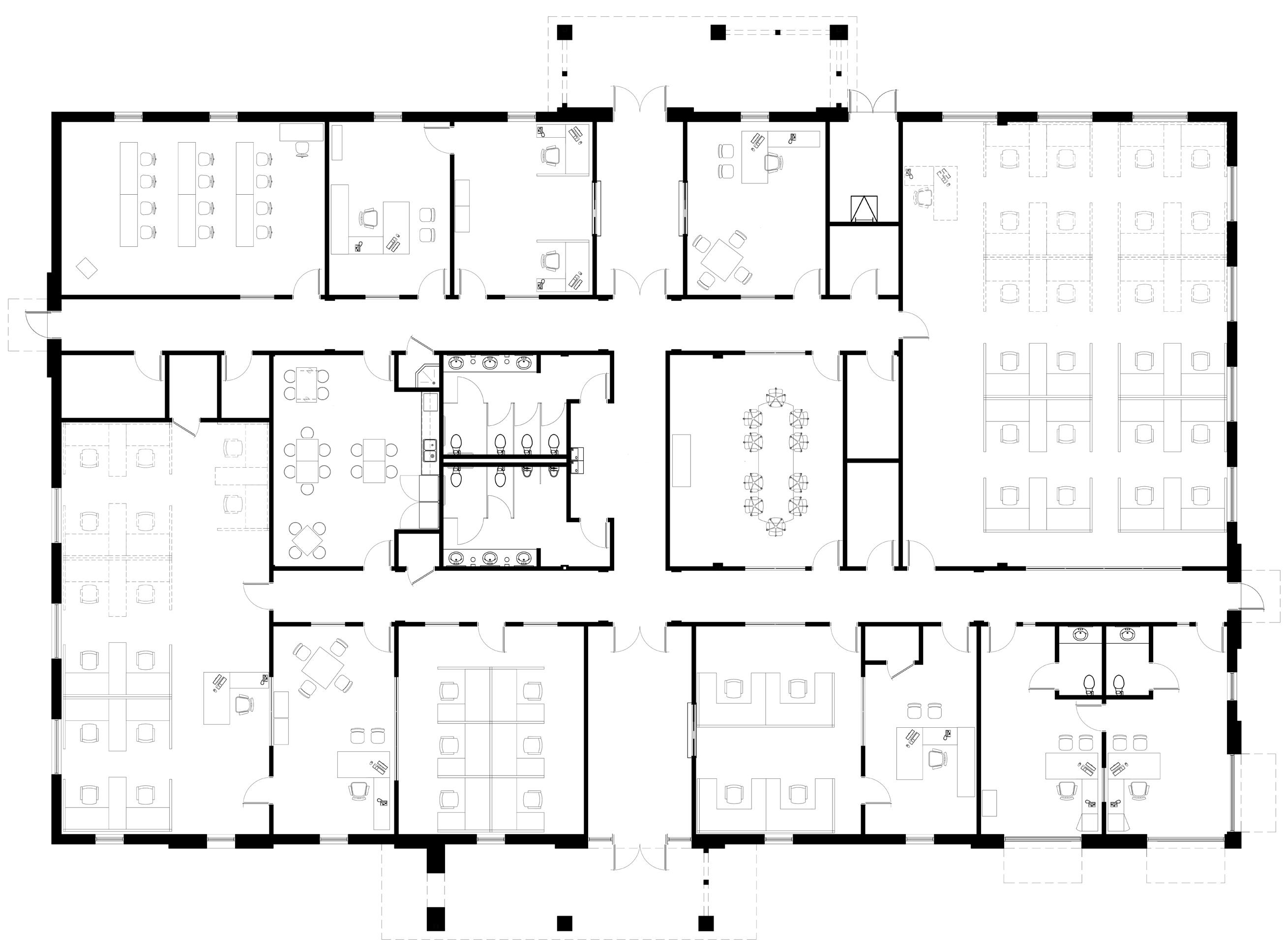
Interior
DW DW REF-3 ICE TV TV WT-1 FRAMED PICTURE (BY OTHERS) QT-1 2'-10" TRASH TRASH 3" 1'-6" 3" 1'-6" 3" 1'-6" 3" 1/2" 2 EQUAL VERIFY W/ EQ 4'-2" 3'-0" 1'-6" 1'-6" 1'-2" VERIFY W/ EQ 3'-4" 1 1/2" 1'-6" 4'-0" PL-2 PT-03 PT-03 WT-6 PL-3 PT-03 RB- RBPT-08 WD-2 WD-2 A4-13 A4-13 14 A4-12 1'-9" SCHEDULED SOFFIT WT- WT-5 3'-0" SCHLUTER JOLLY TRIM, POLISHED CHROME ANODIZED FULL START TILE WTB-1 WTQT-1 2'-10" 3'-6" 1'-4" PL-3 OPEN TO BEYOND PT-03 MITER TILE CORNER A4-13 FULL TILE START DESIGN INTENT FOR (2) ROWS OF WTKR-1 KR-1 8" 2'-10" PLQT-1 TRASH TRASH 1 1/2" 5'-3 1/2" 1'-6" 1'-6" EQUAL VERIFY W/ EQ 4'-3" 1'-3 1/2" 1 1/2" 7 A4-13 9 A4-13 8 A4-13 OPEN FEP PL-3 5 A4-13 PL1/2" 3" 1 1/2" 3'-6" 1/2" 3" 1 1/2" PT-03 PT-07 PT-07 PT-01 RBPT-01 PT-01 PT-01 PL-3 OPEN OPEN TO BEYOND QT-1 PT-03 WTWTFOOT RAIL GYP SOFFIT PT-02 WTKR-1 3'-6" 2'-10" WCDESIGN INTENT FOR LOGO TO BE BACKLIT WITH AND ORANGE DOTS. SEE RENDERING ON 2/A4-14. PROJECT NUMBER: No. Date Revisions / Submissions 1000 ABERNATHY RD, SUITE 100 Atlanta, Georgia 30328 404.937.6550 ALL IDEAS, DESIGNS, ARRANGEMENTS AND PLANS INDICATE D OR REPRESENTED BY AND THE PROPERTY OF VICKERS DES IGN GROUPAND WERE CREATED, EVOLVED, AND DEVELOPED OR USE ON AND IN CONNECTION WITH THE SPECIFIED PROJ ECT. NONE OF THE IDEAS, DESIGNS,ARRANGEMENTS, OR PL ANS SHALL BE USED BY OR DISCLOSED TO ANY PERSON, FI RM, OR CORPORATION FOR ANY PURPOSE WHATSOEVER WITHO UT THE WRITTEN PERMISSION OF VICKERS DESIGN GROUP.W ARNING: REPRODUCTION HEREOF IS A CRIMINAL OFFENSE UNDER 18 U.S.C. SEC. 06 UNAUTHORIZED DISCLOSURE MAY CONSTITUTE TRADE SEC RET MISAPPROPRIATION INVIOLATION OF I.C.24-2-31-1 E T. SEQ. AND OTHER LAWS. THE IDEAS, ARRANGEMENTS, AN D DESIGNS DISCLOSED HEREIN MAY BE PATENTED OR BE TH E SUBJECT OF PENDING PATENT APPLICATION. A4-11 INTERIOR ELEVATIONS 03.02.2023 ISSUED FOR CONSTRUCTION DEPOSCO 11605 HAYNES BRIDGE RD, SUITE 100 ALPHARETTA, GA 30009 22022.00 INTERIOR MODIFICATIONS 1/2" = 1'-0" BACK OF BAR @ COFFEE/BAR 118 2 1/2" = 1'-0" RESTROOM 102/103 5 1/2" = 1'-0" SIDE OF BAR @ COFFEE/BAR 118 1 1/2" = 1'-0" BACK OF BAR @ COFFEE/BAR 118 3 1/2" = 1'-0" COLLAB 109 6 1/2" = 1'-0" BACK OF BAR @ COFFEE/BAR 118 4 1/2" = 1'-0" LOGO WALL 7
Interior Elevations
VERIFY W/ TENANT 2'-0" 4" 3/4" WOOD BLOCKING IN WALL METAL DISPLAY MOUNTING BOX WITH MUD FLANGE 4" 4" STEEL POST IN LOW WALL PARTITION POST 5" 8" STEEL BASE PLATE WELDED TO POST AND ANCHORED TO SLAB RUBBER BASE PAINT ALL SIDES, SEE FINISH SCHEDULE ON A1-40 INTERIOR SURFACES TO BE WHITE MELAMINE, ALL SIDES PLASTIC LAMINATE BASE; SCRIBE TO FLOOR BLOCKING AS REQUIRED 2'-6" 4" 3/4" MDF W/ PLASTIC LAMINATE 3" 1/4" 1/4" 1/4" 1/4" MDF BACK FILE DRAWER W/ METAL BARS TO ACCOMMODATE LEGAL SIZE FOLDERS; GLIDES -150 LBS. CAPACITY FULL EXTENSION BOX DRAWER, PROVIDE DOOR STOP AND GLIDES AS NEEDED; DRAWER FRONT AND RETURN TO BE CLAD IN PLASTIC LAMINATE SOLID SURFACE COUNTERTOP AND SURROUND PLASTIC LAMINATE BASE; SCRIBE TO FLOOR 3'-6" 2'-4 1/2" LINE OF CEILING 3" PLASTIC LAMINATE 2'-11" PROVIDE BLOCKING AND CLEATS AS NEEDED 7" INTERIOR SURFACES TO BE WHITE MELAMINE, ALL SIDES PLASTIC LAMINATE BASE; SCRIBE TO FLOOR BLOCKING AS REQUIRED 2'-6" 4" 3/4" MDF W/ PLASTIC LAMINATE 3" 1/4" 1/4" 1/4" 1/4" MDF BACK FILE DRAWER W/ METAL BARS TO ACCOMMODATE LEGAL SIZE FOLDERS; GLIDES -150 LBS. CAPACITY FULL EXTENSION LOCKABLE BOX DRAWER WHERE INDICATED, PROVIDE DOOR STOP AND GLIDES AS NEEDED; DRAWER FRONT AND RETURN TO BE CLAD IN PLASTIC LAMINATE SOLID SURFACE COUNTERTOP PLASTIC LAMINATE BASE; SCRIBE TO FLOOR RESIN PANEL 2'-8" 7" SOLID SURFACE SURROUND BEYOND PLASTIC LAMINATE BEYOND PLASTIC LAMINATE BEYOND LINE OF CEILING PLASTIC LAMINATE BASE, REFER TO ELEVATION AND FINISH PLAN FOR TYPE; SCRIBE TO FLOOR BLOCKING AS REQUIRED 2'-10" 4" 3" SOLID SURFACE COUNTERTOP, BACKSLPASH, AND SURROUND CONCEALED HINGE, SPRING LOADED 3/4" MDF W/ PLASTIC LAMINATE INTERIOR SURFACE TO BE WHITE MELAMINE ADJUSTABLE 3/4" MELAMINE SHELF ON RECESSED STANDARDS HARDWARE SPEC: LIBERTY -DUAL MOUNT INDUSTRIAL INSER -HEIRLOOM SILVER/BLACK NOTE: ALL CABINET DOORS TO RECEIVE RUBBER BUMPERS STAINED WOOD CAP 2'-1" 6 1/2" 3'-6" SEE FLOOR PLAN ON A1-20 FOR WALL TYPE AND PARTITION TYPES ON A0-05 FOR WALL CONSTRUCTION WALL BEYOND PROVIDE CONTINUOUS FT BLOCKING OR METAL REINFORCEMENT FOR ANCHORAGE AS REQUIRED ROCA -ROBUST FLEX STAINLESS STEEL OR APPROVED EQUAL FLOOR LINE BLOCKING AS REQUIRED FACE OF WALL 4" 7 1/2" 2" 7 1/2" 2" 1/2" 2'-10" 2'-1" SOLID SURFACE COUNTERTOP 8000 3/4" MDF W/ PLASTIC LAMINATE INTERIOR SURFACES TO BE WHITE MELAMINE, ALL SIDES PLASTIC LAMINATE BASE; SCRIBE TO FLOOR BLOCKING AS REQUIRED 2'-10" 4" 3" SOLID SURFACE COUNTERTOP, BACKSPLASH, AND SURROUND 3/4" MDF W/ PLASTIC LAMINATE HARDWARE SPEC: LIBERTY -DUAL MOUNT INDUSTRIAL INSER -HEIRLOOM SILVER/BLACK NOTE: ALL CABINET DOORS/DRAWERS TO RECEIVE RUBBER BUMPERS 4 EQUAL STAINED WOOD CAP WALL BEYOND SEE FLOOR PLAN ON A1-20 FOR WALL TYPE AND PARTITION TYPES ON A0-05 FOR WALL CONSTRUCTION SOFT CLOSE PULL TRACK FOR BOTTOM MOUNT WASTE BIN, HEAVY DUTY. BASIS OF DESIGN: REV-A-SHELF RV 4WCBM-18DM-2. BLOCKING AS REQUIRED 3" 4" INTERIOR SURFACE TO BE WHITE MELAMINE 1/2" MDF SOLID SURFACE COUNTERTOP, BACKSPLASH, AND SURROUND HARDWARE SPEC: LIBERTY -DUAL MOUNT INDUSTRIAL INSER -HEIRLOOM SILVER/BLACK NOTE: ALL CABINET DOORS TO RECEIVE RUBBER BUMPERS 6 1/2" STAINED WOOD CAP RUBBER BASE SEE FLOOR PLAN ON A1-20 FOR WALL TYPE AND PARTITION TYPES ON A0-05 FOR WALL CONSTRUCTION 2'-10" WALL BEYOND 3'-6" PLASTIC LAMINATE BASE, REFER TO ELEVATION AND FINISH PLAN FOR TYPE; SCRIBE TO FLOOR BLOCKING AS REQUIRED 1'-10" 4" 3" SOLID SURFACE COUNTERTOP, BACKSPLASH, AND SURROUND CONCEALED HINGE, SPRING LOADED 3/4" MDF W/ PLASTIC LAMINATE INTERIOR SURFACE TO BE WHITE MELAMINE HARDWARE SPEC: LIBERTY -DUAL MOUNT INDUSTRIAL INSER -HEIRLOOM SILVER/BLACK NOTE: ALL CABINET DOORS TO RECEIVE RUBBER BUMPERS STAINED WOOD CAP RUBBER BASE SEE FLOOR PLAN ON A1-20 FOR WALL TYPE AND PARTITION TYPES ON A0-05 FOR WALL CONSTRUCTION VOID IN MILLWORK FOR ELECTRICAL OUTLET WALL BEYOND INTERIOR SURFACES TO BE WHITE MELAMINE, ALL SIDES PLASTIC LAMINATE BASE; SCRIBE TO FLOOR BLOCKING AS REQUIRED 2'-10" 4" 3" SOLID SURFACE COUNTERTOP 3/4" MDF W/ PLASTIC LAMINATE HARDWARE SPEC: LIBERTY -DUAL MOUNT INDUSTRIAL INSER -HEIRLOOM SILVER/BLACK NOTE: ALL CABINET DOORS/DRAWERS TO RECEIVE RUBBER BUMPERS 2'-1" 4 EQUAL PLASTIC LAMINATE SURROUND @ GRAB & GO 119 ONLY FACE OF WALL 2" SOLID SURFACE BACKSPLASH @ GRAB & GO 119 TILE BACKSPLASH @ OTHER LOCATIONS SEE ELEVATIONS PLASTIC LAMINATE BASE, REFER TO ELEVATION AND FINISH PLAN FOR TYPE; SCRIBE TO FLOOR BLOCKING AS REQUIRED 2'-10" 4" SOLID SURFACE COUNTERTOP AND BACKSPLASH SOFT CLOSE HINGES INTERIOR SURFACE TO BE PLASTIC LAMINATE 2'-1" HARDWARE SPEC: LIBERTY -DUAL MOUNT INDUSTRIAL INSER -HEIRLOOM SILVER/BLACK NOTE: ALL CABINET DOORS/DRAWERS TO RECEIVE RUBBER BUMPERS MW VOID IN MILLWORK FOR ELECTRICAL OUTLET 3" PLASTIC LAMINATE SURROUND FACE OF WALL 1'-8" 2" SOFT CLOSE PULL TRACK FOR BOTTOM MOUNT WASTE BIN, HEAVY DUTY. BASIS OF DESIGN: REV-A-SHELF RV 4WCBM-18DM-2. BLOCKING AS REQUIRED 3" 4" INTERIOR SURFACE TO BE WHITE MELAMINE 1/2" MDF SOLID SURFACE COUNTERTOP HARDWARE SPEC: LIBERTY -DUAL MOUNT INDUSTRIAL INSER -HEIRLOOM SILVER/BLACK NOTE: ALL CABINET DOORS TO RECEIVE RUBBER BUMPERS 2'-2" WATERFALL EDGE BEYOND 2'-10" 1'-8" PROVIDE INTERMEDIATE SUPPORTS AS REQUIRED PLASTIC LAMINATE BASE, REFER TO ELEVATION AND FINISH PLAN FOR TYPE; SCRIBE TO FLOOR BLOCKING AS REQUIRED 4" 3" SOLID SURFACE COUNTERTOP CONCEALED HINGE, SPRING LOADED 3/4" MDF W/ PLASTIC LAMINATE INTERIOR SURFACE TO BE WHITE MELAMINE ADJUSTABLE 3/4" MELAMINE SHELF ON RECESSED STANDARDS HARDWARE SPEC: LIBERTY -DUAL MOUNT INDUSTRIAL INSER -HEIRLOOM SILVER/BLACK NOTE: ALL CABINET DOORS TO RECEIVE RUBBER BUMPERS 2'-10" WATERFALL EDGE BEYOND 2'-2" PROVIDE INTERMEDIATE SUPPORTS AS REQUIRED 1'-8" INSULATE ALL PIPES & DRAIN W/ BLACK RUBBER INSULATION, MITER & GLUE TO COMPLY W/ ANSI 117.1 CONCEALED HINGE, SPRING LOADED ADA COMPLIANT UNDERMOUNT SINK ADA COMPLIANT FAUCET 3/4 MDF W/ PLASTIC LAMINATE; REFER TO ELEVATION & FINISH PLAN FOR LAMINATE TYPE INTERIOR SURFACE TO BE WHITE MELAMINE, ALL SIDES 4" FACE OF WALL 3" TILE BACKSPLASH BLOCKING AS REQUIRED SOLID SURFACE COUNTERTOP QUARTZ COUNTERTOP @ COFFEE/BAR 121 ONLY HARDWARE SPEC: LIBERTY -DUAL MOUNT INDUSTRIAL INSER -HEIRLOOM SILVER/BLACK NOTE: ALL CABINET DOORS TO RECEIVE RUBBER BUMPERS 2'-10" PLASTIC LAMINATE BASE, REFER TO ELEVATION AND FINISH PLAN FOR TYPE; SCRIBE TO FLOOR BLOCKING AS REQUIRED 2'-10" 4" 3" SOLID SURFACE COUNTERTOP QUARTZ COUNTERTOP @ COFFEE/BAR 121 ONLY CONCEALED HINGE, SPRING LOADED 3/4" MDF W/ PLASTIC LAMINATE INTERIOR SURFACE TO BE WHITE MELAMINE ADJUSTABLE 3/4" MELAMINE SHELF ON RECESSED STANDARDS HARDWARE SPEC: LIBERTY -DUAL MOUNT INDUSTRIAL INSER -HEIRLOOM SILVER/BLACK NOTE: ALL CABINET DOORS TO RECEIVE RUBBER BUMPERS 2'-1" BLOCKING AS REQUIRED 2'-6" 3/4" MDF W/ PLASTIC LAMINATE SOLID SURFACE COUNTERTOP PLASTIC LAMINATE BASE; SCRIBE TO FLOOR RESIN PANEL 2'-8" 7" SOLID SURFACE SURROUND BEYOND PLASTIC LAMINATE BEYOND PROVIDE INTERMEDIATE SUPPORTS AS REQUIRED PLASTIC LAMINATE BEYOND LINE OF CEILING PROJECT NUMBER: No. Date Revisions / Submissions 1000 ABERNATHY RD, SUITE 100 Atlanta, Georgia 30328 404.937.6550 ALL IDEAS, DESIGNS, ARRANGEMENTS AND PLANS INDICATE D OR REPRESENTED BY AND THE PROPERTY OF VICKERS DES IGN GROUPAND WERE CREATED, EVOLVED, AND DEVELOPED OR USE ON AND IN CONNECTION WITH THE SPECIFIED PROJ ECT. NONE OF THE IDEAS, DESIGNS,ARRANGEMENTS, OR PL ANS SHALL BE USED BY OR DISCLOSED TO ANY PERSON, FI RM, OR CORPORATION FOR ANY PURPOSE WHATSOEVER WITHO UT THE WRITTEN PERMISSION OF VICKERS DESIGN GROUP.W ARNING: REPRODUCTION A4-12 SECTIONS 03.02.2023 ISSUED FOR CONSTRUCTION DEPOSCO 11605 HAYNES BRIDGE RD, SUITE 100 ALPHARETTA, GA 30009 22022.00 INTERIOR MODIFICATIONS 1" = 1'-0" MEDIA WALL @ OPEN COLLAB 117 1 1" = 1'-0" RECEPTION DESK DRAWERS 2 1" = 1'-0" RECEPTION DESK DRAWERS 3 1" = 1'-0" TYP BASE CABINET @ RECEPTION 100 4 1" = 1'-0" SHELVES @ GRAB & GO 119 8 1" = 1'-0" DRAWER SECTION @ RECEPTION 100 5 1" = 1'-0" TRASH SECTION @ RECEPTION 100 6 1" = 1'-0" BASE CABINET @ RECEPTION 100 7 1" = 1'-0" TYP DRAWER SECTION 9 1" = 1'-0" MICROWAVE BASE CABINET SECTION 10 1" = 1'-0" TRASH SECTION @ GRAB & GO 119 11 1" = 1'-0" BASE CABINET @ GRAB & GO 119 12 1" = 1'-0" SINK SECTION -UNDERMOUNT 13 1" = 1'-0" TYP BASE CABINET SECTION 14 1" = 1'-0" RECEPTION DESK SECTION 15
Sections

*Renderings produced by third party

Renderings

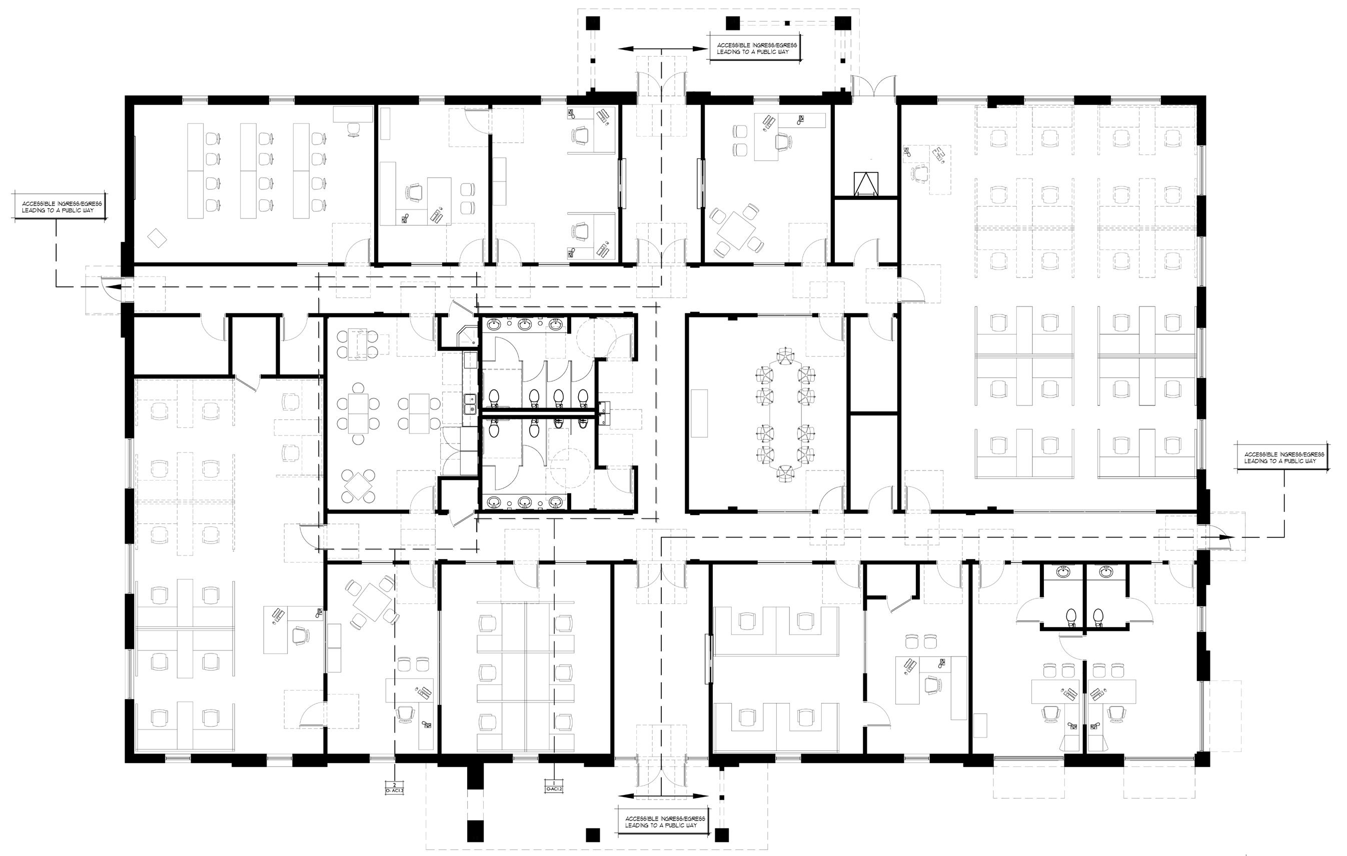
Memphis -Shelby County Airport Authority

Memphis, TN

RossWitt Architecture and Interior Design

Overall Floor Plan

Maintenance Bays U.P.S and Electrical Room Bag Room Break Room Muster Room Muster Room Muster Room Muster Room Muster Room Muster Room Muster Room Men Women Fire Pump/ Riser Room Tenant IT Room Dom. Water Land Side Entry Air Side Entry
corporate design memphis shelby county airport authority
Life Safety Plan
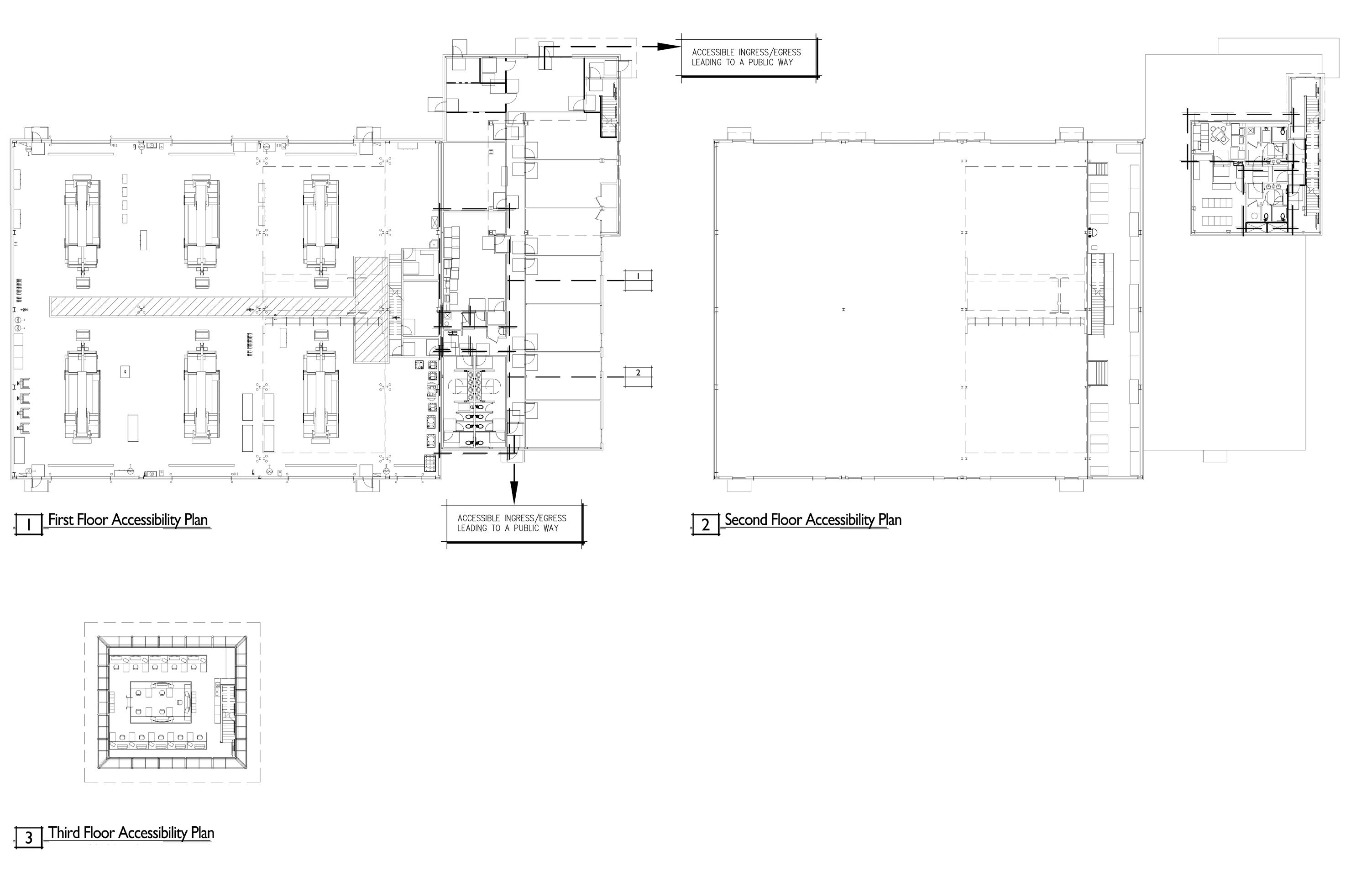
Accessibility Plan

Enlarged Accessibility Plan

Interior Elevations

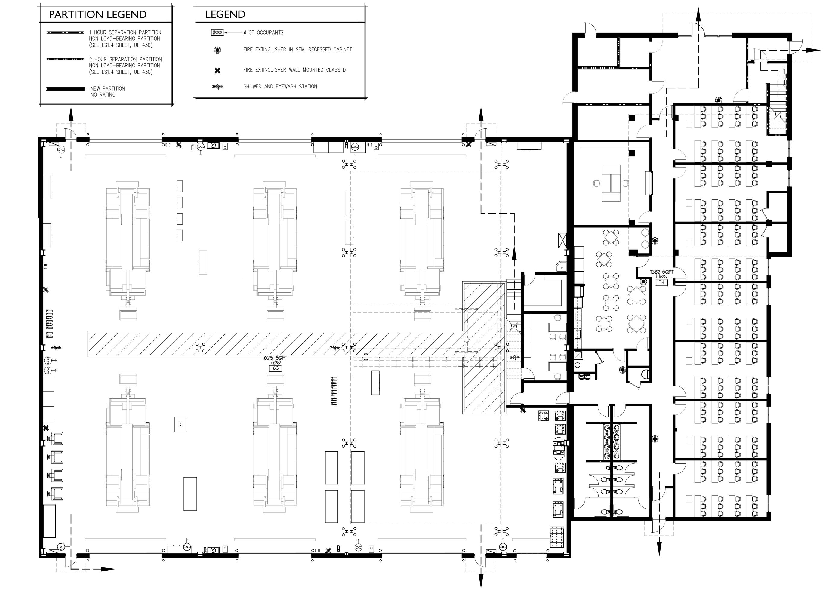
RDX Trucking

Memphis, TN

Architecture and Interior Design

RossWitt
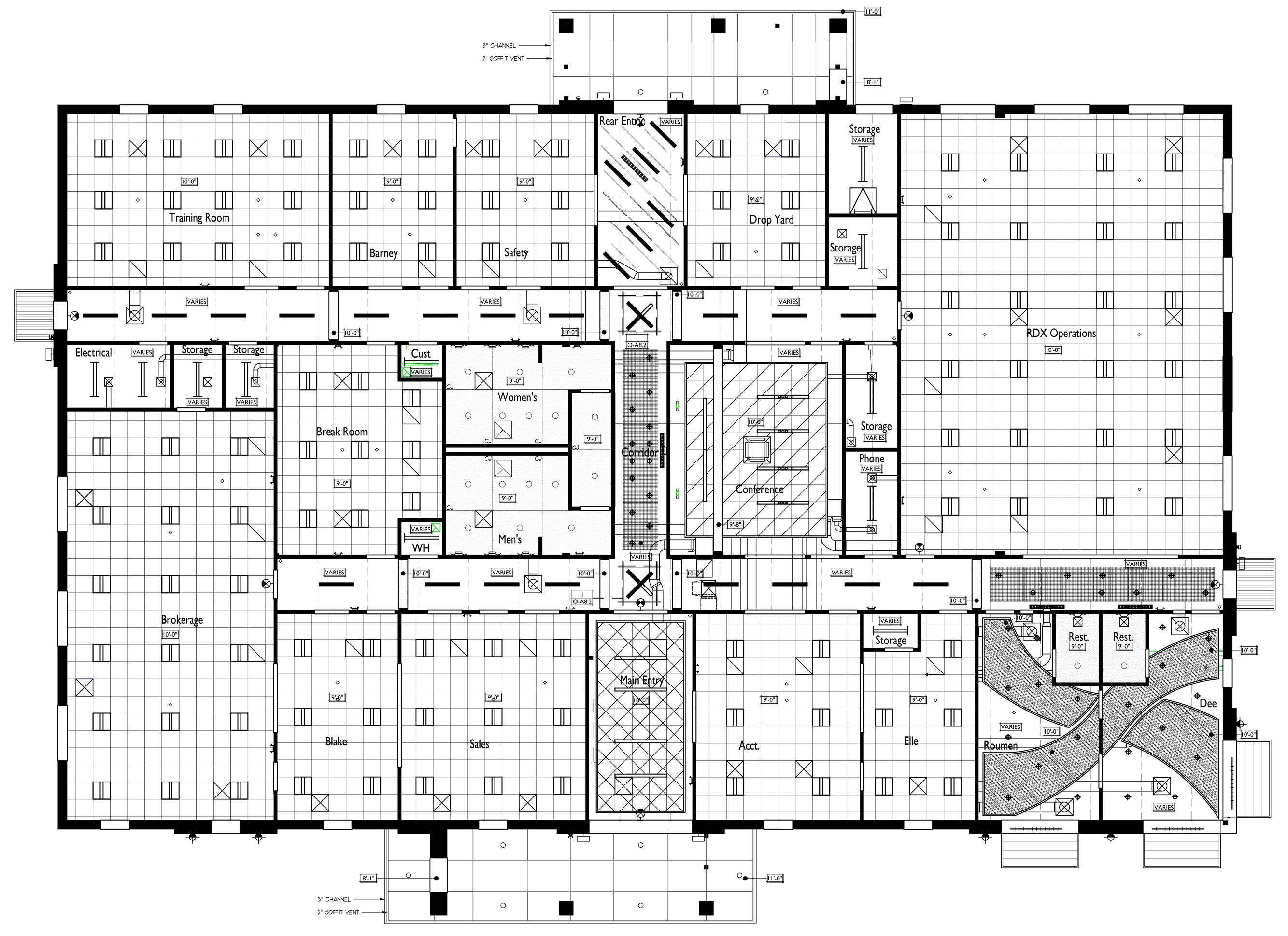
Men Women Break Room Brokerage Training Room Private O ce Private O ce Private O ce RDX Operations Conference Safety Sales Accounting Storage Storage Storage Electrical Storage Storage Phone Storage Rear Entry Main Entry Private O ce RR RR Private O ce Drop Yard
Overall Floor Plan
corporate design rdx trucking
Accessibility Plan

Interior Elevations

OPEN

Interior Elevations

A O-A7.7 1 1" = 1'-0" 2 1" 1'-0" 3 1" 1'-0" 4 1" = 1'-0" 5 1" = 1'-0"

Reflected Ceiling Plan

corporate design rdx trucking
Reflected Ceiling Plan

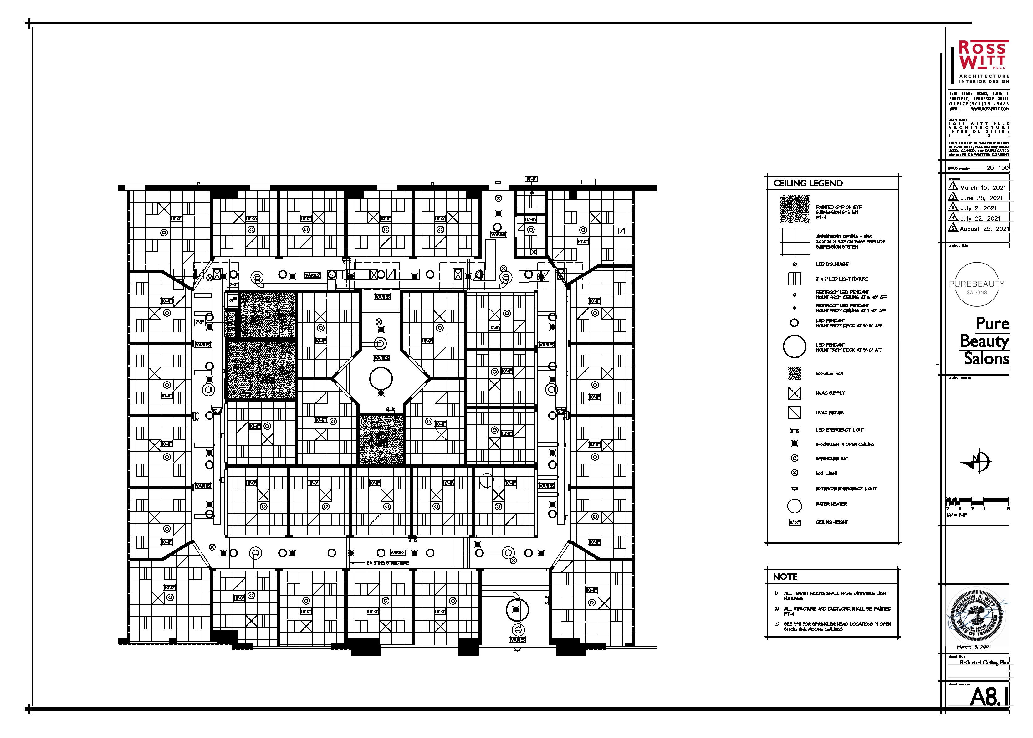
Pure Beauty Salon

Cordova, TN

Architecture and Interior Design

RossWitt

Overall Floor Plan

Lobby Break Room RR RR RR Spa Suite Lobby
hospitality design pure beauty salon Life Safety Plan
Accessibility Plan

Enlarged Accessibility Plan

Interior Elevations

OPEN OPEN OPEN OPEN
hospitality design pure beauty salon Reflected Ceiling Plan

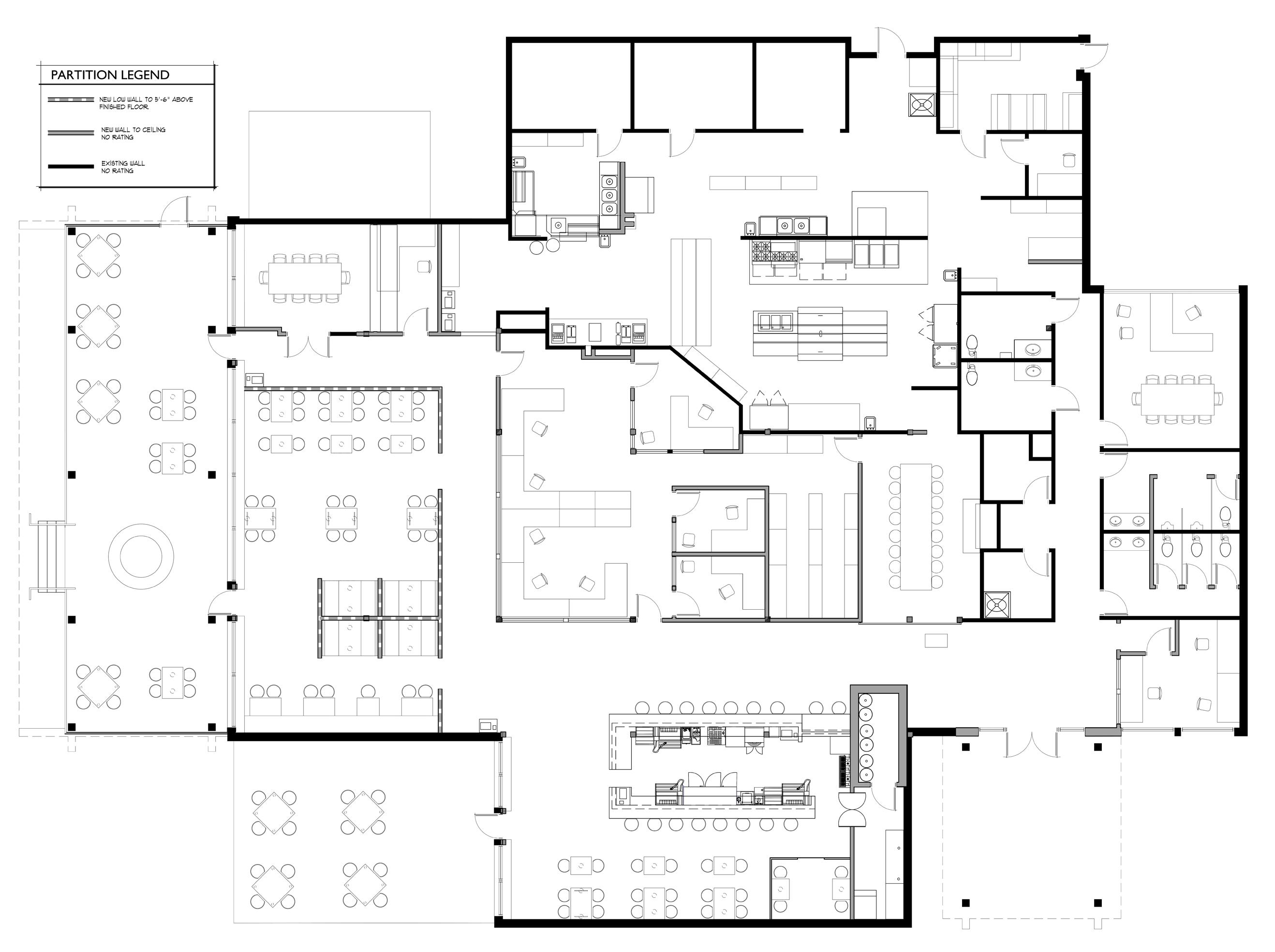
Wolf River Brisket

Germantown, TN

Description: Renovation of restaurant corporate offices in existing building.

RossWitt Architecture and Interior Design

Overall Floor Plan

Patio Dining O ce O ce O ce Lobby O ce O ce Women Men Event Dining Bar Private Dining ADA Restroom Meeting Kitchen Storage Storage Custodian ADA Restroom Bar Dining Associates’ Area Electrical Cooler Freezer
Patio

Interior Elevations

Turn static files into dynamic content formats.

Create a flipbook
Issuu converts static files into: digital portfolios, online yearbooks, online catalogs, digital photo albums and more. Sign up and create your flipbook.
Audreanna Paige's Interior Design Portfolio by Audrey Paige - Issuu