

![]()


Mi nombre es Atzin Ollin Marin Mejia, soy egresada de la carrera de Arquitectura de la Facultad de Estudios Superiores Acatlán UNAM (20172022). Cuento con un Diplomado en Diseño de Interiores (FES Acatlán UNAM). A lo largo de mi trayectoria académica me desempeñé como una alumna destacada en el ámbito del diseño interior, lo cual me llevó a tomar mi preespecialidadeninteriorismo.
Desarrollé mi proyecto final de tesis bajo el tema de “Escuela de Música deCoacalco”.
Actualmente cuento con experiencia de 2 años laborando en una empresa dedicada a la venta y fabricación de mobiliario para oficina, así como el diseño interior de espacios corporativos. Así mismo, he realizado algunos proyectos independientes a nivel residencial.

+55 3726-8069

marinme05.arq@gmail.com
Mi meta profesional es seguirme desarrollando en un despacho o empresa relacionada con el interiorismo y diseño, que me permita crecer como arquitecta creadora de espacios funcionales, armónicos y que le brinden al usuario el mayor confort y sensación visualmente agradable a través de los colores, texturas, mobiliario, remates y distribución de espacios. Así mismo, me interesa mantenerme en constante actualización en cuanto a tendencias en estilos de diseño, materiales y herramientasdigitales.
FORMACIÓN ACADÉMICA
Facultadde EstudiosSuperioresAcatlán
UNAM | Febrero – Agosto 2023
Diplomado enDiseñode interiores
Facultadde EstudiosSuperioresAcatlán
UNAM | 2017 - 2022
Arquitectura
Titulada
Cédula Profesional: 14615608
HABILIDADES PROFESIONALES
o Modelado tridimensional
o Visualización arquitectónica
SOFTWARE
o AutoDesk AutoCad 2D
o AutoDesk AutoCad 3D
o Revit
o Sketchup
o 3Ds Max
ESIATecamachalco
IPN | Agosto 2016 - Junio 2017
Ingeniera Arquitecta (2 semestres)
UVM CampusHispano
Universidad del Valle de México | 2013 - 2016
Preparatoria
IDIOMAS
o Español (lengua natal)
o Inglés (avanzado)
o Francés (básico)
o Portugués (básico)
o Redacción
o Manejo de redes sociales
o Adobe Illustrator
o Adobe Photoshop
o Enscape
o Lumion
o Vray
o Paquetería Microsoft Office
CURSOS
o Revit a través de la metodología BIM. ATTICA, 2021.
o Seminario "Construyendo tu conocimiento", INTERCERAMIC.
o Sustainable Interior Design Week. UGREEN, 2021.
o Instalaciones Hidrosanitarias Funcionales. HELVEX, 2022.
o Illustrator+Photoshop. Trazzo Visual, 2023.
“No soydecoradora, yo creo espacios.”
-Florence Knoll
Proyectos seleccionados
01
02
MANI
Tienda de ropa de alta costura
06 -11
03
Educación y cultura
12 - 17
04
INTERIORESCASAMITRASMONTERREY (LEGORRETA)
Vivienda de alto nivel
18 - 23
MOBILIARIONUEVOEDIFICIOSEDATU
Equipamiento oficinas gobierno
24 - 27
Tienda de ropa de alta costura
Localización:
CDMX, México
Tipo:
Proyecto universitario
Año: 2021
Superficie: 268m2
El propósito de este proyecto es, en primera instancia, trabajar en el diseño interior de una tienda de ropa de alta costura conformada por el de piso de ventas en planta baja y mezzanine, así como un área de servicios.
Esto se logrará partiendo de la creación de una marca comercial "MANI"; la cual venderá sus productos en dicho local, planteando la organización de los espacios y zonificación de estos de acuerdo con los estudios de recorridos que puede hacer el usuario y que mejor comodidad le brinden (layout), considerando también el aspecto del visual merchandising para potencializar las ventas y la composición y decoración de los elementos arquitectónicos como muros, pisos y plafones.

MANI| Marca e imagen corporativa

Marca de moda dedicada al diseño y confección de piezas de lujo totalmente exclusivas, para quienes gustan de calidad, elegancia y glamour.
Misión: ofrecer clase, calidad y exclusividad por medio de diseños únicos y novedosos.
Visión: posicionarnos como una de las marcaslíderes en el sector de moda de lujo nacionale internacional.
MANI | Zonificación

Sector de mercado.
Edad: +10, -30
Género: masculino, femenino
Estatus socioeconómico: Alto
MANI | Target
Prendasde vestir yaccesorios. Línea permanente y de ropa y temporada, accesorios de para dama, caballero y niños, de tipo alta costura, casual y classy.






Educación y cultura
Localización:
Coacalco. Estado de México, México
Tipo:
Proyecto de tesis
Año: 2022
Superfície de terreno: 8,500m2
Superfície construída: 5,450m2
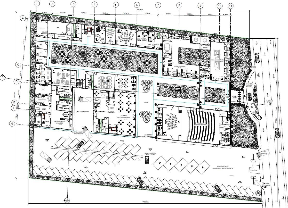
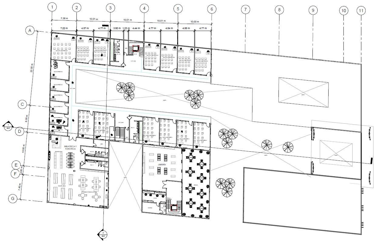
La necesidad de desarrollar el proyectoejecutivo de una Escuela de Música para la zona conurbada del Estado de México en el municipio de Coacalco de Berriozábal, se debe a la falta de equipamientocultural que existe en el sitio, contando con algunas escuelas de música particulares que tienen un costo elevado de colegiatura y se ubican en espacios de viviendas no adecuados, por lo que es limitado el acceso a quienes deseen iniciar con un aprendizaje musical.
El objetivo principal es crear un espacio para todos y que éste pueda sentirse y vivirse arquitectónicamente como un lugar que cumple con su función, y, además, genera sensación de bienestar tanto por sus instalaciones como por su estética que rompe con las edificaciones tradicionales y espacios adaptados a escuelas de música que se encuentran en el municipio.
| Zonificaciónyconcepto

ZONIFICACIÓN

EJESCOMPOSITIVOS
El resultado de la zonificación es una forma compuesta por 6 volúmenes que articulan los diferentes subsistemas, de manera que exista una relación coherente y de comodidad al desplazarse para el usuario, mismos que en su separación forman dos ejes centrales de composición aprovechando las vistas interiores.
En cuanto al concepto interno del proyecto, se empleó un estilo mayormente minimalista, tomando las áreas verdes como principales remates visuales y utilizando colores neutros en muros y pisos, con fachadas limpias de exceso decorativo.




PLANTABAJA




SECCIÓNTRANSVERSAL

FACHADAPRINCIPAL











Sistema constructivo: se propone un diseño a base de marcos rígidos, que son estructuras metálicas de pórticos cuyos elementos se unen entre sí por medio de conexiones fijas, capaces de transmitir los momentos y fuerzas sin que se produzcan desplazamientos lineales o angulares en sus extremos, lo que hace que la estructura pueda resistir por sí sola las cargas verticales y horizontales a las que se someta.
Sistema losacero en entrepisos, columnas y trabes metálicas, muros divisorios internos y cubierta de policarbonato soportada con perfiles tubulares metálicos en el Lobby.

Viviendade altonivel
Localización:
San Pedro Garza García, Nuevo León, Monterrey, México
Tipo:
Proyecto para Diplomado en Diseño de Interiores
Año: 2023
Área total del proyecto:
586.84m2
Con base en los conocimientos adquiridos en este Diplomado impartido por la FES Acatlán UNAM, se creó un despacho de arquitectos interioristas llamado DIM Estudio. El espacio trabajado fue la casa Ricardo del Sorteo Tec 2022 diseñada y construida por el despacho de Legorreta. El proyecto “Casa Mitras” fue solicitado por una familia de clase alta que buscó rediseñar los interiores de su hogar con necesidades específicas para poder llevar a cabo sus actividades del día a día, teniendo en mente un diseño atemporal y sofisticado.
Para la ejecución del proyecto, se consideraron alcances tales como presentación y entregables de moodboard, look & feel, diseño de mobiliario personalizado, adquisición de mobiliario y arte de diseñadores reconocidos, proyecto de iluminación, y materiales con mínimas intervenciones en la construcción.
| Descripcióndelproyecto

Este caso de éxito culminó con la satisfacción del cliente y una casa totalmente renovada con un diseño único y sostenible.
El programa arquitectónico de Casa Mitras se compone por planta baja y tres niveles. Sus mayores atractivos son la piscina ubicada en el jardín posterior, la cava de vinos, el vestíbulo central con un piano, todos en planta baja y la terraza con fire pit en el tercer nivel.




















MOBILIARIONUEVOEDIFICIOSEDATU
Equipamiento oficinas gobierno
Localización:
Avenida Juárez No.92, Cuauhtémoc, CDMX, México
Tipo:
Proyecto de ventas para el sector gobierno, mobiliario PM Steele
Año: 2023-presente
total del proyecto: $96 MDP
Con la construcción del nuevo edificio para la SEDATU en Ciudad de México que albergará el Archivo General Agrario, surgió la necesidad de desarrollar un proyecto de interiores que se adapte a las nuevas formas de trabajo colaborativo y a los usuarios que pasarán gran parte de su día en las instalaciones, uno de los componentes esenciales para cubrir dicha necesidad es el mobiliario fijo y para uso de personal. La empresa PM Steele fue la ganadora de esta licitación, cubriendo el 90% del suministro e instalación de mobiliario.
El proyecto consta de 7 niveles y 2 sótanos, para los cuales se diseñaron, fabricaron e instalaron escritorios, mesas de trabajo y juntas, libreros, estantería, mobiliario de diseño especial y sillería. El proyecto de archivo móvil fue trabajado en conjunto con la empresa canadiense Ulrich.

| Descripcióndelproyecto

Todo el mobiliario está fabricado con bases metálicas y revestimientos o cubiertas en laminado plástico y chapa de madera en colores neutros para generar contraste con los acabados interiores del edificio. Cada módulo de trabajo fue diseñado para lograr una óptima ejecución de las actividades grupales o individuales.
Este proyecto a gran escala demuestra que el trabajo interdisciplinario en la arquitectura da como resultado un espacio digno de albergar no sólo documentación de suma importancia para la nación, sino para todos los colaboradores que harán uso de sus instalaciones.
MOBILIARIONUEVOEDIFICIOSEDATU
Salón de usos múltiples, comedor y biblioteca











