
Academic / Non-Academic

![]()

Academic / Non-Academic

TEL. +20 127 553 5614
ElSheikh Zayed, Egypt EMAIL. mohamedattabooyy99@gmail.com
“I am Mohamed Atta, an Architecture graduate from Faculty of Fine Arts Architecture Department. I am a creative and enthusiastic individual, with the intent to work in an environment that pushes the current limits of my abilities, motivation and imagination.
My academic progression towards architecture has given me opportunities to explore new ideas and learn about various design and composition theories. I am a keen observer of People, Architecture, and Cities and have always tried to put forward my understanding and perspective through concepts, sketching, photography, and documentation.
Looking forward to utilize the design and decision-making skillset that I have developed during the past five years of architecture school and seek opportunities to further learn, refine, and grow as an architect.”
DateOfBirth
5th April 1999
Sep2017-July2022
Faculty of Fine Arts - Architecture Department
Bachelor of Engineering in Architecture
Shedwan Secondary School
Thanawya Aama Degree with overall score 91%
April2020-July2020
Sep2014-July2017 July2020-Dec2021
Sep2020-Dec2020
August2021-Jan2022
ElMotaheda for Engineering and Contracting
Internship
ElMotaheda For Engineering and Contracting
Full-time Architect
L’Atelier D’Alexandrie
Documentation and Photography of Architectural Heritage Buildings Internship
REI US Real Estate
Remotely Part-time Real Estate agent
Buildex Co.
Full-time Architect
Dec2022 -Present
NAGA Architects
Full-time Architect / Interior Designer
COMPUTER SKILLS
Word - Excel - Powerpoint
Photoshop - Illustrator - Indesign - Lightroom
Revit - AutoCAD - 3ds Max - Sketchup Egyptian
Lumion - VRay - Chaos Corona - D5
First Language
Advanced
+20 127 553 5614
Intermediate linkedin.com/in/attabooyy/ C1 - Cambridge English Language Assessment Test
behance.net/attabooyy @attabooyy_
1 02 03 04 05


Accuracy Check: Ensure that all dimensions, specifications, and details in the drawings are accurate and meet the client’s requirements.
Design - Technical Drawings
Compliance Verification: Check that the design complies with local building codes, regulations, and standards.
Design Coordination: Coordinate with other disciplines (Structural, MEP, Fire.) using BIM 360 to ensure that all systems and components are integrated seamlessly.
Construction Detailing: Prepare detailed construction, Authority drawings and schedules that clearly indicate the methods of construction, materials, and finishes.



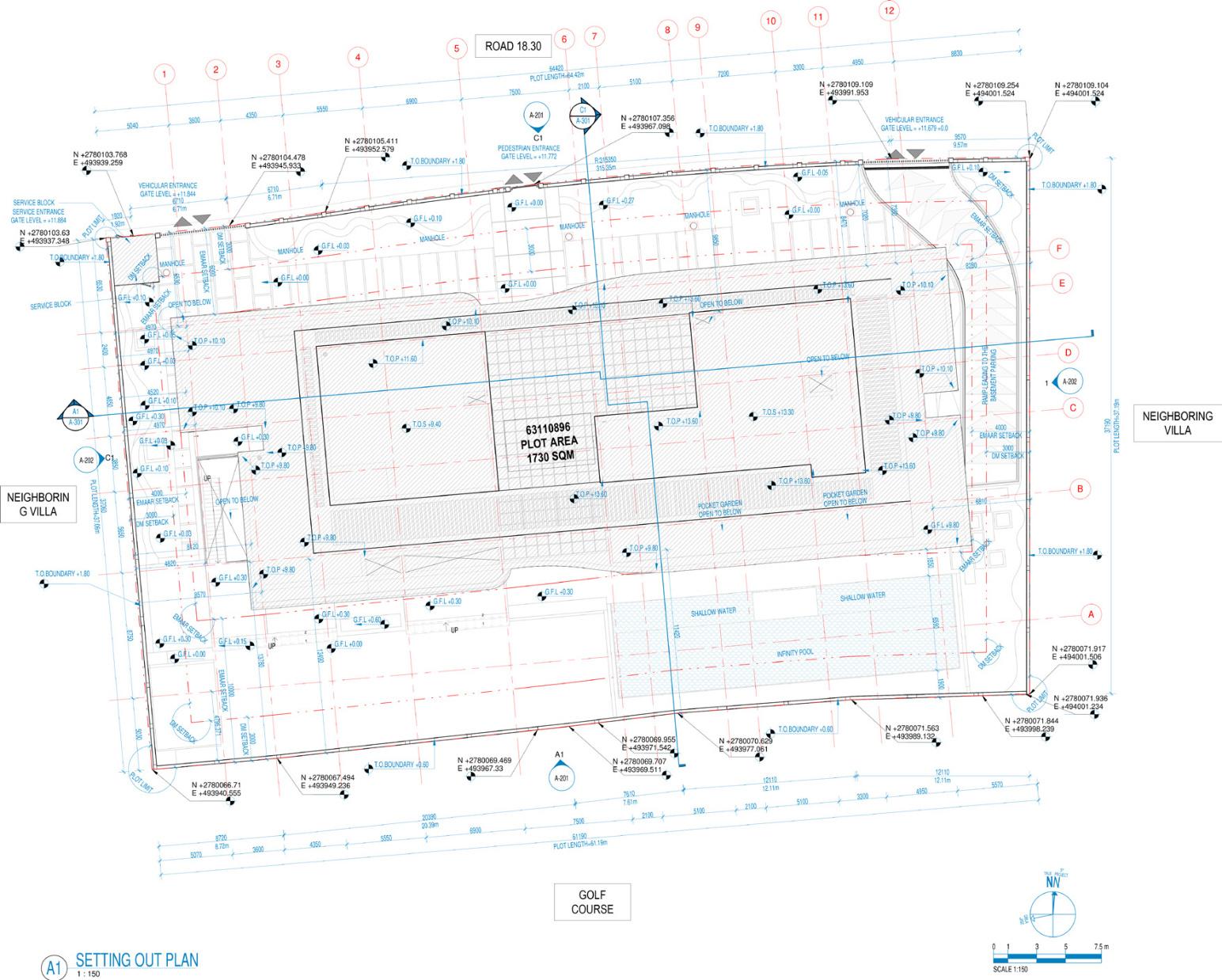
This setting out plan provides a detailed guide for the construction of a residential villa in Dubai Hills Estate, LLC. It includes essential measurements, layout details, entrance gate levels, manhole locations and setback requirements to ensure compliance with local regulations and standards.

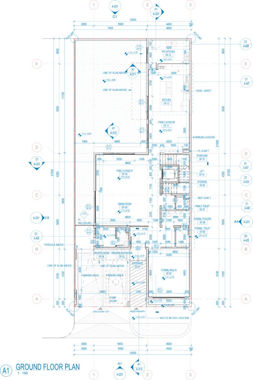
the architectural and aesthetic analysis of the project, including considerations for interior design, reveals a comprehensive and personalized approach to create a contemporary and high-quality living space. The use of advanced design tools, a structured project management framework, and a focus on quality and detail ensure that both the architectural and interior design elements will contribute to a cohesive and visually appealing final product.
Integration of Interior and Exterior Design: the comprehensive approach to architectural planning and the interior design elements are carefully integrated with the overall architectural vision. This integration offers creating a cohesive and aesthetically pleasing living space.
Customization and Personalization: the personalized nature of the project, interior design elements are tailored to Mr. Neal Sahni’s preferences and requirements. including custom furniture, lighting fixtures, and decorative elements that reflect his personal style and taste.


blend of modern aesthetics, functional living spaces, and sustainable features. It creates a luxurious and comfortable living environment that is in harmony with its surroundings. The attention to detail in materials, finishes, and spatial layout ensures that the villa meets the client’s expectations and provides a serene and inviting space for relaxation and entertainment.
Materials: The interior uses high-quality materials, such as white porcelain tiles and calcium-silicate board for fireproofing, to create a luxurious and safe living environment.
Lighting and Ventilation: Carefully planned lighting and ventilation systems ensure that every space is well-lit and comfortable. The use of insulated glass helps in maintaining a comfortable temperature and reducing energy consumption.
Sustainable Materials: The use of sustainable materials, such as grey travertine for cladding and white porcelain tiles, contributes to the villa’s eco-friendly design.







Review and Verify Design Documents: Ensure accuracy, compliance with codes, and coordination with other disciplines.
Technical Specifications and Detailing: Provide detailed material and construction specifications LOD 350 model.
- Technical Drawings

Documentation: Maintain detailed records of all changes, revisions, and modifications made to the drawings and specifications.


The document outlines the setting out plan, plot limits, and various features of the villa, including boundary walls, swimming pool, jacuzzi, pocket gardens, and utility blocks. It provides precise measurements and coordinates for each element, ensuring accurate construction.

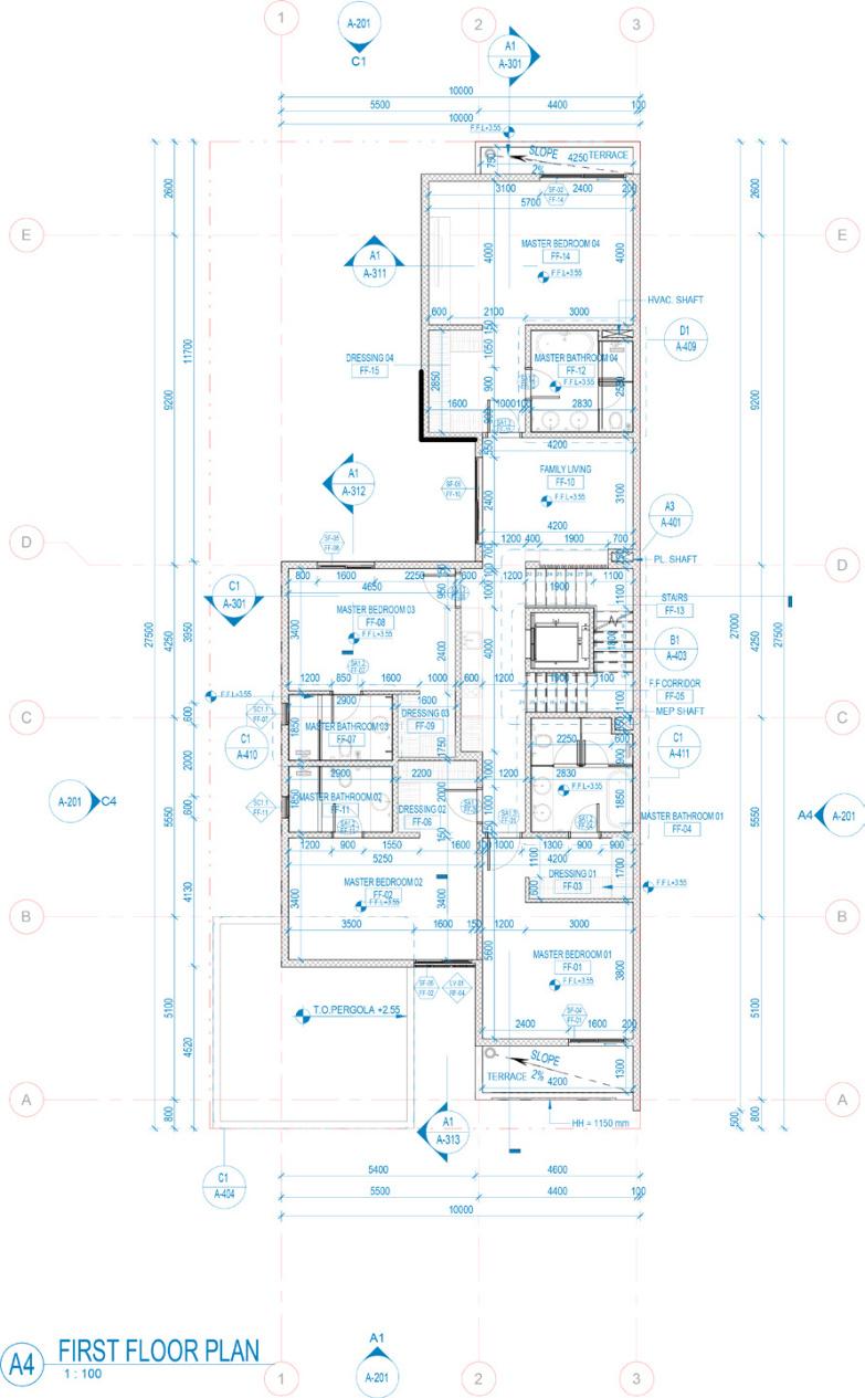
The design philosophy for the villa project likely emphasizes modern, functional, and aesthetically pleasing living spaces. Given the location in Mohammed Bin Rashid City, a prestigious district in Dubai, the design would aim to blend contemporary architecture with the local cultural and environmental context. The philosophy would focus on creating a harmonious and luxurious living environment that meets the client’s needs and preferences.
Modern Aesthetics: The use of clean lines, minimalist details, and high-quality materials to achieve a sleek and modern look.
Spacious Layouts: Open floor plans that maximize natural light and provide a sense of spaciousness, enhancing the overall living experience.
Outdoor Integration: Emphasis on indoor-outdoor living with well-designed outdoor spaces, terraces, and gardens that seamlessly integrate with the interior.
Luxury and Comfort: High-end finishes, custom-designed elements, and attention to detail to create a luxurious and comfortable living space.


The design philosophy for this villa focuses on creating a harmonious blend of indoor and outdoor living. The use of natural stone and modern materials creates a balance between tradition and innovation. The villa is designed to be a sanctuary of comfort and elegance, with attention to detail in every aspect.
Color Scheme: A mix of neutral tones with accents of wood and stone.
Materials: High-quality stone, aluminum, and insulated glass.
Lighting: A combination of natural light and strategically placed artificial lighting to enhance the ambiance.
Energy Efficiency: The use of insulated glass and modern construction techniques ensures optimal energy efficiency.
Privacy and Security: The design incorporates features to maintain privacy and security for the residents.







Prestige and Status: Having a property that overlooks the Burj Khalifa is a status symbol in Dubai. It signifies prestige and luxury, attracting high-end clients who seek a premium living experience.
Design - Technical Drawings

Completeness: Provide comprehensive documentation that includes all necessary details, such as dimensions, materials, finishes, and any other relevant information required for the construction process.
Timely Submissions: Submit all required documentation in a timely manner to meet project deadlines and facilitate the review and approval process.


the orientation of the villa overlooking the Burj Khalifa is essential for maximizing the property’s aesthetic appeal, lifestyle benefits, investment potential, and overall design quality. It requires careful planning to balance the view with privacy, security, and sustainability, ensuring that the villa meets the high standards expected by its residents and the real estate market.

The design philosophy for this villa project emphasizes the importance of precision, coordination, and accuracy in the planning and construction phases ensuring that all aspects of the design are meticulously planned and executed. This approach ensures that the final product meets the highest standards of quality and functionality.
Attention to Detail: The document stresses the importance of verifying all dimensions and coordinating between trades for any alterations or changes. This principle ensures that every element of the design is carefully considered and executed with precision.
Spatial Harmony: Emphasis on scale and proportion ensures that the interior spaces are well-balanced and harmonious, enhancing the overall living experience.
Innovative Use of Lighting: Integrating natural light and innovative lighting solutions to create a warm and inviting atmosphere, highlighting key features and architectural details.


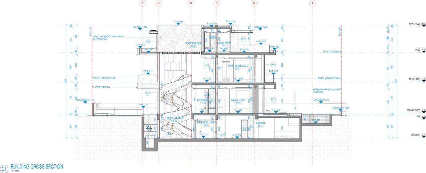
The architectural design emphasizes the harmonious integration of natural elements, transparency, and spatial fluidity, achieving an aesthetic and functional balance between indoor and outdoor spaces. The visual and physical connection between indoor and outdoor water features reinforces the design philosophy of creating a serene and cohesive living environment.
Materiality and Texture: The combination of materials such as aluminum frames with powder coat finish, white porcelain, and travertine marble adds rich texture and contrast to the design. These materials are not only aesthetically pleasing but also durable and low maintenance, reflecting a philosophy of sustainable and functional design.
Integration of Nature: The inclusion of water features both indoors and outdoors reflects a conscious effort to integrate natural elements into the architectural design. This not only enhances aesthetics but also provides a relaxing and serene environment.
Outdoor Pool and Waterfall: The outdoor pool visually and physically connects with the indoor pool, extending outward and culminating in a waterfall that descends to the basement. This waterfall not only creates an impressive visual effect but also produces a relaxing sound that can be enjoyed on the lower levels.







Schematic Design and Design Development: Develop the initial concept design based on the client’s requirements, besides creating construction documents and present them to the client for approval, incorporating feedback to refine the design.
Technical Drawings Obhur, Jeddah, KSA

Documentations: Specify materials, finishes, and construction techniques Including detailed specifications for groove patterns, screen patterns, and reflective finishes as required.
Regulatory Compliance: Ensure that the design complies with local building codes, regulations, and standards of Saudi Arabia

The design of the villa is inspired by the natural beauty of Obhur and the rich cultural heritage of Jeddah. It aims to create a harmonious living space that blends modern comfort with traditional elegance. The concept emphasizes the use of natural light, open spaces, and a connection to the surrounding environment.
Materials: Locally sourced materials will be used wherever possible to support the local economy and to ensure the villa’s design is authentic to its location. This color palette reflects the warmth of the Jeddah climate and the sandy hues of the nearby coast.
Patterns: The use of groove patterns and screen patterns by specialists adds texture and visual interest to the facade. These patterns also serve to control the amount of sunlight entering the villa, providing both aesthetic and functional benefits.
Open Floor Plan: The interior layout will feature an open floor plan that maximizes natural light and provides a sense of spaciousness. The living, dining, and kitchen areas will be seamlessly integrated to facilitate easy movement and interaction.







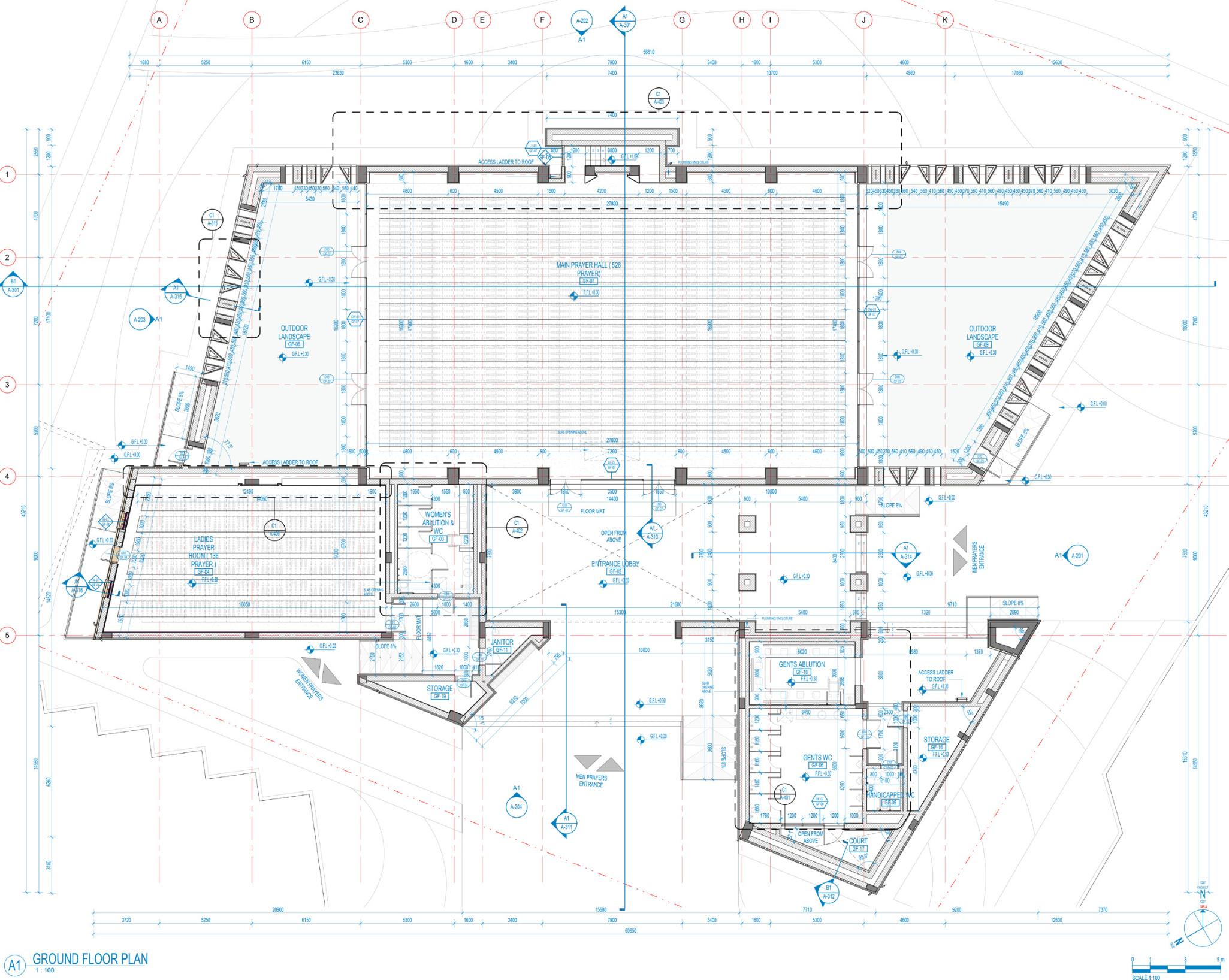
Coordination: Working closely with the structural, MEP and fire engineers to integrate their requirements into the design while maintaining the overall aesthetic and functional integrity of the mosque
- Technical Drawings

Material: Managing the selection and procurement of materials and finishes that are in line with the design concept and budget.
Regulatory Compliance: Ensure that the design complies with local building codes, regulations, and standards of Saudi Arabia

The Obhur Mosque in Jeddah is envisioned as a harmonious blend of traditional Islamic architecture and contemporary design elements, reflecting the rich cultural heritage of the region while embracing modernity. The philosophy behind the design is to create a serene and inclusive space that not only serves as a place of worship but also as a community hub that fosters a sense of belonging and unity among its users.
The design aims to strike a balance between the functional requirements of a mosque and the aesthetic aspirations that reflect the values of Islam, such as simplicity, purity, and elegance. The mosque is designed to be a beacon of light and peace, with its architecture and interior spaces inviting people to contemplate and connect with their faith.
The layout of the mosque is designed to facilitate ease of movement and accessibility, with separate entrances and facilities for men and families. The prayer halls are spacious and open, with high ceilings that enhance the sense of grandeur and reverence. The main prayer hall is oriented towards the direction of Makkah, with a focal point that serves as a visual anchor for worshippers.
The exterior of the mosque features a contemporary interpretation of traditional Islamic motifs, with intricate patterns and geometric shapes that are both visually striking and deeply symbolic. The use of local materials and sustainable design principles ensures that the mosque is not only aesthetically pleasing but also environmentally responsible.




Non-Academic - Site Architect
Alexandria, Egypt 2020
Alexandria Train Station has witnessed great development in the recent period, as the Ministry of Transport developed the station while preserving the archaeological character of the station and its historical appearance.
The development work carried out by the Nile General Road Construction Company, affiliated with the Ministry of Transport, included the restoration and development of the station’s external and internal facades and returning them to their original heritage condition under the supervision of the Alexandria Heritage Preservation Authority and the Cultural Coordination Agency of the Ministry of Antiquities, and the restoration and return of the VIP Hall to its historical state with its decorations and natural components.
It also included rehabilitating and modernizing the station’s mosque, renovating all sidewalks and walls and providing them with advanced fire networks and systems, renovating the railway canopy (truss), in addition to re-landscaping the station’s external plaza.
New clocks were also installed on the internal and external facades, all administrative and operating offices in the station were renovated, the ticket hall was completely renovated, and the sidewalks and internal and external facades were illuminated with the latest lighting systems.









Non-Academic - Site Architect
Alexandria, Egypt 2021
The palace is considered the most important and oldest building built in the gardens of Montazah Palace, which dates back to the era of Khedive Abbas Hilmi II, who entrusted the construction to the Greek engineer Dimitri Fabricius in 1892 AD. The palace consists of 3 floors and a basement built in the style of Gothic and Renaissance architecture using multiple domes and towers.It also included rehabilitating and modernizing the station’s mosque, renovating all sidewalks and walls and providing them with advanced fire networks and systems, renovating the railway canopy (truss), in addition to re-landscaping the station’s external plaza.
The huge project aims to transform the Royal Gardens into a global tourist attraction to attract tourists, and to make Alexandria a stop for cruise tourism, The project included increasing the number of hotel units from 225 to 926 units distributed between “Salamlek Palace - five-star hotel - four-star hotel - Palestine Hotel, which contributes to the tourism service.”









Non-Academic - Site Architect
Alexandria, Egypt 2023
Nabi Daniel Street is the oldest and most ancient street in Alexandria. The street dates back to 331 BC, and it is considered a complex for the three monotheistic religions, as it includes: The Church of St. Mark, which is the oldest church in Africa, the Temple of Eliyahu, which is the oldest Jewish temple built in Alexandria, and the Mosque of the Prophet Daniel, which creates a unique state of gathering of religions around the world.
The plan and strategic vision of the project is to develop, restore and paint all the buildings on the street, while adhering to the original color code for heritage buildings, and restoring what needs to be restored to develop and raise the efficiency of all archaeological and heritage sites in Alexandria to preserve them and return them to their previous glory, especially since climate change has affected Accordingly, taking into account that attention will be given to the libraries located on the street, their appearance will be unified, and a uniform commitment will be made to preserve the civilized and heritage appearance of the street and not to obstruct traffic.









Academic - Graduation Project
PHASE 01 Abstraction
PHASE 02 Repetition
PHASE 03 Observation
PHASE 04 Dynamic
Minya, Egypt 2022
Minya is a national and regional center of the Upper Egypt and its heritage culture which makes it a potential host for regional art festivals and worldwide iconic theme; The project aims to preserve the Upper Egypt intangible heritage and folkloric performances by offering a special experience for visitors throught shows and workshops; By attempting to fill the gap of education through arts & culture for residents (children and adults) of Minya and help fostering their creativity through different art forms through a series of events and workshops in: “Folkloric Arts, Oral Literature and Contemporary Art” which leads to: “Preservation of the intangible heritage, Culture and Identity conservation, Involving local community and Income increase” therefore the concept was targeting the intangible cultural heritage of arts and crafts that characterize the whole of Upper Egypt and considered to be its identity over the years; design decisions were taken in terms of circulation and form development to create a total of 10 blocks, each block representing a governorate of the Upper Egypt, divided by a main axis representing the Nile

PHASE 05 Urban Design
PHASE 06 Typology
Creating integrated spaces between site landscape elements such as softscape, hardscape and external arenas for holding festivals, mawlids and annual gatherings that are held in Minya


According to the the previous landuse in terms of it being a national park, it has now become neglected and occupies a large area and an important location in relation to Minya and its view of the Nile. It is considered the connecting point between the new city of Minya and the old city so re-planning and coordinating the natural site elements was an important task to be considered.
• Creating integrated spaces between site landscape elements such as softscape and hardscape
• Creating a secondary entrance from the Nile and its promenade that extends along the city, making the project a checkpoint within the tourist path of Minya
• Creating external arenas for holding festivals, mawlids and annual gatherings that are held in Minya and relying on the cultural factor in developing and targeting the economic aspect of the park and the city
• Considering the project form as being part of the site coordination elements by using the appropriate materials and exploiting the solid parts of the form to add the hardscape element to the site
• Creating approaches to the main entrances to the building from the main entrances and streets of the site, using appropriate materials, and linking them with the movement paths of the garden




black box theater is a simple performance space, The simplicity of the space allows it to be used to create a variety of configurations of stage and audience interaction


Academic - Architectural Design - 3rd grade
“Cinema is an order made out of the chaos of life.” According to this conclusion, I tried to implement 3 main ideas: “Chaos and order, motion, and sequence of events.” In order to achieve these ideas, the museum scenario was defined from a social and political perspective and the extent of its connection and impact on the film industry in Egypt, in addition to creating a combination that embodies the interconnectedness between the state of order and chaos in a geometric way which is the effect of “The Fall of Dominos”.
PHASE 01 Abstraction

PHASE 03 Motion, Order and Chaos

New Administrative Capital, Egypt 2021

PHASE 02 Repetition

PHASE 04 Observation
PHASE 05 Pattern

PHASE 06 Circulation





Egyptian cinema, often called Hollywood on the Nile, is a thriving industry deeply rooted in the heart of Cairo. This fascinating domain results from over a century of creative endeavors, producing thousands of films reflecting the country’s rich culture and history.
Egypt’s cinematic journey can be traced back to 1896, with the production of limited silent films. By 1927, the industry had taken a significant turn with the release of the first-ever full-length feature film, Laila. The advent of sound in films further bolstered Cairo’s film industry, turning it into a regional powerhouse.
Due to the varying eras and developments in the Egyptian film industry, the eras were divided into 9 periods, with each period representing a zone and a strip of the project’s form in the museum for the simulation process as follows:
1. Lumière brothers “December 28, 1895”
2. First Egyptian movie “يليل” “November 16, 1927”
3. Sound film “March 12, 1930”
4. World War II “1939 - 1945”
5. Palestine war “1947–1949”
6. Egyptian Revolution of 1952 “July 23, 1952”
7. Six-Day War “Jun 5, 1967”
8. 6th October war “October 6, 1973”
9. El-Sadat Assassination “October 6, 1981”






















Academic - Architectural Design - 2nd grade
Cairo, Egypt 2020
Describing unity as the way in which the different elements of a composition interact with one another. A unified layout is one that works as a whole rather than being identified as separate pieces, By using repetition with design elements such as components and symbolic colors, the user becomes better at identifying what they mean each time they see them, thus reducing cognitive load. Considering creating visually consistent design elements as elements are related to one another and utilizing the views from the site helps to define and shape the building in levels of importance and priority.
Beyond functionality, creating an environmental design strategy in accord with the climate of Egypt. One of this feature includes the wooden vertical fins of the facade that has become a multi-mediator between the exterior and the interior. In calculating the sun angle and its cycle, the dimensions of each fins was calibrated to resolve the orientation of the sun’s ray in all directions. More than a shading device it also acts as a passageway for natural ventilation, and a privacy filter from the neighbouring residences.







According to the egyptian building code 2008, Law 97 and 100 state:



A walkway has been established to separate the residential and commercial sectors, providing privacy and reducing overcrowding
VOL. 02 - 2017-2024

CONTACT
TEL Behance Linkedin Intsagram Mail
+20 127 553 5614 linkedin.com/in/attabooyy/ behance.net/attabooyy @attabooyy_ mohamedattabooyy99@gmail.com