

![]()


purpose built for dignified living
This information has been supplied by the vendor or the vendor’s agents Accordingly A T Realty Limited Licensed (REAA 2008) is merely passing over the information as supplied to us by the vendor or the vendor’s agents. We cannot guarantee it’s accuracy and reliability as we have not checked, audited, or reviewed the information and all intending purchasers are advised to conduct their own due diligence investigation into the same. To the maximum extent permitted by law A T Realty Limited Licensed (REAA 2008) do not accept any responsibility to any person for the accuracy of the information herein

Rental
Discover a place where thoughtful design meets real-life needs
Toitoi Living is a community of five brand-new, architecturally designed homes in the heart of Papatoetoe, created for people who value independence, accessibility and quality.
Whether you’re living with a disability, supporting a loved one, or planning for the future - and not quite ready for a retirement village, Toitoi Living is the perfect next step. It offers a futureproof lifestyle without compromising on style or comfort.










“The development was inspired by the shortage of independent accessible living options in the market
Most residential properties do not adequately cater to individuals with mobility challenges or those seeking future-proof homes
This project aimed to provide highquality, accessible housing that enables residents to live comfortably and independently, regardless of age or ability.”
Arjun S Director of Ramwall



Every Toitoi Living home is proudly Lifemark® 5-Star Accessible+ Certified - New Zealand’s highest standard in Universal Design.
This certification means our homes are accessible, adaptable, safe, and future-proofed, offering comfort and independence for people with varying mobility needs
It’s a top-tier rating for homes designed for individuals with physical disabilities or mobility impairments
Higher manoeuvrability and accessibility are the focus These homes exceed Building Code requirements by focusing on:
Usability:
Homes are designed to be user-friendly for people of all abilities Spaces have been built with wider doorways and hallways, allowing easy passage for wheelchairs and walkers
Adaptability:
Spaces can be easily modified to accommodate changing needs over time Lowering the lifetime cost by avoiding major retrofitting
Accessibility:
Step-free access and a thoughtful flush, one-level entry from the front door No stairs are needed to access essential living areas Each with a dedicated mobility car park.
Safety:
Design elements aim to reduce the risk of injuries from slips and falls with non-slip bathroom areas and grab rails
Lifetime Value:
Homes are future-proofed and benefit from higher resale value due to their broad market appeal

LOT 1 - 5, 22 Great South Road, Papatoetoe, Auckland

Life at Toitoi is about more than convenience - it's about confidence Every detail in these homes has been considered and planned to make independent living easy
Take a look at some of our favourite features


Toitoi homes are completely stair-free - inside and out Each property offers level, flush entry, with no steps required to access any part of the home Every space is designed to be easily reached on a single, seamless level

Bathrooms are fully accessible with level-entry showers with reinforced walls for future grab rails
Each bathroom features a mounted shower seat, non-slip flooring and plenty of space to manoeuvre
Fixtures are placed thoughtfully for independence now and adaptability later

All internal doors are a minimum of 810mm wide, and hallways are no less than 1050mm, giving you space to move, turn, and live comfortablywithout compromise

Bright, calming spaces complimented by 2 7m high stud ceilings allow an abundance of natural light
Open-plan living, smart storage, and high-end materials bring both function and flair to every room
LED lighting is used throughout the home and heat pumps ensure warmth year round

From low-maintenance landscaping with easy-care plants to high-quality finishes that stand the test of time
Access made easy from the car park with textured pathways suitable for wheelchair access with added outdoor sensor lights

Small details Big impact Every fixture is selected to make life simpler and safer
Keyless entry for hassle-free access
Dual light switches in bedrooms
Raised power points
Lever-style handles for easier grip
Bathroom grab rails
Elevated kickboards for improved access
Outdoor heat pump units lifted for better mobility
$840,000 $850,000 $850,000 $840,000

Let’s Talk Trade-In Options
At Toitoi Living, we understand that buying your next home isn’t always a straightforward process - especially if you need to sell your current property first
To make your move easier, we offer a trade-in option that allows you to secure your new home without the delays, and stress of a traditional sale
Here’s how it works:
We may purchase your existing home at an agreed value, providing a prompt settlement and possession date This allows you to move into your new home sooner, without the uncertainty of selling on the open market
For full transparency, once your property is acquired, we may choose to sell, retain, or develop it - depending on the opportunity and circumstances
If you’d like to explore this option, please get in touch with Denise for more details and a tailored discussion


Denise Wong 027 249 4148
denise wong@raywhite com


Every detail at Toitoi Living has been thoughtfully considered to balance style, accessibility, and practicality. These homes are built to a high standard with quality materials, smart layouts, and features that support comfortable, independent living now
Kitchen
Dishwasher - Freestanding (Parmco) 60cm - Economy 12 Place Settings (Stainless Steel) or
Slimline Dishwasher (Parmco) 45cm - Economy Plus 10 Place Settings (Stainless Steel)
Electric Cooktop - Ceramic (Bosch) 60cm, 4 Zones, Knob Controlled
Oven Built-in (Bosch) Series 2 - 66L, 5 Functions, Stainless Steel
Rangehood Polo Powerpack - 52cm, 700m3/h, Stainless Steel, Push Button Control
Heat Pump (with remote) Haier Pinnacle 5kW
Granite Benchtop and ample kitchen storage with lever-style handles
Built-in Fridge Cabinetry - standard 700mm
Bathroom
Safety Grab Rail with Holder - LeVivi T-Shaped - Stainless Steel
Slide Shower Hose, Refresh Multifunction Shower Head, Female Shower Elbow (LeVivi)
Vanity (LeVivi) A/P - Chrome
Wall Basin with Fixings Toto Sintra 500mm
Wall Toilet Suite (LeVivi) York Care - 4 5L/3L Dual Flush, Soft Close Seat
Electric Water Heater (Rheem) 180L - 1711mm (H) x 488mm (W), 3kW (located inside)
Towel Rail - Chrome Skylight
Bathroom layout provides a 1500mm turning circle
Floor Coverings
Bedrooms - Carpet
Living Areas - Vinyl - Jacobsen Traffic 200 - Charged by LM (KZDL)
Bathroom - Primo Safe T - Primo Light Warm Grey 0793
Construction
Brick construction, concrete slab floor, colour steel roof, and double-glazed aluminium windows
Hallways are a minimum of 1050mm wide, and internal door widths are at least 810mm
Built to the latest building specifications, CCC was issued in March 2025
Extra Features
LED light fittings
Smoke alarm - Orca 10-Year wireless interlink
Fibre installed
Entry-level alarm/access control - Arrowhead EC-Kit KP W NC
Outdoor sensor lights
Keyless entry (enabled with thumbprint) locks and closes automatically
Light switches are at accessible heights - 1m
Power points are at accessible heights - 50mm
Additional Add Ons
Provisions have been made for additional ‘body’ safety sensors to be installed upon request
These sensors detect falls in the home for those living with disabilities







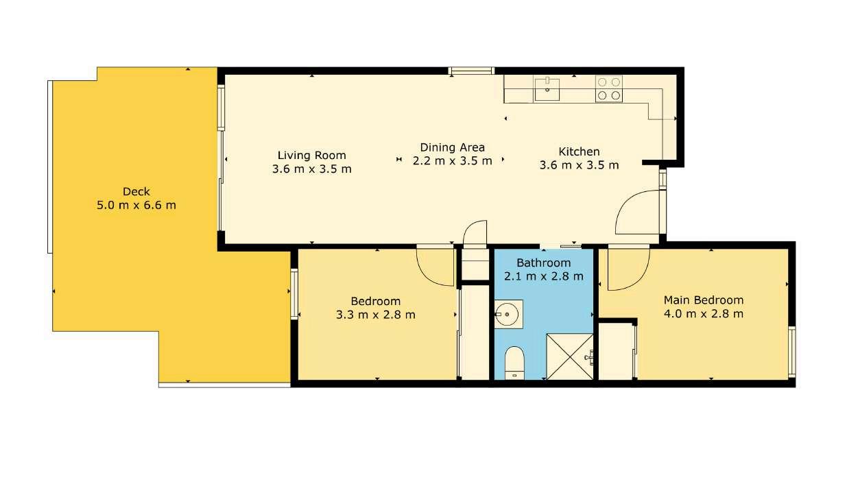
Below are the floor plans for the home layouts available in the Toitoi development

2 double bedrooms

1 double & 1 single bedroom


Please note this property has been digitally staged





We have examined recent evidence of lettings in the locality and having regard to current listings for property in both the immediate and wider locality, including discussions with rental agents, and referencing the most recent Tenancy Services statistical data for the period of 01 April 2024 to 30 September 2024
Tenancy Services statistical data shows that two bedroom dwellings in Papatoetoe fall within the rental ranges of: $550 (Lower Quartile) - $595 (Median Rent) - $630 (Upper Quartike) per week
We consider the disability access would add a premium
We conclude that an appropriate market rental for the subject two bedroom dwellings falls within a range of $650 to $750 per week
Based upon the above rental evidence we now set down our rental assessment as follows:





Clients can’t stop singing Denise Wong’s praises –“enthusiastic,” “supportive,” “hard-working,” “professional ” It’s no surprise she’s one of Ray White Manukau’s award-winning agents
What sets Denise apart?
It’s her energy, attention to detail, and a tailored approach to every campaign From organising marketing calendars to sourcing missing council consents, she leaves no stone unturned Her honest, upfront style builds instant trust – and results Many of her homes sell after the first open home
“Properties don’t sell themselves It’s about preparation, strategy, and getting every buyer through that door ”
With a background in marketing, both in NZ and abroad, real estate was a natural fit Denise still calls South Auckland home – it’s where she lives, works, and connects deeply with the community
Backed by the power of Ray White’s #1 South Auckland office, Denise delivers standout campaigns with smart media choices and clear advice on the best method of sale She's known for achieving results where others fall short
Whether it’s walking first-time buyers through every step or exceeding expectations for seasoned sellers –Denise does it with integrity, hustle, and heart
T: 027 249 4148
E: denise wong@raywhite com