Skip to main content

Arch Portfolio | Irina Gardukevich

Page 1

01. 2022

ДОСУГОВЫЙ ЦЕНТР

СТУДЕНЧЕСКИЙ

ИДЕЯ:

Главная идея заключается в том, чтобы вписать

объем в существующий ландшафт.

Участок проектирования находится на берегу

водохранилища, а также перекрывает главную

пешеходную тропу парка.

Поэтому я предлагагаю создать навесающий над тропой объем + благоустроить спуск к воде.

пешеходная тропа

объем

КОНЦЕПЦИЯ:

Досуговый центр «СУПАКОЙ» поможет

выплеснуть негативные эмоции с помощью арт-терапии; успокоить

нервы медитацией и снять напряжение йогой и массажем.

Архитектура отображает

цикличность

жизни и неразрывную связь с природой.

А минималистичный фасад служит

динамичным фоном для ландшафта

ситуация

генплан

ПРОЕКТ А 1 2 3 4 ул. ФранцискаСкорыны Изм. Кол.уч. Лист №док. Подп. Дата Инв. №подл. Подп. идата Взам. инв. №
благоустройство
А В 2 3 4 5 7 8 1 Г Б 6 Д 5 6000 9000 9000 9000 6000 9000 6000 6000 6000 6000 6000 45000 33000 14 11 10 8 7 15 16 17 18 19 13 3 4 6 12 9 2 1 33 21 22 23 24 26 32 31 30 29 28 25 27 20 35 34 Изм. Кол.уч. Лист №док. Подп. Дата Лист Инв. №подл. Подп. идата Взам. инв. № ФорматА3К Номерпроекта- 2 Подп. идата Взам. инв. № Спецификация помещений Номер Н Наименование Площадь 1 В Вестибюль 97,82 2 В Выставочная сцена 85,73 3 А Арт-студия 169,45 4 Т Творческая мастерская 36,65 5 К Кладовая студии 23,99 6 Т Творческая мастерская 39,04 7 К Кабинет директора 31,57 8 Б Бухгалтерия 13,76 9 К Кабинет худ руководителя 13,21 10 К Кабинет техника 16,91 11 К Кладовая 12,60 12 Р Ресепшн 12,79 13 К Кафе 135,72 14 П Производственная зона 75,43 15 К Комната персонала 23,38 16 К Кладовая сухого хранения 17,66 17 О Охлаждаемая кладовая 21,17 18 К Кабинет 12,23 19 З Загрузочная 14,47 20 И Информационная 82,96 21 Р Раздевалка 14,57 22 Р Раздевалка 13,86 23 П Помещение гвоздестояния 40,34 24 З Зал уединенной медитации 84,38 25 З Зал групповой медитации 82,99 26 З Зал йоги 136,80 27 И Информационная 80,13 28 К Кабинет массажа 19,42 29 К Кабинет массажа 11,09 30 К Кабинет массажа 10,99 31 Р Раздевалка 16,15 32 Р Раздевалка 17,45 33 К Комната персонала 30,35 34 И Инвентарная 13,80 35 Т Терраса 96,55 36 А Артистическая 13,65 37 А Артистическая 14,17 38 С Светоаппаратная 13,29 39 С Светопроекционная 12,42 40 К Кинопроекторная 37,59 41 З Звкуоаппаратная 13,47 42 У Универсальный зал 492,75 43 Т Тиристорная 16,71 44 С Склад 11,52 45 Г Гардероб 43,40 46 Т Тех помещение 5,81 47 Х Холл 252,44 48 К Кассы 10,41 50 Т Тиристорная 17,66 51 С Склады 11,52
ПЛАНИРОВКИ
2 ЭТАЖ 1 ЭТАЖ
48 36 37 38 39 40 41 42 43 44 45 46 47 6000 9000 9000 18000 4500 6000 6000 6000 3000 6000 6000 -1 ЭТАЖ

ВИЗУАЛИЗАЦИЯ

РАЗРЕЗ Холл Зал медитации
Зал арт-терапии Зал йоги
02. 2021

СТУДЕНЧЕСКИЙ ПРОЕКТ

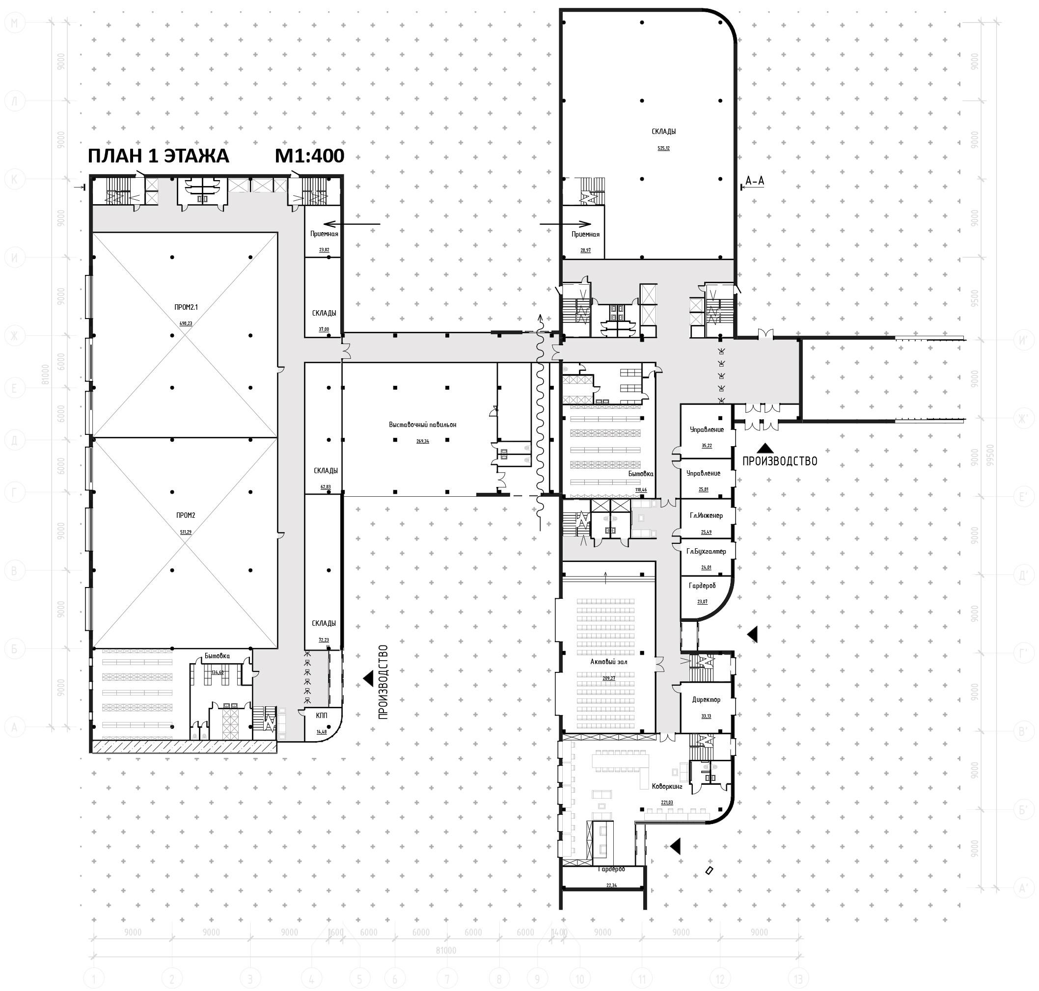
ПРОМЫШЛЕННЫЙ ОТЕЛЬ
ПАРКОВКА ДЛЯГРУЗОВЫХ АВТО ПАРКОВКА ДЛЯРАБОТНИКОВ ПАРКОВКА ДЛЯРАБОТНИКОВ ПАРКОВКА ДЛЯКЛИЕНТОВ ЗОНА ЗАГРУЗКИ Изм. Кол.уч. Лист №док. Подп. Дата Лист Стадия Листов №подл. Подп. идата Взам. инв. № НомерпроектаБезимени Ситуация Формообразование Генплан
ПЛАНИРОВКИ 508,52 ПРОМ5 314,33 ПРОМ6 307,89 ПРОМ6.1 153,27 СКЛАДЫ 112,63 СКЛАДЫ 100,56 СКЛАДЫ 2 Этаж Типовой этаж
Зеленая кровля РАЗРЕЗ Объемная модель

ВИЗУАЛИЗАЦИИ

Ступенчатая форма позволяет создавать расширенные модули для производства.
Подсветка здания - это не только архитектурный прием,но и способ улучушить безопасность района в темнео время суток.

ШКОЛА

СТУДЕНЧЕСКИЙ ПРОЕКТ 2021

ИДЕЯ:

Идея моего проекта - создать интересное и нестандартное пространство для учащихся, используя криволинейные формы в плане.

Особенность проектирования школ - наличие строгих норм по инсоляции и функциональному разделению классов.

Чтобы выполнить эти требования я создала 4-х лучевую изогнутую форму.

03.
прямые лучи рассеянные лучи
Изм. Кол.уч. Лист №док. РАЗРЕЗ УЧЕБНОГО КОРПУСА
Г1 А1 19 20 32 31 30 29 28 27 26 25 24 23 22 А А 18 17 16 15 1 2 3 4 14 13 10 12 11 6 7 8 9 5 21 В В Е Д Ж Г В1 Б1 Б 33 8 0 0 0 00 6000 3 0 00 1800 00 9000 18 00 0 0 9 00 3000 6000 60 24000 6000 6000 3000 9000 90 Изм. Кол.уч. Инв. №подл. Подп. идата Взам. инв. № 1 2 3 4 5 6 7 8 9 10 11 12 13 14 15 16 17 18 20 21 22 23 24 25 26 27 28 29 30 31 32 33 34 35 36 37 38 39 40 41 42 43 44 45 46 47 48 49 50 51 52 53 54 55 56 58 59 60 61 62 63 64 65 66 67 68 69 70 71 72 73 74 75 76 77 78 79 80 81 82 83 84 85 86 87 88 89 90 91 92 93 94 95 100 101 102 103 104 105 106 107 108 109 110 111 112 113
40 44 48 50 51 53 54 60 69 70 79 74 102 105 Согласовано Инв. №подл. Подп. идата Взам. инв. № Согласовано
ПЛАНИРОВКИ 1 ЭТАЖ
2 ЭТАЖ 4 ЭТАЖ 3 ЭТАЖ
Согласовано №подл. Подп. идата Взам. инв. № Согласовано РАЗРЕЗ актовый зал + столовая
Инв. №подл. Подп. идата Взам. инв. № КИНОЗОНА в холле

Turn static files into dynamic content formats.

Create a flipbook