391 Acadian Ct : e-Magazine

Page 1

Charm S O U T H E R N 391 ACADIAN CT BILOXI, MS 39531 Welcome WB COLDWELL BANKER ALFONSO REALTY ATHOMEWITHWENDY COM of WendyBoyd OFFERED AT $315,000 This southern beauty rests in the curve of the cul-desac adorned with beautiful oak trees and other Acadian style homes. Completely refreshed and updated, you'll feel right at home. With 4 spacious bedrooms, a huge bonus room, & outdoor living area, there's room for everyone to come over! HOME
WB COLDWELL BANKER ALFONSO REALTY ATHOMEWITHWENDY COM of WendyBoyd Retreat from the hustle & bustle, but still close to everything. Oversized 2 car garage and workshop gives plenty of storage! Conveniently located! Just 2 miles to the beach or Casinos, 2-1/2 miles to Keesler AFB, 2 miles to the MS Coast Coliseum & only 1 hr to Mobile. Take a Look Fall in Love Make an Offer! ABOUT THE PROPERTY FeaturesHOME 4 Bedrooms 2.5 Bathrooms Traditional Layout Laundry/Mud Room 2,589+/- Sq Ft Walk-in Closets Bonus Room Custom Shower OTHER HOME DETAILS 2 Car Garage Workshop Wood Fireplace New Appliances
COLDWELL BANKER ALFONSO REALTY ATHOMEWITHWENDY COM of WendyBoyd PHOTOS Click Here for Listing Information
WB More

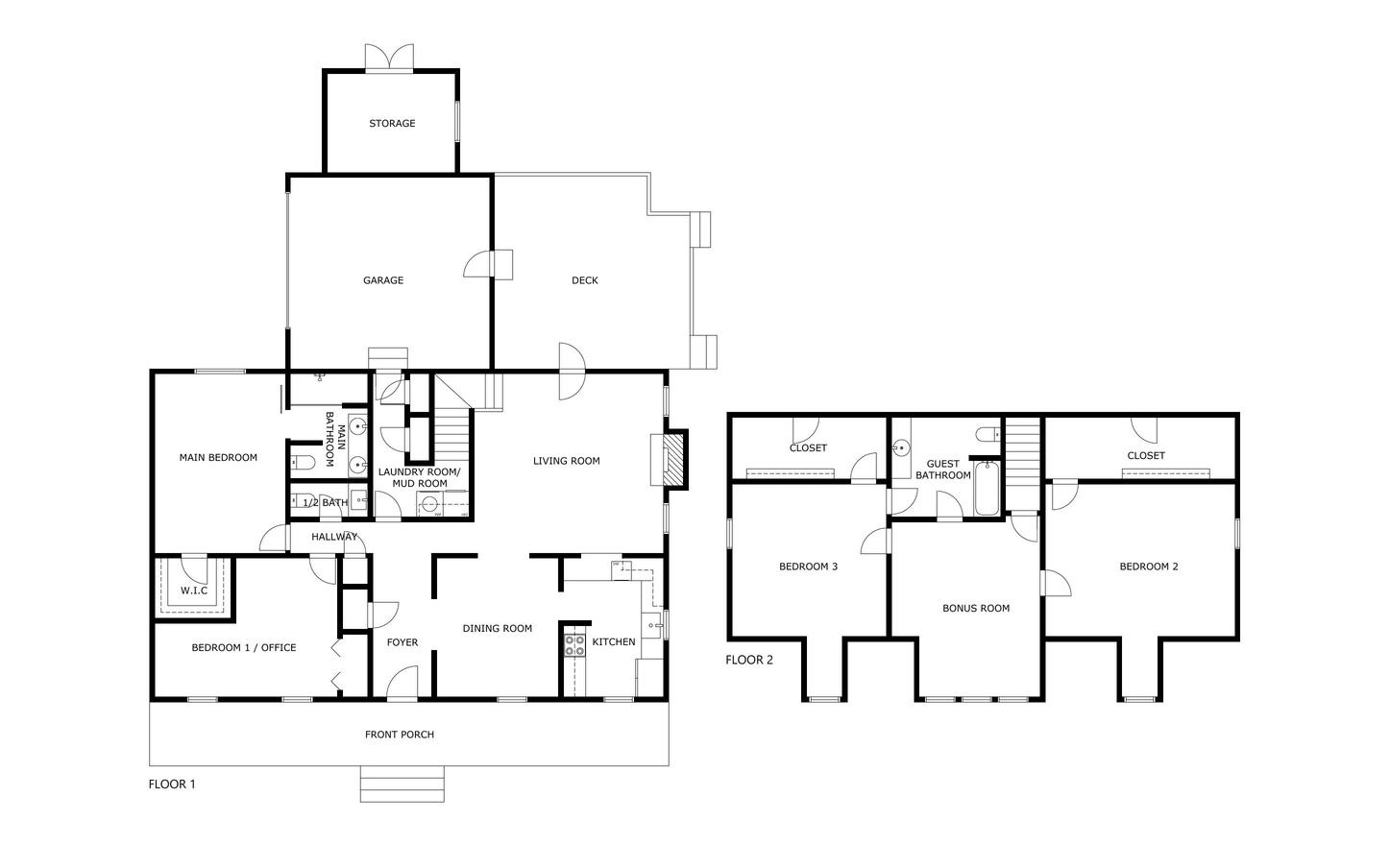
FloorPLAN

Inside: 4 Very Spacious Bedrooms, 2 1/2 Bathrooms, Primary and 1 bedroom downstairs, Traditional Layout, Separate Dining Room, Huge Bonus Den Upstairs, Large Closets

Outside: Grand Front porch, Large 2 Car Garage, Storage/Workshop, Back Deck, Privacy Fenced Backyard

WB COLDWELL BANKER ALFONSO REALTY ATHOMEWITHWENDY COM of WendyBoyd

3-D WALK-THROUGH VIDEO

Click on the image or scan the QR Code above to virtually walk through this property. It's the next best thing to being there in person.

WB COLDWELL BANKER ALFONSO REALTY ATHOMEWITHWENDY COM of
WendyBoyd

Driving

DIRECTIONS

$330,000

Directions:

Popp's Ferry Road to Atkinson Rd. - Right onto Acadian Ct. -

Home is on right at end of cul-de-sac.

WB COLDWELL BANKER ALFONSO REALTY ATHOMEWITHWENDY COM of WendyBoyd

PropertyDIMENSIONS

Dimensions / Acreage / About the lot: 1 Lot (#3) measuring approximately 80' x 129'

WB COLDWELL BANKER ALFONSO REALTY ATHOMEWITHWENDY COM of WendyBoyd

Proximity Features:

@ 2 miles to the Casinos

@ 2 miles to Biloxi & beaches

@ 2 1/2 miles to Keesler AFB

Convenient to I-10 Interstate & Hwy 90

Close to Biloxi River, Big

Lake, Mullet Lake

Near Shopping &

Entertainment

1 Hr to Mobile

WB COLDWELL BANKER ALFONSO REALTY ATHOMEWITHWENDY COM of WendyBoyd
LocationLOCATION

VideoTOUR

Click on the image above or scan the QR Code to take a video tour of this property.

of WendyBoyd

WB COLDWELL BANKER ALFONSO REALTY ATHOMEWITHWENDY COM

WHAT TO DO & WHERE TO GO

ExploretheAREA AREA

There's so much to do here in Biloxi. Whether it's going out to the islands, fishing, attending a concert, gaming at the casinos, golfing, relaxing on the beach, or go-karting, there's no shortage of something fun to do! Delicious seafood is easy to find and watching our gorgeous sunsets over the water while at the beach or on the Biloxi Schooner is something you don't want to miss.

ENDY OYD COLDWELL BANKER ALFONSO REALTY WB of
W
ATHOMEWITHWENDY COM
B

AreaAMENITIES

MS Coast Coliseum & Convention Center

Overlooking the Gulf of Mexico, the coliseum is located in the heart of the MS Gulf Coast and host to incredible concerts, rodeos, hockey, holiday events, & Mardi Gras balls, to name a few.

Biloxi Schooners

Set sail for a magnificent sunset cruise. Perfect outing for weddings, birthdays, or parties and are available for charter or day trips.

Ohr-O'Keefe Museum

This museum and art gallery celebrates unique, bold, and intriguing art by various artists, and was founded to promote and preserve the unique legacy of Biloxi's master potter, George E. Ohr.

WB COLDWELL BANKER ALFONSO REALTY ATHOMEWITHWENDY COM of WendyBoyd

AreaAMENITIES

Public Boat Launches

Regardless of where you're wanting to get to by boat, there are numerous public boat launches scattered throughout the area to make getting there convenient.

Ship Island Excursions

Take the ferry to Ship Island, one of the 4 barrier islands, for the day! Explore Fort Massachusetts, a brick structure used during the Civil War. You'll be sure to spot dolphins swimming along during the boat ride!

Biloxi Beach

The beaches in Biloxi are beautiful! Enjoy parasailing, paddle boating, jet skiing, or just soaking up the sun. Amazing restaurants are located along the beach too!

WB COLDWELL BANKER ALFONSO REALTY ATHOMEWITHWENDY COM of WendyBoyd

AreaAMENITIES

Family Fun Activities

Big Play Family Fun Center, Finish Line

Performance Kart, or parasailing, there are lots of fun things to do with the family or as a group.

Great Food / Restaurants

From Po-Boys to fine dining to a meal with a view on the beach, we have you covered. If you're wanting an authentic creole seafood dish, a steak cooked to perfection, healthy cuisine, or just a burger and a beer - you're sure to find just what you want.

Casinos / Entertainment

There's always something to do around here! We offer gaming, live music, festivals, clubs, & events. If you want lively entertainment, a peaceful moment at the beach, or a tranquil spa session, you're in luck!

WB COLDWELL BANKER ALFONSO REALTY ATHOMEWITHWENDY COM of WendyBoyd
WB COLDWELL BANKER ALFONSO REALTY ATHOMEWITHWENDY COM of WendyBoyd MS Coastal Living - There's nothing like it! Live Easy ~ Live Well ~ Live Here! AtHomewithWendy.com LifestyleCOASTAL COASTAL
WB WD HOME BUYING TIMELINE HomeBuyer'sGUIDE GUIDE ContactYourLocal CoastalREALTOR® Discussprocess •Determine wants/needs ContactMortgageBroker •GetPre-Approved •Determinepricerange Providepaperwork/ documents Searchfor/Previewhomes •MakeOffer/Negotiate Finaizeterms/UNDER CONTRACT •DeliverEarnestMoney Appraisal/Inspections LenderordersAppraisal •HomeInspection •TermiteInspection Inspections/Insurance •ScheduleClosingAgent •OrderTitleSearch GetInsuranceQuotes HomeInspection RepairAddendum •Preparerequestof repairs Negotiate FinalizeFinancing Providefinal documentation •FinalApprovalfrom Underwriting CleartoClose Closing •FinalWalkThrough(Day Beforeordayof) MeetatAttorneysofficeto signdocuments Funding HOME IS YOURS!! Receive Keys Re-Key your home COLDWELLBANKERALFONSOREALTY ATHOMEWITHWENDYCOM of WendyBoyd COLDWELL BANKER ALFONSO REALTY ATHOMEWITHWENDY COM of WendyBoyd SCAN to view The Start to Finish Guide to Buying a Home

BUYING OR SELLING A HOME?

LET'S WORK TOGETHER!

Buying or selling a home can be a stressful process if you don't have the right real estate agent. With 10+ years of experience, you can rely on me to get you the best possible result.

Curious about the value of your home?

SCAN HERE

SCAN for My Marketing Strategy and Why My Listings Actually Sell

WB
BANKER ALFONSO
ATHOMEWITHWENDY.COM of
Boyd
COLDWELL
REALTY
Wendy

Scan forthedigital copyofthis binder.

Turn static files into dynamic content formats.

Create a flipbook
Issuu converts static files into: digital portfolios, online yearbooks, online catalogs, digital photo albums and more. Sign up and create your flipbook.