Greenship Analyzing in Campus 3 of UIN Maliki Malang

Page 1

GREENSHIP ANALYZING IN CAMPUS 3 OF UIN MALANG RAHMAT IRFAN M. 200606110030 ATANA ABDAN Y. 200606110083 REYHAN JUAN A. 200606110085
PROJECT BRIEF LUAS BANGUNAN MINIMAL 10% RUANG TERBUKA HIJAU 50% KOEFISIEN LANTAI BANGUNAN LEBIH DARI 3 (>3) SOFTSCAPE 40% FASILITAS PARKIR SEPEDA MATERIAL UNTUK MENGURANGI HEAT ISLAND EFFECT GREEN ROOF 50% DARI ATAP YANG TIDAK DIGUNAKAN (ME) BANGUNAN 6 IS FEMALE DORMITORY BANGUNAN 7 IS ISLAMIC TUTORIAL CENTRE BUILDING 6 & 7 GREENSHIP ANALYZING NB V 1.2 APPROPRIATE SITE DEVELOPMENT (ASD) ENERGY EFFICIENCY AND CONSERVATION (EEC) OTTV MENGHITUNG ACH DAYLIGHT WINDROSE SUNPATH WATER CONSERVATION (WAC) EFISIENSI PENGGUNAAN AIR LANSKAP INDOOR HEALTH AND COMFORT (IHC) KENYAMANAN THERMAL BUILDING ENVIRONMENT MANAGEMENT (BEM) PENGELOLAAN DAN PENGELOMPOKKAN SAMPAH Sustainable Architecture CONTENT Sustainable Architecture MATERIAL RESOURCE AND CYCLE (MRC) PENGGUNAAN MATERIAL RAMAH LINGKUNGAN REFRIGERAN TANPA ODP
Appropriate Site Development A S D

ASD (Appropriate Site Development)

ASD BENCHMARKS EKSISTING RESULT

P (Area Dasar Hijau)

RTH min 50% Luas Konstruksi Baru min 10%

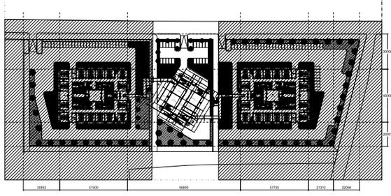
area terbuka hijau adalah 23769.3 m2 dari 27283.2 m2 = 87%

Luas konstruksi baru 3514,5 m2 = 13%

1 (Pemilihan Tapak) KLB>3 di Tapak memiliki asrama masing masing memiliki 4 lantai jadi KLB>3

2 (Area Softscape)

Luas area min 40% area Softscape adalah 12000 m2 = 43%

Terpenuhi

Terpenuhi Terpenuhi

3 (Aksesibilitas Komunitas)

Fasilitas umum seperti parkiran umum agar mempermudah masyarakat dalam menjalankan kegiatan sehari-hari

Aplikasi penggunaan Green Roof yang tidak digunakan ME

tidak adanya parkiran sepeda Tidak Terpenuhi

tidak ada shuttle bus atau fasilitas transportasi umum lainnya

4 (Iklim Mikro)

Vegetasi lanskap pada sirkulasi utama pejalan kaki menunjukkan adanya pelindung terhadap angin kencang

Tidak Terpenuhi

Tidak ada aplikasi Green Roof Tidak Terpenuhi

sudah ada beberapa vegetasi pada sekitar trotoar

Terpenuhi

Sustainable Architecture

Penerapan desain

Area = 3514,5 m2 Area = 23769.3 m2

Area = 12000 m2

Area = 27283,8 m2

Fasilitas Penggunaan Sepeda

Rekomendasi Desain Dibangun beberapa fasilitas parkiran sepeda untuk mendorong penggunaan sepeda bagi user

Sustainable Architecture
Sustainable Architecture

Fasilitas Transportasi Umum

Rekomendasi Desain

Pemilihan Tapak yang sudah memiliki fasilitas umum untuk mendorong penggunaan transportasi umum halte bus untuk mengurangi penggunaan kendaraan pribadi.

Iklim Mikro

Rekomendasi Desain

Pengaplikasian penggunaan Greenroof di atap yang tidak digunakan MEP, memiliki fungsi untuk pelindung dari panas akibat radiasi sinar matahari dan terpaan angin kencang serta penggunaan material yang memiliki daya reflektifitas panas matahari yang rendah

Sustainable Architecture Sustainable Architecture

Efficiency and

Energy
Conservation E E C

EEC PRINSIP EKSISTING RESULT

P2 (Perhitungan OTTV)

Analisa OTTV sesuai dengan standar OTTV : kurang lebih sama dengan 45

1. 2

Total OTTV pada (6) FEMALE DORMITORY yaitu 10,02 Watt/m2

Total OTTV pada ISLAMIC TUTORIAL CENTRE yaitu 10,49 Watt/m2

Terpenuhi

DAYLIGHT

Penggunaan pencahaayaan alami yang optimal

pencahayaan pada dorm ruangan cukup sesuai dengan standar

Terpenuhi

VENTILASI

Penggunaan pencahayaan alami pada area publik ACH yang sesuai dengan standar Tidak memberi AC pada WC, tangga, koridor, lobi lift

memiliki Ach 4,375 sementara standarnya adalah 6

Tidak Terpenuhi

WINDROSE

Peletakkan jendela untuk angin masuk agar masuk keluarnya udara tetap ideal dan tersebar di seluruh ruangan

kurangnya analisa pada peletakkan jendela

Tidak Terpenuhi

EEC (Energy Efficiency and Conservation)
Sustainable Architecture
Sustainable Architecture

Air Circulation

Dormitory

Standar ACH

Standar ACH pada kamar tidur yaitu 6 sementara ruangan asrama hanya memiliki skor 4,375 Rekomendasi desain Untuk meningkatkan skor ACH (N) maka perlu dilakukan pembesaran pada inlet (jendele masuknya udara)

Eksisting

22 15 N = 4,375 N = 6,25

Islamic Tutorial Centre

Standar ACH pada ruang pembelajaran adalah 3-4 sementara ruangan asrama hanya memiliki skor 7,25 Rekomendasi desain Pengurangan jumlah jendela di bagian dalam ruangan atau mengganti dengan jendela mati.

Sustainable Architecture Sustainable Architecture

Penerapan desain

Standar lux pada kamar tidur yaitu 120 - 250 lux
Daylight Asrama Putri Standar Lux
dengan standar lux yaitu 167 lux
Sesuai dengan standar lux yaitu 142 lux. Sustainable Architecture Sustainable Architecture
Dorm 1 Sesuai
Dorm 2

Daylight Pusat Pembelajaran Agama

Standar Lux

Jam 10 Pagi

Standar lux pada Ruang Pembelajaran adalah 250 lux
Jam 8 Pagi Sustainable Architecture Sustainable Architecture

Daylight Pusat Pembelajaran Agama

Lux

Standar
Standar lux pada Ruang Pembelajaran adalah 250 lux Jam 2 Siang Sustainable Architecture Sustainable Architecture Jam 4 Sore

Daylight Pusat Pembelajaran Agama

Rekomendasi

Dikarenakan jumlah lux pada ruang pembelajaran dibawah standar yang ditetapkan (250 lux) maka kami merekomendasikan :

Vertical Blinds Window

Dengan total luas ruang yang luas, maka sangat dibutuhkan pencahayaan alami secara maksimal seperti jenis jendela ini yang memiliki panjang rata-rata 2m namun tetap memiliki gorden penutup jika dirasa teralu panas bagi ruang

Warna Dinding dan Furniture Cerah

Pemilihan warna pada funiture dan juga dinding juga sangat mempengaruhi pencahayaan pada ruang Dengan warna yang terang, cahaya yang terkena akan mudah memantul ke ruang sehingga ruangan akan terasa lebih terang

Sustainable Architecture Sustainable Architecture

Windrose

mayoritas udara datang dari arah tenggara ke arah barat laut dengan kecepatan 3,6-5,7 (indikasi warna merah)

Sustainable Architecture Sustainable Architecture
Female Dormatory (06) Islamic Tutorial Centre (07)

a C

Water Cocervation w

WAC (Water Cocervation)

Meteran Air

Meteran air digital yang diletakkan pada daerah yang dekat dengan toilet untuk memantau penggunaan air.

Bangunan 6

Bangunan 7

Architecture Sustainability
Sustainable
Sustainable
Architecture
Architecture

Daur Ulang Air Pengolahan Grey Water menjadi air bersih

Penampungan Air Hujan

Membuat beberapa tempat penampungan air hujan di beberapa titik

Architecture Sustainability Sustainable Architecture Sustainable Architecture

Fitur Air

Menggunakan teknologi keran air otomatis pada bak air. Jika bak air kosong maka air akan otomatis menyala, dan jika penuh akan mati sendiri.

Menggunakan keran sensor pada wastafel untuk menghindari pengguna yang tidak menutup keran air dengan benar.

Architecture Sustainability Sustainable Architecture Sustainable Architecture
M R C
Material Resources and Cycle

MRC (Material Resource and Cycle)

Refrigeran ber-CFC dan Halon sebagai APAR

Ilmuwan menemukan bahwa penggunaan bahan pendingin buatan berbahan chloroflourcarbon dapat merusak lapisan ozon bumi. Ketika terlepas ke atmosfer, freon (CFC) akan berubah menjadi Karbondioksida yang akan menambah kepadatan gas rumah kaca di atmosfer.

Dalam penggunaannyapun para pembaca perlu berhati-hati dan memperhatikan ventilasi udara. Karena jika ventilasi udara tidak baik, halon bisa menyebabkan penggunanya pingsan dan yang terparah bisa menyebabkan kematian.

Kayu Bersertifikat

Material kayu yang memiliki sertifikat legal berarti terbebas dari perdagangan kayu ilegal yang berpotensi pengambilannya melalui proses eksploiasi alam

Architecture Sustainability Sustainable Architecture Sustainable Architecture

Recycle material bekas

Penggunaan material bekas untuk mengurangi sampah hasil konstruksi dan meningkatkan efisiensi penggunaan material.

Material Regional

Penggunaan material regional untuk mengurangi carbon foot print yang dihasilkan dari proses pengiriman ke tapak, jika material didapatkan dari tempat yang jauh maka memerlukan bahan bakar yang lebih banyak sehingga akan menghasilkan polusi yang lebih besar pula.

Architecture Sustainability Sustainable Architecture Sustainable Architecture

Indoor Health and Comfort

I H C

IHC PRINSIP EKSISTING RESULT

Kenyamanan termal Suhu interior dalam ruangan berupa suhu ideal

Banyak ruangan yang suhunya masih terlalu tinggi yang disebabkan oleh direct sunlight

Belum erpenuhi

IHC (Indoor Health and Comfort)
Sustainable Architecture

IHC (Indoor Health and Comfort )

KENYAMANAN THERMAL

Architecture Sustainability
Sustainable Architecture Sustainable Architecture
Penambahan shader untuk mengurangi direct sunlight yang dapat meningkatkan suhu ruangan pemilihan jenis kaca yang isolator panas untuk jendela dan bukaan Pengapikasian secondary skin pada fasad bangunan
B E
Building Environment Management
M

BEM PRINSIP EKSISTING RESULT

pengelolaan dan pengelompok kan sampah

Tersedianya tempat sampah 3 jenis, yaitu tempat sampah organik,anorganik, dan B3

Terdapat tempat pengelolaan sampah

Hanya terdapat tempat sampah campuran dan belum ada tempat pengelolaan sampah

Belum erpenuhi

BEM
(Building Environment Management)
Sustainable Architecture

BEM (Building Environment Management )

PENGELOLAAN DAN PENGELOMPOKKAN SAMPAH

Architecture Sustainability
Sustainable Architecture Sustainable Architecture
Pengelompokan sampah menjadi tiga macam, yaitu sampah organik, anorganik, dan B3 Pembangunan fasilitas pengolahan sampah di area yang minim aktivitas
Architecture Sustainability Sustainable Architecture Sustainable Architecture

Turn static files into dynamic content formats.

Create a flipbook
Issuu converts static files into: digital portfolios, online yearbooks, online catalogs, digital photo albums and more. Sign up and create your flipbook.
Greenship Analyzing in Campus 3 of UIN Maliki Malang by Atana Abdan Yakhsyallah - Issuu