Construction Documentation Set

Page 1


CONSTRUCTION DOCUMENTATION

Ahmad Sultan

12th Floor Plan, Mount Khalid

32nd Floor Penthouse Plan, Mount 1

HVACROOM

BALCONY 2'-6" WIDE

Typical Studio Plan, Lake/Horizon View

Typical Studio Plan, Courtyard View

KITCHEN 9'-6''X10'-0''

Typical 2 Bedroom Plan, Lake/Horizon View

LOUNGE 14'-9''X 22'-9''

BED 12'-0''X12'-3'' 28' 41'-11 2 "

BATH 6'-0''X7'-0''

BATH 5'-9''X7'-0''

BED 12'-0''X15'-9''

Typical 3 Bedroom Plan, Courtyard View (with partial Balcony and facade rib element)

THREE BED COURTYAD VIEW (with FACADE ELEMENT RIB )

CARPET AREA +TERRACE AREA +HALF WALLS : 1261 SFT

BALCONY 2'-6"

ENTRANCE

Unique 3 Bedroom Corner Apartment Plan, Courtyard and Lake View

TERRACE

G.KITCHEN
DINING 12'-5''x13'-5''
M.BED
FAMILY LOUNGE
KITCHEN

Panoramic 3 Bedroom Plan, Courtyard and Lake View

3 BED PANORAMIC VIEW CARPET AREA +TERRACE AREA +HALF WALLS : 2750 SFT

GUEST SITTING

2'-6" WIDE

Typical 4 Bedroom Plan, Lake/Horizon View

BATH
Halmore Apartments, Lahore

BASEMENT PLAN

Furniture Layout, Basement Plan

BIKE PARKING

GROUND FLOOR PLAN

PLAN

Dimension Layout, 4th - 9th Floor Plan

4Th TO 9Th FLOOR PLAN

SINGLE BED / 2 BED APARTMENT

Dimension Layout, 10th - 11th Floor Plan

10Th TO 11Th FLOOR PLAN

2 BED + 3 BED APARTMENT

BASEMENT PLAN

GROUND FLOOR PLAN

Flooring Layout Plan, Ground Floor Plan

Flooring Layout Plan, First Floor Plan

WOODEN

BASEMENT PLAN

GROUND FLOOR PLAN

Reflected Ceiling Plan, Ground Floor Plan

Reflected Ceiling Plan, First Floor Plan

FIRST FLOOR PLAN

SINGLE BED / 2 BED APARTMENT

Furniture Plan, 2 Bed Unit Type A

BATH-01 12'-112"x5'-33 4 "

BED ROOM 01 14'-112"x12'-0"

BED ROOM 02 14'-112"x12'-0"

BATH-02 14'-112"x5'-33 4 "

2 BED UNIT TYPE -A

DUCT

LOUNGE/DINING 14'-6"x20'-9"

LAUNDRY

12MM TEMPERED GLASS PARTITION

TOWEL RAIL AS APPROVED SHOWER HEAD AS APPROVED SHOWER DRAIN AS APPROVED

DIFFERENCE

3"x12" SHOWER DRAIN AS APPROVED

BATH-01

(Fixture Layout Plan) (12'-112"x5'-3 3 4")

Detail Plans, Bath - 01

BATH-01 ( Floor Pattern Plan) (12'-112"x5'-3 3 4")

BATH-01 ( Ceiling Layout Plan) (12'-112"x5'-3 3 4")

Elevations 01, 02 Bath - 02

ELEVATION 01 ( BATH-02 )

F.F.L.

GYPSUM BOARD CEILING

BOARD CEILING

PRE FABRICATED WARDROBE AS PER APPROVAL

LED LIGHT WOODEN DOOR AS APPROVED

SWITCH BOARD

2'x4' TILE AS APPROVED

WALL TILE START POINT

ELEVATION 02 ( BATH-02 )

PRE FABRICATED WARDROBE AS PER APPROVAL

WALL MOUNTED WC AS APPROVED

APP.
GYPSUM
F.F.L.

+11'-0" SOFFIT OF SLAB LEV.

GYPSUM BOARD CEILING 2'

+9'-0" FALSE CEILING LEV.

CEILING MOUNTED AC

ALUMINUM GLASS WINDOW

WARDROBE

POWER PLUG

+F.F.L. 2'

SWITCH BOARD

APP.TILE SKIRTING

Elevations 01, 02

Bedroom - 02

ELEVATION 01

( BED ROOM-02 )

+11'-0" SOFFIT OF SLAB LEV.

GYPSUM BOARD CEILING 2'

+9'-0" FALSE CEILING LEV.

TEXTURE PAINT FINISH WALL

WARDROBE

WOODEN DOOR AS APPROVED

POWER PLUG

APP.TILE SKIRTING

CEILING MOUNTED AC

2'

Omar Chughtai

FURNITURE LAYOUT

FURNITURE LAYOUT

Furniture Layout, Ground Floor Plan

FURNITURE LAYOUT

FIRST FLOOR PLAN

Furniture Layout, First Floor Plan

DIMENSSION LAYOUT

BASEMENT PLAN

Layout, Basement Plan

DIMENSSION LAYOUT

DIMENSSION LAYOUT

Dimension Layout, First Floor Plan

CEILING LIGHTING LAYOUT

BASEMENT PLAN

Reflected Ceiling Plan, Basement Plan

CEILING LIGHTING LAYOUT

GROUND FLOOR PLAN

Reflected Ceiling Plan, Ground Floor Plan

WASTE HOLDING TANK
U.G.W.T

CEILING LIGHTING LAYOUT

FIRST FLOOR PLAN

Reflected Ceiling Plan, First Floor Plan

LAWN

BRICK WALL
BRICK WALL
BRICK WALL

Section

ROOF TOP

LOUNGE

architecture interiors planing landscape 27-28/ 2B Syed Maratib Ali Road,F.C.C.,Gulberg IV, Lahore info@srdw.net www.srdw.net voice+92-42-5754439 & 5752339 fax 5762914 c SRdesignworks All rights reserved. No part of this drawing may be circulated,reproduced,stored in retrieval system, 2023 or transmitted,in any form,or by any means-electronic,mechanical,photocopying,recording,or otherwise without the prior permission of SRdesignworks.

COURT PASSAGE SERVANT

Front Elevation

FRONT ELEVATION

CONCRETE SCREEN

GLASS RAILING

SLAB

Side Elevation

GLASS RAILING
CONCRETE SCREEN
NEW FINISHES AT THE BATHROOMS AT 2ND FLOOR AND ROOFTOP. NEW BATHROOMS AT LEVEL 1.

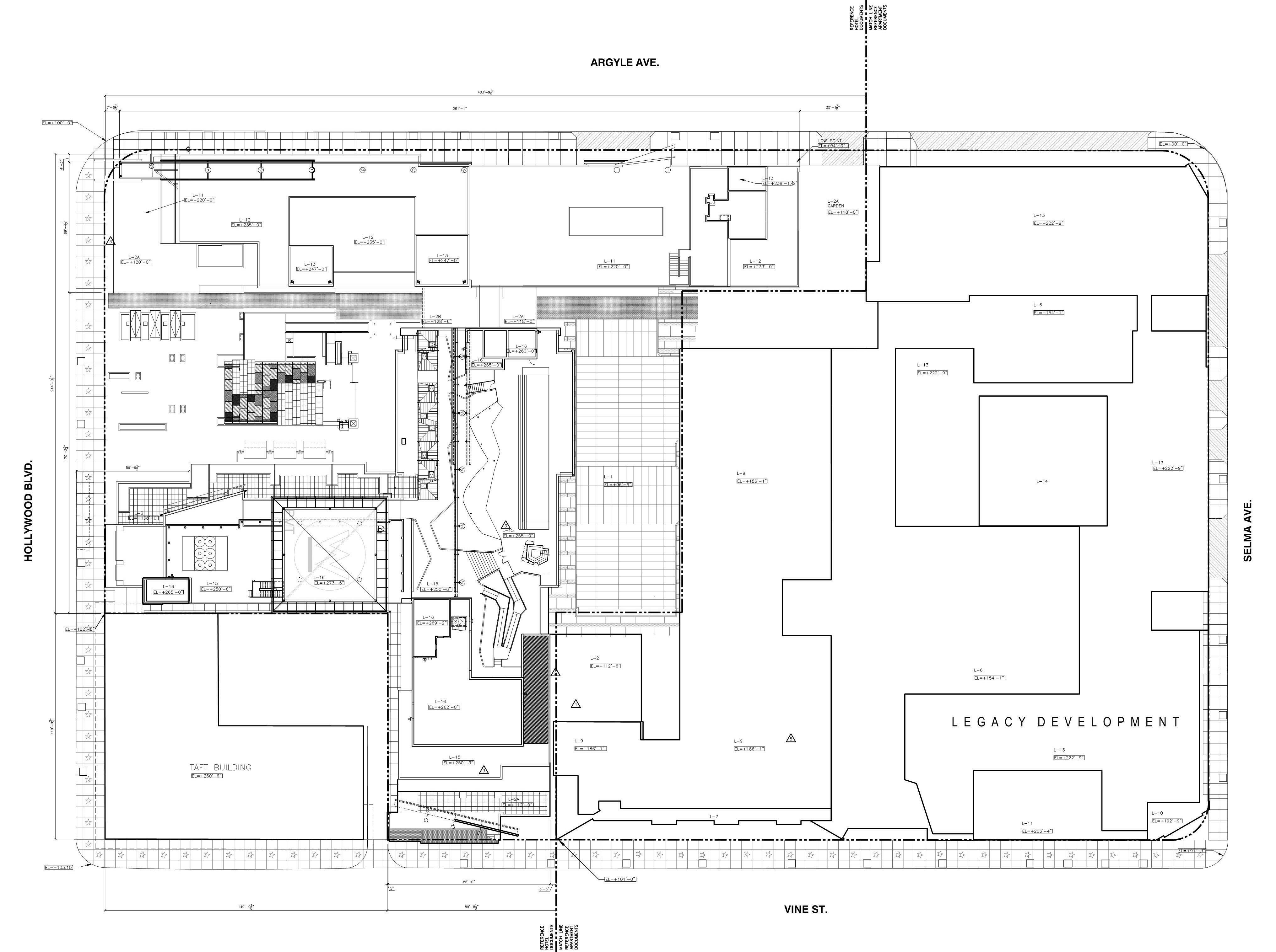
W HOLLYWOOD RENOVATION

6250 HOLLYWOOD BLVD. LOS ANGELES, CALIFORNIA

PROPOSED ENTITLEMENT MODIFICATIONS

DRAWING ABBREVIATIONS

LEGEND

BUILDING SUMMARY

HOLLYWOOD BLVD.

SELMA AVENUE

VINE STREET

HOLLYWOOD RENOVATION

12th Floor Plan, Mount Khalid

32nd Floor Penthouse Floor Plan, Mount 1

HVACROOM

BALCONY 2'-6" WIDE

Typical Studio Plan, Lake/Horizon View

Typical Studio Plan, Courtyard View

KITCHEN 9'-6''X10'-0''

BATH 6'-0''X7'-0''

LOUNGE 14'-9''X 22'-9''

Typical 2 Bedroom Plan, Lake/Horizon View

BATH 5'-9''X7'-0''

BED 12'-0''X15'-9''

BED 12'-0''X12'-3'' 28'

2 "

Typical 3 Bedroom Plan, Courtyard View (with partial Balcony and facade rib element)

THREE BED COURTYAD VIEW (with FACADE ELEMENT RIB )

CARPET AREA +TERRACE AREA +HALF WALLS : 1261 SFT

BALCONY 2'-6"

ENTRANCE

Unique 3 Bedroom Corner Apartment Plan, Courtyard and Lake View

TERRACE

G.KITCHEN
DINING 12'-5''x13'-5''
M.BED
FAMILY LOUNGE
KITCHEN

Panoramic 3 Bedroom Plan, Courtyard and Lake View

3 BED PANORAMIC VIEW CARPET AREA +TERRACE AREA +HALF WALLS : 2750 SFT

GUEST SITTING

2'-6" WIDE

Typical 4 Bedroom Plan, Lake/Horizon View

BATH

Turn static files into dynamic content formats.

Create a flipbook
Issuu converts static files into: digital portfolios, online yearbooks, online catalogs, digital photo albums and more. Sign up and create your flipbook.