6A-8 Vicki Street, Blackburn South

Page 1


I’M AN INVESTMENT WORTH READING ABOUT.

Aston Commercial is pleased to present 6a-8 Vicki Street, Blackburn South for sale via Expressions of Interest closing Thursday the 12th of September at 3pm. This property comes as a fantastic tenanted investment which has been operating for many years and with it’s newly signed lease will operate for many more. Leased to nation-wide religious book store Koorong, the shops provide a go to place for literature and has an onsite cafe. The well-positioned property sits just off Blackburn Road between Canterbury Road and Burwood Highway.

I’M ESTABLISHED: LONG STANDING TENANT WITH NEW LEASE.

Koorong has been a household name among Christians for more than 40 years, having opened initially in a garage in Marsfield Sydney in 1978. Owned by Bible Society Australia since July 2015, it has grown extensively over those 42 years with 14 retail stores located across most states and territories. They also deliver across the entire breadth of Australia via an efficient online webstore, with access to over 200,000 Christian titles both in print and print on demand.

TENANT BUSINESS NAME

Koorong (6a Vicki Street)

TENANT BUSINESS NAME Koorong (8 Vicki Street)

ANNUAL RENTAL $44,500++

LEASE TERM Two (2) years COMMENCEMENT 1st July 2024 OPTIONS 3yrs + 3yrs

BUILDING AREA

174 m2*

BUILDING AREA

253 m2*

The property is outlined on the certificate of titles as follows.

6a Vicki Street

Certificate of Title

Volume 08382 Folio 659 for Lot 282

BUILDING DETAILS

8 Vicki Street

Certificate of Title

Volume 08657 Folio 385 for Lot 281

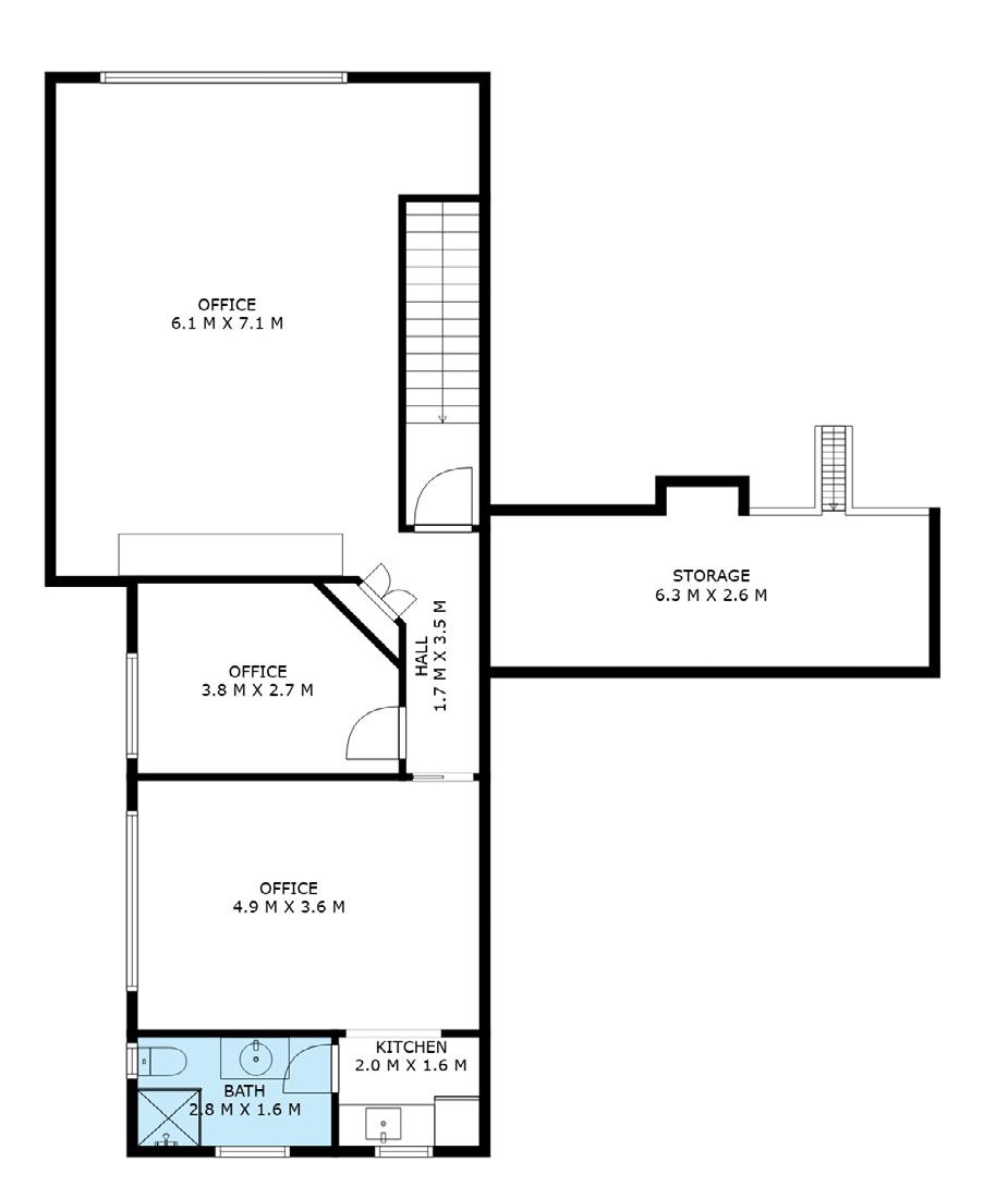
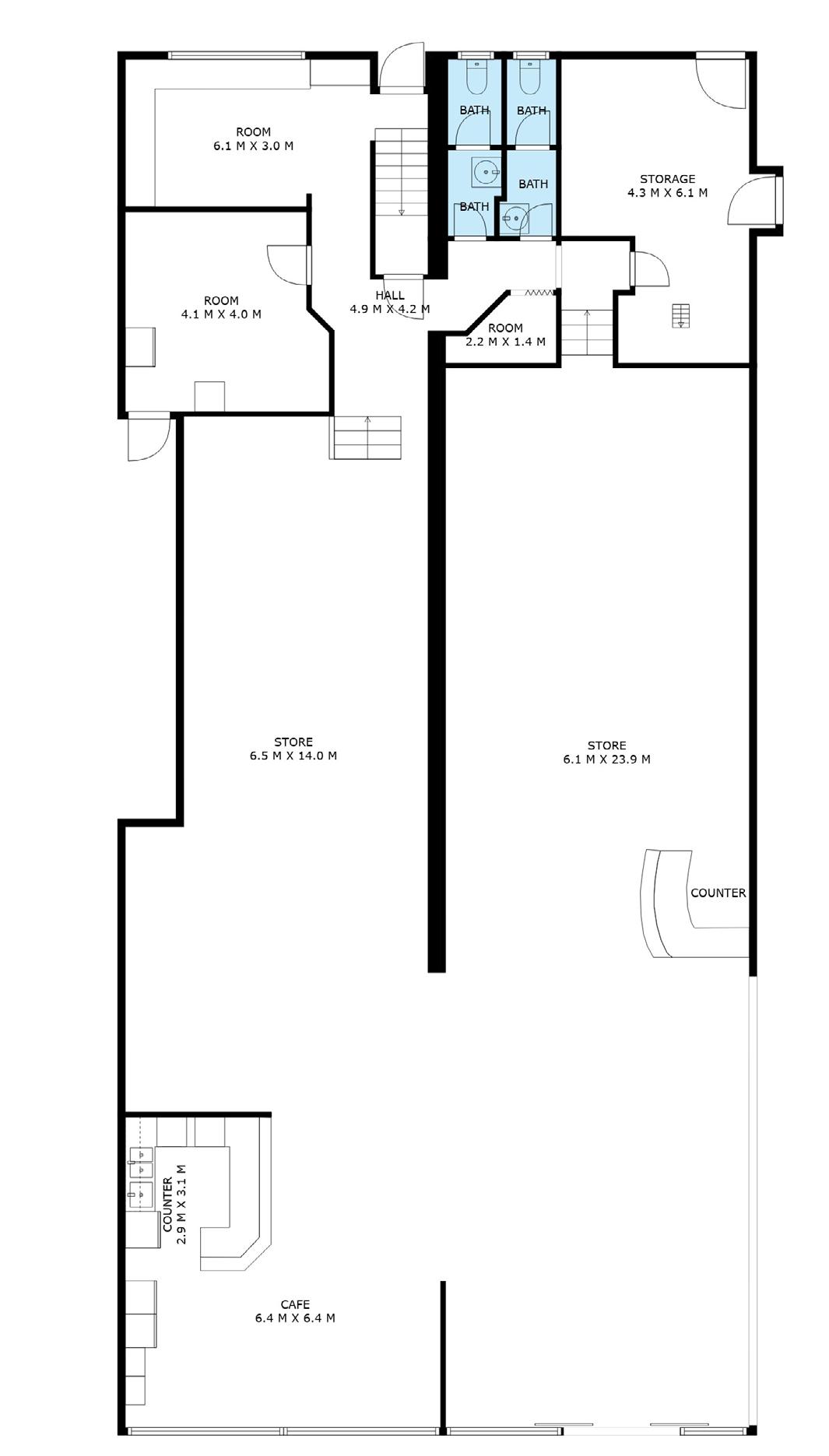
6A-8 Vicki Street, Blackburn South presents as a single-level double frontage retail shop forming part of a larger building which is leased to ‘Koorong’, a religious bookstore with a café. The building spans the whole block of the 372 square metres of land and offers rear laneway access providing great accessibility. Currently, under Koorong, 6A Vicki St is used as a café called ‘Pages Café’ whilst 8 Vicki St acts as the entrance and part of the retail space for the bookstore. The property has ample public car parking at the front.

397 m2* BUILDING AREA

Combined

COMBINED ANNUAL RENTAL

LAND AREA

371 m2* Combined

$83,500 + GST + Outgoings commencement 1st July 2024 ZONING

Commercial 1 Zoning (C1Z)

*approx

I’M A FRESH OPPORTUNITY WHERE FAITH AND FLAVOUR COMBINE.

Blackburn South is a charming suburb located approximately 17 kilometers east of Melbourne’s CBD, offering a serene, family-friendly atmosphere combined with excellent accessibility. The area is serviced by several bus routes that link directly to nearby train stations, such as Blackburn and Laburnum, making city commutes straightforward. Major roads, including Canterbury Road and Middleborough Road, provide easy access to surrounding suburbs and the Melbourne CBD, while the nearby Eastern Freeway offers a quick route to the city and beyond. Despite its excellent connectivity, Blackburn South maintains a quiet, suburban feel with a strong sense of community. The suburb is known for its mix of traditional and contemporary homes, tree-lined streets, and wellmaintained parks. Local amenities, including quality schools, cozy cafes, and boutique shops, cater to both residents and visitors. This balance of convenience and calm makes Blackburn South an ideal location for those seeking a peaceful yet connected lifestyle.

BLACKBURN SOUTH

Whitehorse City Council

Median house price:

$1,362,500

Source: realestate.com.au August 2023 - July 2024

AGE STRUCTURE

I’M SPACIOUS - COMBINED

TOTAL BUILDING AREA

397 M2*

8 VICKI STREET

253 m2* 6A VICKI STREET

174 m2*

BLACKBURN SOUTH

WHAT, WHEN & HOW?

For Sale by Expressions of Interest closing Thursday 12th September at 3pm.

Terms: 10% deposit with the balance payable in 30/60 days

Payment of Deposit Options:

1. Cheque – Personal or Bank payable to Aston Commercial Sales Trust Account

2. Macquarie Direct Debit Pay via secure portal link Make

DISCLAIMER

“Materials” refers to any representations, statements, documents, data, statistics, measurements, estimates, figures, calculations, projections, approximates or otherwise stated by Aston Commercial Pty Ltd whether verbally or in writing. The Materials have been collated to assist potential purchasers for advertising and general information only to assist potential purchasers to decide whether to proceed with further investigation in relation to the property or the land. The Materials provided by Aston Commercial does not constitute any offer or contract of sale and is not to be relied upon prior to signing any relevant contract. Any dimensions or measurements of the property or the land (internal and external) are approximates only and should not be relied upon before signing any contract. The potential purchaser must conduct investigations to satisfy themselves that any Materials provided are accurate. Aston Commercial excludes unequivocally all inferred or implied terms, conditions and warranties arising out of the Materials and excludes all liability for loss and damage arising therefrom.

*Approximate

Turn static files into dynamic content formats.

Create a flipbook
Issuu converts static files into: digital portfolios, online yearbooks, online catalogs, digital photo albums and more. Sign up and create your flipbook.