


![]()






BUILDING AREA:
Discover an exceptional investment and owner-occupier opportunity at 70-76 St Kilda Road, St Kilda. This property is a rare offering located on a prominent corner of the bayside suburb of St Kilda. For Sale by Expressions of Interest closing Thursday 5 December at 3pm BUY
AREA: 10% deposit with the balance payable in 30/60/90 days TERMS OF SALE




The property is outlined on the certificate of title as follows. Volume 02392 Folio 273 I’m
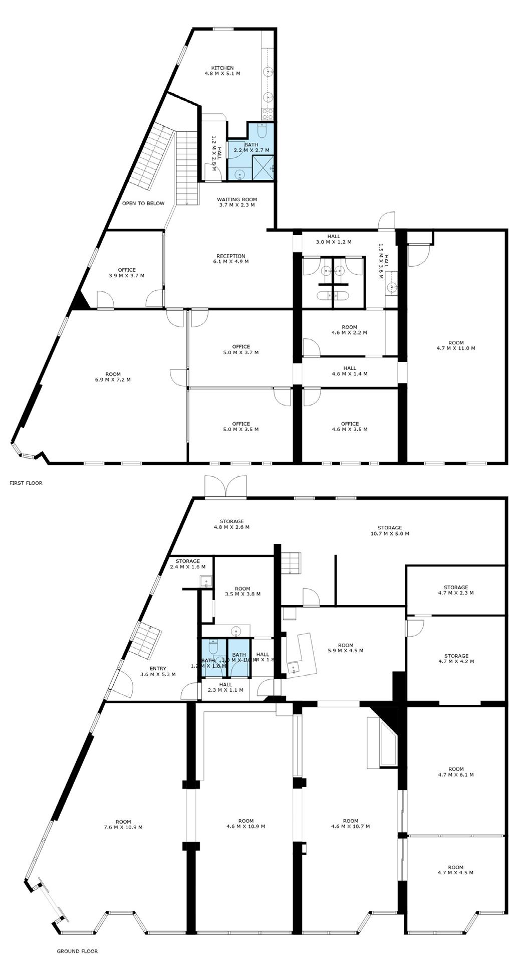
This striking two-storey period building boasts triple frontage to St Kilda Road, Charnwood Road, and Bank Place, and offers on-site parking at the rear. This standout corner site offers a rare opportunity to secure a premium St Kilda asset, with a combination of solid income, vacant space for future potential, and impressive development upside.
Ground: Leased by Premium Sound, a well-established tenant and long standing tenant occupies the ground floor showroom space with a rear warehouse.
First Floor: Offered vacant and ready for immediate occupation.
The first-floor office space includes a reception area, multiple office and meeting rooms and amenities.


The property is leased to Premium Sound whom have anchored the building for over five years. They have been established in Melbourne since 1975, providing quality products to the Australian market. It prides itself on the company’s intrinsic values of innovation, respect, integrity, excellence, passion and customer value. https://premiumsound.com.au/

The tenant have taken up their option early with the ground floor now securely leased until 2030.
$112,550* per annum
LEASE TERM Five (5) years
COMMENCEMENT
1st September 2020 OPTIONS
Two (2) further options of 5 years
RENT REVIEWS 3% p.a with market review at option
*approximate


280m
Level 1 offers it’s own exclusive access from Charnwood Road and is a light and bright offering. A convenient HQ layout with a reception area, private offices and ample meeting rooms.
280m GROUND FLOOR:
The ground floor is presented a stunning showroom with a warehouse at the rear and offices.

I’m a flexible opportunity with room to grow.

560m2* BUILDING AREA:
*approximate

I’m a sizeable asset with ample upside.







Located in the Heart of St Kilda, one of Melbourne’s most highdensity locations with residents and ample commercial activity. Key landmarks include - St Kilda Foreshore - Catani GardensAlbert Park Lake - Acland St Retail - Botanical Gardens.
The location holds considerable convenience. A stone throw from cafe, restaurants and bars. The beach. The CBD is accessible via public transport and car with main roads beings - St Kilda RoadNepean Highway - Princess Highway - Punt Road.
WELL SERVICED BY



For Sale by Expressions of Interest closing Thursday 5 December at 3pm
Terms: 10% Deposit 30/60/90 days
Payment of Deposit Options:
1. Cheque – Personal or Bank payable to Aston Commercial Sales Trust Account
2. Macquarie Direct Debit Pay via secure portal link




“Materials” refers to any representations, statements, documents, data, statistics, measurements, estimates, figures, calculations, projections, approximates or otherwise stated by Aston Commercial Pty Ltd whether verbally or in writing. The Materials have been collated to assist potential purchasers for advertising and general information only to assist potential purchasers to decide whether to proceed with further investigation in relation to the property or the land. The Materials provided by Aston Commercial does not constitute any offer or contract of sale and is not to be relied upon prior to signing any relevant contract. Any dimensions or measurements of the property or the land (internal and external) are approximates only and should not be relied upon before signing any contract. The potential purchaser must conduct investigations to satisfy themselves that any Materials provided are accurate. Aston Commercial excludes unequivocally all inferred or implied terms, conditions and warranties arising out of the Materials and excludes all liability for loss and damage arising therefrom.
*approximate