403 Brunswick Street, Fitzroy

Page 1


403 Brunswick Street, Fitzroy

AUCTION WEDNESDAY 28 AUGUST AT 12 NOON ON-SITE

Property Details.

Aston are pleased to present 403 Brunswick Street, Fitzroy for sale by public auction on Wednesday the 28th of August at 12pm on-site. This opportunity provides all buyer types a chance to secure a freehold property with a monthly tenancy in one of Melbourne premier retail and hospitality strips.

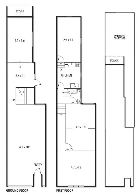
Boasting an expansive shop front and versatile interior layout, this two-level freehold shop and dwelling space is ready to accommodate a wide range of commercial, residential or mixed-use endeavours. Whether you are looking to occupy or invest, the space offers a shop front, various internal spaces, bathroom, kitchen, and a courtyard with rear laneway access. The flexibility to split the spaces means you can live upstairs (STCA) and earn an income downstairs.

LAND AREA 191m²*

BUILDING AREA

168m²*

ZONING

Commercial 1 Zone

TENANCY DETAILS

Monthly tenancy returning $50,000 p.a. + GST + Outgoings

ACCESS

Street front + rear laneway

PARKING

One (1) car space at the rear

My Place on the Street.

I’m in Fitzroy’s Epicentre.

FITZROY 3065

Fitzroy is a vibrant and eclectic suburb located in the inner north of Melbourne, Australia. Known for its unique character, diverse community, and artistic atmosphere, situated approximately two kilometers northeast of Melbourne’s central business district (CBD). It enjoys excellent connectivity to the city center and surrounding suburbs through public transport options such as tram and bus services. The area has a diverse and cosmopolitan population. The suburb attracts a mix of young professionals, artists, students, and families.

WELL SERVICED BY

- 10m to Tram Route 11

- 200m to Bus Route 546

- 150m to Tram Route 96

SHOPPING

- NUEW Denim

- T2 Tea

- Fitzroy Market

PARKS

- Smith Reserve

- Edinburgh Gardens

- Carlton Gardens

HOSPITALITY

- Polly Bar

- The Fitz

- Marios

My Floorplan.

Sebastian Origlia

Agency Executive 0428 056 294 sebastian@astoncommercial.com.au

Fred Nucara

Managing Director 0418 567 560 fred@astoncommercial.com.au

Turn static files into dynamic content formats.

Create a flipbook
Issuu converts static files into: digital portfolios, online yearbooks, online catalogs, digital photo albums and more. Sign up and create your flipbook.