BUY ME.
Auction on Thursday 19 September at 12 noon on-site.
2/84 Voltri Street, Mentone


![]()
Auction on Thursday 19 September at 12 noon on-site.
2/84 Voltri Street, Mentone


Aston is pleased to present 2/84 Voltri Street, Mentone for sale via Public Auction on Thursday the 19th of September at 12 noon on-site.
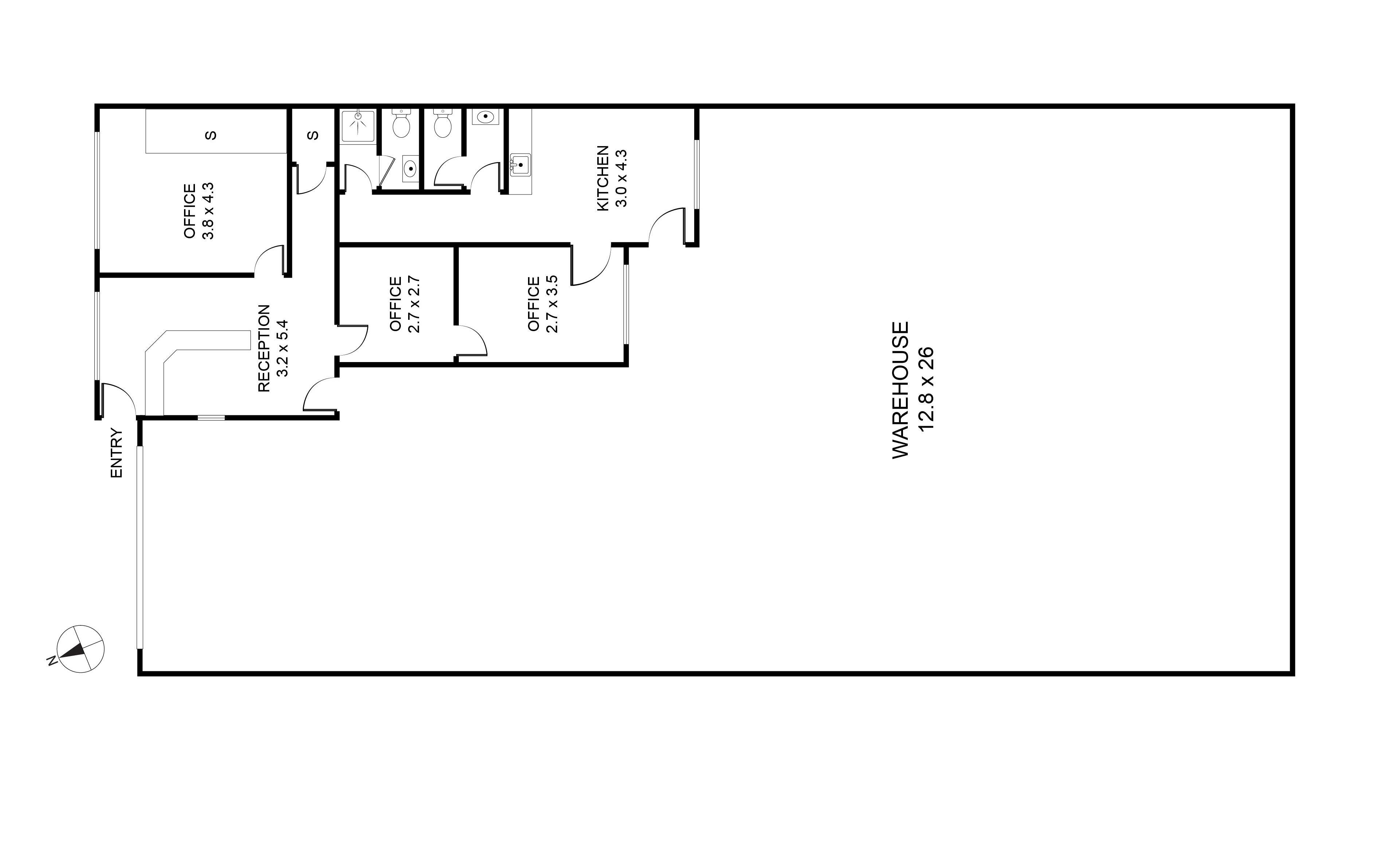
This rare and highly sought-after warehouse provides the perfect space for a variety of businesses to capitalize on. Situated in a tightly held industrial pocket of Mentone next to DFO and Moorabbin Airport, the space offers ample amenity and the ability to occupy or invest Immediately.
BUILDING AREA 350m²*
PARKING
Three (3) car spaces
ZONING Industrial 1 Zone




Offered with vacant possession
Renovated offices, kitchen/ lunchroom, 2 bathrooms plus a shower
MOTORISED ROLLER DOOR Easy accessibility
*approximate.








2/84 Voltri Street, Mentone offers prime location situated in a well-established industrial precinct. It benefits from close proximity to major arterial roads as it sits between Centre Dandenong Road and Warrigal Road whilst being moments from Nepean Highway and the Dingley Bypass, ensuring excellent connectivity to Melbourne’s CBD and surrounding areas.
The property is near Moorabbin Airport, enhancing logistical convenience, particularly for businesses with distribution needs. The surrounding area hosts a mix of industrial and retail enterprises, including DFO, Bunnings, Officeworks, and other prominent retailers, providing a strong business ecosystem. This location is ideal for companies seeking a strategic base with access to a robust commercial network.
- Warrigal Road
- Centre Dandenong Road
- Nepean Highway
- Boundary Road
- Dingley Bypass
- Mordialloc Freeway
- Moorabbin DFO
- Moorabbin Airport
- Capital Gold Club
- Mentone Train Station
- Thrift Park Shopping Centre



056 294 sebastian@astoncommercial.com.au
