arquitectura_ edificio fenix peruana

Page 1

EDIFICIO LA FÉNIX PERUANA EDIFICIO LA FÉNIX PERUANA

FERNANDO DE OSMA

2023 - II

EDIFICIO LA FÉNIX PERUANA

ArquitecturayDiseñoPeruano

DOCENTES:

MelissaYarangaHernadez

JimmyVillavicencioVenegas

INTEGRANTES:

CamposSalinas,Astrid

HuaytaFebres,JoseCarlos

2023 - II

1 ANÁLISIS DEL CONTEXTO HISTÓRICO

1.1LOCALIZACIÓNYUBICACIÓN

1.2ASPECTOSFUNDAMENTALES

1.3ANTECEDENTESHISTÓRICOS

1.4ASPECTOSPRINCIPALES

2 ANÁLISIS DEL ARQUITECTO

2.1BIOGRAFÍAYPENSAMIENTOS

2.2TEORÍASYOBRAS

2.3INFLUENCIA-TENDENCIAYESTILO

3 ANÁLISIS DE LA OBRA

3.1ANALISISFORMAL-EMPLAZMIENTOHITOS

3.2CLIMAYORIENTACION

3.3PERFILURBANO

3.4ANALISISFUNCIONAL

3.5PROGRAMAARQUITECTONICO

3.6ACCESOS

3.7ANALSISSISTEMACONSTRUCTIVO

3.8MATERIALIDAD

4 CRÍTICA DE LA OBRA

4.1CRITICAEDIFICIOLAFÉNIXPERUANA

5 BIBLIOGRAFÍA

3.1REFERENCIABIBLIOGRAFÍCA

ANÁLISIS CONTEXTO HISTÓRICO

UBICACIÓN Y LOCALIZACIÓN

En relación a su localización El edificio la Fénix

Peruana se ubica en Av. Abancay cruce con jirón Ucayali La edificación ocupa una esquina

1
4 E D I F I C I O L A F É N I X P E R U U A N A 2 L I M A M E T R O P O L I T A N A
UBICACIÓN Av Abancay Av Abancay Av Abancay Av Abancay Av Abancay JrUcayal J Ucayali JrUcayal JrUcayali JrStaRosa JrStaRosa Jr.Cuzco JrCuzco Jr Cuzco Jr.StaRosa Jr Ayacucho Jr Ayacucho Jr Ayacucho Jr Ayacucho Jr Andahuaylas LIMA METROPOLITANA LIMA CERCADO DE LIMA AV. ABANCAY Y JR. UCAYALI SEMANA 6 CICLO VI GRUPO 2 1 ARQUITECTURA Y DISEÑO PERUANO EDIFICIO LA FENIX PERUANA EDIFICIO LA FÉNIX PERUANA ÁREA DE TERRENO

ANÁLISIS CONTEXTO HISTÓRICO

ASPECTOS FUNDAMENTALES

RESEÑA

EL PROYECTO DEL EDIFICIO LA FENIX

PERUANA SE UBICA EN LA AVENIDA

ABANCAY CRUCE CON EL JIRON

UCAYALI LA CÚAL CONTEMPLA 8 PISOS

Y UN SÓTANO, DEDICADO BASICAMENTE COMO

ESTACIONAMIENTO, EL PRIMER PISO

QUE OCUPA TODO EL TERRENO COMPRENDE LOCALES COMERCIALES CON SUS SERVICIOS Y BAÑOS

RESPECTIVOS. LOS PISOS SUPERIORES

ESTÁN DESTINADOS A OFICINAS, SIENDO EL 7°, 8° Y 9° DE DISEÑO

DATOS TÉCNICOS

NOMBRE ACTUAL

EDIFICIO LA FÉNIX PERUANA

PROPIETARIO

INTITUCIÓN PRIVADA

DISTRITO CERCADO DE LIMA

ÁREA DE TERRENO

R R

760 M2

ESPECIAL PARA LAS OFICINAS DE «LA FÉNIX PERUANA».”

UBICACIÓN

AV. ABANCAY Y JR. UCAYALI

ÁREA

760 M2

ARQUITECTO

FERNANDO DE OSMA

CONSTRUCCIÓN

1959

ÁREA CONSTRUIDA

760 M2

FILIACIÓN CULTURAL

MODERNO

USO

OFICINAS Y COMERCIO

ESTADO DE PROTECCIÓN

NO CUENTA CON ESTADO DE PROTECCIÓN

SEMANA 6 CICLO VI GRUPO 2
2 ARQUITECTURA Y DISEÑO PERUANO EDIFICIO LA FENIX PERUANA

ANÁLISIS CONTEXTO HISTÓRICO

ANTECEDENTES HISTÓRICOS

DESCRIPCIÓN DEL LUGAR EN 1959: Con anterioridad la avenida Abancay era un jirón pero posteriormente en 1947 se hizo un plan de ensanchamiento porque lo que al final termino como avenida, próximas a este habían obras de importancia histórica como “cuartel san francisco, plaza bolívar, congreso de la republica, mercado centrar de lima, ministerio de hacienda actual ministerio publico“ estas serian algunas obras importantes históricas próximas al Edificio Fénix Peruana. En la actualidad la Av. Abancay es uno de los puntos mas comerciales de la capital y el edificio la fénix peruana no a sido la excepción este actualmente es bautizado con el nombre de “Galeria Marcazolo”

CONTEXTO

La edificación la cual se ubica en la avenida principal se construyo con la finalidad de adaptarse a las necesidades del usuario en relación a un uso comercial y mixto puesto que la propuesta que realizo el Arq. Fernando de Osma fue diferente y atrevida, debido a que mayormente las edificaciones limeñas estaban acostumbradas a ser mas horizontales y muy pocas de ellas rompían con el esquema de manejar una verticalidad en las edificaciones .

SEMANA 6 GRUPO 5
3 ARQUITECTURA Y DISEÑO PERUANO EDIFICIO LA FENIX PERUANA CICLO VI

ANÁLISIS CONTEXTO HISTÓRICO

ASPECTOS PRINCIPALES

abo el segundo gobierno de Manuel Prado Ugarteche en el cual en está nto de un régimen polito denominado “La convivencia”, es ahí donde a n a surgir diversos partidos políticos tales como Acción Popular, c. Asimismo, se derogó la ley de seguridad interior por la cual se istía para los presos políticos, permitiendo que los partidos políticos utonomía desarrollada.

ASPECTO ECONÓMICO

En el año de 1959 el Perú estaba en los tiempos de Pardo Ugarteche, durante ese periodo se trató de superar la crisis económica debido a un aumento de los derechos aduaneros a las mportaciones, asimismo el gobierno trató de salir de la crisis económica la cual presentaría un gran desarrollo tanto territorial como en las infraestructuras. Sin embargo, se inicio la migración de la poblacional peruana provincial hacia Lima siendo una ciudad ms desarrollada en el territorio peruano presentando así una densidad centralizada

SPECTO SOCIAL

n relación al aspecto social que se llevó a cabo comenzó a desarrollarse el Plan descentralizado, cual tenia como finalidad establecer medidas para el desarrollo, estableciendo una mejor alidad de vida para la población, se crearon fondos para incentivar a la producción del país, simismo, comenzaron a crearse infraestructuras, edificaciones, construcciones de vías, teniendo omo objetivo que el país se desarrollo centradamente en diversos ámbitos y aspectos.

SEMANA 6 GRUPO 5
4 ARQUITECTURA Y DISEÑO PERUANO EDIFICIO LA FENIX PERUANA CICLO VI

ÁNALISIS CONTEXTO HISTORICO

ASPECTOS PRINCIPALES

ASPECTO EDUCACIONAL

En el ámbito educativo durante el gobierno de Prado se formulo el Plan Educativo para el Perú, estableciendo diversas formas beneficiarias en la educación debido a que se presentaba una tasa notoria de analfabetismo, el objetivo propuesto fue generar mayor impulso en la educación, se incentivo en la educación técnica fortaleciendo su extensión y desarrollo. Asimismo, con el pasar del tiempo durante el gobierno de Pardo se vislumbro la creación de universidades, entre ellas la Universidad San Luis Gonzaga de Ica, Universidad Nacional de la Amazonia Peruana, etc promoviendo la educación superior al igual que las demás instituciones educativas.

ASPECTO FILOSÓFICO

En cuanto a la filosofía del gobierno este es un tanto tambaleante debido a que en la época hubo dictadores, militares y civiles en el poder, en estas épocas más abundaba el populismo para tratar de complacer a la población y así asegurarse en el poder por lo que la filosofía política se basaba en mantener a raya a la población dándoles y/o ofreciendo lo suficiente.

ASPECTO IDEOLÓGICO

Durante los 10 años anteriores y los 10 posteriores a la construcción del Edificio la Fénix Peruano surgieron algunos problemas sociales que afectaron a la población directamente, debido a que gobiernos populistas, se creía que todo estaba bien en el estado más solo era una fachada por parte de la presidencia, los problemas se hacían presente cada vez (como las reformas agrarias y explotación de la clase obrera) estos generarían descontento en la sociedad peruana por lo que estos terminarían formando güerillas.

SEMANA 6 GRUPO 5
5 ARQUITECTURA Y DISEÑO PERUANO EDIFICIO LA FENIX PERUANA CICLO VI

ANÁLISIS DEL ARQUITECTO

BIOGRAFÍA Y PENSAMIENTOS BIOGRAFÍA PENSAMIENTO

Fernando de Osma es un arquitecto peruano, el cual nació el 2 de julio de 1929 en Lima, Perú Es uno de los arquitectos que cuenta con muy poco renombre pero en sus obras resaltan grandes conceptos auténticos y originales en el ámbito arquitectónico

El arquitecto Fernando de Osma contaba con un pensamiento mucho mas avanzado y futurista, en el cual el percibía y proponía edificaciones de una manera aérea y funcional En cada uno de sus proyectos mantenía una relación con el entorno y el flujo presente en la zona donde se edificaría, asimismo, debido a su pensamiento mucho mas allá de una típico diseño en base a una forma el pensaba mucho en la innovación de la modernidad, el cambio de uso que podría generar y no solo un uso convencional de vivienda sino más allá en el cual el uso que se le daba dependía de la zona en donde se proyectaba cada edificación

Su vida académica y profesional fueron muy importantes para la vida del arquitecto de Osma, su formación como profesional fue en la Universidad Nacional de Ingeniera en el cual egresó como arquitecto,

Una de sus obras de mayor predominancia y la que fue una de las mas representativas del siglo XX fue El edificio el Pacifico, de uso mixto, esta edificación rompe con el esquema de la horizontalidad y plasma una arquitectura moderna asi como la mayoría de los proyectos de Osma la cual fueron muy vitales y de suma importancia en cuanto al desarrollo en donde se emplazo

Ganó el premio Chavín de 1964 por el Edificio Cía de Seguros Popular y Porvenir y adicionalmente tambien ganó el premio Sociedad de Arquitectos en 1959 por Edificio Ferreyro Edificio El Pacífico, Edificio Cía de Seguros Popular y Porvenir y Casa en Rinconada del Lago

SEMANA 6 6
ARQUITECTURA Y DISEÑO PERUANO EDIFICIO LA FENIX PERUANA CICLO VI

ANÁLISIS DEL ARQUITECTO

TEORIAS Y OBRAS EDIFICIO EL PACÍFICO 1957-1958

El edificio el pacífico es una obra arquitectónica del repertorio del Arq. Fernando de Osma, está edificación se construyo a finales del año 1957 e inicios de 1958, se encuentra en el distrito de Miraflores en el cruce de 3 avenidas las cuales son Av Larco, Av Diagonal y Av José Pardo dicho edificio se proyecto como una visión de gran importancia en el distrito de Miraflores, es una propuesta diferente y atrevida debido a que mayormente las edificaciones limeñas eran mas horizontales, es ahí donde el edificio rompe con el esquema convencional y se genera volúmenes verticales modernos e innovador, asimismo, el edificio el Pacifico fue uno de los mas importantes del siglo XX.

CARACTERISTICAS

Volumen base de masa homogénea con sustracciones en sus vanos. Se maneja una espacialidad vertical Presencia de ritmo y repetición en los vanos generados en el volumen vertical.

Secuencia de columnas que sirven como soporte para el conjunto del edificio de 10 pisos de uso residencial. Solidez y sencilla en su expresión arquitectónica.

FORMA FUNCIONALIDAD

En cuanto a su forma, el edificio se sitúa sobre una base homogénea de dos pisos que tiene sustracción en la parte superior donde se ve abiertamente la circulación y terraza que bordea la adición de tres volúmenes unificados y juntos en forma de T las cuales son de uso residencial.

En el edificio se sitúa en un área de 3035m2 en el cual se emplaza un volumen base de 2 pisos de uso comercial.

Primer Piso se encuentra 10 tiendas, deposito, cine, circulación vertical (escalera) y ascensores

Segundo Piso se encuentra 5 tiendas, oficina de administración, restaurant, ss.hh, almacén, cámara de proyección de cine.

Adicional se suman 3 niveles con forma de t del multifamiliar de 7 pisos en el cuál se encuentra 3 tipologías de departamentos por cada piso.

ESTILO

Presenta un estilo moderno de las cuales cuenta con las siguientes características:

Uso flexible y sencillo

Manejo de formas geométricas en su volumen de líneas limpias

Expresión arquitectónica sencilla y limpia

Uso de materiales nuevos como el concreto armado, vidrio, perfilería metálica.

Edificio sólido sin presencia de ornamentaciones

Presencia de muros cortinas, ventanas amplias y sólidas.

DISEÑO PERUAN 3 voúmenes adicionados volumen base homogéneo
7 EDIFICIO LA FENIX PERUANA GRUPO 2

ANÁLISIS DEL ARQUITECTO

TEORIAS Y OBRAS

EDIFICIO COMPAÑÍA NACIONAL DE TELÉFONOS

EL edificio de la compañía nacional de teléfonos fue uno de los proyectos arquitectónicos mas resaltantes de la trayectoria del Arq Fernando de Osma, esta edificio se construyo en el año 1963 presenta dos niveles, se emplaza en el distrito de San Luis específicamente en AV. CIRCUNVALACIÓN 1675, esta edificación se encuentra al finalizar una manzana con una forma irregular semejante a la de una navaja, por lo que la forma y los espacios a construir no era tan sencillo de solucionar, al final la forma por la que opto da solución a muchas a muchos aspectos como el como emplazarse como iluminar los ambientes y deja un gran área libre que se aprovecharía como estacionamiento.

CARACTERISTICAS

Su amplia fachada da la impresión de que todo el área del terreno esta construido

Se maneja una espacialidad vertical

Se adapta a la forma del terreno donde esta ubicado y lo aprovecha en su forma

Simplicidad en su diseño y uso de materiales del movimiento moderno. Juego espacial de llenos y vacíos manejan una expresión clara y concisa

FUNCIONALIDAD FORMA

En el edificio se sitúa en un área de 11,390 de las cuales 970 m2 es de su área construida en el cual se emplaza un volumen de dos niveles teniendo uso industrial.

Debido a su uso este presenta en la primera planta ambientes como los de Transmisiones, área de ingeniería, sala de observaciones, que es todo lo necesario por tratarce de una centro de comuniaciones. en segundo nivel tiene un área parcialmente construida solo la volumetría colindante a la fachada y tiene un uso de oficina

ESTILO

la forma del edificio es de una T juntando dos volúmenes, el de la fachada que es de posee dos niveles el cual visto de frente da la impresión de que todo el área estuviera construida y el del primer nivel que es el que ayuda a darle esta forma

dos n veles en la fachada del ed ficio

area parcialmente construida

Presenta un estilo moderno de las cuales cuenta con las siguientes características:

Presenta utilización de nuevos materiales como el concreto armado, vidrio, barandas de acero.

Creación de espacios abiertos y sencillos.

Volúmenes rectangular de líneas limpias.

Forma orgánica de manera sencilla guardando relación con el entorno. Conexión entre el interior y el exterior

ARQUITECTURA DISEÑO PERUAN
8 EDIFICIO LA FENIX PERUANA GRUPO 2
Voladizos presentando ritmo y jerarquizando el tamaño

ANÁLISIS DEL ARQUITECTO

INFLUENCIA - TENDENCIA Y ESTILO

TENDENCIA DE SUSTRACCION

TENDENCIA EN LA VOLUMETRIA

TENDENCIA EN LA FORMAFORMA

ANÁLISIS DEL ARQUITECTO

INFLUENCIA - TENDENCIA Y ESTILO

ESTILO

el edificio el fénix peruano posee un estilo moderno estas son altamente notorias en algunas de sus características, pero este edificio posee otras mas que se convirtieron en una tendencia del arquitecto

CARACTERISTICAS

Algunas de las características generales que presenta el proyecto que coinciden con el estilo moderno son:

Presenta utilización de nuevos materiales como el concreto armado, vidrio, barandas de acero, madera. Creación de espacios abiertos y sencillos. Volúmenes rectangular de líneas limpias. Un gran ingreso y aprovechamiento de la luz natural.

TENDENCIAS

Las tendencias del arquitecto en esta obra son las siguientes:

sustracción para generar la ilusión de flotabilidad uso de villares en el área sustraída en vez de columnas jugar con los niveles y dimensiones de los volúmenes usar un volumen como base de un segundo volumen que seria el principal o el mas desarrollado que los volúmenes principales juntos formen una “T”

SEMANA 6
10 ARQUITECTURA Y DISEÑO PERUANO CICLO VI EDIFICIO LA FENIX PERUANA GRUPO 2
sustracciones juego con los volúmenes volumen usado como base

ANÁLISIS DE LA OBRA

ANÁLISIS FORMAL - EMPLAZAMIENTO HITOS

Plaza

Gran

Edificio La Fénix Peruana

Ministerio PúblicoFiscalía de la Nación

ARQUITECTURA Y DISEÑO PERUANO SEMANA 6 EDIFICIO LA FENIX PERUANA CICLO VI GRUPO 2 11
Bolívar Biblioteca pública de Lima Plaza Gastañeta

ANÁLISIS DE LA OBRA

ANÁLISIS FORMAL - ORIENTACIÓN

Con respecto a su asolamiento, esta edificación comparte la característica de no presentar asolamiento directo en ninguno de sus ambientes, permitiendo de esta manera que las actividades dentro de la vivienda no se vean perjudicadas por este, asimismo, cuenta con iluminación y ventilación natural estás ingresan por la trama de sus repetitivosysecuentesvanospresentes.

PRECIPITACIONES

Febreo : 40 mm

Mayo: 9mm

DIRECCIÓNDELSOL

De Este a Oeste

Dirección del viento: Velocidad del viento: Sur 14.3 km/h

TEMPERATURA

Temperatura promedio

(ANUAL):

HUMEDADPROMEDIO

DIRECCIÓN VELOCIDAD 70 % promedio anual

15°C 27°C

S
ARQUITECTURA Y DISEÑO PERUANO SEMANA 6 EDIFICIO LA FENIX PERUANA CICLO VI GRUPO 2 12
N E W

ANÁLISIS DE LA OBRA

ANÁLISIS FORMAL - PERFIL URBANO

Av.Abancay 299

Mediante los perfiles urbanos ubicados en la Av Abancay se maneja un promedio de alturas que varían desde los 2 pisos a los 8 pisos Se maneja un estilo moderno y estilo colonial de influencia francesa

411

Mediante los perfiles urbanos ubicados en la Jr Ucayali se maneja un promedio de alturas que varían desde 1 piso a los 8 pisos Manejando un estilo barroco limeño y colonial mayormente ubicado en las casonas de Jr ucayali

A V . A B A N C A Y
A V
A B A N C A Y A V . A B A N C A Y A V . A B A N C A Y A V . A B A N C A Y EDIFICIO LA FENIX PERUANA CICLO VI GRUPO 2
JR. UCAYALI JR. UCAYALI JR. UCAYALI
.
ARQUITECTURA Y DISEÑO PERUANO SEMANA 7 13 3 1 2 1
3
2
Av.Abancay
Jr. Ucayali

ANÁLISIS DE LA OBRA

ANÁLISIS FUNCIONAL -FLUJOS PEATONALES Y VEHICULA

Av. Abancay Av. Abancay

Jr.Ucayali Jr.Ucayali

Jr.Junin Jr.Junin

Flujo Peatonal Avenidas y Jirones Av. Abancay

Flujo Vehicular

Vía Local - Avenida

Jr Ayacucho

Av.

--

Tráfico medio

Tráfico medio lento

Mediante el flujo peatonal pasa la misma problemática que el vehicular la Av Abancay tiende a ser congestionada en el flujo Peatonal debido a que se concentra mayor parte del comercio ubicado en está avenida principal.

Jr Ayacucho

Jr. Cuzco

Tráfico lento Av

--

Concentración alta

Concentración muy alta .Cuzco Jr.Cuzco

ARQUITECTURA Y DISEÑO PERUANO SEMANA 6 EDIFICIO LA FENIX PERUANA CICLO VI GRUPO 2 14

Vía Arterial - Jirones LEYENDA LEYENDA
En el ámbito vehicular se maneja un flujo vehicular de tráfico lento principalmente en la avenida Abancay al ser la principal y conectora de diversas vías arteriales tiende a presentar esa problemática de congestión vehicular.
Abancay Jr. Cuzco
Jr. Ucayali Tráfico rápido
Abancay
Jr. Ucayali Concentración baja
Concentración media
Jr.Ayacucho Jr.Ayacucho Jr.Cuzco Jr

ANÁLISIS DE LA OBRA

PROGRAMA ARQUITECTÓNICO

En el primer nivel del edificio La Fénix Peruana se visualiza gráficamente que se encuentran los ambientes sociales como las tiendas donde mayormente se enfatiza el comercio , asimismo contamos con ambientes de servicio como lo son el cuarto de máquinas, los servicios higiénicos y un gran hall de ingreso que conecta con la circulación vertical . Finalmente observamos circulaciones verticales como los ascensores y una única escalera escalera es la que conecta con los siguientes pisos

ZONA SOCIAL

Tiendas - Comercio

ZONA DE SERVICIO

Cuarto de máquinas

Servicio Higienico

CIRCULACIÓN VERTICAL Y HORIZONTAL

Hall de ingreso - distribución

Ascensores

Escalera

TIENDA S.H S.H S H S H TIENDA HALL ASCENSORES S H S H HALL DE INGRESO CUARTO DE ÁQUINAS TIENDA
EDIFICIO LA FENIX PERUANA CICLO VI GRUPO 2 ARQUITECTURA Y DISEÑO PERUANO SEMANA 7 15

ANÁLISIS DE LA OBRA

PROGRAMA ARQUITECTÓNICO

En la planta del segundo piso encontramos un hall distribuidos que conecta con los ambientes ya distribuidos dentro del segundo nivel además de ello se maneja el uso más intimo como son el area de oficinas, asimismo estos ambientes distribuidos cuentan con su propia área de servicio como lo son los Servicios Higiénicos, el depósito y el almacén. Finalmente para dar énfasis al segundo piso se cuenta con 2 terrazas que permiten el ingreso de ventilación y luz natural dentro del recinto

ZONA SOCIAL

Terrazas

ZONA DE SERVICIO

Cuarto de máquinas

Servicio Higienico

ZONA ÍNTIMA

Oficinas

CIRCULACIÓN VERTICAL Y HORIZONTAL

Hall de ingreso - distribución

Ascensores

Escalera

EDIFICIO LA FENIX PERUANA CICLO VI GRUPO 2
ARQUITECTURA Y DISEÑO PERUANO SEMANA 7 16
TERRAZA TERRAZA OFICINA OFICINA OFICINA OFICINA S.H S H S.H S.H A L M A C E N DEPOSITO HALL ASCENSORES S.H

ANÁLISIS DE LA OBRA

PROGRAMA ARQUITECTÓNICO

OFICINA

OFICINA OFICINA

En la planta típica del tercer al quinto nivel encontramos la misma tipología manejada de las oficinas, un gran hall distribuidor que mediante una circulación horizontal nos distribuye dentro de los ambientes como el depósito general y las oficinas las cuales ellas mismas cuentan con servicio higiénico propio implementado dentro del área donde se ubica

ZONA ÍNTIMA

Oficinas

HALL ASCENSORES

S H

S.H S.H S H S H

S H DEPOSITO

OFICINA

ZONA DE SERVICIO

Servicio Higiénico

Deposito

OFICINA OFICINA

CIRCULACIÓN VERTICAL Y HORIZONTAL

Hall de ingreso - distribución

Ascensores

Escalera

EDIFICIO LA FENIX PERUANA CICLO VI GRUPO 2
ARQUITECTURA Y DISEÑO PERUANO SEMANA 7 17

ANÁLISIS DE LA OBRA

PROGRAMA ARQUITECTÓNICO

En la planta típica del sexto al octavo nivel encontramos la misma tipología manejada de las oficinas, un gran hall distribuidor que mediante una circulación horizontal nos distribuye dentro de los ambientes como el depósito general y las oficinas las cuales ellas mismas cuentan con servicio higiénico propio implementado dentro del área donde se ubica asimismo podemos visualizar como la oficina general que se ubica en la parte superior es la que jerarquiza el mayor área mientras que las 4 oficinas ubicadas e la parte inferior cuentan con un área menor pero con un gran almacén general que es compartido entre ellas

ZONA ÍNTIMA

Oficinas

ZONA DE SERVICIO

Almacen

Servicio Higiénico

Deposito

CIRCULACIÓN VERTICAL Y HORIZONTAL

Hall de ingreso - distribución

Ascensores

Escalera

EDIFICIO LA FENIX PERUANA CICLO VI GRUPO 2
ARQUITECTURA Y DISEÑO PERUANO SEMANA 7 18
OFICINA OFICINA OFICINA OFICINA OFICINA S.H S.H S.H S.H DEPOSITO A L M A C E N S.H HALL ASCENSORES

ANÁLISIS DE LA OBRA ANÁLISIS

FUNCIONAL -ACCESOS

PLANTA PRIMER NIVEL

PLANTA SEGUNDO NIVEL

ACCESO- INGRESOS PIRNCIPALES

CIRCULACIONES

TIENDA TIENDA TIENDA HALL ASCENSORES HALL DE INGRESO S H S.H S H S.H S.H S H ARQUITECTURA Y DISEÑO PERUANO SEMANA 6 EDIFICIO LA FENIX PERUANA CICLO VI GRUPO 2 19
OFICINA S.H S.H OFICINA OFICINA S H S.H HALL ASCENSORES DEPOSITO ALMACEN TERRAZA TERRAZA TERRAZA

ANÁLISIS DE LA OBRA

ANÁLISIS FUNCIONAL -ACCESOS

PLANTA TÍPICA TERCER - QUINTO NIVEL

PLANTA TÍPICA SEXTO - OCTAVO NIVEL

CIRCULACIONES

ARQUITECTURA Y DISEÑO PERUANO SEMANA 6 EDIFICIO LA FENIX PERUANA CICLO VI GRUPO 2 20
OFICINA S H S H OFICINA OFICINA OFICINA S.H OFICINA OFICINA S.H DEPOSITO S.H S.H HALL ASCENSORES OFICINA OFICINA OFICINA OFICINA S.H S.H S.H S.H HALL ASCENSORES DEPOSITO ALMACEN

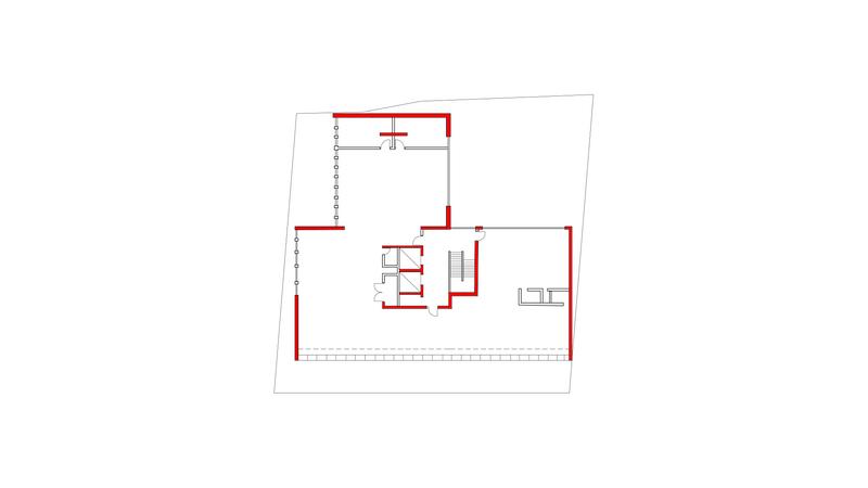
Debido a las grandes luces y a la forma del proyecto lo mas conveniente en estecasoeranlosmurosportantes Parece que se rige esta idea por la primera planta mas específicamente se puede ver dos ideas, la primera es que desde la gran circulación de la entrada a través de los hall de ingreso y de ascensores hay un gran pasillo que deja abierto un gran espacio que necesariamente necesita muros portantes por ser circulación, la otra idea es que como la primera planta se conforma de grandes tiendas estas dejan grandes luces que posteriormente tambien aparecen en algunospisosdeoficina.

GRUPO 2
ANÁL

ANÁLISIS DE LA OBRA

ANÁLISIS ESTRUCTURAL - MATERIALIDAD

debido a su sistema estructural la mayor parte de el edificio esta conformado de concreto armado por lo que los pocos elementos en los que varia son el vidrio de las ventanas y los porcelanatosdelospisos.

debido a las grandes luces y toda la losa que dista de un apoyo es coherente intuir que posee una vigas lo suficientemente peraltadas sobretodo en el primer nivel que es el nivel donde es mas evidente esta separación

ARQUITECTURA Y DISEÑO PERUANO SEMANA 6 EDIFICIO LA FENIX PERUANA CICLO VI GRUPO 2 22
ensegundaplanta vidrioenventanas muroportante
columnas

CRÍTICA A LA OBRA

EDIFICIO LA FÉNIX PERUANA

PordondeestaemplazadoElEdificioLafénixPeruana,enla

AV Abancay que Históricamente se remodelo por ahí de los años 50 tienen algunas edificaciones que en fachada se asemejan al edificio analizado y también edificación religiosas y publicas muy importantes históricamente hablando.

por ello el edificio La Fénix Peruana se siente como si se integrara a la perfección porque se nota el mismo estilo que los edificios colindantes y como hasta hoy se preservan con algunas características similares de forma, etc. mas se nota porlavolumetríaqueesunedificiodeFernandodeOsma.

Iglesia de la Pura y Limpia Concepción

comercio dedicado a tiendas de ropa

comercio dedicado a artículos del hogar

Edifico la Fénix Peruana

Edifico la Fénix Peruana

comercio dedicacdo a sector alimenticio

ARQUITECTURA Y DISEÑO PERUANO SEMANA 6 EDIFICIO LA FENIX PERUANA CICLO VI GRUPO 2 23

CRÍTICA A LA OBRA

EDIFICIO LA FÉNIX PERUANA

Principalmente el edificio la FeniX se divide en dos par tardos, el comercial y el de conjuntodeoficinas,

se logra destacar aparte de lo obvio que la primera planta tenia que ser la del comercio y las posteriores oficina como es que el evita tener que jugar o tener que lidiar con la forma del terreno en lo que es el conjunto de oficinas sustrayendo un poco del area a construir para generar espacios mas cúbicos y limpiosenplantahaciendoparecerqueelprogramaarquitectónicoseadecuaala formaynoalrevés.

ARQUITECTURA Y DISEÑO PERUANO SEMANA 6 EDIFICIO LA FENIX PERUANA CICLO VI GRUPO 2 24
TIENDA SH SH SH SH TIENDA HALL ASCENSORES SH SH HALLDE INGRESO CUARTODE ÁQUINAS TIENDA TERRAZA TERRAZA OFICINA OFICINA OFICINA OFICINA SH SH SH SH A L M A C E N DEPOSITO HALL ASCENSORES SH

CRÍTICA A LA OBRA

EDIFICIO LA FÉNIX PERUANA

Mediante la presente crítica en el ámbito del análisis funcional se visualiza una mayor problemática actualmente en relacion a sus flujos tanto vehicular como peatonal, movilidad universal y acceso , cuenta con una característica muy resaltante en la cual el área de su emplazamiento es muy céntrico y ordenado puesto que el mayor porcentaje de concentración del usuario se maneja en la Av. Abancay donde cuenta con una taza alta del ámbito del comercio, pero en base a sus problematicas presentes esta edificación al ubicarse en está avenida muy transitada y aglomerada genera muchas repercusiones en relacion a su acceso y el manejo de la movilidad al momento de emplazarse dentro del entorno una de las repercusiones muy frecuentes al momento de emplazarse es que cuenta con demasiado congestión vehicular puesto que como es una avenida principal y que muchas de sus arterias conectores se manejan en el mismo eje de la Av Abancay tiende a generar está problemática del tráfico adicionalmente en el ámbito peatonal muchas de sus bermas y veredas se encuentran en mal estado esto afecta en su movilidad puesto que los usuarios al momento de desplazarse comienzan a transitar por área de las vías y esto ocasiona diversos factores que en

En cuanto al análisis espacial y estructural como punto favorable se destaca la materialidad y el sistema estructural empleado puesto que está edificación rompió con el esquema de manejar un estilo y tipología típica limeña, el arquitecto de Osma mediante este proyecto fue muy innovador al generar uno de los primeros edificios modernos en el Perú enfatizando su diseño el diseño muy simple y peculiar tomando volúmenes geométricos y jugando con la espacialidad de ellos, en base a la critica que se genera en cuanto a su materialidad, la edificación cuenta con materiales modernos pero muy pocos quiza se puedo implementar algunos materiales modernos para enfatizar mejor el diseño de la fachada puesto que en ella se marcaria mucho mejor su ubicación y no pasaría desapercibida como lo está actualmente en base a su sistema constructivo fue uno de los mejores sistemas empleados puesto que hasta la actualidad hoy en día la edificación se mantiene intacta y en buen estado

Flujo Vehicular Vía Local - Avenida Vía Arterial - Jirones Flujo Peatonal Avenidas y Jirones LEYENDA Av. Abancay Av. Abancay Av. Abancay Jr.Ucayali
EDIFICIO LA FENIX PERUANA O VI GRUPO 2
Jr.Ucayali

BIBLIOGRAFÍA REFERENCIA BIBLIOGRÁFICA

Quintanilla, E. (s. f.). Compañia Nacional de Telefonos Arquitectura Movimiento Moderno Perú.

https://cammp.ulima.edu.pe/edificios/compania-nacional-de-telefonos/

Quintanilla, E. (s. f.). Edificio la Fénix Peruana Arquitectura Movimiento Moderno Perú.

https://cammp.ulima.edu.pe/edificios/edificio-la-fenix-peruana-2/

Quintanilla, E. (s. f.). Edificio el Pacífico Arquitectura Movimiento Moderno Perú.

https://cammp.ulima.edu.pe/edificios/edificio-el-pacifico-3/

Quispe Muñoz, L. J. (2018). El ocaso de la oligarquía. Segundo gobierno de Manuel Prado (19561962).

https://repositorio.une.edu.pe/bitstream/handle/20.500.14039/2912/M025 70883004T.pdf?sequence=1&isAllowed=y

Rivera Gámez, D., & Vela Cossío, F. (2016). El legado del siglo XX. Los retos para la conservación del patrimonio arquitectónico moderno en el Perú. Limaq. Revista de arquitectura de la Universidad de Lima, (2), 99-118.

https://oa.upm.es/44592/1/INVE MEM 2016 242265.pdf

Rojas Mejia, A. P. Brotes modernos: Inserción de la arquitectura moderna mixta en la avenida Arequipa en 50s-70s.

https://tesis.pucp.edu.pe/repositorio/bitstream/handle/20.500.12404/21254/ROJAS_MEJIA_ADRIANA_PIERINA_BROTES_MO DERNOS INSERCION.pdf?sequence=1&isAllowed=y

Uriol, E. L. P. (2022). Infraestructura Educativa Pública en Lima Entre los Períodos 1948-1956 Y 1956-1962. Análisis Crítico de la Relación Entre las Políticas Educativas y Los Proyectos (Doctoral dissertation, Pontificia Universidad Catolica del Peru (Peru)).

file:///C:/Users/Usuario/Downloads/Eveling%20Lourdes Ponce%20Uriol.pdf

ARQUITECTURA Y DISEÑO PERUANO SEMANA 6 EDIFICIO LA FENIX PERUANA CICLO VI GRUPO 2 26

Turn static files into dynamic content formats.

Create a flipbook
Issuu converts static files into: digital portfolios, online yearbooks, online catalogs, digital photo albums and more. Sign up and create your flipbook.